Stanislav_il Опубліковано: 23 грудня 2012 Поділитись Опубліковано: 23 грудня 2012 Всем привет. Есть участок 20*25м. Хочу построить 1-этажный дом без подвала с холодным чердаком, стены - ГБ 375мм (плотность 400) Остановились с женой на этом проекте z500.com.ua/ru/project/z91 т.к он удовлетворяет нашим требованиям на 100% - 3 спальни с местами под встроенные шкафы, 2 с/у, кухня, гостиная и хозпомещение, минимум коридоров, общая площадь - около 110 кв.м. Уважаемые форумчане, очень жду здоровую критику проекта а также мысли по адаптации его под наши реалии (длина плит перекрытия, обычная стропилка, а не готовые польские фермы под 10-метровые пролеты, вентиляционные шахты и т.д и т.п) Я застопорился на вопросах - какой разумнее делать фундамент под это все, как решить конструктивно опирание чердачного перекрытия... Залить плиту по ленте (контуры опираются на ленту, основное тело плиты - по грунту)? Положить плиты перекрытия по ленте и опереть их внутри на фундаментную перемычку? Лить фунд под несущие стены и в каждой комнате делать отдельные полы (где-то ТП, где-то дерево по лагам)? На что опирать прогоны стропилки -на несущие стены (где их тогда разместить)? на колонны, стоящие на плитах цокольного перекрытия и несущие швеллера, двутавры? В общем, не построив пока ни одного дома, не обладаю нужным запасом решений по изложенным выше вопросам. Пожалуйста, в архитектурные бюро не отправлять, на сайт z500 за проектом - тоже. Мне проект как таковой не нужен, прорабов и подрядчиков нанимать не буду, моя стройка будет экономичной. Мне нужен набор конструктивных решений, который исходит из опыта уже строившихся форумчан. Думаю, совместными усилиями мы придем к оптимальным решениям. Помогите советом, буду очень благодарен. Посилання на коментар Поділитися на інших сайтах More sharing options...
ДОКС Опубліковано: 23 грудня 2012 Поділитись Опубліковано: 23 грудня 2012 Мне проект как таковой не нужен, прорабов и подрядчиков нанимать не буду, моя стройка будет экономичной. Мне нужен набор конструктивных решений, который исходит из опыта уже строившихся форумчан. Думаю, совместными усилиями мы придем к оптимальным решениям. Помогите советом, буду очень благодарен. Скажите пожалуйста, а кто будет нести ответственность за этот фундамент? И какова будет степень вашей благодарности? Спасибо. Посилання на коментар Поділитися на інших сайтах More sharing options...
Stanislav_il Опубліковано: 23 грудня 2012 Автор Поділитись Опубліковано: 23 грудня 2012 Скажите пожалуйста, а кто будет нести ответственность за этот фундамент? Ответственность целиком на мне, т.к проект заказывать не буду. Будет чисто моя реализация предложенных специалистами решений. И вообще, мне не нужно 100+ страниц подробнейших сочинений на тему будущего дома со схемой размещения розеток и и смесителей и прочей мелочи. Мне проще заплатить нормальному специалисту напрямую, минуя кассу "фирмы" за узкий перечень конкретно интересующих меня вопросов. Все равно коммуникации будут заводиться и будут "разложены" позже и почти полностью эта работа будет сделана мной. Я хочу помощи специалистов в обозначенных мною вопросах, т.к стройка будет уровня "самострой" с чуть более глубокой начальной теоретической подготовкой, чем классический самострой, когда "главное ввязаться в бой, а потом посмотрим на что у нас будут опираться стропила и как пробить 400мм монолита чтобы вывести канализационную трубу..." Благодарность моя будет выражена в национальной валюте, в размере 1000-2000 грн в зависимости от глубины рассчетов. от бесплатных рекомендаций не откажусь ) И да, не хочу, чтобы тема превратилась в "ищу специалиста за стопицот денег". Думаю, добрые люди не откажут в простых советах по данному проекту. Посилання на коментар Поділитися на інших сайтах More sharing options...
ДОКС Опубліковано: 23 грудня 2012 Поділитись Опубліковано: 23 грудня 2012 Благодарность моя будет выражена в национальной валюте, в размере 1000-2000 грн в зависимости от глубины рассчетов. оптимально - в "тендерах" повесьте свою задачу. озвучьте там сумму гонорара и чёткие условия. поверьте - желающие Вам помочь найдутся. Посилання на коментар Поділитися на інших сайтах More sharing options...
mila_bog@list.ru Опубліковано: 23 грудня 2012 Поділитись Опубліковано: 23 грудня 2012 ДОКС, Я понимаю, что вы опытный специалист и если за что-то беретесь всегда контролируете этапы реализации и очень ответственно подходите ко всем вопросам. Но иногда у людей нет, к сожалению, и маленькой суммы денег для того, чтоб оплатить услуги Ваши или ваших коллег. Именно с этой целью и открываются темы в профильных ветках. С другой стороны, я лично обращалась к Вам и Вы никогда не откажите в маленьких советах и всегда доходчиво объясните все за и против, за что отдельное спасибо. Но все же еще раз хочу акцентировать внимание на то, что люди приходят сюда за бесплатными советами не из-за экономии, а чаще всего по нужде. 1 Посилання на коментар Поділитися на інших сайтах More sharing options...
ДОКС Опубліковано: 23 грудня 2012 Поділитись Опубліковано: 23 грудня 2012 Но все же еще раз хочу акцентировать внимание на то, что люди приходят сюда за бесплатными советами не из-за экономии, а чаще всего по нужде. но почему же бесплатно? чётко обозначена сумма гонорара... вот я и посоветовал лишь акцентировать внимание на проблему ещё и в других разделах форума. а за хорошие слова в мой адрес - спасибо!!! Посилання на коментар Поділитися на інших сайтах More sharing options...
Вредный Хряк Опубліковано: 23 грудня 2012 Поділитись Опубліковано: 23 грудня 2012 прожект не особенно удачный для адаптации под местную реальность. по укроинским нормам котельная без окна не допускается. накрыть пролёт 10м деревянной фермой в принципе можно. токо йА бы поостерёгся проживать под такой конструкцией, выполненной очумелыми ручками дорогих соотечественников:D. проще добавить балку на нескольких (напрашивается четыре) колоннах вдоль длинной стороны аккурат посередине дома. 1 Посилання на коментар Поділитися на інших сайтах More sharing options...
Stanislav_il Опубліковано: 23 грудня 2012 Автор Поділитись Опубліковано: 23 грудня 2012 оптимально - в "тендерах" повесьте свою задачу. озвучьте там сумму гонорара и чёткие условия. поверьте - желающие Вам помочь найдутся. это да. но чем моя тема хуже остальных, в которых все-таки дают бесплатные советы? Добавлено через 1 минуту но почему же бесплатно? чётко обозначена сумма гонорара... вот я и посоветовал лишь акцентировать внимание на проблему ещё и в других разделах форума. четкая сумма возникла из Вашего интереса о "размерах благодарности". Добавлено через 1 минуту по укроинским нормам котельная без окна не допускается. а что если я установлю в кухне вместо одного из шкафчиков двухконтурный котел? тогда мне и котельная не нужна, верно? Добавлено через 5 минут проще добавить балку на нескольких (напрашивается четыре) колоннах вдоль длинной стороны аккурат посередине дома. то есть, можно не ставить капитальные стены вообще? будет вроде свободной планировки? это вообще идеально. из какого материала делать эти колонны и из чего балка на них? Посилання на коментар Поділитися на інших сайтах More sharing options...
ДОКС Опубліковано: 23 грудня 2012 Поділитись Опубліковано: 23 грудня 2012 а что если я установлю в кухне вместо одного из шкафчиков двухконтурный котел? тогда мне и котельная не нужна, верно? верно........... 1 Посилання на коментар Поділитися на інших сайтах More sharing options...
Юрий Киев Опубліковано: 23 грудня 2012 Поділитись Опубліковано: 23 грудня 2012 то есть, можно не ставить капитальные стены вообще? будет вроде свободной планировки? это вообще идеально. из какого материала делать эти колонны и из чего балка на них? извините,но это серьезная конструкция,вы же не будете на глазок её делать?или по советам из интернета? я решил этот вопрос несущей стеной разделяющей дом по длине. показываю как ,что не понятно спрашивайте. 1 Посилання на коментар Поділитися на інших сайтах More sharing options...
Stanislav_il Опубліковано: 23 грудня 2012 Автор Поділитись Опубліковано: 23 грудня 2012 извините,но это серьезная конструкция,вы же не будете на глазок её делать?или по советам из интернета? нет конечно, я просто подыскиваю оптимальный вариант в моей ситуации для дальнейшей детальной разработки. Добавлено через 2 минуты Юрий Киев, скажите, а стенки толщиной 100мм из ГБ и армопоясом сверху - это мало для опирания стропилки по центру дома? Добавлено через 1 минуту верно.......... ДОКС, Вы так говорите, будто подразумеваете, что это не совсем хорошее решение. что не так в этом варианте размещения котла? Посилання на коментар Поділитися на інших сайтах More sharing options...
Юрий Киев Опубліковано: 23 грудня 2012 Поділитись Опубліковано: 23 грудня 2012 Юрий Киев, скажите, а стенки толщиной 100мм из ГБ и армопоясом сверху - это мало для опирания стропилки по центру дома? это не просто мало)))100мм и для перегородок между комнатами мало.лучше из кирпича стена в 38 см.если газоблок,то потолще,я сделал из 400мм с армопоясом . котел на кухне это вполне нормальное решение. я ставил бездымоходный,разводка сделана так ,чтобы спряталась за фасадом кухонной мебели,но был доступ свободный. но техпомещение всё равно не помешает иметь.если есть такая возможность. 1 Посилання на коментар Поділитися на інших сайтах More sharing options...
ДОКС Опубліковано: 23 грудня 2012 Поділитись Опубліковано: 23 грудня 2012 что не так в этом варианте размещения котла? достаточно бюджетное решение. всё нормально. 1 Посилання на коментар Поділитися на інших сайтах More sharing options...
plus Опубліковано: 23 грудня 2012 Поділитись Опубліковано: 23 грудня 2012 Малюсенькая котельная, в которой не развернешься, да еще и в центре дома островом, мне кажется, хужего места для нее - не придумать. Добавлено через 6 минут а что если я установлю в кухне вместо одного из шкафчиков двухконтурный котел? тогда мне и котельная не нужна, верно? Оставив жилой дом без полноценной котельной, сделаете большую ошибку, которую потом не исправить. Посилання на коментар Поділитися на інших сайтах More sharing options...
Stanislav_il Опубліковано: 23 грудня 2012 Автор Поділитись Опубліковано: 23 грудня 2012 Малюсенькая котельная, в которой не развернешься, да еще и в центре дома островом, мне кажется, хужего места для нее - не придумать. согласен. в центре - это вообще бред. сейчас набросаю как я вижу решение. Добавлено через 2 минуты Оставив жилой дом без полноценной котельной, сделаете большую ошибку, которую потом не исправить. не понимаю такого священного отношение к котельной. если у меня в кухне будет висеть котел, то по большому счету, зачем мне котельная? будет кладовая или хозпомещение, как кому угодно... Добавлено через 1 минуту это не просто мало)))100мм и для перегородок между комнатами мало.лучше из кирпича стена в 38 см.если газоблок,то потолще,я сделал из 400мм с армопоясом . ну а если свободная планировка и "легкие" простенки на основе брусьев, набивка ватой, обшитой по два слоя ГК в сторону комнат? Посилання на коментар Поділитися на інших сайтах More sharing options...
SergijKo Опубліковано: 23 грудня 2012 Поділитись Опубліковано: 23 грудня 2012 Юрий Киев, скажите, а стенки толщиной 100мм из ГБ и армопоясом сверху - это мало для опирания стропилки по центру дома? Конструкция - это не много или мало, это расчет (сбор нагрузок и несущая способность материалов). Посилання на коментар Поділитися на інших сайтах More sharing options...
Юрий Киев Опубліковано: 23 грудня 2012 Поділитись Опубліковано: 23 грудня 2012 ну а если свободная планировка и "легкие" простенки на основе брусьев, набивка ватой, обшитой по два слоя ГК в сторону комнат? надо решить вопрос с перекрытием. а межкомнатные стены - второй вопрос. Посилання на коментар Поділитися на інших сайтах More sharing options...
Stanislav_il Опубліковано: 24 грудня 2012 Автор Поділитись Опубліковано: 24 грудня 2012 надо решить вопрос с перекрытием. а межкомнатные стены - второй вопрос. Понял. Тогда идем от перекрытий... По опыту, подскажите, что лучше: 1 - залить монолитную плиту 100мм поверх ленточного фунда по грунту (ессно, трамбовка + пенопласт 100мм , потом бетон с армировкой. форма ленты - прямоугольник с длинной перемычкой посредине). Поверх этой плиты над перемычкой ставлю несущую внутр. стену, скажем 300мм ГБ с армопоясом сверху. Получится пролет чуть более 4,5м. Цена перекрытия - 1000грн за трамбовку, 4000грн за ППС+ 7000грн за бетон и сетку = приблизительно 12000. 2 - та же форма ленты, только сверху б/у плиты перекрытия (доставка к участку и кран БЕСПЛАТНО). По стыку плит внутри также несущая внутренняя стена, 300мм ГБ с армопоясом сверху. Тот же пролет 4,5м. Цена этого варианта - около 15000 грн. Разница не катастрофическая, поэтому вопрос, какой из вариантов предпочтительнее чисто конструктивно и с учетом возможных дальнейших затрат или проблем в будущем с этими вариантами? Посилання на коментар Поділитися на інших сайтах More sharing options...
Drosselbeere Опубліковано: 24 грудня 2012 Поділитись Опубліковано: 24 грудня 2012 Stanislav_il, о каком перекрытии вы говорите? Добавлено через 3 минуты Разница не катастрофическая, поэтому вопрос, какой из вариантов предпочтительнее чисто конструктивно и с учетом возможных дальнейших затрат или проблем в будущем с этими вариантами? если говорите о том как сделать пол первого этажа, то первый вариант предпочтительней, и естественно без опирания на стены ибо нагрузка прийдет на фундамен. ps. начните с архитектуры, а не с конструкций Посилання на коментар Поділитися на інших сайтах More sharing options...
Юрий Киев Опубліковано: 24 грудня 2012 Поділитись Опубліковано: 24 грудня 2012 1 - залить монолитную плиту 100мм поверх ленточного фунда по грунту (ессно, трамбовка + пенопласт 100мм , потом бетон с армировкой. форма ленты - прямоугольник с длинной перемычкой посредине). Поверх этой плиты над перемычкой ставлю несущую внутр. стену, скажем 300мм ГБ с армопоясом сверху. Получится пролет чуть более 4,5м. Цена перекрытия - 1000грн за трамбовку, 4000грн за ППС+ 7000грн за бетон и сетку = приблизительно 12000. я сделал так,как описано в первом варианте. Но под вн.несущую стену залита лента просто на плиту опирать её стрёмно очень и очень,кроме того вместе с лентой залит фундамент под камин и трубу с вентканалами- если всё это запланировано.А там,где предполагались межкомнатные стены в плите предусмотрено было доп.армирование и толщина плиты у меня вышла 12-14 см.10 см тоже пойдет. 1 Посилання на коментар Поділитися на інших сайтах More sharing options...
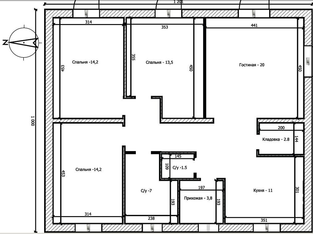
Stanislav_il Опубліковано: 24 грудня 2012 Автор Поділитись Опубліковано: 24 грудня 2012 Вот так я вижу проект. Ровно по центру несущая стена толщиной 20см с армопоясом сверху. Посилання на коментар Поділитися на інших сайтах More sharing options...
ДОКС Опубліковано: 24 грудня 2012 Поділитись Опубліковано: 24 грудня 2012 Ровно по центру несущая стена толщиной 20см а почему не 30-ть или 40-ок? или не 250 или не 320? как рассчитали нагрузку? аргументируйте. Посилання на коментар Поділитися на інших сайтах More sharing options...
Stanislav_il Опубліковано: 24 грудня 2012 Автор Поділитись Опубліковано: 24 грудня 2012 а почему не 30-ть или 40-ок? или не 250 или не 320? как рассчитали нагрузку? аргументируйте. честно говоря, от фонаря. попробую посчитать как смогу: стропильная система будет состоять из 15 ферм (шаг - 0,8м). каждая ферма - из 30м бруса 50*150мм = пусть 2,5 тонны вместе с крепежом. вата и прочие материалы в пирог крыши - пусть еще 0,5т обрешетка - еще 2т шифер - пусть еще 2т вместе с крепежом снеговая нагрузка - пусть 15т. Итого, вес крыши + нагрузки = 25 т (каждое слагаемое с большим запасом) Площадь опирания стропил на армопояс - 15*20см*5см = 1500см2 Эксперты, какая часть из веса крыши будет опираться на центральную несущую стену? Половина от всего веса? Если так, то получаем нагрузку на сжатие 8 кг/см2. Бетон выдержит. ГБ под армопоясом тоже. Ох и нафантазировал. Поправьте, пожалуйста, в чем я неправ. Посилання на коментар Поділитися на інших сайтах More sharing options...
Drosselbeere Опубліковано: 24 грудня 2012 Поділитись Опубліковано: 24 грудня 2012 Ох и нафантазировал. да вы фантазер еще тот у вас должно быть на внутр стену погонная нагрузка, что то вы перемудрили. Посилання на коментар Поділитися на інших сайтах More sharing options...
Stanislav_il Опубліковано: 24 грудня 2012 Автор Поділитись Опубліковано: 24 грудня 2012 да вы фантазер еще тот у вас должно быть на внутр стену погонная нагрузка, что то вы перемудрили. ок. 12 тонн на 12 метров - 1т/мп. Как исходя из этих данных подобрать толщину стены? Посилання на коментар Поділитися на інших сайтах More sharing options...
Рекомендовані повідомлення
Створіть акаунт або увійдіть у нього для коментування
Ви маєте бути користувачем, щоб залишити коментар
Створити акаунт
Зареєструйтеся для отримання акаунта. Це просто!
Зареєструвати акаунтУвійти
Вже зареєстровані? Увійдіть тут.
Увійти зараз