максим7 Опубліковано: 30 грудня 2012 Поділитись Опубліковано: 30 грудня 2012 уважаемые специалисты, пожалуйста, научите быстро и правильно считать материал. я вот после выезда к заказчику сажусь дома за комп, открываю шаблоны(прайсы) и начинаю с трудом вспоминать как там на месте, рисовать разводку в воображении... а вот видел как киевские монтажники прямо на месте открывали блокнот и рисовали какие-то схемки похожие на клинопись))) в общем у кого какие наработки в этом деле? заранее благодарен за ответы. Посилання на коментар Поділитися на інших сайтах More sharing options...
Сергей_84 Опубліковано: 30 грудня 2012 Поділитись Опубліковано: 30 грудня 2012 уважаемые специалисты, пожалуйста, научите быстро и правильно считать материал. я вот после выезда к заказчику сажусь дома за комп, открываю шаблоны(прайсы) и начинаю с трудом вспоминать как там на месте, рисовать разводку в воображении... а вот видел как киевские монтажники прямо на месте открывали блокнот и рисовали какие-то схемки похожие на клинопись))) в общем у кого какие наработки в этом деле? заранее благодарен за ответы. берем планы и на них уже рисуем, какие тут наработки... 1 Посилання на коментар Поділитися на інших сайтах More sharing options...
naupv Опубліковано: 31 грудня 2012 Поділитись Опубліковано: 31 грудня 2012 берем планы и на них уже рисуем, Желательно поэтажные. Посилання на коментар Поділитися на інших сайтах More sharing options...
B.A.S. Опубліковано: 31 грудня 2012 Поділитись Опубліковано: 31 грудня 2012 Фото тоже помогает,особенно если считаешь потом. 1 Посилання на коментар Поділитися на інших сайтах More sharing options...
максим7 Опубліковано: 31 грудня 2012 Автор Поділитись Опубліковано: 31 грудня 2012 если я правильно понял, то берем план дома и рисуем схему из труб, тройников, углов, кранов, разборных соединений (работаю в основном экопластиком) используя при этом специальные значки, а затем считают их количество. правильно? Посилання на коментар Поділитися на інших сайтах More sharing options...
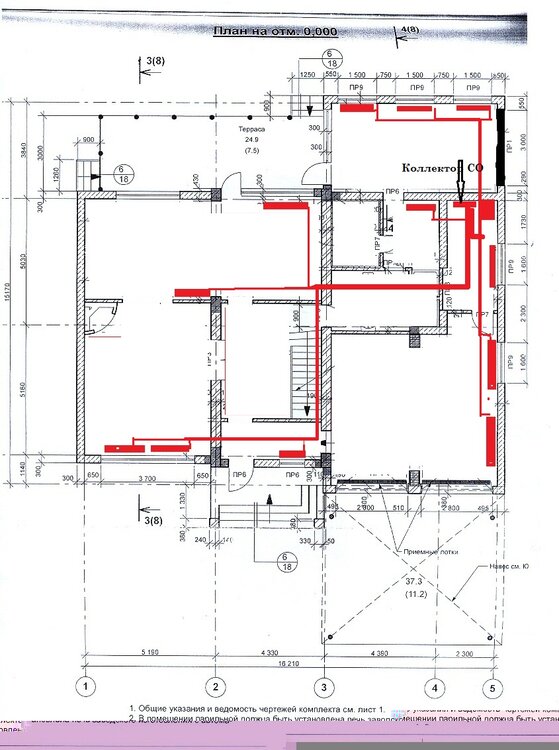
B.S.V. Опубліковано: 31 грудня 2012 Поділитись Опубліковано: 31 грудня 2012 Например так, только с обозначением диаметров. Посилання на коментар Поділитися на інших сайтах More sharing options...
Сергей_84 Опубліковано: 31 грудня 2012 Поділитись Опубліковано: 31 грудня 2012 Фото тоже помогает,особенно если считаешь потом. в последнее время начал практиковать....особенно фото сложных узлов и конструкций. Иначе, проходит 3 дня , куча текущих объектов и уже нифга не помнишь 1 Посилання на коментар Поділитися на інших сайтах More sharing options...
deecher Опубліковано: 31 грудня 2012 Поділитись Опубліковано: 31 грудня 2012 Основная особенность нашего дела - оччень длинные списки материалов. В последнее время даже некоторые проектировщики наблатыкались уголки с тройниками считать в спецификации. А раньше ведь просто погонные метры трубы и все. Посилання на коментар Поділитися на інших сайтах More sharing options...
murava Опубліковано: 31 грудня 2012 Поділитись Опубліковано: 31 грудня 2012 Высчитывать до коленца весь дом? Ребятки, у вас ангельское терпение, эпическое трудолюбие и просто дохрена свободного времени. 2 Посилання на коментар Поділитися на інших сайтах More sharing options...
Сергей_84 Опубліковано: 31 грудня 2012 Поділитись Опубліковано: 31 грудня 2012 Высчитывать до коленца весь дом? Ребятки, у вас ангельское терпение, эпическое трудолюбие и просто дохрена свободного времени. Андрюх, оно не свободное , а рабочее и оно нехило оплачивается;);) Посилання на коментар Поділитися на інших сайтах More sharing options...
максим7 Опубліковано: 31 грудня 2012 Автор Поділитись Опубліковано: 31 грудня 2012 всем спасибо. как нибудь сфотографирую то что видел у знакомого и выкину на форум. Посилання на коментар Поділитися на інших сайтах More sharing options...
bgt Опубліковано: 1 січня 2013 Поділитись Опубліковано: 1 січня 2013 Высчитывать до коленца весь дом? Ребятки, у вас ангельское терпение, эпическое трудолюбие и просто дохрена свободного времени. Я считаю основные узлы.Топочную, радиаторы, коллектора... Трубы, фитингиуже на глаз, а там корректирую. Если есть похожие дома (по площади, сан узлам) беру за лекало старые предложения, контролирую цены на материалы... А далее по актам закрываюсь. Посилання на коментар Поділитися на інших сайтах More sharing options...
igor1307 Опубліковано: 1 січня 2013 Поділитись Опубліковано: 1 січня 2013 уважаемые специалисты, пожалуйста, научите быстро и правильно считать материал. я вот после выезда к заказчику сажусь дома за комп, открываю шаблоны(прайсы) и начинаю с трудом вспоминать как там на месте, рисовать разводку в воображении... а вот видел как киевские монтажники прямо на месте открывали блокнот и рисовали какие-то схемки похожие на клинопись))) в общем у кого какие наработки в этом деле? заранее благодарен за ответы. У меня есть типовые узлы, которые уже считались, метраж труб везде разный, но он по месту быстро считается. Как-то так Посилання на коментар Поділитися на інших сайтах More sharing options...
Рекомендовані повідомлення
Створіть акаунт або увійдіть у нього для коментування
Ви маєте бути користувачем, щоб залишити коментар
Створити акаунт
Зареєструйтеся для отримання акаунта. Це просто!
Зареєструвати акаунтУвійти
Вже зареєстровані? Увійдіть тут.
Увійти зараз