romalex4 Опубліковано: 18 січня 2013 Поділитись Опубліковано: 18 січня 2013 здравствуйте, уважаемые форумчане и специалисты. близится начало строительного сезона, а планировка будущего дома только в самом начале. общие желания и направления мысли: - дом для постоянного проживания 2 взрослых человек + приходящие дети и внуки в разном количестве. - дом для проживания семьи, а не для гостей. - в будущем для проживания детей или на продажу, потому дом должен обладать всеми удобствами и функциональностью. Прошу вас поучаствовать в обсуждении, критике моей планировки, участок на склоне1 м на 10 метров, склон на юго-восток, дом предполагаю в северной части участка 25*40м. спасибо Посилання на коментар Поділитися на інших сайтах More sharing options...
Ollie Опубліковано: 18 січня 2013 Поділитись Опубліковано: 18 січня 2013 Нормальная планировка..., но ее не достаточно, чтобы судить о чем-то, нужно видеть посадку дома на участок (генплан или его схему) и фасады Посилання на коментар Поділитися на інших сайтах More sharing options...
FashionFace Опубліковано: 18 січня 2013 Поділитись Опубліковано: 18 січня 2013 Планировка вполне себе нормальная - а вот схемы с рельефом действительно не хватает, в какой стороне уклон? Посилання на коментар Поділитися на інших сайтах More sharing options...
Деревянщик Опубліковано: 18 січня 2013 Поділитись Опубліковано: 18 січня 2013 Когда я проектировал реконструкцию дачного дома на склоне, задача была такая же: семья из 2 человек 55+, дети взрослые, предназначен для периодического приезда и проживания в летний период. Дом получился оригинальный и знаю, что сразу после постройки, его хотели купить. Фото строительства домика есть в фотоальбоме. Посилання на коментар Поділитися на інших сайтах More sharing options...
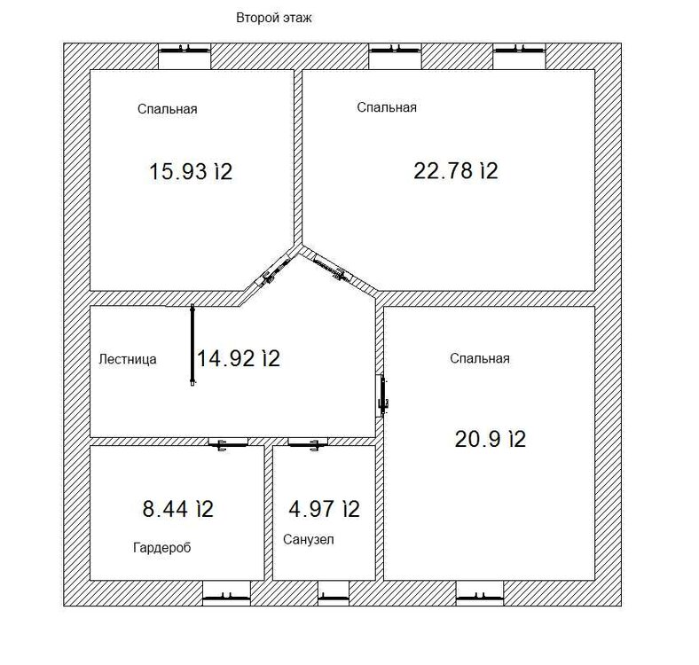
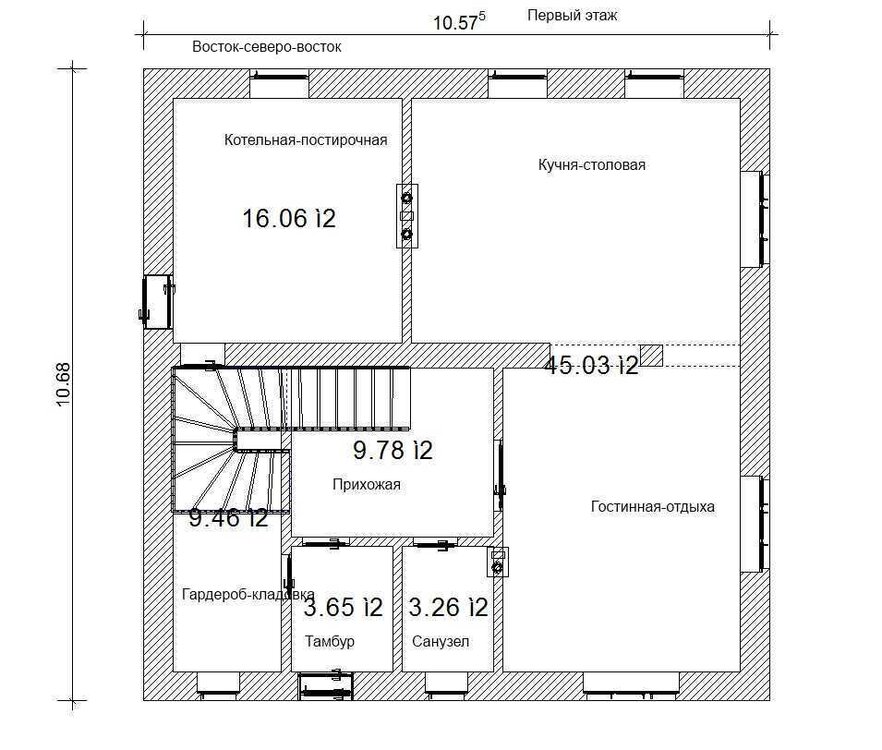
Drosselbeere Опубліковано: 18 січня 2013 Поділитись Опубліковано: 18 січня 2013 в целом планировка простая и на любителя. что бы попасть в топочную -постирочную надо заийти в кладовку и проползти под лестницей но ее не достаточно, чтобы судить о чем-то, нужно видеть посадку дома на участок (генплан или его схему +100500 Посилання на коментар Поділитися на інших сайтах More sharing options...
Александр2008_111 Опубліковано: 18 січня 2013 Поділитись Опубліковано: 18 січня 2013 1. Потрібно скомпонувати приміщення таким чином, щоб водопостачання, водовідведення і витяжки знаходились в одному місці. Тобто, бажано, щоб кухня, санвузол і котельня знаходились поруч. Це можна досягти, якщо санвузол перемістити у приміщення «котельня-постірочна» 2. Не вистачає дверей між «прихожа» та «кухня-столова». 3. Двері в котельню можна передбачити з кухні. 4. Вентканали та димохід проходять і на другому поверсі. 1 Посилання на коментар Поділитися на інших сайтах More sharing options...
romalex4 Опубліковано: 19 січня 2013 Автор Поділитись Опубліковано: 19 січня 2013 спасибо за участие. вот картинки фасадов и уклона грунта Посилання на коментар Поділитися на інших сайтах More sharing options...
Александр2008_111 Опубліковано: 19 січня 2013 Поділитись Опубліковано: 19 січня 2013 -Можливо, варто на 1 м по периметру будинку грунт зняти в рівень переднього фасаду? -Візуально не видно де закінчується фундамент і починаються стіни. Посилання на коментар Поділитися на інших сайтах More sharing options...
romalex4 Опубліковано: 19 січня 2013 Автор Поділитись Опубліковано: 19 січня 2013 -Можливо, варто на 1 м по периметру будинку грунт зняти в рівень переднього фасаду? -Візуально не видно де закінчується фундамент і починаються стіни. то-есть производить планировку пятна застройки? в таком случае необходимо будет делать дополнительно подпорную стену, да и больше земляных работ. Посилання на коментар Поділитися на інших сайтах More sharing options...
Александр2008_111 Опубліковано: 19 січня 2013 Поділитись Опубліковано: 19 січня 2013 Саме так. 1. Це дасть можливість спланувати будинок з повноцінними вікнами; 2. Знизить ймовірність змивання грунту на задню та бокові стіни будинку дощовими водами; 3. Дасть можливість зробити повноцінну отмостку; 4. Знизить ймовірність появи «сирості» на стінах (до яких не прилягатиме грунт). 1 Посилання на коментар Поділитися на інших сайтах More sharing options...
romalex4 Опубліковано: 19 січня 2013 Автор Поділитись Опубліковано: 19 січня 2013 4. Знизить ймовірність появи «сирості» на стінах (до яких не прилягатиме грунт). для цього на цокольних стінах буде зроблена вертикальна ізоляція 1. Це дасть можливість спланувати будинок з повноцінними вікнами; це питання дизайну, мені подобається. 2. Знизить ймовірність змивання грунту на задню та бокові стіни будинку дощовими водами; це рішається підсипкою грунту з уклоном від стіни 3. Дасть можливість зробити повноцінну отмостку; я думаю, що відвод поверхневої води буде за рахунок уклону. на одному з форумі мены сподобалась ідея обваловки будинку грунто, дерном. Посилання на коментар Поділитися на інших сайтах More sharing options...
Деревянщик Опубліковано: 19 січня 2013 Поділитись Опубліковано: 19 січня 2013 Взагалі можна було б зробитий цікавий будинок з приміщеннями в різних рівнях, другим світлом та правильно організованим життевим простором. Але якщо вам подобається симбіоз будинку хобіта (маю на увазі місця занурені у грунт) та хліборобського класицизму, то це Ваше право. Тільки памятайте, що грибок у стінах зявляється як і із-за зовнішнього підмочення, так і за недостатнього паропроникнення стінових конструкцій 2 Посилання на коментар Поділитися на інших сайтах More sharing options...
romalex4 Опубліковано: 19 січня 2013 Автор Поділитись Опубліковано: 19 січня 2013 Взагалі можна було б зробитий цікавий будинок з приміщеннями в різних рівнях, другим світлом та правильно організованим життевим простором. хочеться зрозуміти, що це значить, на якомусь прикладі, якщо можна - в студію;) Посилання на коментар Поділитися на інших сайтах More sharing options...
Деревянщик Опубліковано: 19 січня 2013 Поділитись Опубліковано: 19 січня 2013 хочеться зрозуміти, що це значить, на якомусь прикладі, якщо можна - в студію;) Ось приклад: www.rusfin.ru/proekt-doma-rusfin04725.html\ Хоча при бажанні в інтернеті можна безліч прикладів знайти 1 Посилання на коментар Поділитися на інших сайтах More sharing options...
romalex4 Опубліковано: 20 січня 2013 Автор Поділитись Опубліковано: 20 січня 2013 да, цыкаво. мені подобаються проекти різнорівневі, безумовно. на ворумі izba.ru викладено декілька проектів різнорівневих будинків. один з них я розглядаю як можливий. з приведенного прикладу, схоже перекриття монолітне, кухня відкрита до столової та загальної - не кожна жінка захоче виставляти кухню на огляд, як на мене так недостатньо (скоріше відсутні) кладових, приміщень зберігання. Кухня організована так, що на ній не готують їсти, а підігрівають НФ, при цьому дві дуже маленькв спальні, на око по 10-12 м.кв. котлової тут не видно, мабудь і цокольному(підвальному приміщенні), хоча ні однонго комина не видно, можливе центральне опалення- парапетний або турбірований котел та автоматична приточно-витяжна вентиляція з рекуперацією - для мене це задорого та і занадто. а взагалі цікаво, дякую. Посилання на коментар Поділитися на інших сайтах More sharing options...
Деревянщик Опубліковано: 20 січня 2013 Поділитись Опубліковано: 20 січня 2013 Будь яку річ можна купити в магазині, а можна замовити у кравця. Причому перші речі часто потрібно підшивати укорочувати і т.п. для того щоб Вони сиділи якнайкраще. Такий кравець для будинків -архітектор. Знаючи Ваші смаки і потреби він зможе адаптувати будь-який проект, або зробити для Вас індивідуальний. 1 Посилання на коментар Поділитися на інших сайтах More sharing options...
romalex4 Опубліковано: 20 січня 2013 Автор Поділитись Опубліковано: 20 січня 2013 Знаючи Ваші смаки і потреби він зможе адаптувати будь-який проект, або зробити для Вас індивідуальний. знав би я сам це про себе... Посилання на коментар Поділитися на інших сайтах More sharing options...
KseniaTannet Опубліковано: 20 січня 2013 Поділитись Опубліковано: 20 січня 2013 Добрый вечер! Планы это важно , но планы не живут отдельной жизню от фасадов, а фасады простоваты , для такого обьема 10*10 Вернее композиции вообще нету. Ведь внешний вид дома тоже очень важен. И меня смушает окно с.у возле входной двери (1 этаж) Тамбур дневным светом не освещен.Мне кажется очень красиво можно сделать входную дверь со стеклами по бокам ( на практике делала, очень красиво и светло) _______________________________ С уважением Ксения .Сайт tannet.com.ua/ 1 Посилання на коментар Поділитися на інших сайтах More sharing options...
romalex4 Опубліковано: 20 січня 2013 Автор Поділитись Опубліковано: 20 січня 2013 Добрый вечер! Планы это важно , но планы не живут отдельной жизню от фасадов, а фасады простоваты , для такого обьема 10*10 Вернее композиции вообще нету. Ведь внешний вид дома тоже очень важен. И меня смушает окно с.у возле входной двери (1 этаж) Тамбур дневным светом не освещен.Мне кажется очень красиво можно сделать входную дверь со стеклами по бокам ( на практике делала, очень красиво и светло) _______________________________ С уважением Ксения .Сайт tannet.com.ua/ да фасады и вообще дизайн как-то у меня еще не состоялся, скорее изза приоритетов - главный вопрос теплосбережения, потом сам материал стен как-то диктует - отделочный кирпич (скорее силикатный) выше цоколя, ниже отделка диким камнем. Посилання на коментар Поділитися на інших сайтах More sharing options...
KseniaTannet Опубліковано: 20 січня 2013 Поділитись Опубліковано: 20 січня 2013 Вы меня неправильно поняли, я не имею ввиду отделку.Я имею ввиду что дом нужно сделать интересне по форме.Допустим сделать балконы или террасу, крыльцо .Привести окна к одному знаменателю, они хаотично смотрятся. Дом сразу заиграет ___________________________________ С уважением Ксения. Сайт tannet.com.ua/ Посилання на коментар Поділитися на інших сайтах More sharing options...
romalex4 Опубліковано: 21 січня 2013 Автор Поділитись Опубліковано: 21 січня 2013 Вы меня неправильно поняли, я не имею ввиду отделку.Я имею ввиду что дом нужно сделать интересне по форме.Допустим сделать балконы или террасу, крыльцо .Привести окна к одному знаменателю, они хаотично смотрятся. Дом сразу заиграет ___________________________________ С уважением Ксения. Сайт tannet.com.ua/ вполне с вами согласен, учитывая критику - готовлю другую планировку, там, постараюсь учесть ваши замечания. спасибо Посилання на коментар Поділитися на інших сайтах More sharing options...
Рекомендовані повідомлення
Створіть акаунт або увійдіть у нього для коментування
Ви маєте бути користувачем, щоб залишити коментар
Створити акаунт
Зареєструйтеся для отримання акаунта. Це просто!
Зареєструвати акаунтУвійти
Вже зареєстровані? Увійдіть тут.
Увійти зараз