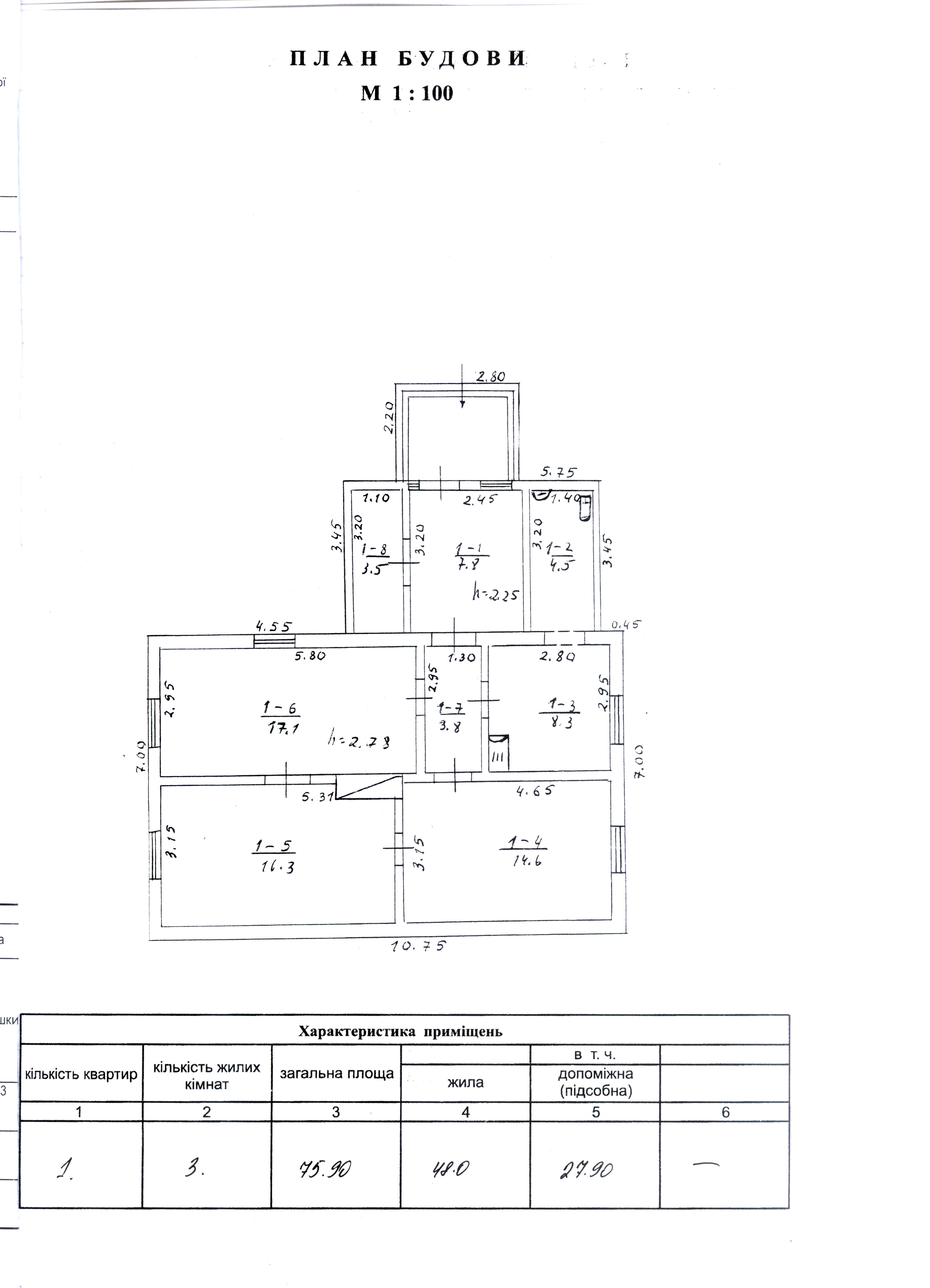
sandrogor Опубліковано: 27 січня 2013 Поділитись Опубліковано: 27 січня 2013 Добрый день. Есть дом размером 10,75 на 7 метров с пристройкой. Стены из шлака. Толщина наружных стен 300 мм. Крыша уже стремноваятая, хотелось бы ее перекрыть и переделать под мансарду и свесы сделать людские, а не такие куцые. В качестве кровельного материала рассматриваю крашеный шифер. (ссылка на изображение устарела) (ссылка на изображение устарела) Вот план дома: (ссылка на изображение устарела) Чтобы выиграть немного места в мансарде хочу поднять стены по периметру (и веранду тоже) на высоту 1-1,2 м пеноблоком или ракушняком. Крышу пристройки хочу сделать тоже типа мансардной, а не односкатной и пристыковать ее к основной крыше. При этом организовать что тто типа балкона над верандой. В углу где висят антены - сделать односкатное накрытие. Там будет или входная зона или просто накрытие. Вопрос в следующем - сколько может стоить что-то типа проекта кровли, чтобы его можно было отдать сройбригаде или строительной организации и не беспокоиться что крышу сорвет или стены развалятся или еще кака беда приключиться? Может кто из опытных форумчан-конструкторов сможет осуществить данное мероприятие? Посилання на коментар Поділитися на інших сайтах More sharing options...
Gothia Опубліковано: 28 січня 2013 Поділитись Опубліковано: 28 січня 2013 Вопрос в следующем - сколько может стоить что-то типа проекта кровли, чтобы его можно было отдать сройбригаде или строительной организации и не беспокоиться что крышу сорвет или стены развалятся или еще кака беда приключиться? Может кто из опытных форумчан-конструкторов сможет осуществить данное мероприятие? За пять сотен вечнозелёных вполне реально сваять проектик со степенью проработки "для стаботямлящих". Если всё таки строители с головой то можно уложиться и в три сотни. Рекомендую не мелочиться и сделать полноценный этаж. Прирост по смете не существенный, прирост в комфорте весьма и весьма. 1 Посилання на коментар Поділитися на інших сайтах More sharing options...
Aleksandr2508 Опубліковано: 28 січня 2013 Поділитись Опубліковано: 28 січня 2013 Посилання на коментар Поділитися на інших сайтах More sharing options...
Pyrijok Опубліковано: 28 січня 2013 Поділитись Опубліковано: 28 січня 2013 Ухты класно! а в чем это Вы так расщитали крышу? Посилання на коментар Поділитися на інших сайтах More sharing options...
Aleksandr2508 Опубліковано: 28 січня 2013 Поділитись Опубліковано: 28 січня 2013 Проект может измениться, если знать какое у вас перекрытие,а возможно на нем делать мансарду как вы хотите это уже второй вопрос! Добавлено через 1 минуту Pyrijok, Это только чертеж! Расчет в этой программе нельзя производить(прочность, прогибы и т.д и т.п)Кадворк, Для расчета другими программами пользуюсь! 1 Посилання на коментар Поділитися на інших сайтах More sharing options...
OlegArh Опубліковано: 28 січня 2013 Поділитись Опубліковано: 28 січня 2013 sandrogor, Вы бы не торопились строить капитальные стены на шлаке 300 мм. Почитайте эту тему - ситуация похожа. Мое мнение, что при неясностях с фундаментами и стенами, лучше все-же строить каркасную конструкцию. Да и по деньгам легче... P.S. И у меня нарисовать получилось... 3 Посилання на коментар Поділитися на інших сайтах More sharing options...
sandrogor Опубліковано: 28 січня 2013 Автор Поділитись Опубліковано: 28 січня 2013 sandrogor, Вы бы не торопились строить капитальные стены на шлаке 300 мм. Почитайте эту тему - ситуация похожа. Мое мнение, что при неясностях с фундаментами и стенами, лучше все-же строить каркасную конструкцию. Да и по деньгам легче... P.S. И у меня нарисовать получилось... Да, стены реально стремные. Если хорошо ковырять - то шлак рассыпается. Хотя ж строят дома тупо из ракушняка в 2 этажа и как то они стоят... и с армопоясами. Перекрытия - деревянные балки, но какого сечения и с каким шагом уложены - непонятно. Потолок подшит и ничего не видно. На чердаке все закидано глиной. Нужно будет провести вскрытие. :D Про каркасник думал, но надеялся что можно более капитально сделать что ли... Фундамент - бутовый. Когда заводил воду в дом, то удивился, что глубина залегания порядка 50 см. Цоколь высотой около 30 см. Грунты по идее не пучинистые - рядом гранитный карьер. стены конечно потрескались в нескольких местах, но думаю в основном из-за мелких свесов и отсутствия отмостки. Отмостку прошлым летом залил шириной 1 м. И стропила у меня висячие (если я правильно называю), в коньке никаких подпорок нет и не сильно хочется ставить чтобы не терять площади мансрдного этажа, хотя если будет нужно, то никуда не денешься. Еще рассматривал вариант для облегчения общей конструкции - это сменить шифер на металочерепицу, хотя она мне не очень нравится. А двухскатная крыша не съест полезное пространство? Посилання на коментар Поділитися на інших сайтах More sharing options...
OlegArh Опубліковано: 28 січня 2013 Поділитись Опубліковано: 28 січня 2013 Если хорошо ковырять - то шлак рассыпается. Хотя ж строят дома тупо из ракушняка в 2 этажа и как то они стоят... и с армопоясами. Про каркасник думал, но надеялся что можно более капитально сделать что ли... И стропила у меня висячие (если я правильно называю), в коньке никаких подпорок нет.Ракушняк спрессован веками, а шлаколитые стены - нищетой "того времени". Вы не смотрите на мою картинку (висячие стропила/не висячие) - Вам нужна безопасность , в первую очередь. P.S. Про капитальность каркасников - улыбнуло. ;) Посилання на коментар Поділитися на інших сайтах More sharing options...
sandrogor Опубліковано: 28 січня 2013 Автор Поділитись Опубліковано: 28 січня 2013 Ракушняк спрессован веками, а шлаколитые стены - нищетой "того времени". Вы не смотрите на мою картинку (висячие стропила/не висячие) - Вам нужна безопасность , в первую очередь. P.S. Про капитальность каркасников - улыбнуло. ;) Под капитальностью имел в виду стены из чего то более надежного, хотя бы пенобетона или ракушки, чем деревянный каркас. Да, по стенам хоть бери и новый дом строй, а этот оставить в покое пока не развалится. :D. Попутно мыслю над перепланировкой. Наваял в проге Turbo FloorPlan 3D. Так вроде более менее на бумаге выходит (неясно с простенком который возле существующей грубы - можно ее передвинуть немного в сторону или нет...). Для лестницы на мансардный этаж единственное место в получившемся коридорчике, но получается крутовата и может закрыть проход в кухню. Посилання на коментар Поділитися на інших сайтах More sharing options...
sandrogor Опубліковано: 28 січня 2013 Автор Поділитись Опубліковано: 28 січня 2013 sandrogor, Вы бы не торопились строить капитальные стены на шлаке 300 мм. Почитайте эту тему - ситуация похожа. Факт не проверенный, но мне кажется что балки перекрытий тупо лежат на стенах. На сколько это хорошо? Может как раз было бы полезно сделать хоть какой-нибудь армопояс для распределения нагрузки и перекрытий и мауэрлатов кровли? Как вы считаете? Посилання на коментар Поділитися на інших сайтах More sharing options...
OlegArh Опубліковано: 28 січня 2013 Поділитись Опубліковано: 28 січня 2013 Факт не проверенный, но мне кажется что балки перекрытий тупо лежат на стенах. На сколько это хорошо? Может как раз было бы полезно сделать хоть какой-нибудь армопояс для распределения нагрузки и перекрытий и мауэрлатов кровли? Как вы считаете?В таких ситуациях, армопояс существеное подспорье, а вернее: и подстраховка и увеличение надежности. Поэтому - я за армопояс, h~250 мм. Посилання на коментар Поділитися на інших сайтах More sharing options...
sandrogor Опубліковано: 28 січня 2013 Автор Поділитись Опубліковано: 28 січня 2013 В таких ситуациях, армопояс существеное подспорье, а вернее: и подстраховка и увеличение надежности. Поэтому - я за армопояс, h~250 мм. А чтобы связать со шлаковой стеной - загонять арматуру внутрь шлака в виде стержней? Какой длинны? Посилання на коментар Поділитися на інших сайтах More sharing options...
sandrogor Опубліковано: 29 січня 2013 Автор Поділитись Опубліковано: 29 січня 2013 Так что по поводу наращивания стен? Может сделать армопояс 250 мм по периметру дома. На этот армопояс будут опираться балки перекрытий. Потом выгнать из ракушки на какую то высоту - 500-1000 мм. Потом поверх еще один армопояс для опирания мауерлата кровли. Как на ваш взгляд - стена выдержит? Если при всем при этом облегчить кровлю - тоесть сменить шифер на металочерепицу? или с подъемом не морочиться, а делать крышу ломанную мансардную? Кстати, крышу думал делать вальмовую, типа без фронтонов. Фронтон или выход на балкончик как раз хотел оставить только в пристройке. Угол наклона кровли 45 градусов. Посилання на коментар Поділитися на інших сайтах More sharing options...
OlegArh Опубліковано: 29 січня 2013 Поділитись Опубліковано: 29 січня 2013 Так что по поводу наращивания стен? Может сделать армопояс 250 мм по периметру дома. На этот армопояс будут опираться балки перекрытий. Потом выгнать из ракушки на какую то высоту - 500-1000 мм. Потом поверх еще один армопояс для опирания мауерлата кровли. Как на ваш взгляд - стена выдержит?Я не прорицатель, но то, что можел "луснуть" - это впоооолне. Если при всем при этом облегчить кровлю - тоесть сменить шифер на металочерепицу? или с подъемом не морочиться, а делать крышу ломанную мансардную? Кстати, крышу думал делать вальмовую, типа без фронтонов. Фронтон или выход на балкончик как раз хотел оставить только в пристройке. Угол наклона кровли 45 градусов.На всей площади кровли, разница в весе между МЧ и шифером - мизерная. Все остальное - есть такое понятие рИски и оправданные рИски.....А еще - понятие необходимого и достаточного... Вобщем "Akuna-matata". Посилання на коментар Поділитися на інших сайтах More sharing options...
sandrogor Опубліковано: 29 січня 2013 Автор Поділитись Опубліковано: 29 січня 2013 Я не прорицатель, но то, что можел "луснуть" - это впоооолне. На всей площади кровли, разница в весе между МЧ и шифером - мизерная. Все остальное - есть такое понятие рИски и оправданные рИски.....А еще - понятие необходимого и достаточного... Вобщем "Akuna-matata". Тоесть, ограничиться только первым армопоясом без поднятия стены? Или и армопояс не делать? Крыша ж сейчас стоит... И перекрыть ее бы не мешало. Просто если перекрывать, то и мансардой бы можно было заморочиться, но типа летней, без постоянного и тем более зимнего проживания. Тем более если крышу делать вальмовую (такая как и есть сейчас) и двухскатную, то там не так и много пространства остается на чердаке. Крышу в любом случае хотелось бы переделать хотя бы из-за супер мелких свесов. Что посоветуете? Посилання на коментар Поділитися на інших сайтах More sharing options...
OlegArh Опубліковано: 29 січня 2013 Поділитись Опубліковано: 29 січня 2013 Тоесть, ограничиться только первым армопоясом без поднятия стены? Или и армопояс не делать? Крыша ж сейчас стоит... И перекрыть ее бы не мешало. Просто если перекрывать, то и мансардой бы можно было заморочиться, но типа летней, без постоянного и тем более зимнего проживания. Тем более если крышу делать вальмовую (такая как и есть сейчас) и двухскатную, то там не так и много пространства остается на чердаке. Крышу в любом случае хотелось бы переделать хотя бы из-за супер мелких свесов. Что посоветуете?Сейчас крыша стоит. И переделать - будет стоять, если сволока не трогать - мало-ли. Но когда речь идет о новых капитальных стенах...тут я не советчик. Посилання на коментар Поділитися на інших сайтах More sharing options...
sandrogor Опубліковано: 20 лютого 2013 Автор Поділитись Опубліковано: 20 лютого 2013 Подскажите, возвращаясь к моей крыше, такая конструкция стропилки может быть? И как крепить стропильные ноги между собой и в районе мауерлата, чтобы не было распора? И верхняя затяжка в принципе нужна или нет? Пока свожусь к мысли чтобы крыть не шифером а металочерепицей. Пирог следующий: металочерепица/ обрешетка/ контробрешетка/ СДМ/ стропило/ утеплитель 150 мм/ пароизоляция. как то так. Всем спасибо за подсказки, советы. Внешний вид того что хочу получить - хорошо прорисовал Aleksandr2508. Посилання на коментар Поділитися на інших сайтах More sharing options...
sandrogor Опубліковано: 20 лютого 2013 Автор Поділитись Опубліковано: 20 лютого 2013 Почитал соседние темы - как то неоднозначное чувство. С одной стороны МЧ хают, а с другой вроде бы и ничего... Опять короче муки выбора... шифер или МЧ. Что лучше/выгоднее? Крышники - помогите определиться. Посилання на коментар Поділитися на інших сайтах More sharing options...
Рекомендовані повідомлення
Створіть акаунт або увійдіть у нього для коментування
Ви маєте бути користувачем, щоб залишити коментар
Створити акаунт
Зареєструйтеся для отримання акаунта. Це просто!
Зареєструвати акаунтУвійти
Вже зареєстровані? Увійдіть тут.
Увійти зараз