Миклуха Маклай Опубліковано: 30 жовтня 2012 Поділитись Опубліковано: 30 жовтня 2012 Если уже за штробы заплатить получается , что 2 проводка прикрутить к выключателю 45 гр ? Не много ли ! могу предоставить фронт работ для решения много ли мало... 1 Посилання на коментар Поділитися на інших сайтах More sharing options...
filbud Опубліковано: 6 листопада 2012 Поділитись Опубліковано: 6 листопада 2012 Мы делаем all inclusive 145 грн точка Посилання на коментар Поділитися на інших сайтах More sharing options...
vale3 Опубліковано: 9 листопада 2012 Поділитись Опубліковано: 9 листопада 2012 А какие сегодня расценки на электрику? Посилання на коментар Поділитися на інших сайтах More sharing options...
karapuz74 Опубліковано: 9 листопада 2012 Поділитись Опубліковано: 9 листопада 2012 нужны комменты по смете Непонятно как-то...общая протяженность кабельных линий 750м. 30 метров металлорукав+ 100 метров борозды. Остальные 620 метров как? Гофры нет в смете. Посилання на коментар Поділитися на інших сайтах More sharing options...
БеLка Опубліковано: 10 листопада 2012 Поділитись Опубліковано: 10 листопада 2012 А какие сегодня расценки на электрику? Присоединяюсь к вопросу. Сколько на сегодняшний день Стоит Монтаж и установка розетки. Посилання на коментар Поділитися на інших сайтах More sharing options...
Шарманщик Опубліковано: 10 листопада 2012 Поділитись Опубліковано: 10 листопада 2012 Присоединяюсь к вопросу. Сколько на сегодняшний день Стоит Монтаж и установка розетки. Нам платят по 60 грн, в эту цену входит весь комплекс "от голой стены - до монтажа декора и демонстрашки заказчику", если монтаж растянут во времени, то оплачивается только прокладка кабеля к месту будущей розетки "до штукатурки", далее второй визит - монтаж коробок/подрозетников здесь уже 70-80% от стоимости "точки" 60 грн, т.е. 48 грн оплачивается, а 12 грн остаётся у заказчика в виде "кнута и пряника" о окончательного монтажа и установки рамок, т.е. декора... Посилання на коментар Поділитися на інших сайтах More sharing options...
Luko Опубліковано: 11 листопада 2012 Поділитись Опубліковано: 11 листопада 2012 Нам платят по 60 грн, в эту цену входит весь комплекс "от голой стены - до монтажа декора и демонстрашки заказчику", если монтаж растянут во времени, то оплачивается только прокладка кабеля к месту будущей розетки "до штукатурки", далее второй визит - монтаж коробок/подрозетников здесь уже 70-80% от стоимости "точки" 60 грн, т.е. 48 грн оплачивается, а 12 грн остаётся у заказчика в виде "кнута и пряника" о окончательного монтажа и установки рамок, т.е. декора... а прокладка кабеля как оплачивается? Посилання на коментар Поділитися на інших сайтах More sharing options...
БеLка Опубліковано: 11 листопада 2012 Поділитись Опубліковано: 11 листопада 2012 Нам платят по 60 грн, в эту цену входит весь комплекс "от голой стены - до монтажа декора и демонстрашки заказчику", если монтаж растянут во времени, то оплачивается только прокладка кабеля к месту будущей розетки "до штукатурки", далее второй визит - монтаж коробок/подрозетников здесь уже 70-80% от стоимости "точки" 60 грн, т.е. 48 грн оплачивается, а 12 грн остаётся у заказчика в виде "кнута и пряника" о окончательного монтажа и установки рамок, т.е. декора... Уважаемый Шарманщик, а штробление стен в эту цену в ходит? Посилання на коментар Поділитися на інших сайтах More sharing options...
fankiev Опубліковано: 11 листопада 2012 Поділитись Опубліковано: 11 листопада 2012 Нам платят по 60 грн, в эту цену входит весь комплекс "от голой стены - до монтажа декора и демонстрашки заказчику", если монтаж растянут во времени, то оплачивается только прокладка кабеля к месту будущей розетки "до штукатурки", далее второй визит - монтаж коробок/подрозетников здесь уже 70-80% от стоимости "точки" 60 грн, т.е. 48 грн оплачивается, а 12 грн остаётся у заказчика в виде "кнута и пряника" о окончательного монтажа и установки рамок, т.е. декора... А сколько мне обойдётся (только работа)? Теремки. дом ж/бетон. начал год назад капитальный ремонт 1-комн. квартиры, всё развалил, а теперь надо как-то с чего-то начинать. С ЭЛЕКТРИКИ! Купил материалы, начал сам, понял, что нужен специалист. Штробление, монтаж подключение: Реле, Автоматы, проводка, коробки, подразетники, выключатели, временные патроны, пару розеток для работы. Окончательный монтаж нескоро (стены, потолки, полы, плитка, двери, - на год хватит) Посилання на коментар Поділитися на інших сайтах More sharing options...
Шарманщик Опубліковано: 11 листопада 2012 Поділитись Опубліковано: 11 листопада 2012 а прокладка кабеля как оплачивается? 10 грн/м.п. сечение до 3х2,5мм2 включительно, далее - чуток дороже, сообразно весу, диаметру и моей меркантильности... Добавлено через 4 минуты Уважаемый Шарманщик, а штробление стен в эту цену в ходит? Нет, не входит. На сегодня цена м.п. штробы 25х25 мм - это разумный и универсальный минимум глубины-ширины - кирпич 20 грн м.п., бетон - 25 грн м.п. Ещё добавлю, что этот вид работ мне крайне невыгоден и затратен для меня, исполняется только из-за необходимости для "правильного" монтажа и с огромным удовольствие и радостным повизгиванием передаю его любому исполнителю со стороны заказчика... аж бегом!!!! Добавлено через 2 минуты А сколько мне обойдётся (только работа)? Теремки. дом ж/бетон. начал год назад капитальный ремонт 1-комн. квартиры, всё развалил, а теперь надо как-то с чего-то начинать. С ЭЛЕКТРИКИ! Купил материалы, начал сам, понял, что нужен специалист. Штробление, монтаж подключение: Реле, Автоматы, проводка, коробки, подразетники, выключатели, временные патроны, пару розеток для работы. Окончательный монтаж нескоро (стены, потолки, полы, плитка, двери, - на год хватит) Если нет проекта, то правильно подсчитать я не смогу. А расценки на прокладку, штробление и методику расчёта по-этапного монтажа я уже привёл выше - ежели у Вас есть некий закупленный Вами запас материалов - перемножьте и что-то таки будет в результате... :D Посилання на коментар Поділитися на інших сайтах More sharing options...
Бигдус Опубліковано: 17 листопада 2012 Поділитись Опубліковано: 17 листопада 2012 А сколько мне обойдётся (только работа)? Теремки. дом ж/бетон. начал год назад капитальный ремонт 1-комн. квартиры, всё развалил, а теперь надо как-то с чего-то начинать. С ЭЛЕКТРИКИ! Купил материалы, начал сам, понял, что нужен специалист. Штробление, монтаж подключение: Реле, Автоматы, проводка, коробки, подразетники, выключатели, временные патроны, пару розеток для работы. Окончательный монтаж нескоро (стены, потолки, полы, плитка, двери, - на год хватит) Та фигня у Вас там ...до 3 т на З/П и пару дней работы....А вообще это сугубо индивидуально..Если у Вас там шлакоблок и на потолке не десяток люстр то ну шоб на дисках неразориться....То розетка так и выйдет до 60 грн в скопе....и 10 за м.п шнурков со всеми штробами и гофрами.....На однокомнатной лучше договориться на трудодни...бо объем слабенький.....хотя была однокомнатка куда пошло 49 подрезетников....И одна квартира 3к...помню 4-я остановка трамвая№8 от м Теремки 125 подрезетников....и в скопе по первому этапу на 5200 по З/П тянула... Посилання на коментар Поділитися на інших сайтах More sharing options...
filbud Опубліковано: 27 листопада 2012 Поділитись Опубліковано: 27 листопада 2012 Смета по Днепропетровску Монтаж механизма выключателей, розеток 220 В, ТВ, ТФ с фурнитурой (1 шт 25,00 грн) Монтаж установочных коробочек (1 шт50,00 грн) Установка и сборка светильников (1 точка 100,00 грн) Прокладка провода (1 мп 5,00грн) Устройство штроб 20*20 по стенам ( 1 мп27грн) Заделка штроб (1мп10 грн) Распред коробочки (1шт 95грн) Установка автоматов (1шт 40 грн) Посилання на коментар Поділитися на інших сайтах More sharing options...
Бигдус Опубліковано: 28 листопада 2012 Поділитись Опубліковано: 28 листопада 2012 Ну скажем так себе....есть спорные моменты... На некоторых позициях даже для бетона нам платят меньше. Посилання на коментар Поділитися на інших сайтах More sharing options...
vale3 Опубліковано: 4 грудня 2012 Поділитись Опубліковано: 4 грудня 2012 А если розетка тройная. С штробой под подрозетники и его вставкой - сколько будет стоить такая работа? Посилання на коментар Поділитися на інших сайтах More sharing options...
свет2000 Опубліковано: 4 грудня 2012 Поділитись Опубліковано: 4 грудня 2012 А если розетка тройная. С штробой под подрозетники и его вставкой - сколько будет стоить такая работа? как видите фломастеры у всех разные,должно быть так 3 точки,разводка отдельно,штроба как у кого и от материала стен,метраж разводки не назван-поэтому цену не сложить,а так вам тут писали что и за 30 гр с копейками за точку готовы грызть бетон,без учета штробы и кабеля.Если объем маленький цена идет не от точки,а отдельно за данную работу Посилання на коментар Поділитися на інших сайтах More sharing options...
murava Опубліковано: 4 грудня 2012 Поділитись Опубліковано: 4 грудня 2012 .... Теперь расскажите всем, что я не грамотный электрик, - это должно многих успокоить.... Да полноте Вам. Если Ваши цены и вправду таковы, а косяков будет находиться немного и они легкоустранимы - Вы вполне распишете монтажный год еще до марта заказами только с этого форума. Посилання на коментар Поділитися на інших сайтах More sharing options...
Бигдус Опубліковано: 4 грудня 2012 Поділитись Опубліковано: 4 грудня 2012 Так все в реалии. Все ведь клепая смету в АВК подганяют под цифру для закажчика...бо так легче воспринимаеться. Может спроектировано таким образом, что доля на штобление и укладку проводов минимальна и все в пределах норм и правил... У нас после монтажа без светильников в перещете на точку так в пределах 50-60 грн. и получаеться на квартирах. А если работы нет и есть желание, то можно и заняться благотворительностью. Всякое бывает, надо рассматривать конкретно.Под зиму работы уменьшаеться. Все возможно. Посилання на коментар Поділитися на інших сайтах More sharing options...
Lyolik Опубліковано: 17 грудня 2012 Поділитись Опубліковано: 17 грудня 2012 Случилась беда со светом... нету его в доме Сколько стоит вызов электрика для определения причины проблемы (устранение проблемы - будет согласовываться после диагноза)? Территориально - Круглик Посилання на коментар Поділитися на інших сайтах More sharing options...
Бигдус Опубліковано: 17 грудня 2012 Поділитись Опубліковано: 17 грудня 2012 Здесь вот podomu.com.ua/ попробуйте. Если к дому воздушка, то скорей всего на столб лазить. Посилання на коментар Поділитися на інших сайтах More sharing options...
Шарманщик Опубліковано: 17 грудня 2012 Поділитись Опубліковано: 17 грудня 2012 Да полноте Вам. Если Ваши цены и вправду таковы, а косяков будет находиться немного и они легкоустранимы - Вы вполне распишете монтажный год еще до марта заказами только с этого форума. Один уже созрел - это я.......... ежели готовы работать в Киеве, то я Вас ангажирую с 08-01-2013 года до 16часов 45мин. 30 декабря 2014 года , потому как поезд на Харьков отходит именно в это время - ну что б к столу новогоднему успели Вы и Ваши помощники... :wink: Это серьезное предложение, я не стёбаюсь! Посилання на коментар Поділитися на інших сайтах More sharing options...
vopop Опубліковано: 18 грудня 2012 Поділитись Опубліковано: 18 грудня 2012 Если кому из мастеров на ближайший месяц нет работы предлагайте свою цену на електрику: дом в 350м2, газоблок+монолит, под штукатурку, хотяновка. У меня есть предложение от моих мастеров, но думаю его вполне можно перебить. Заранее прошу прощения что пытаюсь найти более приемлемый вариант, но лично я средства на дороге не нахожу, и исчу доступный вариант. Посилання на коментар Поділитися на інших сайтах More sharing options...
Бигдус Опубліковано: 18 грудня 2012 Поділитись Опубліковано: 18 грудня 2012 Если кому из мастеров на ближайший месяц нет работы предлагайте свою цену на електрику: дом в 350м2, газоблок+монолит, под штукатурку, хотяновка. У меня есть предложение от моих мастеров, но думаю его вполне можно перебить. Заранее прошу прощения что пытаюсь найти более приемлемый вариант, но лично я средства на дороге не нахожу, и исчу доступный вариант. Это так радо понимать гдето 140-160 розеток 18-22 выключателя провода силового до 400м и слаботочки под 200м. ******не менее 12 тыс грн. на з/п Посилання на коментар Поділитися на інших сайтах More sharing options...
OlgaNew Опубліковано: 21 грудня 2012 Поділитись Опубліковано: 21 грудня 2012 Автору - могу рекомендовать хорошего электрика Он наверное единственный был в нашем ремонте - кому в первую очередь важны были не деньги, а професионал. интерес сделать все на "5" Мы с ним договаривались за проект Т.е. приблизхит нарисовали план, прикинули приблизит к-во розетов И пришли к 1 сумме По ходу к-во розеток немного поменялось, но сумма осталась прежняя Это очень удобно Не думаешь - во сколько обойдется каждая новая розетка, к-рая возникла по ходу Если интересно - пишите в личку Посилання на коментар Поділитися на інших сайтах More sharing options...
vale3 Опубліковано: 24 грудня 2012 Поділитись Опубліковано: 24 грудня 2012 Чапмен. могли бы сделать пару фото где делалась электрика вами? Имею реальный интерес Посилання на коментар Поділитися на інших сайтах More sharing options...
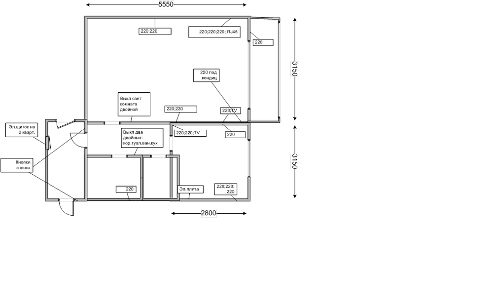
Sash_net Опубліковано: 24 грудня 2012 Поділитись Опубліковано: 24 грудня 2012 Здраствуйте Получил предварительную смету на замену проводки в 2х комнатной квартире 60 м.кв. Не специалист, но попробую обяснить некоторые детали: Освещение и розетки будут сделаны отдельными линиями. Планируется 4 отдельных линии на розетки: ванна/туалет (на стиралку и бойлер), кухня, 2 жилые комнаты. Специалисты, оцените пожалуста адекватны ли цены, материалы и кол-во материалов. Спасибо. Посилання на коментар Поділитися на інших сайтах More sharing options...
Рекомендовані повідомлення
Створіть акаунт або увійдіть у нього для коментування
Ви маєте бути користувачем, щоб залишити коментар
Створити акаунт
Зареєструйтеся для отримання акаунта. Це просто!
Зареєструвати акаунтУвійти
Вже зареєстровані? Увійдіть тут.
Увійти зараз