mikhailoff71 Опубліковано: 26 лютого 2013 Поділитись Опубліковано: 26 лютого 2013 (змінено) Близится весна, и руки так и чешутся начать строить. Всю зиму мы усердно черпали информацию, теперь пришло время переходить от теории к практике. Вот, набросал планировку будущей бани с навесом Использование бани планируется один раз в неделю на 2-4 человека. Режим русской бани с мокрым паром. Топка со стороны комнаты отдыха (КО) на дровах. Задумка такая: - фундамент МЗЛФ 250х600мм с заглублением 200-300мм на подсыпке из ПГС; - пол по грунту с эл. подогревом; - стены - газоблок 200мм с утеплением минватой + блокхаус снаружи (можно ли делать такой толщину несущих стен и нужно ли их армировать?); - высота чистового потолка ~2,4м - сверху по стенам - армопояс h=150мм - перекрытие - балки 50х200мм (они же затяжки для висячих стропил); - кровля - ЦПЧ или МЧ угол 30град по стропилам с шагом 850мм Поскольку первое, это заливка фундамента, помогите определиться: 1. Что можно изменить в планировке, для большего удобства ? 2. Нужен ли фундамент под НЕнесущие перегородки в полкирпича между парной и душем, а также между КО и душем+парилкой? (хочу выложить щиток для обогрева смежных помещений, интересную идею подсмотрел у 5_6 в теме www.forumhouse.ru/threads/122871/ ) Можно ли сделать фундамент только под кирпичную кладку щитка или лучше соединить его с основным фундаментом? 3. Какую печь лучше применить? присматриваюсь к такой www.a-saun.kiev.ua/i440l0.html или к такой comfortdoma.com.ua/p12464333-drovyanaya-kamenka-harvia.html 4. Какие закладные положить до заливки, чтобы потом не долбать фундамент (приток воздуха к морде топки я учёл, трубы канализации под сливные трапы будут проходить скорее всего ниже фундамента, и можно ли так делать?) Змінено 26 лютого 2013 користувачем mikhailoff71 Посилання на коментар Поділитися на інших сайтах More sharing options...
berizka_00 Опубліковано: 26 лютого 2013 Поділитись Опубліковано: 26 лютого 2013 (змінено) Здесь, в основном, строят дома. Для бань есть своя ветка, продублируйте вопрос еще и там. А по планировке есть предложение. Для приготовления пищи, мойки посуды нужен свой уголок, так как хорошая компания на "голодой бане" сидеть не будет. Поэтому "горшок" я бы переместил в душ (там места должно хватить), а вместо него в КО поставил мебель для посуды и мойку. Тем более, что рукомойник нужен обязятельно. Змінено 26 лютого 2013 користувачем berizka_00 Посилання на коментар Поділитися на інших сайтах More sharing options...
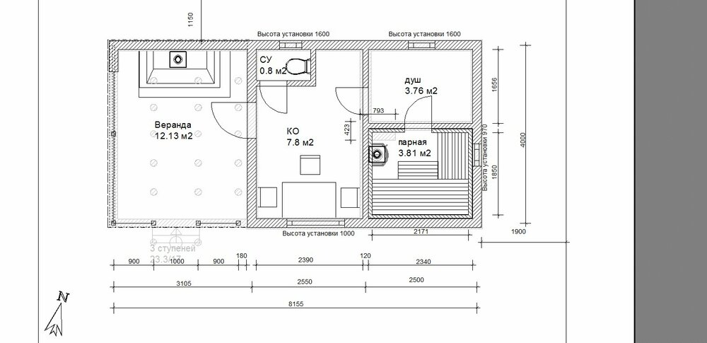
pr@ktik Опубліковано: 27 лютого 2013 Поділитись Опубліковано: 27 лютого 2013 Возможно ли перенести парилку (поменять местами с душевой) на северную сторону бани, а с южной добавить солнца ( через окна) ? так будет приятней Посилання на коментар Поділитися на інших сайтах More sharing options...
mikhailoff71 Опубліковано: 28 лютого 2013 Автор Поділитись Опубліковано: 28 лютого 2013 Здесь, в основном, строят дома. Для бань есть своя ветка, продублируйте вопрос еще и там. А по планировке есть предложение. Для приготовления пищи, мойки посуды нужен свой уголок, так как хорошая компания на "голодой бане" сидеть не будет. Поэтому "горшок" я бы переместил в душ (там места должно хватить), а вместо него в КО поставил мебель для посуды и мойку. Тем более, что рукомойник нужен обязятельно. Спасибо, что заглянули. В этом разделе разместил тему, т.к. сейчас вопросы будут касаться именно общестроя. По поводу мойки - она как раз планируется за стенкой "горшка", там остается около метра ниша. Добавлено через 3 минуты Возможно ли перенести парилку (поменять местами с душевой) на северную сторону бани, а с южной добавить солнца ( через окна) ? так будет приятней При размере окошка 500х500мм освещение солнцем не существенно, его функция больше для проветривания. Добавлено через 6 минут Люди, Аууу...., подскажите, нужны ли перемычки в фундаменте под перестенки в полкирпича, или можно будет ложить кирпич на армированый пол по грунту. В эти выходные планирую ставить опалубку... Посилання на коментар Поділитися на інших сайтах More sharing options...
berizka_00 Опубліковано: 28 лютого 2013 Поділитись Опубліковано: 28 лютого 2013 Я бы все же убрал горшок из КО. Не совсем комфортно будут чувствовать себя сидящие как за застолом так и на унитазе. А по поводу перестенка - у знакомого делали без фундамента, но на толстой подушке и ложили арматуру. 3 года - полет нормальный. Посилання на коментар Поділитися на інших сайтах More sharing options...
Дядя Гриша Опубліковано: 28 лютого 2013 Поділитись Опубліковано: 28 лютого 2013 Задумка такая: - фундамент МЗЛФ 250х600мм с заглублением 200-300мм на подсыпке из ПГС; - пол по грунту с эл. подогревом; - стены - газоблок 200мм с утеплением минватой + блокхаус снаружи (можно ли делать такой толщину несущих стен и нужно ли их армировать?); - высота чистового потолка ~2,4м - сверху по стенам - армопояс h=150мм - перекрытие - балки 50х200мм (они же затяжки для висячих стропил); - кровля - ЦПЧ или МЧ угол 30град по стропилам с шагом 850мм Не видно на схеме и планах правильного дымохода. При такой активности использования бани труба-сандвич сгорит за сезон - посмотрите на русских сайтах! Посилання на коментар Поділитися на інших сайтах More sharing options...
berizka_00 Опубліковано: 28 лютого 2013 Поділитись Опубліковано: 28 лютого 2013 К стати, по поводе печки. То что вы хотите - это не совсем русская баня. Почитайте ветку www.stroimdom.com.ua/forum/showthread.php?t=78842. Очень много интересного можно подчерпнуть. Посилання на коментар Поділитися на інших сайтах More sharing options...
mikhailoff71 Опубліковано: 28 лютого 2013 Автор Поділитись Опубліковано: 28 лютого 2013 Я бы все же убрал горшок из КО. Не совсем комфортно будут чувствовать себя сидящие как за застолом так и на унитазе. А по поводу перестенка - у знакомого делали без фундамента, но на толстой подушке и ложили арматуру. 3 года - полет нормальный. Горшок - вынужденная мера, т.к. на участке не будет уличного тубзика, и во время принятия банных процедур он будет использоваться минимально. Добавлено через 3 минуты Не видно на схеме и планах правильного дымохода. При такой активности использования бани труба-сандвич сгорит за сезон - посмотрите на русских сайтах! Дымоход планирую вот по такому принципу (ссылка устарела), (ссылка устарела) Посилання на коментар Поділитися на інших сайтах More sharing options...
Дядя Гриша Опубліковано: 1 березня 2013 Поділитись Опубліковано: 1 березня 2013 Горшок - вынужденная мера, т.к. на участке не будет уличного тубзика, и во время принятия банных процедур он будет использоваться минимально. Добавлено через 3 минуты Дымоход планирую вот по такому принципу (ссылка устарела), (ссылка устарела) У Вас стена тонковата (согласно схеме) для такого дымохода. Унитаз лучше поставить в верхнем углу в душевой, у меня так в Крыму на даче, только еще стоит маленькая (90 см)стенка отгородка. Буду переделывать на полную, поскольку при использовании ведра - обливайки унитаз забрызгивается! Посилання на коментар Поділитися на інших сайтах More sharing options...
mikhailoff71 Опубліковано: 21 березня 2013 Автор Поділитись Опубліковано: 21 березня 2013 Кто в курсе, в Украину поставляют российские печи Теклар, может какие аналоги есть наши? Посилання на коментар Поділитися на інших сайтах More sharing options...
Александр с Донецка Опубліковано: 21 березня 2013 Поділитись Опубліковано: 21 березня 2013 Кто в курсе, в Украину поставляют российские печи Теклар, может какие аналоги есть наши? Нет не поставляют. Киевляне с нержи пытались варить Теклар, вышло как всегда, через опу. Посилання на коментар Поділитися на інших сайтах More sharing options...
mikhailoff71 Опубліковано: 21 березня 2013 Автор Поділитись Опубліковано: 21 березня 2013 Александр с Донецка, а какую Вы посоветуете печь для режима русской бани, много читал о тандеме Ферингера со щитком, а также про Акву. Объем парилки будет не более 10куб.м. Посилання на коментар Поділитися на інших сайтах More sharing options...
Александр с Донецка Опубліковано: 21 березня 2013 Поділитись Опубліковано: 21 березня 2013 Александр с Донецка, а какую Вы посоветуете печь для режима русской бани, много читал о тандеме Ферингера со щитком, а также про Акву. Объем парилки будет не более 10куб.м. Посмотрите на Аквалайт, Фиренгер курит ;) Посилання на коментар Поділитися на інших сайтах More sharing options...
mikhailoff71 Опубліковано: 21 березня 2013 Автор Поділитись Опубліковано: 21 березня 2013 Почитал, интересно. Только вот ценовую политику нигде не нашел. И еще, т.к. температура дымовых газов в такой печи не высокая, то щиток в паре с ней работать уже не будет? Посилання на коментар Поділитися на інших сайтах More sharing options...
Александр с Донецка Опубліковано: 21 березня 2013 Поділитись Опубліковано: 21 березня 2013 Почитал, интересно. Только вот ценовую политику нигде не нашел. И еще, т.к. температура дымовых газов в такой печи не высокая, то щиток в паре с ней работать уже не будет? Ценник точно не скажу, знаю что около штуки не гривен ;) Так у меня тоже шиток отдыхает теперь, тк выхлоп не горячий, чем очень доволен. Достаточно прямой мет.трубы с сендвичем. 1 Посилання на коментар Поділитися на інших сайтах More sharing options...
mikhailoff71 Опубліковано: 21 березня 2013 Автор Поділитись Опубліковано: 21 березня 2013 Насколько я понимаю, Аквалайт не требует конвектива, т.е. дополнительных входов-выходов воздуха? Кроме конечно воздуха к морде и для залпового проветривания. Посилання на коментар Поділитися на інших сайтах More sharing options...
Александр с Донецка Опубліковано: 21 березня 2013 Поділитись Опубліковано: 21 березня 2013 Насколько я понимаю, Аквалайт не требует конвектива, т.е. дополнительных входов-выходов воздуха? Кроме конечно воздуха к морде и для залпового проветривания. Да, правильно. Еще пробка у потолка для помощи окну в сбросе пара. Посилання на коментар Поділитися на інших сайтах More sharing options...
mikhailoff71 Опубліковано: 21 березня 2013 Автор Поділитись Опубліковано: 21 березня 2013 пробка у потолка для помощи окну в сбросе пара Эта пробка делается собственноручно или продаются такие готовые? Много читал о "буратине", но рисунков и чертежей не встречал. Посилання на коментар Поділитися на інших сайтах More sharing options...
Александр с Донецка Опубліковано: 21 березня 2013 Поділитись Опубліковано: 21 березня 2013 Эта пробка делается собственноручно или продаются такие готовые? Много читал о "буратине", но рисунков и чертежей не встречал. Делается самостоятельно. Вырезается с 50й доски два круга по диаметру трубы и закрепляются между собой саморезами. На одну сторону прикрепляют обшиву больше диаметра тубы,( что бы пробка во внутрь не пролазила), как и в парилке(вагонка, горбыль,прочее) и ручку. Пробку обтягивают войлоком, что бы плотно входила и не пропускала пар. Посилання на коментар Поділитися на інших сайтах More sharing options...
mikhailoff71 Опубліковано: 21 березня 2013 Автор Поділитись Опубліковано: 21 березня 2013 Подскажите еще по общему конструктиву (пост #1), достаточные ли размеры я заложил как для семейной бани. В душевой еще хочу втулить купель 1м*1м, которую мы с Вами обсуждали в другой ветке. Посилання на коментар Поділитися на інших сайтах More sharing options...
Александр с Донецка Опубліковано: 21 березня 2013 Поділитись Опубліковано: 21 березня 2013 Подскажите еще по общему конструктиву (пост #1), достаточные ли размеры я заложил как для семейной бани. В душевой еще хочу втулить купель 1м*1м, которую мы с Вами обсуждали в другой ветке. Планировка нормальная. Стены как мне кажется тонковаты. Высота тоже маловата, хотя бы 2.6м в помещениях, кроме парилки. Ну и тех.этаж для вентиляции над чистовым потолком должен быть, те черновая высота как минимум 3м. Посилання на коментар Поділитися на інших сайтах More sharing options...
mikhailoff71 Опубліковано: 21 березня 2013 Автор Поділитись Опубліковано: 21 березня 2013 Стены, сейчас думаю, может сделать 300мм газоблок+блокхаус без утепления по наруже, а высоту таки подниму до 2,6-2,8м. Посилання на коментар Поділитися на інших сайтах More sharing options...
Александр с Донецка Опубліковано: 21 березня 2013 Поділитись Опубліковано: 21 березня 2013 Стены, сейчас думаю, может сделать 300мм газоблок+блокхаус без утепления по наруже, а высоту таки подниму до 2,6-2,8м. Может 300 будет получше. Но блокхаус по наруже как то не совсем практично, с точки постоянного присмотра за состоянием. Внутри все одно придется утеплять и гидроизолировать. Те можно затянуть 50брусом и вложить базвату плотную + мембрана гидрозащитная, в парилке фольгированная бумага + конр.рейка и обшива. 2.8м может быть мало или придется опускать чистовой потолок который потом будет давить зрительно. Добавлено через 20 минут Окно в парилке напротив входа лучше сделать, при открытии двери парилки и окон в предбаннике и парилке, можно создать хороший сквозняк для проветривания обеих помещений 1 Посилання на коментар Поділитися на інших сайтах More sharing options...
mikhailoff71 Опубліковано: 22 березня 2013 Автор Поділитись Опубліковано: 22 березня 2013 Окно в парилке напротив входа лучше сделать, при открытии двери парилки и окон в предбаннике и парилке, можно создать хороший сквозняк для проветривания обеих помещений Тогда можно не делать "буратину" под потолком? А снаружи тогда чем обшить? А для чего пространство между чистовым и черновым потолком 40см, чем его потом заполнять? КО ведь небольшая будет 2,2 х 3,5 где-то. Посилання на коментар Поділитися на інших сайтах More sharing options...
Александр с Донецка Опубліковано: 22 березня 2013 Поділитись Опубліковано: 22 березня 2013 Тогда можно не делать "буратину" под потолком? А снаружи тогда чем обшить? А для чего пространство между чистовым и черновым потолком 40см, чем его потом заполнять? КО ведь небольшая будет 2,2 х 3,5 где-то. "Буратино" делать нужно. Обшивать, чем душа пожелает, я просто заострил внимание на доп.уходе за деревянной наружной обшивой. Обычно в потолочное пространство ставят вентиляцию, с каналами, рукавами. При наличии принудительной вытяжки, так же желателен равноценный подогреваемый приток, для зимней комфортной эксплуатации бани. Посилання на коментар Поділитися на інших сайтах More sharing options...
Рекомендовані повідомлення
Створіть акаунт або увійдіть у нього для коментування
Ви маєте бути користувачем, щоб залишити коментар
Створити акаунт
Зареєструйтеся для отримання акаунта. Це просто!
Зареєструвати акаунтУвійти
Вже зареєстровані? Увійдіть тут.
Увійти зараз