Igor_M Опубліковано: 27 березня 2013 Поділитись Опубліковано: 27 березня 2013 Всем доброго времени! Решил вынести на суд общественности такую вот "инженерную систему".;) Много тем про выбор топки, про конструкции кожухов-дистрибуторов, про систему воздуховодов для РГВ (распределения горячего воздуха). Правда, многие так до конца и не описаны в подробностях... А очень хочется хоть немного разобраться в деталях и выполнить что-то более-менее оптимальное... К тому же возникла идея использовать систему воздуховодов также и для подачи свежего воздуха в то время, когда камин не используется. Причем этот воздух можно предварительно "готовить", т.е. догревать зимой и охлаждать летом и подавать его во все помещения, поскольку воздуховоды системы РГВ как раз во все эти помещения и предполагается провести. Таким образом создать "VAV-систему на базе камина", как несколько иронично выразился REYDER в одной из тем... Кстати ему спасибо ОГРОМНОЕ за подсказки, а также за то, что открыл мне глаза на то, что такие системы вообще в природе существуют. Краткая информация по ним здесь - www.rfclimat.ru/htm/vent_vav.htm. По крайней мере популярно (т.е. понятно и неспециалисту... по крайней мере мне...:D) По состоянию на сегодня есть топка, каркас для дистрибутора и... желание довести все это дело до логического завершения. Буду поэтапно описывать разные составные части системы и прошу помочь "развеять туман" и закрасить "белые пятна" или заштопать "черные дыры", коих как мне сдается, предстоит в избытке... Заранее признателен всем откликнувшимся! 8 Посилання на коментар Поділитися на інших сайтах More sharing options...
Igor_M Опубліковано: 29 березня 2013 Автор Поділитись Опубліковано: 29 березня 2013 Т.е. нужно выбрать важный компонент системы. Если не "сердце", то по крайней мере "пламенный мотор" (в прямом смысле слова).;) Честно говоря, не взирая на огромное множество информации на эту тему, при правильном подходе выбор оказывается достаточно ограниченным. Я "прошерстил" форум и вдоль и поперек, тому свидетельство - список тем, в которых "наследил"...:D Ну и ходил по фирмам, выставкам, перерыл инет (некоторые заметки - в аттаче). Да простят меня авторы некоторых материалов, но я не всегда копировал ссылки на первоисточники, поэтому - сорри... ОЧЕНЬ действенную помощь оказали специалисты (в том числе и признанные) данного форума, за что им ОГРОМНОЕ СПАСИБО! Особо "отличился" Misha_k и я рекомендую всем интересующимся после прочтения всей выложенной мной "лабуды" внимательно изучить два последних файла, а именно: Misha_k - Laudel недостатки.doc и Misha_k - По каким критериям выбирать камин.doc. Это - наиболее яркие "нарезки" его комментариев, которые окончательно прояснили туман в голове... и выбор был сделан!Выбираем камин.docВыбрать камин - это просто.docКак выбрать качественную каминную топку.docКак правильно выбрать камин или печь.docКаминные топки в деталях.docПравильный выбор каминной топки.docРекомендации при выборе камина.docMisha_k - Laudel недостатки.docMisha_k - По каким критериям выбирать камин.doc 26 Посилання на коментар Поділитися на інших сайтах More sharing options...
Igor_M Опубліковано: 1 квітня 2013 Автор Поділитись Опубліковано: 1 квітня 2013 Сразу хочу подчеркнуть, что мной был осознанно сделан выбор именно в пользу закрытой топки. Некоторые считают, что камином это нельзя назвать. Например, дочка удивленно переспросила: "Так это что, будет такая печка с окошком?":D В аттаче - еще одна "порция" статей... в т.ч. и анализ каминов и топок. Критерии выбора топки (по мотивам Misha_k): 1) Назначение. Некоторые пишут "для души", некоторые - "для обогрева", некоторые - "для шашлыка"... Я выбирал такую, чтоб и "подтопить" немного могла, и горела ясно... а еще лучше - со всякими спецэффектами. 2) Топка должна быть герметичной Т.е. это означает, что у вас должна быть возможность полностью ее закрыть от доступа воздуха... и соответственно от выхода из нее дыма (в случае "опрокидывания" тяги. 3) Воздух для горения. Должен подаваться по отдельному каналу ПРЯМО в топку. Причем желательно с улицы (см. п.2) 4) Футеровка. Для чисто отопительный топок крайне желательная вещь... Ну и для создания "спецэффектов" при горении - тоже. 5) Система "чистое стекло". Для этого хорошо бы, чтоб воздух подавался с верхней части топки. Опускаясь вдоль стекла, он препятствует быстрому закапчиванию стекла. К тому же такая подача "Вместе с футеровкой, уже совсем другая работа топки" (Misha_k). Производитель, качество литья, толщина стенок - без сомнения очень важны... "Это минимум для хорошей топки. А дальше уже пошли дожиги, шможиги, режимы тления, дизайн, удобные всякие фишки для пользования и т.д. Чем все это лучше и этого больше, тем дороже" (Misha_k) Как видите, все предельно просто. Прямо как в этой вот рекламе: Приятного выбора!Преимущества закрытых каминов.docПреимущества закрытых каминов 1.docСоветы по выбору каминной топки 1.docСоветы по выбору каминной топки 2.docУстройство каминов в загородном доме или коттедже.docУстройство каминов.doc 10 Посилання на коментар Поділитися на інших сайтах More sharing options...
-enjoy- Опубліковано: 1 квітня 2013 Поділитись Опубліковано: 1 квітня 2013 Т/Я "прошерстил" форум и вдоль и поперек сделан! дождались..... как всегда и в кой раз Игорь(строительный гугл) отличился своей чертой "скрупулёзно-дотошность"....что и поддерживаю. Подписываюсь. Посилання на коментар Поділитися на інших сайтах More sharing options...
Igor_M Опубліковано: 2 квітня 2013 Автор Поділитись Опубліковано: 2 квітня 2013 Поскольку для нормальной работы топки нужно ее корпус охлаждать, то грех не утилизировать при этом "отбираемое" тепло. Собственно для того и предназначена система Распределения Горячего Воздуха (то бишь РГВ). На форуме достаточно примеров реализации подобных систем... правда, многие подробности опускаются. Попробую выделить основные компоненты: 1) Система подачи воздуха непосредственно в топку извне для горения. 2) Дистрибутор. По сути короб (утепленный) вокруг топки для "сбора" теплого (иногда горячего) воздуха. 3) Система воздуховодов - разводка теплого воздуха от дистрибутора до "потребителей". Есть также рекомендации такого характера: 4) Система подмеса наружного воздуха к конвекционному (то бишь нагреваемому, который ВОКРУГ топки внутри дистрибутора проходит). Пишут, что его нужно "добавлять" примерно 15-20% от количества. 5) Дополнительные приспособления съема (аккумуляции) тепла. 6) многое другое... Как правило в компактных домах достаточно использование именно конвекционных систем РГВ, особенно эффективны они на верхних этажах. В одноэтажных домах, с длинными горизонтальными участками рекомендуют применять принудительную систему... Вот собственно кратко о системе РГВ. Кому интересно, могут почитать приаттаченные файлы (опять же прошу прощения если не указано авторство). И все вроде понятно... НО "гладко было на бумаге, да забыли про овраги...";) Как вы понимаете, речь далее пойдет о практической реализации...Воздушная конвекционная система отопления камином.docВоздушная система отопления.docВоздушное отопление от камина 26.docОтопление Вашего дома камином.docОтопление с помощью камина.docПодача воздуха в топку и его распределение.docПодача воздуха к камину.doc 17 Посилання на коментар Поділитися на інших сайтах More sharing options...
Dima_dimohod Опубліковано: 3 квітня 2013 Поділитись Опубліковано: 3 квітня 2013 Попробую выделить основные компоненты: 2) Дистрибутор. По сути короб (утепленный) вокруг топки для "сбора" теплого (иногда горячего) воздуха. Есть также рекомендации такого характера: 4) Система подмеса наружного воздуха к конвекционному (то бишь нагреваемому, который ВОКРУГ топки внутри дистрибутора проходит). Пишут, что его нужно "добавлять" примерно 15-20% от количества. 2). Можно разводить тепло и без дистрибьютора, который активно используется при РГВ производителем печей и каминов компанией Jotul. Поправьте, если он имеется в номенклатуре продаваемых изделий у других компаний. 4). Не согласен, что нужно брать данный пункт за правило. Дайте ссылку на "добавку 15-20%. 1 Посилання на коментар Поділитися на інших сайтах More sharing options...
Igor_M Опубліковано: 3 квітня 2013 Автор Поділитись Опубліковано: 3 квітня 2013 2). Можно разводить тепло и без дистрибьютора, который активно используется при РГВ производителем печей и каминов компанией Jotul. Поправьте, если он имеется в номенклатуре продаваемых изделий у других компаний. 4). Не согласен, что нужно брать данный пункт за правило. Дайте ссылку на "добавку 15-20%. Можно разводить и без дистрибутора, но только в помещения, примыкающие к камину. На самом деле даже в инструкции к нами всеми горячо любимому Jotul i570 картинка с требованиями по конвекции без оного (см. аттач). Йотуловские дистрибуторы ((ссылка устарела)) не единственные в своем роде. Многие производители предлагают такие доп опции. Приличные производители... к топкам хорошим и разным ...;) И прочие аксессуары в немеряном количестве... Удел владельцев топок остальных производителей - "колхозить"... Нужно будет сделать подставку под топку. И это возможно и хорошо, потому что есть возможность поиграться по высоте в больших диапазонах. Далее изготавливаем дистрибутор. Большинство делает из оцинковки. Я тоже так планировал поначалу... Правда поскольку сверху будут трубы устанавливаться и давить своим весом, то решил изготовить жесткую раму из 30-го уголка с ребрами жесткости. И вот подошло время обшивать его листами... как тут на форуме было вброшено семя сомнения. Начал изучать вопрос и оказалось, что для температур выше 80 градусов оцинковка не подходит (источников было несколько)... Остался выбор между черным металлом (шкурить, драить, антикором обрабатывать, красить...) и нержавейкой. Посоветовавшись с архитектором, двинулся в первую очередь в сторону нержавейки. В Коминвенте, куда поехал за листом, вообще сказали, что для ПРИТОЧНОЙ вентиляции лучше оцинковку не использовать вовсе... потому что этим воздухом мы же дышать планируем... для вытяжки - ЛЮБЭ! При этом менеджер мне посоветовал купить нержавейку где-нибудь на базе... мол там дешевле, а у них будет дороже... ИТОГО - дистрибутор будет обшиваться нержавейкой, из нее же - воздуховоды РГВ по помещениям. ЗЫ По поводу (4). Честно - не вспомню сейчас... ... но где-то в тех материалах, что выкладывал выше, есть и про это... ...может найдется кто-нибудь, кто прочитает все это и даст название файла... И я же написАл - "Есть также рекомендации такого характера", т.е. это - необязательно. Для тех, кто хочет дышать воздухом, который десятки раз проходит через весь дом и возвращается в каминный зал, такое делать не нужно. Только вытяжки вентиляционные на время работы камина хорошо бы все закрыть... чтоб количество воздуха в кругообороте не уменьшалось... 1 Посилання на коментар Поділитися на інших сайтах More sharing options...
Igor_M Опубліковано: 4 квітня 2013 Автор Поділитись Опубліковано: 4 квітня 2013 Итак, мы определились с топкой, купили, привезли и установили на подставку (то ли фирменную, то ли самодельную). Установили дистрибутор (опять же фирменный или самопальный), утеплили его... кстати об утеплении дистрибутора. Старая схема - оклейка базальтовой ватой специальной жаростойкой с алюминиевой фольгой с одной стороны. Более "прогрессивные" материалы - суперизол и его производные на основе силиката кальция... Поскольку я человек уже немолодой, то решил поступить "старым" способом, т.е. облепить базальтовой ватой. Аргументы (может и слабоватые, но какие уж есть...;)) 1) Вес (плотность): SuperIsol 225 кг/м3, FireRock - 80 кг/м3. Стало быть "клеить" Суперизол к нержавейке надо чем-то более прочным... да и вообще ЧЕМ клеить (и то и другое) - это вопрос... 2) Эластичность. Стенки дистрибутора находятся в зоне переменных температур в широком диапазоне. Стало быть будут "играть". Базальтовая вата в этом случае может спокойно воспринимать эти "вздутия", а вот что с жестким Суперизолом будет? Есть сомнения... 3) Хрупкость. Субъективно Суперизол представляется хрупким, т.е. при неосторожном обращении может где-то и треснуть (сам видел треснутые плиты), с базальтом же такого в принципе быть не может. 4) Теплопроводность. SuperIsol 0,08 [Вт/м °С], FireRock - 0,038 [Вт/м °С]. Правда, оговорюсь, что для первого материала показатель приведен при температуре 200°С, а для второго - не разобрался... Но в целом очевидно, что вата будет меньше нагреваться, т.е. температура на обратной поверхности Суперизола будет ВЫШЕ, а это значит, что из дистрибутора будут бОльшие утечки тепла нецелевого назначения...:D 5) Цена. Этот параметр вынес в самый конец, поскольку для меня лично он на этом месте и стоит. Лист 1000х600х30мм стоит: SuperIsol 270 грн, FireRock - 60 грн. Вероятно еще есть какие-то параметры, по которым можно сравнивать, но думаю, вам для принятия вашего решения о выборе материала вполне может хватить и приведенных выше... Мне хватило............... 7 Посилання на коментар Поділитися на інших сайтах More sharing options...
Эдуард Днепр Опубліковано: 5 квітня 2013 Поділитись Опубліковано: 5 квітня 2013 Можно разводить и без дистрибутора, но только в помещения, примыкающие к камину. На самом деле даже в инструкции к нами всеми горячо любимому Jotul i570 картинка с требованиями по конвекции без оного (см. аттач). Йотуловские дистрибуторы ((ссылка устарела)) не единственные в своем роде. Многие производители предлагают такие доп опции. Приличные производители... к топкам хорошим и разным ...;) И прочие аксессуары в немеряном количестве... Удел владельцев топок остальных производителей - "колхозить"... Нужно будет сделать подставку под топку. И это возможно и хорошо, потому что есть возможность поиграться по высоте в больших диапазонах. Далее изготавливаем дистрибутор. Большинство делает из оцинковки. Я тоже так планировал поначалу... Правда поскольку сверху будут трубы устанавливаться и давить своим весом, то решил изготовить жесткую раму из 30-го уголка с ребрами жесткости. И вот подошло время обшивать его листами... как тут на форуме было вброшено семя сомнения. Начал изучать вопрос и оказалось, что для температур выше 80 градусов оцинковка не подходит (источников было несколько)... Остался выбор между черным металлом (шкурить, драить, антикором обрабатывать, красить...) и нержавейкой. Посоветовавшись с архитектором, двинулся в первую очередь в сторону нержавейки. В Коминвенте, куда поехал за листом, вообще сказали, что для ПРИТОЧНОЙ вентиляции лучше оцинковку не использовать вовсе... потому что этим воздухом мы же дышать планируем... для вытяжки - ЛЮБЭ! При этом менеджер мне посоветовал купить нержавейку где-нибудь на базе... мол там дешевле, а у них будет дороже... ИТОГО - дистрибутор будет обшиваться нержавейкой, из нее же - воздуховоды РГВ по помещениям. ЗЫ По поводу (4). Честно - не вспомню сейчас... ... но где-то в тех материалах, что выкладывал выше, есть и про это... ...может найдется кто-нибудь, кто прочитает все это и даст название файла... И я же написАл - "Есть также рекомендации такого характера", т.е. это - необязательно. Для тех, кто хочет дышать воздухом, который десятки раз проходит через весь дом и возвращается в каминный зал, такое делать не нужно. Только вытяжки вентиляционные на время работы камина хорошо бы все закрыть... чтоб количество воздуха в кругообороте не уменьшалось... Замечательное описание. Прямо методичка (руководство) получается! Есть вопрос. Как к дистрибьютору из нержавейки "присобачить" патрубки? Они, патрубки, ведь по идее тоже, из нержавейки должны быть! Такого диаметра тонкостенную трубу из нержавейки, наверное, не найти. Варить из листа? Как из положения выходите? Посилання на коментар Поділитися на інших сайтах More sharing options...
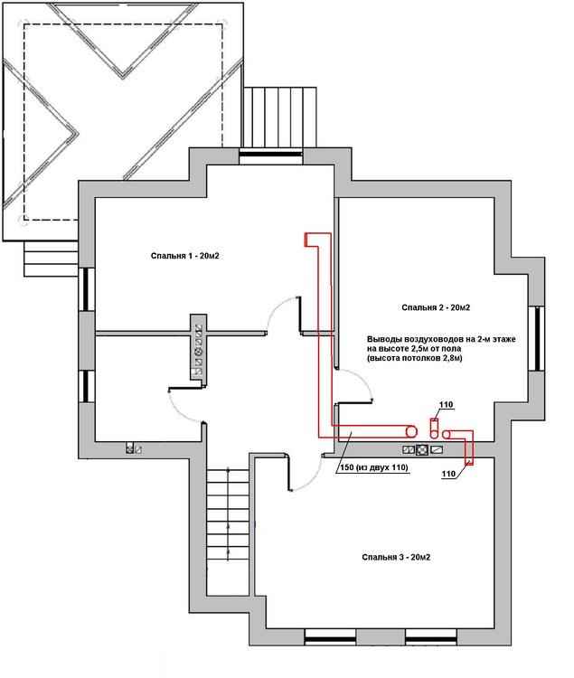
Эдуард Днепр Опубліковано: 5 квітня 2013 Поділитись Опубліковано: 5 квітня 2013 Вообще-то специалисты-жестянщики лучше знают. Я думал в Коминвенте крышку с раструбами заказать, но менеждер сказал, что это будет ОЧЕНЬ дорого... В принципе еще до того обсуждал с архитектором этот вопрос и решили делать так: Для трубы диаметром 125мм намечаем окружность на крышке дистрибутора тем же диаметром и еще одну - радиусом примерно 45мм. Вырезаем внутреннее отверстие (диаметром 90мм). Потом делаем радиальные надрезы до второй линии (которая ограничивает диаметр 125мм). Полученные "лепестки" загибаем вверх. Надеваем отрезо трубы 30см и саморезами фиксируем. Место стыка заклеиваем скотчем жаростойким алюминиевим... Примерно так... У меня есть вопрос к специалистам по системам РГВ. Поскольку проход на 2-й этаж через пустоты панелей перекрытия, то максимум, что я могу себе позволить, так это трубы диаметром 110мм. Будет ли достаточно такой трубы, чтобы подать нормально тепло в комнату 20м2 на 2-м этаже? Высота от дистрибутора до выходной решетки примерно 5 метров. Горизонтальные участки не более 0,5м. Схема представлена в аттаче. Вопрос №2. Есть желание также обогреть еще одну комнату на втором этаже. НО... до нее получается нужно тянуть горизонтальный участок длиной 5 метров с двумя поворотами под 90 град. Вид сверху на эту трассу на вложенном рисунке как раз справа вверху... Родилась идея подняться на 2-й этаж ДВУМЯ трубами ф110, а вверху их соединить вместе и дальше пойти этот горизонтальный участок 125-й трубой... Насколько работоспособно данное решение? Пожалуйста, предложите оптимальный вариант... СПАСИБО!!! Спасибо за ответ. Буду думать. Если придумаю что-то другое-обязательно поделюсь! По поводу обогрева еще одной комнаты: я не спец по РГВ, но хорошо знаком с термо- и аэродинамикой. Идея о 2х поворотах под 90грд. заранее обречена на провал, если надеяться только на конвекционное движение воздушного потока. В данном случае, не обойтись без создания дополнительного напора. Сиречь вентилятора. ИМХО. Посилання на коментар Поділитися на інших сайтах More sharing options...
Igor_M Опубліковано: 8 квітня 2013 Автор Поділитись Опубліковано: 8 квітня 2013 ... хорошо знаком с термо- и аэродинамикой. Идея о 2х поворотах под 90грд. заранее обречена на провал, если надеяться только на конвекционное движение воздушного потока. В данном случае, не обойтись без создания дополнительного напора. Сиречь вентилятора. ИМХО. На самом деле поворот "тяжелый" только один. Второй - это уже по сути патрубок перед решеткой (там 20-30см будет). К тому же можно этот основной поворот сделать более плавным, скажем 2 уголка под 45 градусов или даже 3 под 30 градусов... Это поможет? Где-то читал, что чем больше диаметр, тем меньше сопротивление. Собственно поэтому родилась идея две вертикальные трубы диаметра 110мм соединить в одну диаметром 125мм (а может 150???). Таким образом попробовать уменьшить сопротивление и "доставить" теплый воздух на расстояние примерно 5м... Может имеет смысл сделать этот последний участок не горизонтальным, а под небольшим углом? Скажем 5-10%... Это поможет? Плиз присоветуйте как "модернизировать" этот луч? Спасибо! Посилання на коментар Поділитися на інших сайтах More sharing options...
andr.ey Опубліковано: 9 квітня 2013 Поділитись Опубліковано: 9 квітня 2013 ...Где-то читал, что чем больше диаметр, тем меньше сопротивление. Собственно поэтому родилась идея две вертикальные трубы диаметра 110мм соединить в одну диаметром 125мм (а может 150???). Таким образом попробовать уменьшить сопротивление и "доставить" теплый воздух на расстояние примерно 5м... Может имеет смысл сделать этот последний участок не горизонтальным, а под небольшим углом? Скажем 5-10%... Это поможет? Плиз присоветуйте как "модернизировать" этот луч? Спасибо! 2*110 -> 125 при гравитационке не пойдет, т.к. последующий сечения должны быть не меньше предыдущих (для 2*110: 2*5,5*5,5*3,14=189,97 кв.см, а 125: 6,25*6,25*3,14=122,65625 кв.см) Углы «Скажем 5-10%...» - существенно не поможет (при гравитационке). Хотя общие потери длины горизонта минус 5-10%, если Вас это устроит. И вообще, мне не понятно, я так понял, Вы планируете принудительное РГВ, а тут… Просто, гравитационка и принудительная система считаются абсолютно по-разному: - гравитационную (условно) систему целесообразно считать по принципу сможет ли давление создаваемое вертикалью преодолеть сопротивление горизонтали и поворотов. Например, порядок цифр: атм. давление 101328 Па, а давление создаваемое вертикалью исчисляется всего десятками Па на которое влияет большое количество факторов. Для себя гравитационку считал так (см. вложенный файл гравитационка давление скорость.xls), может Вам чем поможет. Мой расчет упрощенный, без учета термодинамических, аэродинамических процессов, закона сохранения энергии (в полной трактовке) и пр. Но дает общее представление и примерный результат; - принудительную систему, как любую систему отопления, целесообразно считать от потребителя. Например, есть комната с теплопотерями Х Вт, следовательно учитывая теплоемкость воздуха (для dT 10C(30-20) = 9,17 Вт/куб.м, для dT 130C(150-20) = 30,33 Вт/куб.м, см.вложенный файл теплоемкость воздуха.xls, следовательно для расчетов 10 - 15 Вт/куб.м) определяют сечение воздуховода (100 – 150 мм) и приемлемую скорость подачи воздуха/теплоносителя (4 – 8 м/с) и т.д. Главное работа с сотнями Па, для которых поворотами, горизонталями просто можно пренебречь (до определенного разумного момента). ЗЫ На истину не претендую, т.к. истина – утопия. Если интересно поковырять цифры пароль 1. 1 Посилання на коментар Поділитися на інших сайтах More sharing options...
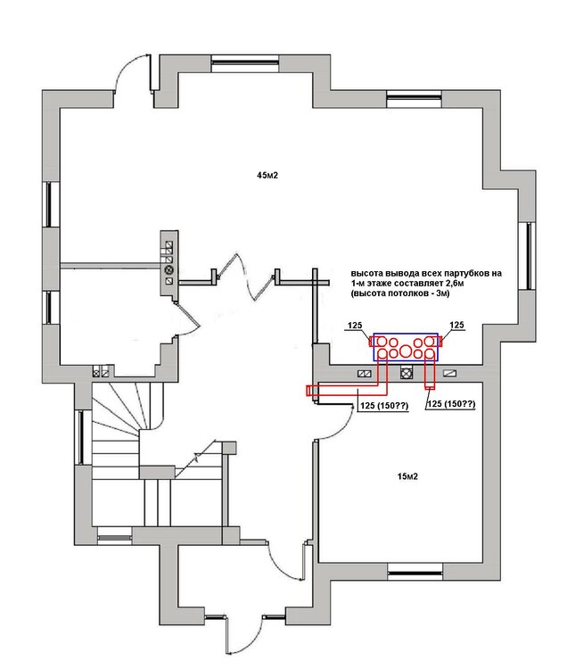
Igor_M Опубліковано: 9 квітня 2013 Автор Поділитись Опубліковано: 9 квітня 2013 2*110 -> 125 при гравитационке не пойдет, т.к. последующий сечения должны быть не меньше предыдущих (для 2*110: 2*5,5*5,5*3,14=189,97 кв.см, а 125: 6,25*6,25*3,14=122,65625 кв.см) Углы «Скажем 5-10%...» - существенно не поможет (при гравитационке). Хотя общие потери длины горизонта минус 5-10%, если Вас это устроит. Да, тут я согласен. Простая математика показывает, что нужно 2х110 соединять в 150-ю трубу как минимум (там сечение 177см2, что гораздо ближе к 190). С уклоном похоже ничего добиться не получится...оставлю горизонталь - проще монтировать и зашивать... И вообще, мне не понятно, я так понял, Вы планируете принудительное РГВ, а тут… Вот в этом у меня пока не полная ясность... Собственно в режиме нагрева от камина предполагаю использовать гравитационку. А вот в режиме вентиляции (когда камин не работает) планирую нагнетать в дистрибутор воздух с улицы (там будет подведена отдельная труба для конвекции диаметром 150мм). Таким образом создавать избыточное давление в "камере" (дистрибутор и кожух вокруг топки). Открывая решетку в какой-то из комнат, предполагаю, что туда будет воздух поступать... Поэтому и "сражаюсь" за эту комнату на втором этаже, чтоб обеспечить подачу воздуха во ВСЕ помещения (за исключением подвала - там отдельная песня будет...;)) При этом "вентустановку" (пока не знаю какую) думаю поставить в неотапливаемом гараже, который будет пристроен к дому. Летом думаю подаваемый воздух охлаждать... Просто, гравитационка и принудительная система считаются абсолютно по-разному: - гравитационную (условно) систему целесообразно считать по принципу сможет ли давление создаваемое вертикалью преодолеть сопротивление горизонтали и поворотов. Например, порядок цифр: атм. давление 101328 Па, а давление создаваемое вертикалью исчисляется всего десятками Па на которое влияет большое количество факторов. Для себя гравитационку считал так (см. вложенный файл [ATTACH]265963[/ATTACH]), может Вам чем поможет... СПАСИБО огромное за табличку! Я понимаю, что все очень приблизительно, поэтому в окончательной цифре "давление на выходе из воздуховода" поставил понижающий коэффициент 0,75... И все равно получилось 3,88 Па, что даже при температуре на выходе в 50 градусов дает "Тепловую мощность воздуховода в районе 1500 Вт*ч", что ПОЛНОСТЬЮ покрывает теплопотери той дальней комнаты даже с учетом потерь на вентиляцию (а они составляют около 45% от всех, поскольку дом хорошо утеплен). файлик с расчетом тоже в аттаче (все ли там правильно???) И еще я так "пристаю" к этой комнате, потому что она выходит на север, и там два окна... Да и тепло от камина нужно же куда-то отводить... В паспорте топки написано, что площадь выходных решеток должна быть не менее 1000см2... На первом этаже будет 4х125мм: одна - в кабинет-спальню, одна - в коридор (???) и две - в гостиную (прямо из обшивки решетки) (рис в аттаче). Итого 122,5х4=490см2. Прибавим второй этаж - 95х4=380см2... ИТОГО 870см2... не хватает все равно... Вот и "кручу-верчу". Возможно, заменю на 1-й этаж трубы в спальню и в коридор на 150-й диаметр... поскольку по отзывам в "двухэтажных" конструкциях воздух теплый "улетает" на второй этаж и первому достается слабо... Прошу испоможения............. Люди добрые... пожалуйста вам...ЭГОИСТ гравитационка давление скорость_130409.xls Посилання на коментар Поділитися на інших сайтах More sharing options...
andr.ey Опубліковано: 9 квітня 2013 Поділитись Опубліковано: 9 квітня 2013 Вот в этом у меня пока не полная ясность... Собственно в режиме нагрева от камина предполагаю использовать гравитационку. А вот в режиме вентиляции (когда камин не работает) планирую нагнетать в дистрибутор воздух с улицы (там будет подведена отдельная труба для конвекции диаметром 150мм). Таким образом создавать избыточное давление в "камере" (дистрибутор и кожух вокруг топки). Открывая решетку в какой-то из комнат, предполагаю, что туда будет воздух поступать... Поэтому и "сражаюсь" за эту комнату на втором этаже, чтоб обеспечить подачу воздуха во ВСЕ помещения (за исключением подвала - там отдельная песня будет...;)) При этом "вентустановку" (пока не знаю какую) думаю поставить в неотапливаемом гараже, который будет пристроен к дому. Летом думаю подаваемый воздух охлаждать... Ну вы себя накрутили:D Это какой то велосипед с квадратными колесами получается. ИМХО не нужно так делать ...площадь выходных решеток должна быть не менее 1000см2... ... ИТОГО 870см2... не хватает все равно... Вот и "кручу-верчу". Прошу испоможения............. Люди добрые... пожалуйста вам... Так в чем помочь? Трубу приехать поставить? Планировки нет... Какой камин...Данных мало ЗЫ Вы партизан 1 Посилання на коментар Поділитися на інших сайтах More sharing options...
Igor_M Опубліковано: 10 квітня 2013 Автор Поділитись Опубліковано: 10 квітня 2013 Ну вы себя накрутили:D Это какой то велосипед с квадратными колесами получается. ИМХО не нужно так делать Тут на все 100... Но квадратные со временем будем срезать углы... Как известно, если их срезать до бесконечности, то как раз круг и получится...;) НО это на отдаленную перспективу. Сейчас только РГВ естественным способом Так в чем помочь? Трубу приехать поставить? Планировки нет... Какой камин...Данных мало ЗЫ Вы партизан Планировку прилагаю (подвал, 1-й и 2-й этажи). Камин простецкий поляцкий... с подачей воздуха извне и сверху... Надо признать не очень я доволен, но "шо маємо...":( Фото камина тоже прилагаю. Прошу оценить в целом систему разводки - по диаметрам труб, высоте подъема и т.п... Ну и по поводу расчетов, что я в вашей же табличке посчитал и выложил ранее - там все нормально? Если ДА, то означает ли это, что все-так в спальню 1 воздух пойдет (пока говорим о теплом)? Ну и может какие есть замечания-советы... Буду признателен... Посилання на коментар Поділитися на інших сайтах More sharing options...
andr.ey Опубліковано: 11 квітня 2013 Поділитись Опубліковано: 11 квітня 2013 ... срезать углы... РГВ естественным способом Извините, я в командировке... Развернутое ИМХО смогу дать вечером пятницы (завтра). Посилання на коментар Поділитися на інших сайтах More sharing options...
Igor_M Опубліковано: 11 квітня 2013 Автор Поділитись Опубліковано: 11 квітня 2013 Извините, я в командировке... Развернутое ИМХО смогу дать вечером пятницы (завтра). Спасибо, очень буду ждать... Я тут еще в прошлом году завел тему по вентиляции в соотв разделе. www.stroimdom.com.ua/forum/showthread.php?t=99882 Там есть возможно какая-то недостающая информация... Ну и параллельно получилось, что и там тоже "диспут завязался"...;) Получился такой "сеанс одновременной игры"...:D Посилання на коментар Поділитися на інших сайтах More sharing options...
andr.ey Опубліковано: 12 квітня 2013 Поділитись Опубліковано: 12 квітня 2013 буду ждать... 1. 3(4) в 1: ПРАВИЛЬНАЯ Система называется воздушное отопление, кондиционирование, вентиляция +- рекуперация (распространена в Канаде и Северной Америке). Вот выдержки пользователя системы киевского канадца (roracotta): www.stroimdom.com.ua/forum/showpost.php?p=1116219&postcount=129 «Воздушный обогреватель-самое худшее,что только можно придумать , но самое дешевое» www.stroimdom.com.ua/forum/showpost.php?p=1144508&postcount=160 «Я тоже практически не включаю вентиляцию.Иногда открываем окна» www.stroimdom.com.ua/forum/showpost.php?p=1151135&postcount=43 2. Присоединяюсь к мнениям по вентиляции: REYDER «подумайте как все ваши "дырки" в доме прикрывать когда надо» и «2 людям в доме в 240 м2 и так будет свободно дышаться, даже без наличия стольких дыр. Раз или 2 раза в день проветрили и достаточно будет.»; SON «Лучше продумайте как ее прикрывать (ограничивать)» 3. «Квадратные колеса» Да принудительную систему (отопления/охлаждения) можно сделать (и делают) нагнетанием и/или высасыванием. Но Вам? Для отопление камином нагнетание не нужно (давления создаваемое вертикалью хватает), при условии отсутствия на 1 и 2 этаже постоянно открытых «дырок» вентиляции. Для вентиляции нагнетание не нужно (см. п.2). Нагнетание целесообразно применять, на пример, с тэнами, но не с камином. Для каминов есть стандартные целесообразные решения вытяжные специальные вентиляторы, например КАМ от вентса. Тем более, что у Вас 3-й короб: 1-й нержавейка в вате, 2-й декоративный, 3-й декомпрессионный над 1 и 2-м. Поэтому создавать избыточное давление в конвекционном пространстве типа «матрешка», как у Вас – это «квадратные колеса», т.к. он не будет герметичным (особенно 2-й), потом зачем обдувать топу вне работы для вентиляции и/или когда работает камин вентиляция стало быть не ненужна согласно Вашим рассуждениям и т.д. Т.о. нагнетание ИМХО излишне. Если бы было конвекционное пространство из шамота или из суперизола (цельное/единое и без ваты), то нагнетание можно было рассмотреть для принудительного отопления, как вариант проявления своеобразия/индивидуальности/не стандарта. 4. У Вас две отдельные гравитационные системы отопления и вентиляции. Гравитационная вытяжка вентиляции на 1 и 2-м этаже (в открытом состоянии) может/будет вредить гравитационной системе ВО камина. Или делайте как правильно/принудительно 3(4) в 1. . Или может проветривать открытием окон на 1-2 этажах, по необходимости? 5. Конвекционный подвод/вход воздуха ВО камина, как и другие системы отопления, должно работать по принципу подача – обратка с насосом принудительным или гравитационным (нагревателем/котлом). В вашем случае топка греет воздух/теплоноситель, который идет по воздуховодам (подача) в комнаты. В комнатах воздух нагревая комнату, при этом остывая, через щели под дверями идет на лестничную клетку (обратку) и поступает обратно в конвекционное пространство. Т.о. от лестничной клетки до топки должен быть кратчайший путь. А у Вас через подвал? 6. Подвод воздуха для горения. В принципе все правильно через гараж. НО… я читал Ваше мнение о необходимости герметичной заслонки. ИМХО это не обязательно. Более того, себе буду ставить просто воздушный обратный клапан, т.к. при старте/растопке камина производители рекомендуют это делать с открытой дверкой камина и открытым/приоткрытым окном/форточкой для улучшения первоначальной/слабой/никакой тяги. По мере прогревания камина и дымоотвода с дымоходом тяга увеличится и клапан (обратный) откроется во время постепенного закрывания дверки камина. А в нерабочем состоянии камина клапан соответственно закрыт. 7. Сечения. Подача первого и второго этажа На пример как то так: 150 1 176,625 2*110 110 2 189,97 2 этаж 125 1 122,6563 коридор 150 1 176,625 15 кв.м 150 2 353,25 каминный зал Итого 1019,126 кв.см 8. Вывод подачи второй этаж. У Вас же позволяет давление вывести 110 над окнами или как можно ближе. Так в чем дело? Над окнами однозначно будет лучше. 9. «Какой из двух вариантов ЛУЧШЕ???» «ЛУЧШЕ» тот, который дешевле. И во втором на одно колено 90гр. меньше, следовательно меньше сопротивление. Блин, ну все ж на поверхности/ясно. 10. Итого Что мешает сделать на первом этапе гравитационку и обкатать ее (даже без декоративного короба конвекционного пространства)? Просто топка, дистрибьютор (утепленный), разводка, подвод для горения и конвекции. Тогда при эксплуатации у Вас отпадет куча вопросов, т.к. поймете сами. И появятся новые (вопросы/предложения), например, может поставить термодатчик на купол топки, подключить его к контроллеру и управлять сервоприводом подачи воздуха для горения для поддержания установленной Вами мощности. Или сочтете необходимым все таки реализовать систему нагнетания. ИМХО все/большинство снипов и прочих норм пишут больше исходя из практики (стенды, полевые испытания и т.д.) нежели из теории законов физики. Теория хороша, но вам нужна практика, точнее полевые испытания с минимальными затратами. Из личного опыта практика пользования более полу года камином (даже без дистрибьютора) сняла более 50% вопросов. 5 Посилання на коментар Поділитися на інших сайтах More sharing options...
Igor_M Опубліковано: 16 квітня 2013 Автор Поділитись Опубліковано: 16 квітня 2013 1. Напишите в личку адрес, по которому выслать бутылку хорошего виски...;) 10. Итого Что мешает сделать на первом этапе гравитационку и обкатать ее (даже без декоративного короба конвекционного пространства)? Просто топка, дистрибьютор (утепленный), разводка, подвод для горения и конвекции. Тогда при эксплуатации у Вас отпадет куча вопросов, т.к. поймете сами. И появятся новые (вопросы/предложения), например, может поставить термодатчик на купол топки, подключить его к контроллеру и управлять сервоприводом подачи воздуха для горения для поддержания установленной Вами мощности. Или сочтете необходимым все таки реализовать систему нагнетания. ИМХО все/большинство снипов и прочих норм пишут больше исходя из практики (стенды, полевые испытания и т.д.) нежели из теории законов физики. Теория хороша, но вам нужна практика, точнее полевые испытания с минимальными затратами. Из личного опыта практика пользования более полу года камином (даже без дистрибьютора) сняла более 50% вопросов. РЕЗЮМЕ абсолютно в точку! Когда мысли крутятся в голове, обгоняя одна другую, то трудно составить цельную картину (особенно если ее никогда не видел...:D). Когда вот вы написали в стиле "подытожим говоренное", то тумана стало намного меньше... И ведь и в самом деле - нужно сделать и апробировать... На настоящем этапе важным считал собственно трассы воздуховодов, их сечения и взаимное расположение. Чтобы потом при "модернизации" системы не упереться в какой-нибудь "тупик"... Пошел пересчитывать трубы, уголки и тройники, в субботу закуплю и приступим... Еще раз СПАСИБО!!! Посилання на коментар Поділитися на інших сайтах More sharing options...
andr.ey Опубліковано: 16 квітня 2013 Поділитись Опубліковано: 16 квітня 2013 Пошел пересчитывать трубы, уголки и тройники, в субботу закуплю и приступим... Каждую воздушную ветку можно тестировать по отдельности/по очереди (может будет интересно для оптимизации затрат, если не уверены в результате) ЗЫ ИМХО Вы не корректно дали информацию. И я, получается частично написал вопрос-фигню в п.5. Корректнее, на пример, как-то так Посилання на коментар Поділитися на інших сайтах More sharing options...
Igor_M Опубліковано: 17 квітня 2013 Автор Поділитись Опубліковано: 17 квітня 2013 Все правильно вы поняли... Я просто на рисунке не подписал, но предполагалось, что будет именно так. Вот ведь еще в посте №5 писал: "4) Система подмеса наружного воздуха к конвекционному (то бишь нагреваемому, который ВОКРУГ топки внутри дистрибутора проходит). Пишут, что его нужно "добавлять" примерно 15-20% от количества.". По паспорту топки нужно подавать конвекционный воздух для охлаждения корпуса через решетки общей площадью не менее 850см2. Собственно поэтому-то и трубу с улицы для подмеса планирую протянуть диаметром 150мм. Сечение у нее 177см2, что как раз составляет 20% от требуемых 850см2... Только вот я не знаю - будет ли вообще из нее что-то тянуть? Ведь по логике остальные 673см2 будут из комнаты, а там воздух более теплый, да и сопротивления вообще НИКАКОГО... Посилання на коментар Поділитися на інших сайтах More sharing options...
usanin_n Опубліковано: 17 квітня 2013 Поділитись Опубліковано: 17 квітня 2013 Все правильно вы поняли... Я просто на рисунке не подписал, но предполагалось, что будет именно так. Вот ведь еще в посте №5 писал: "4) Система подмеса наружного воздуха к конвекционному (то бишь нагреваемому, который ВОКРУГ топки внутри дистрибутора проходит). Пишут, что его нужно "добавлять" примерно 15-20% от количества.". По паспорту топки нужно подавать конвекционный воздух для охлаждения корпуса через решетки общей площадью не менее 850см2. Собственно поэтому-то и трубу с улицы для подмеса планирую протянуть диаметром 150мм. Сечение у нее 177см2, что как раз составляет 20% от требуемых 850см2... Только вот я не знаю - будет ли вообще из нее что-то тянуть? Ведь по логике остальные 673см2 будут из комнаты, а там воздух более теплый, да и сопротивления вообще НИКАКОГО... Игорь, а вы представляете себе, что у вас будет зимой творится при МИНУСОВОЙ температуре, когда морозный воздух будет через дыру Ф150 мм поступать в помешение, путь даже внутри камеры? Посилання на коментар Поділитися на інших сайтах More sharing options...
Dima_dimohod Опубліковано: 18 квітня 2013 Поділитись Опубліковано: 18 квітня 2013 Игорь, а вы представляете себе, что у вас будет зимой творится при МИНУСОВОЙ температуре, когда морозный воздух будет через дыру Ф150 мм поступать в помешение, путь даже внутри камеры? Николай, таким образом Игорь создаёт систему рекуперации дома через каминную топку. Подмес воздуха задуман по проекту. Посилання на коментар Поділитися на інших сайтах More sharing options...
Igor_M Опубліковано: 18 квітня 2013 Автор Поділитись Опубліковано: 18 квітня 2013 Игорь, а вы представляете себе, что у вас будет зимой творится при МИНУСОВОЙ температуре, когда морозный воздух будет через дыру Ф150 мм поступать в помешение, путь даже внутри камеры? Николай, таким образом Игорь создаёт систему рекуперации дома через каминную топку. Подмес воздуха задуман по проекту. Ну это вы уж совсем меня считаете за... Труба 150мм для "подмеса" (равно как 100мм и для горения) будет перекрываться каглой с силиконовым уплотнением, т.е. холодный воздух будет поступать только тогда, когда я захочу. Затопил камин - открыл оба "вентиля", поставил на режим "тления" - закрыл 100мм и прикрыл 150мм, топка остыла - перекрыл обе заслонки. Николай, Дмитрий.... ну поднимите глаза наверх страницы - там же рисунок приаттаченный... И заслонки там явно прописаны...;) Коль скоро вы уже (еще ли?) здесь, то может подскажете - будет ли "подсасывать" при таком варианте воздух извне по этой 150-й трубе? Может его "подталкивать" как-то нужно? Особенно если учесть, что на входе этой трубы в дом наверное не помешало бы фильтр поставить... Ну очень прошу высказаться в конструктивном русле! СПАСИБО!!! 1 Посилання на коментар Поділитися на інших сайтах More sharing options...
Елочка Опубліковано: 18 квітня 2013 Поділитись Опубліковано: 18 квітня 2013 Ну очень прошу высказаться в конструктивном русле! Я не могу что-либо прокомментировать, но прочитав, у меня полностью систематизировались этапы работ по установке топки-камина в доме. А то никак не могла все в одно целое собрать. Игорь, спасибо большое! Посилання на коментар Поділитися на інших сайтах More sharing options...
Рекомендовані повідомлення
Створіть акаунт або увійдіть у нього для коментування
Ви маєте бути користувачем, щоб залишити коментар
Створити акаунт
Зареєструйтеся для отримання акаунта. Це просто!
Зареєструвати акаунтУвійти
Вже зареєстровані? Увійдіть тут.
Увійти зараз