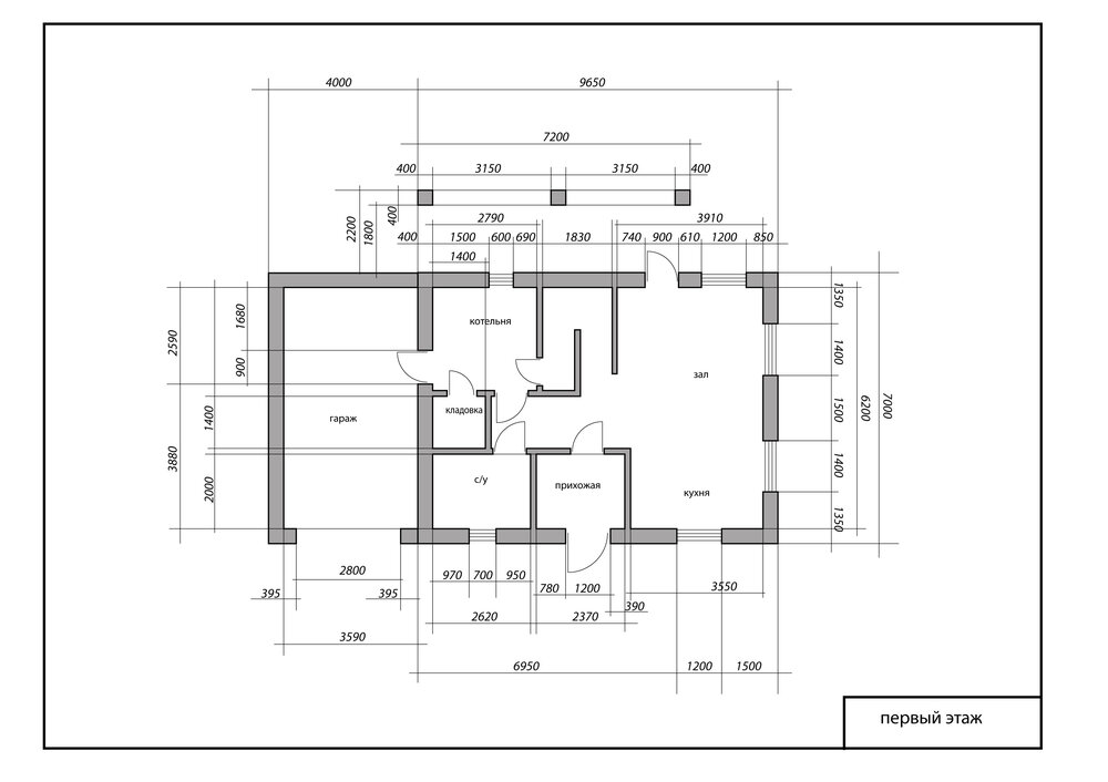
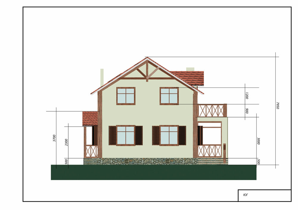
Talib980 Опубліковано: 10 червня 2013 Поділитись Опубліковано: 10 червня 2013 Добрый день, форумчане! Прошу покритиковать проект (внешний вид + планировку дома). Проект делал сам с другом дизайнером. Архитектор не привлекался. Изначально была задача сделать небольшой дом для проживания семьи из 4-х человек (2 взрослых и два ребенка 5 и 8 лет). Цели проекта кратко: 1) Минимально возможный размер дома 2) Наличие котельной с размещением твердотопливного котла (газ вести очень дорого) 3) Участок на возвышенности поэтому хотелось иметь террасу с видом на восток, поскольку там открывается великолепный вид (холмы, лес) + опять же крытая и затененная терраса на первом этаже. Это будет первый загородный дом в котором я собираюсь жить (до этого жили только в квартирах) Будет ли такая планировка удобна для жизни? Важно также мнение по внешнему виду дома. Может нужно что-то улучшить. Например по внешнему виду уже вижу то, что нужно будет делать свес крыши минимум 1-1,2 м (мансардный этаж приподнят на 1,5 метра). Вообщем буду очень благодарен за любую критику! Посилання на коментар Поділитися на інших сайтах More sharing options...
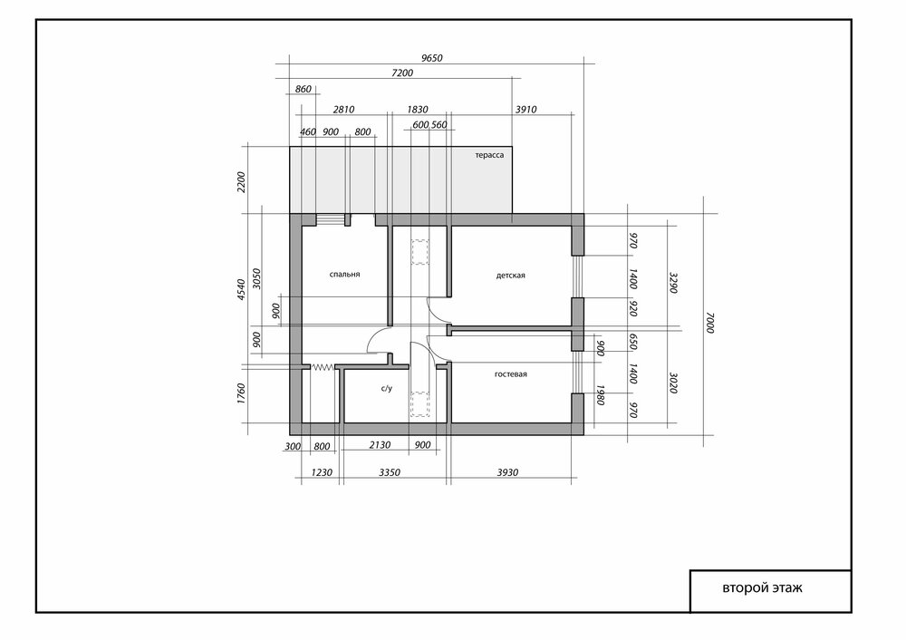
ArhiMau Опубліковано: 10 червня 2013 Поділитись Опубліковано: 10 червня 2013 Добрый день! Первое: в топочную пожарник потребует вход с улицы, все стены должны быть огнестойкими (кирпич или огнестойкий гипс в 2 слоя), дверь в коридор - огнестойкая (EI 30). Второе: для освещения лестницы окно лучше выполнить в стене, а не в кровле (да и стоит меньше и мыть удобно и кровля не потечет). И третье: На втором этаже у Вас балкон - отлично! Останется добавить чуть и детскую увеличить на ширину балкона. Это позволит кроватки поставить отдельно, да и места больше для игр, если в получившуюся зону перенести шкаф. Карниз 800-900мм и водосточная система - вполне нормальное решение. Если больше, надо усилять конструкцию карниза. А ограждение будет смотреться хорошо, если икс-заполнение сделать под 90 градусов. Т.е. доски "икса" относительно друг друга пол 90 градусов. Надо еще продумать выход на балкон 2-го этажа. Скат кровли будет низко, так что можно травмировать голову. И, как по мне, мало места для хранения вещей. Добавлено через 5 минут Есть моменты. Можем обсудить. 097-504-71-88; 099-980-71-13 Ольга. Набирать долго((( 1 Посилання на коментар Поділитися на інших сайтах More sharing options...
Talib_980 Опубліковано: 10 червня 2013 Поділитись Опубліковано: 10 червня 2013 Добрый день! Первое: в топочную пожарник потребует вход с улицы Смотрел требования и вроде ни в одном из ДБН не нашел того, что должна быть отдельная дверь с улицы. А вот то, что лицевой стороны котла до стены должно быть не менее 2-х метров это я увидел. Буду расширять котельную. Добавлено через 2 минуты Добрый день! Надо еще продумать выход на балкон 2-го этажа. Скат кровли будет низко, так что можно травмировать голову. Спасибо за совет в телефоном режиме. Буду поднимать стену дома прилегающую к террасе и соответственно возле нее будет меняться угол наклона крыши. Посилання на коментар Поділитися на інших сайтах More sharing options...
tort Опубліковано: 10 червня 2013 Поділитись Опубліковано: 10 червня 2013 Первое: в топочную пожарник потребует вход с улицы, все стены должны быть огнестойкими (кирпич или огнестойкий гипс в 2 слоя), дверь в коридор - огнестойкая (EI 30). Не потребует ни вход, ни стены ни двери - тут мощность котла не большая (до 30 КВт). Вообще в кухне можете повесить )) А вот то, что лицевой стороны котла до стены должно быть не менее 2-х метров это я увидел. Буду расширять котельную. где это такое вычитали? 1м если не ошибаюсь. И еще: "котельная" - да требует соблюдения неимоверного количества правил. Но это котельная, вас же никто не обязывает ее делать и вообще в частном доме она не требуется. Посилання на коментар Поділитися на інших сайтах More sharing options...
Talib_980 Опубліковано: 10 червня 2013 Поділитись Опубліковано: 10 червня 2013 где это такое вычитали? 1м если не ошибаюсь. Я точно не помню, но для твердотопливных котлов указано 2 метра. Это для газовых 1 метр Посилання на коментар Поділитися на інших сайтах More sharing options...
tort Опубліковано: 10 червня 2013 Поділитись Опубліковано: 10 червня 2013 Я точно не помню, но для твердотопливных котлов указано 2 метра. Это для газовых 1 метр Не обратил внимание на вид топлива, но разница не существенна. ДБН В.2.5-20 п.6,49 - проход 1м (вообще весь раздел от п6,27 до п6,54 и приложение Жэ почитайте) ДСТУ Б В.2.5-33 п.4,2,9 - проход 1 м пс: 2м - это от котла до бака с топливом. Посилання на коментар Поділитися на інших сайтах More sharing options...
Talib980 Опубліковано: 12 червня 2013 Автор Поділитись Опубліковано: 12 червня 2013 Может у кого-нить будут еще мнения по внешнему виду дома. Что можно улучшить или изменить? Посилання на коментар Поділитися на інших сайтах More sharing options...
seyvalter Опубліковано: 12 червня 2013 Поділитись Опубліковано: 12 червня 2013 Может у кого-нить будут еще мнения по внешнему виду дома. Что можно улучшить или изменить? в плані фасадів - сміливо експерементуйте. Тому що є зараз - любі зміни будуть тільки на користь Посилання на коментар Поділитися на інших сайтах More sharing options...
Talib980 Опубліковано: 12 червня 2013 Автор Поділитись Опубліковано: 12 червня 2013 в плані фасадів - сміливо експерементуйте. Тому що є зараз - любі зміни будуть тільки на користь А что именно по Вашему мнению плохо и печально... Ну чтобы знать в каком направлении двигаться Посилання на коментар Поділитися на інших сайтах More sharing options...
seyvalter Опубліковано: 12 червня 2013 Поділитись Опубліковано: 12 червня 2013 форми фасадів - навіть не кольори - а саме форми. Зараз воно якесь як фабрика - високі стіни, куца покрівля, абсолютно нецікаві прямокутні форми. Я б виклав вам два фасада схожого планування для контрасту - та нажаль зараз без флешкі - можлтво вранці якщо вам буде цікаво - скину. Побачите - самі зрозумієте у якому напрямку рухатись, Ок? Посилання на коментар Поділитися на інших сайтах More sharing options...
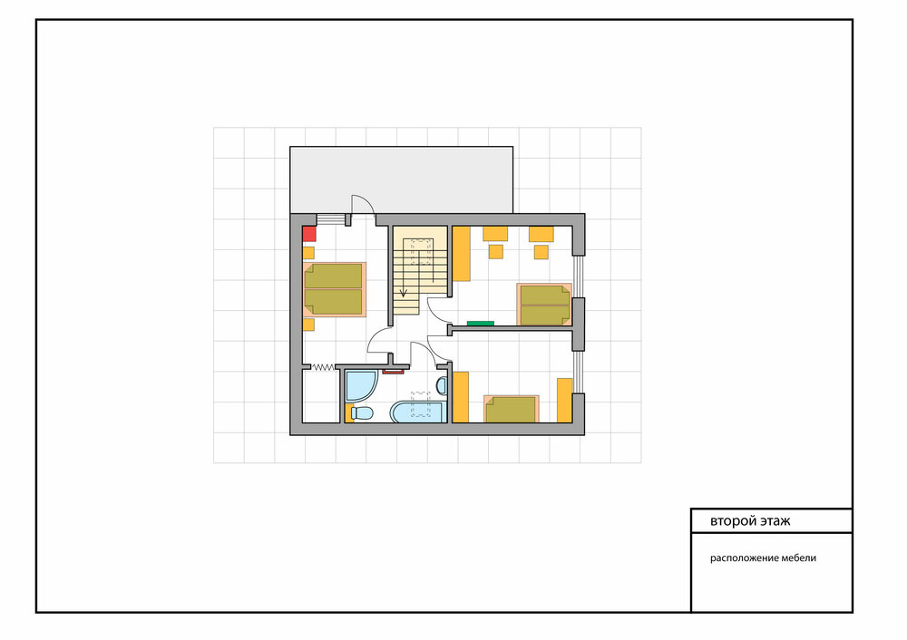
Александр2008_111 Опубліковано: 12 червня 2013 Поділитись Опубліковано: 12 червня 2013 1. На першому поверсі в с.у. варто розмістити душ, а на другому поверсі в с.у. залишити лише ванну; 2. Для зменшення кількості стояків (димоходи, витяжки, водопостачання та водовідведення) потрібно розміщувати, за можливості, с.у., кухні та котельні поруч; 3. Кухня-студіо на любителя - проводити свій відпочинок перед телевізором в той час коли в тому ж приміщенні щось жариться чи париться і при цьому супроводжується шумом, запахом, димом чи парою? Посилання на коментар Поділитися на інших сайтах More sharing options...
Пацифист Опубліковано: 13 червня 2013 Поділитись Опубліковано: 13 червня 2013 Як не крути , а терасса позаду будинку перетвориться на дровітню і потрібно передбачити з неї вхід до топочної , якщо дровітня буде в гаражі , то місця на машину може і не залишитись . Розмістіть будь-ласка схему ділянки , бажано з технічки по видачі ДА ( кадастровий план) Посилання на коментар Поділитися на інших сайтах More sharing options...
Talib980 Опубліковано: 13 червня 2013 Автор Поділитись Опубліковано: 13 червня 2013 По участку: с севера по линии В - Г участок граничит с березовой рощей с востока по линии Г - Е начинается спуск в овраг с углом наклона порядка 25 градусов (участок расположен на холме, а место строительства дома это высшая точка). Перепад высот между высшей и нижней точкой порядка 20 метров. Внизу течет ручей. с юга по линии Ж - Е огород шириной примерно 20-25 метров, а за ним резкий спуск в овраг с углом спуска порядка 45 градусов. По линиям А-З и Б - В на фасаде улицы расположены жилые дома. Почему хочу терассу - только потому что с нее будет открываться очень красивый вид. На востоке за оврагом начинаются холмы поросшие лесом. На террасе внизу хочу поставить диван и столик на котором можно будет ужинать всей семьей. Дрова буду складывать с северной стороны гаража. Для этого немного продлю крышу и возможно поставлю деревянные опоры. Посилання на коментар Поділитися на інших сайтах More sharing options...
Talib980 Опубліковано: 13 червня 2013 Автор Поділитись Опубліковано: 13 червня 2013 1. На першому поверсі в с.у. варто розмістити душ, а на другому поверсі в с.у. залишити лише ванну; Да, вы правы я пожалуй так и сделаю 3. Кухня-студіо на любителя - проводити свій відпочинок перед телевізором в той час коли в тому ж приміщенні щось жариться чи париться і при цьому супроводжується шумом, запахом, димом чи парою? Сейчас у меня в квартире кухня студио и проблема решается очень мощной вытяжкой Bosch, но Вы правы это действительно на любителя Посилання на коментар Поділитися на інших сайтах More sharing options...
kit_press Опубліковано: 13 червня 2013 Поділитись Опубліковано: 13 червня 2013 По Фен-Шуй туалет расположений над прихожей плохой знак, переместите его левее в проекте, чтобы над прихожей был коридор или чулан. Посилання на коментар Поділитися на інших сайтах More sharing options...
mila_bog@list.ru Опубліковано: 13 червня 2013 Поділитись Опубліковано: 13 червня 2013 По Фен-Шуй туалет расположений над прихожей плохой знак, переместите его левее в проекте, чтобы над прихожей был коридор или чулан. А еще переместите двери, так как заходить в дом нужно с определенного угла ))) ШУТКА! Я конечно не хочу сказать ничего плохого, но чтоб все сделать феншуйно надо потратить только 10 лет жизни на получение знаний, и потом столько-же на проектирование. Хотя если есть желание идти на мелкие уступки в угоду феншуя и они не отражаются на удобстве-вперед. ПС пишу с собственного опыта, мне когда мы искали проект такие феншуйные подкидывали знакомые(то кухня в одном углу должна быть, туалет на самом козырном месте, да и в ход с другой стороны дома или от соседей), что я решила что буду там жить,а не феншуй и все должно быть сделано под меня. ВСЕ ИМХО! А любые несоответствия корректируются ;) (для любителей феншуя) Посилання на коментар Поділитися на інших сайтах More sharing options...
seyvalter Опубліковано: 13 червня 2013 Поділитись Опубліковано: 13 червня 2013 А еще переместите двери, так как заходить в дом нужно с определенного угла ))) ШУТКА! Я конечно не хочу сказать ничего плохого, но чтоб все сделать феншуйно надо потратить только 10 лет жизни на получение знаний, и потом столько-же на проектирование. Хотя если есть желание идти на мелкие уступки в угоду феншуя и они не отражаются на удобстве-вперед. ПС пишу с собственного опыта, мне когда мы искали проект такие феншуйные подкидывали знакомые(то кухня в одном углу должна быть, туалет на самом козырном месте, да и в ход с другой стороны дома или от соседей), что я решила что буду там жить,а не феншуй и все должно быть сделано под меня. ВСЕ ИМХО! А любые несоответствия корректируются ;) (для любителей феншуя) +100500. Дуріє народ. Як ще не додумуються панелі по феншую класти чи фундамент армувати. :-o:-o Посилання на коментар Поділитися на інших сайтах More sharing options...
Рекомендовані повідомлення
Створіть акаунт або увійдіть у нього для коментування
Ви маєте бути користувачем, щоб залишити коментар
Створити акаунт
Зареєструйтеся для отримання акаунта. Це просто!
Зареєструвати акаунтУвійти
Вже зареєстровані? Увійдіть тут.
Увійти зараз