ANNA_AB Опубліковано: 13 червня 2013 Поділитись Опубліковано: 13 червня 2013 Всем - Добрый день! Создаю ветку о строительстве своего дома, чтобы послушать мнение форумчан и поделиться своим опытом строительства! Вот такой домик у нас строится под Харьковом: Посилання на коментар Поділитися на інших сайтах More sharing options...
ANNA_AB Опубліковано: 13 червня 2013 Автор Поділитись Опубліковано: 13 червня 2013 Строительством занимается компания "ЭкоДом", пока что отзывы самые положительные. Решили доверить стройку профессионалам, потому что нет ни времени, ни опыта самостоятельного строительства. Затягивать стройку на три года желания тоже нет) Выбирали фирму долго, в основном по рекомендации знакомых. Стройку начали 2 месяца назад. Сейчас у нас уже готов фундамент, коробка, межкомнатные стены. Выполнен монтаж ферм, снизу подшита обрезная доска, сверху - гофрокартон, внутри - смонтирована система вентиляции из пластиковых труб, выложен дымоход из керамического кирпича пространство между фермами залито костробетоном. Приступили к монтажу крыши. 1 Посилання на коментар Поділитися на інших сайтах More sharing options...
Olenevod Опубліковано: 13 червня 2013 Поділитись Опубліковано: 13 червня 2013 Ой, не любят тут Экодома. Щас писатели набегут . А как по мне - он делает то, чего остальные бояться. Иногда с косяками, но не критичными. Удачи в стройке! 3 Посилання на коментар Поділитися на інших сайтах More sharing options...
ANNA_AB Опубліковано: 13 червня 2013 Автор Поділитись Опубліковано: 13 червня 2013 Ой, не любят тут Экодома. Щас писатели набегут . А как по мне - он делает то, чего остальные бояться. Иногда с косяками, но не критичными. Удачи в стройке! Спасибо!!! Надеюсь все гладко будет, ттт В любой технологии есть минусы, и любой материал имеет достоинства и недостатки. Не знаю, существуют ли идеальные и безупречные варианты. Мы выбирали по принципу "лучше один раз увидеть" - посмотрели дома, которые наши знакомые строили у экодома, пообщались. Нас все устроило - более чем. Надеюсь эта тема не превратится в обсуждение моего застройщика) Посилання на коментар Поділитися на інших сайтах More sharing options...
ANNA_AB Опубліковано: 13 червня 2013 Автор Поділитись Опубліковано: 13 червня 2013 Фундамент - монолитная железобетонная плита толщиной 100мм, на подушке из песка, гранотсева, щебня. Посилання на коментар Поділитися на інших сайтах More sharing options...
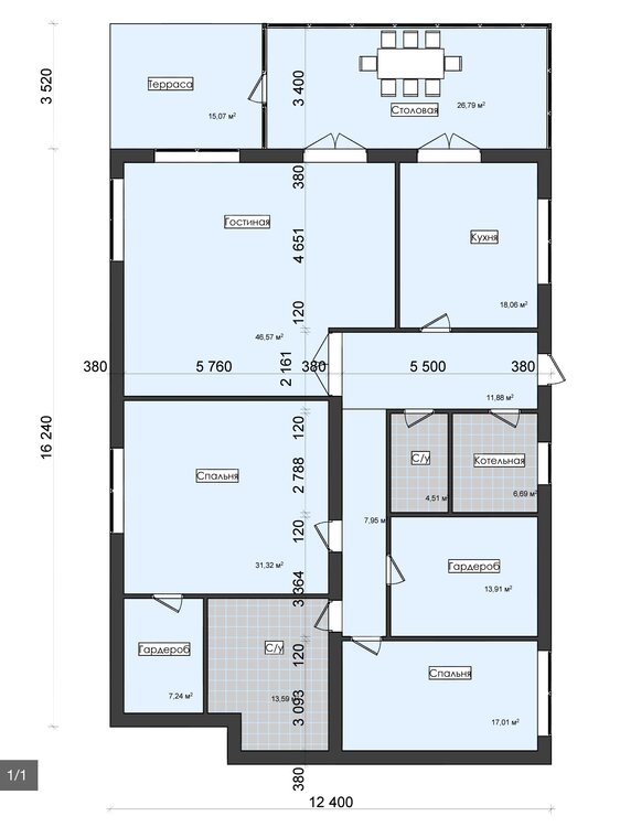
AndyAntonov Опубліковано: 13 червня 2013 Поділитись Опубліковано: 13 червня 2013 Планировка на любителя, но то такое. А вентканал второго санузла где? На 3Д его нету. Посилання на коментар Поділитися на інших сайтах More sharing options...
kruchenik Опубліковано: 13 червня 2013 Поділитись Опубліковано: 13 червня 2013 ТС, а в чем "экость" дома? Расскажите поподробнее концепцию и ее отличие от стандартного дома. Посилання на коментар Поділитися на інших сайтах More sharing options...
Большой Котяра Опубліковано: 13 червня 2013 Поділитись Опубліковано: 13 червня 2013 гардеробные у вас внушительные ... что бы тема не превратилась в обсуждение застройщика то расскажите о самой стройке, как стены возводили, из чего. Какие материалы на кровлю пустили. Что было веселого в процессе строительства? Посилання на коментар Поділитися на інших сайтах More sharing options...
eam Опубліковано: 13 червня 2013 Поділитись Опубліковано: 13 червня 2013 Всем - Добрый день! Создаю ветку о строительстве своего дома, чтобы послушать мнение форумчан и поделиться своим опытом строительства! Вот такой домик у нас строится под Харьковом: А вам тоже пообещали скидку за создание тем на разных форумах? ;) ЗЫ. На ХарьковФоруме уже видел вашу тему... Апдейт... А, это вы и есть, кто пытается уже третью тему создавать Посилання на коментар Поділитися на інших сайтах More sharing options...
ANNA_AB Опубліковано: 14 червня 2013 Автор Поділитись Опубліковано: 14 червня 2013 ТС, а в чем "экость" дома? Расскажите поподробнее концепцию и ее отличие от стандартного дома. гардеробные у вас внушительные ... что бы тема не превратилась в обсуждение застройщика то расскажите о самой стройке, как стены возводили, из чего. Какие материалы на кровлю пустили. Да, рассказываю. Дом строили по принципу цена-качество. Хотелось и в сумму уложиться, которая у нас была в наличии, и чтобы материалы по максимуму были экологичные. Стены решили строить и ракушечника. Почему - потому что экологично и доступно. Достоинств много, единственное неудобство - то, что камень привозной. Делали колодцевую кладку, по схеме 180 ракушка-150 костробетон - 180 ракушка, толщина стены - 510 мм. Утепляли кострой конопли, в виде легкого костробетона. Костробетон - разновидность арболита, прекрасный утеплитель, в Европе используется широко, в Украине почему-то нет. Технология проста: смешивается костра конопли, известь и цемент марки 500. Кровлю утепляем тоже легким костробетоном, толщиной 400мм, на 70м3 костры - 2т извести и 2т цемента. На фото - процесс возведения стены 1 Посилання на коментар Поділитися на інших сайтах More sharing options...
Большой Котяра Опубліковано: 14 червня 2013 Поділитись Опубліковано: 14 червня 2013 оригинальная технология. Можно заменить костробетон саманом - смесь глины и половы. Технология отличная, причем проверенная тысячелетиями зимой очень тепло, летом прохладно, только не вздумайте утеплять пенопластом, там должен быть воздухообмен Посилання на коментар Поділитися на інших сайтах More sharing options...
ANNA_AB Опубліковано: 14 червня 2013 Автор Поділитись Опубліковано: 14 червня 2013 А вам тоже пообещали скидку за создание тем на разных форумах? ;) ЗЫ. На ХарьковФоруме уже видел вашу тему... Апдейт... А, это вы и есть, кто пытается уже третью тему создавать у меня эта тема на нескольких строй форумах, не только на Харьков-форуме знаете как , "с миру по нитке")) на ХФ вялая дискуссия, никто ничего толкового еще не сказал, не посоветовал тут поинформативнее Да, это именно я, "которая уже третью тему пытается создавать")) повторяться не буду, все что хотела сказала здесь Посилання на коментар Поділитися на інших сайтах More sharing options...
LITMANENko Опубліковано: 14 червня 2013 Поділитись Опубліковано: 14 червня 2013 Стены решили строить из ракушечника. Достоинств много, единственное неудобство Вы еще ни дня в доме не прожили, а уже настрочили 100500 хвалебных од как ракушняку с кострой так и подрядчику вашему. Посилання на коментар Поділитися на інших сайтах More sharing options...
Большой Котяра Опубліковано: 14 червня 2013 Поділитись Опубліковано: 14 червня 2013 почему бы и нет?! Тем более по той технологии по которой возводятся стены все позитивные стороны материала очень хорошо проявляются Посилання на коментар Поділитися на інших сайтах More sharing options...
ANNA_AB Опубліковано: 14 червня 2013 Автор Поділитись Опубліковано: 14 червня 2013 (змінено) оригинальная технология технология простая, но эффективная гардеробные большие, да) ну у нас и остальные комнаты немаленькие, гостиная почти 47 кв.м. всегда хотелось дом, в котором можно "свободно дышать" это кстати был конфликтный момент у нас с мужем, он хотел сэкономить за счет площади, а мне - "пространство" подавай)) поэтому и материалы долго выбирали, из чего строить хоть ракушечник и критикуют, но из блоков Поротерм (например), или из кирпича мы бы 200 квадратов за такую сумму не построили, это совсем другой ценовой диапазон а по такой технологии, как мы строим, стены будут теплые, и материалы все -без вредных веществ, экологичные Добавлено через 8 минут Вы еще ни дня в доме не прожили, а уже настрочили 100500 хвалебных од как ракушняку с кострой так и подрядчику вашему. читайте по ссылке выше, почему я хвалила подрядчика я не "строчу", а пишу - Вы оговорились))) Потому ЧТО, мне эти материалы нравятся, мы их выбрали и строим дом. Это субъективное мнение, и оспорить его я не против. Для этого и общаюсь на соответствующих форумах. Интересно послушать разные точки зрения, очень много дельных советов мне дали. Стала более "продвинутой" с теме строительства, мне это нравится. По поводу "ни дня не прожила" - у нас друзья зато 7 лет прожили в таком доме. И мы бывали там ооочень часто (и бываем), и в разное время года. Поэтому мнение мое основано не только на теории, но и на чужом опыте. а там, куда вы ссылку дали, была интересная дискуссия с умным человеком. Я свою позицию люблю отстаивать, но и к противоположному мнению - прислушиваюсь. В отличии от Ваших подсчетов моих постов, там был разговор о стройке -намного интереснее. Змінено 14 червня 2013 користувачем ANNA_AB Посилання на коментар Поділитися на інших сайтах More sharing options...
Большой Котяра Опубліковано: 14 червня 2013 Поділитись Опубліковано: 14 червня 2013 ANNA_AB не вы одни, дал почитать вашу ветку технадзору, так он тоже в восторге от идеи, а он как никак уже лет 40 в строительстве Посилання на коментар Поділитися на інших сайтах More sharing options...
ANNA_AB Опубліковано: 14 червня 2013 Автор Поділитись Опубліковано: 14 червня 2013 Ой, не любят тут Экодома. Щас писатели набегут . А как по мне - он делает то, чего остальные бояться. Иногда с косяками, но не критичными. Удачи в стройке! ахахха)) а Вы были правы))) Добавлено через 3 минуты ANNA_AB не вы одни, дал почитать вашу ветку технадзору, так он тоже в восторге от идеи, а он как никак уже лет 40 в строительстве а есть какие-то моменты, которые не нравятся ему??? я понимаю ,что колодцевая кладка не в фаворе сейчас но так и расход материала меньше, и нагрузка на фундамент меньше такой недостаток как недолговечность, устранили утеплителем костробетоном костра не гниет, не стареет (во всяком случае так говорят исследования, ну и химический состав материала) + обработка известью Посилання на коментар Поділитися на інших сайтах More sharing options...
Большой Котяра Опубліковано: 14 червня 2013 Поділитись Опубліковано: 14 червня 2013 ну, он же не видел ваш проект полностью, тока технологию, а вот все нюансы на ваше рассуждение. Не только костра но и обычная солома пойдет, сами посмотрите, есть дома из глины с соломой (саман) которые стоят по 80 лет, это при том что там нет никакой кладки, а у вас два ряда ракушняка по бокам Посилання на коментар Поділитися на інших сайтах More sharing options...
ANNA_AB Опубліковано: 14 червня 2013 Автор Поділитись Опубліковано: 14 червня 2013 Планировка на любителя, но то такое. А вентканал второго санузла где? На 3Д его нету. Да, планировка простая, с дизайном тоже особо не заморачивались. По поводу вентиляционной системы: у нас традиционная гравитационная, совмещенная с принудительной из сан узлов и кухни. Два кирпичных вент канала: в топочной - пристроенный к перегородке из трех каналов, и в гостиной. В них сходятся трубы в перекрытии: от большого сан узла и гардеробной. Из топочной маленького санузла кухни и гостиной - прямой выход в кирпичные вертикальные каналы. Добавлено через 3 минуты ну, он же не видел ваш проект полностью, тока технологию, а вот все нюансы на ваше рассуждение. Не только костра но и обычная солома пойдет, сами посмотрите, есть дома из глины с соломой (саман) которые стоят по 80 лет, это при том что там нет никакой кладки, а у вас два ряда ракушняка по бокам у бабули моей дом из самана, снаружи - кирпичная кладка. Стоит лет 70, все с ним ок. Но только там мыши живут( Жучки, паучки.. А вот костру никто не ест, грибок с плесенью в том числе. Флора и фауна ей не страшна. Поэтому решились на такое утепление. Посилання на коментар Поділитися на інших сайтах More sharing options...
Всеволодович Опубліковано: 14 червня 2013 Поділитись Опубліковано: 14 червня 2013 ANNA_AB, Вы просчитали точку росы и температуру ограждающей конструкции? А также теплосопротивление стены, проходит оно по нормам? Все таки интересно. Или поверили на слово? ИМХО при таком пироге стены, на внутренней поверхности наружного камня будет образовываться влага. А в сильные морозы эта влага может промерзать. Так же у Вас хорошие мостики холода у окон и в тех рядах где камень перевязывают (или эти две стены независимы?). Еще вопрос по армопоясу. Будет ли? Если будет, как будет организован, на какую из частей стены опираться, как утепляться? Пы.СЫ. Вы бы не спешили так хвалить строителей. Дом пока не построен. А то, тут на форуме была ветка "Мой дом по сербской технологии". Так в начале ветки такие похвалы, а закончили черным списком. Добавлено через 7 минут Фундамент - монолитная железобетонная плита толщиной 100мм У Вас фундамент плита 100 мм.? И под несущими стенами? (может это всеже полы по гунту?). И что это за шлакоболоки по периметру? Посилання на коментар Поділитися на інших сайтах More sharing options...
Большой Котяра Опубліковано: 14 червня 2013 Поділитись Опубліковано: 14 червня 2013 может выложите побольше информации о проекте? Посилання на коментар Поділитися на інших сайтах More sharing options...
ANNA_AB Опубліковано: 14 червня 2013 Автор Поділитись Опубліковано: 14 червня 2013 (змінено) ANNA_AB, Вы просчитали точку росы и температуру ограждающей конструкции? А также теплосопротивление стены, проходит оно по нормам? Все таки интересно. Или поверили на слово? посчитала)) доверяй, но проверяй. Коэф теплопроводности ракушечника составляет 0,4 Вт/ (м•°С). При толщине стены 180 мм, R=0,18/0,4=0,45 (м2∙К/Вт) K костробетона= 0,07 Вт/(м•°С). При толщине стены 150 мм, R=0,15/0,07=2,14 (м2∙К/Вт) Rобщ = 0,45+0,45+2,14 = 3,04 (м2∙К/Вт) Нормам соответствует (норма Rmin стены по ДБН = 2,8) ИМХО при таком пироге стены, на внутренней поверхности наружного камня будет образовываться влага. А в сильные морозы эта влага может промерзать. По поводу влаги, думаю - не критично. Продублирую расчет. Пористость ракушечника - от 32% при объемном весе (плотности) 1800 кг на куб до 62% при 1000 кг на куб. Следовательно, минимум 320 литров от куба может быть заполнено водой (логически) Если учесть .что при замерзании вода увеличивается на 9%, то 320/1,09 = 293 литра воды в кубе ракушечника - это предел, при котором он начнет разрушаться На квадратный метр стены это 293*0,18 = 52,7 литра Не сконденсируется столько пара за отопительный сезон. тем более, климат у нас все теплее и теплее, мы же не на северном полюсе живем Так же у Вас хорошие мостики холода у окон и в тех рядах где камень перевязывают (или эти две стены независимы?). Еще вопрос по армопоясу. Будет ли? Если будет, как будет организован, на какую из частей стены опираться, как утепляться? Оконные откосы будут снаружи дополнительно утепляться ЭППС. Армопояс есть - чуть выше (15 см) низа перекрытия, снаружи утеплен ЭППС. Опирается на всю стену У Вас фундамент плита 100 мм.? И под несущими стенами? (может это всеже полы по гунту?). Уточню по фундаменту, пардон. Участок покупали с уже залитым фундаментом - ленточный монолитный, глубиной 1,4 м. Если бы с застройщиком делали фундамент - было бы по другому. Но отталкивались от того, что было в наличии. Плита 100 мм - это то, что у нас по проекту (проект делался под существующий фундамент). Плита является черновым полом и основанием для перегородок, под центральную капитальную перегородку фундамент тоже ленточный. Цоколь будет утепляться, плита отделена от цоколя полосой ЭППС 100мм. И что это за шлакоболоки по периметру? Цоколь из шлакоблоков. Змінено 14 червня 2013 користувачем ANNA_AB Посилання на коментар Поділитися на інших сайтах More sharing options...
ANNA_AB Опубліковано: 14 червня 2013 Автор Поділитись Опубліковано: 14 червня 2013 может выложите побольше информации о проекте? С удовольствием) Пока мы здесь "полемизировали" - у меня дом практически построился))) Монтаж крыши подходит к концу, сегодня-завтра начинаем крыть черепицей. На фото - монтаж стропильной конструкции. Посилання на коментар Поділитися на інших сайтах More sharing options...
Всеволодович Опубліковано: 14 червня 2013 Поділитись Опубліковано: 14 червня 2013 ЭППС А как же экология? (это я шучу). По поводу влаги, думаю - не критично. Ракушечник не разрушится, речь не об этом. Влага внутри пирога стены может привести к образованию плесени. Еще интересен график температуры ограждавющей конструкции. ИМХО он у Вас будет с хорошей ступенькой, при переходе из костробетона во второй камень. Коэф теплопроводности ракушечника составляет 0,4 Вт/ (м•°С). Это при какой плотности? Вы плотность по факту проверяли? Коэфициэнт ракушечника или кладки из него? 1 Посилання на коментар Поділитися на інших сайтах More sharing options...
AndyAntonov Опубліковано: 14 червня 2013 Поділитись Опубліковано: 14 червня 2013 Влага внутри пирога стены может привести к образованию плесени. Это будет только в случае холодных стен. При R=3 точку росы внутри ждать устанете. 3 Посилання на коментар Поділитися на інших сайтах More sharing options...
Рекомендовані повідомлення
Створіть акаунт або увійдіть у нього для коментування
Ви маєте бути користувачем, щоб залишити коментар
Створити акаунт
Зареєструйтеся для отримання акаунта. Це просто!
Зареєструвати акаунтУвійти
Вже зареєстровані? Увійдіть тут.
Увійти зараз