Алекс777 000 Опубліковано: 7 липня 2013 Поділитись Опубліковано: 7 липня 2013 Ув. форумчане направьте на путь правильный. Дом из газобетона D400 шириной 400 мм УДК, первый этаж выгнали и залили армопояс, сейчас ждём пока высохнет, а пока занимаюсь подготовкой плит перекрытия. Так вот возникла мысль внутреннею несущую стену возвести из газобетонна ширинной 200 мм... Достаточно ли этого для несущей способности для крыши? И вообще имеет ли такой вариант право на жизнь? Посилання на коментар Поділитися на інших сайтах More sharing options...
Drosselbeere Опубліковано: 7 липня 2013 Поділитись Опубліковано: 7 липня 2013 Достаточно ли этого для несущей способности для крыши возможно, но мало инфы для точного ответа Посилання на коментар Поділитися на інших сайтах More sharing options...
Алекс777 000 Опубліковано: 7 липня 2013 Автор Поділитись Опубліковано: 7 липня 2013 возможно, но мало инфы для точного ответа Какая информация нужна? Спрашивайте. Посилання на коментар Поділитися на інших сайтах More sharing options...
Drosselbeere Опубліковано: 7 липня 2013 Поділитись Опубліковано: 7 липня 2013 нужен разрез, план кровли, если есть стропилка то тоже, регион строительства, материал покрытия Посилання на коментар Поділитися на інших сайтах More sharing options...
Алекс777 000 Опубліковано: 8 липня 2013 Автор Поділитись Опубліковано: 8 липня 2013 нужен разрез, план кровли, если есть стропилка то тоже, регион строительства, материал покрытия Регион Донецкая область, материал - битумная черепица, стропилки пока нет, крыша 4-х скатная . Посилання на коментар Поділитися на інших сайтах More sharing options...
InSAn Опубліковано: 8 липня 2013 Поділитись Опубліковано: 8 липня 2013 Достаточно ли этого для несущей способности для крыши? стропилки пока нет Без плана стропилки ответа быть не может. ИМХО. Посилання на коментар Поділитися на інших сайтах More sharing options...
tischa Опубліковано: 8 липня 2013 Поділитись Опубліковано: 8 липня 2013 Ув. форумчане направьте на путь правильный. Дом из газобетона D400 шириной 400 мм УДК, первый этаж выгнали и залили армопояс, сейчас ждём пока высохнет, а пока занимаюсь подготовкой плит перекрытия. Так вот возникла мысль внутреннею несущую стену возвести из газобетонна ширинной 200 мм... Достаточно ли этого для несущей способности для крыши? И вообще имеет ли такой вариант право на жизнь? При заливки армопоясов, без проблем, но блоки должны плотностью не менее D600. я свой домик в 2 эт построил весь шириной 200мм. Но есть одно но - правильность монтажа стропил. В моем варианте крышу я делал сам все дерево зарезал, и стягивал болтами. А наемные бригады этим заморачиватся не будут, максимум крепеж для стропилки так, что вам решать... Посилання на коментар Поділитися на інших сайтах More sharing options...
ПЛАСТИК Опубліковано: 8 липня 2013 Поділитись Опубліковано: 8 липня 2013 Помимо нагрузок на эти несущие стены, нужно учитывать раскладку плит чтобы было должное опирание. Так что думаеться мне что 200 маловато Посилання на коментар Поділитися на інших сайтах More sharing options...
проФФесор Опубліковано: 8 липня 2013 Поділитись Опубліковано: 8 липня 2013 но блоки должны плотностью не менее D600 D600 у пенобетона может быть В1,5 или В2,0 в лучшем случае. у D400 автоклавного газобетона может быть В2,0 и В2,5. я к тому что не нужно оценивать несущую способность только по плотности. Посилання на коментар Поділитися на інших сайтах More sharing options...
tischa Опубліковано: 8 липня 2013 Поділитись Опубліковано: 8 липня 2013 D600 у пенобетона может быть В1,5 или В2,0 в лучшем случае. у D400 автоклавного газобетона может быть В2,0 и В2,5. я к тому что не нужно оценивать несущую способность только по плотности. Не спорю, плотность не единый показатель несущей способности. Если у человека возможности зделать стену потолще нет, как вариант уменьшить или вобще убрать с ее нагрузку поставив крышу на деревьяные столбы Посилання на коментар Поділитися на інших сайтах More sharing options...
Алекс777 000 Опубліковано: 8 липня 2013 Автор Поділитись Опубліковано: 8 липня 2013 Без плана стропилки ответа быть не может. ИМХО. А возможен ли вариант что ПЛАН СТРОПИЛКИ подогнать под существующую ситуацию? А наемные бригады этим заморачиватся не будут, максимум крепеж для стропилки Бригада знакомая и отличная, так что делает всё как им говоришь:D. Помимо нагрузок на эти несущие стены, нужно учитывать раскладку плит чтобы было должное опирание. Так что думаеться мне что 200 маловато На втором этаже плит не будет. Если у человека возможности зделать стену потолще нет В целом на этой заморочке экономия 4-х палет а это 3000 грн. Если же вариантов нет то тогда конечно буду ложить 400 мм Посилання на коментар Поділитися на інших сайтах More sharing options...
tischa Опубліковано: 8 липня 2013 Поділитись Опубліковано: 8 липня 2013 Из личного опыта скажу, что если даже 2-эт летний вариант то 200мм газобетона не спасет Вас от палящего июльского солнца, по любом надо дополнительное утепление, а утепление газобетона это сложная задача. Я свой маленький домик слепил D600 200мм толщиной теперь весь озадаченый, как правильно утеплить Посилання на коментар Поділитися на інших сайтах More sharing options...
Алекс777 000 Опубліковано: 8 липня 2013 Автор Поділитись Опубліковано: 8 липня 2013 что если даже 2-эт летний вариант то 200мм газобетона не спасет Вас от палящего июльского солнца Вы не правильно поняли из шапки темы )))) вопрос стоит о внутреннем несущем простенке, наружные стены останутся 400 мм Посилання на коментар Поділитися на інших сайтах More sharing options...
tischa Опубліковано: 8 липня 2013 Поділитись Опубліковано: 8 липня 2013 Простенок по любому выдержит если крыша не будет гулять Посилання на коментар Поділитися на інших сайтах More sharing options...
Термен Опубліковано: 8 липня 2013 Поділитись Опубліковано: 8 липня 2013 Ув. форумчане направьте на путь правильный. Дом из газобетона D400 шириной 400 мм УДК, первый этаж выгнали и залили армопояс, сейчас ждём пока высохнет, а пока занимаюсь подготовкой плит перекрытия. Так вот возникла мысль внутреннею несущую стену возвести из газобетонна ширинной 200 мм... Достаточно ли этого для несущей способности для крыши? И вообще имеет ли такой вариант право на жизнь? Раскладку балок (в поперечном и продольном расположении) перекрытия должен ОБЯЗАТЕЛЬНО сделать конструктор. Есть понятие "прогиб" балки. если эту проблему убрать правильно рассчитанными размерами балок и стропил,тогда ваш простенок не будет брать на себя общую нагрузку всей крыши и армапояса 1-2 этажа хватит на перераспределение всей нагрузки от крыши. 1 Посилання на коментар Поділитися на інших сайтах More sharing options...
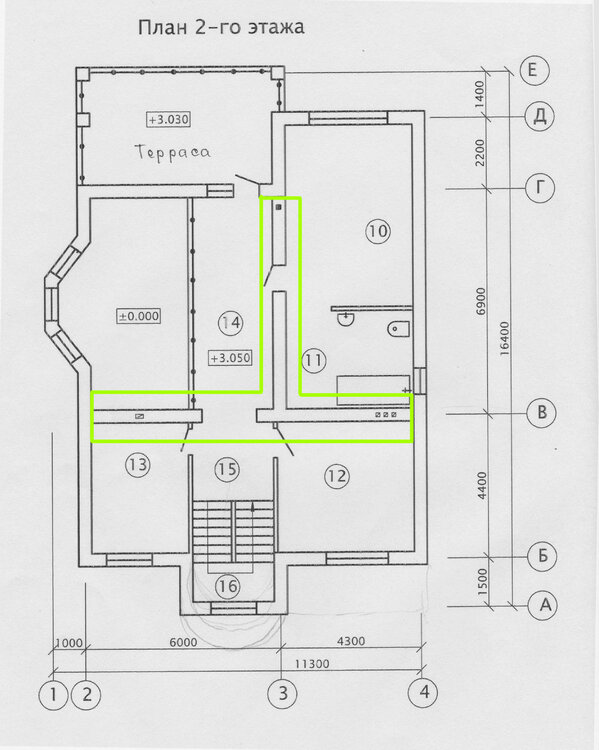
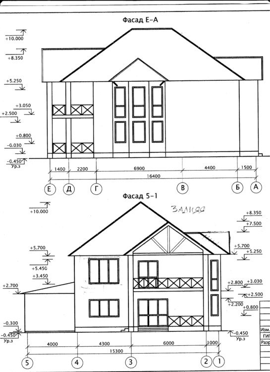
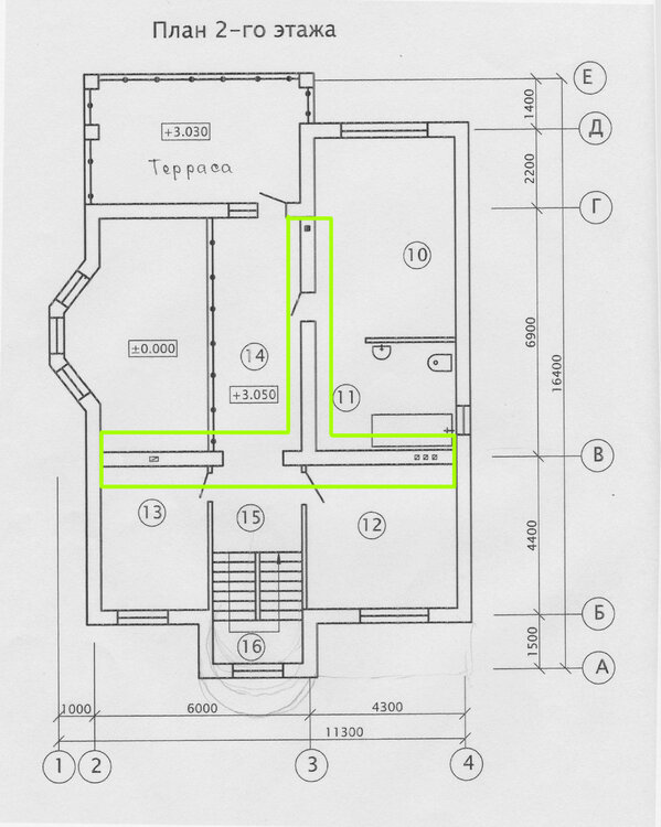
Drosselbeere Опубліковано: 8 липня 2013 Поділитись Опубліковано: 8 липня 2013 Алекс777 000, стена 200 может быть, просто есть некоторые нюансы с вязаные с тем же перекрытием, кровлей, высотой стены. я просил разрез, а вы дали фасад. Посилання на коментар Поділитися на інших сайтах More sharing options...
vova49805kk Опубліковано: 8 липня 2013 Поділитись Опубліковано: 8 липня 2013 Не парьтесь-у меня таже ситуация была.200 мм мало .Сделал блоком 300мм саме оно.У меня дом из 400мм блока .на 2 этаже на несущую стену опирались балки перекрытия этажа + коньковая балка.в моём случае делать меньше 300мм не разумно было. Посилання на коментар Поділитися на інших сайтах More sharing options...
Рекомендовані повідомлення
Створіть акаунт або увійдіть у нього для коментування
Ви маєте бути користувачем, щоб залишити коментар
Створити акаунт
Зареєструйтеся для отримання акаунта. Це просто!
Зареєструвати акаунтУвійти
Вже зареєстровані? Увійдіть тут.
Увійти зараз