troll_9000 Опубліковано: 6 серпня 2013 Поділитись Опубліковано: 6 серпня 2013 Что такое мультибоксы и будут ли они полноценной заменой смесительному колектору? коробочка с двумя выводами. В них коннектится подача и обратка. Задаете температуру обратки (к примеру, 30 градусов). Если температура обратки 35, то обратка прижимается (принцип термоголовки на радиаторе). Циркуляции нет, обратка остывает, коробочка опять открывает обртку... Полноценной заменой не будут (из-за дискретной работы), но в санузле для комфорта можно ставить (экономия бюджета по сравнению с коллектором и подмесом) А как бы вы сделали разводку? Тройниковую Упонором или ТЕСЕ. Если бы делал не я, а под моим чутким руководством, то тогда ТЕСЕ. ИМХО Посилання на коментар Поділитися на інших сайтах More sharing options...
oleg_ Опубліковано: 17 вересня 2013 Автор Поділитись Опубліковано: 17 вересня 2013 (змінено) Ну вот у меня, надеюсь, что-то уже сдвигается с мертвой точки. Итак, решено делать отопление, воду и канализацию своими силами (элементарный монтаж) при участии специалиста (обвязка, прессовка, пайка, сварка и т.д. что понадобится). Пока делаю котельню и 2й этаж. 1й и 3й - в неопределенном радужном будущем. Стоит вопрос котла. В целом систему планирую такую - Одноконтурный котел, напольный (чугун или сталь)+ бойлер косвенник литров на 160-200. Дальше на каждый этаж по ветке (стояки)+контур ТП на каждый этаж. Система отопления на 2м этаже будет 2-х трубная, лучевая. 4 радиатора, ТП - около 16-18 м2. Общая площадь дома около 260 м2. Но это с гаражем, тамбуром, неотапливаемым балконом и т.п. помещениями которые не требуют нагрева, как в жилых. Ориентировочный объем - 650-700 м3. Дом относительно утеплен - колодязная кладка кирпичем+"пеноизол" в колодцы+облицовочный силикатный 6 см толщиной. По моим подсчетам должно хватить котла мощностью - 24-28 кВт. Исходя из таких параметров как - бюджет, простота, надежность, доступность, минимум электроники, и т.п. решил выбирать из отечественных. Выбор пал на Данко 24Е (стальной ТО) или Данко 25 (чугун). НО!!! их нужно подключать только к дымоходу. а мне нужна турбина. Дымоход не загильзовали вовремя (это канал в стене), отдельную трубу вдоль стены я не хочу (и технически это сложно). Проще пробить стену под турбину. Посоветуйте, пожалуйста, котел под указанные выше требования и бойлер заодно. Змінено 17 вересня 2013 користувачем oleg_ Посилання на коментар Поділитися на інших сайтах More sharing options...
oleg_ Опубліковано: 18 вересня 2013 Автор Поділитись Опубліковано: 18 вересня 2013 Ок. ЧТо скажите по таким вариантам: BOSCH GAZ 3000 W ZS 28-2KE АТМО РОСС АОГВ-24 (30) МЕДВЕДЬ KLOM 30 + бойлер: DRAZICE OKC 160/1 M2 (комб) DRAZICE OKC 160 NTR/НV (косв) Посилання на коментар Поділитися на інших сайтах More sharing options...
naupv Опубліковано: 18 вересня 2013 Поділитись Опубліковано: 18 вересня 2013 МЕДВЕДЬ KLOM 30 Ой трудно будет Вам его найти наверное, что-то там с Протермами тормозилки. Почему бы не рассмотреть вариант напольника со встроенным бойлером. Дымоход можно пробовать гильзовать и зашитый. Есть хорошие котлы с бойлером и турбо у Беретты teplohouse.uaprom.net/p134598-napolnyj-gazovyj-kotel.html 1 Посилання на коментар Поділитися на інших сайтах More sharing options...
oleg_ Опубліковано: 18 вересня 2013 Автор Поділитись Опубліковано: 18 вересня 2013 Ой трудно будет Вам его найти наверное, что-то там с Протермами тормозилки. Почему бы не рассмотреть вариант напольника со встроенным бойлером. Дымоход можно пробовать гильзовать и зашитый. Есть хорошие котлы с бойлером и турбо у Беретты teplohouse.uaprom.net/p134598-napolnyj-gazovyj-kotel.html спасибо за ответ. Ну данный вариант, наверное, хорош. хоть 2х контур, но чугун... но по цене не тяну. Мне надо подешевле.... намного. На счет протерма - он тоже дороговат. привел его как вариант подходящий по критериям (+турбо), но это максимум по деньгам... Сейчас склонен к РОСС. Что скажете о этих котлах? www.ross.com.ua/catalog/heat/kotls/kotls_gaz/kotls_gaz_napol/kotls_gaz_napol_stal/kotls_gaz_napol_standart.php 24 квт - 4200 грн. www.ross.com.ua/catalog/heat/kotls/kotls_gaz/kotls_gaz_napol/kotls_gaz_napol_chugun.php 30 квт - 6100 грн. Там турбу можно поставить (+700 грн), варианты чугун или сталь, цена нормальная... Если ли смысл переплатить за чугун 2000? Что скажете про Бош, я так понял он под дымоход? Загильзовать вряд-ли, там канал с кирпич. 2 этажа+над крышей дымоход. разве что трубой диаметром до 100 мм... но нужно 125 для котла. да и карман там сделан минимальный, не так как надо... короче просто вытяжка будет. с турбой меньше головняка... хоть и энергозависимость... Посилання на коментар Поділитися на інших сайтах More sharing options...
naupv Опубліковано: 18 вересня 2013 Поділитись Опубліковано: 18 вересня 2013 А настенник с бойлером на 30 Квт? 1 Посилання на коментар Поділитися на інших сайтах More sharing options...
oleg_ Опубліковано: 18 вересня 2013 Автор Поділитись Опубліковано: 18 вересня 2013 А настенник с бойлером на 30 Квт? какой именно? из каких соображений? Посилання на коментар Поділитися на інших сайтах More sharing options...
Анатолий62 Опубліковано: 18 вересня 2013 Поділитись Опубліковано: 18 вересня 2013 Сейчас склонен к РОСС. Что скажете о этих котлах? Можно... Но за небольшую доплату можно подумать и об этом:www.termet.com.pl/ru/produkty/gazowe_zeliwne_kotly_co/jednofunkcyjne/TermoComfort_NB_4V/ ставим турбонасадку с того-же Росс.... 1 Посилання на коментар Поділитися на інших сайтах More sharing options...
oleg_ Опубліковано: 18 вересня 2013 Автор Поділитись Опубліковано: 18 вересня 2013 Можно... Но за небольшую доплату можно подумать и об этом:www.termet.com.pl/ru/produkty/gazowe_zeliwne_kotly_co/jednofunkcyjne/TermoComfort_NB_4V/ ставим турбонасадку с того-же Росс.... спасибо. В чем сила Термета? Разница в 2500 грн (то что я пока увидел бегло) с 30 квт Росс. что то знакомое, у отца колонка вроде была такая.... Посилання на коментар Поділитися на інших сайтах More sharing options...
naupv Опубліковано: 19 вересня 2013 Поділитись Опубліковано: 19 вересня 2013 какой именно? Любой на Ваш вкус, только я бы выбирал с бойлером 60л. из каких соображений? Потому что у Вас дом 250м/кв, и не уверен, что теплопотери будут колоссальные, такой котел устанавливается без всякого гемора, к тому же у всех производителей есть турбо модели. 1 Посилання на коментар Поділитися на інших сайтах More sharing options...
oleg_ Опубліковано: 19 вересня 2013 Автор Поділитись Опубліковано: 19 вересня 2013 Любой на Ваш вкус, только я бы выбирал с бойлером 60л. Потому что у Вас дом 250м/кв, и не уверен, что теплопотери будут колоссальные, такой котел устанавливается без всякого гемора, к тому же у всех производителей есть турбо модели. А не маловато будет 60л? Я прикидывал что мне понадобиться 120-180л У меня главная проблема - реализовать все через турбину, которая высоко (котельня в полуподвале). Напольный котел я могу поставить на подиум, сварю из металла... И все же, если не трудно, можете эти модели указать )) а то лажу по сайтам, фильтрую... или настенники, но по 30-40 кг, импортные, или что-то уж очень дорогое. P.S. (ссылка устарела) дороговат... но возможно оправдано? интересно какой ТО в нем? что скажите если сравнить с РОСС, скажем чугун. разница 2000. Посилання на коментар Поділитися на інших сайтах More sharing options...
naupv Опубліковано: 19 вересня 2013 Поділитись Опубліковано: 19 вересня 2013 А не маловато будет 60л? Любой бойлер подбирается так, что бы котел "вытягивал" нагрев воды при длительном водопотреблении, т.е. в проточном режиме. В таком режиме нет разницы, что 160, что 60л. Плюс в большой емкости, это больший запас горячей воды на т.н. старте при водопотреблении, котел реже включается на догрев. Напольный котел я могу поставить на подиум, сварю из металла... Что-то уже вообще ничего не понятно, то нужен турбо котел, то напольный на подиуме. И котельная оказывается в подвале. Наилучший вариант дымоходный котел, турбоприставка росс, загильзованный дымоход Кстати это и есть Беретта со встроенным бойлером. teplohouse.uaprom.net/p143423-nastennyj-gazovyj-kotel.html teplohouse.uaprom.net/p2400508-nastennyj-gazovyj-kotel.html baxi.ua/ua/page/baxi-products/baxi-boilers/nuvola3-b40.html (ссылка устарела) и много другого 1 Посилання на коментар Поділитися на інших сайтах More sharing options...
oleg_ Опубліковано: 19 вересня 2013 Автор Поділитись Опубліковано: 19 вересня 2013 Любой бойлер подбирается так, что бы котел "вытягивал" нагрев воды при длительном водопотреблении, т.е. в проточном режиме. В таком режиме нет разницы, что 160, что 60л. Плюс в большой емкости, это больший запас горячей воды на т.н. старте при водопотреблении, котел реже включается на догрев. Что-то уже вообще ничего не понятно, то нужен турбо котел, то напольный на подиуме. И котельная оказывается в подвале. Наилучший вариант дымоходный котел, турбоприставка росс, загильзованный дымоход [ATTACH]308219[/ATTACH] [ATTACH]308220[/ATTACH] Кстати это и есть Беретта со встроенным бойлером. ну имею ввиду, что если я на пол поставлю котел, то турбоприставка упрется в фунд. блок и выйдет в землю )) т.е. нужно будет приподнять котел к потолку ближе... по бойлеру - ну и я о том же.. 60 думаю будет маловато именно по объему. ну а по мощности думаю котел 24 квт потянет 160л в нормальном (для себя) и комфортном (для меня) режиме... По рукаву - Гениально!!! ))) и, кстати, вариант... Ну канал у меня в принципе ровный, и швы каменщики замазывали так, что б не было заусенец... размер где-то 120х240. Ну а что за материал? какова толщина? не порвется (надорвется) ли при монтаже, во время эксплуатации? Сейчас подготовлю схему канала в разрезе... есть момент по карману для конденсата.... P.S. по сслыкам - ну это ж по сути 2-х контурные навесные. Со всеми вытекающими слабыми (ИМХО) сторонами - теплообменник, наличие электроники, необходимость в сервисе регулярном (специалиста), срок службы и т.д. Разве что они под турбину... Но я хотел бы попроще и за счет этого понадежнее. что б минимум вмешательств в обслуживание. Вот вариант с РОСС + турбо приставка (либо рукав в дымоход)+бойлер косвенник - дают мне такую возможность (имхо). Я конечно могу заблуждаться в вышесказанном, я не спец, потому и обращаюсь к специалистам... но пока моя точка зрения такова. Посилання на коментар Поділитися на інших сайтах More sharing options...
troll_9000 Опубліковано: 19 вересня 2013 Поділитись Опубліковано: 19 вересня 2013 по бойлеру - ну и я о том же.. 60 думаю будет маловато именно по объему. ну а по мощности думаю котел 24 квт потянет Тут не думать надо, а считать и смотреть 1. Считается максимальный расход воды в доме, по нему подбирается косвенник, который в проточном режиме дает Ваше количество воды с нужной Вам температурой (обычно 55 градусов) 2. сравниваете мощность котла (24 кВт) и мощность теплообменника бойлера. 3. выбираете нужный бойлер Посилання на коментар Поділитися на інших сайтах More sharing options...
oleg_ Опубліковано: 19 вересня 2013 Автор Поділитись Опубліковано: 19 вересня 2013 Тут не думать надо, а считать и смотреть 1. Считается максимальный расход воды в доме, по нему подбирается косвенник, который в проточном режиме дает Ваше количество воды с нужной Вам температурой (обычно 55 градусов) 2. сравниваете мощность котла (24 кВт) и мощность теплообменника бойлера. 3. выбираете нужный бойлер ну по моим подсчетам по расходу - от 100. Но читал, что человек поставил было себе то ли 100, то ли 120 и набрав ванну ему не хватило теплой воды... По-этому я думаю что мне нужен бойлер от 150 л. По мощности теплообменника надо посмотреть... Посилання на коментар Поділитися на інших сайтах More sharing options...
troll_9000 Опубліковано: 19 вересня 2013 Поділитись Опубліковано: 19 вересня 2013 Но читал, что человек поставил было себе то ли 100, то ли 120 и набрав ванну ему не хватило теплой воды... Ну вот - в бойлере 120 литров, а в ванне - 400 И, наверное, электробойлер был Посилання на коментар Поділитися на інших сайтах More sharing options...
naupv Опубліковано: 19 вересня 2013 Поділитись Опубліковано: 19 вересня 2013 ну это ж по сути 2-х контурные навесные. Со всеми вытекающими слабыми (ИМХО) сторонами - теплообменник, Нет, нет и нет. Вы невнимательно относитесь к поступающей информации, двухконтурный котел и сбойлером совершенно разные понятия по ГВС. Ваш знакомый не смог набрать ванну из-за не правильного подбора бойлера: теплообменник оного сильнее по мощ, котла, вот и не успевал котел при длительном разборе прогревать бойлер. С настенником со встроенным бойлером ванная набирается легко. Добавлено через 1 минуту (обычно 55 градусов) До хрена. Где-то читал комфорт 42-43гр. Посилання на коментар Поділитися на інших сайтах More sharing options...
oleg_ Опубліковано: 19 вересня 2013 Автор Поділитись Опубліковано: 19 вересня 2013 Да то не друг ))) в инете человек писал. я тоже вот подумал чтоу него возможно котел не поспевал.... ну ладно, с принципом понятно - бойлер должен быть приблизительно равен мощности котла. ок. по котлу - поизучаю модели. а что по рукаву для дымохода? подробнее? какая гарантия на материал? срок службы и т.д. Идея сама по себе классная. а что на практике? Посилання на коментар Поділитися на інших сайтах More sharing options...
naupv Опубліковано: 19 вересня 2013 Поділитись Опубліковано: 19 вересня 2013 а что по рукаву для дымохода? Ищите поставщика в инете и узнавайте. Посилання на коментар Поділитися на інших сайтах More sharing options...
oleg_ Опубліковано: 19 вересня 2013 Автор Поділитись Опубліковано: 19 вересня 2013 Нет, нет и нет. Вы невнимательно относитесь к поступающей информации, двухконтурный котел и сбойлером совершенно разные понятия по ГВС. по рукаву - почему то подумал что вы ими занимаетесь )) по котлам по ссылкам: Там по везде так и написано - двухконтурный котел... ну и что мы имеем, 2 теплообменника, медных, да - запас воды в 60 л, скажем быстрей наберется ванная... (утрирую), но все минусы 2-х контурных остаются... минусы за счет которых 2х контурный навесной дешевле 1 контурного напольного. все же хотелось бы услышать за счет чего такое решение будет лучше чем схема - 1 контурный+бойлер, при той же цене. Посилання на коментар Поділитися на інших сайтах More sharing options...
naupv Опубліковано: 20 вересня 2013 Поділитись Опубліковано: 20 вересня 2013 схема - 1 контурный+бойлер, при той же цене. Те же яйца только в профиль:D Контур отопления + контур ГВС=большой двухконтурище. Посилання на коментар Поділитися на інших сайтах More sharing options...
oleg_ Опубліковано: 23 вересня 2013 Автор Поділитись Опубліковано: 23 вересня 2013 Господа, какие плюсы и недостатки дымохода и турбины? ЧТо предпочтительнее? Посилання на коментар Поділитися на інших сайтах More sharing options...
SON Опубліковано: 23 вересня 2013 Поділитись Опубліковано: 23 вересня 2013 Господа, какие плюсы и недостатки дымохода и турбины? ЧТо предпочтительнее? В дымоходном трохи запчастей меньше :D, в турбированных при остановке/поломке без присмотра может замерзнуть теплообменник. Посилання на коментар Поділитися на інших сайтах More sharing options...
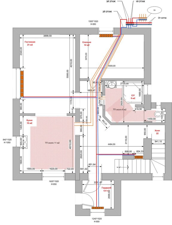
oleg_ Опубліковано: 23 вересня 2013 Автор Поділитись Опубліковано: 23 вересня 2013 В дымоходном трохи запчастей меньше :D, в турбированных при остановке/поломке без присмотра может замерзнуть теплообменник. мне что б организовать дымоход надо около 3000 грн. Турбина - до 700. да, буду зависеть от электро... но, думаю это не критично... Добавлено через 57 минут Выношу на критику и предложения схему по жилому этажу. 1 контур на этаж, труба 20 мм, ТЕСЕ. + 2 контура ТП (кухня и ванная), труба 16 мм, пока не знаю какая. Посилання на коментар Поділитися на інших сайтах More sharing options...
SON Опубліковано: 23 вересня 2013 Поділитись Опубліковано: 23 вересня 2013 Выношу на критику и предложения схему по жилому этажу. Без мощности ОП нэма шо предлагать. :D Мойка напротив окна - непрактично, понимаю, что светло, окно хозяйке придется часто драить. 1 Посилання на коментар Поділитися на інших сайтах More sharing options...
Рекомендовані повідомлення
Створіть акаунт або увійдіть у нього для коментування
Ви маєте бути користувачем, щоб залишити коментар
Створити акаунт
Зареєструйтеся для отримання акаунта. Це просто!
Зареєструвати акаунтУвійти
Вже зареєстровані? Увійдіть тут.
Увійти зараз