oleg_ Опубліковано: 24 липня 2013 Поділитись Опубліковано: 24 липня 2013 Добрый день... Вот решил понемногу разморозить свою замороженную в глубокой заморозке стройку )) Стоит вопрос организации отопления, водоснаб. и канализации дома. С 2-м и 3-м - вроде как не сложно и понятно. Отопление - вот где хаос в голове. Итак, дом, 250 м2, 3 этажа. Планирую прятать трубы в пол, под стяжку. Котел - газовый, в перспективе, возможно добавить на ТТ, + бойлер косвенного нагрева. Система со стальными радиаторами + ТП. Вопрос финансов очень критичен!!! Так как они все почти уходят на кредит (ошибка всей моей жизни(( ). Но! Это не значит,что я готов покупать самое дешевое... Так как все зальется бетоном - ориентируюсь на качественные трубы и аксессуары, что б потом не "долбить"... Изначально был склонен к Полипропилену... Сейчас мучают сомнения... Нашел монтажника, он готов разбить на этапы процесс, короче максимально пойти на компромисс ввиду проблем с финансами. Но он работает с МП, "Комап". В принципе, многое я мог бы сделать сам, но что касается ПП - тут боюсь, что отсутствие опыта в пайке может сыграть злую шутку... По МП - там надо инструмент дорогой... Подскажите, какой системе отдать предпочтение? Какие бренды по трубам посоветуете? ну и еще много вопросов в процессе дискуссии Спасибо. Посилання на коментар Поділитися на інших сайтах More sharing options...
Владимир В. Опубліковано: 24 липня 2013 Поділитись Опубліковано: 24 липня 2013 Это не значит,что я готов покупать самое дешевое... Так как все зальется бетоном - ориентируюсь на качественные трубы и аксессуары, что б потом не "долбить"... Качественные, не значит дорогие ... всё в сравнении ... разбить на этапы процесс Какие "этапы" Вы планируете ... ? Посилання на коментар Поділитися на інших сайтах More sharing options...
oleg_ Опубліковано: 24 липня 2013 Автор Поділитись Опубліковано: 24 липня 2013 А я и не писал что дорогие )) просто как бы, готов, что качественные будут стоить не дЁшеГо. Этапы - ну, например, заложить в магистраль выводы под бойлер, который будет позже... развести 1 и 2й этаж (2й жилой, цель - заселиться на 2й этаж, остальные будут потом делаться по отделке), 3й- вывести трубы, но не подключать радиаторы... 3й- законсервируется... ну и т.п. ЧТо скажите про Комап? ТЕСЕ? Посилання на коментар Поділитися на інших сайтах More sharing options...
Владимир В. Опубліковано: 24 липня 2013 Поділитись Опубліковано: 24 липня 2013 А я и не писал что дорогие )) просто как бы, готов, что качественные будут стоить не дЁшеГо. Этапы - ну, например, заложить в магистраль выводы под бойлер, который будет позже... развести 1 и 2й этаж (2й жилой, цель - заселиться на 2й этаж, остальные будут потом делаться по отделке), 3й- вывести трубы, но не подключать радиаторы... 3й- законсервируется... ну и т.п. ЧТо скажите про Комап? ТЕСЕ? ТЕСЕ ... ! В "этапах" тоже есть резервы: для первого нужно всё просчитать, определить стоимость материалов и работ и исходя из наличия финансов, ... возможно, что то оставить на следующий этап ... Но для этого нужно увидеть "картину" в целом ...! Посилання на коментар Поділитися на інших сайтах More sharing options...
oleg_ Опубліковано: 24 липня 2013 Автор Поділитись Опубліковано: 24 липня 2013 ТЕСЕ ... ! В "этапах" тоже есть резервы: для первого нужно всё просчитать, определить стоимость материалов и работ и исходя из наличия финансов, ... возможно, что то оставить на следующий этап ... Но для этого нужно увидеть "картину" в целом ...! Так и я ж про это!!! )) Посилання на коментар Поділитися на інших сайтах More sharing options...
Слободарий Опубліковано: 24 липня 2013 Поділитись Опубліковано: 24 липня 2013 Добрый день... В принципе, многое я мог бы сделать сам, но что касается ПП - тут боюсь, что отсутствие опыта в пайке может сыграть злую шутку... Спасибо. Тоже находился когда-то в таком состоянии. Помогли сантехники сосдеда, когда озвучили цену за наварить фитинг на трубу 40 в 350 грн. (Спасибо жене, что надоумила цену спросить заранее). За меньшую сумму были приобретены паяльник, ножницы, трубы и куча разных фитингов и вечер был посвящен рукоделию безделушек из ПП. Сварили с сыном "котенка" из полипропиленовых труб. Вдоволь потренировавшись фитинг был наварен, остались инструмент и навыки. Наличие надежного запорного крана на входе поможет исключить всякие злые шутки. ИМХО Посилання на коментар Поділитися на інших сайтах More sharing options...
oleg_ Опубліковано: 24 липня 2013 Автор Поділитись Опубліковано: 24 липня 2013 Наличие надежного запорного крана на входе поможет исключить всякие злые шутки. ИМХО Тут не поспоришь! )) Посилання на коментар Поділитися на інших сайтах More sharing options...
Владимир В. Опубліковано: 24 липня 2013 Поділитись Опубліковано: 24 липня 2013 Так и я ж про это!!! )) В принципе, многое я мог бы сделать сам, но что касается ПП - тут боюсь, что отсутствие опыта в пайке может сыграть злую шутку... По МП - там надо инструмент дорогой При наличии времени, быстро научитесь ... ! Что то сделает сантехник и проконсультирует как сделать остальное самому и .... процесс пошёл ... ! 1 Посилання на коментар Поділитися на інших сайтах More sharing options...
oleg_ Опубліковано: 24 липня 2013 Автор Поділитись Опубліковано: 24 липня 2013 ну... резон есть в этом. но кто из спецов захочет консультировать и что-то там помогать )) это ж их хлеб... )) вот поговорил только что с товарищем. он сам делал. МП под обжимку. плюётся сейчас, типа - лучше б спаял, ибо надежно, дешевые фиттинги, а тут все то же но дороже.... Еще сказал мне - а на хрена тебе теплые полы??? если стоит вопрос побыстрей вселиться, мол намного дороже выйдет, а смысла особо нет. ( я думал ТП в санузлах, кухне, возможно зале, ну и на 1м этаже на земле...) Типа, это у него дача, там стоит вопрос быстро нагреть ее, за пол-дня, когда он приехал, а если жить постоянно - мол, нафиг и не нужен... даже в санузе ))) я вот тоже начал почесывать затылок.... Посилання на коментар Поділитися на інших сайтах More sharing options...
Владимир В. Опубліковано: 24 липня 2013 Поділитись Опубліковано: 24 липня 2013 ..Типа, это у него дача, там стоит вопрос быстро нагреть ее, за пол-дня, когда он приехал, а если жить постоянно - мол, нафиг и не нужен... даже в санузе ))) я вот тоже начал почесывать затылок.... Поживёте с ТП немного и "затылок" скажет делать ТП ... ! но кто из спецов захочет консультировать и что-то там помогать )) это ж их хлеб... )) Хлеба всем хватит, если подумать ... Пишите координаты в лс, подумаем ... ! 1 Посилання на коментар Поділитися на інших сайтах More sharing options...
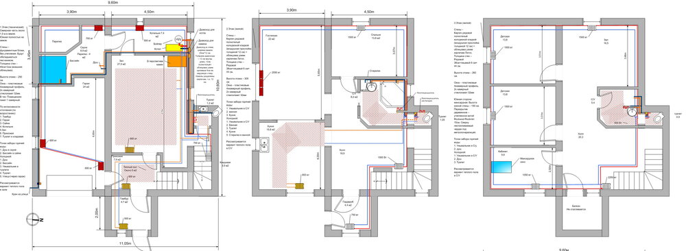
oleg_ Опубліковано: 25 липня 2013 Автор Поділитись Опубліковано: 25 липня 2013 Господа, и все таки, давайте по-конкретнее, а то все шутки-прибаутки )) ПП или МП? Какие системы (бренды)? Какие Радиаторы (бренды)? ТП - где целесообразно, где нет? В приложении - то, что я себе планировал года 4 назад... ПО кухне, если делать ТП, то там везде, кроме мебели под стенкой... Еще вопрос спецам - система ТЕСЕ Лого - что за система? можно ли ее замуровывать в стяжку? Посилання на коментар Поділитися на інших сайтах More sharing options...
Анатолий62 Опубліковано: 25 липня 2013 Поділитись Опубліковано: 25 липня 2013 ПП или МП? Uponor PEX -по стоимости будет как металлопластик ( фитингов- равна) Какие Радиаторы (бренды)? Из стали - c нижним Kermi или Calore. Grandini -Турция. ТП - где целесообразно, где нет? Весь первый этаж + санузлы. 1 Посилання на коментар Поділитися на інших сайтах More sharing options...
troll_9000 Опубліковано: 26 липня 2013 Поділитись Опубліковано: 26 липня 2013 ПП или МП? Какие системы (бренды)? Какие Радиаторы (бренды)? ТП - где целесообразно, где нет? Как для человека без опыта монтажа - порекомендую систему с натяжной гильзой. По цене - ИМХО ТЕСЕ и Голан достойны рассмотрения. Упонор Вирсбо - вроде как монтировать просто, но квалификация нужна побольше + нужно работать в чистоте (соринка в фитинге приводит к протечкам). но сама система Вирсбо мне очень нравится. По радиаторам - вроде как турки есть неплохие, ищи те по фирмам. По ТП - Анатолий62 уже дал ответ 1 Посилання на коментар Поділитися на інших сайтах More sharing options...
oleg_ Опубліковано: 26 липня 2013 Автор Поділитись Опубліковано: 26 липня 2013 Спасибо. по ТП определился. Будет 2й этаж кухня полностью, без радиатора + су. 3й су. первый - тут неясно? надо посчитать сравнить вариант с радиаторами... А пол просто пенопластом утепелить... По радиаторам - ЧТо скажите по Ромсталу? Неплохие турки - это какие бренды?? Посилання на коментар Поділитися на інших сайтах More sharing options...
Анатолий62 Опубліковано: 26 липня 2013 Поділитись Опубліковано: 26 липня 2013 По радиаторам - ЧТо скажите по Ромсталу? Неплохие турки - это какие бренды?? По Ромсталу- от них не добиться какова толщина стали... Хотя цена приятная.. А "турки" все не плохие. Выше я назвал с чем смогу помочь,ну ещё Roda 1 Посилання на коментар Поділитися на інших сайтах More sharing options...
oleg_ Опубліковано: 26 липня 2013 Автор Поділитись Опубліковано: 26 липня 2013 Упонор Вирсбо - вроде как монтировать просто, но квалификация нужна побольше + нужно работать в чистоте (соринка в фитинге приводит к протечкам). но сама система Вирсбо мне очень нравится. ЧТо за сичтема? не нашел что-то на сайте их... ЧТо за система ТЕСЕ лого??? кто знает ) Посилання на коментар Поділитися на інших сайтах More sharing options...
troll_9000 Опубліковано: 26 липня 2013 Поділитись Опубліковано: 26 липня 2013 ЧТо за сичтема? не нашел что-то на сайте их... Да как рассказать, что за система... Труба - Рех-а, на трубу одевается полиэтиленовое колечко, труба с колечком расширяется, потом в трубу быстро вставляется фитинг, и ждем-с. Через пару часов можно давать давление (точное время не помню, есть в инструкции по монтажу). Но - еще раз уточню - нужна квалификация (опыт). На стенде просто монтировать, а вот в реальных условиях... ТЕСЕ Лого - в фитинг просто вставляете трубу, там что-то щелкает, и все - соединение готово. из минусов - цена, размер фитингов (поболе будут) и необходимость в специальном калибраторе. И еще диаметр - 16 и 20, больше нет вроде. Чем хороша ТЕСЕ - есть латунные фитинги и ППСУ, если использовать последние, то можно несколько удешевить систему. Но - латунные многоразовые - если ошибка, то можно нагреть феном и разобрать. Голан - те же яйца, только фитинги только латунь, но труба Рех-а (у ТЕСЕ Рех-с), и она мягче, чем Рех-с (легче мутить проблемные места) Вроде как-то так 2 Посилання на коментар Поділитися на інших сайтах More sharing options...
oleg_ Опубліковано: 26 липня 2013 Автор Поділитись Опубліковано: 26 липня 2013 Да как рассказать, что за система... Труба - Рех-а, на трубу одевается полиэтиленовое колечко, труба с колечком расширяется, потом в трубу быстро вставляется фитинг, и ждем-с. Через пару часов можно давать давление (точное время не помню, есть в инструкции по монтажу). Но - еще раз уточню - нужна квалификация (опыт). На стенде просто монтировать, а вот в реальных условиях... ТЕСЕ Лого - в фитинг просто вставляете трубу, там что-то щелкает, и все - соединение готово. из минусов - цена, размер фитингов (поболе будут) и необходимость в специальном калибраторе. И еще диаметр - 16 и 20, больше нет вроде. Чем хороша ТЕСЕ - есть латунные фитинги и ППСУ, если использовать последние, то можно несколько удешевить систему. Но - латунные многоразовые - если ошибка, то можно нагреть феном и разобрать. Голан - те же яйца, только фитинги только латунь, но труба Рех-а (у ТЕСЕ Рех-с), и она мягче, чем Рех-с (легче мутить проблемные места) Вроде как-то так Спасибо, там просто на сайте ТЕСЕ, монтаж лого идет типа без сложного инструмента. ключ и все. я к тому, что вроде как можно самому замутить.... или ошибаюсь? посчитав цену оренды инструмента и разницу за более дорогую лого - можно сделать вывод... то что толстые фитинги - думаю не беда. Вот вопрос ее можно заливать стяжкой? Посилання на коментар Поділитися на інших сайтах More sharing options...
troll_9000 Опубліковано: 26 липня 2013 Поділитись Опубліковано: 26 липня 2013 Вот вопрос ее можно заливать стяжкой? Написано, что можно. Но я ее ни разу не монтировал и не мониторил в эксплуатации. Да и интуиция подсказывает, что лучше колечко натянуть, а не доверять непонятной магии, которая скрыта в фитинге. там просто на сайте ТЕСЕ, монтаж лого идет типа без сложного инструмента. ключ и все А про калибратор специальный молчат? Там трубу отрезать надо, прокалибровать специальным вещью, а потом уже в фитинг совать. Его аренда тоже денег стоит Посилання на коментар Поділитися на інших сайтах More sharing options...
Сергей 31 Опубліковано: 26 липня 2013 Поділитись Опубліковано: 26 липня 2013 ЧТо за система ТЕСЕ лого??? кто знает ) Забыть, как страшный сон. ТЕСЕ отличная труба, но лого, это как из пословицы " в семье не без урода". Посилання на коментар Поділитися на інших сайтах More sharing options...
максим7 Опубліковано: 6 серпня 2013 Поділитись Опубліковано: 6 серпня 2013 И мне нужен совет специалистов по отоплению. Ситуация вообщем такая: вот в этом доме (планировка прилагаеться) нужно сделать отопление. И возникли вот такие вопросы: 1 Сделать не дорого, поэтому скорее всего будет ппр . дешего на столько что у заказчика был вопрос можно ли использовать старый насос с гравитационки. 2 На первом этаже пока только в санузле сделать теплый пол 7кв (через термостат напрямую к СО подключить что-ли) НО так чтобы со временем можно было подключить и кухню с прихожими (тп заштрихован).Посему нужен смесительный колектор? 3 Батарей много и два этажа и еще тп, котловой как по мне не справиться, значит на второй и на первый этаж по насосу вопрос как это все увязать, напрямую последовательно или через гидрострелку. 4 Как зделать разводку? поставить по колектору на каждом этаже для батарей? тогда удобней металопластиком работать. Посилання на коментар Поділитися на інших сайтах More sharing options...
troll_9000 Опубліковано: 6 серпня 2013 Поділитись Опубліковано: 6 серпня 2013 1 Сделать не дорого, поэтому скорее всего будет ппр . дешего на столько что у заказчика был вопрос можно ли использовать старый насос с гравитационки. Бегите оттуда. 2 На первом этаже пока только в санузле сделать теплый пол 7кв (через термостат напрямую к СО подключить что-ли) НО так чтобы со временем можно было подключить и кухню с прихожими (тп заштрихован).Посему нужен смесительный колектор? на каждый контур свой мультибокс. Но все равно, бегите 3 Батарей много и два этажа и еще тп, котловой как по мне не справиться, значит на второй и на первый этаж по насосу вопрос как это все увязать, напрямую последовательно или через гидрострелку. Бегите оттуда. Эти параметры не "как по мне", а рассчитываются. Если Вы пока не владеете магией цифр, бегите оттуда 4 Как зделать разводку? Теперь уже точно бегите. Очень бюджетные объекты подразумевают вздрючивание монтажников за мелочи, но по-врослому. Если Вы не знаете, как зделать разводку, то на этот объект вход рубль, выхода нет удачи 1 Посилання на коментар Поділитися на інших сайтах More sharing options...
murava Опубліковано: 6 серпня 2013 Поділитись Опубліковано: 6 серпня 2013 ....бегите оттуда ... Вот так, легко и непринуждённо, гасим восходящие звёзды.... 1 Посилання на коментар Поділитися на інших сайтах More sharing options...
troll_9000 Опубліковано: 6 серпня 2013 Поділитись Опубліковано: 6 серпня 2013 Дядьку, ну хоч ви не підйожувайте Посилання на коментар Поділитися на інших сайтах More sharing options...
максим7 Опубліковано: 6 серпня 2013 Поділитись Опубліковано: 6 серпня 2013 Спасибо, Троль, я понял ваш ответ. Конечно вы правы на все 100%. В этой ситуации лучший совет -" не знаеш броду, не лезь в воду". Что такое мультибоксы и будут ли они полноценной заменой смесительному колектору? А как бы вы сделали разводку? Посилання на коментар Поділитися на інших сайтах More sharing options...
Рекомендовані повідомлення
Створіть акаунт або увійдіть у нього для коментування
Ви маєте бути користувачем, щоб залишити коментар
Створити акаунт
Зареєструйтеся для отримання акаунта. Це просто!
Зареєструвати акаунтУвійти
Вже зареєстровані? Увійдіть тут.
Увійти зараз