.Андрей Опубліковано: 16 жовтня 2013 Поділитись Опубліковано: 16 жовтня 2013 Здравствуйте, уважаемые форумчане. Кратко о моем затруднении: собираюсь строить простой дом 10х10, 2 этажа, по поводу подвала еще не определился. Проект будет и он будет индивидуальный. Все вроде бы до этого места не сложно, но обязательно хочу в доме печь. Одна ее часть выходит в кухню, эта часть для обогрева и для варки, вторая часть выходит в комнату через стену, эта часть будет лежанкой. И вот я думаю к кому мне первому идти - к архитектору либо к печнику? Надо фундамент под печкой или нет? Какая конструкция будет в случае строительства подвала? В общем на данном этапе я ежик в тумане. Прошу совета опытных товарищей. Заранее спасибо. Посилання на коментар Поділитися на інших сайтах More sharing options...
ДОКС Опубліковано: 16 жовтня 2013 Поділитись Опубліковано: 16 жовтня 2013 И вот я думаю к кому мне первому идти - к архитектору либо к печнику? к архитектору Надо фундамент под печкой или нет? к архитектору Какая конструкция будет в случае строительства подвала? к архитектору Посоветуйте с чего начать рисовать проект в ВУЗ надо идти для начала на профильный факультет В общем на данном этапе я ежик в тумане. самый любимый мультик... а вообще, идея с печью правильна... и реализуется эта идея без особых затруднений... 1 Посилання на коментар Поділитися на інших сайтах More sharing options...
.Андрей Опубліковано: 16 жовтня 2013 Автор Поділитись Опубліковано: 16 жовтня 2013 ДОКС, спасибо за ответ. В ВУЗ не пойду , уже один за плечами есть совсем не по строительной части. Рисовать проект конечно будет специально обученный человек, каждый должен делать свое. Продолжаю серию вопросов дилетанта: Печка стоит на первом этаже, примерно посередине. В случае, если первый этаж перекрывать плитами - как проводить печную трубу? Выбивать отверстие в плите перекрытия? Какое это окажет влияние на несущую способность плиты? Посилання на коментар Поділитися на інших сайтах More sharing options...
Andrei constructor Опубліковано: 16 жовтня 2013 Поділитись Опубліковано: 16 жовтня 2013 Печка стоит на первом этаже, примерно посередине. В случае, если первый этаж перекрывать плитами - как проводить печную трубу? Выбивать отверстие в плите перекрытия? Какое это окажет влияние на несущую способность плиты? Большую трубу можно обойти монолитным участком перекрытия Посилання на коментар Поділитися на інших сайтах More sharing options...
ДОКС Опубліковано: 16 жовтня 2013 Поділитись Опубліковано: 16 жовтня 2013 В случае, если первый этаж перекрывать плитами - как проводить печную трубу? не перекрывать плитами. 1 Посилання на коментар Поділитися на інших сайтах More sharing options...
dafi Опубліковано: 16 жовтня 2013 Поділитись Опубліковано: 16 жовтня 2013 .Андрей, на данный момент никаких сложностей не вижу. Набросайте сами "проектик" с планировкой и выставляйте на всеобщее обозрение. Когда точно определитесь "что" и "куда", то только затем идите к специально обученному человеку. Посилання на коментар Поділитися на інших сайтах More sharing options...
.Андрей Опубліковано: 16 жовтня 2013 Автор Поділитись Опубліковано: 16 жовтня 2013 не перекрывать плитами. Вот после таких ответов рука сама буквально тянется к кнопке Спасибо! И ничтоже сумняшеся я эту кнопку таки нажму ;). Даже страшно задавать встречный вопрос, логически вытекающий из этого ответа :D Посилання на коментар Поділитися на інших сайтах More sharing options...
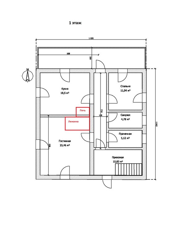
.Андрей Опубліковано: 16 жовтня 2013 Автор Поділитись Опубліковано: 16 жовтня 2013 .Андрей, на данный момент никаких сложностей не вижу. Набросайте сами "проектик" с планировкой и выставляйте на всеобщее обозрение. Когда точно определитесь "что" и "куда", то только затем идите к специально обученному человеку. Вот мой "шедевр". Как говорил Задорнов - архитектор расстрелян. Дом 10х10. По поводу подвала еще думаю, если впишусь по финансам, то обязательно сделаю, поэтому котельную предполагаю в подвале. На рисунке вход с юга, скорее всего в жизни будет со стороны севера. Со стороны двора веранда на уровне пола 1-го этажа. Буду благодарен за конструктивную критику. Посилання на коментар Поділитися на інших сайтах More sharing options...
dafi Опубліковано: 16 жовтня 2013 Поділитись Опубліковано: 16 жовтня 2013 Вход с улицы со стороны спальни или прихожей ? Что с той, что с той стороны не практично. Посилання на коментар Поділитися на інших сайтах More sharing options...
Vikki Опубліковано: 16 жовтня 2013 Поділитись Опубліковано: 16 жовтня 2013 пусть каждый член вашей семьи сядет и напишет свои пожелания. сведите пожелания вместе и систематизируйте. уберите из пожеланий то, что явно находится за рамками бюджета (предполагаемого). напишите список требований к дому исходя из этого сведенного списка и расставьте в нем приоритеты по какой-либо шкале произвольной. приоритеты дают архитектору хоть какую-то возможность "свободного хода" в ситуации жесткого тз. вышлите архитектору. это не так просто на самом деле как может показаться - создать этот список. но с ним и архитектору и вам будет гораздо легче. если ваш дом кружится вокруг печки, то и поставьте этому требованию приоритет 1. Посилання на коментар Поділитися на інших сайтах More sharing options...
Всеволодович Опубліковано: 16 жовтня 2013 Поділитись Опубліковано: 16 жовтня 2013 Буду благодарен за конструктивную критику. Лестница сразу при входе не совсем практично. Первым делом в плохую погоду будете растаскивать грязь по дому. Во вторых зимой бегать через относительно холодную прихожую (особенно детям), тоже не очень. Посилання на коментар Поділитися на інших сайтах More sharing options...
ДОКС Опубліковано: 17 жовтня 2013 Поділитись Опубліковано: 17 жовтня 2013 Вот мой "шедевр". Как говорил Задорнов - архитектор расстрелян. я бы его ещё и "колесовал"....))) что за коридор на 1-ом? купейный вагон? больше и говорить не о чем... 1 Посилання на коментар Поділитися на інших сайтах More sharing options...
.Андрей Опубліковано: 17 жовтня 2013 Автор Поділитись Опубліковано: 17 жовтня 2013 Вход с улицы со стороны спальни или прихожей ? Что с той, что с той стороны не практично. Не практично со стороны прихожей? Почему? Откуда тогда входить, если не с прихожей? Посилання на коментар Поділитися на інших сайтах More sharing options...
Andrei constructor Опубліковано: 17 жовтня 2013 Поділитись Опубліковано: 17 жовтня 2013 Лестница сразу при входе не совсем практично. Первым делом в плохую погоду будете растаскивать грязь по дому. Практично, если будет тамбур и переобуваться будут там. И даже удобно, вы вошли в дом и сразу можете выбрать подниматься на второй этаж или остаться на первом. ТС, предусмотрите тамбур на входе. Посилання на коментар Поділитися на інших сайтах More sharing options...
.Андрей Опубліковано: 17 жовтня 2013 Автор Поділитись Опубліковано: 17 жовтня 2013 Лестница сразу при входе не совсем практично. Первым делом в плохую погоду будете растаскивать грязь по дому. Во вторых зимой бегать через относительно холодную прихожую (особенно детям), тоже не очень. Вы правильно описали недостатки такого варианта, но скорее всего первое время будем жить на 1этаже, отсюда я руководствовался следующим: - хочу, чтобы 1 этаж был замкнутым тепловым контуром - когда строители будут доделывать 2 этаж, то они будут ходить и носить стройматериалы без захода в зону 1-го этажа Добавлено через 3 минуты Большую трубу можно обойти монолитным участком перекрытия Т.е. возможен вариант когда часть перекрытия будет плитами, а часть монолитом? Посилання на коментар Поділитися на інших сайтах More sharing options...
Kysil Опубліковано: 17 жовтня 2013 Поділитись Опубліковано: 17 жовтня 2013 Буду благодарен за конструктивную критику. Оргія довгих вузьких коридорів. :D Ще й вікна на фасадах хаотично розкидані. Цікаво, ви інші теми читаєте? Наприклад, ось цю: www.stroimdom.com.ua/forum/showthread.php?t=140058 або цю: www.stroimdom.com.ua/forum/showthread.php?t=139145 Подивіться проекти, які я коментував. Площа будинків менша, ніж у вас: 156 кв. м (6 кімнат) і 116 кв. м (5 кімнат). Зверніть увагу на планування. Посилання на коментар Поділитися на інших сайтах More sharing options...
Andrei constructor Опубліковано: 17 жовтня 2013 Поділитись Опубліковано: 17 жовтня 2013 Т.е. возможен вариант когда часть перекрытия будет плитами, а часть монолитом? Да, так часто и делают. Посилання на коментар Поділитися на інших сайтах More sharing options...
Hover Опубліковано: 17 жовтня 2013 Поділитись Опубліковано: 17 жовтня 2013 Посоветуйте с чего начать рисовать проект 1 с участка. 2 с лестницы. 3 фундамент. 4 планировка внутрених перегородок с печкой и вент. каналы. Ждем первых набросков... 1 Посилання на коментар Поділитися на інших сайтах More sharing options...
.Андрей Опубліковано: 17 жовтня 2013 Автор Поділитись Опубліковано: 17 жовтня 2013 1 с участка. 2 с лестницы. 3 фундамент. 4 планировка внутрених перегородок с печкой и вент. каналы. Ждем первых набросков... Спасибо, Hover, пока усиленно работаю над пунктом №1, остальные пойдут паровозом. Пока продаю квартиру, участок уже присмотрел, успеть бы до глобального кризиса, о котором все постоянно говорят . Посилання на коментар Поділитися на інших сайтах More sharing options...
Всеволодович Опубліковано: 17 жовтня 2013 Поділитись Опубліковано: 17 жовтня 2013 Практично, если будет тамбур и переобуваться будут там. И даже удобно, вы вошли в дом и сразу можете выбрать подниматься на второй этаж или остаться на первом. ТС, предусмотрите тамбур на входе. На рисунке вверху тамбура нет. Я исходил из увиденного. Посилання на коментар Поділитися на інших сайтах More sharing options...
Bechamel Опубліковано: 18 жовтня 2013 Поділитись Опубліковано: 18 жовтня 2013 1. Сначала разместите на участке дом. Подумайте где будет калитка, вьезд машин, парковка, скважина, газ, вода, септик-канализация. Где сарай. Посмотрите на стороны света. Чтобы комнаты были светлые, дом и планировки комнат надо правильно сориентировать... 2. Площади и планировка помещений в доме. Где и какие окна. В этом же пункте располагаете стояки вентиляции, канализации. 3. Думаете из чего делать капитальные стены, перекрытия, лестницу, перестенки. 4. В зависимсти от рельефа, геологии и технологии коробки выбирается фундамент. Как правило ленточный или ФБС-сборный - остальное в какой-то мере экзотика. 5. Думаете, какой хочете фасад, утепление, какая крыша. Остальное приложится. Посилання на коментар Поділитися на інших сайтах More sharing options...
.Андрей Опубліковано: 18 жовтня 2013 Автор Поділитись Опубліковано: 18 жовтня 2013 1. Сначала разместите на участке дом. Подумайте где будет калитка, вьезд машин, парковка, скважина, газ, вода, септик-канализация. Где сарай. Посмотрите на стороны света. Чтобы комнаты были светлые, дом и планировки комнат надо правильно сориентировать... 2. Площади и планировка помещений в доме. Где и какие окна. В этом же пункте располагаете стояки вентиляции, канализации. 3. Думаете из чего делать капитальные стены, перекрытия, лестницу, перестенки. 4. В зависимсти от рельефа, геологии и технологии коробки выбирается фундамент. Как правило ленточный или ФБС-сборный - остальное в какой-то мере экзотика. 5. Думаете, какой хочете фасад, утепление, какая крыша. Остальное приложится. Спасибо, про парковку, септик и гараж возьму на карандаш. Посилання на коментар Поділитися на інших сайтах More sharing options...
tansss Опубліковано: 21 жовтня 2013 Поділитись Опубліковано: 21 жовтня 2013 Перед походам к архитектору первым делом надо определиться с бюджетом!!!;) Затем, прикинув на сколько м2 хватит этого бюджета, двигать к архитектору! Посилання на коментар Поділитися на інших сайтах More sharing options...
.Андрей Опубліковано: 21 жовтня 2013 Автор Поділитись Опубліковано: 21 жовтня 2013 Перед походам к архитектору первым делом надо определиться с бюджетом!!!;) Затем, прикинув на сколько м2 хватит этого бюджета, двигать к архитектору! Уже прикинул. Вероятнее всего на первом этапе буду запускать только первый этаж и вселяться. Кстати - при таком варианте не будет нюансов при вводе дома в эксплуатацию ? У меня такая ситуация, что нужно в доме прописываться. Посилання на коментар Поділитися на інших сайтах More sharing options...
Andrei constructor Опубліковано: 21 жовтня 2013 Поділитись Опубліковано: 21 жовтня 2013 Кстати - при таком варианте не будет нюансов при вводе дома в эксплуатацию ? У меня такая ситуация, что нужно в доме прописываться. Решается вопрос. Посилання на коментар Поділитися на інших сайтах More sharing options...
Рекомендовані повідомлення
Створіть акаунт або увійдіть у нього для коментування
Ви маєте бути користувачем, щоб залишити коментар
Створити акаунт
Зареєструйтеся для отримання акаунта. Це просто!
Зареєструвати акаунтУвійти
Вже зареєстровані? Увійдіть тут.
Увійти зараз