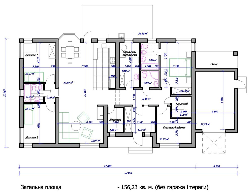
alex_pt Опубліковано: 1 лютого 2014 Поділитись Опубліковано: 1 лютого 2014 Доброго времени суток! Очень нуждаюсь в ваших советах/критике по одноэтажному проекту. Желательны конструктивные замечания... Например. Детский санузел далеко от основных коммуникаций => удорожание монтажа. Да, и окна еще будут двигаться, исходя из внешнего вида фасадов. Спасибо всем откликнувшимся! Посилання на коментар Поділитися на інших сайтах More sharing options...
vickov Опубліковано: 1 лютого 2014 Поділитись Опубліковано: 1 лютого 2014 Доброго времени суток! Очень нуждаюсь в ваших советах/критике по одноэтажному проекту. Желательны конструктивные замечания... Например. Детский санузел далеко от основных коммуникаций => удорожание монтажа. Да, и окна еще будут двигаться, исходя из внешнего вида фасадов. Спасибо всем откликнувшимся! Предполагаю, что при такой планировке, когда родители лягут спать, дети будут чувствовать себя ХОЗЯЕВАМИ дома... 1 Посилання на коментар Поділитися на інших сайтах More sharing options...
захар 1977 Опубліковано: 1 лютого 2014 Поділитись Опубліковано: 1 лютого 2014 Предполагаю, что при такой планировке, когда родители лягут спать, дети будут чувствовать себя ХОЗЯЕВАМИ дома... Что-то мне так кажеться, что в какой-то мере это и хорошо. В другом конце дома родители себя тоже будут чувствовать ХОЗЯЕВАМИ, ни в чём себя не стесняя:D. 4 Посилання на коментар Поділитися на інших сайтах More sharing options...
alex_pt Опубліковано: 2 лютого 2014 Автор Поділитись Опубліковано: 2 лютого 2014 Предполагаю, что при такой планировке, когда родители лягут спать, дети будут чувствовать себя ХОЗЯЕВАМИ дома... Пожалуй, Вы правы... Немного смущает, что детские близко к "шумной" кухонно-гостиной зоне и это, возможно, будет неудобством, когда их нужно пораньше положить спать. В данном случае детям отдана самая солнечная сторона дома. Посилання на коментар Поділитися на інших сайтах More sharing options...
Татьяна5 Опубліковано: 2 лютого 2014 Поділитись Опубліковано: 2 лютого 2014 Немного смущает, что детские близко к "шумной" кухонно-гостиной зоне и это, возможно, будет неудобством, когда их нужно пораньше положить спать. а сколько сейчас детям лет? 1 Посилання на коментар Поділитися на інших сайтах More sharing options...
alex_pt Опубліковано: 2 лютого 2014 Автор Поділитись Опубліковано: 2 лютого 2014 а сколько сейчас детям лет? Отличный вопрос, спасибо 2 года и почти 6, девочки. Посилання на коментар Поділитися на інших сайтах More sharing options...
Татьяна5 Опубліковано: 2 лютого 2014 Поділитись Опубліковано: 2 лютого 2014 Отличный вопрос, спасибо 2 года и почти 6, девочки. планировка мне нравится но, как по мне - гостиная - это место для родителей и их жизни, а детские в такой непосредственной близости - это ограничения по пользованию гостиной. ИМХО - девушек стоит переселить в две другие спальни, а себе оставить эти две Второй момент - из-за формы гостиной, она не оч удобна, я бы дала ей еще 1 м ширины и этот же метр наубирала в других помещениях. Санузлы большие, вроде и хорошо, но зачем. Хотя это вопрос бюджета 1 Посилання на коментар Поділитися на інших сайтах More sharing options...
abelor Опубліковано: 2 лютого 2014 Поділитись Опубліковано: 2 лютого 2014 Начнем по порядку. Участок и ориентация дома на участке. У Вас спальни, особенно детские, плохо ориентированы - в одной спальне вообще никогда не будет солнца, а это очень плохо. Возможно в этой комнате лучше разместить кабинет. Спальни и вообще комнаты, где человек спит, должны быть ИНСОЛИРОВАНЫ. Общую комнату, в вашем случае гостиную-кухню-столовую желательно не делать проходной. Такая планировка могла бы быть, если в доме проживает два человека одного поколения(бездетные пары, пожилые пары, сестры, братья без семей), но не полноценная семья. И потом, как женщина, но в то же время практикующий архитектор, сразу могу сказать, что полноценная семья обычно завтракает и ужинает, а в выходные еще и обедает, значит плита работает по полной и как бы хорошо не работала вытяжка, запахи неизбежны. Поэтому подумайте об изоляции рабочих плоскостей кухни от гостиной-столовой. Про то, что это очередная КВАРТИРА НА ЗЕМЛЕ, я уже и говорить не хочу, устала. Да и гнев уже вызываю не только у пользователей, но и у коллег по цеху. В общем, из Вашей планировки, думаю можно что-то выкрутить одноэтажное, мне это как профессионалу интересно, тем более, что и объемное решение может быть необычное, ведь одноэтажный конструктив проще, хотя, честно, одноэтажниками еще не занималась. Доброго времени суток! Очень нуждаюсь в ваших советах/критике по одноэтажному проекту. Желательны конструктивные замечания... Например. Детский санузел далеко от основных коммуникаций => удорожание монтажа. Да, и окна еще будут двигаться, исходя из внешнего вида фасадов. Спасибо всем откликнувшимся! 1 Посилання на коментар Поділитися на інших сайтах More sharing options...
захар 1977 Опубліковано: 2 лютого 2014 Поділитись Опубліковано: 2 лютого 2014 И потом, как женщина, но в то же время практикующий архитектор, сразу могу сказать, что полноценная семья обычно завтракает и ужинает, а в выходные еще и обедает, значит плита работает по полной и как бы хорошо не работала вытяжка, запахи неизбежны. Поэтому подумайте об изоляции рабочих плоскостей кухни от гостиной-столовой. У знакомого кухня-студия, такая же как на фото ( просто реальных сейчас нет, это его кухня-студио). Так вот к чему я веду, что сидя в гостевой зоне абсолютно не слышно, что готовиться на кухонной зоне. Даже пробовали курить возле вытяжки (на улице холодно было) и никто из гостей не услышал запаха дыма. Както так, личный опыт;). Кстати у себя в квартире тоже собираюсь делать кухню-студию.ИМХО 2 Посилання на коментар Поділитися на інших сайтах More sharing options...
Виталий_Буча Опубліковано: 2 лютого 2014 Поділитись Опубліковано: 2 лютого 2014 Начнем по порядку. Участок и ориентация дома на участке. У Вас спальни, особенно детские, плохо ориентированы - в одной спальне вообще никогда не будет солнца, а это очень плохо. Возможно в этой комнате лучше разместить кабинет. Спальни и вообще комнаты, где человек спит, должны быть ИНСОЛИРОВАНЫ. Общую комнату, в вашем случае гостиную-кухню-столовую желательно не делать проходной. Такая планировка могла бы быть, если в доме проживает два человека одного поколения(бездетные пары, пожилые пары, сестры, братья без семей), но не полноценная семья. И потом, как женщина, но в то же время практикующий архитектор, сразу могу сказать, что полноценная семья обычно завтракает и ужинает, а в выходные еще и обедает, значит плита работает по полной и как бы хорошо не работала вытяжка, запахи неизбежны. Поэтому подумайте об изоляции рабочих плоскостей кухни от гостиной-столовой. Про то, что это очередная КВАРТИРА НА ЗЕМЛЕ, я уже и говорить не хочу, устала. Да и гнев уже вызываю не только у пользователей, но и у коллег по цеху. В общем, из Вашей планировки, думаю можно что-то выкрутить одноэтажное, мне это как профессионалу интересно, тем более, что и объемное решение может быть необычное, ведь одноэтажный конструктив проще, хотя, честно, одноэтажниками еще не занималась. Ну это уже бред, у Вас все проекты - это квартиры на земле и мертвые дома. Выложите хоть один свой проект, где дом - это не квартира на земле.... 3 Посилання на коментар Поділитися на інших сайтах More sharing options...
Andrei constructor Опубліковано: 2 лютого 2014 Поділитись Опубліковано: 2 лютого 2014 Прихожая совмещенная с тамбуром не есть хорошо. Разделение спальных зон на две мне тоже не очень. Разделите постирочную и котельную. Вход в котельную с улицы. Если не будет твердотопливного котла, то газовый котел можно поставить в кухне. Кабинет с юго-восточным окном не очень. Скорее всего это будет гостевая комната. 1 Посилання на коментар Поділитися на інших сайтах More sharing options...
alex_pt Опубліковано: 2 лютого 2014 Автор Поділитись Опубліковано: 2 лютого 2014 Начнем по порядку. Участок и ориентация дома на участке. У Вас спальни, особенно детские, плохо ориентированы Детские спальни ориентированы на юго-запад, самую солнечную сторону дома. По-вашему, это неправильно? в одной спальне вообще никогда не будет солнца, а это очень плохо. Возможно в этой комнате лучше разместить кабинет. Спальни и вообще комнаты, где человек спит, должны быть ИНСОЛИРОВАНЫ. Из спальни (родителей) обычно уходим утром, и возвращаемся поздно вечером. Поясните, зачем там инсоляция для такого режима использования? При моем расположении солнце в ней будет по утрам и вечерам, ближе к лету. С точки зрения освещенности нам это приемлемо. Возможно расположить окнами на фасад, но там однозначно будет больше пыли и шума - дорога, авто, прохожие. Общую комнату, в вашем случае гостиную-кухню-столовую желательно не делать проходной. Такая планировка могла бы быть, если в доме проживает два человека одного поколения(бездетные пары, пожилые пары, сестры, братья без семей), но не полноценная семья. Здесь абсолютно согласен... Пожалуй, это вынужденное решение. Цель - минимизация темных и длинных коридоров. Если подскажете такие 1-этажные проекты с четырьмя спальнями, буду очень благодарен. И потом, как женщина, но в то же время практикующий архитектор, сразу могу сказать, что полноценная семья обычно завтракает и ужинает, а в выходные еще и обедает, значит плита работает по полной и как бы хорошо не работала вытяжка, запахи неизбежны. Поэтому подумайте об изоляции рабочих плоскостей кухни от гостиной-столовой. Спасибо, кухня, столовая и гостиная единой зоной, принципиально. Учитывая предпочтения жены, это даже не обсуждается. Здесь уж на вкус и цвет, и как говорят... Максимум, это сделать кухню чуть более компактной/уютной... Про то, что это очередная КВАРТИРА НА ЗЕМЛЕ, я уже и говорить не хочу, устала. Да и гнев уже вызываю не только у пользователей, но и у коллег по цеху. В общем, из Вашей планировки, думаю можно что-то выкрутить одноэтажное, мне это как профессионалу интересно, тем более, что и объемное решение может быть необычное, ведь одноэтажный конструктив проще, хотя, честно, одноэтажниками еще не занималась. Можете показать, что, по-вашему, есть не просто "квартира на земле", только - важный нюанс - в адекватном бюджете, пожалуйста. И еще - минимум коридоров. Был бы Вам благодарен... Да, и не в два этажа. Выбор 1эт состоявшийся и вполне осознанный. Посилання на коментар Поділитися на інших сайтах More sharing options...
Andrei constructor Опубліковано: 2 лютого 2014 Поділитись Опубліковано: 2 лютого 2014 Детские спальни ориентированы на юго-запад, самую солнечную сторону дома. Хорошо зимой и плохо летом. Очень пекучее направление. 1 Посилання на коментар Поділитися на інших сайтах More sharing options...
alex_pt Опубліковано: 2 лютого 2014 Автор Поділитись Опубліковано: 2 лютого 2014 Прихожая совмещенная с тамбуром не есть хорошо. Андрей, можете пояснить? В прихожей будет теплый пол, дверь из нее в коридор будет постоянно закрыта. Разделение спальных зон на две мне тоже не очень. Разделите постирочную и котельную. Вход в котельную с улицы. Если не будет твердотопливного котла, то газовый котел можно поставить в кухне. ТТ котла не будет, поэтому и вход с улицы не очень нужен. Только газовый+бойлер+водоподготовка, которые тоже где-то нужно поставить. Может, отделить какой-то фальш-стенкой внутри помещения? Кабинет с юго-восточным окном не очень. Скорее всего это будет гостевая комната. Скорее всего это и будет гостевая. Хорошо зимой и плохо летом. Очень пекучее направление. Зимой им уроки делать после обеда, а летом дети все равно во дворе живут Посилання на коментар Поділитися на інших сайтах More sharing options...
Kysil Опубліковано: 2 лютого 2014 Поділитись Опубліковано: 2 лютого 2014 alex_pt, симпатичне планування. Коли будуть фасади? 1 Посилання на коментар Поділитися на інших сайтах More sharing options...
Andrei constructor Опубліковано: 2 лютого 2014 Поділитись Опубліковано: 2 лютого 2014 Андрей, можете пояснить? В прихожей будет теплый пол, дверь из нее в коридор будет постоянно закрыта. Между теплыми помещениями и улицей при нашем климате делают так называемый холодный тамбур. У вас его нет, следовательно, будут дополнительные теплопотери. Добавлено через 36 секунд летом дети все равно во дворе живут И спать во дворе? Добавлено через 1 минуту ТТ котла не будет, поэтому и вход с улицы не очень нужен. Только газовый+бойлер+водоподготовка, которые тоже где-то нужно поставить. Может, отделить какой-то фальш-стенкой внутри помещения? Газовщикам лучше не показывать, что там будет помещение с мокрым режимом. Поставьте перегородку. Ближе к наружной стене будет бойлер и водоподготовка, а газовый котел можно поставить в кухне. В остальной части постирочная и сушка. 1 Посилання на коментар Поділитися на інших сайтах More sharing options...
svettl Опубліковано: 3 лютого 2014 Поділитись Опубліковано: 3 лютого 2014 Между теплыми помещениями и улицей при нашем климате делают так называемый холодный тамбур. У вас его нет, следовательно, будут дополнительные теплопотери. . Простите, не удержусь, это устаревший архаизм какой-то бородатый. У нас так, никаких теплопотерь, дверь не обмерзает, за прошлый год натопили 1500 кубов газа в, обогревая немилосердно дом 300 кв м. ЗА ГОД. Зачем создавать сельские тамбуры? 3 Посилання на коментар Поділитися на інших сайтах More sharing options...
Andrei constructor Опубліковано: 3 лютого 2014 Поділитись Опубліковано: 3 лютого 2014 Простите, не удержусь, это устаревший архаизм какой-то бородатый. У нас так, никаких теплопотерь, дверь не обмерзает, за прошлый год натопили 1500 кубов газа в, обогревая немилосердно дом 300 кв м. ЗА ГОД. Зачем создавать сельские тамбуры? Это не архаизм, а необходимость для наших широт. Теплопотери в доме складываются из многих составляющих. Вы же не сопоставляли расходы газа в вашем доме с тамбуром и без. 1 Посилання на коментар Поділитися на інших сайтах More sharing options...
alex_pt Опубліковано: 3 лютого 2014 Автор Поділитись Опубліковано: 3 лютого 2014 alex_pt, симпатичне планування. Коли будуть фасади? Kysil, дякую, ще трошки послухаю-поміркую, добре? І потім будуть фасади. Добавлено через 8 минут Между теплыми помещениями и улицей при нашем климате делают так называемый холодный тамбур. У вас его нет, следовательно, будут дополнительные теплопотери. Андрей, а можно где-то почитать? Может, ссылка на какие-то расчеты? С точки зрения рациональности, я не вижу смысла в холодном тамбуре. Насколько велики теплопотери? И спать во дворе? Сделаем свесы крыши подлиннее. Зато будут светлые комнаты зимой. А где место детским, на какой стороне дома, в моем случае? И почему? Газовщикам лучше не показывать, что там будет помещение с мокрым режимом. Поставьте перегородку. Ближе к наружной стене будет бойлер и водоподготовка, а газовый котел можно поставить в кухне. В остальной части постирочная и сушка. По нормам в котельной запрещена раковина/стир. машина? А кухня с раковиной - не такое же мокрое помещение? Ведь разница только в стиральной машине. А если стиральная машина+ газовый котел в кухне, тогда вообще никакой разницы. В чем скрытый смысл? Посилання на коментар Поділитися на інших сайтах More sharing options...
svettl Опубліковано: 3 лютого 2014 Поділитись Опубліковано: 3 лютого 2014 Это не архаизм, а необходимость для наших широт. Теплопотери в доме складываются из многих составляющих. Вы же не сопоставляли расходы газа в вашем доме с тамбуром и без. То есть думаете с тамбуром было бы 1000?)) Максимальная экономия 100 кубов х 0,72 грн= 72 грн в год. А стоимость тамбура, включая как минимум одни дополнительные двери, несоизмеримо выше. То есть тамбур отбивается за 20 лет;) 2 Посилання на коментар Поділитися на інших сайтах More sharing options...
Andrei constructor Опубліковано: 3 лютого 2014 Поділитись Опубліковано: 3 лютого 2014 То есть думаете с тамбуром было бы 1000?)) Максимальная экономия 100 кубов х 0,72 грн= 72 грн в год. А стоимость тамбура, включая как минимум одни дополнительные двери, несоизмеримо выше. То есть тамбур отбивается за 20 лет Это не только теплопотери, а еще удобство эксплуатации. 1. Приятно, когда заходишь в прихожую, а там есть перепад температуры на несколько градусов (двери открывали - закрывали)? 2. Вы всегда будете заходить в дом в чистой обуви или одежде? Конечно нет, поэтому ее лучше временно оставить в тамбуре, а не вносить грязь в прихожую. 3 Посилання на коментар Поділитися на інших сайтах More sharing options...
Drosselbeere Опубліковано: 3 лютого 2014 Поділитись Опубліковано: 3 лютого 2014 Andrei constructor, читаю ваши коменты и не выдержал: 1. холодный тамбур в частном доме бесполезное помещение, тем более размером 2,25-3 кв м 2. нормы ДБН которые регламентируют размеры тамбура и требования к ниму подходит только для многоквартирного дома 3. Если вы живете в частном доме, вы пользуетесь тамбуром, каких он у вас размером, на сколько удобно в нем раздеваться.... ? В том виде прихожая как у ТС очень достойное решение для заходить в дом в чистой обуви или одежде Приятно, когда заходишь в прихожую, а там есть перепад температуры на несколько градусов а есть удобство раздеваться в холодном и тесном тамбуре, а еще хуже одеваться? 1 Посилання на коментар Поділитися на інших сайтах More sharing options...
alex_pt Опубліковано: 3 лютого 2014 Автор Поділитись Опубліковано: 3 лютого 2014 ..... а есть удобство раздеваться в холодном и тесном тамбуре, а еще хуже одеваться? Drosselbeere, вы читаете мои мысли. Даже точнее - мысли жены! Посилання на коментар Поділитися на інших сайтах More sharing options...
Drosselbeere Опубліковано: 3 лютого 2014 Поділитись Опубліковано: 3 лютого 2014 Даже точнее - мысли жены! я не читаю, я просто пользуюсь и мучаюсь как сделать лучше у себя 1 Посилання на коментар Поділитися на інших сайтах More sharing options...
захар 1977 Опубліковано: 3 лютого 2014 Поділитись Опубліковано: 3 лютого 2014 Это не только теплопотери, а еще удобство эксплуатации. 1. Приятно, когда заходишь в прихожую, а там есть перепад температуры на несколько градусов (двери открывали - закрывали)? 2. Вы всегда будете заходить в дом в чистой обуви или одежде? Конечно нет, поэтому ее лучше временно оставить в тамбуре, а не вносить грязь в прихожую. Не хочу никого обидеть, но у товарища в доме который я приводил в пример выше тоже нет тамбура. Неудобств не я, не он в этом незаметили. Да и вид если честно намного лучше, тем более у него большая стеклянная входная группа, через которую поступает много света;). 1 Посилання на коментар Поділитися на інших сайтах More sharing options...
Рекомендовані повідомлення
Створіть акаунт або увійдіть у нього для коментування
Ви маєте бути користувачем, щоб залишити коментар
Створити акаунт
Зареєструйтеся для отримання акаунта. Це просто!
Зареєструвати акаунтУвійти
Вже зареєстровані? Увійдіть тут.
Увійти зараз