alexvnets Опубліковано: 3 квітня 2014 Поділитись Опубліковано: 3 квітня 2014 Решил создать новую тему с этим вопросом ибо в тему "шумоизоляция стен" заглядывают только "акустики", а ответ нужен срочно... Выкладываю вопрос: Итак. На чём я остановился. Снёс я все стены из газоблока (между соседом тоже) ))) И это смешно, потому что перед покупкой кирпича, я решил обратится в БТИ по вопросам перепланировки. Пришли их спецы, осмотрели квартиру и начали мне говорить о том что перегородки в полкирпича - это очень много и незачем... Я с ними долго спорил о том что перегородка в полкирпича - это хороший вариант для звукоизоляции по сравнению с газоблоком. Они утверждали что это ничего не даст)) Потом даже один из них сказал мне что чем плотнее материал, тем хуже звукоизоляция !)) Я спорил об обратном. Короче чуть не поругались)).... Единственное что они сделали полезного - натолкнули меня на желание покопаться в просторах интернета о звукоизоляции снова. Так вот, в чём я ошибался, это: 1) 52-53 dB - звукоизоляция у перегородки в ОДИН кирпич, отштукатуренный с обоих сторон! (а я нашёл не верную инфу что данным показателем обладает стена в полкирпича) 2) 45 dB - звукоизоляция у перегородки в ПОЛ кирпича, отштукатуренный с обоих сторон! Этот показатель колеблится от 45 до 47. У стены из силикатного кирпича (то есть бОльшая плотность - может доходить до 49 dB) 3) 45 dB против 39 dB у газоблока всё-равно лучше - 6dB = уровень громкости ниже в два раза. Но не такой впечатлительный в сравнении с 52-53 )) Далее. Самое печально что они меня убеждали - что это слишком большая нагрузка на плиты перекрытия и они не рекомендуют \ запрещают делать такие перегородки... В общем я их убедил, что я просчитывал нагрузку и всё входит в нормы... Они сказали что кирпич обладает плотностью 1900 кг\м3. Я сказал что такая плотность у стяжки и штукатурки, а я буду брать кирпич плотностью 1600....... В общем после долгих разговоров, они сказали что просчитают всё и мне перезвонят. Позвонили. Нормативная нагрузка на плиту: 899 кгс\м3 (я кстати не понял почему 899, если везде пишут что ПК-76-15-8 = 800 кгс\м3???). Расчётная нагрузка: 992 кгс\м3 Я не понимаю откуда они взяли этот показатель... Человек, который является посредником между мной и БТИ сказал что вроде как из нормативной нагрузки нужно отнимать вес самой плиты, поэтому так... Вполне допускаю, что они знают лучше меня как считать, но всё же поправьте меня если я не прав. Кирпич : 1600 кгс\м3 Стяжка: 1800 кгс\м3 Штукатурка: 1500 кгс\м3 Толщина стены в полкирпича: 0.125м Высота стен 2.6м Толщина стяжки: 0.08м Толщина штукатурки с двух сторон: 0.04м Итого, нагрузка на метр квадратный = 0.125*2.6*1600 + 0.08*1800 + 0.04*1500 = 520+144+60 = 724 кгс\м3 < 800 кгс\м3. Я читал что вес плиты не входит в нормативную нагрузку...хз... Что на счёт мебели и людей - это временная нагрузка и она не считается в общую постоянную нагрузку... Я перезвонил посреднику и сказал ему о своих подсчётах. Он сказал что даже в моём случае нагрузка будет критической (хотя, опять же, я читал на форумах знающих людей - они утверждают что эта нагрузка (800 кгс\м2) - рекомендуемая, а в действительности, плита легко выдержит вес и в два раза больше). В общем, теперь и не знаю что мне делать... Посредник предлагает перегордки из ГКЛ+вата, но это и не дёшево и не прочно (проблема что-то повесть тяжёлое на стену) и не надёжно (чем-то ударил\задел = дыра\мятина)... Газоблок только снёс...)))...Разве что ставить 15см, вместо 10 что было. Нужно ещё раз пробежаться по показаниям, уже не помню на сколько она лучше... Что можете сказать, посоветовать??? Спасибо Тема: www.stroimdom.com.ua/forum/showthread.php?t=148829 Посилання на коментар Поділитися на інших сайтах More sharing options...
Drosselbeere Опубліковано: 3 квітня 2014 Поділитись Опубліковано: 3 квітня 2014 Итого, нагрузка на метр квадратный = 0.125*2.6*1600 + 0.08*1800 + 0.04*1500 = 520+144+60 = 724 кгс\м3 < 800 кгс\м3. каламбур цифр расчетная нагрузка от перегородки 0,12*2,6*1600*1,1*1+0,04*2,6*1800*1,3*1 = 793 кг/м что бы получить эквивалентную нагрузку на перекрытие, нужно понимать расположение перегородки на плите несущая способность ПК плиты 800 кг/м2 2 Посилання на коментар Поділитися на інших сайтах More sharing options...
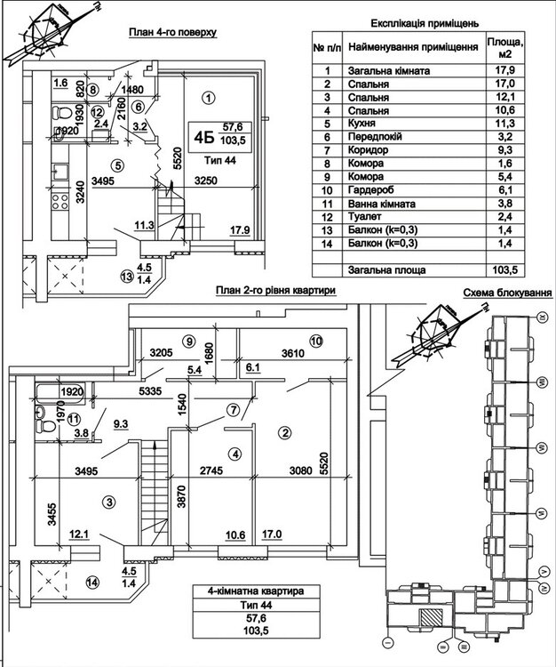
alexvnets Опубліковано: 3 квітня 2014 Автор Поділитись Опубліковано: 3 квітня 2014 каламбур цифр расчетная нагрузка от перегородки 0,12*2,6*1600*1,1*1+0,04*2,6*1800*1,3*1 = 793 кг/м что бы получить эквивалентную нагрузку на перекрытие, нужно понимать расположение перегородки на плите несущая способность ПК плиты 800 кг/м2 "Каламбур цифр" - 100%)) Как-то я забыл умножить штукатурку на высоту)) А почему стяжка умножилась на 1.3? Ниже прилагаю план квартиры. Все стены внутри были из газоблока. Вместо них хочу сделать в полкирпича. Получается следующее: 1-й этаж: 1) санузел: стены в четверть кирпича - так и оставляю, только убираю перегородку между туалетом и кладовкой - расширяю санузел. Дверь будет одна - по уентру. 2) все остальные перегородки снёс. 3) перегородка между соседней квартирой выполнена из двух перегородок из газоблока 100мм d500, между которыми воздушное пространство 40мм. Я убрал свою перегородку из газоблока, хочу отштукатурить соседскую стену, наклеить на неё акустическую минвату 50мм, а свою перегородку выполнить в полкирпича и отштукатурить. Длинная стена в 5.5м проходит по центру плиты между мной и соседом. Предположительно плита там как и везде: ПК-76-15-8. Вот здесь я так понимаю, будет повышенная нагрузка, поскольку помимо полкирпича ещё стоит соседский газоблок... Стена в 3.5м упирается на 3 плиты (половина плиты между мной и соседом, одна плита 1.5м и часть третьей 1.5м) 2-й этаж: 1) санузел в четверть кирпича - не меняю 2) стены между проёмом лестницы стоят на рёбрах плит ПК-76-15-8. 3) стена между двумя комнатами стоит на другой плите 1.5м 30см от ребра. 4) гардеробная и комора остаются с газоблоковыми перегородками. Посилання на коментар Поділитися на інших сайтах More sharing options...
Drosselbeere Опубліковано: 3 квітня 2014 Поділитись Опубліковано: 3 квітня 2014 А почему стяжка умножилась на 1.3?я стяжку не учитывал, только линейная нагрузка от перегородки на перекрытие. 1.3 коэф запаса 1 Посилання на коментар Поділитися на інших сайтах More sharing options...
alexvnets Опубліковано: 5 квітня 2014 Автор Поділитись Опубліковано: 5 квітня 2014 Выяснил у БТИ что в нагрузку входят: - вес самой плиты перекрытия - 290кг - стяжка: 0.05м - 90кг - временная нагрузка: 150кг (мебель, человек) - перегородки - получается что остаток от плиты в 800кг/м2 = 800-290-90-150 = 270 кг/м2. Жесть... Я задал вопрос - а как же вы уложились в эти цифры при постройке перегородок в санузлах в четверть кирпича? 0.065*2.6*1800 (кирпич) + 0.035*2.6*1500 (штукатурка) = 304.2+ 136.5 = 440.7кг. И это без учёта коэффициентов, которые ещё прибавят не мало веса. Итого вес превысит допустимый минимум на 200кг/м2. В ответ я услышал смех и рассказы о том сто в санузлах применяют кирпич в виду того что газоблок для санузлов не подходит - сильно впитывает влагу... А ещё мне сказали следующее: вообще, многие люди абсолютно не задаются этими вопросами, сносят себе перегородки и кладут в полкирпича и ни о чём не переживают))... Единственные минусы: не могут официально оформить перегородки в полкирпича у БТИ, поэтому в документах могут значиться перегородки из других материалов, а также то что если вдруг у кого-то из соседей лопнет штукатурка из-за прогиба плиты - могут прислать вам санстанцию, они вычислят что у вас стены из кирпича, от того и прогиб (интересно кстати как они это узнают? Будут сдирать обои и снимать штукатурку? Что за ересь?) и вас заставят возместить ущерб соседям, а также снести перегородки... Вот такая вот хрень... Вопросы: 1) действительно ли так всё чревато последствиями? 2) как тогда объяснить перегородки от застройщика в санузлах, которые явно выходят за грани? 3 и самое главное - из чего мне делать перегородки????... каркасные из гипса (2гкл+минвата+2гкл) боюсь - переживаю что слишком хлипкие стены получаться (в плане уязвимости к ударам) Как вариант думаю так: Перегородка между соседом: его перегородку из 100мм газоблока уже отштукатурил, а также приклеил 50мм акустик.минвату. Тепереь думаю - рисковать и строить в полкирпича? Или же "якобы по закону" строить в четверть кирпича?... Если в четверть кирпича - есть ли смысл на кирпича повешать ещё 2 слоя гкл?-придаст ли это доп. Децибели для шумоизоляции? Или же лучше построить каркасную перегородку из 8-го профиля, внутрь вставить ещё доп.100мм ваты, и со своей стороны зашить двумя листами гкл? - думаю этот вариант лучше по звукоизоляции, но дороже и опять таки, хлипкая... Перегородки между комнатами на 2-м этаже: Поскольку внизу меня - я, то может нет смысла заморачиваться что что-то лопнет? Ведь если и лопнет, то у меня... К тому, же газоблок в гардеробной и коморе я оставил. А стены между комнатами - всего-лишь 3.5м в длину ( ну + ещё между дверным проёмом в спальню). Поэтому может на 2-м сделать в полкирпича? Тогда проблема останется только с документами... Или же делать каркасные из гипса (2гкл+минвата+2гкл). Легко, но хлипко.... Дайте советы, уже мозг кипит... Полмесяца себе голову ломаю, а строиться надо... Посилання на коментар Поділитися на інших сайтах More sharing options...
Игореха Опубліковано: 5 квітня 2014 Поділитись Опубліковано: 5 квітня 2014 Выяснил у БТИ что в нагрузку входят: - вес самой плиты перекрытия - 290кг - стяжка: 0.05м - 90кг - временная нагрузка: 150кг (мебель, человек) - перегородки - получается что остаток от плиты в 800кг/м2 = 800-290-90-150 = 270 кг/м2. Жесть... Конечно жесть. Зачем из расчетной нагрузочной способности перекрытия отнимать его собственный вес? Если у вас перекрытия из ПК, то в 800кг/м2 уже учтен собственный вес конструкции 1 Посилання на коментар Поділитися на інших сайтах More sharing options...
alexvnets Опубліковано: 5 квітня 2014 Автор Поділитись Опубліковано: 5 квітня 2014 ))) Я не знаю кто прав, но мне сказали и в БТИ и в частной конторе, которая оформляет перепланировки квартир - от несущей способности нужно отнимать вес плиты. Не думаю что и те и те могут ошибаться. Да и в интернете я на многих ресурсах это вычитал Посилання на коментар Поділитися на інших сайтах More sharing options...
alexvnets Опубліковано: 6 квітня 2014 Автор Поділитись Опубліковано: 6 квітня 2014 Кто-то может "тыкнуть" меня в оф.документ, где всё расписано по нагрузке на плиту перекрытия - формула, что вычитать, а что нет?... Посилання на коментар Поділитися на інших сайтах More sharing options...
Drosselbeere Опубліковано: 7 квітня 2014 Поділитись Опубліковано: 7 квітня 2014 Я не знаю кто прав, но мне сказали и в БТИ - от несущей способности нужно отнимать вес плиты. Выяснил у БТИ что в нагрузку входят: - вес самой плиты перекрытия - 290кг - стяжка: 0.05м - 90кг - временная нагрузка: 150кг (мебель, человек) - перегородки - получается что остаток от плиты в 800кг/м2 = 800-290-90-150 = 270 кг/м2. Жесть... БТИ не является экспертной организацией, само название говорит за себя "Бюро технической инвентаризации" в частной конторе, которая оформляет перепланировки квартир если частная контора, точно не знаю что за фирма, но вам должны делать проект, с указанием материалов перегородок и тд и тп, если есть сомнения должны предоставить расчет принятого решения Кто-то может "тыкнуть" меня в оф.документ, где всё расписано по нагрузке на плиту перекрытия - формула, что вычитать, а что нет?... одно документа с расписанными формулами как такого нет. один из основных документов ДСТУ В.2-6-53: 2008, в нем посылания на серии по которым изготавливают плиты и тд несущая способность плиты перекрытия заложена в маркировке изделия и как правило указана без учета собственного веса, то есть вес плиты вычитать не надо. примерный сбро нагрузок на ПК: 1. Полезная 150 кг/м2 * 1,3 = 195 кг м2 2. Конструкция пола (в среднем ) 100-150 кг/м2 3. Перегородки минимум(ДБН В .1.2-2:2006 п. 6.6) 50 кг/м2*1,1 или 1,3= 55-65 кг/м2 нагрузка на плиту перекрытия 195+150+65 = 410 < 800 кг/м2 3 Посилання на коментар Поділитися на інших сайтах More sharing options...
Рекомендовані повідомлення
Створіть акаунт або увійдіть у нього для коментування
Ви маєте бути користувачем, щоб залишити коментар
Створити акаунт
Зареєструйтеся для отримання акаунта. Це просто!
Зареєструвати акаунтУвійти
Вже зареєстровані? Увійдіть тут.
Увійти зараз