Евгений 79 Опубліковано: 4 серпня 2013 Поділитись Опубліковано: 4 серпня 2013 Вот тут хотелось бы индикацию, конечно, иметь. В принципе датчик давления на воздушную трубку поставить, думаю, не сложно. А если не САД, а Станция, то можно датчик уровня в предварительный бак поставить, тогда если аеролифт навернется - загорится сигнал. И если бак напонен - он же укажет, что погодить надо сливать помногу. Вообще вопрос - со станциями переработки кто-нибудь имел дело? Потому как септик+САД и станция по цене то на то. А под станцию всего одну яму копать. И можно ее в бетонный колодец засунуть, то есть на крайняк всегда вытащить и починить можно Если в станция на глубине - полностью уйдет под воду, то ее работа восстановиться - как только уйдет вода. В системе фаст нет - каких либо запчастей, которые ломаются))) Иначе, представьте себе, как вы ее туда сюда -откапывать будете, если установка на 1,6м по технологии закапывается))) Смелым нужно быть, что бы такое - даже говорить)))) понимаю ваши опасения! Но лучше ее не топить))). Тем более, по объему септика, по площади легко вычислить пиковую нагрузку, а это 30-40% от объема перерабатываемых стоков! Такие показатели вам просто не известны. Поэтому я понимаю вашу тревогу. В любой станции это проблема! Но не здесь. Здесь класс другой.;) Добавлено через 20 минут Россияне с ними упорно мучаются. У нас дела попроще, грунты немного другие, да и септики есть. С ЛОСТами или Фастами? Септик пластиковый, это кому септик пластиковый нужен, у кого объем стоков маленький, на маленькой дачке- например! А вот если нужна автономная канализация, то здесь нужно еще все тщательно взвешивать! Сколько не доплатил и как с этим потом Жить))))) А Россияне не мучаются с "фастами". На секундочку - стоимость ОЧЕНЬ ВЫСОКАЯ (сначала если сравнивать), заплатить и мучатся))))) Такого вы не найдете))) Время не то!))) да и другой класс! А с остальными - мучаются, спросите как покажу.))) Добавлено через 1 час 12 минут А как быть с жировой пленкой и, в меньшей степени, илом? Технологически - это так! Жировая пленка на поверхности и бьется в бортик контейнера для сот, или в крупных установках, никак туда не попадает, потому что установка в контейнере, который служит, опять таки защитой (подача "питательной" среды - снизу и жировой пленке туда не попасть), - если правильно организован слив в систему. Но если вода попадает сверху вертикально на соты с жиром - соты засорятся (На сколько это вероятно - судите сами ). Если слой жира вырастет так, что перельет через бортик, на менее производительных станциях на соты - соты засорятся. Вот так. Но если вы видели физические характеристики установок, например, фаст 0, 375 (стандартный объем 1500 л/сут), то посмотрите - 0.99Д х 0.61Ш х 0,85В! И мы устанавливаем ее в ж/б кольца R 1,5 м. То тогда, если даже возрастет уровень предполагаемой пиковой нагрузки с жировой пленкой на 40 см - эта пиковая нагрузка будет составлять 600л (считается) + выход очищенной воды (тоже на досуге посчитать можно) . А пиковая нагрузка для данной модели 500 - 650л (рекомендуемая). Поэтому установки закапывают без проблем и не думая о раскопках;), в отличие от других систем, в которых это действительно - БОЛЬШАЯ проблема и их не закапывают, а консервируют - Чтобы можно было добраться и починить ВСЕ что сломается! Для фаста только правила соблюдать надо - всего лишь "БОЛЬШЕ положенного НЕ ЛИТЬ"!!! Так что, жир в бытовых стоках не страшен - вообще, а вот для ресторанов - там рекомендуется ставить "жироулавливатели"! Добавлено через 23 минуты в меньшей степени, илом? Ил откачивается! Причем в технологии автономной канализации Fast - один раз в четыре-семь лет, как заявляет производитель согласно буржуйско-американскими ГОСТами! И никто в мире не переплюнул американцев в Автономной канализации)))Не верите-сравните)))) Пока не переплюнул)))) Так что "мучаются" россияне, а вместе с ними и весь мир, покупает и мучается. В позапрошлом году в России, был заключен контракт на поставку оборудования на государственном уровне для санаториев и поселков. Чтоб помучатся ))). Посилання на коментар Поділитися на інших сайтах More sharing options...
bambino Опубліковано: 4 серпня 2013 Поділитись Опубліковано: 4 серпня 2013 (змінено) Что-то мне по Фасту российские ссылки лезут. И на фото сплошь бетонные септики. Из Америки едет сотовый наполнитель и насос? И по сути это тоже септик + САД ? Если нет, то чертеж в студию. Или ссылки. Длинных рекламных постов больше не надо. Пока больше настроен на Эколайн - у них хоть все разрисовано. Змінено 4 серпня 2013 користувачем bambino 1 Посилання на коментар Поділитися на інших сайтах More sharing options...
Евгений 79 Опубліковано: 4 серпня 2013 Поділитись Опубліковано: 4 серпня 2013 "Основное требование – существующая накопительная емкость должна быть размерами не менее 1,2 м х 1 м х 1,5 м (либо диаметром 1 метр для модели RetroFAST 0.25 Какая связь с габаритами накопителя? Какой габаритный размер Вашего блока с сотами? Стоимость блока? RetroFast 0.25 - не ходовая модель, ее никогда никто не купит))) такие деньги за 600л/сут. А вот RetroFast 0.375, любому подойдет лучше. И по цене (сколько там надо доплатить???) и по производительности, если вы конечно - хотите себе канализацию такого класса. Связь с габаритами? ну сами посмотрите габаритные размеры и увидите, что кроме как в 1,5м кольцо - вы установку - не вставите. Стоимость - тоже найдите сами, ДОРОГО, но почему - тоже найдете сами. Выбирать, то вам! И "наслаждаться" работой - тоже вам! И жить с этим - тоже Вам! Посилання на коментар Поділитися на інших сайтах More sharing options...
bambino Опубліковано: 4 серпня 2013 Поділитись Опубліковано: 4 серпня 2013 Стоимость - тоже найдите сами, ДОРОГО, но почему - тоже найдете сами. Выбирать, то вам! И "наслаждаться" работой - тоже вам! И жить с этим - тоже Вам! Все,сил моих больше нет. Идите к Кирби. Посилання на коментар Поділитися на інших сайтах More sharing options...
Евгений 79 Опубліковано: 4 серпня 2013 Поділитись Опубліковано: 4 серпня 2013 Что-то мне по Фасту российские ссылки лезут. И на фото сплошь бетонные септики. Из Америки едет сотовый наполнитель и насос? И по сути это тоже септик + САД ? Если нет, то чертеж в студию. Или ссылки. Длинных рекламных постов больше не надо. Бока больше настроен на Эколайн - у них хоть все разрисовано. Это не реклама - а технические характеристики этого продукта. Которые гарантированы производителем! И мы эти Характеристики - гарантируем)))) Станций очистки бытовых стоков много - разных. Технологий -две!!! Твереобразные (российская технология) и Топасообразные (Европейская технология(Чехи лицензий раздали - и вся европа штампует, Украина- не исключение)) Твереобразные- и тверь, лост и фаст тоже, а так же много других производителей, которые используют одну технологию. Но есть очень большая разница в "НЮАНСАХ". Если во всех Твереобразных - фиксация бактерий происходит на плоскости, эта технология прикрепленного роста или фиксированной биопленки - но там они не смогли добиться необслуживаемости загрузки - там загрузку надо менять (это полотна ткани) раз в 1-2 года, а также раз в две недели подходить к системе и встряхивать ее, чтобы отвалились мертвые бактерии. У фаста фиксация бактерий на сотах, как бы в таком "домике", геометрически неравномерным и живут эти бактерии не в плоскости а в объеме!!! причем там своя зависимость при которой создается среда, в которой и бактерии становятся - каннибалами, и контролировать бактериологическую массу не надо, и даже хлорсодержащие вещества можно лить)))) (Вот этот вопрос задайте любому из производителей о запрещенных веществах!!!) По производительности - колоссальные различия в производительности обработки сточных вод и "неубиваемости". Все это можно изучить! Короче - ниже ссылку сброшу обсуждение технологии на другом форуме. Добавлено через 3 минуты Все,сил моих больше нет. Идите к Кирби. Ссылки обсуждения технологии и ответы на вопрсы krainamaystriv.com/threads/9875/page-3 krainamaystriv.com/threads/16498/ тут уже с рисунками объяснениями))))) Технология фаст Добавлено через 7 минут Все,сил моих больше нет. Идите к Кирби. ну как???? А вот что ждет всех ТАПАСОПОДОБНЫХ обладателей, для ценителей АВТОНОМНОМНОЙ канализации и полезности ила???? В Украине ГОСТов нет и можно не договаривать, а в России уже заставляют описывать технологию обслуживания)))) www.topas-100.ru/service.html - Вы ЭТО ВЫБРАЛИ??? Будете так теперь жить)))))) Изучайте все сами и паспорта смотрите, а не картинки))))) А еще продавцов не слушайте, они вам про такое не расскажут! А ЖИТЬ С этим Вам! Добавлено через 1 минуту Все,сил моих больше нет. Идите к Кирби. Ну как почитали?)))) Понравилось???? не всем наверное понравилось - о проблемах, о поломках, о сервисном обслуживании, консервации и т.д. говорить. Добавлено через 13 минут не всем наверное понравилось - о проблемах, о поломках, о сервисном обслуживании, консервации и т.д. говорить. А Автономная канализация Fast - просто вставляется в кольца, зарывается и все это можно не обсуждать!!! Совершенно другой класс!!! Добавлено через 36 минут И по сути это тоже септик + САД ? Если нет, то чертеж в студию. А вот и чертеж с паспортом! и с гарантийными условиями ! (ссылка устарела) Посилання на коментар Поділитися на інших сайтах More sharing options...
Евгений 79 Опубліковано: 5 серпня 2013 Поділитись Опубліковано: 5 серпня 2013 У моего соседа стоит система автономной канализации Ital Bio. Работает полгода, практически не боится засорения и на выходе вода выходит абсолютно чистая. У него семя из 9 человек, но система справляется четко. Fast вообще не боится засорения. Вообще - И это тоже - технология, видно и понятно в чертежах. То о чем я говорю, это технология, которая только зашла в Украину, а сравнивать технологии можно только сравнениями. Это не "рекламный текст" -как это комментируют - а сравнения с принципами работы и сравнения с результатами работы, т.е. что мы получаем в результате. Изучите - на вопросы о технологии отвечать хочется))) Потратить кучу - денег и радоваться что практически не боится засорения)))) Носками, или средствами бытовой химии - хлорсодержащими? И целых пол года - работает)))) Абсолютно чистая вода на выходе, это вопрос спорный, это когда вы решите ее проверить - после жирной сковородки с кучей моющего, или после ванной?. ))) Весной следующей вопрос соседу -зададите))) Как и сколько стоит консервация - расконсервация и сколько раз сосед ваш - выкачивает осадок в год, и чем он это делает - ведрами или ассенизаторами. ПЕРИОДИЧНОСТЬ - откачки?;) А не какая вода на выходе абсолютная или почти абсолютно чистая!!!!. Добавлено через 7 минут У него семя из 9 человек, но система справляется четко Чему вы удивляетесь? Количество людей - зависит от объемов перерабатываемых бытовых стоков той или иной системы. Смотрите прайсы - там системы все разные)))) По разным ценам - для разного количества людей)))) Посилання на коментар Поділитися на інших сайтах More sharing options...
Евгений 79 Опубліковано: 5 серпня 2013 Поділитись Опубліковано: 5 серпня 2013 (змінено) Что-то мне по Фасту российские ссылки лезут. И на фото сплошь бетонные септики. Из Америки едет сотовый наполнитель и насос? И по сути это тоже септик + САД ? Если нет, то чертеж в студию. Или ссылки. Длинных рекламных постов больше не надо. Пока больше настроен на Эколайн - у них хоть все разрисовано. Вы свою установку ЛОСТ + САД в землю закопайте, на глубину 1м 60см и производителю скажите, так я думаю он вам у виска покрутит. А вы говорите - ОДИНАКОВЫЕ))))))))))) Нет принцип один, а системы разные! Загрузка, фиксация и жизнь бактерии разная))) И лучше американцев этого никто еще не сделал. По форме вы видите один предмет, а технические характеристики разные. И комфорт от использования разный))))) Интернет пестрит - сделай канализацию Фаст сам. И ролик с описанием есть, по чертежу сделать можно - попробовать)))) Только пробовать нужно с Надеждой)))) И с Надеждой закопать на 1м60см, а потом гарантию себе дать и один раз в 5 лет осадок выкачивать!)))) Вот вам и блок сот с насосиком - нет, не все так просто - на самом деле)))) Ни один производитель в мире не дает таких показателей в работе! Змінено 5 серпня 2013 користувачем Евгений 79 Посилання на коментар Поділитися на інших сайтах More sharing options...
bio7 Опубліковано: 6 серпня 2013 Поділитись Опубліковано: 6 серпня 2013 Что-то мне по Фасту российские ссылки лезут. И на фото сплошь бетонные септики. Из Америки едет сотовый наполнитель и насос? И по сути это тоже септик + САД ? Если нет, то чертеж в студию. Или ссылки. Длинных рекламных постов больше не надо. Пока больше настроен на Эколайн - у них хоть все разрисовано. Рекомендую посмотреть еще здесь информацию об автономных канализациях. bio7active.com/ru/products/339-Avtonomnaya-Kanalizatsiya-dlya-Dachi-i-Doma.html Посилання на коментар Поділитися на інших сайтах More sharing options...
bambino Опубліковано: 6 серпня 2013 Поділитись Опубліковано: 6 серпня 2013 Рекомендую посмотреть еще здесь информацию об автономных канализациях. [/url] И что? Эколайновских поляков на каждом углу, экономить 300 баксов и брать украинскую емкость стремно. Граф - очень дорого. Можно или Грин Рок купить, или БиоБокс. Если есть достойное предложение - буду рад увидеть в личке Посилання на коментар Поділитися на інших сайтах More sharing options...
bumerang Опубліковано: 7 серпня 2013 Поділитись Опубліковано: 7 серпня 2013 Рекомендую посмотреть еще здесь информацию об автономных канализациях. bio7active.com/ru/products/339-Avtonomnaya-Kanalizatsiya-dlya-Dachi-i-Doma.html дорого у вас однако Посилання на коментар Поділитися на інших сайтах More sharing options...
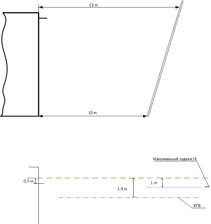
bumerang Опубліковано: 8 серпня 2013 Поділитись Опубліковано: 8 серпня 2013 Надеюсь ТС меня простит дабы не плодить тему задам вопрос здесь. в прикрепленном файле текущая ситуация, знатоки предложите варианты канализации, желательно энергонезависимой. Посилання на коментар Поділитися на інших сайтах More sharing options...
bio7 Опубліковано: 8 серпня 2013 Поділитись Опубліковано: 8 серпня 2013 И что? Эколайновских поляков на каждом углу, экономить 300 баксов и брать украинскую емкость стремно. Граф - очень дорого. Можно или Грин Рок купить, или БиоБокс. Если есть достойное предложение - буду рад увидеть в личке У нас можно приобрести только то, что есть на сайте bio7active.com. Думаю это достойные предложения. Зачем придумывать велосипед, если он уже придуман до нас? Как для ассортимента, предложения от 3-х поставщиков вполне достаточно, тем более что они конкурентны между собой по качеству, цене и конструктиву. Огромный ассортимент септиков и биостанций - это пройденный этап. Хозяину дома нужна канализация, которая будет работать долго и надежно, минимум ежегодных затрат и самое простое обслуживание. Из всех продуктов, которые есть в Украине, я выделил по этим критериям 3 варианта. Посилання на коментар Поділитися на інших сайтах More sharing options...
bambino Опубліковано: 8 серпня 2013 Поділитись Опубліковано: 8 серпня 2013 У нас можно приобрести только то, что есть на сайте bio7active.com. Думаю это достойные предложения. Зачем придумывать велосипед. Чтобы быть конкурентнее других. Или предложите лучшую систему, или лучшую цену. А пока совершенно неясно зачем за тем же Эколайновским септиком идти именно к вам. Посилання на коментар Поділитися на інших сайтах More sharing options...
bio7 Опубліковано: 8 серпня 2013 Поділитись Опубліковано: 8 серпня 2013 дорого у вас однако Пишу развернутый ответ на Вашу реплику. И чтобы Вы не думали, что вот написал 3 слова, а у bio7 понеслось отвечу всем кто имеет схожие с Вами мысли, потому как часто слышу подобное. "Давайте майже задарма" - это наша менталитетная хотелка. Дорого или дешево это понятие относительное и растяжимое. Это же не самопальные решения, а заводские, производственные. Цена складывается из себестоимости продукции, налогов и наценки. Это не тот бизнес где получают сверхприбыли. Я не спорю, возможно построить завод и сделать для себя септик по себестоимости будет дешевле или самому поехать в Польшу, Германию, погрузить септик и привезти сюда будет дешевле. Сомневаюсь, что Вы это будете делать. Скорее всего Вы сами купите жбкольца и построите из них септик. Дешево и сердито, но работает недолго. У меня были случаи когда люди не успев запустить жбсептик в работу заказывали биостанцию из пластика, потому как в кольцах стояла грунтовая вода. Я жбсептик никогда не ставил, потому что это головная боль. Когда он перестанет работать "наши" люди потом не слезут и с вопросом: "Почему построил жб, если знал, что кольца не работают" будут требовать отремонтировать или переделать. Посилання на коментар Поділитися на інших сайтах More sharing options...
bumerang Опубліковано: 8 серпня 2013 Поділитись Опубліковано: 8 серпня 2013 Скорее всего Вы сами купите ж/б кольца и построите из них септик. Дешево и сердито, но работает недолго. У меня были случаи когда люди не успев запустить ж/б септик в работу заказывали биостанцию из пластика, потому как в кольцах стояла грунтовая вода. Я ж/б септик никогда не ставил, потому, что это головная боль. Полностью с вами согласен, что обычные кольца не работают, так как добиться герметичности соединения кольца с дном почти невозможно. Что вы скажете про бетонное кольцо, которое вылито вместе с дном - бетонный стакан, из бетона с гидрофобизирующими добавками. Пластиковую емкость нужно якорить. Бетона на "якорь" пойдет тоже не мало. 1 Посилання на коментар Поділитися на інших сайтах More sharing options...
valeriy123 Опубліковано: 8 серпня 2013 Поділитись Опубліковано: 8 серпня 2013 что обычные кольца не работают, так как добиться герметичности соединения кольца с дном почти невозможно. Подскажите, что значит бетонные кольца не работают? Что физически происходит? И зачем добиваться герметичности с дном, там ил и он замуливается со временем. Спрошу по другому. У кого то были отказы и в чем это выражалось? 1 Посилання на коментар Поділитися на інших сайтах More sharing options...
bumerang Опубліковано: 8 серпня 2013 Поділитись Опубліковано: 8 серпня 2013 Подскажите, что значит бетонные кольца не работают? Что физически происходит? И зачем добиваться герметичности с дном, там ил и он замуливается со временем. Спрошу по другому. У кого то были отказы и в чем это выражалось? кольца не работают при высоком уровне грунтовых вод (УГВ) Весной в паводок возможно поднятие уровня воды в септике из бетонных колец. герметичность как раз нужна, чтобы грунтовая вода не подпирала фикалии. 1 Посилання на коментар Поділитися на інших сайтах More sharing options...
bio7 Опубліковано: 8 серпня 2013 Поділитись Опубліковано: 8 серпня 2013 Чтобы быть конкурентнее других. Или предложите лучшую систему, или лучшую цену. А пока совершенно неясно зачем за тем же Эколайновским септиком идти именно к вам. Отвечаю для Вас персонально. Можно хоть 10предложений сделать как это было у нас ранее, но потом оказывается, что некоторые поставщики не очень надежные, другие не имеют складских запасов, у некоторых "хлюпенькое" ненадежное оборудование, у четвертых технология очистки очень сложная или наоборот урезанная версия или обслуживание таких станций требует частого вмешательства. Лучшая система думаю еще не придумана. Есть более низкая цена - Укрхимпласт, средняя - JPR Aqua, повыше - Graf. Лучшая цена - это как? Демпинг? Обвалить рынок? По правде говоря, Ваш последний вопрос очень закономерный. Я думаю мы в недалеком будущем придем к тому, что сами будем импортировать оборудование, потому как тяжело понять позицию импортеров (не только Эколайн, конечно же, это у всех так) в нашей стране. С одной стороны они продают в розницу через своих менеджеров и в тоже время хотят создать эффективную дилерскую сетку. Поэтому на сегодняшний день мы пытаемся заинтересовать своих клиентов ассортиментом, высокими скидками и качеством обслуживания. На сегодня на польское и немецкое оборудование мы предоставляем до 10% скидки без оговаривания этой скидки с импортерами, сводим клиента и исполнителя (прораба) напрямик для того, чтобы цена на работы была ниже, чем у других фирм, производим бесплатную консультацию по монтажу (считайте это бесплатный шеф-монтаж в телефонном режиме или офисе). Ассортимент у нас конечно же больше, т.к. у нас несколько видов оборудования от различных компаний в отличие от других. Посилання на коментар Поділитися на інших сайтах More sharing options...
bambino Опубліковано: 8 серпня 2013 Поділитись Опубліковано: 8 серпня 2013 Пишу развернутый ответ на Вашу реплику Классика жанра - 1. Мы тут чуть-чуть зарабатываем, на эти 2% и живем. 2. Все, что другое - полное Г. Если купите не у нас - потом сами пожалеете. Продаванские песни о главном. Меня, как покупателя, интересует другое, но ничего интересного вы не рассказали. Поэтому на сегодняшний день мы пытаемся О, вы дописали последний абзац - это уже получше. Называется повернуться лицом к клиенту. Посилання на коментар Поділитися на інших сайтах More sharing options...
bio7 Опубліковано: 8 серпня 2013 Поділитись Опубліковано: 8 серпня 2013 Полностью с вами согласен, что обычные кольца не работают, так как добиться герметичности соединения кольца с дном почти невозможно. Что вы скажете про бетонное кольцо, которое вылито вместе с дном - бетонный стакан, из бетона с гидрофобизирующими добавками. Пластиковую емкость нужно якорить. Бетона на "якорь" пойдет тоже не мало. Я считаю, что кольцо с дном это неплохое решение Будиндустрии. Сам его применял для КНС. Вопрос лишь в том, что бетон гигроскопичный материал вбирает в себя воду, сколько он прослужит при нынешних технологиях непонятно, да и налипает на кольцо жир и фекалии, потом тяжело почистить. Замок между кольцами, о котором заявляет Будиндустрия воду конечно же не держит, вода заходит во внутрь кольца через шов между кольцами. Проверено в Процеве. Кольца якорить конечно не надо. Для якорения септиков мы перешли на тротуарные плиты 8К8 и цена небольшая и удобно в монтаже. Добавлено через 3 минуты Классика жанра - 1. Мы тут чуть-чуть зарабатываем, на эти 2% и живем. 2. Все, что другое - полное Г. Если купите не у нас - потом сами пожалеете. Продаванские песни о главном. Меня, как покупателя, интересует другое, но ничего интересного вы не рассказали. О, вы дописали последний абзац - это уже получше. Называется повернуться лицом к клиенту. Просто хамство с Вашей стороны и ничего более. Сделали какие-то гадкие однобокие выводы. Поменьше бы таких клиентов как Вы. Посилання на коментар Поділитися на інших сайтах More sharing options...
bumerang Опубліковано: 8 серпня 2013 Поділитись Опубліковано: 8 серпня 2013 (змінено) Я считаю, что кольцо с дном это неплохое решение Будиндустрии. Сам его применял для КНС. Вопрос лишь в том, что бетон гигроскопичный материал вбирает в себя воду, сколько он прослужит при нынешних технологиях непонятно, да и налипает на кольцо жир и фекалии, потом тяжело почистить. Замок между кольцами, о котором заявляет Будиндустрия воду конечно же не держит, вода заходит во внутрь кольца через шов между кольцами. Проверено в Процеве. Кольца якорить конечно не надо. Для якорения септиков мы перешли на тротуарные плиты 8К8 и цена небольшая и удобно в монтаже. что вы может предложить для семьи из 4 человек с периодичным проживание и возможным увеличением до 7 человек. В ситуации, которая приведена в сообщении. Что это будет стоить по деньгам под ключ. Ну и консутруктив. Бюджет 20 000 грн Змінено 8 серпня 2013 користувачем bumerang Посилання на коментар Поділитися на інших сайтах More sharing options...
bambino Опубліковано: 8 серпня 2013 Поділитись Опубліковано: 8 серпня 2013 (змінено) Просто хамство с Вашей стороны и ничего более. Сделали какие-то гадкие однобокие выводы. Вывод простой - обругали железобетон, т.к. он дешевле и мешает продавать пластик. песня одна и та же - негерметичен и не надолго. У поклонников бетона другая - пластик сдавливает грунтом, а потом продавец поет песни про "сами виноваты". Слушать неприятно ни тех, ни других. Без полить грязью конкурентов никак. Касаемо 10% скидки - тоже завлекуха для наивных клиентов. Цену задрали и 10% дают все, кого спрашивал. Так что за жест доброй воли в нынешних реалиях не пройдет. Конечно все хотят сговорчивых клиентов, таких, что не торгуются. А клиенты хотят адекватных поставщиков. Когда дойдете до статуса импортера, может у вас и появится интересное предложение. А пока не вижу смысла покупать через вторые руки. Змінено 8 серпня 2013 користувачем bambino Посилання на коментар Поділитися на інших сайтах More sharing options...
bio7 Опубліковано: 8 серпня 2013 Поділитись Опубліковано: 8 серпня 2013 что вы может предложить для семьи из 4 человек с периодичным проживание и возможным увеличением до 7 человек. В ситуации, которая приведена в сообщении. Что это будет стоить по деньгам под ключ. Ну и консутруктив. Бюджет 20 000 грн Посмотрите вложение. Самотеком не рекомендую, т.к. в критический период подъема грунтовой воды затопит дренаж и вода не будет уходить в грунт. В Вашем варианте я бы сделал только с КНС. По нормам расстояние от дренажной трубы до УГВ должно быть 1м. Для работы дренажа необходимо расстояние мин.0,5м. У Вас 0,5м при всём желании не получается. С бюджетом в 20000грн. мы можем только предложить покупку оборудования, "под ключ" бюджет очень мал, данное решение будет стоить дороже.схема_1_самотёк.pdf Посилання на коментар Поділитися на інших сайтах More sharing options...
bio7 Опубліковано: 8 серпня 2013 Поділитись Опубліковано: 8 серпня 2013 Вывод простой - обругали железобетон, т.к. он дешевле и мешает продавать пластик. песня одна и та же - негерметичен и не надолго. У поклонников бетона другая - пластик сдавливает грунтом, а потом продавец поет песни про "сами виноваты". Слушать неприятно ни тех, ни других. Без полить грязью конкурентов никак. Касаемо 10% скидки - тоже завлекуха для наивных клиентов. Цену задрали и 10% дают все, кого спрашивал. Так что за жест доброй воли в нынешних реалиях не пройдет. Конечно все хотят сговорчивых клиентов, таких, что не торгуются. А клиенты хотят адекватных поставщиков. Когда дойдете до статуса импортера, может у вас и появится интересное предложение. А пока не вижу смысла покупать через вторые руки. По жбкольцам я ответил конструктивно. Ничего лишнего. Таким клиентам как Вы нужно еще увеличивать стоимость сметы на 20% - за вредность. Покупайте через первые руки, кто Вам мешает? Посилання на коментар Поділитися на інших сайтах More sharing options...
valeriy123 Опубліковано: 8 серпня 2013 Поділитись Опубліковано: 8 серпня 2013 (змінено) кольца не работают при высоком уровне грунтовых вод (УГВ) Весной в паводок возможно поднятие уровня воды в септике из бетонных колец. герметичность как раз нужна, чтобы грунтовая вода не подпирала фикалии. Тут я не понял. А куда девается водичка из септика (любого) при высоком УГВ. И какая разница при этом какой септик? Можно три кольца последовательно на плиту, все с добавками типа пенетрона. И я так понимаю 100 лет без бед. Что то не так? Змінено 8 серпня 2013 користувачем valeriy123 Посилання на коментар Поділитися на інших сайтах More sharing options...
Рекомендовані повідомлення
Створіть акаунт або увійдіть у нього для коментування
Ви маєте бути користувачем, щоб залишити коментар
Створити акаунт
Зареєструйтеся для отримання акаунта. Це просто!
Зареєструвати акаунтУвійти
Вже зареєстровані? Увійдіть тут.
Увійти зараз