Перейти до публікації
Пошук в
  • Додатково...
Шукати результати, які містять...
Шукати результати в...

Мій будинок ШАЛЕ (Chalet)

hrdrive

Рекомендовані повідомлення

докупили квіточок, наразі в горщиках, потім розсадимо.

готовлю хату до штукатурки з середини. розкидаю проводку. треба підісіяти на газоні проблемні місця.

(ссылка на изображение устарела)

(ссылка на изображение устарела)

(ссылка на изображение устарела)

(ссылка на изображение устарела)

  • Лайк 12
Посилання на коментар
Поділитися на інших сайтах

  • 1 місяць потому...
Фініш з розкиданням електрики. 100 точок вийшло. Вже прийщли штукатури, в понеділок стартують.

IMG_20150904_074634.thumb.jpg.2ea6e5c54837114e07692091c048f710.jpg

IMG_20150903_074533.thumb.jpg.260f66cbe15962d2bc12becb37f1f3bc.jpg

IMG_20150903_074447.thumb.jpg.422afe3c6d98bf929c8394af4ace13eb.jpg

IMG_20150904_074707.thumb.jpg.e316fccba7aa3a6c7f04b6fc85df420e.jpg

  • Лайк 1
Посилання на коментар
Поділитися на інших сайтах

  • 1 місяць потому...

завтра квітка по штукатурці. 350 м2 стелі і 50 м2 стелі. паралельно за мастрами поставив всі елетричні коробки. 90 шт вийшло на 127 м2 площі.

тим часом газончик віджив після посухи

(ссылка на изображение устарела)

Посилання на коментар
Поділитися на інших сайтах

заштукатурився. вчора квітка була. 330 м2 стіни, 50 стелі і 60 м.п. відкосів. - 9 кубів розчину пішло. заодно доурували перегородку в тамборі та вирубали двері на терасу з кухні.

t-PTw9gbj12gjpcaBROpY45gXRncvMwqrOOwhERfj0fFlOGm8rpBVHtqFCE_grlY7bqDAt5nHr6_3zcRTblepCtb6eMeyG3iJIjE_aLO7J6UaQZOFV2xkkbOuWhwklMDUlVYfZ79gAwB3M9Y9tv1YstflHKxtXJ-orfLcCQWm91Xw3vCr8vi63RRSPKbe5udb1Od6dou3PHG8EQFElQrWquiRCDL6HWrFvmD9RGviLUz2C4AP-2tdugl7-oTPj4m4_Ay7dt_iGRXjfhbDCTHQ7fCfhcH85AeyzwIFADq6EkMeORpS8koRBwfvvutcWY8dVvZlz0Jd8HYCmmlJ3jaznEgA5Fu4SmWtMg9TXJZXlRtCztohyGJ3bFx70MhNgLX0iU8NlyT75IBsvKb8KqmVwj6zyC1Gvrb68xj-d2wwOvBddX7Q0qdGmAR4oCM6j_Q9Rl9YpMQ_oDEwBateZLswCYwxomOeMHRAhJA7fdJUm36gsqQAwo5vhM-qyYVQJxyno41OKqjnbqKaN2cI-IcMluamxgAqoQrbyAeEpi_3lA=w501-h667-no

FQiNekkEzGEqsB-VJQFeDavC7wZpW7QBqgmMJ0IiPiL4upg78Wz3-SlQPg71tO2vfJ3a8Cpphgrj_oC7PcANYbryr18_YmMnQGnsB8E6YTmKejXbZLsme-2X0NLMU-M_6R8m4qypFTBfghlurlwRjrbGlkwExVUUcbfgxI12dU20ipdOsv4t-C-i6Dm-dpQuhks00VfR3hJOXWbjeaEg537rlMVswy4vCvbY6UsnqDp6EZbj5qRX9VhVVi0zb-XXNT2hormABj1kDOVX3HvIuXXTsm4HFrmbu1umy5jTdFvE3uOnuoSikOjmjYZ_NswXuy868Ss0H18bUFGiTcCPo8EkCeSmTJCDy34rGbqPbySuDvWC2Y-g7066g5qhloePvtomDTb41scP9qaz3DP55qSo1T8vC6A3MrNdB-k0bSo6ATxNHk3ppdsOhwtp_vC077EM87ybMvmd1n9dGCpdzSHpjpMmsH7ksa2pKoS6Oz5GcRrMsV_52kLch_1BNA1dotL7akIn99UUU_a38K3oaN48Uq4GiJAE5d4Kf2EZ0zU=w1168-h416-no

t8oXIMCF4tPfp3bm_2030nU1h_7tk0tyiyTMzDLYOLPcE5yIvmPjknpfhSMIYaoOWxBM2Lv8pFAhRebsA86yN0XwY5C-5xxrSt0ZsIBVrk3ybInDp1YPMkC3vhVfwvPH5vaqQ_NrZ4QlKykJxRa3baS6ir3FIW2LZLsQATLFeZOJNDFPaVeegOcezzzMh0JROvDxYdER98983AOUOmP4iAdHsjHPXci9tNQS2XuelODJeP_iAl0Z7-be6SeuNjaa71n5q2UGeQHULuFwVS1C4rM2ZY2PsXZKKZr2ETuPd-LQL277MdqIf3JF8INldbbJcwxJ4vrQHqQtg4Iwgk2XPO6q500sqBkfD4-bEqbLavu-X8IwkdacrcBaSvRVyutg4CdhccQmHtvBvYBJtV-9efH4f0oAT28YHabPEpyICVp7kmO5YPFlVR-GNZdSDJMl5wmIFiGI7Mkek9SNsGfyt9DBCw3Gzse6DlMHaKlVkZCdBK1Hq14FHiOX8ix2pPf506-KkRYUlforQlDHKVJKmJfBQTsExgE-zh9gMlwmTP8=w1136-h416-no

W5gzXcwLQCdFYU9CFNy5p2aOacx4hVcrR9ofdGiNu1IMjV_Pp7aMnMZ8MCD11V29RevMioNCVIAPknwbX0MRd3oEKS8qPnLtluob6Ha91ruCQl8K3nubcDLLqhQf3-Yw1wwvzr7rt75pUAUo2P18dexg8TK8ZVacAyQQXiFoRZ-94nEYxAU02p21oo_tyaSt9ufYEOcwYvBQCzqfupeLbeC4wkmeA1RdF8JQTVB3nKlQh9UIpf9ilFB4oaoKz6ClTXjeNzSdNh2Vq9ZJjSzup_e-94qdfC52maT2ccd1d5YqAM75Kmr3S0pTmukuW0676QFS9UcCVXPEtDhMZqA87czO-5dnrtR5W5NsLGKaMpcluwmHmPOePMhGMqwbaylOKHG0DoV_5gJRx80E-KDt9GwgCM1Y2Rf1HgBnc-nMe54b2nkcW3bSA0_88z_w0_tSJWfbhpi5P8uSqHknUc1TVjXaykfgEIJAS_QkBSlrpNm6b6utEq-mt-d-vwjqDi9J-0_H25APVGZAsP82rZVyxnsGTmWu9e7Jg_FwvMY_qgE=w1152-h400-no

VBgq9c8eEkKwPUXnBMmY-581FFC29BI8lexBsVsKE10fpcHRR5nHvRmnfGuN0ak8zJVHJbeI7uqXemsFLNISG-4E728ehisccQa8AHq6F9T4OiJKY8eZG4en9jnesx4w48XXLvpZdCY_PpvZP3m42TYxwWQFslPjJbL05Vd1t-F0GM5iURo5cJSj8dtXibPj3vY4zxq4VajLSmxnc1MUXkxG8k5VreBcULYAxDh0GxDUvj157Re6hKkNmlnFXCTuA86_7fo1L_dbbFzDJJN-EYM8iARjolZuE7BtXyEL5o7tdBkFOOzsc4tnBVmD0ZHNGftk0TyhWBeKzs2if3E0KWsw96vTzommaCfRh5qsUXrcQ3Cr3AkywW9YeQtk-A7nxRgyZgg7JuNDRRM7-PTGK7gXj0g5tOMGUw7zO-mGqcIfYv0kdcJKAjlcfNveCBaygN510-IyxNK67M5E_4LK24AuoPw3pXbkzFeZm_JdTb3zdtULniThNwa0sl1adWW3fyHtfsoyOnb2DFg-w6sA_k1vbzvIMahnrzwaZ1DbE1w=w1296-h592-no

2iNI5WhRI4f32wJo8Ek1DmRbuGaYiChOwunGlyKX6tU5-WBvEgzs6s7SPG-vVYZvsDM6J1up1BCk4N5vWswac1945K17Y1ViLCjpxV5P0zXOsCFRbUqHk4Ce_xXawxYRf2MA2Bdw6ffg_AAZTc6FLRdVk7OrpAeBNSAMI0inf7gK95XwTVThA7aSVbRTXGyHnvNIrHgyfxnVfnF7s8_0q5Qtss_iz_o6ojmDVcgzzWTHJDsbWXRww30qvSg2YQA3EUSP-cZ1ebBNzzPramjNzqqt2Y63PxoxGVsGicSHodxpk0dCu_GADa5N-7n2zCMGQU52vs1HSuU7alYiT8ZyorPxTaMq1Ok6Z8Y_7mU9EaXhbP4Hc5z8VK4uElIOp7j2g38YhDm3o3xcv-_lKUEXPWDib0JXzA9kSCAYgnVp1gqYLrq3X5q6eEPvLJ6JBpZjix33368B0v634LW6kskLBD8CwBENexX6IR8GBSTNGZDsVODp2S-APLzTazDAWjDj3pQrQf1pHZtYxushknt9SqYN9sqUgHg5CAEv2VPty4s=w864-h576-no

ruBm63eVW2bDh_IdhlMbvQgJZj3w8jbWpDSCD5Vob4o9YjeeJaXOrVq_RVRN1wJtv_47ODh7AjuHyNwHmVibtbCFgHFNpHqzSISQODpmRbAdVjOSpJh2ZNODrylfezNraBVg4qeeL9wWSyn27CUpQz0OEEVMf8Poz5M9Pr6AkG80qkD2rlYXJ0sKYp8KNxmjCyFO4GryWgQJ4-X0lKd2wS4GUvlZJ4QkBdHd4BZW5PoyIlJWuNAOj_oSGXZZnWYZj4MDi0PQUMnotRRnJgCGij21OFHABTnbjOqMBl3cMDO7lKV8qvCUl8nUuQbwXlv6rntl3riqKDRydPbWfRpB-8G_zs67xGy-23lvv_D3MVmEfabEnr-66T2H9eXRQj52NeZ0QhhZZc7mZaZ05PPkotN4vE_2Oz4vJ5qxeTV7UdhWLVW3lP0hah3CYHvQiWhX99QiaFUXjBzV3-4QZrFnOR3erpSvrc4jqPDBRjxJ8V-_MY3HKvIpccDsT5ADY9NQVweqx07EWpjv2kWGidO2vq2qbnKdS4fxGPg6qYTE1Wo=w354-h667-no

6OFsBu2-G0KJ-gAMXN2wRu_jYYx1oL6nZRUiA2OXJBp3M81I5ejri4kxJ7JNetWF-VSIRlUJqY-e-1io49-_3Ou3ASN6PBOwg_Jf_0kZh1iW-iXQjeItuq64EkVkYnQKhpV4E_F4z2rSIWZ82ZtQFycSLzf8blkPVMmys5IkdkBa58deKom_V9xGRp55QNFQuqc6ODtmn7F9LlHZfKH9QYbKw3awveF_ZwA8gtvY6wE47JywICGi-UihNQsn7CX9Av9tV3LzXn6z_0Sacf80zkBdI1bL6HY8YU4OarxL8ZEbNiWZXWBHzC9o9P_rbJqepOJjvm00TrWwKJTJ2S51TOsdJDBLW-eYes92JD2Td-9E0Va_VZjbXMyvMUtQs__Gx8SXqXNt35zuPrvmty2ve1A3NXOk7dXLmEdze428wgfobaPdvylQpc6r9EIwC6tXwTgP0HpV3KnGaDcJEtPa8EF8hTO6Qc50mvwZuzzzPemLLrjHox8Et8dELS09I-5YAKtHo2rAu6MHRg5GSGWPArTSUzY-CBygCFSwZ224Iyk=w358-h667-no

0jFtvmkytCTSkNapvTCl8ZdB5xLt1oItUfnsuGcZY4dv7khS9ZclSJAs36kOTWB77IPWtAMbrpbxafLQb66ZmTaB8Dsw_Wc6KGmE-gt18lvOQclpzaC5bEMD_lNUMvTq6Sw2gtEPiNdaTauWOAt54a4t34NEg4oyABGn5ahlkBATQiulHV13FOyluG_0nN7MpaZDkpxQJsxjUUC-ujIR776txapcTMg31VCXZ_-8xzwpzXGsCG5tplrfbIpv3DJ4ZhxLBPILrmVlvwdytDpp6n2IL5D1aFzeq4aEBozUTlbZEkEnTHcBcCgDfBPaSh8rZySBczVbNvFGaMeEUKAGInCfa5IYtr42nGraSeFt5d4sRuUCfANYNIi88cCOLUEauqJ46C4emrF0h_FpPwheC9Qrfr9Ay17SEkrs0kh8EDuBTyG-VN3S-kLhIFlmzAbIKzmTfFhxZpXnAya4ErA7BPbnk7kytKRKBVq05EPQ4TpYFB98KPvaBRwtvv7F6d7ISX-t91mXIPc1Mn3IBaDxZv7vuTO4spEQSNymHFCQc3I=w363-h667-no

  • Лайк 1
Посилання на коментар
Поділитися на інших сайтах

А на фото с прорубаной дверье на террасу на стене в кладке как дырки в кладке и над поясом справа тоже как трещина- это только кажется или действительно там такое есть?
Посилання на коментар
Поділитися на інших сайтах

Фоток в попередніх двох повідомленнях не видно.

 

Днем на рабочем компе видела, а сейчас на телефоне тоже не вижу :(

Посилання на коментар
Поділитися на інших сайтах

  • 2 тижні потому...
Поставив двері на майбутню терасу. Почав прибирати територію після штукатурів. Десь 2 куба відходів з 9 використаних розчину. Зрівняв площадку для авто, спалив купу хламу.

IMG_20151017_122837.thumb.jpg.b242928faf97d99e06964ee058b8ada5.jpg

IMG_20151017_180924.thumb.jpg.95a91c162e337db445cc0c9be429bd9d.jpg

IMG_20151017_122927.thumb.jpg.735b92805c64dea3040ade196eab7fde.jpg

IMG_20151017_164222.thumb.jpg.b0cda5688e5907ce41e5ae4708d6fd21.jpg

IMG_20151017_164836.thumb.jpg.62e6bdfedf35245fec263514c8545662.jpg

Посилання на коментар
Поділитися на інших сайтах

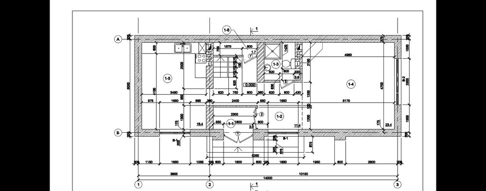
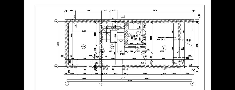
Доброе время суток, интересный у Вас проэкт, только вот жаль фото планов не открывается, если не сложно можете перезалить, уж больно интересно посмотреть на планировку.
  • Лайк 1
Посилання на коментар
Поділитися на інших сайтах

Створіть акаунт або увійдіть у нього для коментування

Ви маєте бути користувачем, щоб залишити коментар

Створити акаунт

Зареєструйтеся для отримання акаунта. Це просто!

Зареєструвати акаунт

Увійти

Вже зареєстровані? Увійдіть тут.

Увійти зараз
×
×
  • Створити...