Ostap Опубліковано: 24 травня 2007 Поділитись Опубліковано: 24 травня 2007 Вот решил домик построить ! Кто желает поучаствовать буду признателен ) Земля похожая на суглинки. Первый этаж уже нарисовал. размер 8,4 на 11 м. Посилання на коментар Поділитися на інших сайтах More sharing options...
Homer Опубліковано: 24 травня 2007 Поділитись Опубліковано: 24 травня 2007 Дружище - я пока тебя в Обсуждение Проектов - перенесу - там советов будет больше - начнешь реально строится - переместим в Как мы Строимся. Посилання на коментар Поділитися на інших сайтах More sharing options...
Ostap Опубліковано: 24 травня 2007 Автор Поділитись Опубліковано: 24 травня 2007 Фундамент думаю монолитный Посилання на коментар Поділитися на інших сайтах More sharing options...
Homer Опубліковано: 24 травня 2007 Поділитись Опубліковано: 24 травня 2007 Фундамент думаю монолитный И наверное ленточный??? А цена цемента в этом году не пугает? Но правда монолит - есть монолит. Посилання на коментар Поділитися на інших сайтах More sharing options...
Homer Опубліковано: 24 травня 2007 Поділитись Опубліковано: 24 травня 2007 Кухню "сдвинуть" в плоскость гостинной - так вроде логичней - тогда сан. узлы правильно построятся. Посилання на коментар Поділитися на інших сайтах More sharing options...
XamGelo Опубліковано: 24 травня 2007 Поділитись Опубліковано: 24 травня 2007 Здесь надо менять все ИМХО! Гостиная 45 квм а кухня 10? Вход в ванную из гостиной - это шутка? Раздельный санузел в 2 этажном доме - пережиток совковых мировоззрений? Посилання на коментар Поділитися на інших сайтах More sharing options...
Телесистемы Опубліковано: 24 травня 2007 Поділитись Опубліковано: 24 травня 2007 Навеяло: в 2000м году бывал в одном из офисов партии нашего президента. Какой-то очень "задумчивый" проектант из "Познякижилстрой" задумал и спроектировал душевую в приемной , то ли для секретарши, то ли для будущего президента - я так и не понял , зато видел как секретарши в ней (душевой) сливы мыли 8) Посилання на коментар Поділитися на інших сайтах More sharing options...
dosdom Опубліковано: 24 травня 2007 Поділитись Опубліковано: 24 травня 2007 Считаю, что гараж в доме - и большие проблемы, и существенное удорожание дома. Гараж надо или пристраивать, или ставить перед домом (ближе к улице.) Основные проблемы с гаражом в доме: 1) большие потери тепла зимой - если только гараж не утеплять хорошо изнутри - что дорого и неудобно; 2) пожароопасность для дома; 3) запах бензина (если дверь сразу в дом). А если нет (как здесь) то зачем вообще он в доме? Посилання на коментар Поділитися на інших сайтах More sharing options...
XamGelo Опубліковано: 24 травня 2007 Поділитись Опубліковано: 24 травня 2007 Гараж в доме должен оборудоваться вентиляцией. вход в дом через тамбур. Да и запах от нормальных машин не сильный, это жигули с москвичами и на улице за 5 метров смердят Потери тепла - можно при расчете теплопотерь гараж вообще не учитывать, а граничащие с ним помещения считать как граничащие с неотапливаемым помещением. Пожароопасность при обесточенной машине - не больше чем от газовой плиты ( если не хранить в гараже запасы бензина и промасленную ветошь ) А в чем удорожание, если конечно не ставить фанерный гараж и остальной площади хватает на все нужды? Посилання на коментар Поділитися на інших сайтах More sharing options...
Ostap Опубліковано: 25 травня 2007 Автор Поділитись Опубліковано: 25 травня 2007 Спасибо за коментарии XamGelo Согласен что-то не так.. а как же по другому ? Гараж не подвинешь, что подвинуть ? Посилання на коментар Поділитися на інших сайтах More sharing options...
Romka Опубліковано: 25 травня 2007 Поділитись Опубліковано: 25 травня 2007 ИМХО если гараж - святое и его трогать нельзя, то надо как минимум поменять местами туалет+ванная с кухней, чтобы кухня переходила в гостинную, а туалет с ванной однозначно объединять надо. при этом кстати "умывальники" которые вы поставили на чертеже ( я так понимаю для обозначения точек подключения воды) будут расположены более компактно. Посилання на коментар Поділитися на інших сайтах More sharing options...
Ostap Опубліковано: 25 травня 2007 Автор Поділитись Опубліковано: 25 травня 2007 Строить отдельно гараж нет настроения,хочу всё махом,тем более я любитель ремонтировать автомобили,поэтому нужна база. Как переедем то ездить в Киев за инструментом,запчастями резона нету ! На первое время нужно : Гараж,кухня,комната,с/у. через год,другой обустроим второй этаж. Как скомпоновать по вашему ? Посилання на коментар Поділитися на інших сайтах More sharing options...
alexa Опубліковано: 25 травня 2007 Поділитись Опубліковано: 25 травня 2007 У вас гараж съедает все пространство и нарушает планировку. Такое ощущение, что дом строится не для человека а для машины. Ну коль у Вас такие приоритеты, то тогда нужно оптимально использовать оставшееся после гаража пространосто, для этого нужно сделать минимум перегородок. Санузел совместить и переместить к входу. КОридор сделать шире, он очень узкий. Предусмотреть тамбур, место для шкафа с одеждой. КУхню сделать совмещенную с гостинной, можно через арку. А второй этаж будет? Если нет, у Вас будет одна комната в доме? Если да, где будете лестничную клетку делать? Послушайте совета бывалого, возьмите за образец готовый проект. С нуля делать проект неблагодарное дело. Ведь нужно очень много всего предусмотреть. Специалисты на это тратят кучу времени. И все недочеты всплывают к сожалению уже после строительства, когда переделать накладно. Посилання на коментар Поділитися на інших сайтах More sharing options...
Romka Опубліковано: 25 травня 2007 Поділитись Опубліковано: 25 травня 2007 так тем более у вас кухня и туалет стоят неправильно если вы работаете в гарже целый день - то помыть руки и отлить будете бегать в дом - мимо кухни .... меня б жена убила )))))) Посилання на коментар Поділитися на інших сайтах More sharing options...
Homer Опубліковано: 25 травня 2007 Поділитись Опубліковано: 25 травня 2007 Послушайте совета бывалого, возьмите за образец готовый проект. С нуля делать проект неблагодарное дело. Ведь нужно очень много всего предусмотреть. Специалисты на это тратят кучу времени. И все недочеты всплывают к сожалению уже после строительства, когда переделать накладно. Не согласен.... для себя делал проект сам - построили вариант №132 по счету :-D кое-что сделал-бы несколько по другому - но "смертельных" ошибок - пока не повылазило. А думать дейст. надо над каждым сантиметром. 1. Объедини "Гостинную" с "Кухней" - можно кухню изолировать - а можно арку сделать. 2. Объедини сан. узлы. Тогда все станет на свои места. Посилання на коментар Поділитися на інших сайтах More sharing options...
Ostap Опубліковано: 25 травня 2007 Автор Поділитись Опубліковано: 25 травня 2007 lll Посилання на коментар Поділитися на інших сайтах More sharing options...
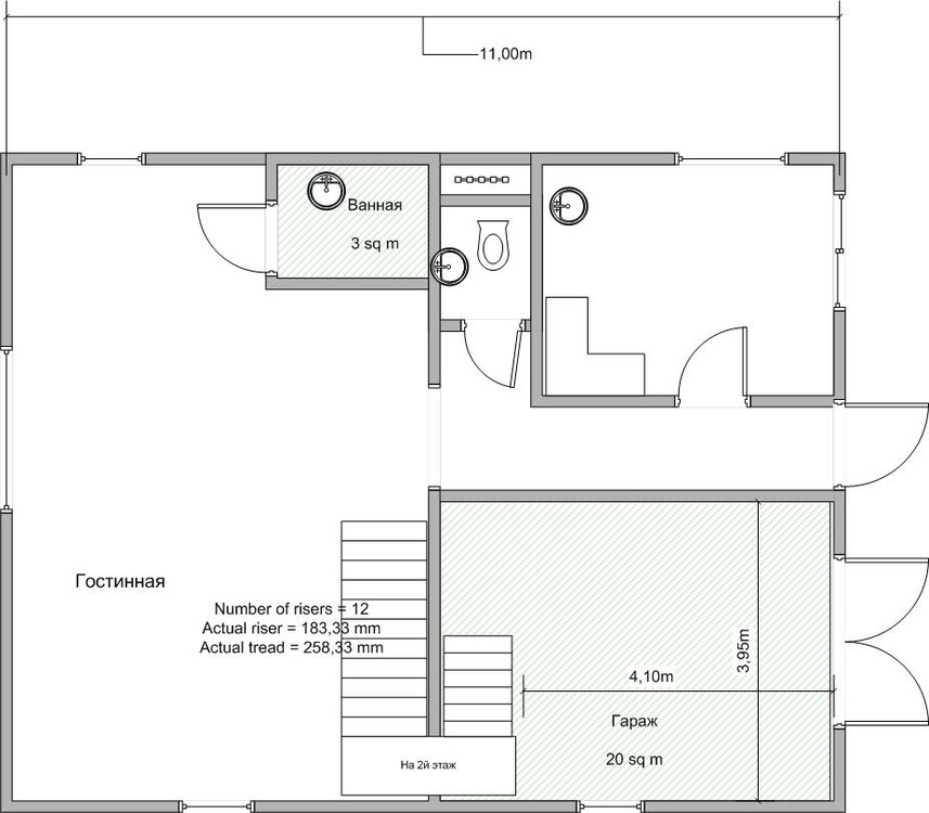
Homer Опубліковано: 25 травня 2007 Поділитись Опубліковано: 25 травня 2007 Я вот так имел -ввиду. Не забудь про несущую стену внутри дома - куда плиты лягут. Посилання на коментар Поділитися на інших сайтах More sharing options...
Ostap Опубліковано: 25 травня 2007 Автор Поділитись Опубліковано: 25 травня 2007 Хорошо ! а как быть с шириной,у меня 8,5 м. участок узкий 18 метров 2+9+2-остаётся проход 5 метров. дальше родители может построятся.. ? Посилання на коментар Поділитися на інших сайтах More sharing options...
XamGelo Опубліковано: 25 травня 2007 Поділитись Опубліковано: 25 травня 2007 А развернуть дом можно, чтобы въезд и вход был с широкой стороны? Посилання на коментар Поділитися на інших сайтах More sharing options...
XamGelo Опубліковано: 25 травня 2007 Поділитись Опубліковано: 25 травня 2007 Поздно прочитал, тогда гараж надо прилично выносить из дома Посилання на коментар Поділитися на інших сайтах More sharing options...
Homer Опубліковано: 25 травня 2007 Поділитись Опубліковано: 25 травня 2007 2+9+2-остаётся проход 5 метров. дальше родители может построятся.. ? И замечательный дворик получится - 5-метров - у меня также, но 4.5 - все отлично. Посилання на коментар Поділитися на інших сайтах More sharing options...
IrokeZZ Опубліковано: 25 травня 2007 Поділитись Опубліковано: 25 травня 2007 Не знаю, мне не нравится. Где в вашем проекте прихожая? Где поставить велосипед, положить футбольный мяч и ведерко дочки? И зачем вам такая огромная гстинная? Сместите туалет и кухню в гостинную, а направо от входа сделайте кладовку. Длинный и узкий коридор = минус. Будет не очень смотрется. В таких проектах гараж обычно выдвигается вперед - и интереснее смотрится и экономнее расход площади. А гараж такой, выдвинутый, обычно встраивают в забор. Итого - я бы сместил кухню и санузел по плану в левый верхний угол, в правом верхнем сделал бы кладовку-прихожую, я левый верхний угол гаража сделал бы под углом - тем самым расширив проход в гостинную. Вот так З.Ы.: а вообще то проектов такого плана со встроенным гаражом очень много в инете! Посилання на коментар Поділитися на інших сайтах More sharing options...
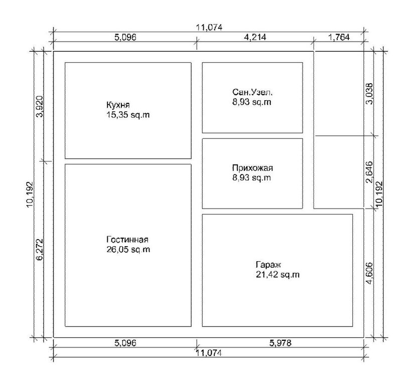
Ostap Опубліковано: 25 травня 2007 Автор Поділитись Опубліковано: 25 травня 2007 Так Посилання на коментар Поділитися на інших сайтах More sharing options...
IrokeZZ Опубліковано: 25 травня 2007 Поділитись Опубліковано: 25 травня 2007 Да, что то похожее. Но я бы сделал кладовку буквой Г за счет прихожей - она такая большая не нужна. И срезал бы угол гаража - увеличил бы вход в гостинную. Посилання на коментар Поділитися на інших сайтах More sharing options...
IrokeZZ Опубліковано: 25 травня 2007 Поділитись Опубліковано: 25 травня 2007 А нет, срезать гараж не получится... Там лестница. А почему вы не хотите выдвинуть вперед гараж? Посилання на коментар Поділитися на інших сайтах More sharing options...
Рекомендовані повідомлення
Створіть акаунт або увійдіть у нього для коментування
Ви маєте бути користувачем, щоб залишити коментар
Створити акаунт
Зареєструйтеся для отримання акаунта. Це просто!
Зареєструвати акаунтУвійти
Вже зареєстровані? Увійдіть тут.
Увійти зараз