Телесистемы Опубліковано: 25 травня 2007 Поділитись Опубліковано: 25 травня 2007 А какую машину, если не секрет, в этот гараж собираются ставить? среднестатистический седан имеет длину 4,7 метра. Или гараж - это чтоб водки попить с компанией? тогда его подальше от дома с женой надо ставить! Посилання на коментар Поділитися на інших сайтах More sharing options...
IrokeZZ Опубліковано: 25 травня 2007 Поділитись Опубліковано: 25 травня 2007 2 Ostap Ostap, я вас прошу, не проЭкт, а проЕкт!!!! Уже и мне глаза режет на форуме.... Посилання на коментар Поділитися на інших сайтах More sharing options...
sevlad Опубліковано: 25 травня 2007 Поділитись Опубліковано: 25 травня 2007 Фундамент думаю монолитный И наверное ленточный??? А цена цемента в этом году не пугает? Но правда монолит - есть монолит. А какие варианты у тебя? ;) Посилання на коментар Поділитися на інших сайтах More sharing options...
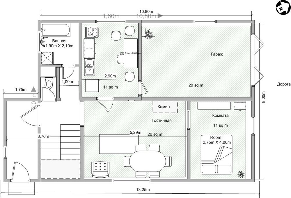
sevlad Опубліковано: 25 травня 2007 Поділитись Опубліковано: 25 травня 2007 Здесь надо менять все ИМХО! Гостиная 45 квм а кухня 10? Вход в ванную из гостиной - это шутка? Раздельный санузел в 2 этажном доме - пережиток совковых мировоззрений? +1 Автору, полистай каталог какойнибудь, и выбери себе подходящую планировку. И уже от нее отталкивайся в изысканиях. (ссылка устарела) вот например проект с нужным тебе расположение гараже и такимиже габаритами. Или вот: (ссылка устарела) (16,5м правда) Посилання на коментар Поділитися на інших сайтах More sharing options...
IrokeZZ Опубліковано: 25 травня 2007 Поділитись Опубліковано: 25 травня 2007 Здесь надо менять все ИМХО! Гостиная 45 квм а кухня 10? Вход в ванную из гостиной - это шутка? Раздельный санузел в 2 этажном доме - пережиток совковых мировоззрений? +1 Автору, полистай каталог какойнибудь, и выбери себе подходящую планировку. И уже от нее отталкивайся в изысканиях. (ссылка устарела) вот например проект с нужным тебе расположение гараже и такимиже габаритами. Или вот: (ссылка устарела) (16,5м правда) +1 фтопку ))) Даже в переделанном варианте гостинная получается как проходной двор. Куда телевизор поставите и диван напротив? Посилання на коментар Поділитися на інших сайтах More sharing options...
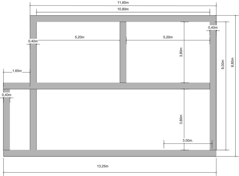
Ostap Опубліковано: 28 травня 2007 Автор Поділитись Опубліковано: 28 травня 2007 А нет, срезать гараж не получится... Там лестница. А почему вы не хотите выдвинуть вперед гараж? Подумаю.. а с фундаментом как ? увеличить до 12 метров всё ? надо тогда панели другие,хотя я рассматриваю вариант монолитного перекрытия.. Посилання на коментар Поділитися на інших сайтах More sharing options...
Ostap Опубліковано: 30 травня 2007 Автор Поділитись Опубліковано: 30 травня 2007 Новое Посилання на коментар Поділитися на інших сайтах More sharing options...
Ostap Опубліковано: 24 жовтня 2007 Автор Поділитись Опубліковано: 24 жовтня 2007 Скоро буду заливать Посилання на коментар Поділитися на інших сайтах More sharing options...
XamGelo Опубліковано: 24 жовтня 2007 Поділитись Опубліковано: 24 жовтня 2007 Ну нельзя из гаража делать вход прямо в дом да еще и на кухню. Если еще не начал заливать - попробуй сделать вход через туалет с умывальником, раз уж он у тебя отдельный задуман, рядом ванную а кухню в левый верхний угол Посилання на коментар Поділитися на інших сайтах More sharing options...
Ostap Опубліковано: 24 жовтня 2007 Автор Поділитись Опубліковано: 24 жовтня 2007 Согласен 100 % думаю вообще без двери там Посилання на коментар Поділитися на інших сайтах More sharing options...
Рекомендовані повідомлення
Створіть акаунт або увійдіть у нього для коментування
Ви маєте бути користувачем, щоб залишити коментар
Створити акаунт
Зареєструйтеся для отримання акаунта. Це просто!
Зареєструвати акаунтУвійти
Вже зареєстровані? Увійдіть тут.
Увійти зараз