Перейти до публікації
Пошук в
  • Додатково...
Шукати результати, які містять...
Шукати результати в...

Небольшой дом из аэрока вместо квартиры

kramar09

Рекомендовані повідомлення

Перемычки не бетонные, а газобетонные - заводские.

Выглядят как большие газоблоки, но внутри арматурные каркасы, на сайте производителя более детально о них много информации.

Собственно, утеплять их смысла нет, их ширина, как и блоков - 375.

IMAG0612.thumb.jpg.4758713cb1c539d9e3538ae40d21635f.jpg

IMAG0687.thumb.jpg.42df2e68896a5ba8584c03d79f4f23fd.jpg

IMAG0704.thumb.jpg.15b82dcaec5460734786df6b17413dc9.jpg

IMAG0716.thumb.jpg.5224dee1266e8e4dee5b642fb36ce79a.jpg

  • Лайк 2
Посилання на коментар
Поділитися на інших сайтах

Сегодня пропитали антисептиком Экосепт 450-1 концы балок перекрытия, которые будут обернуты рубероидом и находиться в толще стены. Ушло почти 9 литров. Ранее все балки полностью были пропитаны Экосептом для внутренних работ (производитель рекомендует его для дерева, которое будет находится непосредственно в доме, без контакта с осадками и пр.)

Цена Экосепта (более 400 грн. за баклажку 10л.) не позволит полностью обработать им стропилку, как закончатся купленные 30 л., перейдем на Сенеж.

Кстати, чтобы минимизировать расход антисептика и улучшить его проникаемость в дерево, привезенные балки-свежепил обрабатывали болгаркой с наждачным лепестковым кругом - убрали "мохнатость" деревянного ворса и налипшие опилки. Есть ли смысл это делать позже со стропилкой?

IMAG0759.thumb.jpg.dd7e3830a1ce69e76943e928ad0802bf.jpg

IMAG0762.thumb.jpg.75398b09f4dab5eb85f0babe9cdcc5de.jpg

IMAG0757.thumb.jpg.47fe885066bb4d667a3607e319525dca.jpg

  • Лайк 1
Посилання на коментар
Поділитися на інших сайтах

Тема интересная, подписываюсь! :flag1:

 

Добавлено через 3 минуты

По фото не видно на сколько Вы выпустили фундамент наружу?

Я бы наверное с таким фундаментом задумался об облицовке дома клинкерным кирпичем, у керамеи кирпич шириной 6 см. по цене меньше 6 грн./шт., если самим обкладывать то будет вечно и очень красиво!

Посилання на коментар
Поділитися на інших сайтах

В среднем фундамент с внешней стороны выступает везде на 2-4 см.

С внутренней - больше - от 5 см. и даже больше.

 

Поэтому сейчас в раздумьях, как правильно сделать "пирог" пола, чтобы "ноль" чистового пола был на уровне +-110мм. от фундамента (середина первого блока, высота которого 200 мм.). Почему 110 мм, а не 100? Потому что первый ряд ложился на цементно-песчаный раствор, толщина которого около 1 см.

 

На первом этаже кроме гостевой комнаты везде теплые полы - три контура, поэтому "пирог" виделся таким (с учетом того, что сейчас грунт на отметке - минус 120-150 от уровня фундамента).

Снизу вверх:

- песчаная подсыпка - выравнивание уровня и проливка, трамбовка;

- щебень - трамбовка, до уровня - минус 40-50;

- черновая стяжка - вровень с уровнем фундамента, по краям помещений демпферная лента;

- 30мм. ЭППС;

- трубы теплого пола 20 мм.;

- стяжка по теплому полу 70 мм (то есть над трубами 50 мм);

- плитка на клей 15-20 мм.

Итого выходим на проектный уровень 120 мм. над уровнем фундамента, ровно середина первого ряда блоков.

 

Прошу всех-всех и особенно старожилов форума попинать и оценить такой "пирог" пола.

 

О клинкерном кирпиче задумывался, но общая стоимость материалов и работы превышает запланированный бюджет на внешнюю отделку.

Возможно, вернусь к подобным размышлениям ближе к весне следующего года.

IMAG0616.thumb.jpg.eeb82345b8fd30ac2d455f8379ac468a.jpg

IMAG0622.thumb.jpg.de1ba33ce73a21081c3c46a297f031d7.jpg

Посилання на коментар
Поділитися на інших сайтах

Прошу всех-всех и особенно старожилов форума попинать и оценить такой "пирог" пола.

Ну раз просите - отчего же не попинать? ЭППС 30мм маловато было даже вчера и без ТП. С ТП вчера можно было делать от 80мм, без них - от 50мм. Сейчас несколько изменились цены на энергоносители, если слышали.

Между подсыпками из песка и щебня геотекстиль планируете? Если нет, то что помешает щебню постепенно "утапливаться" в песок?

В большинстве случаев для ТП достаточно труб ф16.

Вы планируете лить чистовую стяжку в том числе на выступы фундамента? Могут быть варианты...

Посилання на коментар
Поділитися на інших сайтах

Геотекстиль - одни говорят, что он надо, другие, что нет. Ваш аргумент убедителен, беру на заметку.

 

Запланированная толщина ЭППС 30 меня смущает, если честно. Он уже куплен, но я морально готов еще докупить столько же 30-ки или 20-ки и уложить сверху, с перехслестом стыков.

 

Толщина труб теплого пола - 16 или 20 - пока не вникал в суть отличий и особенностей применения, но интуитивно есть ощущение, что трубы, которые толще на 20%, более эффективны.

 

Чистовую стяжку я не планирую лить на выступы фундамента. Я ее планировал лить на 50-60 мм. слой ЭППС, который уложен на черновой пол, выровненный на один уровень с фундаментом. Да, при этом края ЭППСа (по 4-5-7 см) будут лежать на фундаменте, а сам он - на черновой стяжке.

 

По сути, в данный момент все помещения в доме имеют форму "ванночек" - внутренние стены Уже фундамента, уровень грунта сейчас ниже фундамента на 12-15 см. А мне необходимо, чтобы с ТП чистовой "ноль" был на середине первого блока.

 

Рассматривал варианты защемленных плит в каждом помещении (когда армировка и сама стяжка заходит на выступы фундамента и держится также на них....

 

Честно, не могу принять решение по "пирогу" пола - кучу видео пересмотрел, кучу тем на форуме перечитал, а уверенности нет. ((

Посилання на коментар
Поділитися на інших сайтах

Рассматривал варианты защемленных плит в каждом помещении (когда армировка и сама стяжка заходит на выступы фундамента и держится также на них....

Я на этот момент и намекал. Защемлённая плита у Вас не получится - защимить нечем (стены на неё не опираются). А вот обычная плита получится. Её, в отличие от полов по грунту, нужно армировать. И я ни разу не встречал, чтобы кто-то делал такую плиту из чистовой стяжки...

Посилання на коментар
Поділитися на інших сайтах

Если я вас правильно понял, стоит сделать черновую стяжку с армированием, чтобы ее края "опирались" на выступающие края фундамента?

И далее уже ЭППС, ТП, чистовая стяжка и плитка?

Какой толщины черновой стяжки над краями фундамента будет достаточно, на ваш взгляд?

Посилання на коментар
Поділитися на інших сайтах

Если я вас правильно понял, стоит сделать черновую стяжку с армированием, чтобы ее края "опирались" на выступающие края фундамента?

И далее уже ЭППС, ТП, чистовая стяжка и плитка?

Правильно поняли. Но как Вы понимаете это несколько изменит уровень нуля в Вашем доме.

Какой толщины черновой стяжки над краями фундамента будет достаточно, на ваш взгляд?

Мой взгляд непрофессиональный. И там не менее важным будет правильный рассчёт армирования. Советую обратиться за консультацией к инженеру-конструктору. На нашем форуме есть несколько бесплатных веток от конструкторов. Если они сочтут вопрос лёгким, то денег за ответ не просят.

Посилання на коментар
Поділитися на інших сайтах

Правильно поняли. Но как Вы понимаете это несколько изменит уровень нуля в Вашем доме.

 

Як варіант. Якщо стоїть задача вийти на проектний нуль при збільшеній товщині утеплювача, то утеплювач можна кинути під плиту.

 

ТС сподобався Ваш будинок (плани). Добре що з розумом підходите до хотілок і можливостей. Я теж зменшив будинок на зекономлені кошти можна буде фасад зробити кращий, або чогось самчненького дитині купити (при чому багааато купити). :lol: І я вирішив, що це краще ніж великий будинок.

Посилання на коментар
Поділитися на інших сайтах

Поэтому сейчас в раздумьях, как правильно сделать "пирог" пола, чтобы "ноль" чистового пола был на уровне +-110мм. от фундамента (середина первого блока, высота которого 200 мм.).

А как входная дверь будет устроена? Обычно дверь ставят на первый блок, соответственно чистовой пол идет по этому уровню.

Посилання на коментар
Поділитися на інших сайтах

Собственно, одна из причин, почему хочу чистовой "нуль" на уровне середины первого блока - высота дверного проема в данный момент - 2000мм.начинается он со второго блока.

Но стандартный проем для входных дверей - 2100 мм., мы его получим, выпилив вниз полблока, как раз до искомого чистового "нуля".

Такая была задумка.

Посилання на коментар
Поділитися на інших сайтах

И армирование первого ряда порежете? Двери, в основном, делаются на заказ и могут быть любой высоты и ширины.
Посилання на коментар
Поділитися на інших сайтах

И армирование первого ряда порежете? Двери, в основном, делаются на заказ и могут быть любой высоты и ширины.

Делаются. Но цена на нестандарт увеличивается на ПОРЯДОК.

У нас были высокие проемы, сейчас как раз заняты приведением к стандарту. Ширина варьируется от 60 до 90, с небольшим изменением в цене, а вот высота - :o

  • Лайк 1
Посилання на коментар
Поділитися на інших сайтах

Как раз, чтобы поставить стандартную дверь, а не делать под заказ, планировали выйти на чистовой "нуль" на таком уровне. Арматуру пришлось бы прорезать, да.

 

Если отбросить этот вариант, какая высота чернового пола над фундаментом (с опиранием на него по краям) будет достаточной? Можно ли до уровня верха фундамента засыпать щебень, а потом уже делать армированную стяжку?

 

Какая толщина чистовой стяжки над трубами ТП 16 (если считать от ЭППС), будет достаточна, если финишное покрытие - плитка?

Посилання на коментар
Поділитися на інших сайтах

Как раз, чтобы поставить стандартную дверь, а не делать под заказ, планировали выйти на чистовой "нуль" на таком уровне. Арматуру пришлось бы прорезать, да.

 

Если отбросить этот вариант, какая высота чернового пола над фундаментом (с опиранием на него по краям) будет достаточной? Можно ли до уровня верха фундамента засыпать щебень, а потом уже делать армированную стяжку?

 

Какая толщина чистовой стяжки над трубами ТП 16 (если считать от ЭППС), будет достаточна, если финишное покрытие - плитка?

Якщо підняти рівень підлоги, то може вийти проблема з вікнами. Низ вікна який був допустимо на 90 см стане на 78.

 

Якщо немає батарей, то проблема суто естетична, а якщо є батареї то все може бути дуже сумно з підбором радіатора, доведеться брати нижчий, але не 22 наприклад, а 33, або більший по довжині. І не факт, що ширший чи довший стануть.

Продивіться запитання в комплексі.

Частину утеплювача кинути під ТП (щоб відсікти тепло і не пустити в приміщення без ТП), а решту під чорнову підлогу вже для утеплення. І вийти на проектний нуль. Люди під УШП кидають утеплювач і все живе.

Посилання на коментар
Поділитися на інших сайтах

Можно ли до уровня верха фундамента засыпать щебень, а потом уже делать армированную стяжку?

Можно.

Какая толщина чистовой стяжки над трубами ТП 16 (если считать от ЭППС), будет достаточна, если финишное покрытие - плитка?

Минимум 35мм над трубами при условии использования присадок.

Частину утеплювача кинути під ТП (щоб відсікти тепло і не пустити в приміщення без ТП), а решту під чорнову підлогу вже для утеплення. І вийти на проектний нуль. Люди під УШП кидають утеплювач і все живе.

Люди под УШП укладывают 200мм утеплителя, а ТС говорил о 30мм. Кроме прочего все слои подсыпок под утеплителем истово трамбуются виброплитой, разделяются геотекстилем, а над утеплителем идёт сетка из арматуры периодического сечения ф8 с очком 150*150. И бетон кстати используется В25. Что-то мне кажется у ТС нет задачи так потратиться.

Посилання на коментар
Поділитися на інших сайтах

  • 2 тижні потому...

Стройка продолжается, сегодня возвели фронтонные стены на мансарде до уровня окон.

Поднятие блоков наверх замедляет работу, хотя на объекте присутствует механизация - электроподъемник, собранный тестем.

Вручную поднимать блоки было бы труднее.

На фото видно, сделали для подъема специальную шахту, впоследствии таким образом будем поднимать и оконные перемычки на мансарду.

Заметки:

- клей, купленный в прошлом году (срок годности до 21.08.2015), прекрасно сохранил свои свойства, перезимовав укутанный в полиэтилен в сарайчике. Были опасения по поводу его сохранности. Небольшие поодинокие комочки присутствуют, но в процессе затворения в раствор размокают в воде и особо потом не смущают.

IMAG0795.thumb.jpg.549345206c980388d9cc8607d15a0d50.jpg

IMAG0800.thumb.jpg.3219920d943ccdfa4bfe4fd965416810.jpg

IMAG0801.thumb.jpg.e3bec5bed9d729ebaf7b809f52941256.jpg

IMAG0796.thumb.jpg.372bac5c2138c64560a55d42f1acae03.jpg

  • Лайк 1
Посилання на коментар
Поділитися на інших сайтах

  • 7 місяців потому...
И? ;) Деньги иссякли? Интересно же ж шо дальше будет. +1 к выбранному проекту и прагматичному подходу. Только где план 2-го этажа? Имеется ввиду адаптированный.
Посилання на коментар
Поділитися на інших сайтах

  • 2 місяці потому...

Приветствую уважаемых форумчан! Наконец дошли руки отписаться в собственной теме, тем более, время обязывает - ровно год назад на выстоявшемся полгода фундаменте началось возведение самого дома.

Ниже буду приводить фотки и описывать процессы, возможно, кое-кому будет полезно или просто интересно.

В данным момент (спустя год после закладывания монетки по первый блок) ))), мы имеем:

- накрытая крышей коробка с окнами и дверьми (все перегородки, вентиляция)

- разведенная по первому этажу электрика

- штукатурка 1 этажа

- залит черновой пол

- подшит доской потолок

- выкопан котлованчик под септик

- в процессе копки траншея и приямок под ввод горводы (доки готовы)

- закуплен экструдер на ТП, коллектор, сантехника

 

Буду потихоньку описывать нюансы, с которыми столкнулся как человек, впервые имеющий дело со строительством. Буду рад отвечать на вопросы, а также сам просить совета. ))

615.jpg.85dc34bd84c16ccfe1555d006ea8fad7.jpg

  • Лайк 6
Посилання на коментар
Поділитися на інших сайтах

Двумя сообщениями выше мы закончили на том, что были в процессе сооружения фронтоны на мансардном этаже.

Отмечу, что покупка заводских перемычек себя оправдала - за час перекрыли 4 окна на втором этаже (перемычки поднимали на руках вдвоем с братом жены). Если бы мостили опалубку (U-блоки или самодельный аналог) и заливали, было бы дольше.

Когда подошли к этапу заливки армопояса под мауэрлат, было решено сделать его замкнутым - он проходит по фронтонам над окнами.

Вместо U-блоков ставили по краям блоки-сотки100, с внешнего края экструдер20, внутрь четыре прутка арматуры 10 и бетон.

Также армопояс замыкается по центральной перемычке на втором этаже, с помощью которого были оформлены дверные проемы в комнату и ванную.

Для выравнивания фронтонов была натянута шнурка на стальную трубу.

Выкладывание блоков-треугольничков для фронтонов - творческая работа )), но как раз пошли в работу блоки со сколами, обрезки и т.д.

Также до уровня человеческого роста на втором этаже тесть выложил трубу вентканалов (5 штук) и вентканал топочной.

Далее по трубам работали двое каменщиков, потому что там высота - более 7 метров, мама не горюй.

Итого - над коробкой работали я, тесть и еще помогал брат жены. С выходными и отпуском все заняло ровно 3 месяца.

Далее будем говорить о трубах и крыше )

IMG_20150722_120310.thumb.jpg.afdbef142c4c804d6ef2970b9464ff09.jpg

IMG_20150725_072138.thumb.jpg.3d27910ffdb053622776000abf7071cb.jpg

IMG_20150725_072145.thumb.jpg.8280aa453ad0a63f3eba772b22bb49b4.jpg

IMG_20150725_072149.thumb.jpg.69a67af473cf7a25521910266ed5148d.jpg

IMG_20150728_194559.thumb.jpg.1d88a98a9a1fe311de0617d7805e5069.jpg

IMG_20150728_194608.thumb.jpg.9f6748c030a07c7c06271c356fed6d84.jpg

IMG_20150728_194630.thumb.jpg.6ca216d5ae6d3fb547ad7340950bb62c.jpg

IMG_20150728_194701.thumb.jpg.08889bb0ad61a4e859bba3624ec863f6.jpg

IMG_20150803_070700.thumb.jpg.40921adbe64a654a1fab996e54591187.jpg

IMG_20150803_184220.thumb.jpg.f080eb78db57fb4cf6f70ab75cc114e2.jpg

IMG_20150803_184231.thumb.jpg.3058a95e169d88f62c2ff0b0db609974.jpg

Посилання на коментар
Поділитися на інших сайтах

Перекрытие деревянное, покупал балки 6м 200*100.

По стройпаспорту у нас деревянное перекрытие, но в данный момент я бы задумался над плитами, исключительно в силу того, что тогда появляется возможность сделать теплый пол на втором этаже.

Минусы жб перекрытия - стоимость. Сами плиты, кран (у нас не очень удобный подъезд), плюс стяжка и тд. Плюс плиты надо где-то сгрузить, хранить и т.д.

Я поначалу заморачивался по поводу того, выдержал бы первый этаж, если бы на армопояс плиты положить. Напрасно сомневался, выдержал бы.

Но имеем, что имеем, перекрытие у нас деревянное. Снизу подшит досками потолок. Далее по пароизоляции будет уложена вата URSA Pure One 20 см. Затем - два варианта:

- ОСБ12 в два слоя и ламинат на волоконную подложку

- доска 50 и ламинат на волоконную подложку

 

В ванной на втором этаже планируется по балкам:

- ОСБ12 в два слоя

- гидроизоляция битумным праймером

- рулонная гидроизоляция с промазкой праймером

- стяжка 4 см с армировкой сеткой

- плитка на клей

 

Перекрытие деревянное или ж/б плиты?
  • Лайк 1
Посилання на коментар
Поділитися на інших сайтах

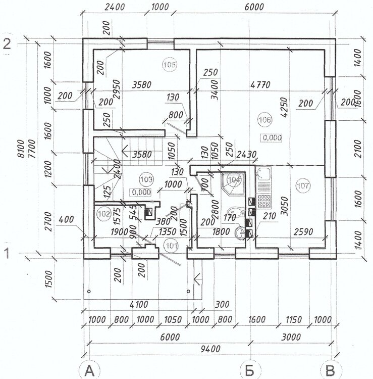
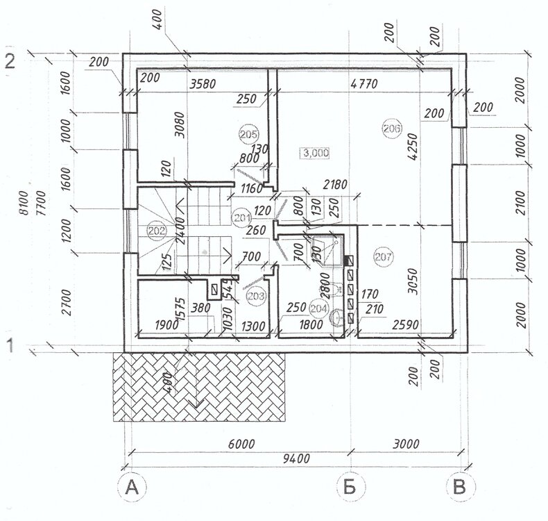
Вот планы - сканы стройпаспорта.

Деньги - это вопрос философский ))) Деньги в принципе - ресурс во Вселенной неиссякаемый, все зависит от желания куда-то эти деньги применить. Если есть воля и желания - Вселенная найдет способы снабдить вас средствами (идеями, временем, познакомить с людьми и т.д.), чтобы осуществить ваши желания и мечты.

Я рассматриваю данную стройку как "тренировку", обкатку идей и технологий.

Для понимания. После известных всем событий мы с женой в 2014 году продали квартиру в новостройке под Киевом и перебрались жить на ее родину, в районный центр Черкасской области.

В данный момент строительство данного дома по приоритету - стройка дачи. То есть дом строится, чтобы у нас была комфортная "штаб-квартира" в провинции. Исходя из полученного опыта, планируем вернуться к идее строительства дома под Киевом, поскольку ребенок растет и ему будет комфортнее жить и учиться ближе к столице. То есть данная стройка - не "семейное гнездо", а прагматичное жилье ))

 

И? ;) Деньги иссякли? Интересно же ж шо дальше будет. +1 к выбранному проекту и прагматичному подходу. Только где план 2-го этажа? Имеется ввиду адаптированный.

1.thumb.jpg.67cd48e0b3f7581e81b7ab58d53c2552.jpg

2.thumb.jpg.85338f50c5e93eec89f9f70b229bc785.jpg

  • Лайк 1
Посилання на коментар
Поділитися на інших сайтах

После завершения кладки фронтонов, нашел бригаду, которая подписалась на завершение кладки вентканалов в виде труб, установки стропильной системы и накрытия коробки металлочерепицей.

Бывший в наличии кирпич каменщик сразу забраковал (я купил ранее пять паллет красного кирпича какого-то местного производителя, другой времени не было искать. На внутреннюю кладку - нормально, но на внешнюю, даже с последующей штукатуркой - оказалось не годится).

Изначально я планировал: просто кладка кирпича (геометрия его там была просто адъ), штукатурка и отделка металлопрофилем под цвет крыши. В этой придуманной мной конструкции меня только смущало возможное появление конденсата между трубой и металлопрофилем.

Слава Богу, каменщик был категоричен - надо нормальный кирпич. Поехали искать. Нюанс в том, что крыша планировалась цвета "графит". На стройскладах была найдена последняя паллета донецкого фагота именно искомого цвета, с одной стороны для красоты кромки сбиты.

Параллельно, пока возводились трубы и стропилка, исколесил всю область в поисках приемлемой цены и поставщика металлочерепицы.

Остановился на немецком металле (цвет графит), который гнет Термостил (Черкассы).

Пока искал металлочерепицу, ребята возвели трубы и установили стропильную систему (6000*200*50). На обработку всего дерева ушло порядка 80 л готового антисептика-огне-биозащиты.

Затем натянули супердиффузионную мембрану, набивая сразу контробрешетку (50*50*2000). Стыки, где нахлест, проклеивали специальной лентой Момент (брал в Эпике по 78 грн, только 780 грн на эти стыки ушло:o).

Также по инструкции установили два мансардных окошка - в спальне и ванной на втором этаже.

Обходы труб и металлочерепицу прикрутили за два дня. Кроме ветровой, лобовой планок и конька брал еще диффузионный барьер на конек.

Подшиву свесов крыши делали чуть позже. Поездил, посмотрел цены на софиты:o и решил свесы делать из того же металла, что и металлочерепицы, только профильного.

Для продувания подкровельного пространства места между мембраной и черепицей (между контробрешетинами) остались открытыми, только затянули их сеткой от воробьев, чтобы не лазили.

Почему я об этом пишу, потому что строители уже меряли отрезать металл на свес, с тем, чтобы он доходил до самой металлочерепицы.

На агрументы, что смысл кровли с контробрешеткой - чтобы была вентиляция подкровельного пространства, было мычание по типу "хозяин - барин" и вообще, мы первый раз видим такие заморочки.

Сразу со свесами сделали и водосточку. Брал Брыза. Писали, что на солнце трещит, я не верил )) Трещит, но редко, негромко и внимания не обращаешь ))

 

По коммуникации со строителями. Мой опыт.

Если какие-то работы на объекте отдаются на аутсорсинг - ваше присутствие в какой-то форме все равно обязательно.

Приехать утром, посмотреть, спросить как дела, что докупить и т.д. - это минимально. Оптимально присутствовать и заниматься своими делами (дело всегда найдется). Присутствие хозяина, вероятно, не только дисциплинирует строителей, но и ведет к кайдзен-активности (если кратко - стремление к перфектности).

С другой стороны, у них свое понимание технологий, которое может нередко идти вразрез с требованиями снипов, дбн и здравого смысла.

Смекалка и опыт ремесленника - это супер, но я тоже не зря пересматриваю сотни часов видео на ютубе, прочитываю десятки и сотни тем на форуме по сотне и больше страниц, пытаясь выжать квинтэссенцию человеческого опыта по какой-либо проблеме. Даже не только для понимания процессов и поиска оптимального решения, но и для интереса.

"Чудаковатый" хозяин, который начитался в своих интернетах всякой фигни и выкидывает деньги на ветер - да, это образ, который они могут рисовать в своем воображении. Я на это не обращаю внимания, поскольку мне нужен качественный продукт, потребителем которого буду я сам и моя семья.

IMG_20150823_072515.thumb.jpg.0b0b9f495999368d4f481b64fd11191d.jpg

IMG_20150902_073319.thumb.jpg.23d49671c3940b76c8274d39f216ee5e.jpg

IMG_20150823_072525.thumb.jpg.ac56cb1a5b9e84b259e6998af207457d.jpg

IMG_20150823_072628.thumb.jpg.fac4dbd08b2f1e54662f632dbe24a902.jpg

IMG_20150905_081500.thumb.jpg.4b589fa301760487e3a48abd14f83ed3.jpg

IMG_20150902_073305.thumb.jpg.e90567bd99529d99b925afa4b27ef782.jpg

IMG_20150907_124434.thumb.jpg.9d201a72aa46b84a2ba4ff6a34767583.jpg

IMG_20150907_124437.thumb.jpg.735477d08b6b01688987588e353031a9.jpg

IMG_20150907_194455.thumb.jpg.a32cce443c1aff58f1c3080017f7c3f7.jpg

IMG_20150908_104232.thumb.jpg.bf4e05735eb823d164f761843aff599d.jpg

IMG_20150908_104314.thumb.jpg.a1bf9d1a22377ad33cf41f66640a4d43.jpg

IMG_20150908_174739.thumb.jpg.2e0e7bf6f87065661c3d72c5c11ff67f.jpg

IMG_20150909_095427.thumb.jpg.75eca5a3ec1e3a4428edcc4167fba249.jpg

IMG_20150909_111722.thumb.jpg.e609522e8d655ee4df1040310df9b3f2.jpg

IMG_20150917_145410.thumb.jpg.09b29cbdab79559d45b3b511b6057382.jpg

  • Лайк 4
Посилання на коментар
Поділитися на інших сайтах

Створіть акаунт або увійдіть у нього для коментування

Ви маєте бути користувачем, щоб залишити коментар

Створити акаунт

Зареєструйтеся для отримання акаунта. Це просто!

Зареєструвати акаунт

Увійти

Вже зареєстровані? Увійдіть тут.

Увійти зараз
×
×
  • Створити...