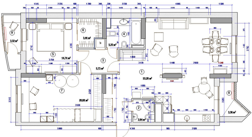
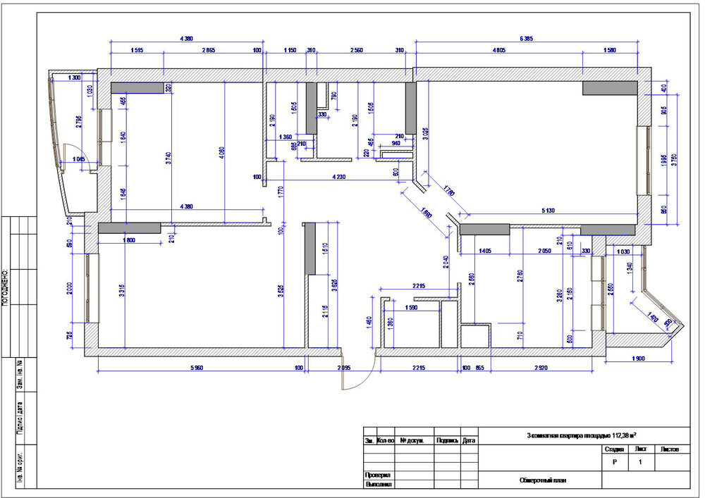
ketrin-n Опубліковано: 20 грудня 2014 Поділитись Опубліковано: 20 грудня 2014 Новострой киевгосстрое. Заказчица обратилась ко мне с пожеланием просторного, светлого, самобытного стиля. Квартира должна вмещать отдельную жилую зону: детскую для 2х деток, спальню с гардеробной, и ванной для хозяев. И общественно-гостевую зону:сделать ее максимально просторной и открытой, гостиную студио возможно обьединить с прихожей, и отдельный гостевой с.у. прилагаю обмерочный план Посилання на коментар Поділитися на інших сайтах More sharing options...
ketrin-n Опубліковано: 20 грудня 2014 Автор Поділитись Опубліковано: 20 грудня 2014 элементы стиля, которые мы совместно утвердили 1 Посилання на коментар Поділитися на інших сайтах More sharing options...
irina1969 Опубліковано: 21 грудня 2014 Поділитись Опубліковано: 21 грудня 2014 подпишусь, очень нравится этот стиль и он точно будет в моем доме...удачи 2 Посилання на коментар Поділитися на інших сайтах More sharing options...
Игорь&Ира Опубліковано: 21 грудня 2014 Поділитись Опубліковано: 21 грудня 2014 элементы стиля, которые мы совместно утвердилиЧто за отделочный материал на стенах санузла (первые фото)? Травертин? Посилання на коментар Поділитися на інших сайтах More sharing options...
Rebe Опубліковано: 21 грудня 2014 Поділитись Опубліковано: 21 грудня 2014 Выглядит неплохо (хотя мне такой стиль не по душе), но абсолютно неутилитарно. Например черный стульчик с жестким верхом возле раб. места отправится на мусорку через пару часов непрерывной работы. Посилання на коментар Поділитися на інших сайтах More sharing options...
ketrin-n Опубліковано: 21 грудня 2014 Автор Поділитись Опубліковано: 21 грудня 2014 Что за отделочный материал на стенах санузла (первые фото)? Травертин? очень похоже на него, но может быть и керамика или керамогранит "под травертин" Посилання на коментар Поділитися на інших сайтах More sharing options...
ketrin-n Опубліковано: 21 грудня 2014 Автор Поділитись Опубліковано: 21 грудня 2014 Квартиру я предложила перепланировать, разделив отдельно приватную (спальную) и общественную зону, кардинально убрав все лишние перегородки в зоне общего пользования. А приватную зону обьединить одним общим предбанником, т.е. даже когда в квартире гости, каждый спокойно может выйти из своей комнаты в ванну в белье или пижаме, или вытащить белье из стиральной машины. Все эти процессы не пересекаются между собой 1 Посилання на коментар Поділитися на інших сайтах More sharing options...
ketrin-n Опубліковано: 22 грудня 2014 Автор Поділитись Опубліковано: 22 грудня 2014 возникла идея сделать ванну не похожу на ванну, возможно с вазоном или картиной. Заказчикам эта идея тоже понравилась. поэтому к выбору плитки я подошла не совсем стандартно, плитка "под пиленный камень" и "под дерево". Важно было сочетание цвета на контрасте, поэтому при выборе я ориентировалась в первую очередь на внешний вид. Плитка получилась из разных производителей, важно теперь ее правильно скомпоновать. Посилання на коментар Поділитися на інших сайтах More sharing options...
ketrin-n Опубліковано: 22 грудня 2014 Автор Поділитись Опубліковано: 22 грудня 2014 в гостевой сан узел у заказчиков давно было желание применить bardelli ceramica, мы выбрали эту коллекцию 3 Посилання на коментар Поділитися на інших сайтах More sharing options...
ketrin-n Опубліковано: 22 грудня 2014 Автор Поділитись Опубліковано: 22 грудня 2014 (змінено) такие бабочки на рабочую поверхность кухни Змінено 22 грудня 2014 користувачем ketrin-n картинка 4 Посилання на коментар Поділитися на інших сайтах More sharing options...
irina1969 Опубліковано: 23 грудня 2014 Поділитись Опубліковано: 23 грудня 2014 ketrin-n, не обращайте внимания выкладывайте плз фото, картинки, коллекции погрызть девочку -дизайнера :bad: 2 Посилання на коментар Поділитися на інших сайтах More sharing options...
ketrin-n Опубліковано: 23 грудня 2014 Автор Поділитись Опубліковано: 23 грудня 2014 Пусть грызут, ним претензий нет Посилання на коментар Поділитися на інших сайтах More sharing options...
allanek Опубліковано: 24 грудня 2014 Поділитись Опубліковано: 24 грудня 2014 А бабочки - это готовый декор, если готовый, кто производитель и есть ли там другой сюжет или заказывали печать на плитке? Бабочек не приемлю ни в каком виде, но здесь они выглядят интересно. Декоры bardelli ceramica всегда вызывают улыбку и от них веет домашним уютом, но не от ценника на них:D. Вам удачной реализации интерьера, главное, чтобы заказчик, в какой-то момент, не попросил стразиков добавить Посилання на коментар Поділитися на інших сайтах More sharing options...
ketrin-n Опубліковано: 24 грудня 2014 Автор Поділитись Опубліковано: 24 грудня 2014 Есть печать на плитке, просто важно чтобы рисунок в электронном виде был высокого качества А бабочки - это готовый декор, если готовый, кто производитель и есть ли там другой сюжет или заказывали печать на плитке? Бабочек не приемлю ни в каком виде, но здесь они выглядят интересно. Декоры bardelli ceramica всегда вызывают улыбку и от них веет домашним уютом, но не от ценника на них:D. Вам удачной реализации интерьера, главное, чтобы заказчик, в какой-то момент, не попросил стразиков добавить 1 Посилання на коментар Поділитися на інших сайтах More sharing options...
allanek Опубліковано: 24 грудня 2014 Поділитись Опубліковано: 24 грудня 2014 Есть печать на плитке, просто важно чтобы рисунок в электронном виде был высокого качества Почему-то так и подумала, что это печать на плитке. Посилання на коментар Поділитися на інших сайтах More sharing options...
ketrin-n Опубліковано: 29 грудня 2014 Автор Поділитись Опубліковано: 29 грудня 2014 Почему-то так и подумала, что это печать на плитке. Этот производить позиционирует рисунок как ручную роспись. Действительно печать выглядит иначе Посилання на коментар Поділитися на інших сайтах More sharing options...
allanek Опубліковано: 29 грудня 2014 Поділитись Опубліковано: 29 грудня 2014 Этот производить позиционирует рисунок как ручную роспись. Действительно печать выглядит иначе Как выглядит "действительно печать"(с) и чем она отличается от этих бабочек, имя производителя которого остаётся тайной? Посилання на коментар Поділитися на інших сайтах More sharing options...
ketrin-n Опубліковано: 30 грудня 2014 Автор Поділитись Опубліковано: 30 грудня 2014 Не тайна, выше было написано bardelli ceramica Печать более рельефная, сам рисунок немного выступает, на глаз это не заметно, но на переходе фона и рисунками плитки это можно ощутить на ощупь. С очень близкого расстояния можно рассмотреть что рисунок состоит из точек. 2 Посилання на коментар Поділитися на інших сайтах More sharing options...
allanek Опубліковано: 30 грудня 2014 Поділитись Опубліковано: 30 грудня 2014 Не тайна, выше было написано Видимо пропустила, что бабочки - это bardelli ceramica. 1 Посилання на коментар Поділитися на інших сайтах More sharing options...
ketrin-n Опубліковано: 22 січня 2015 Автор Поділитись Опубліковано: 22 січня 2015 гостевой сан узел, на стене напротив слева будет душ. кабина, правее унитаз Посилання на коментар Поділитися на інших сайтах More sharing options...
Jack Sparrow Опубліковано: 25 січня 2015 Поділитись Опубліковано: 25 січня 2015 (змінено) к выбору плитки я подошла не совсем стандартно, плитка "под пиленный камень" и "под дерево". Какая коллекция плитки caesar на фото? Змінено 25 січня 2015 користувачем Jack Sparrow Не правильно вставил цитату Посилання на коментар Поділитися на інших сайтах More sharing options...
ketrin-n Опубліковано: 26 січня 2015 Автор Поділитись Опубліковано: 26 січня 2015 к выбору плитки я подошла не совсем стандартно, плитка "под пиленный камень" и "под дерево". Какая коллекция плитки caesar на фото? ну да, на ней ее название и написано)) уже положили, позже сделаю фото 1 Посилання на коментар Поділитися на інших сайтах More sharing options...
Jack Sparrow Опубліковано: 30 січня 2015 Поділитись Опубліковано: 30 січня 2015 ну да, на ней ее название и написано)) уже положили, позже сделаю фото спасибо за ответ. Я вижу что производитель caesar, но меня интересует название коллекции (модель, наименование или что-то более конкретное). Заранее спасибо ;) Посилання на коментар Поділитися на інших сайтах More sharing options...
ketrin-n Опубліковано: 30 січня 2015 Автор Поділитись Опубліковано: 30 січня 2015 спасибо за ответ. Я вижу что производитель caesar, но меня интересует название коллекции (модель, наименование или что-то более конкретное). Заранее спасибо ;) caesar KHAKI при том что керамогранит "под пиленный камень", он ооочень приятный на прикосновение, прямо бархатный и теплый! применила его на 2х обьектах 1 Посилання на коментар Поділитися на інших сайтах More sharing options...
ketrin-n Опубліковано: 25 лютого 2015 Автор Поділитись Опубліковано: 25 лютого 2015 последние фото спальни. Выступающая часть стены слева на первой фото- монолитная колонна, часть стены справа решено было выровнять по ее уровню, чтобы разместить кровать. зеркальная часть отделки - под размер будущей кровати, этот прием я использовала, чтобы "перебить" вертикаль колонны, которая визуально отсекала часть кровати Посилання на коментар Поділитися на інших сайтах More sharing options...
Рекомендовані повідомлення
Створіть акаунт або увійдіть у нього для коментування
Ви маєте бути користувачем, щоб залишити коментар
Створити акаунт
Зареєструйтеся для отримання акаунта. Це просто!
Зареєструвати акаунтУвійти
Вже зареєстровані? Увійдіть тут.
Увійти зараз