kom-servise Опубліковано: 26 січня 2015 Поділитись Опубліковано: 26 січня 2015 Добрый вечер всем. Прошу совета,консультации в удешевлении проекта. На сегодня есть готовый фундамент примерно 11*11(фото ниже будут) и проект дом в1,5 етажа с гаражом. участок 20 соток, так что при желании построить еще дом место есть,сейчас вопрос стал "негде жить" - максимально быстро и бюджетно построить домик.На участке вода,свет есть. Есть два решения пути : 1.Строить дом в 1 этаж по всему периметру фундамента с двухскатной крышей но не с большим углом ската. 2.Строить дом в 1,5 где второй етаж будет полностью под крышей,перекрытие деревяное - строить на фундаменте без гаража,(со временем гараж достроить к дому так как фундамент цельный) На проекте фундамент с террасой, в реальности под террасу фундамент не заливался.Более склонен к первому варианту ( в плане где гараж сделать кухню с гостиной ,сразу за ней топочная,там где гостиная в проекте сделать 2 комнаты). Прошу всех отнестись с пониманием и критикой по теме - буду рад любому совету. Также сейчас ищу бригаду которая по весне сможет все это построить ( коробка + крыша),можно мастера/прораба подсобников организую - предложения с вариантами и ценами можно в личку. Посилання на коментар Поділитися на інших сайтах More sharing options...
tansss Опубліковано: 27 січня 2015 Поділитись Опубліковано: 27 січня 2015 Удешевить проект...или удешевить стоимость реализации...или и то и другое??? Я бы рекомендовал вам самому для принятия решения ответить на вопросы.. 1. минимально необходимый набор помещений и степень их готовности на момент переезда -параметры ограждающих конструкций -способы отопления - итд 2. возможный гарантированный бюджет для п1 3. желаемое время для реализации п1 и 2 Потому как реально вариантов очень много для вашего фундамента и с ним можно делать почти всё что угодно! Посилання на коментар Поділитися на інших сайтах More sharing options...
kom-servise Опубліковано: 27 січня 2015 Автор Поділитись Опубліковано: 27 січня 2015 Удешевить проект...или удешевить стоимость реализации...или и то и другое??? Я бы рекомендовал вам самому для принятия решения ответить на вопросы.. 1. минимально необходимый набор помещений и степень их готовности на момент переезда -параметры ограждающих конструкций -способы отопления - итд 2. возможный гарантированный бюджет для п1 3. желаемое время для реализации п1 и 2 Потому как реально вариантов очень много для вашего фундамента и с ним можно делать почти всё что угодно! Удешевить стоимость реализации но можно с маштабными изменениями.Для начало хватит одной кухни и комнаты для двоих взрослых и ребенка 5 лет,а в дальнейшем 2 взрослых и двое детей.Отопление планируем твердотопливный котел( работы сантехника,отопление,электричество - делаем все сами), но есть возможность врезки в центральную трубу, от фундамента метров 7-8 бюджет 32-38тыс.грн.Желаемое время реализации 1-2 года максимум хотя бы пару комнат что бы была крыша над головой и тепло было,отделка пусть хоть штукатурка главное - свое.Бюджета конкретной утвержденной суммы нет,так как зависит от многих факторов но можно розчитывать 100-200тыс(может увеличится,может быть стройматериалом), плюс завезен 65 куб Аерок Еко терм 375. Хотелось бы совета у бывалых на чем можно секономить и не наступить на грабли и как на практике практично. Посилання на коментар Поділитися на інших сайтах More sharing options...
Drosselbeere Опубліковано: 27 січня 2015 Поділитись Опубліковано: 27 січня 2015 на чем вы можете сэкономить так это как можно максимально упростить конструкции, например отказаться от не понятных углов , практически не используемых балконов, упростить кровлю по максимум, уменьшить площадь покрытия. определитесь какой вам нужен дом в плане площади. можете сделать довольно комфортный одноэтажник 80-90 кв м и со временем оборудовать еще кв 30-40 на чердаке Посилання на коментар Поділитися на інших сайтах More sharing options...
tansss Опубліковано: 27 січня 2015 Поділитись Опубліковано: 27 січня 2015 Желаемое время реализации 1-2 года максимум хотя бы пару комнат что бы была крыша над головой и тепло было,отделка пусть хоть штукатурка главное - свое.Бюджета конкретной утвержденной суммы нет,так как зависит от многих факторов но можно розчитывать 100-200тыс(может увеличится,может быть стройматериалом), плюс завезен 65 куб Аерок Еко терм 375. Правильно ли я понял.... стартовые условия: 1.Есть залитая лента по проекту 2. есть 65 кубов ГБ годного для наружных стен без утепления (+/-50 000грн) 3. есть бюджет максимум 200т.грн на 1 год (при хорошем раскладе) Необходимо: 1. развести канализацию 2. сделать полы с утеплением с засыпкой или.... 3. выгнать стены и перегородки пояса/перемычки 4.перекрытие по балкам с утеплением и тд... 5.сделать крышу 6. по минимуму электрику и воду и систему отопления 7. слегка прикрыть стены внутри + сэптик, котёл, дымоход.... Думаю - не поместитесь даже ТОЛЬКО по материалам.... если даже застроите только часть, которая без гаража в одноэтажном исполнении! Посилання на коментар Поділитися на інших сайтах More sharing options...
kom-servise Опубліковано: 28 січня 2015 Автор Поділитись Опубліковано: 28 січня 2015 Правильно ли я понял.... стартовые условия: 1.Есть залитая лента по проекту 2. есть 65 кубов ГБ годного для наружных стен без утепления (+/-50 000грн) 3. есть бюджет максимум 200т.грн на 1 год (при хорошем раскладе) Необходимо: 1. развести канализацию 2. сделать полы с утеплением с засыпкой или.... 3. выгнать стены и перегородки пояса/перемычки 4.перекрытие по балкам с утеплением и тд... 5.сделать крышу 6. по минимуму электрику и воду и систему отопления 7. слегка прикрыть стены внутри + сэптик, котёл, дымоход.... Думаю - не поместитесь даже ТОЛЬКО по материалам.... если даже застроите только часть, которая без гаража в одноэтажном исполнении! На сегодня стоит вопрос : коробка+крыша+окна/двери. Далее на сантехнику,електрику - материал есть,робота бесплатно. Посилання на коментар Поділитися на інших сайтах More sharing options...
Matilda_K Опубліковано: 28 січня 2015 Поділитись Опубліковано: 28 січня 2015 Если вместо гаража сделать кухню-столовую, а большую комнату разделить на 2, то получится достаточно полноценный одноэтажный дом с 3-мя жилыми комнатами. Но будут остатки по материалу. В любом случае - то что временно, то обычно становится постоянным. С таким бюджетом я бы строила одноэтажный, только перерисовать фасады, что б понять что и как получится. Про гараж не жалейте, даже у тех, кто построил его в доме - машины обычно стоят во дворе. Просто делается крытая площадка. Посилання на коментар Поділитися на інших сайтах More sharing options...
kom-servise Опубліковано: 28 січня 2015 Автор Поділитись Опубліковано: 28 січня 2015 Если вместо гаража сделать кухню-столовую, а большую комнату разделить на 2, то получится достаточно полноценный одноэтажный дом с 3-мя жилыми комнатами. Но будут остатки по материалу. В любом случае - то что временно, то обычно становится постоянным. С таким бюджетом я бы строила одноэтажный, только перерисовать фасады, что б понять что и как получится. Про гараж не жалейте, даже у тех, кто построил его в доме - машины обычно стоят во дворе. Просто делается крытая площадка. Єто один из вариантов которьій мне тоже нравится.В таком варианте думаю крьішу сделать 2-х скатную по типу как в проектах дом- шале.Гараж то не сильно и нужно.Почему будут остатки по материалу? Посилання на коментар Поділитися на інших сайтах More sharing options...
Matilda_K Опубліковано: 29 січня 2015 Поділитись Опубліковано: 29 січня 2015 На дом пойдет около 60м3. Хотя если делать фронтоны -то разойдется...но я бы прорисовала 2 варианта фасадов. Как мне кажется - просто 2-х скатка будет смотреться простовато... лучше сделать 4-х скатную кровлю для одноэтажного дома. Посилання на коментар Поділитися на інших сайтах More sharing options...
kom-servise Опубліковано: 29 січня 2015 Автор Поділитись Опубліковано: 29 січня 2015 На дом пойдет около 60м3. Хотя если делать фронтоны -то разойдется...но я бы прорисовала 2 варианта фасадов. Как мне кажется - просто 2-х скатка будет смотреться простовато... лучше сделать 4-х скатную кровлю для одноэтажного дома. Но 2-х скатная дешевлеПросто думаю сделать,там где уже идет подшивка(не помню как называется) сделать больше зазор тоесть доска которая идет с крыши до водосточки что бы была длиней Посилання на коментар Поділитися на інших сайтах More sharing options...
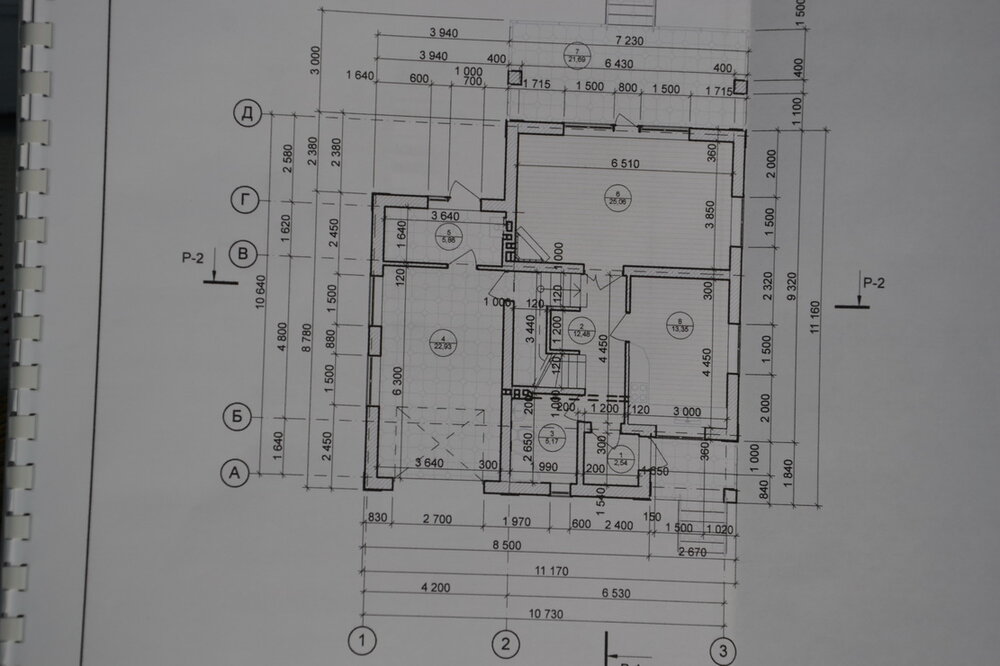
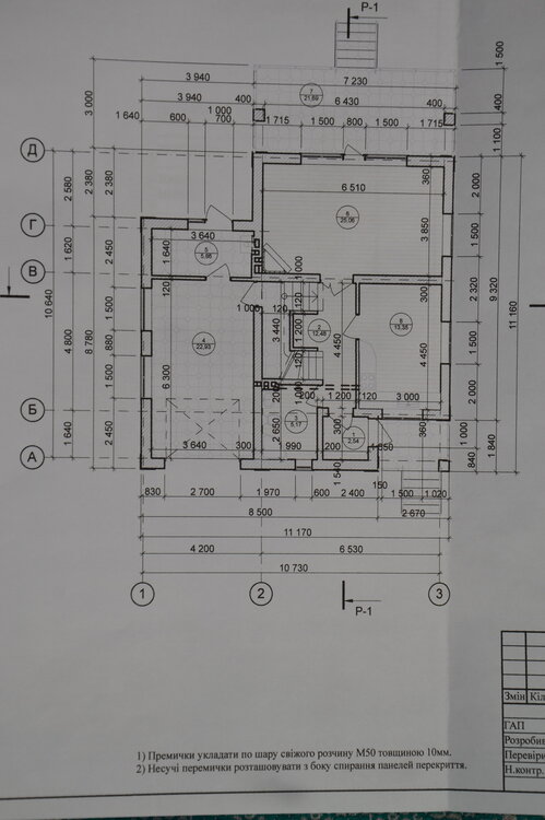
kom-servise Опубліковано: 2 лютого 2015 Автор Поділитись Опубліковано: 2 лютого 2015 как вариант нравится такой вариант,только окна побольше и фронтоны тоже с газоблока Может у кого то есть фото таких домиков? Посилання на коментар Поділитися на інших сайтах More sharing options...
Ter Опубліковано: 2 лютого 2015 Поділитись Опубліковано: 2 лютого 2015 Такой может вариант? Или мало? 1 Посилання на коментар Поділитися на інших сайтах More sharing options...
kom-servise Опубліковано: 2 лютого 2015 Автор Поділитись Опубліковано: 2 лютого 2015 Такой может вариант? Или мало? мало чего? дом нравится, только вот думаю крышу с меньшим углом 23-25 Посилання на коментар Поділитися на інших сайтах More sharing options...
kom-servise Опубліковано: 2 лютого 2015 Автор Поділитись Опубліковано: 2 лютого 2015 еще немного вариантов Посилання на коментар Поділитися на інших сайтах More sharing options...
Ter Опубліковано: 2 лютого 2015 Поділитись Опубліковано: 2 лютого 2015 мало чего? дом нравится, только вот думаю крышу с меньшим углом 23-25 Ну вы в первом посте наваяли "Титаник", дык и спрашиваю, не маловато ли площади для ваших хотелок (для могелок ее перебор, что тут, что там, смотрю) ;) По картине - коробка - она и в африке коробка. Побольше свесы, возможно и (ссылка устарела) малехо изменят скучность коробочки? Посилання на коментар Поділитися на інших сайтах More sharing options...
kom-servise Опубліковано: 3 лютого 2015 Автор Поділитись Опубліковано: 3 лютого 2015 Ну вы в первом посте наваяли "Титаник", дык и спрашиваю, не маловато ли площади для ваших хотелок (для могелок ее перебор, что тут, что там, смотрю) не понял даного?какой титаник?каая хотелка? По коробке понял,спасибо Посилання на коментар Поділитися на інших сайтах More sharing options...
Ter Опубліковано: 3 лютого 2015 Поділитись Опубліковано: 3 лютого 2015 не понял даного?какой титаник?каая хотелка? По коробке понял,спасибо Титаник - бессмысленно огромный дом из первого сообщения темы (как для проживания 4 человек, так и для заявленного вами бюджета). Хотелка - проект, который вы показали и который примерно соответствует вашим пожеланиям/хотелкам/представлениям о будущем доме, но который не соответствует заявленным финансовым возможностям (т.е. пока что это только лишь ваши фантазии, мало чего имеющие общего с реальностью) и чтобы влезть в эту сумму и закрыть определенный логический этап(ы) придется конкретно ужиматься/изгаляться как по площади, так и по используемым решениям... 1 Посилання на коментар Поділитися на інших сайтах More sharing options...
kom-servise Опубліковано: 3 лютого 2015 Автор Поділитись Опубліковано: 3 лютого 2015 отступать не куда...Будем начинать, а там дальше время покажет.Я прекрасно понимаю что бюджет небольшой и он однозначно будет больше по факту поэтому и прошу помощь советом где и на чем можно секономить. Посилання на коментар Поділитися на інших сайтах More sharing options...
tansss Опубліковано: 3 лютого 2015 Поділитись Опубліковано: 3 лютого 2015 (змінено) отступать не куда...Будем начинать, а там дальше время покажет.Я прекрасно понимаю что бюджет небольшой и он однозначно будет больше по факту поэтому и прошу помощь советом где и на чем можно секономить. Дело конечно хозяйское! Но если вы не определитесь с концепцией на старте и не будете СТРОГО ей следовать, то попытки "где и на чём сэкономить" заставят вас шарахаться из стороны в сторону... и как в 90% случаев приведёт к недострою! Не только я вам советовал.... выработать концепцию и хотя бы примерно "положить" рядом реалистический бюджет. А уже где и что сэкономите по мелочи ... будет вам на "коныки". Как пример ваша-же тема по ГИ фундамента.... не знаю кто вам насоветовал так "сэкономить" но результат - на лице! Вы сейчас начнёте чёйнибуть подмучивать с этой самой гидроизоляцией по совету парней.... и если будете им следовать опять наступите на грабли!!! Если бы у вас была общая картина готового дома у вас УЖЕ был бы ответ на этот вопрос и он решился бы заодно с другими задачами одним движением! Вот смотрите.... Сначала вы точечно сэкономили на заливке и бетоне фундамента.... затем точечно решили вопрос с выравнивением и подъёмом цоколя, теперь третий раз возвращаетесь к тому же узлу и пытаетесь решить с ГИ. последуете ПРАВИЛЬНЫМ советам НО точечного решения.. и ещё минимум два раза будете возвращаться к узлу и ПЕРЕДЕЛЫВАТЬ! т.е он у вас раза в ДВА минимум станет дороже несмотря на то что каждое из точечных решений было экономным само по себе!!! Змінено 3 лютого 2015 користувачем tansss 2 Посилання на коментар Поділитися на інших сайтах More sharing options...
Рекомендовані повідомлення
Створіть акаунт або увійдіть у нього для коментування
Ви маєте бути користувачем, щоб залишити коментар
Створити акаунт
Зареєструйтеся для отримання акаунта. Це просто!
Зареєструвати акаунтУвійти
Вже зареєстровані? Увійдіть тут.
Увійти зараз