JFK Опубліковано: 22 вересня 2015 Поділитись Опубліковано: 22 вересня 2015 Газобетон - рівний та цілий. А цегла - крива й бита. Я понял, газобетон это религия;) 1 Посилання на коментар Поділитися на інших сайтах More sharing options...
Музей Опубліковано: 22 вересня 2015 Поділитись Опубліковано: 22 вересня 2015 Я понял, газобетон это религия;) Ні. Це оптимальне співвідношення ціна-якість. В моєму будинку веутрішні стіни з австро-угорської цегли. Якби таку цеглу було можливо придбати в необхідній кількості, то я за цеглу. Але наша цегла - жуть. Посилання на коментар Поділитися на інших сайтах More sharing options...
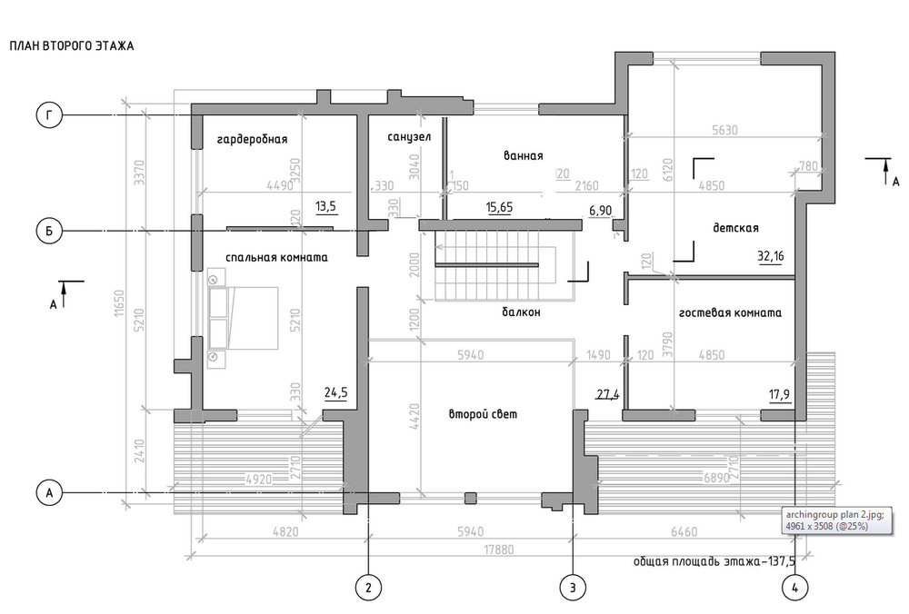
MaryAr Опубліковано: 23 вересня 2015 Поділитись Опубліковано: 23 вересня 2015 "Как Вам такой домик? Конструктивная критика а так же флуд приветствуется". Домик из серии «мега-вау… как всё круто и современно!! По поводу балконов, второго света и плоской кровли повторяться не буду – это, видимо, сознательный шаг заказчика в угоду красоте. Но есть некоторые замечания по поводу «чистоты стиля». Мне кажется, что только подражанием 100% результата не добиться (не должно быть случайных деталей: только логика и основные принципы архитектурной композиции). Если разрешите – немного «поумничаю». Комментарии смотрите прямо на красивых картинках. Эти замечания на данном этапе стройки можно легко подкорректировать (заказчик особой разницы не заметит, а коллеги по цеху не будут придираться). 3 Посилання на коментар Поділитися на інших сайтах More sharing options...
JFK Опубліковано: 23 вересня 2015 Поділитись Опубліковано: 23 вересня 2015 Ні. Це оптимальне співвідношення ціна-якість. В моєму будинку веутрішні стіни з австро-угорської цегли. Якби таку цеглу було можливо придбати в необхідній кількості, то я за цеглу. Але наша цегла - жуть. И в чем же выражается жуть жуткая нашего кирпича, да и хотелось бы после конструктора еще фасадчика услышать, а ему там есть где развернуться ))) Посилання на коментар Поділитися на інших сайтах More sharing options...
MaryAr Опубліковано: 23 вересня 2015 Поділитись Опубліковано: 23 вересня 2015 хотелось бы после конструктора еще фасадчика услышать, а ему там есть где развернуться ))) Т.к. фасадчиков будет >1 (разные материалы отделки), обязательны разрезы по стенам и узлы стыков. Иначе потом в одну кучу не собрать. А это 20-30 узлов (верю, что они уже есть). Ещё не забыть учесть "пирог" утепления пола балкона справа от входа. Здесь фрагмент перекрытия лучше опустить, чтобы утепление и разуклонка не оказались выше уровня чистого пола второго этажа. Иначе получится некрасивая и аварийная "ступенька" на выходе на балкон. Это очень частая ошибка в таких домах, и всегда сюрприз для заказчика, который на "визуалке" интерьеров таких перепадов не замечал... Посилання на коментар Поділитися на інших сайтах More sharing options...
ARCH INNOVATION Опубліковано: 23 вересня 2015 Автор Поділитись Опубліковано: 23 вересня 2015 Если разрешите – немного «поумничаю». Согласен только с одним замечанием (рекомендацией по поводу полосы из камня на окнах). Остальное дело вкуса. p.s. Спасибо за потраченное время на изучение домика. Посилання на коментар Поділитися на інших сайтах More sharing options...
MaryAr Опубліковано: 23 вересня 2015 Поділитись Опубліковано: 23 вересня 2015 Спасибо за потраченное время на изучение домика. На здоровье "Свежий" взгляд всегда полезен. 1 Посилання на коментар Поділитися на інших сайтах More sharing options...
ARCH INNOVATION Опубліковано: 23 вересня 2015 Автор Поділитись Опубліковано: 23 вересня 2015 На здоровье "Свежий" взгляд всегда полезен. Согласен на 100% Посилання на коментар Поділитися на інших сайтах More sharing options...
Grineko Опубліковано: 24 вересня 2015 Поділитись Опубліковано: 24 вересня 2015 Ні. Це оптимальне співвідношення ціна-якість. В моєму будинку веутрішні стіни з австро-угорської цегли. Якби таку цеглу було можливо придбати в необхідній кількості, то я за цеглу. Але наша цегла - жуть. Не смешите мои "тапочки"...якiсть-"Газо..Бетон"(ни прочности,ни экологии,ни звукоизоляции и т.д.)... что по утрам к чаю вместо сахара ложечку криссиной отравы).... а угорьськой цегли много нужно?..М350,аж звенит от удара молотка)...могу помочь. Посилання на коментар Поділитися на інших сайтах More sharing options...
Музей Опубліковано: 24 вересня 2015 Поділитись Опубліковано: 24 вересня 2015 Не смешите мои "тапочки"...якiсть-"Газо..Бетон"(ни прочности,ни экологии,ни звукоизоляции и т.д.)... что по утрам к чаю вместо сахара ложечку криссиной отравы).... а угорьськой цегли много нужно?..М350,аж звенит от удара молотка)...могу помочь. А зачем? Я уже кухню заказала и через 5-6 недель перееду. На момент начала строительства моего дома, местные комбинаты не выпускали продукцию, т.к. цена на газ не была известна. Пришлось ввозить керамоблоки из Венгрии. Споры о газоблоке, кирпиче и пр. находятся в профильных ветках и я в них не принимаю участия. Мне интересно, как будет выглядеть этот домик следующей осенью. Посилання на коментар Поділитися на інших сайтах More sharing options...
ARCH INNOVATION Опубліковано: 29 вересня 2015 Автор Поділитись Опубліковано: 29 вересня 2015 Мне интересно, как будет выглядеть этот домик следующей осенью. В планах вселение, к следующей осени. Посилання на коментар Поділитися на інших сайтах More sharing options...
jenkins Опубліковано: 29 вересня 2015 Поділитись Опубліковано: 29 вересня 2015 Прямо над зоной готовки кухни, на втором этаже находится унитаз? Это чтобы у повара была обратная связь с посетилелями кухни о качестве еды? Посилання на коментар Поділитися на інших сайтах More sharing options...
ARCH INNOVATION Опубліковано: 29 вересня 2015 Автор Поділитись Опубліковано: 29 вересня 2015 Прямо над зоной готовки кухни, на втором этаже находится унитаз? Это чтобы у повара была обратная связь с посетилелями кухни о качестве еды? А как бы Вы поступили? Посилання на коментар Поділитися на інших сайтах More sharing options...
jenkins Опубліковано: 29 вересня 2015 Поділитись Опубліковано: 29 вересня 2015 Хотя бы так Посилання на коментар Поділитися на інших сайтах More sharing options...
ARCH INNOVATION Опубліковано: 29 вересня 2015 Автор Поділитись Опубліковано: 29 вересня 2015 Хотя бы так Полностью поменялся смысл. Ванная комната для взрослых превратись в "пендюрку" и теперь нет в неё доступа из гардеробной, зато детский санузел просто раскошенный И что принципиально изменилось? Посилання на коментар Поділитися на інших сайтах More sharing options...
jenkins Опубліковано: 29 вересня 2015 Поділитись Опубліковано: 29 вересня 2015 Правильно, поменялось таки все: 1) эгоистичная личная ванна спальни стала колхозной общей для всего этажа. 2) снимать Гари Потера в этом доме уже не получиться - тайная комната с входом через шкаф гардероб перестала быть тайной. 3) и самое главное - тайный внутренний голос посещения санузла не будет столь заметен для детской комнаты рядом, и посетители кухни на первом этаже так же не окажуться в удивлении от "голоса свыше" ПС: не воспринимайте мой стиль изложения критики близко к серцу ППС: А внешний дизайн очень нравиться - нужно идти в ногу со временем! Посилання на коментар Поділитися на інших сайтах More sharing options...
Energon Опубліковано: 29 вересня 2015 Поділитись Опубліковано: 29 вересня 2015 В моєму будинку веутрішні стіни з австро-угорської цегли. надіюсь не поштукатурені і покриті лаком(чи чим там їх покривають)? Посилання на коментар Поділитися на інших сайтах More sharing options...
ARCH INNOVATION Опубліковано: 29 вересня 2015 Автор Поділитись Опубліковано: 29 вересня 2015 ПС: не воспринимайте мой стиль изложения критики близко к серцу ППС: А внешний дизайн очень нравиться - нужно идти в ногу со временем! На самом деле мне очень приятен диалог с Вами Посилання на коментар Поділитися на інших сайтах More sharing options...
Рекомендовані повідомлення
Створіть акаунт або увійдіть у нього для коментування
Ви маєте бути користувачем, щоб залишити коментар
Створити акаунт
Зареєструйтеся для отримання акаунта. Це просто!
Зареєструвати акаунтУвійти
Вже зареєстровані? Увійдіть тут.
Увійти зараз