Перейти до публікації
Пошук в
  • Додатково...
Шукати результати, які містять...
Шукати результати в...

Перекрытия открытой лоджии в мансардном этаже.

slava_kharkov

Рекомендовані повідомлення

Будет у меня на мансардном этаже лоджия- балкон (не знаю как коректней назвать).

Планирую оставить ее открытой как на прикрепленном изображении. Возможно, конечно мне в первую зиму надоест счищать снег и я ее застеклю, но пока планы оставить открытой.

 

Перекрытия в доме будут деревянные, а вот какие перекрытия сделать под балконом - хочу просить совета форумчан. Под балконом - будет кухня.

 

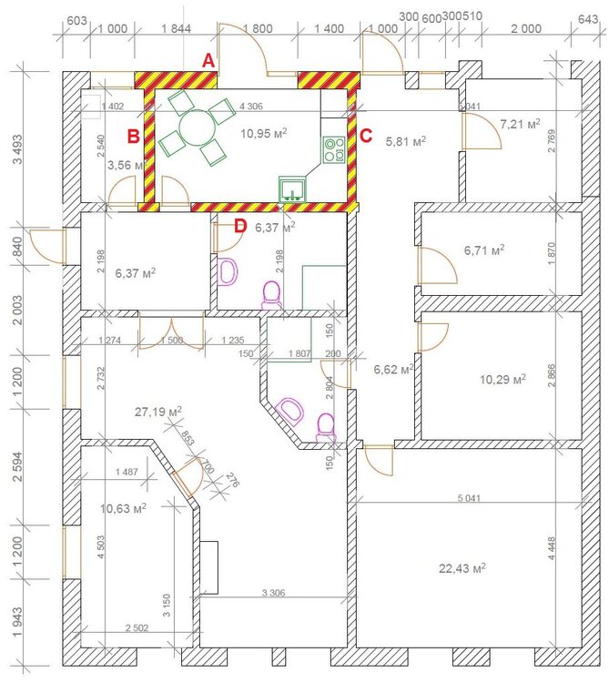
На прикрепленном плане первого этажа штриховкой выделил границы балкона.

По стенам и фундаментам

Сторона А - фундамент армированый 1100*350мм, стена - газобетон армированый шириной 375мм

 

Сторона В, С - фундамент армированый 600*220мм, стена - газобетон 200мм

 

Сторона D - Фундамент 650*300 без армировки, стена один красный кирпич 260мм.

 

Попериметру дома - армопояс 200х225мм с четырьмя арматуринами. Кровля - мпеталочерепица.Материал франтона - газобетон 200 или 300мм

1015936433_.thumb.jpg.97287866cf44df1411fd4e893717e9b5.jpg

362197189_.thumb.jpg.b87e64850f3e640916aea90684b943d0.jpg

1793037050_.thumb.jpg.de290cfa937fc9c0ef201f069d54f466.jpg

Посилання на коментар
Поділитися на інших сайтах

Перекрыти фигня, любое+ доп. утепление. Вам серьезную гидроизоляцию, примыкания и уклоны нужно делать. Попадались на форуме масса отрицательных отзывов на тему эксплуатации балконов. Протечек, мокрых стен и т.д.

 

Открыть застекленную лоджию можно всегда. И ноу проблем. Имхо

  • Лайк 1
Посилання на коментар
Поділитися на інших сайтах

Сторона А - фундамент армированый 1100*350мм, стена - газобетон армированый шириной 375мм

 

Сторона В, С - фундамент армированый 600*220мм, стена - газобетон 200мм

 

Сторона D - Фундамент 650*300 без армировки, стена один красный кирпич 260мм.

 

Попериметру дома - армопояс 200х225мм с четырьмя арматуринами. Кровля - мпеталочерепица.Материал франтона - газобетон 200 или 300мм

Почему разные подушки и толщины стен внешних? С какого перепугу? Лоджию:

а. уменьшить очень большая, зачем она Вам такая;

б. Застеклить;

в.

Перекрыти фигня, любое+ доп. утепление. Вам серьезную гидроизоляцию, примыкания и уклоны нужно делать. Попадались на форуме масса отрицательных отзывов на тему эксплуатации балконов. Протечек, мокрых стен и т.д.

 

Открыть застекленную лоджию можно всегда. И ноу проблем. Имхо

  • Лайк 1
Посилання на коментар
Поділитися на інших сайтах

Почему разные подушки и толщины стен внешних? С какого перепугу? Лоджию:

а. уменьшить очень большая, зачем она Вам такая;

б. Застеклить;

в.

 

Внешние стены дома все одной толщина (375мм) и фундамент по периметру одинаковый.

Внутри с фундаментами и стенами - так вышло.;)

 

По поводу уменшть - планирую стены лоджии поставить сверху на стены первого этажа, поэтому уменьшать не могу.

 

Начинаю думать над тем чтобы застеклить. )

Посилання на коментар
Поділитися на інших сайтах

Створіть акаунт або увійдіть у нього для коментування

Ви маєте бути користувачем, щоб залишити коментар

Створити акаунт

Зареєструйтеся для отримання акаунта. Це просто!

Зареєструвати акаунт

Увійти

Вже зареєстровані? Увійдіть тут.

Увійти зараз
×
×
  • Створити...