C0lumbus Опубліковано: 7 жовтня 2015 Поділитись Опубліковано: 7 жовтня 2015 Зима на носу, пора решить вопрос с дымоходами Как лучше утеплить? Пришли к двум вариантам: 1. Монтировать трубы и параллельно засыпать вспученным перлитом. Не будет ли в данном случае жесткое соединение со стеной (кирпичный канал). Труба расширяется-сужается при нагреве, должна быть возможность "игры" вверх-вниз. Данный способ самый простой по времени. 2. Не выёживаться и сделать, как запроектировано производителем +/-, замотать ватой, прошитой сеткой ((ссылка устарела)), скрепить вату оцинкованной проволокой, чтобы получился цилиндр из ваты. Минус в том, что каналы кривовато возвели, нужно их довести до ума цементной штукатуркой. Вес 1 трубы ~ 15 кг, соединение папа-мама, плотное, будет на спец. смесь Schiedel устанавливаться. Высота 8м, вес итоговый ~200 кг. Дымоходы 2 шт, 1 под ТТ котел/газ, второй - камин. Спасибо за советы Посилання на коментар Поділитися на інших сайтах More sharing options...
SON Опубліковано: 7 жовтня 2015 Поділитись Опубліковано: 7 жовтня 2015 Ежли каналы проходят во внутренней стене - залить зазор тощим раствором, напр. известково-песчаным. При тепловой связи между керамической вставкой и стенами про сужения/расширения можно забыть, т. к. перепад температуры при таком конструктиве гораздо меньше по сравнению с "одинокостоящей" утепленной гильзой. При каналах в наружной стене - утеплять однозначно. 1 Посилання на коментар Поділитися на інших сайтах More sharing options...
C0lumbus Опубліковано: 8 жовтня 2015 Автор Поділитись Опубліковано: 8 жовтня 2015 Ежли каналы проходят во внутренней стене - залить зазор тощим раствором, напр. известково-песчаным. При тепловой связи между керамической вставкой и стенами про сужения/расширения можно забыть, т. к. перепад температуры при таком конструктиве гораздо меньше по сравнению с "одинокостоящей" утепленной гильзой. При каналах в наружной стене - утеплять однозначно. Спасибо! Вы вселили надежду закончить дымоходы скорее Каналы в обоих дымоходах - во внутренних стенах. Забыл уточнить, каминный канал толщиной 12 см в узком месте и рядом проходит такой же канал с другой половины дома. Возникло еще пару вопросов при обдумывании технологи монтажа… Если я правильно понял при температуре 265-300°, часть этого тепла будет принимать кирпичная стена? Следовательно t будет уменьшаться с каждым метром трубы. Т.е. максимальная температура керам. трубы будет в месте подключения потребителя. Не треснут ли трубы в этом месте при расширении? Чем заделать торец шахты дымохода после монтажа в таком случае? Не повлияет ли повышенная температура стены на обои? Какие пропорции тощего раствора? Посилання на коментар Поділитися на інших сайтах More sharing options...
C0lumbus Опубліковано: 8 жовтня 2015 Автор Поділитись Опубліковано: 8 жовтня 2015 Еще предложили вариант засыпать речным песком. В принципе, время до морозов еще есть для экспериментов: повесить датчики температуры у самой трубы и за "теплоизоляцией", помониторить в режиме протопки каминную трубу и трубу ТТ котла (скорее всего будет Buderus + бочка с водой, как теплонакопитель). Чистовые работы можно отложить для стен с шахтами, главное сейчас выбрать правильное направление в монтаже труб. Посилання на коментар Поділитися на інших сайтах More sharing options...
Hordi Опубліковано: 8 жовтня 2015 Поділитись Опубліковано: 8 жовтня 2015 Заполняйте перлитом, но добавте цемента + увлажните - получится масса, которая не будет пылить, проваливаться в щели и нге даст жёсткого соединения, при этом с приличным теплосопротивлением. ПС Перлит как раз как теплоизолятор для высокотемпературных труб и применяется... 1 Посилання на коментар Поділитися на інших сайтах More sharing options...
SON Опубліковано: 8 жовтня 2015 Поділитись Опубліковано: 8 жовтня 2015 .. канал толщиной 12 см в узком месте и рядом проходит такой же канал с другой половины дома. По нормам толщина стенки канала не менее 1/2 кирпича, как раз ваши 12 см. Не треснут ли трубы в этом месте при расширении? Расширение керамики соизмеримо с расширением раствора/кирпича. Место подключение нужно более детально. Чем заделать торец шахты дымохода после монтажа в таком случае? Заткнуть зазор минватой, сверху заделать раствором. Можно закрыть листовым металлом (оцинковкой), предварительно вырезав отверстия под выходы труб. Не повлияет ли повышенная температура стены на обои? Конечно повлияет. Со стороны зашивки штробы гильзу закрыть базальтовой ватой, минеритом или другой теплоизоляцией. Плюс соблюсти пожарные нормы при проходе перекрытия и кровли. От огня/дыма в трубе до сгораемых конструкций не менее 25 см в разе защищеных, и 38см в случае незащищенных. Какие пропорции тощего раствора? 1/4-5 Еще предложили вариант засыпать речным песком. Деды тож так делали. Перлит как раз как теплоизолятор для высокотемпературных труб и применяется... Теплоизолировать гильзу от шахты не нужно. Она должна получать тепло от стен дома . Теплая гильза - стабильная тяга. 2 Посилання на коментар Поділитися на інших сайтах More sharing options...
C0lumbus Опубліковано: 8 жовтня 2015 Автор Поділитись Опубліковано: 8 жовтня 2015 Место подключение нужно более детально. Подключение через керамический тройник 45°: труба толстая 2мм, "радиаторная" Darco, чтобы снять больше тепла для развода по воздуховодам - это каминная. Для ТТ просто толстая 2мм черная труба с коленами, керам. тройник так же 45°. Место выхода тройника из стены заделывается минватой. Снизу блюдце для отвода конденсата в подвал. Посилання на коментар Поділитися на інших сайтах More sharing options...
SON Опубліковано: 8 жовтня 2015 Поділитись Опубліковано: 8 жовтня 2015 Возьмем средний по палате КЛР нержа/сталь 14*10 в минус 6, дельту температур 250 гр (20-270), протяженность труб (сталь/нержа) от топки до отвода тройника даж 2 м. Итого 14*250*2/1000000=0,7см. По жизни будет меньше. Практически между железной трубой и керамическим отводом достаточно оставить зазор в 1 см, и уплотнить термостойким шнуром. Собирать по дыму/конденсату - решайте сами. Положено по дыму. Снизу блюдце для отвода конденсата в подвал. Боюсь, что конденсата Вы там никогда не увидите. :D 1 Посилання на коментар Поділитися на інших сайтах More sharing options...
T-Kiev Опубліковано: 8 жовтня 2015 Поділитись Опубліковано: 8 жовтня 2015 Возьмем средний по палате КЛР нержа/сталь 14*10 в минус 6, дельту температур 250 гр (20-270), протяженность труб (сталь/нержа) от топки до отвода тройника даж 2 м. Итого 14*250*2/1000000=0,7см. По жизни будет меньше. Практически между железной трубой и керамическим отводом достаточно оставить зазор в 1 см, и уплотнить термостойким шнуром. Собирать по дыму/конденсату - решайте сами. Положено по дыму. Боюсь, что конденсата Вы там никогда не увидите. :D Поправлю По дыму дымоход собирается до тройника дальше по конденсату 1 Посилання на коментар Поділитися на інших сайтах More sharing options...
C0lumbus Опубліковано: 9 жовтня 2015 Автор Поділитись Опубліковано: 9 жовтня 2015 Большое спасибо всем отписавшимся за советы. Во вторник-среду начну монтировать. Мира и добра 1 Посилання на коментар Поділитися на інших сайтах More sharing options...
C0lumbus Опубліковано: 5 листопада 2015 Автор Поділитись Опубліковано: 5 листопада 2015 Смонтировал все каминные трубы до верха на смесь Schiedel FM, старался строго придерживаться пропорций. Один раз сделал чуть жиденький раствор, так когда на следующий день монтировал следующую трубу, нижняя пошатнулась, пришлось снимать, чистить и заново наносить раствор. Наносил сначала кельмой мальнькой, потом вспомнил про статью на форумхаус, про трубы Hart, там лепили колбаски и их укладывали на швы :D Лепкой не занимался, наносил просто пальцем, в перчатках прорезиненных со стороны ладони, получалось быстро и раствор не падал никуда. После затвердения - камень и одно целое с трубой, сделал пару котлет с раствора на память Трубы не идеал, если на сухую ставить, то вертикали не получится, то выступ папы большой сбоку, то бортик меньше чем нужно. Короче навозился пока не выработал алгоритм: монтирую трубы, пока хватает замеса (7:1, стакан в комплекте), ставлю прокладки по бокам из пенополистирола (клиновидные колышки), чтобы не ходила труба, на следующий день повторяю процедуру. Пару раз поправлял посадочные места болгаркой с чашкой по керамике, т.к. труба упиралась в канал (упоротые кладчики) Предварительно можно крутить по оси трубу, которую нужно смонтировать, таким образом можно примерять и получить вертикаль +/- Дверцу ревизии посадил на герметик, повернул ревизионную трубу на 45 градусов по оси, чтобы был доступ. Повесил датчики 3 шт, первый возле тройника (подключение твердотопа камин/булерьян), остальные с шагом ~1 м вверх. Зашил оцинковкой 0.8мм торец шахты в комнате, крепил на дюбель и шайбу, чтобы увеличить площадь контакта. Уже засыпал ~2.5 метра песком, чтобы помониторить температуру: максимальная температура 80 градусов в толще песка, у тройника, плавно набирается, плавно остывает. Получилась такая батарея с низу доверху стены. Теперь думаем это дело облицевать плиткой под кирпич и пусть греет по чуть-чуть Установил на 1 этаже булерьян, подключил с помочью труб Darco (черная сталь, 2мм), снизу вверх: колено 90 градусов с ревизией, труба оцинковка (старая), переходник 120 на 180 мм, 1м радиаторная труба, колено 45 градусов с ревизией и переходник на керамическую трубу (обмотан печным шнуром). Спасибо девушкам из Каминофф за консультацию и доставку (впервые в их практике) Итоги: Труба хорошая, но нужно повозиться. Конденсат таки течет, топим строительными отходами с крыши и перекрытия, нужно прогревать трубу, хотя бы на 70% мощности булерьяна (у нас самая маленькая модель); скорее всего как зашью всю трубу, конденсата поубавится Тройник Hart такой-себе, конденсат затекает в него. Теперь понятно зачем в тройнике Schiedel металлическая пластина. Конденсат стекая по трубам сверху попадает на эту пластину и стекает по ее бокам, минуя выход в трубу котла (рассекатель типа). Чувствуется мощщь, если так можно сказать, керамическая труба тяжелая и прочная. Есть трубы 0.33 метра, их проще монтировать (вытирать смесь внутри намного легче, в трубе 0.66м еле дотягивался и то не всегда), хотя и дольше, больше расход смеси Используя сосну в качестве дров нужно постоянно мониторить дымоход, т.к. засирается с бешенной скоростью Дверцу изнутри нужно защитить какой-то планкой, чтобы конденсат не портил ее ...---... Трубы лучше монтировать параллельно с кладкой, меньше геморроя с вертикалью Привезли недавно котел БТС (СТС), 20кВт премиум, скоро начну монтировать трубы 160 диаметра, там ситуация еще интереснее в шахте. To be continued… 2 Посилання на коментар Поділитися на інших сайтах More sharing options...
Grineko Опубліковано: 7 листопада 2015 Поділитись Опубліковано: 7 листопада 2015 А что же "Hart" или Шидель не предложили Вам спец-утеплитель,что бы решить вопрос с утеплением трубы и конденсатом?... на фото показано как должна быть утеплена труба и видео-ролик посмотрите внимательно как нужно собирать (монтаж дымохода)наносить клей,..очень просто и доступно. ... -https://www.youtube.com/watch?v=kQ26ABojMtw Посилання на коментар Поділитися на інших сайтах More sharing options...
C0lumbus Опубліковано: 8 листопада 2015 Автор Поділитись Опубліковано: 8 листопада 2015 А что же "Hart" или Шидель не предложили Вам спец-утеплитель,что бы решить вопрос с утеплением трубы и конденсатом?... на фото показано как должна быть утеплена труба и видео-ролик посмотрите внимательно как нужно собирать (монтаж дымохода)наносить клей,..очень просто и доступно. ... -https://www.youtube.com/watch?v=kQ26ABojMtw Спасибо, эти инструкции от многих производителей перечитал/пересмотрел вдоль и поперек. На пробу брал утеплитель Schiedel, но стоимость такая что страшно даже говорить ;) Ради интереса, озвучьте Ваши цены на утеплитель для 180/160 трубы. Плюс каналы кривые, утеплитель просто бы не влез (очень плотная вата) Кстати, как начал топить в начале цикла на полную мощность, минут 10, конденсата нету, труба прогревается и выходит в рабочий режим. Плюс когда все это дело зашьется суперизолом, там будет своя "атмосфера" и в рабочий режим камин выйдет еще быстрее. Посилання на коментар Поділитися на інших сайтах More sharing options...
Grineko Опубліковано: 8 листопада 2015 Поділитись Опубліковано: 8 листопада 2015 Какая разница,Ф/160 или 180, там в комплекте один формат,начиная с Ф/200,а если на меньший диаметр то отрезается кусок(полоска) на видео все четко показано,если Вы смотрели. А по цене в 25-30% дешевле от Шиделя,это за комплект, а детали соответственно также. Посмотрите ещё раз внимательно видео,там все видно какие шамотные трубы и комплектующие. ... -https://www.youtube.com/watch?v=kQ26ABojMtw Посилання на коментар Поділитися на інших сайтах More sharing options...
C0lumbus Опубліковано: 8 листопада 2015 Автор Поділитись Опубліковано: 8 листопада 2015 Какая разница,Ф/160 или 180, там в комплекте один формат,начиная с Ф/200,а если на меньший диаметр то отрезается кусок(полоска) на видео все четко показано,если Вы смотрели. А по цене в 25-30% дешевле от Шиделя,это за комплект, а детали соответственно также. Посмотрите ещё раз внимательно видео,там все видно какие шамотные трубы и комплектующие. ... -https://www.youtube.com/watch?v=kQ26ABojMtw Извините, не заметил где отрезается полоска под меньший диаметр трубы, на какой минуте? У Schiedel разная толщина ваты под 180/160, т.к. блок наружный одинаковый под обе трубы, думал в Вашем варианте так же. Посилання на коментар Поділитися на інших сайтах More sharing options...
C0lumbus Опубліковано: 9 листопада 2015 Автор Поділитись Опубліковано: 9 листопада 2015 Камрады, выручайте, пришло время монтировать керамический дымоход для твердотопливного/газового котла, необходимы ваши советы. Входные параметры: высота > 9 м диаметр 160 мм потребители - ТТ котел, газовый котел (через год скорее всего), будут работать попеременно подключение потребителей через керам. тройник 45° это тройник на 1 этаже, котельная в цоколе, опустить нету возможности, труба стоит на армопоясе Изначальную схему набросал такую, после того, как прошерстел форум: ТТ котел → шибер (тяга больше чем нужно, возможно) → колено 45° → тройник 45° → труба 500 мм → проход через тройник 45° для газ. котла → труба Х мм → колено 45° → переходник с диаметра 160 мм на 150 мм, вставляется в керамическую трубу, 5 мм зазор заматывается печным шнуром. Подключение “по дыму” получается. Минусы такой схеме вижу такие: конденсат возможно будет просачиваться через соединения и течь по наружным стенкам труб, т.к. вода всегда себе дорогу прокладывает уменьшение на 1см диаметра в 1 месте Какие возможные решения: переделать все соединения “по конденсату”. Для ТТ котла тоже делать в таком случае по конденсату или делать до определенной точки по дыму, а потом по конденсату? Например до первого тройника, в него вставляется труба ТТ котла, а сверху уже идет по конденсату. Как быть с подключением к керамической трубе? Нашел элемент у Schiedel “Переходник*TF 1000 UNI*‐Сталь”, но стоимость =О Сделать похожий элемент на заказ, внешний диаметр керамической трубы 189 мм, т.е. переходик должен быть где-то 200 мм диаметром, чтобы заполнить зазор печным шнуром. Элементы и трубы нержавейка AISI 321, где лучше заказать? Заранее благодарю Теперь отлично понимаю, почему нужно сделать 3 вещи в жизни, и посадить дерево не самая сложная из них Посилання на коментар Поділитися на інших сайтах More sharing options...
SON Опубліковано: 10 листопада 2015 Поділитись Опубліковано: 10 листопада 2015 Изначальную схему набросал такую, переделать все соединения “по конденсату”. Типа нехай течет прям в котел. :D Очи не бачать - серце не болыть. У меня нет уверенности, что если эта труба конструктивно будет аналогична первой, то в ней будет конденсат, даж на газ котле. Для ТТ котла тоже делать в таком случае по конденсату или делать до определенной точки по дыму, а потом по конденсату? Подключение котлов к дымоходу по дыму, вертикальный участок по конденсату. Как быть с подключением к керамической трубе? С каминной топкой у Вас все ж получилось. Чем ТТ котел отличается . 1 Посилання на коментар Поділитися на інших сайтах More sharing options...
C0lumbus Опубліковано: 10 листопада 2015 Автор Поділитись Опубліковано: 10 листопада 2015 [ATTACH]471162[/ATTACH] Да тут ревизия будет с пипкой для слива конденсата, забыл на схеме добавить. Типа нехай течет прям в котел. :D Очи не бачать - серце не болыть. У меня нет уверенности, что если эта труба конструктивно будет аналогична первой, то в ней будет конденсат, даж на газ котле. Да, в котел еще хуже конечно, трубы то поменять можно быстро. А если конденсационный котел, температура газов 40-80° ? Или не успеют охладиться на таком коротком участке, чтобы конденсат появился на стенках трубы? Подключение котлов к дымоходу по дыму, вертикальный участок по конденсату. Т.е. все металл. трубы по дыму вплоть до переходника на керамику? Или только до металл. тройников, в них вставляется по дыму, а дальше уже по конденсату? (Лучше переспросить, чем неправильно понять и смонтировать в итоге не правильно. ) С каминной топкой у Вас все ж получилось. Чем ТТ котел отличается . Если бы не газовый котел, делал бы по дыму из металла и дальше керамика по конденсату (да иначе ведь и нельзя с керам.). А так переживаю, что конденсат (если будет) с газового котла будет стекать по наружным стенкам, а не в слив внизу. Хочу один раз сделать на постоянной основе и не переделывать больше, да кто не хочет, все так хотят Посилання на коментар Поділитися на інших сайтах More sharing options...
SON Опубліковано: 11 листопада 2015 Поділитись Опубліковано: 11 листопада 2015 А если конденсационный котел, температура газов 40-80° ? Или не успеют охладиться на таком коротком участке, чтобы конденсат появился на стенках трубы? По конденсационнику однозначно не скажу, но на участке от котла до дымохода конденсата не будет. В самой трубе вероятность есть, т.к. температура газов очень низкая, но не факт, что будет. "Основная" часть влаги уже будет сконденсирована в котле. Т.е. все металл. трубы по дыму вплоть до переходника на керамику? Да. И тут равнение не столько на конденсат, сколько на продукты сгорания. А так переживаю, что конденсат (если будет) с газового котла будет стекать по наружным стенкам, а не в слив внизу. От обычного газ. котла конденсат появляется ближе к оголовку, там где труба остывшая. Труба внутри чуть влажная. В разе керамики или АЦ трубы вниз он не стекает, удерживается на стенках за счет смачивания. С пластиком или нержой вода течет до самого низа. 1 Посилання на коментар Поділитися на інших сайтах More sharing options...
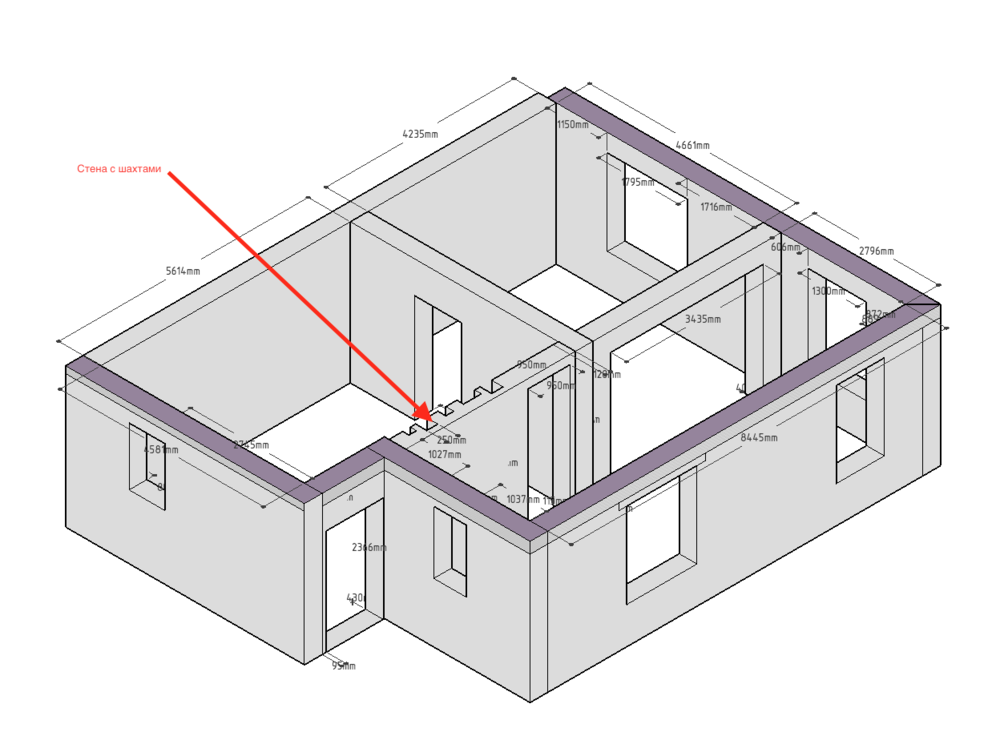
C0lumbus Опубліковано: 11 листопада 2015 Автор Поділитись Опубліковано: 11 листопада 2015 Это ещё не конец, мистер Андерсон, это ещё не конец! (голосом агента Смита). И самое интересное, к чему даже боюсь приступать, не собрав всю информацию, монтаж керамической трубы для ТТ/газового котла. Итак история: шахта, точнее шахты велись открытые с одной стороны, чтобы потом можно было смонтировать трубы. Получилась такая стена с коммуникациями с первого этажа по чердак, на чердаке дальше пошла закрытая шахта, т.е. канал уже со всех сторон обложен кирпичом. Как ни просил, чтобы оставили только закладные из кирпича для керамической трубы, все напрасно. Теперь предстоит задача из серии “впихнуть не впихиваемое” и при этом не моргнуть глазом, т.к. качественный монтаж залог хорошего сна. Высота закрытой шахты 2,6 м, заканчивается чуть выше металлочерепицы (уменьшили вес дымохода). Как теперь туда трубы монтировать, вопрос периодически подымается в кругу семьи, но пока однозначного плана нету. Варианты: A) собираем мега трубу из 4шт, даем ей отстоятся пару дней, а лучше неделю и подымаем вверх, низ мега трубы фиксируется и монтируются трубы внизу, потом мега труба опускается с помощью веревок, пары крепких бойцов и какой-то матери устанавливается на свое место. Вес 52 кг +/-. У труб есть расширение в начале и конце, т.е. можно нацепить хомуты и за них веревки. B) собираем на верху, монтируем 1 трубу, опускаем вниз и так 4 раза, при этом надо их отстаивать минимум 1 день, чтобы на шве не разошлись, иначе все насмарку C) купить трубу-сендвич или одностенную, просто вставить в керам. трубу. Керамические трубы попробовать продать. Самый крайний вариант, т.к. в плане долговечности с керамикой не сравнить остальные трубы. D) Ваш вариант Теперь вопросы, касательно утепления, их нужно решить в первую очередь для старта работ. Чем утеплять трубу с учетом работы ТТ котла и газового котла попеременно? Прежде всего критерий качества и долговечности, чтобы ничего не затекало, не трещало, не портилось, короче чтобы спать спокойно и потом не ходить с такими глазами Варианты следующие: A) засыпаем песком, как в случае с трубой камина B) засыпаем перлитом C) заливаем раствором из сообщения SON выше D) заматываем минеральной ватой, тут уже каналы пошире и выровнены более-менее цементной штукатуркой E) Ваш вариант Температура ТТ котла при выходе на рабочий режим ~200°, газового котла 40-80° (будет скорее всего конденсационный, или какой с лучшим КПД, учитывая цены на газ…). Во всех вариантах сверху над кирпичом труба будет идти выше, почти до высоты конька. Ее нужно утеплить уже 100% одним из вариантов выше, сделав кожух из оцинковки поверх утеплителя. Весь дымоход в итоге зашьется профнастилом, сверху скорее всего будет металл. крышка с прорезями под трубы и конус на керамическую трубу. Под конусом бортик вокруг трубы, что вода стекала на наружу. Чердак будет с температурой 5-10 градусов, крыша утеплена ватой 20 см, балки перекрытия утепляют сейчас 15 см ватой. — Где картинки, Билли? Мне нужны картинки. Добавил схемы и с инета немного. Посилання на коментар Поділитися на інших сайтах More sharing options...
C0lumbus Опубліковано: 11 листопада 2015 Автор Поділитись Опубліковано: 11 листопада 2015 По конденсационнику однозначно не скажу, но на участке от котла до дымохода конденсата не будет. В самой трубе вероятность есть, т.к. температура газов очень низкая, но не факт, что будет. "Основная" часть влаги уже будет сконденсирована в котле. Да. И тут равнение не столько на конденсат, сколько на продукты сгорания. От обычного газ. котла конденсат появляется ближе к оголовку, там где труба остывшая. Труба внутри чуть влажная. В разе керамики или АЦ трубы вниз он не стекает, удерживается на стенках за счет смачивания. С пластиком или нержой вода течет до самого низа. Точно, вот про стекание конденсата я и накрутил себя, совсем забыл что речь в статьях шла про нерж. дымоходы, а трубы керамические то шершавые внутри. Короче завтра заказываю трубы и элементы, пока изготовят, успею подготовить все для монтажа. Огромное Вам спасибо! Посилання на коментар Поділитися на інших сайтах More sharing options...
IvanTcar Опубліковано: 12 листопада 2015 Поділитись Опубліковано: 12 листопада 2015 "В разе керамики или АЦ трубы вниз он не стекает, удерживается на стенках за счет смачивания." то есть Вы имеете ввиду, что у керамики не гладкая поверхность- не покрыта ничем и вода на ней задерживается, то есть впитывается... и что потом будет с этой сырой керамикой... у меня давно была керамическая чашка, правда с покрытием, вода нормально стекает... жена нормально её моёт. она не мокрая... а керамические трубы тогда будут мокрыми...??!! у меня нержавейка...каждый выбирает сам... потом расскажете Посилання на коментар Поділитися на інших сайтах More sharing options...
C0lumbus Опубліковано: 12 листопада 2015 Автор Поділитись Опубліковано: 12 листопада 2015 "В разе керамики или АЦ трубы вниз он не стекает, удерживается на стенках за счет смачивания." то есть Вы имеете ввиду, что у керамики не гладкая поверхность- не покрыта ничем и вода на ней задерживается, то есть впитывается... и что потом будет с этой сырой керамикой... у меня давно была керамическая чашка, правда с покрытием, вода нормально стекает... жена нормально её моёт. она не мокрая... а керамические трубы тогда будут мокрыми...??!! Поверхность керамики не плоская, как у металла, она как поверхность батона в бугорках и глянцевая немного. Именно этот "глянец" защищает от впитывания воды, капли конденсата просто цепляются за "шершавость". Все выше мое мнение. Посилання на коментар Поділитися на інших сайтах More sharing options...
SON Опубліковано: 12 листопада 2015 Поділитись Опубліковано: 12 листопада 2015 и что потом будет с этой сырой керамикой... Нихрена ей не станется. На черепичные и шиферные крыши пообращайте внимание в начале дождя. Аналогию проведете сами. Единственный недостаток керамических дымоходов - это цена. Теперь предстоит задача из серии “впихнуть не впихиваемое” Гинеколога знакомого трэба. :D Чем утеплять трубу с учетом работы ТТ котла и газового котла попеременно? В холодной зоне забить зазор базальтовой ватой с крыши не проблема. Внутри дома лучше не утеплять, разве тока одну сторону где будут обои/отделка. A) засыпаем песком, как в случае с трубой камина C) заливаем раствором "слабеньким" Весь дымоход в итоге зашьется профнастилом, Подумайте, мож зашить чем-то более материальным и поклеить клинкерную плиточку под "кирпич". САвсем другой оконечный вид. 1 Посилання на коментар Поділитися на інших сайтах More sharing options...
C0lumbus Опубліковано: 12 листопада 2015 Автор Поділитись Опубліковано: 12 листопада 2015 В холодной зоне забить зазор базальтовой ватой с крыши не проблема. Внутри дома лучше не утеплять, разве тока одну сторону где будут обои/отделка. A) засыпаем песком, как в случае с трубой камина C) заливаем раствором "слабеньким" Думаю таки песком засыпать, если что, раствором всегда успею залить. Подумайте, мож зашить чем-то более материальным и поклеить клинкерную плиточку под "кирпич". САвсем другой оконечный вид. Та после 3+ лет стройки наружная красота уже не в приоритете :D Следующий дом строил бы 1 этаж, поштукатурил бы снаружи да и все. Стоят ведь дома на Нивках 10+ лет и штукатурке хоть бы что. Просто этот дом на 2 квартиры/семьи, решения по дизайну и архитектуре общие. Честно говоря уже хочется дешево и сердито, не в ущерб качеству. Внутри уже будут всевозможные свистульки и т.п. для комфорта и экономии энергоресурсов. Как там в пословице: "Первый самостоятельно построенный дом лучше сжечь, второй - лучше продать, а в Третьем Доме - можно жить." Такие дела… Посилання на коментар Поділитися на інших сайтах More sharing options...
Рекомендовані повідомлення
Створіть акаунт або увійдіть у нього для коментування
Ви маєте бути користувачем, щоб залишити коментар
Створити акаунт
Зареєструйтеся для отримання акаунта. Це просто!
Зареєструвати акаунтУвійти
Вже зареєстровані? Увійдіть тут.
Увійти зараз