life3399 Опубліковано: 20 листопада 2015 Поділитись Опубліковано: 20 листопада 2015 Каждому свое, не спорю. По ДБН, если мне не изменяет память, минимальная площадь жилой комнаты 10 квадратов, нэ (у вас как минимум 3 комнаты по плану площадью менее 10 квадратов)? Эти нормы по моему для квартир...??? Посилання на коментар Поділитися на інших сайтах More sharing options...
Ter Опубліковано: 16 червня 2016 Автор Поділитись Опубліковано: 16 червня 2016 Страдания юного Вертера продолжаются. Следующая итерация. Сижу и думаю, как все это ужать и менять ли местами спальню родителей и кухню. Посилання на коментар Поділитися на інших сайтах More sharing options...
ПГС-Проект Опубліковано: 16 червня 2016 Поділитись Опубліковано: 16 червня 2016 Я себе такой начал строить,думаю вполне будет достаточно... Дом в Неринах если не ошибаюсь? Посилання на коментар Поділитися на інших сайтах More sharing options...
vadimv Опубліковано: 17 червня 2016 Поділитись Опубліковано: 17 червня 2016 Сижу и думаю, как все это ужать и менять ли местами спальню родителей и кухню.Если честно, не совсем понятно, почему у вас с северной стороны три окна (спальня, гостиная и кухня (или спальня родителей)), с запада и востока по одному малюсенькому окну, а с юга вход и котельная. ИМХО, лучше разместить вход с запада (со стороны бани), на юг вынести гостиную, на север - санузел (и поменьше окон с этой стороны), а на восток - спальни. Посилання на коментар Поділитися на інших сайтах More sharing options...
vadimv Опубліковано: 17 червня 2016 Поділитись Опубліковано: 17 червня 2016 Или можно повернуть вашу планировку на 90 градусов, поменять местами кухню и спальню родителей, и получится что-то типа этого: Посилання на коментар Поділитися на інших сайтах More sharing options...
Ter Опубліковано: 17 червня 2016 Автор Поділитись Опубліковано: 17 червня 2016 Если честно, не совсем понятно, почему у вас с северной стороны три окна (спальня, гостиная и кухня (или спальня родителей)), с запада и востока по одному малюсенькому окну, а с юга вход и котельная. ИМХО, лучше разместить вход с запада (со стороны бани), на юг вынести гостиную, на север - санузел (и поменьше окон с этой стороны), а на восток - спальни. На север выходят детская, спальня родителей (или кухня), тамбур, топочная. На юг выходят детская, гостиная, кухня (или спальня родителей). По востоку и западу - смысл туда дополнительные окна забрасывать (разве что, на запад перенести окно детской с севера, но симметричности, сдается мне, это не понравится)? По размерам помещений и расстановке окон еще не определился. По компоновке, х.з., пока что устраивает, но нужно думать, где еще что "наулучшать". Учитывая, что на участке, который сейчас есть, все просится под бульдозер (дому через 2 года будет стольник), отталкиваться можно только от расположения зданий на соседнем северном участке (на котором тоже все под бульдозер просится). С остальных 3 сторон - дороги. По вашему варианту спасибо, но совмещать кухню и зал - максимум как прилагаемом варианте. Плюс, думается мне, одна арка лучше, чем 3 двери, которые превратят кухню-гостиную в подобие казармы... 1 Посилання на коментар Поділитися на інших сайтах More sharing options...
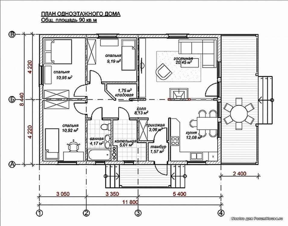
DomiC Опубліковано: 24 червня 2016 Поділитись Опубліковано: 24 червня 2016 (змінено) В соседней веточке нашла вот такой план. Можно поиграться) Змінено 24 червня 2016 користувачем DomiC 1 Посилання на коментар Поділитися на інших сайтах More sharing options...
Технология Строительства Опубліковано: 24 червня 2016 Поділитись Опубліковано: 24 червня 2016 В соседней веточке нашла вот такой план. Можно поиграться) Мініатюри долучень Проектировал похожий дом в Белогородки только площадь 140 м2 Посилання на коментар Поділитися на інших сайтах More sharing options...
Ter Опубліковано: 27 червня 2016 Автор Поділитись Опубліковано: 27 червня 2016 В соседней веточке нашла вот такой план. Можно поиграться) Есть, интересно, спасибо. Единственный минус, наверное, некоторый разброс коммуникаций, ну и количество комнат (нужно 4,5-5). Проектировал похожий дом в Белогородки только площадь 140 м2 140 и меньше 100 разница как бы существенная (хотя, кому как). Посилання на коментар Поділитися на інших сайтах More sharing options...
Рекомендовані повідомлення
Створіть акаунт або увійдіть у нього для коментування
Ви маєте бути користувачем, щоб залишити коментар
Створити акаунт
Зареєструйтеся для отримання акаунта. Це просто!
Зареєструвати акаунтУвійти
Вже зареєстровані? Увійдіть тут.
Увійти зараз