Gonchik Опубліковано: 17 грудня 2015 Поділитись Опубліковано: 17 грудня 2015 Судячи з поставленої задачі, Вам потрібно опалювати каміном, а з площею 160м.кв. повітряним можна лишень догріти, тому для успіху слід починати дивитись на водяні камінні системи, тим паче, що у Вас і так буде водяне опалення. Дешеве повітряне гріє погано, а нормальне схоже на паровоз з чпу - ціна вже як у дизеля, але машиніст і далі чорний від кіптяви. Я розумію, що теперішня зима доволі нетипова, проте на сьогоднішній день газу для опалення ще не використовував. Розводки немає, хата 200 метрів. Три-чотири закладки на день, спалив+/-1,5-2 куби дубу. Машиніст чистий, правда хвилин 10-15 раз на два-три дні треба помахати сокирою (купляю чурки). Ну і приємно - ПТН ПНХ в дії Що я роблю не так? 2 Посилання на коментар Поділитися на інших сайтах More sharing options...
serg9 Опубліковано: 17 грудня 2015 Автор Поділитись Опубліковано: 17 грудня 2015 водяний контур розглядати не буду. ситуаційно - у мене топочна і зал з каміном - розміщені діагонально-протилежно. планую зробити камін - а далі уже буде видно, що він може і які потреби в обігріві ще залишаться. Посилання на коментар Поділитися на інших сайтах More sharing options...
silver8848 Опубліковано: 17 грудня 2015 Поділитись Опубліковано: 17 грудня 2015 (змінено) водяний контур розглядати не буду. ситуаційно - у мене топочна і зал з каміном - розміщені діагонально-протилежно. планую зробити камін - а далі уже буде видно, що він може і які потреби в обігріві ще залишаться. Я в Черновцах на Калинке находил Dovre 2180CBC за 1250 у.е. Dovre2180CBS за 1350 у.е. Если хотите с официальной гарантией +100 у.е к цене. Терамот +150 у.е. Если найду визитку, то скину телефон, ехать не далеко 140 км. Летом я общался с форумчанином Mamont (thttp://www.stroimdom.com.ua/forum/member.php?u=30932) он мне сделал предложение на Dovre 2180CBC, забирать из Львова - Топка 1150 евро+вставка 97 евро (термот). Итого 1247. Был сейчас на Калинке и удивился, появился еще один продавец Dovre 2180 CBC / CBS (0955647385). Цены обещал сделать как в интеренете с гарантией, а на витрине по 3 шт каждой топки. То есть кто-то завез их в Украину крупную партию и распихал по базарам. Так что ищите в своем городе. Змінено 17 грудня 2015 користувачем silver8848 1 Посилання на коментар Поділитися на інших сайтах More sharing options...
Drug2 Опубліковано: 17 грудня 2015 Поділитись Опубліковано: 17 грудня 2015 Гармонією реально зручно користуватись. Коли топка розігріта, вся аж пашить, а треба підкинути поліно, або розворушити жар, привідкриваєш половинку, і топка не б"є жаром в лице зі всією силою. Якось сумбурно написав, але користувачі, думаю, зрозуміють об чом це я. 1 Посилання на коментар Поділитися на інших сайтах More sharing options...
matrot Опубліковано: 17 грудня 2015 Поділитись Опубліковано: 17 грудня 2015 По выбору топки. Я тоже прошел этот период. Купил Кратки. Потом начитался форума, поддался на Мишину агитацию и купил Ютул И350. Кратки была продана за пол-цены. Представляете, ничуть не жалею. Сам установил, заканчиваю обшивку, греюсь у костра. Только вот поздно форум начал читать, а так все пучком. К чему все это? Принимайте правильные решения на чужом опыте, а не на своем! Советовать очень трудно не зная всех обстоятельств и возможностей, но мне кажется, что Вы на правильном пути. Посилання на коментар Поділитися на інших сайтах More sharing options...
Igor_M Опубліковано: 17 грудня 2015 Поділитись Опубліковано: 17 грудня 2015 и у меня на ето пять причин ..... (с) 3. поскольку камин для "отопить", то переходим к площади - "планы" позволяют отопить 160 м.кв. висотой 2,80 м (80+80 поетажно) из 240 общих (искл. гараж, топочную, тамбур, санузлы и хоз. помещение) 4. я не сторонник понтов, 5. выбирал фактически из того, что есть в наличии в магазине в нашем городе На самом деле ПРИЧИН вы указали одну - камин для "отопить". Т.е. ни внешний дизайн, ни красота протуберанцев, ни какие-то другие параметры вас не интересуют, либо интересуют незначительно. С таким подходом я бы посоветовал вам взять таки Jotul i570... Реально отличная топка для "отопить". Невзирая на все стенания Sheridan'а в каждой теме по поводу того, что топкой ОТОПИТЬ нельзя, скажу вам что этой - МОЖНО! Берите и не пожалеете! Скоро наступят реальные холода (может быть), и дом без отопления это не очень хорошо (у меня штукатурка обвалилась и уголки штукатурные поржавели в первый же "неотапливаемый" сезон...) PS Почему я не взял ни 570-ю, ни 10-ю, ни нордпейсов или австрофламмов? У меня несколько другая ситуация - я топку брал как дополнительный и аварийный источник. По дизайну мне больше понравилась та, что я взял. Да, она без футеровки, но белые стенки со временем становятся черными, причем местами... и даже при яростной протопке не очищаются полностью. У и18-й стекло изогнутое... это красиво, но я себе представляю сколько они может стоить и сколько его будут везти (если что)... Что касается "эффектов", то я потом уже (когда купил) увидел какие красивые спецэффекты выдают другие топки - та же 570-я или довре 2180... однако к удивлению своему обнаружил, что на своей я могу получить то же самое... т.е. сидеть часами и любоваться тоже могу... Посилання на коментар Поділитися на інших сайтах More sharing options...
serg9 Опубліковано: 17 грудня 2015 Автор Поділитись Опубліковано: 17 грудня 2015 итак, после сравнительно непродолжительных по времени, но очень мучительных и тяжелых емоционально мук выбора сегодня был внесен задаток за Jotul I18 Harmony. почему именно ета? рассматривал вживую І18 Гармони, І18 Панорама, І570, которые стоят рядышком друг с другом в магазине, и Довре 2180 смотрел по интернету. технологически немного больше нравилась І570 - прямая, плоская, геометрическая (люблю геометрические формы), дверка работает очень легко, белая внутрянка, чуть поменьше І18, поновее будет. но там цена не радовала. І18 больше подходила по цене. Панорама хоть и с огромным стеклом, что давало бы прекрасный обзор, но пугала огромностью двери на "в случае чего", а также она не очень удобна именно для нас, т.к. у нас камин на стенке 1,20м между двух арок с 2 ступеньками, поетому открытая дверка немного перекрывала бы одну их 2 мини-лестниц и шанс "в случае чего" реально возростал. ну и дверь правосторонняя, мне не очень на руку как-то. а І18 Гармони хоть и имеет по сути 2 дверки, и пламя там будет как-будто за решеткой, но она влюбила нас в себя с первого взгляда. не знаю, почему, может потому, что она повернута лицом прямо к нам, или еще почему, но сегодня к концу дня ми с женой спросили друг друга, что мы решаем с топкой, и признались друг другу, что мы оба влюблены в Гармони честно сказать, думая о других топках, я ловил себя на мысли, что я на самом деле не хочу другой топки. очень надеюсь, что ето не емоции и ета симпатия останется надолго. ну и плюс ко всему, для себя я нарисовал несколько технологических плюсов - открывать для подброса дров можно только одну (правую) дверь и открывать как половинкой, так и складывая ее вдвое. во время открывания 1 половинки двери можно спрятаться за другую и не ощущать пашения жара в лицо (имхо, но не уверен), ну и топкой типа можно воспользоваться как открытой (шашлык-башлык и всякое такое, но тоже не уверен). тоесть двери в открытом положении для топки вообще не помеха. не знаю правда, не станет ли ето недостатком для двери в закрытом положении в плане обзорности, но повторюсь - именно ета топка стала для нас более всего симпатишной. ну и сама она виглядит как-то монументально что-ли, не понтово/попсово, а именно внушает взор и впечатляет своей массивностью визуально (имхо). ну и подумал, что стекло на "в случае чего" там 1 из 4. но ето уже детали. ну и плюс І18 больше порадовала ценой, чем І570. кстати, І18 по умолчанию дороже чем І570, а со скидкой она стала порядочно дешевле. тоесть, выбрав І18 у меня такое ощущение, что я купил дорогой товар по лучшей цене. а так ли ето, увидим... Довре 2180 попросту откинул, т.к. ее нет на месте, а покупать дистанционно - я бы етого мозготраха попросту не выдержал бы. так что такой сегодня у нас выдался денек. очень богатый емоционально. а дальше будем видеть, как оно все сложится. не могу не высловить огромную благодарность участникам моего топика, ви мне очень реально помогли и без вашей помощи я бы топку просто не купил. мне кажется, что я купил немного вразрез с вашими советами, но надеюсь, что топка ответит мне взаимностью, а также надеюсь, что тапки в мою сторону не полетят... Посилання на коментар Поділитися на інших сайтах More sharing options...
silver8848 Опубліковано: 18 грудня 2015 Поділитись Опубліковано: 18 грудня 2015 В жизни так часто бывает, что останавливаешь свой выбор совсем не на том, что рассматривал с самого начала. Начали с LaBraise LB CDP или Supra Astra 2, потом Dovre 2180, Jotul 570 и в конце Jotul I18. Очевидно, что выбор хороший. Удачного пользования и ждем фотоотчета . П.С. Для себя рассматривал LaBraise LB CDP и Dovre 2180, после прочтения темы Igor_M почти решил, что куплю LaBraise ("зачем платить больше?"). Но почитал Ваши сообщения начал сомневаться, а тут в живую на базаре увидел Dovre 2180 и опят начинаю с начала... Но у меня еще есть как минимум 6-8 месяцев до покупки. Посилання на коментар Поділитися на інших сайтах More sharing options...
serg9 Опубліковано: 19 грудня 2015 Автор Поділитись Опубліковано: 19 грудня 2015 с установкой в принципе не так уж и спешу. но как уже получится. на след. неделе должны топку завезти, а дальше будем подбирать комплектуху для монтажа. и начнутся муки инсталляции. Посилання на коментар Поділитися на інших сайтах More sharing options...
Igor_M Опубліковано: 21 грудня 2015 Поділитись Опубліковано: 21 грудня 2015 І18 ..... ... она влюбила . ну и плюс І18 больше порадовала ценой, чем І570. Довре 2180 попросту откинул, т.к. ее нет на месте, а покупать дистанционно - я бы етого мозготраха попросту не выдержал бы. ...я купил немного вразрез с вашими советами, но надеюсь, что топка ответит мне взаимностью, а также надеюсь, что тапки в мою сторону не полетят... Ну наконец-то...:D Ничего не буду комментировать по поводу топки, выбор хороший... Главное это то, что вы все-таки нашли возможность "пощупать" и воочию как говорят "почувствовать разницу"...;) И приоритеты правильные: 1) она влюбила нас в себя с первого взгляда 2) плюс больше порадовала ценой (т.е. цена на втором месте...) 3) откинули то, чего нет на месте ("кота в мешке"...) НУ ТЕПЕРЬ ДЕРЖИТЕСЬ! Самое интересное для вас - впереди... 1 Посилання на коментар Поділитися на інших сайтах More sharing options...
serg9 Опубліковано: 21 грудня 2015 Автор Поділитись Опубліковано: 21 грудня 2015 нуда, впереди. обещают в среду завезти. также приедут со спецом по монтажу, будем обсуждать возможности монтажа и разводки каналов обогрева. уже предложили оригинальный дистрибьютор от Jotul по цене 140 евро. а дальше комплектацию будем обсуждать по ситуации. насчет оригинального дистрибьютора будут комментарии по цена/качество? Посилання на коментар Поділитися на інших сайтах More sharing options...
Igor_M Опубліковано: 22 грудня 2015 Поділитись Опубліковано: 22 грудня 2015 (змінено) нуда, впереди. обещают в среду завезти. также приедут со спецом по монтажу, будем обсуждать возможности монтажа и разводки каналов обогрева. уже предложили оригинальный дистрибьютор от Jotul по цене 140 евро. а дальше комплектацию будем обсуждать по ситуации. насчет оригинального дистрибьютора будут комментарии по цена/качество? Я в своей теме все описал подробно... ...в том числе и про дистрибуторы тоже есть... и из чего я делал...и почему Змінено 22 грудня 2015 користувачем Igor_M Посилання на коментар Поділитися на інших сайтах More sharing options...
serg9 Опубліковано: 22 грудня 2015 Автор Поділитись Опубліковано: 22 грудня 2015 смею вас заверить, что вашу тему я схавал вдоль и впоперек. я правильно понял, из нержа, потому, что оцинковка не канает? но как тогда соотносится Jotul и неправильний дистрибьютор от него же? Посилання на коментар Поділитися на інших сайтах More sharing options...
bigbro Опубліковано: 22 грудня 2015 Поділитись Опубліковано: 22 грудня 2015 Dovre 2180 - хорошая отопительная топка за свою цену со своими недостатками. Если есть возможность взять Jotul i570 на 200-300 евро дороже Dovre 2180 - берите и даже не думайте. Я бы уже только за подачу воздуха сверху выбрал i570. Посилання на коментар Поділитися на інших сайтах More sharing options...
Igor_M Опубліковано: 22 грудня 2015 Поділитись Опубліковано: 22 грудня 2015 смею вас заверить, что вашу тему я схавал вдоль и впоперек. я правильно понял, из нержа, потому, что оцинковка не канает? но как тогда соотносится Jotul и неправильний дистрибьютор от него же? ...стоит "правильных денег"... Думаю, что за ТАКИЕ деньги вы сможете вполне сделать из нержавейки ДВА дистрибутора (один "про запас"...:D). А если серьезно, то я думаю, что у норвегов вполне вероятно правильная оцинковка - горячекатанная и с какими-то технологическими тонкостями, которая не перегревается до состояния "отлетания цинка"... Тут вопрос в другом - там уже есть СТАНДАРТНЫЕ отверстия под определенный диаметр - caminos.com.ua/assets/images/products/2821/i-18-panorama-distribyutor.jpg. Мне это В ПРИНЦИПЕ не подходило, поскольку у меня было всего ВОСЕМЬ выводов, из них четыре - ф110, два - ф125 и еще два - ф150. Просто на первый этаж нужно БОЛЬШЕ диаметр, а на второй - МЕНЬШЕ... ...иначе ВСЕ тепло улетит наверх (по пути наименьшего сопротивления)... В-общем, похоже, что все-таки тему мою читали таки "поперек"... Посилання на коментар Поділитися на інших сайтах More sharing options...
serg9 Опубліковано: 23 грудня 2015 Автор Поділитись Опубліковано: 23 грудня 2015 ну вроде как в стандартном дистрибьюторе тоже 2+6 виводов. разница только в том, что там 2*150+6*125, а у вас 2*150+4*110+2*125. 150 уходят в каминную комнату - ето я уже уяснил. а 125 играемся разводкой верх-низ. вопрос насчет 110 - честно не встречал, пропустил наверное. но поверьте, переварить вашу тему камин+обогрев+ргв и вашу профильную тему, привязать ето к своей ситуации и еще остаться при памяти после етого - не так уж и просто. да и ваша ситуация - не еталонная, как не крути, так что брать ее за безоговорочную основу не обязательно. я вроде как планирую идти по принципу - купил - завезли - изучили ситуацию (план етажей, димоход, подвод воздуха), обговорили возможности, подобрали спецификацию, обсудили цену за работу - и вперед. ну и когда уже будет все готово - запускаем и смотрим. даби дурь каждого била видна.... но я не исключаю вариант, что все получится. очень на ето надеюсь.... Добавлено через 4 минуты к примеру, я уже вижу у себя нестиковку - у меня подачу воздуха в топку для горения возможно сделать только с южной сторони. ето против правил, но что поделать. вести в другую сторону дома возможности нет. можно пробовать брать из вентканала в етой же комнате. не знаю, что из етих двух хуже, будем говорить с мастерами и принимать решение. Посилання на коментар Поділитися на інших сайтах More sharing options...
Sheridan Опубліковано: 23 грудня 2015 Поділитись Опубліковано: 23 грудня 2015 к примеру, я уже вижу у себя нестиковку - у меня подачу воздуха в топку для горения возможно сделать только с южной сторони. ето против правил, но что поделать. вести в другую сторону дома возможности нет. можно пробовать брать из вентканала в етой же комнате. не знаю, что из етих двух хуже, будем говорить с мастерами и принимать решение. Ми ж говоримо про вхідний вентканал, вірно? Якщо вентканал дивиться по розі вітрів, тоді так і слід зробити. По таблиці підберіть на вході продуктивність вентиляція+камін, а на виході у вентиляційний отвір регулятор тяги. Таким чином, коли камін працюватиме - братиме додаткове повітря, а коли ні - регулятор триматиме номінальну продуктивність і не холодитиме помешкання. І не забувайте про зволожувач. Часто минають цю тему, а потім електричні ящики-зволожувачі жужать біля каміна, або миски з водою ставлять. Ну і по димоходу, компенсатор тяги ставити збираєтесь? Посилання на коментар Поділитися на інших сайтах More sharing options...
Igor_M Опубліковано: 23 грудня 2015 Поділитись Опубліковано: 23 грудня 2015 я вроде как планирую идти по принципу - купил - завезли - изучили ситуацию (план етажей, димоход, подвод воздуха), обговорили возможности, подобрали спецификацию, обсудили цену за работу - и вперед. ну и когда уже будет все готово - запускаем и смотрим. даби дурь каждого била видна.... Совершенно правильный подход! Когда вы понимаете и хоть немного разбираетесь в том, что вам собираются сделать мастера, то вы заметите и халтуру и нестыковки. УДАЧИ! ну меня подачу воздуха в топку для горения возможно сделать только с южной сторони. ето против правил, но что поделать. вести в другую сторону дома возможности нет. можно пробовать брать из вентканала в етой же комнате. не знаю, что из етих двух хуже, будем говорить с мастерами и принимать решение. Тут важно не север-юг... Если вам мастера такое рассказали "нельзя с южной", то можно усомниться в их "мастеровитости"... Забор воздуха лучше вести с наветренной стороны с учетом преимуществнной розы ветров в вашем районе в осенне-зимне-весенний период... У меня тоже не совсем получилось... и я поставил ОБРАТНЫЙ клапан... Посилання на коментар Поділитися на інших сайтах More sharing options...
Sheridan Опубліковано: 23 грудня 2015 Поділитись Опубліковано: 23 грудня 2015 Тут важно не север-юг... Если вам мастера такое рассказали "нельзя с южной", то можно усомниться в их "мастеровитости"... Забор воздуха лучше вести с наветренной стороны с учетом преимуществнной розы ветров в вашем районе в осенне-зимне-весенний период... У меня тоже не совсем получилось... и я поставил ОБРАТНЫЙ клапан... Слід пам'ятати, що не тільки роза вітрів впливає на місце розміщення притоку для топки: особливості рельєфу та рослинність бувають навіть більш суттєвими. Чи погані майстри? Не знаю, може у них є причини так казати, може немає, але лишень з цього судити про їхню компетентність - не поспішно? Загалом, з рози вітрів Франківщини на рівній місцевості з віддаленими перешкодами і справді виглядає, що не матиме значення і Ви, Igor_M, праві. Посилання на коментар Поділитися на інших сайтах More sharing options...
serg9 Опубліковано: 23 грудня 2015 Автор Поділитись Опубліковано: 23 грудня 2015 мастера мне еще ничего не говорили. с мастерами вести диалог будем на обьекте, когда завезут топку. так будет предметнее. мне не говорили "нельзя с южной", я читал в ваших материалах, что желательно забор воздуха с подветренной сторони. а у нас ето северная сторона. соответсвенно южная - неподветренная. вот и я сказал, что типа "не по правилам". Посилання на коментар Поділитися на інших сайтах More sharing options...
Igor_M Опубліковано: 23 грудня 2015 Поділитись Опубліковано: 23 грудня 2015 мастера мне еще ничего не говорили. с мастерами вести диалог будем на обьекте, когда завезут топку. так будет предметнее. мне не говорили "нельзя с южной", я читал в ваших материалах, что желательно забор воздуха с подветренной сторони. а у нас ето северная сторона. соответсвенно южная - неподветренная. вот и я сказал, что типа "не по правилам". Надеюсь, что теперь вы готовы к диалогу...;) Я вот тоже перед тем, как кого-то запускать на объект на определенные работы, "готовлюсь"... чтобы понимать предметную область и вести разговор на понятном языке... Верю, что у вас все получится. Посилання на коментар Поділитися на інших сайтах More sharing options...
serg9 Опубліковано: 23 грудня 2015 Автор Поділитись Опубліковано: 23 грудня 2015 сегодня дочитал до конца на ФорумХаус тему "Установка Jotul I18". и что меня удивило - на последних страницах топика небезызвестный Миша_К раскритиковал систему отопления на основании каминных топок в пух и прах, как будто ето не на его агитации людьми куплено не одну топку. не знаю, что с ним случилось, но прочитай я ети его слова недельку назад - не знаю, как бы повернулась моя ситуация с покупкой топки. а так, сегодня топку завезли. промеряли, "сняли ситуацию в доме" так сказать, и будем подбирать комплектуху. ну а дальше, увидим, что будет дальше....... Посилання на коментар Поділитися на інших сайтах More sharing options...
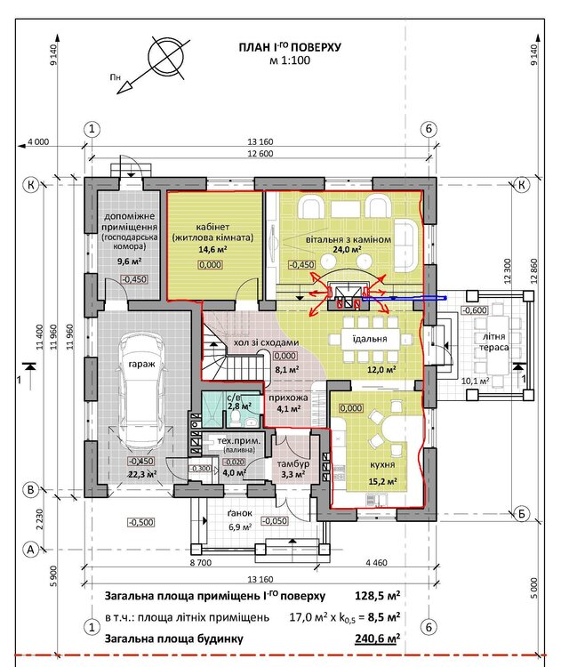
serg9 Опубліковано: 24 грудня 2015 Автор Поділитись Опубліковано: 24 грудня 2015 приклею планы дома. если видите, как можно разумно развести обогрев по комнатам, подскажите. мое мнение такое. - на первом етаже из решеток камина будет прогреваться (во всяком случае должна) почти вся площадь, за исключением кабинета. в кабинет нужно заводить отдельную трубу. (обогреваемую площадь я обозначил красным). - на втором етаже я бы хотел обогреть 3 спальни и комнату для отдыха (комната мансардного типа), целесообразности в ней не много, но оставить ее без обогрева нелогично. холл будет прогреваться сам по себе из первого етажа. так вот, по второму етажу у меня понятно не все. а именно.... - в спальню № 3 и № 4 (см рис.) предлагают завести воздух по трубе, которую провести по одному из венканалов, и наверху ее раздать в обе стороны. мне ето нравится не очень, одной трубой в две комнаты, я бы подавал в каждую комнату отдельно. а как тогда ето сделать? задействовать оба вент. канала? ети каналы вообще для чего нужны? их можно использовать для целей обогрева двух спален и лишить себя вентиляции на 1 етаже в комнате с камином и холле? я думаю, что можно. - ну и в спальню № 2 и в комнату № 1 - как подать обогрев туда? не далековато ли? особенно до № 1 ? вот такие вопросы пока.... Посилання на коментар Поділитися на інших сайтах More sharing options...
serg9 Опубліковано: 24 грудня 2015 Автор Поділитись Опубліковано: 24 грудня 2015 сразу скажу свое мнение насчет того, чтоб использовать вентканалы для обогрева. помню, на стадии проектирования ми их предусмотрели потому, что там камин, возможен запах дыма, и чтоб он мог уходить в вентиляцию. теперь, когда топка типа "герметичная", есть ли в етих вентканалах потребность? на кухне есть вентиляция и в санузле. етого не достаточно? какое ваше мнение? также скажу пару слов насчет подачи воздуха для горения в топку - планирую завести его с улицы (обозначено синим). там у меня 2 ступеньки, кину трубу под ступеньки и выведу на улицу. вроде проблем быть не должно. не знаю, насколько сторона подветренная, но по другому просто не получается. Посилання на коментар Поділитися на інших сайтах More sharing options...
Label Опубліковано: 24 грудня 2015 Поділитись Опубліковано: 24 грудня 2015 У меня точно такие же вентканалы с 1 этажа идут. Буду через них подавать горячий воздух на 2 этаж в комнаты 1 Посилання на коментар Поділитися на інших сайтах More sharing options...
Рекомендовані повідомлення
Створіть акаунт або увійдіть у нього для коментування
Ви маєте бути користувачем, щоб залишити коментар
Створити акаунт
Зареєструйтеся для отримання акаунта. Це просто!
Зареєструвати акаунтУвійти
Вже зареєстровані? Увійдіть тут.
Увійти зараз