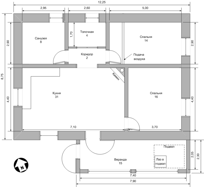
normal Опубліковано: 16 грудня 2015 Поділитись Опубліковано: 16 грудня 2015 Приветствую всех форумчан! Делаю реконструкцию старого одноэтажного дома и очень нуждаюсь в советах по организации будущего камина. В общем сейчас стоит старая кирпичная топка, встроенная между двух стен и обшита оцинковкой, через час-два после одной закладки дров к ней уже дотронуться нельзя (плюю - шипит), тепло держит часов шесть и греет сразу три комнаты (если не весь дом). Все внутренние стены и эта топка будут разбираться, а рядом выгоняться новые стены (в один полнотелый кирпич) согласно плану на картинке. Очень бы хотелось сделать топку не хуже текущей, чтобы обогревала три комнаты (без вентиляторов) и выглядела как угловой камин в гостинной (хотя нужно не сколько для красоты, а для ежедневного отопления). Есть возможность сделать подвод внешнего воздуха, кирпичный дымоход с керамической трубой, стены из огнеупорного кирпича вокруг. Непонятно где лучше расположить дымоход и топку (в углу или в самой стене) и какую топку выбрать (конвекционную типа jotul или теплоемкий портал), подскажите куда копать, заранее всем спасибо! Посилання на коментар Поділитися на інших сайтах More sharing options...
вогнистый владимир Опубліковано: 16 грудня 2015 Поділитись Опубліковано: 16 грудня 2015 normal, Такое слово -Груба ,Вам знакомо.? 1 Посилання на коментар Поділитися на інших сайтах More sharing options...
normal Опубліковано: 16 грудня 2015 Автор Поділитись Опубліковано: 16 грудня 2015 Знакомо, часто спал возле неё в детстве, знаю что это "хитрый" дымоход в стене и всё... Посилання на коментар Поділитися на інших сайтах More sharing options...
yanka Опубліковано: 17 грудня 2015 Поділитись Опубліковано: 17 грудня 2015 Приветствую всех форумчан! Делаю реконструкцию старого одноэтажного дома и очень нуждаюсь в советах по организации будущего камина. В общем сейчас стоит старая кирпичная топка, встроенная между двух стен и обшита оцинковкой, через час-два после одной закладки дров к ней уже дотронуться нельзя (плюю - шипит), тепло держит часов шесть и греет сразу три комнаты (если не весь дом). Все внутренние стены и эта топка будут разбираться, а рядом выгоняться новые стены (в один полнотелый кирпич) согласно плану на картинке. Очень бы хотелось сделать топку не хуже текущей, чтобы обогревала три комнаты (без вентиляторов) и выглядела как угловой камин в гостинной (хотя нужно не сколько для красоты, а для ежедневного отопления). Есть возможность сделать подвод внешнего воздуха, кирпичный дымоход с керамической трубой, стены из огнеупорного кирпича вокруг. Непонятно где лучше расположить дымоход и топку (в углу или в самой стене) и какую топку выбрать (конвекционную типа jotul или теплоемкий портал), подскажите куда копать, заранее всем спасибо!Можно сделать всё из кирпича в виде теплоемкой угловой каминопечи. Итепло будет держать почти сутки, хотя конечно лучше топить два раза в сутки. Дымоход встанет на верх печи посреди, т.е. симметрично в углу. Не понятно зачем перегородки в "один полнотелый киорпич", это ж 25см. Достаточно 12см--вполкирпича. Как правило 25см-это несущие стены на которые балки ложатся. отделка может быть любой.понятно что кладка подрасшивку(фото) дороговата из-за "угловатости" печи, можно кладка попроще а потом отштукатурить красиво Стоит подчеркнуть что обогреть 60 квадратов -печь немаленькая нужна.как вы той круглой обогревали не понимаю, или у вас там тепло(чай не Сибирь)или колотились от холода и кочегарили бедную печь дОнельзя и таки угробили. 2 Посилання на коментар Поділитися на інших сайтах More sharing options...
normal Опубліковано: 17 грудня 2015 Автор Поділитись Опубліковано: 17 грудня 2015 Относительно тепло (Николаевская обл), плюс наружные стены ~50 см. из саманного блока облицованы в пол красного кирпича. Вот та длинная внутренняя стена в 25см. будет несущей (планируется армопояс и новые балки с крышей), остальные наверное тоже 25 (для лучшей звукоизоляции), отделка будет штукатурка и обои. Сейчас копают фундамент под эти стены и первым делом мне надо определиться с фундаментом под камин: связывать его с фундаментом стен или нет. Хотелось бы ровные стены в спальнях и я так понимаю несущую стену трогать нежелательно, да и самый простой прямой дымоход внутри этой стены не влезет. Непонятно куда двигаться: делать такую печь в углу на отдельном фундаменте и отдельно от стен или заложить общий фундамент и потом связывать камин-дымоход со стенами спален Посилання на коментар Поділитися на інших сайтах More sharing options...
yanka Опубліковано: 17 грудня 2015 Поділитись Опубліковано: 17 грудня 2015 . плохо-- когда один фундамент есть а потом рядом другой лепится а у вас всё с нуля, поэтому делайте общий фундамент и всё. Тока там в земле проармируйте Стены в 25 см не есть гут бо часть печи спрячется и отдавать тепло не будет. Или у самой печи перегородку сузить до 12 см в виде ниши. Сами перегородки должны быть связаны выше печи(печь чуть больше 2м Труба -не в стене а рядом. 1 Посилання на коментар Поділитися на інших сайтах More sharing options...
normal Опубліковано: 17 грудня 2015 Автор Поділитись Опубліковано: 17 грудня 2015 Понял, спасибо! Интересно было бы ещё как-то поставить перемычки в стены и встроить типа такой топки или сделать на стыке стен топку из огнеупорного кирпича, а стеклянную дверцу и окна вывести в гостиную и спальни, ну это по-моему вообще из области фантастики (не понимаю где такое найти или как сделать и что будет в плане безопасности), буду искать печника и делать ваш вариант Посилання на коментар Поділитися на інших сайтах More sharing options...
вогнистый владимир Опубліковано: 17 грудня 2015 Поділитись Опубліковано: 17 грудня 2015 normal, Грубу в простенки, печь- камин в угол. Дверка -стеклянная. 1 Посилання на коментар Поділитися на інших сайтах More sharing options...
yanka Опубліковано: 17 грудня 2015 Поділитись Опубліковано: 17 грудня 2015 normal, Грубу в простенки, печь- камин в угол. Дверка -стеклянная.вова привет, твои крестики стали притчей воязицех, Посилання на коментар Поділитися на інших сайтах More sharing options...
Slaven_33 Опубліковано: 17 грудня 2015 Поділитись Опубліковано: 17 грудня 2015 Можете у меня в теме идею взять на вооружение: www.stroimdom.com.ua/forum/showthread.php?t=180387 1 Посилання на коментар Поділитися на інших сайтах More sharing options...
yanka Опубліковано: 17 грудня 2015 Поділитись Опубліковано: 17 грудня 2015 Можете у меня в теме идею взять на вооружение: www.stroimdom.com.ua/forum/showthread.php?t=180387не запутались там в 5 задвижках? как вообще, отделали? Посилання на коментар Поділитися на інших сайтах More sharing options...
Slaven_33 Опубліковано: 17 грудня 2015 Поділитись Опубліковано: 17 грудня 2015 не запутались там в 5 задвижках? как вообще, отделали? Нет, не запутался. Там всё просто на самом деле. Горизонтальные задвижки - летний ход, вертикальные - зимний, кроме самой верхней. Правда, мне лень их передвигать, я сразу растапливаю "по большому кругу". Сейчас топлю каждый день, всё ок. Дом примерно 80-85 м2, за окном ночью около -6, температура в доме после протопки 21-23 градуса, на утро 18-19. Уходит примерно 20 кг дров. На утро топка и стены ещё теплые, топка даже больше горячая. Газ ещё даже не включал. На плите готовим кушать периодически. Короче - бомба, очень доволен! Вот здесь более детально описано, по-моему. Можете почитать. www.stroimdom.com.ua/forum/showthread.php?t=189545 Посилання на коментар Поділитися на інших сайтах More sharing options...
yanka Опубліковано: 18 грудня 2015 Поділитись Опубліковано: 18 грудня 2015 Вот здесь более детально описано, по-моему. Можете почитать. www.stroimdom.com.ua/forum/showthread.php?t=189545 молодцы, ниче не скажешь, что всё своими руками.Дай Бог мира вам и удачи 1 Посилання на коментар Поділитися на інших сайтах More sharing options...
вогнистый владимир Опубліковано: 18 грудня 2015 Поділитись Опубліковано: 18 грудня 2015 yanka, Приветствую Иван Данилович. Люди мой кресты -уже делают и оценили по достоинству. Жена в шоке. Магарыч уже по новой почте -присылают. Сам то -когда осилиш.? Посилання на коментар Поділитися на інших сайтах More sharing options...
yanka Опубліковано: 19 грудня 2015 Поділитись Опубліковано: 19 грудня 2015 yanka, Приветствую Иван Данилович. Люди мой кресты -уже делают и оценили по достоинству. Жена в шоке. Магарыч уже по новой почте -присылают. Сам то -когда осилиш.?"Кирпич на кирпич-гони бабка магарыч":D А жена от чего в шоке7 от магарыча или от "крестиков"? и что я еще не осилил а должен? Посилання на коментар Поділитися на інших сайтах More sharing options...
вогнистый владимир Опубліковано: 20 грудня 2015 Поділитись Опубліковано: 20 грудня 2015 yanka, То что Вы -знаете про щитки все, я уже знаю. Может что -своего нового -покажеш.? Вот баньку -сделал с Г. образным щитком. Посилання на коментар Поділитися на інших сайтах More sharing options...
yanka Опубліковано: 20 грудня 2015 Поділитись Опубліковано: 20 грудня 2015 yanka, То что Вы -знаете про щитки все, я уже знаю. Может что -своего нового -покажеш.? Вот баньку -сделал с Г. образным щитком.к чему это в этой теме? 1 Посилання на коментар Поділитися на інших сайтах More sharing options...
вогнистый владимир Опубліковано: 20 грудня 2015 Поділитись Опубліковано: 20 грудня 2015 yanka, Камин -на три комнаты. Крест -выплывает. Иван Данилович - говорю при ВСЕХ - крест -выплывает.Либо Т. образка. Посилання на коментар Поділитися на інших сайтах More sharing options...
yanka Опубліковано: 21 грудня 2015 Поділитись Опубліковано: 21 грудня 2015 Крест -выплывает. Иван Данилович - говорю при ВСЕХ - крест -выплывает..ага, "и гроб с покойничком летает над крестами, и тишинааа":o Челу не нужен щиток, не забывай что там одна стена несущая и проем в ней сильно не разгонишься делать. Посилання на коментар Поділитися на інших сайтах More sharing options...
вогнистый владимир Опубліковано: 23 грудня 2015 Поділитись Опубліковано: 23 грудня 2015 Все внутренние стены и эта топка будут разбираться, а рядом выгоняться новые стены (в один полнотелый кирпич) согласно плану на картинке. Очень бы хотелось Иван Данилович - ВСЕ ВНУТРЕННИЕ СТЕНЫ -будут разбираться. Посилання на коментар Поділитися на інших сайтах More sharing options...
Рекомендовані повідомлення
Створіть акаунт або увійдіть у нього для коментування
Ви маєте бути користувачем, щоб залишити коментар
Створити акаунт
Зареєструйтеся для отримання акаунта. Це просто!
Зареєструвати акаунтУвійти
Вже зареєстровані? Увійдіть тут.
Увійти зараз