tyrd Опубліковано: 11 січня 2016 Поділитись Опубліковано: 11 січня 2016 После долгих раздумий все таки решил осуществить мечту и купить участок для будущей стройки. Все детство прожил в доме и квартира для меня была всегда коробкой для временного жилья. После долгих уговоров супруги в разрезе, давай купим если что продадим, купили два участка по 8 соток, размер каждого 20*40 После того как тесть узнал что мы приобрели участок возле десны, сказал что у него есть столбы для забора и траверсы со стеллажа которые можно использовать для маленького летнего домика который потом можно будет использовать как хозблок. Учитывая что до этого я пару месяцев читал этот форум и такие подарки от тестя у меня руки зачесались делать что то уже на майские праздники, хотя изначально договорился с супругой что как минимум год даем форы и может весной 2017 что то начнем. и теперь у меня дилемма, сначала казалось что 20 метров ну очень узко, теперь смотрю проекты домов и понимаю что нормально, вот 25 было бы идеально как по мне. Я бы оставил конечно оба и оба их осваивал, но реально понимаю что обслуживать 16 соток придется. И вот главный вопрос, оставить себе оба участка или хватит одного. Самая главная загвоздка в том что он сильно узкий как по мне и я пока не могу представить как это жить в доме и быть в 3-4 метров от соседа, а еще не дай бог он вплотную к тебе построиться... есть вариант в будущем порезать участки и продать соседям( участки возле меня проданы но строительство еще не начато) Еще не могу понять как расположить дом на участке, по ютубовским советам получается надо его засунуть в нижний левый угол, соответственно картинке) и если и оставлять себе один то вроде лучше тот что выше от перекрестка. На участке будет только дом, хозблок. Без гаража хочу просто навес при заезде. огородик на пару соток игровая площадка для деток которых хотим 2-3. Подвал не хочу, саун тоже, бассейнов темболее. То есть 8 соток будет наверное с головой. Кто что может посоветовать по поводу проживания и размещения на таком участке дома, скважины и септика. И главный вопрос куда тулить этот хозблок Посилання на коментар Поділитися на інших сайтах More sharing options...
Strelka_007 Опубліковано: 11 січня 2016 Поділитись Опубліковано: 11 січня 2016 На участке будет только дом, хозблок. Без гаража хочу просто навес при заезде. огородик на пару соток игровая площадка для деток которых хотим 2-3. Подвал не хочу, саун тоже, бассейнов темболее. То есть 8 соток будет наверное с головой. Узкий участок 8 соток для постоянного проживания, особенно когда Вы планируете 2-3 деток это очень и очень мало. Захотите сад посадить, грядочек, чтобы малышам вырастить чистых продуктов + от соседей иметь дом на небольшом хотя бы удалении... потом малышня Вас попросит хоть небольшой (каркасный) бассейн поставить во дворе, а потом еще заведете собаку, цветов посадите.... Земли много не бывает, 16 соток это как раз "санитарный" минимум для пригорода! :D А то получится по факту как у наших родственников: справа и слева высокие дома соседей, между домами от силы 8 метров, глухие заборы под которыми толком ничего не растет (тень), септики, скважины, компостные ямы - все рядом. Будет дискомфорт как в квартире. 3 Посилання на коментар Поділитися на інших сайтах More sharing options...
NYKE Опубліковано: 11 січня 2016 Поділитись Опубліковано: 11 січня 2016 Если финансы позволяют-оставляйте оба не думая. Очень многие не веря в свои силы думали, что ограничатся 6-8 сотками "Та хоть бы на это хватило денег,сил и времени!" По факту не так все страшно...и теперь слышу "Еще сотки 3-4 бы!" Продать второй участок можно всегда. 6 Посилання на коментар Поділитися на інших сайтах More sharing options...
tyrd Опубліковано: 11 січня 2016 Автор Поділитись Опубліковано: 11 січня 2016 Я вот как вы тоже думаю) У родителей соток 20 с огородом и красотень, мето есть для всего, а сестра на 5 сотках достраивают по комнатке и вроде им нормально, но разогнаться негде... Друг построил на 7 сотках, но квадратных домик, использует как дачный. И говорит места с головой, бассейн там сделал, дом с подвалом и погребом. Говорит что с головой ему и наткнул на мысль что хватит 8 соток...оно бы и хватило наверное если бы квадратный, но это пока он там постоянно не живет, сосед возле него строиться в 5-ти метрах и я думаю он когда там этот сосед поселиться он круто поменяет мнение. Спасает там что два фасада выходят на дорогу и напротив еще никто не строиться. Да и насколько проще поставить дом, в его тени пусть будет хозблок и септик возле него, да и туалет деревенский там нужен будет 100%, а на узком участке не влепишь Посилання на коментар Поділитися на інших сайтах More sharing options...
Sерджио Опубліковано: 13 січня 2016 Поділитись Опубліковано: 13 січня 2016 (змінено) Оставляйте оба. 20 и больше - уже многовато. 16 соток - это таки вполне нормальный участок. Особенно, учитывая сегодняшнюю моду городиться глухими заборами - то на малом участке ощущение как в колодце. Имхо, конечно же. На 16 сотках с нормальным фасадом и дом проще разместить и те же хозпостройки и место под огород/сад, если планируется. и место для активного отдыха. Змінено 13 січня 2016 користувачем Sерджио 1 Посилання на коментар Поділитися на інших сайтах More sharing options...
Andrei constructor Опубліковано: 13 січня 2016 Поділитись Опубліковано: 13 січня 2016 Я вот как вы тоже думаю) У родителей соток 20 с огородом и красотень, мето есть для всего, а сестра на 5 сотках достраивают по комнатке и вроде им нормально, но разогнаться негде... Друг построил на 7 сотках, но квадратных домик, использует как дачный. И говорит места с головой, бассейн там сделал, дом с подвалом и погребом. Говорит что с головой ему и наткнул на мысль что хватит 8 соток...оно бы и хватило наверное если бы квадратный, но это пока он там постоянно не живет, сосед возле него строиться в 5-ти метрах и я думаю он когда там этот сосед поселиться он круто поменяет мнение. Спасает там что два фасада выходят на дорогу и напротив еще никто не строиться. Да и насколько проще поставить дом, в его тени пусть будет хозблок и септик возле него, да и туалет деревенский там нужен будет 100%, а на узком участке не влепишь Если вы любите очень заниматься садом и огородом, тогда конечно нужно оставить лишние сотки на это. Если не очень, тогда вам достаточно будет 5 соток сада и огорода (до 3 соток застройка, отмостка, площадки, терраса). В последнем случае продавать не спешите. Т.к. сейчас стоимость земли очень низкая. Подождите и со временем и цена подрастет на землю и будет понимание тянете дополнительные сотки сада и огорода. Сколько будет проживающих в доме? 3 Посилання на коментар Поділитися на інших сайтах More sharing options...
vadimv Опубліковано: 13 січня 2016 Поділитись Опубліковано: 13 січня 2016 сначала казалось что 20 метров ну очень узко, теперь смотрю проекты домов и понимаю что нормально, вот 25 было бы идеально как по мнеУ меня по фасаду ширина участка 21 метр - это очень мало (с одной стороны дом шириной 10 м отстоит на 2 м от забора - ничего уже не разместишь, с другой стороны кое-как удалось впихнуть сливную яму и площадку шириной на одну машину - а хотелось бы на 2). Минимально 25 м, идеально 30-40. Так что я бы при наличии финансов брал 16 соток (у нас сейчас именно столько - 5-6 соток на двор и дом, 5 на сад и 5 на огород). 2 Посилання на коментар Поділитися на інших сайтах More sharing options...
mastervovik Опубліковано: 13 січня 2016 Поділитись Опубліковано: 13 січня 2016 Да конечно оба оставляйте, 20м это пипец узко (лучше уж 40ширина 20 глубина) если есть такая возможность)! По крайней мере постройки размещайте в этом квадрате а задний участок под сад/огород. У меня друган так сделал на всякий случай, если жизнь сильно прижмет второй (огород) можно будет продать! У меня 17, 14-15 еще бы пережил это впритык! А когда пишут что 8 соток хватает с головой... Это наверно от зависти))) это уже не участок а дача ИМХО! Посилання на коментар Поділитися на інших сайтах More sharing options...
vladimir_arch Опубліковано: 14 січня 2016 Поділитись Опубліковано: 14 січня 2016 20 метров ну очень узко Утверждение справедливо только для широких домов. Но даже если не говорить о (ссылка устарела) или (ссылка устарела) (шириной по фронту 8 - 9 метров), то даже вполне заурядный дом шириной 12 метров тоже способен нормально разместиться на 20 метрах - см. (ссылка устарела), в начале текста пример размещения. 1 Посилання на коментар Поділитися на інших сайтах More sharing options...
mastervovik Опубліковано: 14 січня 2016 Поділитись Опубліковано: 14 січня 2016 о даже вполне заурядный дом шириной 12 метров тоже способен нормально разместиться на 20 метрах - см. здесь, в начале текста пример размещения. Чуть лучше чем в квартире:D 1 Посилання на коментар Поділитися на інших сайтах More sharing options...
Andrei constructor Опубліковано: 14 січня 2016 Поділитись Опубліковано: 14 січня 2016 Утверждение справедливо только для широких домов. Но даже если не говорить о проектах домов для узких участков или аналогичных (шириной по фронту 8 - 9 метров), то даже вполне заурядный дом шириной 12 метров тоже способен нормально разместиться на 20 метрах - см. здесь, в начале текста пример размещения. Согласен. 20 м это еще не самый плохой вариант. Посилання на коментар Поділитися на інших сайтах More sharing options...
boss_maxx Опубліковано: 14 січня 2016 Поділитись Опубліковано: 14 січня 2016 Ранше наделяли участки 20х30м=6 соток.И хватало.Ведь можно поставить и 2 етажа.Подвал или полу-подвал выгоден тем что под домом можно обустроить котельню с отдельным входом.Постирочную- бытовку и много чего ещо.Сам дом у самой дороги не желательно \шум от проезжающих авто\И комуникации \септик\ближе к улице.На одном участке стройте дом.Второй под огород -сад.А там посмотрите. 1 Посилання на коментар Поділитися на інших сайтах More sharing options...
tyrd Опубліковано: 14 січня 2016 Автор Поділитись Опубліковано: 14 січня 2016 Если вы любите очень заниматься садом и огородом, тогда конечно нужно оставить лишние сотки на это. Если не очень, тогда вам достаточно будет 5 соток сада и огорода (до 3 соток застройка, отмостка, площадки, терраса). В последнем случае продавать не спешите. Т.к. сейчас стоимость земли очень низкая. Подождите и со временем и цена подрастет на землю и будет понимание тянете дополнительные сотки сада и огорода. Сколько будет проживающих в доме? Вообще так и планировалось позже продать что бы отбить расходы на землю Добавлено через 54 секунды У меня по фасаду ширина участка 21 метр - это очень мало (с одной стороны дом шириной 10 м отстоит на 2 м от забора - ничего уже не разместишь, с другой стороны кое-как удалось впихнуть сливную яму и площадку шириной на одну машину - а хотелось бы на 2). Минимально 25 м, идеально 30-40. Так что я бы при наличии финансов брал 16 соток (у нас сейчас именно столько - 5-6 соток на двор и дом, 5 на сад и 5 на огород). Как минимум место на две машины нужно, а в идеале что бы 4-ре ставало, если дети подростут или друзя приедут Добавлено через 6 минут Утверждение справедливо только для широких домов. Но даже если не говорить о проектах домов для узких участков или аналогичных (шириной по фронту 8 - 9 метров), то даже вполне заурядный дом шириной 12 метров тоже способен нормально разместиться на 20 метрах - см. здесь, в начале текста пример размещения. Нужно три спальни на втором этаже, две по 12 метров для детей, и моя на 15 с гардеробом, Ванная и туалет раздельный, желательно отдельная ванная в спальне моей. Первый этаж кабинет кухня метров 9-ть и хол метров 25, так же топочная и прачечная и санузел на 4-5 метров на первом этаже. Смотрел проэкты очень плохо мои хотелки влазят на 20 метров...ну и терраса нужна. А ориентиры по сторонам света такие что нужен больше квадратный дом. Крутые у вас проекты!!! Меня больше смущает что к забору будет не далеко и сосед будет очень близко, вот если дом то хочу чувствовать себя одним в поле)) А коттеджный городок будет очень плотно застроен, землю продали в течении полу года и многие по улице уже строятся. Добавлено через 4 минуты Ранше наделяли участки 20х30м=6 соток.И хватало.Ведь можно поставить и 2 етажа.Подвал или полу-подвал выгоден тем что под домом можно обустроить котельню с отдельным входом.Постирочную- бытовку и много чего ещо.Сам дом у самой дороги не желательно \шум от проезжающих авто\И комуникации \септик\ближе к улице.На одном участке стройте дом.Второй под огород -сад.А там посмотрите. У меня граничат участки с участками как раз по 6-ть соток и я думаю что со временем я им как раз обоим продам по две сотки) ну или как миниму вдоль порежу один участок и продам соседу с лева) ну это так думалось, а реально потом посмотрим нужно ли им все это будет Посилання на коментар Поділитися на інших сайтах More sharing options...
Strelka_007 Опубліковано: 14 січня 2016 Поділитись Опубліковано: 14 січня 2016 Нужно три спальни на втором этаже, две по 12 метров для детей, и моя на 15 с гардеробом, Ванная и туалет раздельный, желательно отдельная ванная в спальне моей. Первый этаж кабинет кухня метров 9-ть и хол метров 25, так же топочная и прачечная и санузел на 4-5 метров на первом этаже. На СД уже столько копий сломано на тему: сколько этажей лучше 2 или 1, почитайте. Если участок позволяет, дом в один этаж гораздо комфортнее для жизни, бОльшая часть застройщиков Вам это подтвердят. Если же Вы категорически за 2 этажа, то хотя бы одна крохотная спаленка на 1-м этаже для пожилых родителей или "на старость лет" для самих хозяев дома. Тогда можно закрывать второй этаж и не топить (ситуация дети выросли, пожилые родители остались сами в большом доме). 3 Посилання на коментар Поділитися на інших сайтах More sharing options...
boss_maxx Опубліковано: 14 січня 2016 Поділитись Опубліковано: 14 січня 2016 Вот говорят что 2 этаж высоко.А как на 5 люди ходят и жывы \хрущевки\.На 2 м этаже тише чем на 1 м.И второй эт.можно для гостей держать. Посилання на коментар Поділитися на інших сайтах More sharing options...
tyrd Опубліковано: 14 січня 2016 Автор Поділитись Опубліковано: 14 січня 2016 На СД уже столько копий сломано на тему: сколько этажей лучше 2 или 1, почитайте. Если участок позволяет, дом в один этаж гораздо комфортнее для жизни, бОльшая часть застройщиков Вам это подтвердят. Если же Вы категорически за 2 этажа, то хотя бы одна крохотная спаленка на 1-м этаже для пожилых родителей или "на старость лет" для самих хозяев дома. Тогда можно закрывать второй этаж и не топить (ситуация дети выросли, пожилые родители остались сами в большом доме). Одноэтажный тоже рассматриваются, супруге очень нравятся лестницы и как то стереотип что двухэтажный круче)) раньше то два этажа только у багачей были))) а мне одноэтажные только большие интересны, а это деньги...вообще дом хочу сделать максимально энергоэфективным, возможно с тепловым насосом и солнечными панелями, вот изучаю тему с чего строить. Добавлено через 1 минуту Вот говорят что 2 этаж высоко.А как на 5 люди ходят и жывы \хрущевки\.На 2 м этаже тише чем на 1 м.И второй эт.можно для гостей держать. Люблю ходить по лестнице, единственное опасение за детей. Посилання на коментар Поділитися на інших сайтах More sharing options...
Algebra Опубліковано: 14 січня 2016 Поділитись Опубліковано: 14 січня 2016 У меня участок 77х33 Капец, как много. Покупала перед ростом цен на земельные участки. Участок , как и Ваш, угловой, с двух сторон соседи. Планировала половину продать. Сейчас нет цены, да и продавать уже не вижу смысла. Дом+садик+маленький огород. Освоили пока половину участка. Забор поставить -отдельная песТня. Дорого-дорого-дорого. З.Ы. Решила, что если с бизнесом будет плохо, буду огородину выращивать на продажу. Ничего продавать не рекомендую, так как узко очень получится , "королевство" маловато будет". И еще, не стоит строить дом далеко от дороги. Поедьте на участок, когда снег-дождь. Пройдитесь в конец участка, Поймете о чем я. ну, еще и стоимость дорожек к дому, который в конце участка, тоже не порадует. Поверьте, купить участок и начать стройку - это фигня. Прозреваешь, когда дело доходит до обустройства двора, террасы, беседки, сарая ( инвентарь садовый туда, генератор). Я это называю " бросание денег под ноги" И сын еще ругается, что надо траву косить. Прикольно,когда что-то делает в конце участка, а надо за чем -то сбегать в дом - вот это пробежка. Сейчас бы покупала участок правильной формы , площадью 8-10 соток. Но раньше не понимала проблемы большого участка.Опыт-опыт где ты был раньше 2 Посилання на коментар Поділитися на інших сайтах More sharing options...
Andrei constructor Опубліковано: 14 січня 2016 Поділитись Опубліковано: 14 січня 2016 Вот говорят что 2 этаж высоко.А как на 5 люди ходят и жывы \хрущевки\. Жить на разных уровнях это не одно и тоже, как жить на одном уровне (например, на 5-м этаже). И еще, когда вы строите себе дом вы можете выбрать как будет удобней жить. Посилання на коментар Поділитися на інших сайтах More sharing options...
abelor Опубліковано: 14 січня 2016 Поділитись Опубліковано: 14 січня 2016 К великому сожалению наши люди искалечены малометражными хрущевками. У меня был заказчик, хорошо "приподнявшийся" в 90-е годы, которому я в центре Киева запроектировала трехэтажный особняк на 800м2. Так вот, одна из гостиных в этом доме у него была... 70м2. Он решил сам расставить мебель в этой гостиной и расставил ее... вдоль стенок. Просто он родился в двухкомнатной хрущевке и эти привычки уже трудно исправить. Некоторые такие "приподнявшиеся" вместо того, чтобы провести зонирование таких огромных просторов, делают из них "домик людоеда", куда устанавливают мебель неимоверных размеров.Ну, что поделаешь, как говорится: из грязи - в князи.;) Жить на разных уровнях это не одно и тоже, как жить на одном уровне (например, на 5-м этаже). И еще, когда вы строите себе дом вы можете выбрать как будет удобней жить. Посилання на коментар Поділитися на інших сайтах More sharing options...
tyrd Опубліковано: 15 січня 2016 Автор Поділитись Опубліковано: 15 січня 2016 У меня участок 77х33 Забор поставить -отдельная песТня. Дорого-дорого-дорого. При том что у меня есть столбы для забора, я присмотрел необрезаную доску и уже офигел)) А еще мне надо подсыпать участок на 50-70 см, тоже при цене 45 грн за тонну 50 тысяч вылазит и это не чернозем) Думаю после фундамета подсыпать или весной что бы устоялась земля к следующему году Добавлено через 1 минуту У меня участок 77х33 И еще, не стоит строить дом далеко от дороги. Поедьте на участок, когда снег-дождь. Пройдитесь в конец участка, Поймете о чем я. ну, еще и стоимость дорожек к дому, который в конце участка, тоже не порадует. Поверьте, купить участок и начать стройку - это фигня. Прозреваешь, когда дело доходит до обустройства двора, террасы, беседки, сарая ( инвентарь садовый туда, генератор). Я это называю " бросание денег под ноги" Думал дом в глубь прятать что бы тени на участке было меньше, но скорее всего буду ждать или говорить с соседями как они будут размещать дома и потом думать куда свой ставить. Но за идею спасибо) не подумал об этом Посилання на коментар Поділитися на інших сайтах More sharing options...
Algebra Опубліковано: 17 січня 2016 Поділитись Опубліковано: 17 січня 2016 У меня 6 метров от калитки до входной двери. Расстояние от забора к дому 4 метра с одной стороны, до 10 метров. Дальше 19 метров свободной площади. Проведу зонирование и сделаю площадку на 2 автомобиля. Посилання на коментар Поділитися на інших сайтах More sharing options...
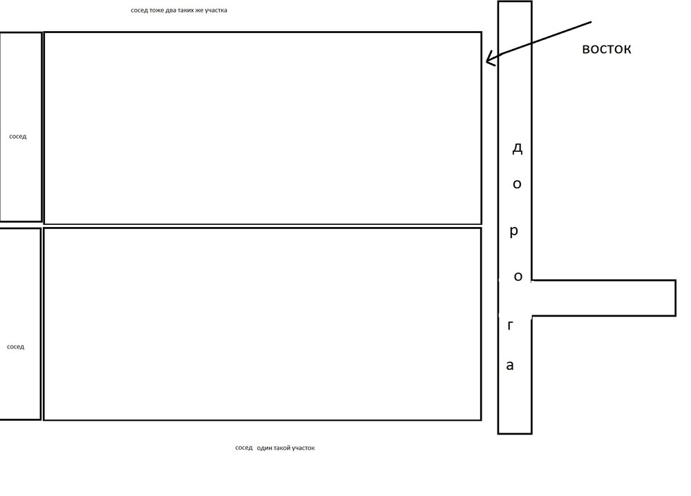
semengv Опубліковано: 23 січня 2016 Поділитись Опубліковано: 23 січня 2016 А еще мне надо подсыпать участок на 50-70 см, Не делайте лишней работы! Отбейте уровень относительно дороги и сделайте террасирование участка. Будет намного интереснее выглядеть и земли столько не надо привозить. А по хозблоку - ставьте там, где стрелкой указан "восток" - длинной стороной к меже с соседом. Немного прикроет с севера, и если вдруг надумаете продавать второй участок (хотя я бы не продавала - у меня 15 соток) - переставлять не надо будет. Посилання на коментар Поділитися на інших сайтах More sharing options...
tyrd Опубліковано: 3 лютого 2016 Автор Поділитись Опубліковано: 3 лютого 2016 Не делайте лишней работы! Отбейте уровень относительно дороги и сделайте террасирование участка. Будет намного интереснее выглядеть и земли столько не надо привозить. А по хозблоку - ставьте там, где стрелкой указан "восток" - длинной стороной к меже с соседом. Немного прикроет с севера, и если вдруг надумаете продавать второй участок (хотя я бы не продавала - у меня 15 соток) - переставлять не надо будет. После того что насчитали самой дешёвой земли по 55 гр\т надо завезти на 90 тысяч я уже думаю подсыпать только соток 4-5 там где будет дом и возле него. А там дальше вода и так уходит в песок и позже там что то придумается. Единственное соседи подсыпаются, но или фундамент забора сделаю или стоки вдоль их участков Посилання на коментар Поділитися на інших сайтах More sharing options...
Andrei constructor Опубліковано: 3 лютого 2016 Поділитись Опубліковано: 3 лютого 2016 55 гр\т надо завезти на 90 тысяч А принять грунт бесплатно на участок не думали? Многие камазисты возят. А верхний слой досыпать плодородным черноземом. Посилання на коментар Поділитися на інших сайтах More sharing options...
tyrd Опубліковано: 3 лютого 2016 Автор Поділитись Опубліковано: 3 лютого 2016 А принять грунт бесплатно на участок не думали? Многие камазисты возят. А верхний слой досыпать плодородным черноземом. Я как то на таких не нарывался)) А не стремно что мусора всякого навезут? Посилання на коментар Поділитися на інших сайтах More sharing options...
Рекомендовані повідомлення
Створіть акаунт або увійдіть у нього для коментування
Ви маєте бути користувачем, щоб залишити коментар
Створити акаунт
Зареєструйтеся для отримання акаунта. Це просто!
Зареєструвати акаунтУвійти
Вже зареєстровані? Увійдіть тут.
Увійти зараз