Likvid@tor Опубліковано: 2 лютого 2016 Поділитись Опубліковано: 2 лютого 2016 Любые вопросы по конструкциям(расчеты,конструктивные решения)спрашиваем,не стесняемся,от геологии до конструкций кровли...можно задачки со звездочкой* 1 Посилання на коментар Поділитися на інших сайтах More sharing options...
Likvid@tor Опубліковано: 26 лютого 2016 Автор Поділитись Опубліковано: 26 лютого 2016 Бесплатно естественно Посилання на коментар Поділитися на інших сайтах More sharing options...
Likvid@tor Опубліковано: 27 лютого 2016 Автор Поділитись Опубліковано: 27 лютого 2016 скиньте план кровли и поэтажные планы,хорошо бы разрез...и марку плит перекрытий...желательно с индексами,там заложена несущая способность,она идет от 4(400 кг/м2) до 1.2(1,200 кг/м2) без учета собственного веса плиты.далее я расскажу как перейти от распределенной к сосредоточенной нагрузки.и пишите в ветке пожалуйста) Посилання на коментар Поділитися на інших сайтах More sharing options...
Игорь&Ира Опубліковано: 27 лютого 2016 Поділитись Опубліковано: 27 лютого 2016 Бесплатно естественно Pls, c этого места (www.stroimdom.com.ua/forum/showpost.php?p=3712753&postcount=418) и дальше по поводу несущей способности плиты перекрытия под французским балконом и трещины на ней. Посилання на коментар Поділитися на інших сайтах More sharing options...
Likvid@tor Опубліковано: 27 лютого 2016 Автор Поділитись Опубліковано: 27 лютого 2016 (змінено) з73 кг это нагрузка общая или на погонный метр...можно схемку от руки,нарисуйте пожалуйста Добавлено через 2 минуты какое опирание,консольное или нет,сама плиту какая монолитная или сборная...в общем план этажа надо и где именно трещина, и куда вся нагрузка приходится,если монолит-толщину плиты и армирование,если плита сборная,то марку с индексами.если консоль то и её длину Змінено 27 лютого 2016 користувачем Likvid@tor Посилання на коментар Поділитися на інших сайтах More sharing options...
Игорь&Ира Опубліковано: 27 лютого 2016 Поділитись Опубліковано: 27 лютого 2016 з73 кг это нагрузка общая или на погонный метр...можно схемку от руки,нарисуйте пожалуйста 373 кг - это общая масса Г-образной металлопластиковой конструкции по передней и боковой стороне балкона 2,8х1,1 м. Схема балкона: www.stroimdom.com.ua/forum/showpost.php?p=3717076&postcount=426. какое опирание,консольное или нет,сама плиту какая монолитная и сборная...в общем план этажа надо и где именно трещина, и куда вся нагрузка приходится,если монолит толщину плиты и армирование,если плита сборная,то марку с индексами.если консоль то и её длину Я "чайник" в этих вопросах. Фото балкона: www.stroimdom.com.ua/forum/showpost.php?p=3743360&postcount=469. Фото трещины: www.stroimdom.com.ua/forum/showpost.php?p=3717988&postcount=3225. Посилання на коментар Поділитися на інших сайтах More sharing options...
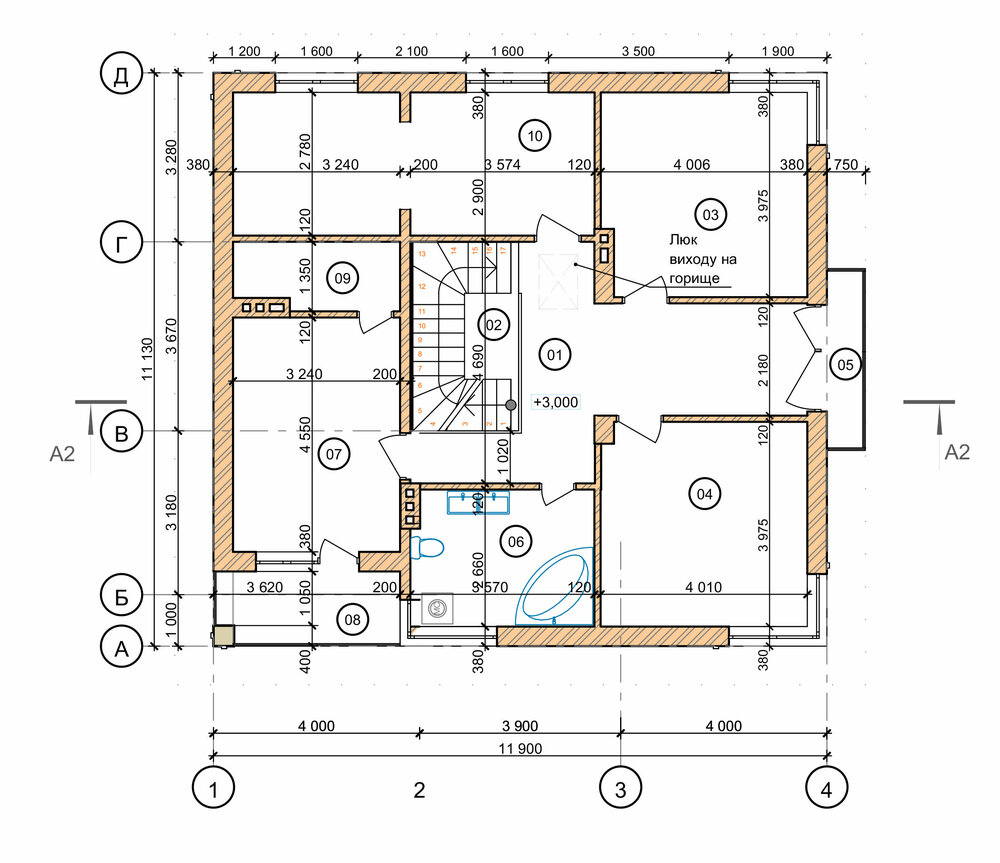
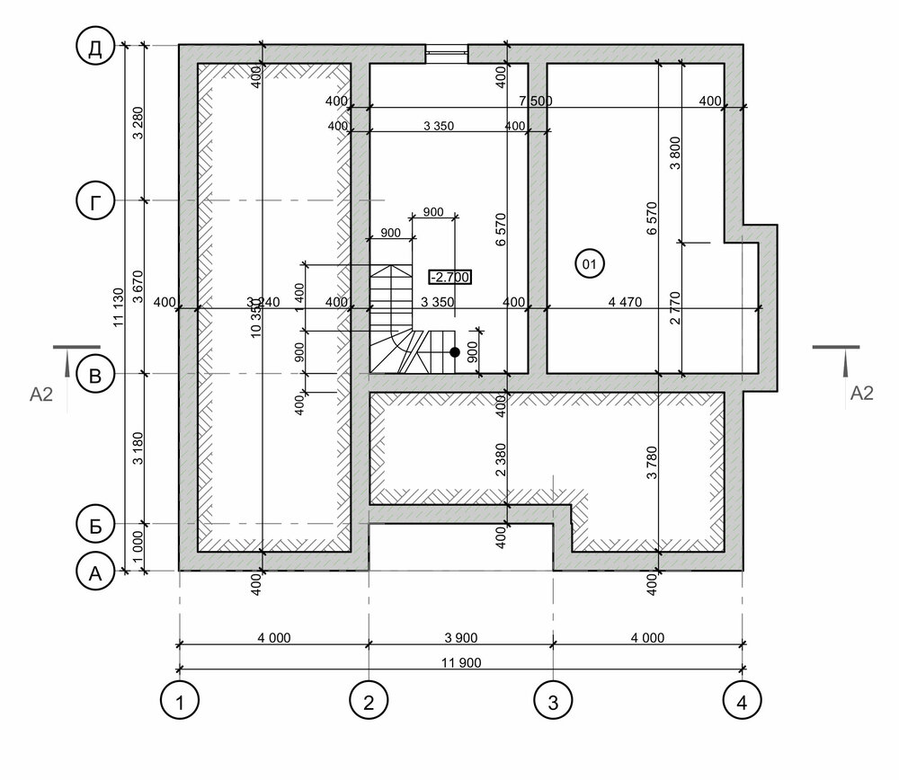
shusta Опубліковано: 27 лютого 2016 Поділитись Опубліковано: 27 лютого 2016 Добрий день, пора***те будь-ласка монолітне перекриття а також перемички над кутовими вікнами. плани в додатку, стіни зовнішні LEIER 38, внутрішні BREGO ЩБ-190 Посилання на коментар Поділитися на інших сайтах More sharing options...
Likvid@tor Опубліковано: 27 лютого 2016 Автор Поділитись Опубліковано: 27 лютого 2016 Добавлено через 56 секунд 373 кг - это общая масса Г-образной металлопластиковой конструкции по передней и боковой стороне балкона 2,8х1,1 м. Схема балкона: www.stroimdom.com.ua/forum/showpost.php?p=3717076&postcount=426. Я "чайник" в этих вопросах. Фото балкона: www.stroimdom.com.ua/forum/showpost.php?p=3743360&postcount=469. Фото трещины: www.stroimdom.com.ua/forum/showpost.php?p=3717988&postcount=3225. если это трещина к наружному краю не переживайте и спите спокойно.просто откололся защитный слой.если трещина у балконной двери тогда ЧП.но как вижу я ,все-таки спите спокойно:wink:,единственное что,это крепление самой пластиковой рамы может быть под вопросом,ну а с плитой,см.выше Добавлено через 1 минуту Добавлено через 41 секунду Добрий день, пора***те будь-ласка монолітне перекриття а також перемички над кутовими вікнами. плани в додатку, стіни зовнішні LEIER 38, внутрішні BREGO ЩБ-190 вам необходимо добавить колонны с красного кирпича в осях В-2,Г-2,Г-3,В-3,размер 380Х510 и т,д.тогда будет h=180 армирование Ф10 шаг 200Х200 верх и низ,в местах опирания колонн из кирпича верхнее армирование усилить Ф12 с шагом 200, тогда между ними будет шаг 100. 2 Посилання на коментар Поділитися на інших сайтах More sharing options...
shusta Опубліковано: 27 лютого 2016 Поділитись Опубліковано: 27 лютого 2016 Колони будуть, але монолітні, так ж можна? Посилання на коментар Поділитися на інших сайтах More sharing options...
Игорь&Ира Опубліковано: 27 лютого 2016 Поділитись Опубліковано: 27 лютого 2016 если это трещина к наружному краю не переживайте и спите спокойно.просто откололся защитный слой.если трещина у балконной двери тогда ЧП.но как вижу я ,все-таки спите спокойно:wink:,единственное что,это крепление самой пластиковой рамы может быть под вопросом,ну а с плитой,см.выше Трещина у противоположного по диагонали от балконной двери угла балкона к наружному краю. Крепление анкерное 120 мм. Посилання на коментар Поділитися на інших сайтах More sharing options...
Likvid@tor Опубліковано: 27 лютого 2016 Автор Поділитись Опубліковано: 27 лютого 2016 рабочая зона у балкона,это там где балкон защемляется в кладку(зона наибольшего момента)и чем ближе к краю(к улице),тем меньше момент.к краю он равен нулю.еще вопрос,а трещина по всей толщине раскрыта или только с верху Добавлено через 3 минуты Колони будуть, але монолітні, так ж можна? да,но так дороже и технолодически тяжелее сделать...не забудьте фундаменты под них;) Посилання на коментар Поділитися на інших сайтах More sharing options...
shusta Опубліковано: 27 лютого 2016 Поділитись Опубліковано: 27 лютого 2016 да,но так дороже и технолодически тяжелее сделать...не забудьте фундаменты под них А якщо замість стін з блоків BREGO ЩБ-190 використати кірпіч або LEIER 25, стіна вийде тоді 25 см, то теж потрібні колони? Фундамент залитий, товщина стін 40 см. План в додатку Посилання на коментар Поділитися на інших сайтах More sharing options...
Likvid@tor Опубліковано: 27 лютого 2016 Автор Поділитись Опубліковано: 27 лютого 2016 для того чтобы выполнить колонны,необходимо пята(уширение) в фундаменте,для того чтобы давление под подошвой фундамента было равномерным и давление не превышало расчетного сопротивления грунта,то есть в местах операния колонн, нужно было расширить фундамент.так как фундамент отлит-только стены из красного кирпича и в плите в местах перпендикулярных стенам необходимо верхнюю зону усилять Ф12 с шагом 200+фоновая Ф10 шаг 200Х200.стены поменять на кирпич по оси 2,3 и лучше в 1,5 кирпича(380 мм). Посилання на коментар Поділитися на інших сайтах More sharing options...
Игорь&Ира Опубліковано: 27 лютого 2016 Поділитись Опубліковано: 27 лютого 2016 еще вопрос,а трещина по всей толщине раскрыта или только с верху Вы имеете ввиду: или по всей толщине плиты? Сосед снизу трещины не видел. Посилання на коментар Поділитися на інших сайтах More sharing options...
shusta Опубліковано: 27 лютого 2016 Поділитись Опубліковано: 27 лютого 2016 А чому leier не підходить? І чому 380 мм рекомендуєте? Посилання на коментар Поділитися на інших сайтах More sharing options...
Кафоля Опубліковано: 29 лютого 2016 Поділитись Опубліковано: 29 лютого 2016 Доброго. Подскажите,как правильно посчитать объём работ и материалов на ленточный фундамент с черновым полом? Может какой-то алгоритм есть? А то все считают....и получаются разные цифры Может я не правильно считаю... Посилання на коментар Поділитися на інших сайтах More sharing options...
tys1303 Опубліковано: 1 березня 2016 Поділитись Опубліковано: 1 березня 2016 Добрый день! Хочу обратиться за помощью, нужно к существующему дому к стене из газоблока 30см достроить накрытие для автомобилей, которое будет служить полом балкона со второго этажа. Нарисовал, как я себе это вижу: Размеры: Возникли следующие вопросы: 1. Колонны толстые мне не нравятся, хочу сделать бетонные, 20*20 см квадратные, достаточно ли, какой марки, какая армировка? 2. Ширина самого накрытия 6 метров. Достаточно ли 2 колонн, очень не хочется ставить еще и посередине? 3. Само перекрытие - монолитное бетонное. Какой толщины лить бетон, какой марки, какая армировка? 4. Нужен ли армопояс под монолитное перекрытие? Какой высоты, какая армировка, какая марка бетона? 5.Нужны ли колонны впритык к существующим стенам? Сейчас дом не утеплен, буду утеплять 10см ППС. Если колонны нужны, как лучше, лить вплотную к стене, а потом утеплять снаружи, или сначала утеплить фасад, потом лить колонны? 6. Как завязать перекрытия к существующей стене из газоблока? 7. Какой нужен фундамент под сами колонны, в частности, которые граничат со стеной? Дом стоит на ленточном фундаменте с пяткой сантиметров 30. Дело, вроде, простое, но вопросов оказалось много Посилання на коментар Поділитися на інших сайтах More sharing options...
tys1303 Опубліковано: 6 березня 2016 Поділитись Опубліковано: 6 березня 2016 Если кто-то может предложить ответ на заданные вопросы или изготовить проект на не бесплатной основе, прошу сбросить предложение в личку. Посилання на коментар Поділитися на інших сайтах More sharing options...
abelor Опубліковано: 6 березня 2016 Поділитись Опубліковано: 6 березня 2016 Дом серьезный, поэтому нужно сделать шурфование близлежащих к будущей конструкции накрытия(как Вы это называете) фундаментов. Если найдете конструктора, который скажет, что шурфы ему не обязательно, убегайте от такого "спеца" как можно быстрее и без оглядки. Добрый день! Хочу обратиться за помощью, нужно к существующему дому к стене из газоблока 30см достроить накрытие для автомобилей, которое будет служить полом балкона со второго этажа. Нарисовал, как я себе это вижу: [ATTACH]493021[/ATTACH] [ATTACH]493022[/ATTACH] Размеры: [ATTACH]493023[/ATTACH] [ATTACH]493024[/ATTACH] [ATTACH]493025[/ATTACH] Возникли следующие вопросы: 1. Колонны толстые мне не нравятся, хочу сделать бетонные, 20*20 см квадратные, достаточно ли, какой марки, какая армировка? 2. Ширина самого накрытия 6 метров. Достаточно ли 2 колонн, очень не хочется ставить еще и посередине? 3. Само перекрытие - монолитное бетонное. Какой толщины лить бетон, какой марки, какая армировка? 4. Нужен ли армопояс под монолитное перекрытие? Какой высоты, какая армировка, какая марка бетона? 5.Нужны ли колонны впритык к существующим стенам? Сейчас дом не утеплен, буду утеплять 10см ППС. Если колонны нужны, как лучше, лить вплотную к стене, а потом утеплять снаружи, или сначала утеплить фасад, потом лить колонны? 6. Как завязать перекрытия к существующей стене из газоблока? 7. Какой нужен фундамент под сами колонны, в частности, которые граничат со стеной? Дом стоит на ленточном фундаменте с пяткой сантиметров 30. Дело, вроде, простое, но вопросов оказалось много Посилання на коментар Поділитися на інших сайтах More sharing options...
Likvid@tor Опубліковано: 6 березня 2016 Автор Поділитись Опубліковано: 6 березня 2016 Добавлено через 42 секунды Доброго. Подскажите,как правильно посчитать объём работ и материалов на ленточный фундамент с черновым полом? Может какой-то алгоритм есть? А то все считают....и получаются разные цифры Может я не правильно считаю... доброго,скиньте мне информацию(план фундамента и план первого этажа, если есть экспликацию полов(для того чтобы знать толщину полов))или скажите какая информация есть Добавлено через 7 минут Добрый день! Хочу обратиться за помощью, нужно к существующему дому к стене из газоблока 30см достроить накрытие для автомобилей, которое будет служить полом балкона со второго этажа. Нарисовал, как я себе это вижу: [ATTACH]493021[/ATTACH] [ATTACH]493022[/ATTACH] Размеры: [ATTACH]493023[/ATTACH] [ATTACH]493024[/ATTACH] [ATTACH]493025[/ATTACH] Возникли следующие вопросы: 1. Колонны толстые мне не нравятся, хочу сделать бетонные, 20*20 см квадратные, достаточно ли, какой марки, какая армировка? 2. Ширина самого накрытия 6 метров. Достаточно ли 2 колонн, очень не хочется ставить еще и посередине? 3. Само перекрытие - монолитное бетонное. Какой толщины лить бетон, какой марки, какая армировка? 4. Нужен ли армопояс под монолитное перекрытие? Какой высоты, какая армировка, какая марка бетона? 5.Нужны ли колонны впритык к существующим стенам? Сейчас дом не утеплен, буду утеплять 10см ППС. Если колонны нужны, как лучше, лить вплотную к стене, а потом утеплять снаружи, или сначала утеплить фасад, потом лить колонны? 6. Как завязать перекрытия к существующей стене из газоблока? 7. Какой нужен фундамент под сами колонны, в частности, которые граничат со стеной? Дом стоит на ленточном фундаменте с пяткой сантиметров 30. Дело, вроде, простое, но вопросов оказалось много 1.колонны 30Х30,армирование Ф12(минимальное), бетон В20(маркеровки есть разные) 2.вполне нормальная схема расположения колонн.Иное,какое сечение и с какого материала сделать накрытие(перекрытие) 3.не надо вам там ни какого монолитного перекрытия(металл,дерево) 4.- 5.впритык(плюс-минус) 6.- 7.под навес толька фундаментная плита(h=150) в местах опирания колонн увеличить до 200(зоны продавливания) ни каких шурфов не надо. 1 Посилання на коментар Поділитися на інших сайтах More sharing options...
Likvid@tor Опубліковано: 7 березня 2016 Автор Поділитись Опубліковано: 7 березня 2016 -если перекрытие будет использываться, как балкон или терасса,тогда толщина 200, армирование Ф12 верхняя и нижняя сетка,в зонах колонн верхнюю сетку усилить Ф12. Добавлено через 24 минуты Доброго. Подскажите,как правильно посчитать объём работ и материалов на ленточный фундамент с черновым полом? Может какой-то алгоритм есть? А то все считают....и получаются разные цифры Может я не правильно считаю... чистый объем 25.5 м3, объемы ваши разнятся из-за коефициента рахрыхления,для разных грунтов он разный.от 1.5-2.5.вот берите средний 2.и того около 50 м3 1 Посилання на коментар Поділитися на інших сайтах More sharing options...
tys1303 Опубліковано: 9 березня 2016 Поділитись Опубліковано: 9 березня 2016 Likvid@tor, Спасибо, что откликнулись. 1 - понятно 2 - понятно 3 - не совсем понятно. Вы имеете в виду, сделать из деревянных балок основание, и накрыть, скажем, ОСБ? Или, всё же: если перекрытие будет использываться, как балкон или терасса,тогда толщина 200, армирование Ф12 верхняя и нижняя сетка,в зонах колонн верхнюю сетку усилить Ф12. - да, будет использоваться как терраса (с плиткой, или зелёной травкой сверху, ещё не решил). Я верно понял, эта конструкция касается самого накрытия, а не фундаментной плиты, фундаментная, в свою очередь, остается: 7.под навес толька фундаментная плита(h=150) в местах опирания колонн увеличить до 200(зоны продавливания) ни каких шурфов не надо. ? 4 - если всё же делать плиту перекрытия, то вопрос на счет необходимости под него армирующего пояса актуален, нужен ли? 5 - понятно. 6 - или его и завязывать особо не нужно, а оставить отдельной конструкцией, заделав только шов герметиком, например полиуретановым? 7 - понятно частично, в зависимости от ответа на вопрос №3 Посилання на коментар Поділитися на інших сайтах More sharing options...
dnepryanka Опубліковано: 24 червня 2016 Поділитись Опубліковано: 24 червня 2016 Добрый день! Нужна помощь. Планируем возводить забор, но возник вопрос. Есть перепад между участком и дорогой с примыкающей землей - 1050мм. Дорога выше. Как я понимаю, забор плавно превращается в подпорную стену. Помогите, пожалуйста, с расчетом, не хотелось бы, чтобы через время забор плавно подъехал к дому . На рисунке план опорное стены для заезда вдоль, Забор планируется слева по оси Д, возможно можно связать с этими опорными для надежности. Есть геология грунтов, если это существенно поможет.Станичная_55_11.06_(final_1)-11-11.pdf Посилання на коментар Поділитися на інших сайтах More sharing options...
labuda Опубліковано: 24 червня 2016 Поділитись Опубліковано: 24 червня 2016 Здравствуйте. Помогите, пожалуйста определиться. Есть разработанный проект достаточно авторитетной фирмой в Одессе. По проекту дом запланирован из ракушечника в 1,5 камня (60 см) с утеплением минватой. Два полноценных этажа, чердак нежилой, крыша тяжелая, подвала нет, перекрытие первого этажа монолит с плитами, второго этажа - дерево. В проекте конструктор сделал монолитный каркас со множеством колонн. Но другие конструкторы и прорабы говорят, что это лишнее и не стоит тратить столько денег на колонны. Строительство предполагается в Одессе, есть геология (просадочные грунты с 2-2,5 м). Прошу обратить внимание, что есть консольные участки, над которыми будут монолитные перекрытия, являющиеся балконами. Думаю возможны следующие варианты: 1. Строить по проекту (дорого выйдет) 2. Убрать вообще колонны 3. Оставить колонны только на первом этаже 4. Убрать колонны, а второй этаж делать легче, из газобетона Подскажите как рациональнее поступить. Спасибо. Посилання на коментар Поділитися на інших сайтах More sharing options...
DomiC Опубліковано: 24 червня 2016 Поділитись Опубліковано: 24 червня 2016 Любые вопросы по конструкциям(расчеты,конструктивные решения)спрашиваем,не стесняемся,от геологии до конструкций кровли...можно задачки со звездочкой* День добрый. Спасибо за возможность, передаю привет маме. Шутко. Вопрос звучит так: Насколько низко ( не высоко)) можно ставить входные двери относительно земли? Очень не нравятся высокие крылечки. Готова с земли сразу в дом и наоборот). Но у нас иногда все еще выпадает снег . Вопрос конечно чайниковскей не бывает, но все же. Спасибо заранее! Посилання на коментар Поділитися на інших сайтах More sharing options...
Рекомендовані повідомлення
Створіть акаунт або увійдіть у нього для коментування
Ви маєте бути користувачем, щоб залишити коментар
Створити акаунт
Зареєструйтеся для отримання акаунта. Це просто!
Зареєструвати акаунтУвійти
Вже зареєстровані? Увійдіть тут.
Увійти зараз