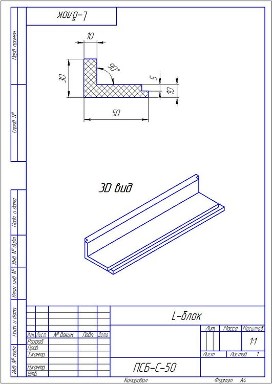
Tair Опубліковано: 11 квітня 2016 Поділитись Опубліковано: 11 квітня 2016 Друзья, есть возможность изготовления L-блоков для УШП сложного профиля из ПСБ-С-50. Собственно встал вопрос универсального конструктива. Хотел бы услышать какие габаритные размеры блока были бы наиболее востребованы. На данный момент мои мысли следующие: Длинна блока L=200 см Высота блока H=300 см Ширина блока B=500 см Прилагаю для обсуждения эскиз прототипа. Что интересует: 1) оптимальная длинна блока - например технологично делать 2 метра или 1.5, или метровые блоки? 2) Если пенопласт плотностью 50 с замком по периметру, есть ли необходимость делать проклейку фиброцементной плитой? 3) В идеале сделать конструкцию которая позволит обойтись без опалубки. Как думаете такая плотность ПСБ позволит отказаться от нее? Посилання на коментар Поділитися на інших сайтах More sharing options...
Татьяна5 Опубліковано: 12 квітня 2016 Поділитись Опубліковано: 12 квітня 2016 из ПСБ-С-50. а из ЭППС? Посилання на коментар Поділитися на інших сайтах More sharing options...
Tair Опубліковано: 12 квітня 2016 Автор Поділитись Опубліковано: 12 квітня 2016 а из ЭППС? К сожалению из ЭППС технологически невозможно в Украине Поэтому остановили выбор на ПСБ-С-50 - он по плотности (около 32кг/куб) и качеству приравнивается к ЭППС. Посилання на коментар Поділитися на інших сайтах More sharing options...
Татьяна5 Опубліковано: 12 квітня 2016 Поділитись Опубліковано: 12 квітня 2016 1) оптимальная длинна блока - например технологично делать 2 метра или 1.5, или метровые блоки? если под УШП, то: 1) Размер высота 200 мм, толщина 50 мм, по подошве 600 мм (или 500), толщина по подошве 100 мм - такое пользуется на УШП-лайт (под легкие строения типа сарая, хозблока, маленького домика). Длина блока в 1,1,5 метра - оптимальна. Блок не оч ходовой. 2) Размер высота 300 мм, толщина 50 мм, по подошве 600 мм (или 500), толщина по подошве 100 мм - размер ходовой 3) Размер высота 300 мм, толщина 100 мм, по подошве 600 мм (или 500), толщина по подошве 100 мм - размер самый ходовой ходовой Добавлено через 40 секунд Поэтому остановили выбор на ПСБ-С-50 - он по плотности и качеству приравнивается к ЭППС. но у него есть пару оч не приятных вещей типа гигроскопичности и отделки цоколя... Добавлено через 1 минуту Если пенопласт плотностью 50 с замком по периметру, есть ли необходимость делать проклейку фиброцементной плитой? да, если эта плита потом станет и отделкой или основой под отделку В идеале сделать конструкцию которая позволит обойтись без опалубки. Как думаете такая плотность ПСБ позволит отказаться от нее? нет, не позволяет, разопрет точно Добавлено через 1 минуту если цена будет понятной и с отделкой фиброцементной плитой, хорошая и правильная геометрия - буду постоянным клиентом 3 Посилання на коментар Поділитися на інших сайтах More sharing options...
Dmode Опубліковано: 12 квітня 2016 Поділитись Опубліковано: 12 квітня 2016 но у него есть пару оч не приятных вещей типа гигроскопичности Я недавно наткнулся на американские гос. исследования по XPS в условиях после 15 лет в грунте. Привычные убеждения на счет "общепринятых" преимуществ XPS перед EPS пошатнулись. Содержание влаги в EPS было существенно бOльшим, чем принято считать, в отличие от EPS. Посилання на коментар Поділитися на інших сайтах More sharing options...
Tair Опубліковано: 12 квітня 2016 Автор Поділитись Опубліковано: 12 квітня 2016 если под УШП, то: 1) Размер высота 200 мм, толщина 50 мм, по подошве 600 мм (или 500), толщина по подошве 100 мм - такое пользуется на УШП-лайт (под легкие строения типа сарая, хозблока, маленького домика). Длина блока в 1,1,5 метра - оптимальна. Блок не оч ходовой. 2) Размер высота 300 мм, толщина 50 мм, по подошве 600 мм (или 500), толщина по подошве 100 мм - размер ходовой 3) Размер высота 300 мм, толщина 100 мм, по подошве 600 мм (или 500), толщина по подошве 100 мм - размер самый ходовой ходовой Как-то так? Добавил уклон, возможно это даст необходимую жесткость и можно будет обойтись без поддерживающей опалубки. Хотелось бы сделать процесс максимально технологичным. Добавил верхнее ребро 50 мм, знаю многие ставят сверху гипсокартонный ПН профиль. Посилання на коментар Поділитися на інших сайтах More sharing options...
Tair Опубліковано: 12 квітня 2016 Автор Поділитись Опубліковано: 12 квітня 2016 Я недавно наткнулся на американские гос. исследования по XPS в условиях после 15 лет в грунте. Привычные убеждения на счет "общепринятых" преимуществ XPS перед EPS пошатнулись. Содержание влаги в EPS было существенно бOльшим, чем принято считать, в отличие от EPS. Интересно, а есть ссылка на текст? Предположу, что у ЭППС водопоглощение может быть больше, так как у первого меньше диаметр пор, или поры более однородной структуры, но это только мои догадки Добавлено через 2 минуты да, если эта плита потом станет и отделкой или основой под отделку А если на цокольном ребре сделать мелкую насечку? типа такого: Посилання на коментар Поділитися на інших сайтах More sharing options...
Татьяна5 Опубліковано: 12 квітня 2016 Поділитись Опубліковано: 12 квітня 2016 Можно что-то типа вафельного полотенца по рисунку Добавлено через 1 минуту Важно - возможность поставки одной доставкой и основного Эппс или псб 35-50 - не всем понравится идея из разных точек разными машинами везти. Посилання на коментар Поділитися на інших сайтах More sharing options...
Tair Опубліковано: 12 квітня 2016 Автор Поділитись Опубліковано: 12 квітня 2016 Важно - возможность поставки одной доставкой и основного Эппс или псб 35-50 - не всем понравится идея из разных точек разными машинами везти. Не совсем понял, что вы имеете ввиду - в смысле чтобы сам блок был из 50 ПСБ, а внутренняя часть пирога из 35 ПСБ? Посилання на коментар Поділитися на інших сайтах More sharing options...
Татьяна5 Опубліковано: 12 квітня 2016 Поділитись Опубліковано: 12 квітня 2016 Не совсем понял, что вы имеете ввиду - в смысле чтобы сам блок был из 50 ПСБ, а внутренняя часть пирога из 35 ПСБ? нет Л-блок - отдельная позиция, но если одним звонком можно заказать и Л-блок и остальной утеплитель для плиты - это однозначно удобно и логистически и экономически Посилання на коментар Поділитися на інших сайтах More sharing options...
Tair Опубліковано: 12 квітня 2016 Автор Поділитись Опубліковано: 12 квітня 2016 нет Л-блок - отдельная позиция, но если одним звонком можно заказать и Л-блок и остальной утеплитель для плиты - это однозначно удобно и логистически и экономически так далеко пока не планировали) В приоритете отработать технологию и добиться оптимальной цены на L-блок. Кстати, что скажите насчет коридора цены за 2 метровый L-Блок? Сколько на сегодняшний момент в среднем выходит клеевой L-блок из ЭППС ? Посилання на коментар Поділитися на інших сайтах More sharing options...
Татьяна5 Опубліковано: 12 квітня 2016 Поділитись Опубліковано: 12 квітня 2016 так далеко пока не планировали) В приоритете отработать технологию и добиться оптимальной цены на L-блок. Кстати, что скажите насчет коридора цены за 2 метровый L-Блок? Сколько на сегодняшний момент в среднем выходит клеевой L-блок из ЭППС ? В цену Эппс + не много по работам . 2 метра - плохая длина, не удобно работать и тяжелый для самостройщиков, в машину не влезет и тп. Коридор - думайте, я не знаю цен на псб-50 Посилання на коментар Поділитися на інших сайтах More sharing options...
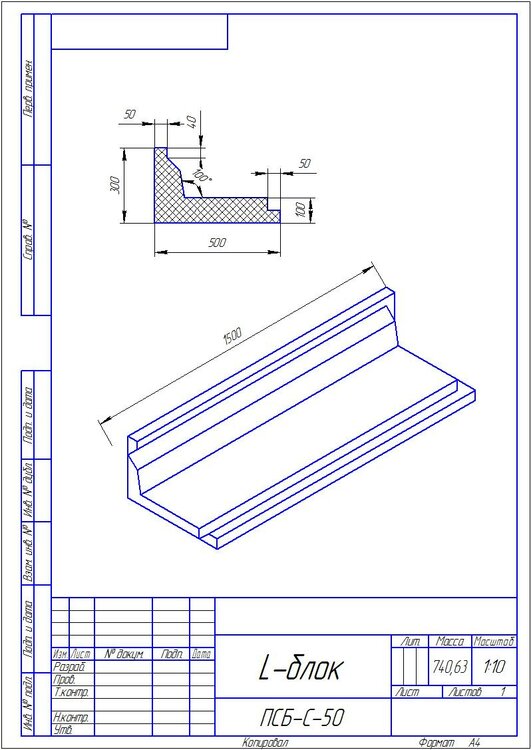
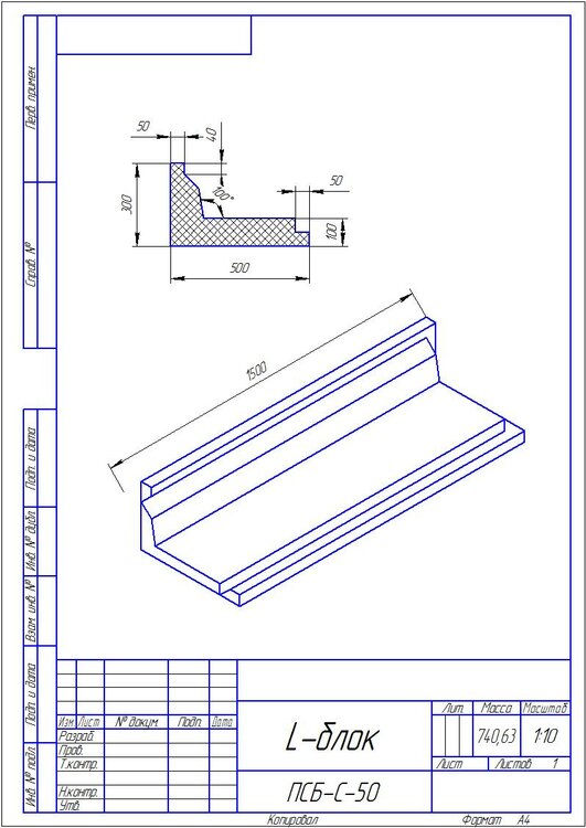
Tair Опубліковано: 12 квітня 2016 Автор Поділитись Опубліковано: 12 квітня 2016 В цену Эппс + не много по работам . 2 метра - плохая длина, не удобно работать и тяжелый для самостройщиков, в машину не влезет и тп. Коридор - думайте, я не знаю цен на псб-50 Согласен с вами, переделал длину на 1,5 метра. смотрите чертеж. Насчет склейки Блока, там все же идет расход клея, ну и плюс какая ни есть работа. Из минусов клеевого Блока вижу: - потеря времени - жесткость клеевого стыка ниже чем у цельного - в цельном блоке можно предусмотреть технологические ребра жесткости и уклон - человеческий фактор, соответственно есть вероятность низкого качество склейки Посилання на коментар Поділитися на інших сайтах More sharing options...
vap79 Опубліковано: 12 квітня 2016 Поділитись Опубліковано: 12 квітня 2016 посмотрите на такое, нашел в спецификациях XPS CARBON ECO SP 2360Х580Х100-L Посилання на коментар Поділитися на інших сайтах More sharing options...
Tair Опубліковано: 12 квітня 2016 Автор Поділитись Опубліковано: 12 квітня 2016 посмотрите на такое, нашел в спецификациях XPS CARBON ECO SP 2360Х580Х100-L Не совсем понимаю что вы хотели сказать? Посилання на коментар Поділитися на інших сайтах More sharing options...
1GOG Опубліковано: 12 квітня 2016 Поділитись Опубліковано: 12 квітня 2016 Имелось в виду, что поиском с параметром " XPS CARBON ECO SP 2360Х580Х100-L" можно найти предложения по L-блокам от Технониколь. Здесь или здесь... Посилання на коментар Поділитися на інших сайтах More sharing options...
Tair Опубліковано: 12 квітня 2016 Автор Поділитись Опубліковано: 12 квітня 2016 Имелось в виду, что поиском с параметром " XPS CARBON ECO SP 2360Х580Х100-L" можно найти предложения по L-блокам от Технониколь. Здесь или здесь... Вы что-то путаете. По ссылкам плита, но никак не L-блок. Буква «L» всего лишь означает «L» кромку. В теме обсуждается вопрос про L-блок для УШП. Посилання на коментар Поділитися на інших сайтах More sharing options...
1GOG Опубліковано: 12 квітня 2016 Поділитись Опубліковано: 12 квітня 2016 Я в курсе, что обсуждается. Вспомнилось... Именно Технониколь на ФХ предложил изготовление Л-блоков. Описание товара Экструдированный пенополистирол ТехноНИКОЛЬ CARBON ECO SP («L»-кромка) Может именно это и плита, но они же предлагали и Л-блоки. Посилання на коментар Поділитися на інших сайтах More sharing options...
Tair Опубліковано: 12 квітня 2016 Автор Поділитись Опубліковано: 12 квітня 2016 Я в курсе, что обсуждается. Вспомнилось... Именно Технониколь на ФХ предложил изготовление Л-блоков. Может именно это и плита, но они же предлагали и Л-блоки. Но по вашим ссылкам именно плита с L-кромкой. Посилання на коментар Поділитися на інших сайтах More sharing options...
1GOG Опубліковано: 12 квітня 2016 Поділитись Опубліковано: 12 квітня 2016 (змінено) А вот это? Не поленитесь, пройдитесь поиском сами. Змінено 13 квітня 2016 користувачем Оз Посилання на коментар Поділитися на інших сайтах More sharing options...
Tair Опубліковано: 12 квітня 2016 Автор Поділитись Опубліковано: 12 квітня 2016 Не поленитесь, пройдитесь поиском сами. Спасибо, я видел эти блоки раньше. Но насколько я знаю эти блоки не продают в Украине. Большой минус в том, что это клееный блок. Также по отзывам людей у этих блоков сильно "пляшет" геометрия. Посилання на коментар Поділитися на інших сайтах More sharing options...
Tair Опубліковано: 13 квітня 2016 Автор Поділитись Опубліковано: 13 квітня 2016 Вот такой вырисовывается конструктор: - скорее всего блоки будут длинной 1 метр более технологичны и удобны в транспортировке. - дополнительное ребро жесткости исключает разлом блока по линии угла. - паз на фтронтальной части исключит сдвиг блока при заливке бетона. - добавил угловые элементы (внутренний и наружный угол) это позволит собрать практически любую конструкцию. Что скажете? Посилання на коментар Поділитися на інших сайтах More sharing options...
Tair Опубліковано: 13 квітня 2016 Автор Поділитись Опубліковано: 13 квітня 2016 Вот такой блок с замками. Сейчас пытаюсь рассчитать оптимальную розничную стоимость, но не могу найти цену на L-блок Технониколь. Я так понял они сняли их с производства. Может кто-то в курсе их розничной стоимости? Посилання на коментар Поділитися на інших сайтах More sharing options...
Татьяна5 Опубліковано: 13 квітня 2016 Поділитись Опубліковано: 13 квітня 2016 Я так понял они сняли их с производства. может, конечно, я чего и пропустила, на за последние 4 года у них и не было ни разу в продаже таких блоков Посилання на коментар Поділитися на інших сайтах More sharing options...
1GOG Опубліковано: 13 квітня 2016 Поділитись Опубліковано: 13 квітня 2016 У на может и не было. На ФХ была тема с заказами и обсуждениями Л-блоков. Часть заказов точно делалась через А.Земскова. Посилання на коментар Поділитися на інших сайтах More sharing options...
Рекомендовані повідомлення
Створіть акаунт або увійдіть у нього для коментування
Ви маєте бути користувачем, щоб залишити коментар
Створити акаунт
Зареєструйтеся для отримання акаунта. Це просто!
Зареєструвати акаунтУвійти
Вже зареєстровані? Увійдіть тут.
Увійти зараз