wisecat Опубліковано: 2 червня 2016 Поділитись Опубліковано: 2 червня 2016 Просьба прокомментировать проект стропильной системы для мансардной крыши. Угол крыши 30 градусов, покрытие - битумная черепица. Смущает 1) Предложенный мауерлат - 100 на 100. Достаточно? 2) По проекту предложена ОСП-3 толщиной 10мм, и есть доп. обрешётка доской 25мм. В руководстве Шинглас витеевато написано, что толщина плиты зависит от наличия обрешётки. Правильно ли я понимаю, что при шаге 800 надо 18 мм ОСП-3, если нет обрешетки? А если с доп. обрешёткой, то достаточно и 10 мм? Посилання на коментар Поділитися на інших сайтах More sharing options...
Nebesa Опубліковано: 3 червня 2016 Поділитись Опубліковано: 3 червня 2016 Просьба прокомментировать проект стропильной системы для мансардной крыши. Угол крыши 30 градусов, покрытие - битумная черепица. Смущает 1) Предложенный мауерлат - 100 на 100. Достаточно? 2) По проекту предложена ОСП-3 толщиной 10мм, и есть доп. обрешётка доской 25мм. В руководстве Шинглас витеевато написано, что толщина плиты зависит от наличия обрешётки. Правильно ли я понимаю, что при шаге 800 надо 18 мм ОСП-3, если нет обрешетки? А если с доп. обрешёткой, то достаточно и 10 мм? 2) ОСП3-10мм, хватит, но если у обрешетки шаг будет 30+/-, обычно из-за этого и делают обрешетку, дабы сэкономить на толщине ОСБ. Правильно понимаете, на 800 шаг ОСБ 18-20 (от региона), но! их сложнее монтировать, и все равно со временем будут прогибы. 1) В теории подойдет, мин, но лучше 150*150, как классика. 1 Посилання на коментар Поділитися на інших сайтах More sharing options...
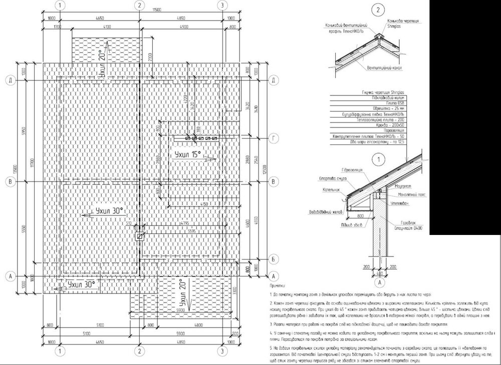
OlegArh Опубліковано: 3 червня 2016 Поділитись Опубліковано: 3 червня 2016 Просьба прокомментировать проект стропильной системы для мансардной крыши. 1. Мауэрлат 100х100 - нормально 2. При наличии доп. обрешетки, OSB3 10 мм. - нормально, если шаг обрешетки 40 см. Но Вам нужно больше озаботится другими проблемами: 3. На пролете 4950, и шаге 800, сечение стропилины 50*200 недостаточно - как минимум 250х50 мм. (и то на самом пределе). 4. Шаг стропил 800, а ширина основных марок утеплителей для кровли = 600 мм. Резать вату??? Ох и поматеритесь...:D Делайте шаг стропил 640 мм. в осях. 5. В проекте (узел 2 на 2-йм фото) указано - "вентканал"...А как его создать? Для создания вентиляции, требуется по мембране монтировать дистанционную рейку (или контр-обрешетку), а потом обрешетку и OSB. Поставьте цi запитайте проэктувальнику... ПыСы. Прогон (поз. 5) нарисован не по оси здания, а согласно размеров - он должен быть оси. но то такэ. Надеюсь, что он лежит на центральной стене. 1 Посилання на коментар Поділитися на інших сайтах More sharing options...
wisecat Опубліковано: 3 червня 2016 Автор Поділитись Опубліковано: 3 червня 2016 OlegArh 3. Если шаг уменьшить до 640 в осях, то достаточно будет стропилины 50 на 200? 4. Ок. спасибо. 5. Про вент канал уточню 6. Про прогон уточню. Посилання на коментар Поділитися на інших сайтах More sharing options...
OlegArh Опубліковано: 3 червня 2016 Поділитись Опубліковано: 3 червня 2016 OlegArh 3. Если шаг уменьшить до 640 в осях, то достаточно будет стропилины 50 на 200? 4. Ок. спасибо. 5. Про вент канал уточню 6. Про прогон уточню. 4. Зима 2004-2005 выдалась снежной, как никогда: на Камчатке - до 2-х м., в Москве до 1 м. (рухнул Трансвааль-парк), в Беларуси (до 1 м.) рухнуло перекрытие спортзала в школе - даже в Калининграде навалило до метра снега, вот тогда и увеличили нормы: для Киева было 70 кг/м2 - стало 158 кг/м2. В 2 раза. Если брать снеговой норматив до 2005 г. (70 кг.) - то по сечению 200х50, при шаге 640, есть полуторный запас, а если по новому (158 кг), то коэффициент запаса = 0,8. Решать Вам... P.S. Обрешетка не дает "усиления" стропил. 1 Посилання на коментар Поділитися на інших сайтах More sharing options...
Nebesa Опубліковано: 3 червня 2016 Поділитись Опубліковано: 3 червня 2016 3. Если шаг уменьшить до 640 в осях, то достаточно будет стропилины 50 на 200? да и с вашим шагом тоже можно, просто необходимо добавить раскосов, но! как заметил форумчанин OlegArh, с утеплителем намучаетесь. 5. Про вент канал уточню тоже правильно заметили. Делается просто (контра), добавить брус 50*50 на стропил. ногу, поверх "пленки", нормальную подшивку, и коньковый аэратор. Запас по прочности, никогда лишним не будет 1 Посилання на коментар Поділитися на інших сайтах More sharing options...
Рекомендовані повідомлення
Створіть акаунт або увійдіть у нього для коментування
Ви маєте бути користувачем, щоб залишити коментар
Створити акаунт
Зареєструйтеся для отримання акаунта. Це просто!
Зареєструвати акаунтУвійти
Вже зареєстровані? Увійдіть тут.
Увійти зараз