Privet Опубліковано: 7 березня 2010 Поділитись Опубліковано: 7 березня 2010 (змінено) Лучше не делать.Мнимые метры не компенсируют отсутствие окна. В случае сомнений - подведите коммуникации в гардеробную.Не подключайте.В случае чего - безболезненно переделаете. К тому же , вопрос о совмещенных санузлах - www.stroimdom.com.ua/forum/showthread.php?t=5328&page=4 Может, заведете воду и канализацию в гардеробную.Заглушите до лучших времен. Но установите рукомойник в комнату - там где аппендикс и выход на террасу. Обложите плиткой.Поставите зеркало.Поцепите банку с жидким мылом.Поверьте - класс и удобно неимоверно.Меньше с женой будете толкаться в санузле. Можно в форме шкафчика и т.п. Внизу поставите тройник - шланг подсоединить : летом террасу ополоснуть , зимой - каток залить. На террасе подвод воды отдельный должен быть - в идеале. Змінено 7 березня 2010 користувачем Privet Посилання на коментар Поділитися на інших сайтах More sharing options...
burguy30 Опубліковано: 7 березня 2010 Автор Поділитись Опубліковано: 7 березня 2010 Лучше не делать.Мнимые метры не компенсируют отсутствие окна. якщо надумаю перенести,то в гардеробній вікно я також вибю. правда воно буде більше декоративним(там ще "апендикс" на терасу) Посилання на коментар Поділитися на інших сайтах More sharing options...
Privet Опубліковано: 7 березня 2010 Поділитись Опубліковано: 7 березня 2010 (змінено) Смотреться оно там будет как пятое колесо. Тогда уж лучше стенку ту вообще - практически всю снести , если конструктив позволяет. Вход там сделать.Дверь можно не устанавливать - гостей вам там не принимать.Обдумать , чтобы меньше просматривалось из террасы.Или у вас выход на террасу только из вашей спальни? Змінено 7 березня 2010 користувачем Privet Посилання на коментар Поділитися на інших сайтах More sharing options...
burguy30 Опубліковано: 7 березня 2010 Автор Поділитись Опубліковано: 7 березня 2010 Или у вас выход на террасу только из вашей спальни? ще з сусідньоі дитячоі Посилання на коментар Поділитися на інших сайтах More sharing options...
Privet Опубліковано: 8 березня 2010 Поділитись Опубліковано: 8 березня 2010 ще з сусідньоі дитячоі Зачем вам , чтобы дети тусовались перед окнами вашей спальни? Я бы поменял кабинет с детской спальней. Посилання на коментар Поділитися на інших сайтах More sharing options...
burguy30 Опубліковано: 8 березня 2010 Автор Поділитись Опубліковано: 8 березня 2010 Зачем вам , чтобы дети тусовались перед окнами вашей спальни? Я бы поменял кабинет с детской спальней. про це думав були варянти взагалі не робити входу на терасу з дитячоі знаю про варянт перенесення кабінету але наразі планую ,що просто поставлю там замок на двері Посилання на коментар Поділитися на інших сайтах More sharing options...
burguy30 Опубліковано: 21 березня 2010 Автор Поділитись Опубліковано: 21 березня 2010 у мене тут ідея народилась стосовно ванноі кімнати господарів а якщо зробити наступним чином саму ванну забрати - розмістити в "ніші" і залишити тільки с\у у ванній кімнаті? (ссылка на изображение устарела) оригінально буде? чекаю ваших думок Посилання на коментар Поділитися на інших сайтах More sharing options...
Ася Опубліковано: 21 березня 2010 Поділитись Опубліковано: 21 березня 2010 Оригинально. Без вариантов. Только вот зимой не прохладно принимать ванны будет? Посилання на коментар Поділитися на інших сайтах More sharing options...
burguy30 Опубліковано: 21 березня 2010 Автор Поділитись Опубліковано: 21 березня 2010 Оригинально. Без вариантов. Только вот зимой не прохладно принимать ванны будет? поставити нормальне вікно хіба там не потрібно зробити так,щоб і без ванни тепло було? але зауваження доречне,потрібно поміркувати(хоча думаю все впреться в ціну вирішення питання) бачив багато варянтів,де ванна просто безпосередньо розміщенна у спальній у мене ніша ідея у тому ,щоб у ніші і без дверей,хоча знову ж таки вологість.... додумуєм,додумуєм...) Посилання на коментар Поділитися на інших сайтах More sharing options...
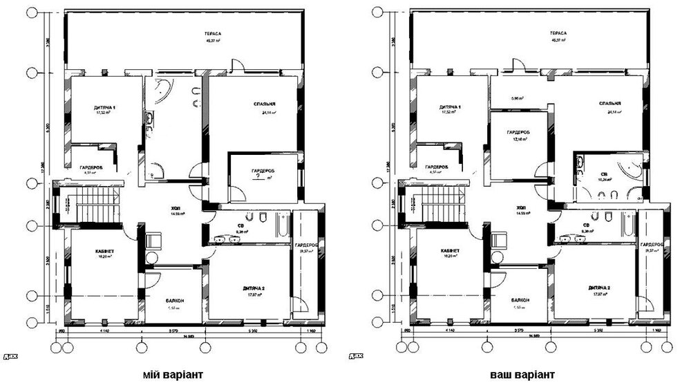
MEDIK Опубліковано: 12 квітня 2010 Поділитись Опубліковано: 12 квітня 2010 а якщо зробити наступним чином саму ванну забрати - розмістити в "ніші" і залишити тільки с\у у ванній кімнаті? оригінально буде? чекаю ваших думок Не думаю, що це реалізує ваші сподівання. ваш варіант можливий в іншій обробці (див. малюнок). Для вас, як я зрозумів, має значення розмір ванної кімнати - ось вам, маєте. а вихід на терасу зі спальні можна зробити у вигляді балконної двері, або у вигляді вікон-дверей від полу - більше світла не завадить (імхо) 8-). Та й взагалі, велика ванна кімната з вікном ще ні в кого не викликала сумнівів щодо її привабливості та доцільності у великому будинку. Посилання на коментар Поділитися на інших сайтах More sharing options...
burguy30 Опубліковано: 26 червня 2010 Автор Поділитись Опубліковано: 26 червня 2010 викладаю,як вирішили зробити на другому поверсі (ссылка на изображение устарела) (ссылка на изображение устарела) Посилання на коментар Поділитися на інших сайтах More sharing options...
ArhiMau Опубліковано: 14 червня 2013 Поділитись Опубліковано: 14 червня 2013 двоповерховий будинок з цоколем проект складав сам пишіть всі своі зауваження наперед дякую думаю над дахом(робити простий чи мурувати стіну з вікном) найбільша проблема з вибором цегли-буду вдячний за пораду Добрый день! Большой и удобный дом. Но... На первом этаже - гардероб хороший и большой, а вот прихожая узкая. Пуфик и тумбочку поставить места нет. Или обуваться в гардеробной? А сумочку и ключи в руках? А если собираются уходить одновременно несколько членов семьи.... На втором этаже - я бы с большой террасы сделала небольшую лестницу вниз (только для семьи). А выход из детской в холл, а не на лестницу, гардероб пострадает, но ребенок на ступени не оступится. Фасады интересные, особенно порадывал декор, сейчас больше простые формы и оформление предпочитают. Цвет кирпича на главном фасаде удачный, а вот на дворовом как-то попроще - не так презентабельно выглядит. Добавлено через 12 минут викладаю,як вирішили зробити на другому поверсі (%D1%81%D1%81%D1%8B%D0%BB%D0%BA%D0%B0%20%D0%BD%D0%B0%20%D0%B8%D0%B7%D0%BE%D0%B1%D1%80%D0%B0%D0%B6%D0%B5%D0%BD%D0%B8%D0%B5%20%D1%83%D1%81%D1%82%D0%B0%D1%80%D0%B5%D0%BB%D0%B0) СУПЕР!! Да уж, от такова варианта отказаться трудно! Посилання на коментар Поділитися на інших сайтах More sharing options...
Рекомендовані повідомлення
Створіть акаунт або увійдіть у нього для коментування
Ви маєте бути користувачем, щоб залишити коментар
Створити акаунт
Зареєструйтеся для отримання акаунта. Це просто!
Зареєструвати акаунтУвійти
Вже зареєстровані? Увійдіть тут.
Увійти зараз