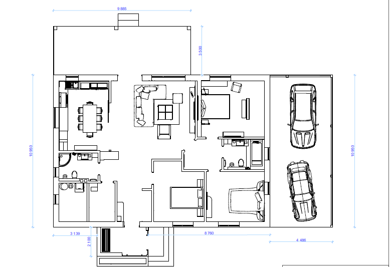
Наталья Дударева Опубліковано: 30 серпня 2016 Поділитись Опубліковано: 30 серпня 2016 Сейчас в процессе строительства. Всю зиму мучились с проектами. Находили более ли менее подходящие, но все не то. В итоге слепили несколько - получилось ничего, но не то. Взяли архитектора и он нам заделал домик мечты. Правда по ходу строительства еще переделывали планировку так как в доме нет несущих стен и чтоб каркас крыши не получился "золотым" пришлось делать колонны. Но они будут спрятаны в стены и видно их не будет. Слева идет постирочная и котельня. С котельни выход сделали на улицу, там где окно. К сожалению нет картинки как оно получилось в итоге. Что мне нравится в этой планировке: наличие хоз. помещения, практически все шкафы встроенные, между кухней и гостиной раздвижная система, открытое пространство, отдельный выход в одну из спален (планируется как гостевая), практичный предбанник и просторная терраса, одно окно с рукомойником выходит на терассу (удобно собирать посуду с террасы не таская через весь дом, второе окно в кухне выходит на юг - много света, большой гардероб в главной спальне. Интересно услышать комментарии людей с незамыленным взглядом. Извините за плохое фото. делала принтскрин с пдф. Посилання на коментар Поділитися на інших сайтах More sharing options...
Ter Опубліковано: 30 серпня 2016 Поділитись Опубліковано: 30 серпня 2016 Комментарии людей имело смысл спрашивать ДО начала строительства. А сейчас лучше вести бортжурнал и спрашивать совета по рабочим процессам Главное, что вы уже определились и вам нравится. 1 Посилання на коментар Поділитися на інших сайтах More sharing options...
Наталья Дударева Опубліковано: 30 серпня 2016 Автор Поділитись Опубліковано: 30 серпня 2016 Комментарии людей имело смысл спрашивать ДО начала строительства. А сейчас лучше вести бортжурнал и спрашивать совета по рабочим процессам Главное, что вы уже определились и вам нравится. Внутренние стены пока только до половины выстроили так что еще можно что-то менять. Мы пока переживаем за выход на терассу. Там проем 1800 см. не слишком ли это много? Чтоб потом двери от тяжести не перекашивало да и как это будет в плане теплоизоляции. Двери то стеклянные будут, а мы батареи не планируем. Толстые стены + утепление минватой, везде теплые полы. Посилання на коментар Поділитися на інших сайтах More sharing options...
Ter Опубліковано: 30 серпня 2016 Поділитись Опубліковано: 30 серпня 2016 У меня сейчас на веранде стоят 2 одинаковые двери 900х2100 Одна на север - нормально себя чувствует. Та, что на юге под солнцем - постоянно ее крутит (щель). Профиль естессно дверной. Ну и не забывать, что чем больше окон - тем больше теплопотерь. Плюс бьются и ломаются они однозначно легче чем стены. По планировке - ориентацию по сторонам света дайте и количество проживающих/состав семьи, и кто и в какой комнате жить будет - тогда вам подскажут, возможно, что-то. Что не нравится (ИМХО, т.е. сам мучаюсь подобным) - санузел возле спален. С одной стороны удобно, с другой стороны - это, наверное, геморняк с прокладкой коммуникаций/дальнейшей эксплуатации (в моем случае я туда всунул бы кабинет маленький/гардероб). Посилання на коментар Поділитися на інших сайтах More sharing options...
Наталья Дударева Опубліковано: 30 серпня 2016 Автор Поділитись Опубліковано: 30 серпня 2016 У меня сейчас на веранде стоят 2 одинаковые двери 900х2100 Одна на север - нормально себя чувствует. Та, что на юге под солнцем - постоянно ее крутит (щель). Профиль естессно дверной. Ну и не забывать, что чем больше окон - тем больше теплопотерь. Плюс бьются и ломаются они однозначно легче чем стены. По планировке - ориентацию по сторонам света дайте и количество проживающих/состав семьи, и кто и в какой комнате жить будет - тогда вам подскажут, возможно, что-то. Что не нравится (ИМХО, т.е. сам мучаюсь подобным) - санузел возле спален. С одной стороны удобно, с другой стороны - это, наверное, геморняк с прокладкой коммуникаций/дальнейшей эксплуатации (в моем случае я туда всунул бы кабинет маленький/гардероб). Терасса выходит на запад. Соответственно вход на востоке, На юг выходит окно в кухню и санузел. Семья пока состоит из 2-х человек. Одна спальня ориентирована под гостевую ( та что выходит к кухне и основному сан-узлу. Мы ее так делали чтоб гости не пользовались нашим личным санузлом в спальной зоне. А что может не так пойти с санузлом в спальной зоне? Типа шумно будет? Коммуникации (пока только сливы) уже проложили. Сливы в стены заложили. Почему вы мучаетесь? Посилання на коментар Поділитися на інших сайтах More sharing options...
mib Опубліковано: 30 серпня 2016 Поділитись Опубліковано: 30 серпня 2016 Терасса выходит на запад. Начинайте подбирать шторы, я почему то думал что солнышко после обеда это отлично но радует оно апрель\май и надеюсь начнет радовать в сентябре, в остальное время очень жарко. Я пока только в процессе но все строители обедают\ужинают на парковке там тень в любое время. А что может не так пойти с санузлом в спальной зоне? Типа шумно будет? Это меня тоже всегда удивляет, но я так понимаю это просто удорожает инженерию, что на общем фоне не так и много. 1 Посилання на коментар Поділитися на інших сайтах More sharing options...
f1up Опубліковано: 30 серпня 2016 Поділитись Опубліковано: 30 серпня 2016 Я тоже изначально планировал как хочется,а потом по совету моего испанского родственника сгруппировал помещения с водой и канализацией,и разграничил зоны:входная группа,отдых,техн.,и кухня-столовая.Также я черпал очень много полезного здесь .Но,в любом случае,вам по душе - это ваше.А по-поводу персонального санузла,то тут в Испании это сплошь и рядом.И слив бачка унитаза от любимого человека - это лучшая симфония! Посилання на коментар Поділитися на інших сайтах More sharing options...
Ter Опубліковано: 30 серпня 2016 Поділитись Опубліковано: 30 серпня 2016 Любой санузел - это риск того, что сантехники что-то запорют (особенно при скрытом монтаже в стенах, как у меня сейчас), что чревато попадаловом на ремонт. Так что стоит подумать, надо ли оно. Про пердеж любимого человека - побывав на море в местном "курятнике"-полулюксе с санузлом в номере - в очередной раз понял: чем дальше от жилых комнат, тем лучше... 1 Посилання на коментар Поділитися на інших сайтах More sharing options...
vadimv Опубліковано: 31 серпня 2016 Поділитись Опубліковано: 31 серпня 2016 в очередной раз понял: чем дальше от жилых комнат, тем лучше...И не только от жилых комнат, но и от кухни-гостиной. В идеале санузел вообще лучше вынести в отдельный блок при входе, за двумя дверями. Кому сильно надо - пройдется лишние пару метров. Посилання на коментар Поділитися на інших сайтах More sharing options...
Наталья Дударева Опубліковано: 31 серпня 2016 Автор Поділитись Опубліковано: 31 серпня 2016 Начинайте подбирать шторы, я почему то думал что солнышко после обеда это отлично но радует оно апрель\май и надеюсь начнет радовать в сентябре, в остальное время очень жарко. Я пока только в процессе но все строители обедают\ужинают на парковке там тень в любое время. Солнце на западе не палит вообще днем. Красивый розовый закат на террасе и в окне гостиной. А днем солнце падает только в одно окно кухни с южной стороны и свет распространяется хорошо в гостиную с него. Добавлено через 10 минут Я тоже изначально планировал как хочется,а потом по совету моего испанского родственника сгруппировал помещения с водой и канализацией,и разграничил зоны:входная группа,отдых,техн.,и кухня-столовая.Также я черпал очень много полезного здесь .Но,в любом случае,вам по душе - это ваше.А по-поводу персонального санузла,то тут в Испании это сплошь и рядом.И слив бачка унитаза от любимого человека - это лучшая симфония! Ну мы действительно как-то друг друга не раздражаем в плане "туалетнных радостей" )) Я однозначно считаю что санузла должно быть 2. Для спальной зоны и для общего пользования. Вдруг родители приедут и решат на "недельку" задержаться. Будет у них отдельный выход к своему санузлу. И мы себе в нашей спальной зоне сможем делать что хотим. Да и к туалету пробираться через несколько дверей как-то не удобно. Нас очень отговаривали делать между гостиной и кухней раздвижную систему на всю стену, а делать двери глухие. Да, раздвижная система влетит нам в копеечку, но за то сколько простора открывается и я не буду сидеть в закрытой кухне пока все смотрят телик. А если приедут подружки - стеночку задвинули и вуаля - отдельная комната Посилання на коментар Поділитися на інших сайтах More sharing options...
Ter Опубліковано: 31 серпня 2016 Поділитись Опубліковано: 31 серпня 2016 Солнце на западе не палит вообще днем. Красивый розовый закат на террасе и в окне гостиной. А днем солнце падает только в одно окно кухни с южной стороны и свет распространяется хорошо в гостиную с него. Добавлено через 10 минут Ну мы действительно как-то друг друга не раздражаем в плане "туалетнных радостей" )) Я однозначно считаю что санузла должно быть 2. Для спальной зоны и для общего пользования. Вдруг родители приедут и решат на "недельку" задержаться. Будет у них отдельный выход к своему санузлу. И мы себе в нашей спальной зоне сможем делать что хотим. Да и к туалету пробираться через несколько дверей как-то не удобно. Нас очень отговаривали делать между гостиной и кухней раздвижную систему на всю стену, а делать двери глухие. Да, раздвижная система влетит нам в копеечку, но за то сколько простора открывается и я не буду сидеть в закрытой кухне пока все смотрят телик. А если приедут подружки - стеночку задвинули и вуаля - отдельная комната Одинаковых людей нет - это факт. И хотелки у всех разные. Вы уже во многом определились, потому разброд и шатания вам сейчас ни к чему. В вашем случае, наверное, лучше не шарахаться из стороны в сторону (нервные клетки, говорят, не восстанавливаются), а четко двигаться к намеченной цели. Удачи! Посилання на коментар Поділитися на інших сайтах More sharing options...
dmitriylaser Опубліковано: 31 серпня 2016 Поділитись Опубліковано: 31 серпня 2016 Довольно хорошая планировка, я себе даже утащил в папку " Интересные планы". Не скажите какая общая длинна дома без навеса? По тому что я бы доработал: Навес достаточно и 350 -400 см шириной Я так понимаю что спальная зона огорожена дверью от гостинной? Думаю это лишнее. Я бы делал стены под 90град. А в верхней спальне перевернул кровать головой на север и подальше от окна, стену от гостинной " звукоизолировал" шкафом- купе. Кстати какая длинна этой спальни? Может стоит ее уменьшить за счет гостинной? П.С. для себя решил что никогда у меня не будет террасы на запад. Посилання на коментар Поділитися на інших сайтах More sharing options...
Simp Опубліковано: 31 серпня 2016 Поділитись Опубліковано: 31 серпня 2016 П.С. для себя решил что никогда у меня не будет террасы на запад. Можно для себя что смущает? Посилання на коментар Поділитися на інших сайтах More sharing options...
Ter Опубліковано: 31 серпня 2016 Поділитись Опубліковано: 31 серпня 2016 Можно для себя что смущает? Солнце во второй половине дня. Летом особенно. Наверное... Которое у Натальи, например, не печет совсем, а в других местах очень даже и печет... 2 Посилання на коментар Поділитися на інших сайтах More sharing options...
Наталья Дударева Опубліковано: 31 серпня 2016 Автор Поділитись Опубліковано: 31 серпня 2016 Довольно хорошая планировка, я себе даже утащил в папку " Интересные планы". Не скажите какая общая длинна дома без навеса? По тому что я бы доработал: Навес достаточно и 350 -400 см шириной Я так понимаю что спальная зона огорожена дверью от гостинной? Думаю это лишнее. Я бы делал стены под 90град. А в верхней спальне перевернул кровать головой на север и подальше от окна, стену от гостинной " звукоизолировал" шкафом- купе. Кстати какая длинна этой спальни? Может стоит ее уменьшить за счет гостинной? П.С. для себя решил что никогда у меня не будет террасы на запад. Дом 10900*15600 Да ограждена дверью. Если оставить проем то уже не то. Там проем под метровую дверь. Будет другая - полупрозрачная стеклянная вставка во весь размер двери. Нам дизайнер нарисовала кухню и гостиную. Там видно дверь. если 90 гр. - слишком квадратно. В верхней спальне как видите есть стеночка - за ней будет разделенный на 2 части гардероб - с двух сторон задвижные в гардероб двери. Если развернуть кровать - попрощаться с телевизором и скрытым гардеробом, поприветствовать громоздкий шкаф. Длина 5000 с расчетом под гардероб. А почему терасса на запад это плохо? Сейчас уже у нас терасса построена. Солнце не палит, а вечером прекраснейший закат. Мы уже успели притащить стульчики и попить вина на терассе с заходящим солнцем. Получилось круто. Посилання на коментар Поділитися на інших сайтах More sharing options...
Simp Опубліковано: 31 серпня 2016 Поділитись Опубліковано: 31 серпня 2016 Солнце во второй половине дня. Летом особенно. Наверное... Будет крыша навес возможно деревья создадут тень или при закате солнца будет не приятно там находиться? Посилання на коментар Поділитися на інших сайтах More sharing options...
mib Опубліковано: 31 серпня 2016 Поділитись Опубліковано: 31 серпня 2016 Будет крыша навес возможно деревья создадут тень или при закате солнца будет не приятно там находиться? Солнце с запада светит под таким углом что какраз попадает под навес, деревья создадут тень лет через 7 потому я и написал про шторы. 1 Посилання на коментар Поділитися на інших сайтах More sharing options...
qawsed12qawse Опубліковано: 31 серпня 2016 Поділитись Опубліковано: 31 серпня 2016 Наталья Дударева, Я бы терассу продлил или сдвинул до спальни и там сделал бы дверь- окно. Классно утром или вечером выйти на терассу!!!! В трусах!!!! И дверку в котельную сделайте. Чегото не видно шкафов на плане, не влезли Посилання на коментар Поділитися на інших сайтах More sharing options...
Dr.Yura Опубліковано: 31 серпня 2016 Поділитись Опубліковано: 31 серпня 2016 недумаю що варто продовжувати цю тему. користувач просто писав тексти для "престижу" і зараз почав рекламувати різні речі та послуги, за що був забанений назавжди. 1 Посилання на коментар Поділитися на інших сайтах More sharing options...
qawsed12qawse Опубліковано: 31 серпня 2016 Поділитись Опубліковано: 31 серпня 2016 Да ладно. Почему же навсегда. Проект красивый с проработкой. Можно было бы на первый раз и предупредить. 1 Посилання на коментар Поділитися на інших сайтах More sharing options...
Рекомендовані повідомлення
Створіть акаунт або увійдіть у нього для коментування
Ви маєте бути користувачем, щоб залишити коментар
Створити акаунт
Зареєструйтеся для отримання акаунта. Це просто!
Зареєструвати акаунтУвійти
Вже зареєстровані? Увійдіть тут.
Увійти зараз