Перейти до публікації
Пошук в
  • Додатково...
Шукати результати, які містять...
Шукати результати в...

"ЭГОИСТ" в Белогородке

Igor_M

Рекомендовані повідомлення

Вот как вариант сделать короткую перегородку, она не так загромождает пространство и визуально перекрывает дверь в с/у

Дверь можно открывать наружу, это как раз не будет проблемой

 

[ATTACH]93834[/ATTACH]

 

Спасибо за вариант...

Смотрел два дня и даже подумал, что вместо стенки можна стеллаж сделать или что-то типа того...

Еще вот какая мысль есть - сейчас читаю про отопление разное и открытые пространства позволяют теплому воздуху "улетучиваться", поэтому вроде как рекомендуют оборудовать все помещения (в том числе и гостиную) дверями... то же говорит мне и архитектор...

Используя вашу задумку, пришла в голову очередная бредовая идея (см. рисунок).:o

Вход в с/у перенес, в нише организовал шкаф (?)... правда, думаю, что дверь в с/у можно на месте старом оставить (???).

Что смущает, так это образовавшийся теперь дли-и-и-и-и-нный коридор от входной двери до входа на кухню...

В целом получается, что опять что-то НЕ ТО...:(

1212647549_1_02_g1.thumb.JPG.7be49ffd9d26c42ceaea5366cb03ba12.JPG

Змінено користувачем Igor_M
Посилання на коментар
Поділитися на інших сайтах

Спасибо за вариант...

Смотрел два дня и даже подумал, что вместо стенки можна стеллаж сделать или что-то типа того...

 

Стеллаж это вариант, только непрозрачный от пола до потолка

 

Еще вот какая мысль есть - сейчас читаб про отопление разное и открытые пространства позволяют теплому воздуху "улетучиваться", поэтому вроде как рекомендуют оборудовать все помещения (в том числе и гостиную) дверями... то же говорит мне и архитектор...

 

Никуда оно не улетучится, а вот клаустрофобию рискуете заработать

 

Немного критики от души для пользы дела

847007189_1_02_g1.thumb.JPG.90dd399fdf4b40b225488d5ee2cbb8ec.JPG

  • Лайк 1
Посилання на коментар
Поділитися на інших сайтах

А как правильно, по-Вашему, должна открываться дверь на рисунке?

я там красненьким нарисовал

Посилання на коментар
Поділитися на інших сайтах

Стеллаж это вариант, только непрозрачный от пола до потолка

 

Никуда оно не улетучится, а вот клаустрофобию рискуете заработать

 

Немного критики от души для пользы дела

[ATTACH]94332[/ATTACH]

 

А как правильно, по-Вашему, должна открываться дверь на рисунке?

 

я там красненьким нарисовал

 

Ура... завязался диспут...:rolleyes:

Стеллаж как раз пытался "изобразить" сейчас, но что-то не клеится.

Шкаф "втулил" ДА, потому что место было... Насчет "швабры" согласен, но всегда найдется какой-нибудь угол, куда ее поставить можно...

Дуга при входе в гостиную... это я так "арку" пытался изобразить, там отрытое пространство (надо было коммент дать)...

Шкаф при входе планирую ставить (вот как в 1-м варианте было - см.рис.1).

Насчет входной двери - суть в том, что "самая" входная предполагается металлопластиковая, т.е. "декоративная";), а эта (из тамбура в дом) как бы основная. И вроде как входная дверь в дом должна наружу открываться (типа чтоб не выдавили внутрь)... Если же так, как вы нарисовали, то тогда шкаф в прихожей будет мешать при выходе из дома...

Вот вроде набросал со стеллажем (рис. 2)... но он как остров получился... как тополь на плющихе...:rolleyes:

Чтобы хоть как-то к чему-то привязать расположил его симметрично дверного проема в с/у и на одной линии с колонной (которая ниже).

Дверь в с/у все-таки вовнутрь повернул (хотя нормативы куда говорят?).

Дверь в столовую тоже вовнутрь получается, потому как если в коридор открывать, то спиной в стеллаж будешь упираться...

Проем в гостиную пока открытый, но 1,3м (потом можно будет дверь двухстворчатую поставить ежели чего...).

Что все равно смущает - прямой длинный коридор от входа наверх (его пытался в предыдущем аркой обыграть), уменьшенный размер столовой (за счет смещения перегородки под самый срез капиталки)...

Что еще кого смущает и куды крестьянину податься???:Search:

1835636073_1_01.thumb.jpg.14da40867e136691feea4c4680b8d1e0.jpg

843117710_1_02_g2.thumb.JPG.aa1355cccdb3698f25a47210fd9d388c.JPG

Посилання на коментар
Поділитися на інших сайтах

Есть такой подход в планировке помещений называется функциональный. Делается он следующим образом, распечатываете план этажа берете карандаш и чистый лист бумаги.

 

Дальше представляете что вы пришли вечером с работы

 

Открываем входную дверь и снимаем обувь. Стоп обувь! Куда мы ее ставим? Возле входа. Хорошо, открываем дверь, стоп обувь мешает. Значит для обуви нужна полочка. Значит полочка какого размера? Так чтобы обувь вся помещалась. Значит у папы две пары ботинок, потом туфли, потом лыжи. Стоп лыжи. А где будут лыжи? Хорошо теперь место для обуви всех детей и жены. Теперь умножить на два. Ага, тут полочкой не отделаешься, тут шкафчик нужен. Шкафчик не помещается? А если сюда? Опять не помещается, значит надо дверь двигать в другую сторону, пока не поздно.

 

Пошли дальше. Снимаем пальто и вешаем, вешаем пальто, пальто ... вешаем.... в шкаф. А где у нас будет шкаф? А дверь закроется?

 

Значит бегом на верх переодеться и к ужину. Так а руки мыть? Так помыли руки, зашли на кухню. Не готово? Блин посмотрю телек пока. А где у нас телек? Ну вот, пусть будет здесь. А где я сяду за стол. За столом не очень, пойду в гостиную.

 

Так в гостиной хорошо, диван мягкий, телек большой. А где у нас диван? А где телек? А где ноутбук

 

Так как интересно у жены день прошел? Жена на кухне. Вот бы между гостиной и кухней окошко, да побольше. А может вообще стенку убрать? Поставим вытяжку. Вытяжка самая дорогая дешевле любой стены. Стоп вытяжка. А вентканал? Бл-иии-н, начинай с начала. Кухня сюда телек сюда...

 

И так до ужина.

Дальше по тому же методу "собираемся на работу" "пришли гости" "не пойду сегодня на работу, поработаю дома", "ура воскресенье, все люди как люди а мне газон стричь"

 

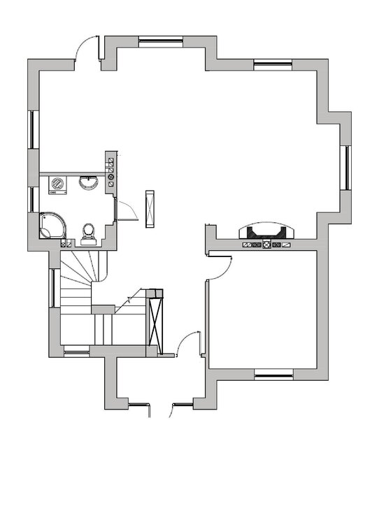
Мой вариант простой поменьше перегородок :)1479131986_1_02_g2.thumb.JPG.4b9d2c0fe11ddbe3ef69313d3b46723e.JPG

  • Лайк 20
Посилання на коментар
Поділитися на інших сайтах

Если б можно было, я б точно пару сотен раз нажал бы кнопку "Спасибо"!:)

Но почему-то после первого же нажатия она исчезла...

Щас напечатаю пару сотен "голых" планов и поеду домой рисовать "маршруты" выходного и будничного дня...

И ведь правда - каждая стена или дверь это потенциальная шишка на лбу...:rolleyes:... или сломанный нос...:D

В-общем, мы "старый мир разрушим... до основания... а затем...":beer:

  • Лайк 1
Посилання на коментар
Поділитися на інших сайтах

Первый раз свободную планировку, когда гостиная холл и кухня объединены в одно пространство, я увидел в Швеции в 92 году. Потом я пытался объяснить своей жене, как это здорово, но всего моего красноречия не хватало. Я натыкался на возражения типа "я буду жарить, а дым по сей квартире" "как смотреть телевизор, когда посуда не мыта"

Потом кода мы покупали квартиру нам несказано повезло. Продавал квариру канадский эмигрант. Он сначала уехал, потом вернулся, а потом снова уезжал. Вот он и сделал такую перепланировку. Жене так понравилось, что мы сразу ее купили. Даже мои родители оценили такую планировку. Дело в том, что таким образом вся семья находится вместе и при этом остается достаточно личного пространства.

Посилання на коментар
Поділитися на інших сайтах

Выложу очередной этап по работам по лестнице.

Теперь уже с готовыми опалубками подступенков.

Места изломов дополнительно законопатили оцинковкой, чтоб не коробилось при заливке (видны на фото 3, 4 и 5).

Спросил - а что каркас теперь как туда "впихнуть"? :o

На что получил пояснение, что все подступенки будут откручены, сварен каркас, а потом подступенки прикручены назад. Типа по каркасу ходить не удобно и готовить подступенки, да и с зазорами можно промахнуться, а так будут примерять постоянно и все будет гуд...

Думаю, что это излишняя щепетильность и наверное можно было бы как-то этот вопрос по-другому решить... правда хлопцы уже не один десяток лестниц переделали всяких, так что наверняка шишек уже понабивали и считают, что так лучше... а я и не спорю... главное - результат!:)

2115879023_110203-1.thumb.jpg.d22dcdd08b2237db6c434e83bf4f0c61.jpg

538908670_110203-2.thumb.jpg.99a3b356669edb4cc07cc6796b91a265.jpg

1656244417_110203-3.thumb.jpg.222ed5528636dfdd6751f727f6d0e156.jpg

1305015837_110203-4.thumb.jpg.b78610841322ebc5074ed9f879be86e1.jpg

528309332_110203-5.thumb.jpg.a70c6ef85aa95531fcb92adb82214c94.jpg

Посилання на коментар
Поділитися на інших сайтах

Каркас лестницы делали несколько дней.

Уложили в ниши уголок 75-й и к нему приваривали каркас (видно хорошо на фото 3). В бетонную колонну бурили отверстия и забивали отрезки арматуры ф12, к которым приваривались поперечные. От опалубки везде старались выдержать зазор 20-25мм, на нижние продольные прутья одевали "звездочки".

Верхняя площадка (фото 4) еще не закончена... еще на день работы и потом - бетонирование в зимних условиях.:rolleyes:

678418322_110206-1.thumb.jpg.0cc5792bcbb87cee0d4b972d2c48c5cd.jpg

67905561_110206-2.thumb.jpg.61c65f833d649e724bb579361c4044c8.jpg

595906515_110206-3.thumb.jpg.d553e23731f6c3451c698ab90db06fda.jpg

735447038_110206-4.thumb.jpg.f12334190a9748fcca4c2b85a61e771a.jpg

1681386085_110206-5.thumb.jpg.2d84f58dfa6fc6f69848976d273c39eb.jpg

Посилання на коментар
Поділитися на інших сайтах

Бора-Б, Неблондинка и Татьяна5 были у меня вчера на дне рождения. Поспрашивайте у них в личке про удобства или неудобства объединенной кухни-столовой-гостинной и санузле посередине :)
  • Лайк 1
Посилання на коментар
Поділитися на інших сайтах

Бора-Б, Неблондинка и Татьяна5 были у меня вчера на дне рождения. Поспрашивайте у них в личке про удобства или неудобства объединенной кухни-столовой-гостинной и санузле посередине :)

 

Всех с наступившей праздничной неделей!:beer:

Следуя давней семейной традиции, печем блины в первый и последний день.

У меня в квартире кухня и гостиная по разные стороны входного холла, между ними - 7 метров по прямой. Ни в кухне, ни в гостиной дверей нет - открытые арки. Плита электрическая, вытяжка Fagor, которая была включена на предпоследнюю "скорость". За час приготовления блинов вся квартира наполнилась не только запахом, но и "дымком"...:bad:

Да и шум вытяжки тоже я вам скажу...:(

По состоянию на сегодня главным (если не единственным) преимуществом "объединенного пространства" считаю то, что есть возможность при желании его "поделить" перегородками (если заложить такую возможность в проекте)...:rolleyes:

А вот главным недостатком перегородок - то, что их нужно будет сносить, а это недешево и сильно геморно...:)

Посилання на коментар
Поділитися на інших сайтах

. За час приготовления блинов вся квартира наполнилась не только запахом, но и "дымком"...:bad:

:)

 

Блины, вообще-то, пекут, а не на сале жарят :rolleyes:.

Посилання на коментар
Поділитися на інших сайтах

Блины, вообще-то, пекут, а не на сале жарят :rolleyes:.

 

а если красную икру как начинку...ммм...вкусняшка:beer:

Посилання на коментар
Поділитися на інших сайтах

Блины, вообще-то, пекут, а не на сале жарят :rolleyes:.

 

Вот тут диспут - otvet.mail.ru/question/22783192/...

А вот и более-менее квалифицированный комментарий (цитата):

"ПЕЧЬ

1. что. Приготовлять пищу сухим нагреванием на жару, в печи. П. пироги. П. в духовке.

 

2. что. Приготовлять для еды, сильно нагревая, прокаливая. П. картофель. П. яйца.

 

ЖАРИТЬ

1. кого (что). Приготовлять (пищу), держать на сильном жару без воды, в масле, жире. Ж. котлеты.

 

2. что. Подвергать действию сильного жара, прокаливать (зёрна, семена). Ж. семечки. Ж. кофе.

 

Здесь, возможно второе значение слова "печь", т.е., приготовлять ДЛЯ еды"

 

У меня прабабушка пекла, бабушка пекла, мать пекла...

... ну а теперь я пеку...

 

Вот кстати 95 рецептов блинов - www.gotovim.ru/recepts/bake/pancake/...

пеките, жарьте, варите...

КУШАЙТЕ НА ЗДОРОВЬЕ! :beer::beer::beer:

Посилання на коментар
Поділитися на інших сайтах

А вот и более-менее квалифицированный комментарий :

 

Когда блины в доме ПЕКУТ, пахнет приятно и вытяжка на единичке справляется, а когда ЖАРЯТ - "дымок" по всей хате и вытяжка на максимуме захлебывается :):)

  • Лайк 1
Посилання на коментар
Поділитися на інших сайтах

А вытяжка гофрой подключена?

 

Если это Фагор и включен на 3, то не имеет значения чем он подключен!

Это САМОЛЕТ!

У меня тоже дома Фагор - зверь, но на 3 я его включаю только в самых крайних случаях! Но и тянет он на 3, я вам скажу, абсолютно адекватно издаваемому шуму.

Посилання на коментар
Поділитися на інших сайтах

Если это Фагор и включен на 3, то не имеет значения чем он подключен!

Это САМОЛЕТ!

У меня тоже дома Фагор - зверь, но на 3 я его включаю только в самых крайних случаях! Но и тянет он на 3, я вам скажу, абсолютно адекватно издаваемому шуму.

Вы имели ввиду FABER?

У меня FABER на 1240м3/час.

Выбросил заводской переходник 150/125, завел вент трубой пластиковой Д150 в вентканал 150*250 и все ОК.

На третей немного шумновато, но не настолько, чтобы мешало разговаривать или чего то еще.

Шум появляется, когда производительность турбины выше пропускной способности канала и когда канал имеет большое сопротивление и вибрирует (гофра, например)

Посилання на коментар
Поділитися на інших сайтах

Вы имели ввиду FABER?

У меня FABER на 1240м3/час.

Выбросил заводской переходник 150/125, завел вент трубой пластиковой Д150 в вентканал 150*250 и все ОК.

На третей немного шумновато, но не настолько, чтобы мешало разговаривать или чего то еще.

Шум появляется, когда производительность турбины выше пропускной способности канала и когда канал имеет большое сопротивление и вибрирует (гофра, например)

 

Имел в виду именно Fagor, Igor_M писал о фагоре.

У меня при макс скорости 700 кубов в час - канал 125 мм через заводской переходник. Сечение выходного канала не меньше.

Каналы пластиковые.

Извиняюсь за уход от приятной темы блино- печения/жарки :)

Посилання на коментар
Поділитися на інших сайтах

Выложу лестницу на 2-й этаж почти готовую...

Бетонировали за один день, выжидали более-менее погоду.

Взял у знакомых бочку 200-литровую (в багажник вошла целиком и даже сиденья не пришлось раскладывать...), накачали туда воды от соседа, и грели на костерчике на улице.

В доме УФОшку поставили напротив кучек песка и щебня, положили рядом мешки с цементом.

Купил "ускоритель" Сика Антифриз (что интересно, в Лерое он оказался дороже на 10грн, чем в Анжио в Белогородке).

Пропорцию брали проверенную на предыдущих этапах и ...

В итоге получилось такое вот (см. фото).

В этот раз попытался сфотографировать "по ходу" - снизу вверх. Получилось наверное не очень информативно, но видна "динамика"...:D

По словам строителей бетон получился "крепкий що капец".:good:

Уже на второй день ничем процарапать было невозможно...

Пробежавшись пару раз вверх-вниз, а потом то же самое проделав по пути в подвал должен сказать, что РЕАЛЬНО ОЩУТИЛ разницу в удобстве. При казалось бы незначительном отличии по высоте ступеньки.

ЦИФИРИ

1. В подвал 175х280. Формула удобства 280-175=105

2. На 2-й этаж 170х290. Формула удобства 290-170=120.

А ведь и пишут же в учебниках, что самые удобные, это когда 120...

1780538669_110210-1.thumb.jpg.1262b17c8c2ffae159e36d2616ac4c71.jpg

179966770_110210-2.thumb.jpg.2a2af5eb0588e5f7b2059607bbbeeb58.jpg

1528774044_110210-3.thumb.jpg.989327f83b02746bb41c8323d9d4ec5c.jpg

1020985299_110210-4.thumb.jpg.30e896b785f1c678f6e2a480a00e44b8.jpg

1550341542_110210-5.thumb.jpg.b0ed048c1799bfad062a2361d42c5406.jpg

  • Лайк 3
Посилання на коментар
Поділитися на інших сайтах

Выкдадываю полученный в итоге результат после снятия опалубки.

У нас с архитектором диспут был - когда опалубку снимать?

В принципе можно было через 2-3 дня это сделать и я предлагал такой вариант по двум причинам:

1) через 3 дня после окончания заливки обещали сильные морозы и продолжительные;

2) длительное нахождение бетона в "опалубке" могло привести к "прикипанию" к самой опалубке, особенно переживал за ДВП, которое было набито по дну... кстати, опять подумал, что если бы черновую опалубку оббивали бы оцинкованным железом, то проблемы "прикипания" точно не было бы...

Аргументы архитектора:

1) бетон-то "схватился" (мы ж добавляли "ускорители"), но неравномерно и в самом низу наверняка еще много влаги... снимем опалубку - ударят морозы - порвет на куски :(

2) торопится не надо... пройдут холода и снимем спокойно...

 

В итоге победиле точка зрения архитектора, учитывая аргументацию.:rolleyes:

Снимали опалубку почти через две недели. Вопрос с аккуратным снятием ДВП решился просто - после того, как разобрали все доски, ДВП снизу прогрели строительным феном и оно отстало как "по маслу" - на бетоне не осталось ни следа бумаги... хорошая идея - рекомендую!:good:

 

Пару раз прошелся вверх-вниз и ловил себя на мысли, что очень правильно сделаны поворотные площадки - не квадратные, а с "заходом" на пол-ступеньки. На площадке как раз помещается ровно два шага и потом в том же темпе продолжаешь подъем или спуск (т.е. шаг НЕ сбивается). И еще раз убедился, что правильно теоретики пишут о том, что в прямолинейном марше количество ступеней должно быть нечетным - у меня два прямолинейный участка, в одном три ступени, в другом - семь... да и "забежной" фрагмент вначале смотрится посимпатишнее, чем ежели там была бы прямая поворотная площадка (и слава Богу, что она там не "помещалась" по размеру...:))

206919220_110307-1.thumb.jpg.8621eaecdfe5c1672e28f2a5287f4df8.jpg

947238566_110307-2.thumb.jpg.7dae1f1745964114dbf01495b7e7e7e3.jpg

1295766310_110307-3.thumb.jpg.d1bfade13a1636cc2208510140a3818c.jpg

1794900417_110307-4.thumb.jpg.e4b57fc6f8e048f7bd529640cff46e0c.jpg

2019974153_110307-5.thumb.jpg.87d807f1cbbafb818fd9cacbcd9134e0.jpg

  • Лайк 1
Посилання на коментар
Поділитися на інших сайтах

Ну вот, а фотки снизу нет :(

Ступенька плавно переходит в подоконник. :)

 

Из чего планируете накладки для супенек делать?

Посилання на коментар
Поділитися на інших сайтах

Ну вот, а фотки снизу нет :(

Ступенька плавно переходит в подоконник. :)

 

Из чего планируете накладки для супенек делать?

 

Снизу-сбоку это выглядит вот таким образом (см. фото).

Фото 1 - общий вид на спуск-подъем из холла...

Фото 2 - нижняя часть начала лестницы (поворотный участок)

Фото3 - вид из-за колонны...

 

Накладки думаю из массива дерева толщиной 40мм, подступенки или покрашу или заклею ламинатом (очередной бред?????) (хотя архитектор все время мне говорит о мраморе....)

Вот по поводу ступеньки переходящей в подоконник (если речь идет об окне, которое на фото4), то есть мысль заложить этот проем еще 20см снизу и 10см - слева. Получится 1 м х 1,2м.

То же самое (поднять низ окна на 60см) планирую сделать и с остальными окнами данного фасада, а это окна в с/у и на кухне.

Этот фасад виден на предварительном варианте дизайн-модели (фото 5). Эта сторона повернута к соседу слева. И окна тогда ВСЕ ТРИ будут начинаться от горизонтальной "разделительной линии"...

Супруга всегда была против окон в санузлах, а так мы его уменьшим и внизу под окном можно будет прикрепить полотенцесушитель (заодно зимой будет как радиатор работать...)

На кухне "поднятие" подоконника позволит организовать в этом месте полноценную рабочую зону... и высота задней панели будет как раз 60см по всей длине стены (не будет прерываться на окне)...

Что кому кажется неправильным и почему???

1159394871_110307-6.thumb.jpg.7c3e859afc412800f79d8b6111c360c0.jpg

1384208425_110307-7.thumb.jpg.d7d9ed6b568fae9dfb0729e70d66ce35.jpg

1251080053_110307-8.thumb.jpg.03194097c9920e7cd975407450a72e3d.jpg

992114714_110307-1.thumb.jpg.de4f758b6a4c73762515f65128b6340e.jpg

610805913_100414__2min.thumb.jpg.cb97bad5bd86caaa20206f2132ad060c.jpg

Посилання на коментар
Поділитися на інших сайтах

Если все подумали, что я пошутил или нес какой-то полный бред насчет закладывания окон, то это совсем не так...

Я в самом деле планирую окна уменьшить.

Для того, чтобы было понятнее, выкладываю две картинки.

Первая - это то, что запланировано изначально было...

Вторая - то, что предполагается получить в итоге...:(

Обоснование в предыдущем посте...

И что ведь интересно - такой вариант (с высоким низом окон) обсуждался даже на начальном этапе проектирования...

Какие минусы такого решения можете назвать?

Кроме того, что это "неэстетично"... поскольку фасад боковой и виден будет только от соседа слева...

925237457_-_1005.thumb.jpg.c8f359f38acab96dfc39a4fb219902e3.jpg

758266_-_1005_.thumb.JPG.19dc05de2a2efbab9ea632d4f3ba75a2.JPG

Посилання на коментар
Поділитися на інших сайтах

Створіть акаунт або увійдіть у нього для коментування

Ви маєте бути користувачем, щоб залишити коментар

Створити акаунт

Зареєструйтеся для отримання акаунта. Це просто!

Зареєструвати акаунт

Увійти

Вже зареєстровані? Увійдіть тут.

Увійти зараз
×
×
  • Створити...