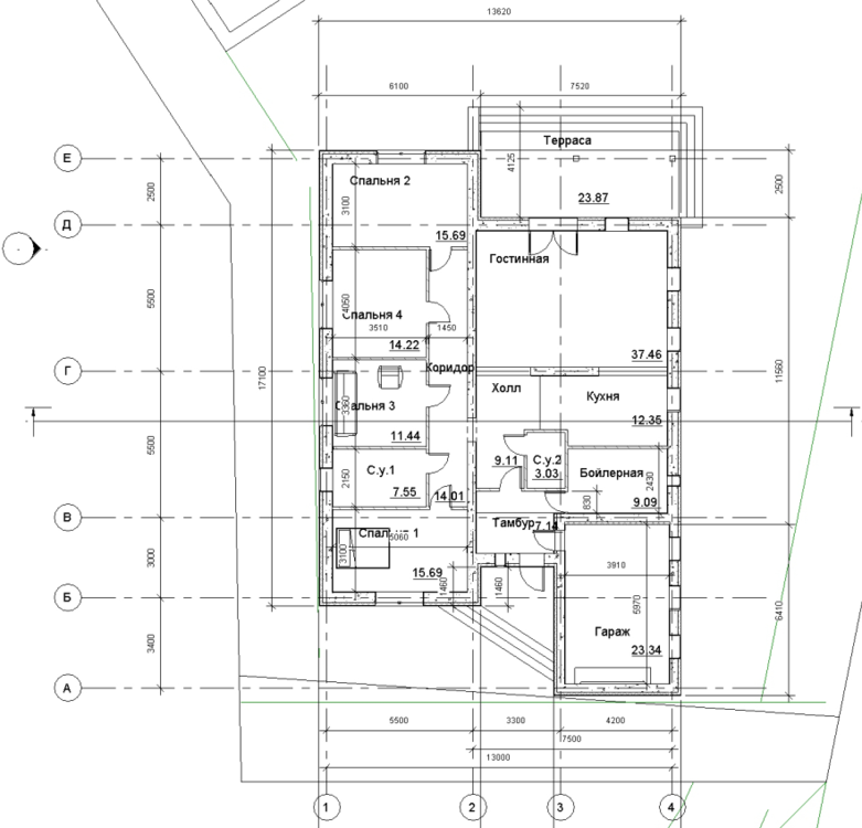
zub75 Опубліковано: 21 вересня 2016 Поділитись Опубліковано: 21 вересня 2016 Выбираем между МЗФ и собственно заглубленной на ГП. Исходные данные: - глубина промерзания в регионе 1,1м; - участок ровный с перепадом 30 см к дороге - грунты - УГВ ниже 4 метров - дом одноэтажник из польских проектов - - стены газосиликат D400 40 см, полы по грунту, деревянные перекрытия первого этажа - под всем гаражом решено сделать подвальное помещение на высоту 2м. - конструктива ест-но нет, только архитектурный проект; - бюджет не резиновый; Какие еще исходные данные необходимы? Спасибо заранее. Посилання на коментар Поділитися на інших сайтах More sharing options...
Andrei constructor Опубліковано: 25 вересня 2016 Поділитись Опубліковано: 25 вересня 2016 грунты Где геологический разрез? Добавлено через 2 минуты стены газосиликат D400 40 см для одноэтажника можно взять D300 если хотите сэкономить при эксплуатации, то можно заказать блоки Аэрок шириной 500 мм Добавлено через 1 минуту под всем гаражом решено сделать подвальное помещение на высоту 2м. зачем под всем гаражом? Опыт застройщиков показывает что для семьи достаточно сделать погреб до 10 м2. Посилання на коментар Поділитися на інших сайтах More sharing options...
zub75 Опубліковано: 26 вересня 2016 Автор Поділитись Опубліковано: 26 вересня 2016 Где геологический разрез? Все, что есть. для одноэтажника можно взять D300 если хотите сэкономить при эксплуатации, то можно заказать блоки Аэрок шириной 500 мм Я понимаю, что D300 имеют более высокую теплопроводность, но они Очень хрупкие. зачем под всем гаражом? Опыт застройщиков показывает что для семьи достаточно сделать погреб до 10 м2. Мы уже голову сломали как обустроить подвал в гараже. Если копать отдельно, то отступы надо делать от стен гаража, получается погреб практически по центру гаража, что не есть гуд в нашем понимании. Хотелось бы задействовать фундамент гаража в качестве степ будущего подвала. Посилання на коментар Поділитися на інших сайтах More sharing options...
Andrei constructor Опубліковано: 26 вересня 2016 Поділитись Опубліковано: 26 вересня 2016 имеют более высокую теплопроводность наоборот более низкую Добавлено через 4 минуты но они Очень хрупкие. а какие они должны быть? D400 тоже хрупкие и ...? Посилання на коментар Поділитися на інших сайтах More sharing options...
zub75 Опубліковано: 26 вересня 2016 Автор Поділитись Опубліковано: 26 вересня 2016 наоборот более низкую Совершенно верно. Это не главное. Если у Вас есть какие предложения по выбору типа фундамента под мой проект, буду признателен. Посилання на коментар Поділитися на інших сайтах More sharing options...
Andrei constructor Опубліковано: 26 вересня 2016 Поділитись Опубліковано: 26 вересня 2016 Если у Вас есть какие предложения по выбору типа фундамента под мой проект, буду признателен. При выполнении геологических изысканий оформляется отчет, в котором геолог дает четкие рекомендации по выбору типа фундаментов для данной геологической обстановки. Такие выводы у вас есть в отчете? Посилання на коментар Поділитися на інших сайтах More sharing options...
zub75 Опубліковано: 26 вересня 2016 Автор Поділитись Опубліковано: 26 вересня 2016 Такие выводы у вас есть в отчете? Нету. Все документы я приложил. Посилання на коментар Поділитися на інших сайтах More sharing options...
tansss Опубліковано: 26 вересня 2016 Поділитись Опубліковано: 26 вересня 2016 в котором геолог дает четкие рекомендации по выбору типа фундаментов для данной геологической обстановки. Такие выводы у вас есть в отчете? Этот пункт, согласно ДБН, а точнее его наличие имеет рекомендательный характер! Не гоже геологу давать назначение по типу и конструкции фундамента! Его задача скромно провести анализ гео обстановки и грунтов и всё! а задача конструктора назначить (выбрать) тип и конструкцию! 1 Посилання на коментар Поділитися на інших сайтах More sharing options...
мигис Опубліковано: 13 грудня 2016 Поділитись Опубліковано: 13 грудня 2016 Выбираем между МЗФ и собственно заглубленной на ГП. Исходные данные: - глубина промерзания в регионе 1,1м; - участок ровный с перепадом 30 см к дороге - грунты [ATTACH]528665[/ATTACH][ATTACH]528666[/ATTACH][ATTACH]528667[/ATTACH][ATTACH]528668[/ATTACH] - УГВ ниже 4 метров - дом одноэтажник из польских проектов - [ATTACH]528664[/ATTACH] - стены газосиликат D400 40 см, полы по грунту, деревянные перекрытия первого этажа - под всем гаражом решено сделать подвальное помещение на высоту 2м. - конструктива ест-но нет, только архитектурный проект; - бюджет не резиновый; Какие еще исходные данные необходимы? Спасибо заранее. День добрый коллега .У меня тот же проект и тоже проект без привязки к грунтам . Тоже мучаюсь с выбором ... для себя пока понял , что буду делать ленту 40см прямо в грунт -внизу арматура 6 шт и в верней части 4 шт . Кстати тоже хочу подвал под гаражом. Может просто прокопать глубже и залить ленту под подвал в гараже ? А потом вынуть грунт из подвала ? Кстати проект у нас классный...)))) Посилання на коментар Поділитися на інших сайтах More sharing options...
пуля Опубліковано: 14 грудня 2016 Поділитись Опубліковано: 14 грудня 2016 Если сверху будет отапливаемое здание, то как подвал для хранения овощей плохо. Температура будет выше, а влажность ниже.Я уже в подвале в полу яму вырыл 1,5 м глубиной, картошка и лук все равно проростает. А вот для закупорки, да просто, как бытовое помещение -самое оно. В полах дома, над гаражем 50 мм экстр.пенопол. 1 Посилання на коментар Поділитися на інших сайтах More sharing options...
wroom Опубліковано: 17 грудня 2016 Поділитись Опубліковано: 17 грудня 2016 канализация планируется? Выкопайте под неё котлован, будет вам срез грунтов. И от среза уже плясать по фундаменту.:roll: 1 Посилання на коментар Поділитися на інших сайтах More sharing options...
zub75 Опубліковано: 19 грудня 2016 Автор Поділитись Опубліковано: 19 грудня 2016 для себя пока понял , что буду делать ленту 40см прямо в грунт -внизу арматура 6 шт и в верней части 4 шт . Кстати тоже хочу подвал под гаражом. Может просто прокопать глубже и залить ленту под подвал в гараже ? А потом вынуть грунт из подвала ? Ширину выбирайте конструктивно в зависимости от пирога стены. У меня 40 лента, на ней блок 40+10 минвата. Армирование выбранное вами чрезмерное. Я положил 3 снизу, 3 верху+по центру ленты 2 луча конструктивной. Все 12-й А500. По гаражу именно так и сделал. Стены конечно не очень ровные получились, но не страшно. Только не лейте в грунт. Это ОЧЕНЬ плохо в пучиничистых даже не очень грунтах. Застелите пленкой. Я так и сделал. Добавлено через 2 минуты канализация планируется? Выкопайте под неё котлован, будет вам срез грунтов. Я выкопал яму для туалета. Оттуда и взял пробы грунта. Был риск конечно, что на площади заливки фундамента грунт будет отличаться, но пронесло. Вчера залил последние 3 куба на цокольную часть гаража+монолитные куски пола гаража. 1 Посилання на коментар Поділитися на інших сайтах More sharing options...
Andrei constructor Опубліковано: 19 грудня 2016 Поділитись Опубліковано: 19 грудня 2016 Оттуда и взял пробы грунта. Как вы это делали? Посилання на коментар Поділитися на інших сайтах More sharing options...
Татьяна5 Опубліковано: 19 грудня 2016 Поділитись Опубліковано: 19 грудня 2016 Только не лейте в грунт. Это ОЧЕНЬ плохо в пучиничистых даже не очень грунтах. Застелите пленкой. Я так и сделал. Простите, а чем пленка поможет в пучинистых грунтах? )) 1 Посилання на коментар Поділитися на інших сайтах More sharing options...
Andrei constructor Опубліковано: 19 грудня 2016 Поділитись Опубліковано: 19 грудня 2016 Простите, а чем пленка поможет в пучинистых грунтах? )) выявили секту "свидетелей сбежавшего цементного молока" ))) Посилання на коментар Поділитися на інших сайтах More sharing options...
мигис Опубліковано: 19 грудня 2016 Поділитись Опубліковано: 19 грудня 2016 Ширину выбирайте конструктивно в зависимости от пирога стены. У меня 40 лента, на ней блок 40+10 минвата. Армирование выбранное вами чрезмерное. Я положил 3 снизу, 3 верху+по центру ленты 2 луча конструктивной. Все 12-й А500. По гаражу именно так и сделал. Стены конечно не очень ровные получились, но не страшно. Только не лейте в грунт. Это ОЧЕНЬ плохо в пучиничистых даже не очень грунтах. Застелите пленкой. Я так и сделал. Добавлено через 2 минуты Я выкопал яму для туалета. Оттуда и взял пробы грунта. Был риск конечно, что на площади заливки фундамента грунт будет отличаться, но пронесло. Вчера залил последние 3 куба на цокольную часть гаража+монолитные куски пола гаража. Брат жены делал 3х этажный дом - лил прямо в грунт - там даже низменная часть (даниловка), правда брал не простой М250 ,а с присадками для гидроизоляции - стоит как скопанный ... Посилання на коментар Поділитися на інших сайтах More sharing options...
zub75 Опубліковано: 26 грудня 2016 Автор Поділитись Опубліковано: 26 грудня 2016 выявили секту "свидетелей сбежавшего цементного молока" ))) Ну только сбежавшее цементное молочко вспоминать. Давайте вспомним силы трения грунта о стенки фундамента, которые образуются при морозном пучении. Добавлено через 1 минуту Брат жены делал 3х этажный дом - лил прямо в грунт - там даже низменная часть (даниловка), правда брал не простой М250 ,а с присадками для гидроизоляции - стоит как скопанный ... Так в том-то и дело, что чем тяжелее дом, тем меньше надо морочится на счет сил морозного пучения. У нас дом легкий. 1 Посилання на коментар Поділитися на інших сайтах More sharing options...
Татьяна5 Опубліковано: 26 грудня 2016 Поділитись Опубліковано: 26 грудня 2016 Давайте вспомним силы трения грунта о стенки фундамента, которые образуются при морозном пучении. Ой, не стоит , но в цитатник перлов запишу (не обижайтесь, пожалуйста, но редкую глупость написали )) Посилання на коментар Поділитися на інших сайтах More sharing options...
Drosselbeere Опубліковано: 26 грудня 2016 Поділитись Опубліковано: 26 грудня 2016 Ой, не стоит , но в цитатник перлов запишу (не обижайтесь, пожалуйста, но редкую глупость написали )) Таня, я не был бы так категоричен. Данные перлы даже в руководстве к СНиП были прописаны. 2 Посилання на коментар Поділитися на інших сайтах More sharing options...
мигис Опубліковано: 26 грудня 2016 Поділитись Опубліковано: 26 грудня 2016 Ширину выбирайте конструктивно в зависимости от пирога стены. У меня 40 лента, на ней блок 40+10 минвата. Армирование выбранное вами чрезмерное. Я положил 3 снизу, 3 верху+по центру ленты 2 луча конструктивной. Все 12-й А500. По гаражу именно так и сделал. Стены конечно не очень ровные получились, но не страшно. Только не лейте в грунт. Это ОЧЕНЬ плохо в пучиничистых даже не очень грунтах. Застелите пленкой. Я так и сделал. Добавлено через 2 минуты Я выкопал яму для туалета. Оттуда и взял пробы грунта. Был риск конечно, что на площади заливки фундамента грунт будет отличаться, но пронесло. Вчера залил последние 3 куба на цокольную часть гаража+монолитные куски пола гаража. А можно рисунком - для полного понимания Армирование выбранное вами чрезмерное. Я положил 3 снизу, 3 верху+по центру ленты 2 луча конструктивной. Все 12-й А500. Посилання на коментар Поділитися на інших сайтах More sharing options...
zub75 Опубліковано: 27 грудня 2016 Автор Поділитись Опубліковано: 27 грудня 2016 Ой, не стоит , но в цитатник перлов запишу (не обижайтесь, пожалуйста, но редкую глупость написали )) Продолжайте, не стесняйтесь. Всем будет интересно. Мы здесь собрались не только посмотреть на Ваши улыбочки, но и почитать Ваши умозаключения. Добавлено через 49 секунд А можно рисунком - для полного понимания Сорри, не понял, какой именно рисунок Вас интересует? Посилання на коментар Поділитися на інших сайтах More sharing options...
Татьяна5 Опубліковано: 27 грудня 2016 Поділитись Опубліковано: 27 грудня 2016 Продолжайте, не стесняйтесь. Всем будет интересно. Мы здесь собрались не только посмотреть на Ваши улыбочки, но и почитать Ваши умозаключения. ? А смысл? Пленка, спасающая от сил морозного пучения и потому ее надо класть - это забавно, но в умозаключениях не нуждается, достаточно это три раза прочитать. 1 Посилання на коментар Поділитися на інших сайтах More sharing options...
Andrei constructor Опубліковано: 27 грудня 2016 Поділитись Опубліковано: 27 грудня 2016 Ну только сбежавшее цементное молочко вспоминать. Давайте вспомним силы трения грунта о стенки фундамента, которые образуются при морозном пучении. ))) это действительно уже другая секта - "свидетели морозного пучения" Пленка оказывается какая полезная. Посилання на коментар Поділитися на інших сайтах More sharing options...
Romb Опубліковано: 28 грудня 2016 Поділитись Опубліковано: 28 грудня 2016 ))) это действительно уже другая секта - "свидетели морозного пучения" Пленка оказывается какая полезная. Вы против пленки или против касательных сил пучения? А то у нас какие то крайности. Как появляется мелкий фундамент, так куча предсказателей-пучинистов. Как проявился человек с мероприятиями от пучения, так обсмеяли. Чем глаже фундамент, тем меньше вероятность пучения. А чем того добиваться это уже дело другое. Или не так? А сект здесь хватает. Секта " монолитистов поясистов" Секта " осеннего заливания фундамента" Секта " экологистов". Это вообще отдельная тема. Секта " точкоросистов" Секта " газононеполивастовнестригастов" Секта " сколькобудетстоистов" Секта " ятутсамыйумныйвывсе дураки" и т.д. 2 Посилання на коментар Поділитися на інших сайтах More sharing options...
Andrei constructor Опубліковано: 28 грудня 2016 Поділитись Опубліковано: 28 грудня 2016 Вы против пленки или против касательных сил пучения? Против пленки. Имхо это мероприятие бесполезное. 1 Посилання на коментар Поділитися на інших сайтах More sharing options...
Рекомендовані повідомлення
Створіть акаунт або увійдіть у нього для коментування
Ви маєте бути користувачем, щоб залишити коментар
Створити акаунт
Зареєструйтеся для отримання акаунта. Це просто!
Зареєструвати акаунтУвійти
Вже зареєстровані? Увійдіть тут.
Увійти зараз