"Diamond servis" Опубліковано: 22 червня 2018 Автор Поділитись Опубліковано: 22 червня 2018 АППС (Адресная проектно-производственная система) К-134 — серия крупнопанельных жилых домов для строительства в Киеве, Донецке и Кривом Роге. Первый дом этой серии был сооружен в 1984 году во втором микрорайоне Оболони в Киеве. Серия была разработана в 1984—87 годах архитектором С. Синицыной. В основе серии лежат варианты укрупненных объемно-планировочных элементов (КОПЭ), что обусловливает огромное разнообразие планировок и блок-секций. Внешние стены сделаны из керамзитобетонных панелей, внутренние стены и перекрытия — из железобетонных панелей, перегородки — гипсоблочные. Распространение серии Серия впервые была применена во втором, образцово-показательном микрорайоне Оболони в виде каскадных 10—16-этажных жилых домов, облицованных зелёной и синей плиткой (1986 год постройки). В дальнейшем серия претерпела небольшие изменения — вместо каскадных стали возводиться протяженные дома-пластины в 12—16 этажей, а цвет плитки сменили на бежевый и коричневый. В начале 2000-х годов серию снова модернизировали (модификации АППС-Люкс) — цвета облицовочной плитки наконец-то разнообразились, были добавлены дополнительные окна на лестничной клетке, вместо деревянных окон стали ставить пластиковые. Разнообразили и внешний вид в целом — так, на улице Северной на Оболони появился жилой 16-этажный дом с синими пирамидальными завершениями подъездов, а на улице Эрнста в Кадетском Гае был построен дом с пентхаусами. С 2005 года началось возведение 22-этажных домов этой серии — на Позняках, Троещине и Новобеличах. Домами этой серии застроены север Оболони, Троещина, Харьковский массив, Позняки, Осокорки, Воскресенка, Лесной массив, Нивки, Беличи, Теремки. Также дома АППС можно встретить в Донецке и Луганске — там они 12-этажные, облицованные киевской бежевой плиткой, единственное отличие — в оформлении подъездных лоджий; в Кривом Роге — там эти дома облицованы синей, коричневой и белой мелкой плиткой («***») без характерных белых полос, этажность — 12—16 этажей. Характеристики серии Высота помещений — 271 см, этажа — 285 см. В серии запроектировано 3 варианта 1-комнатных квартир (41/12; 34/12; 49/18 м2), 2 варианта 2-комнатных (53/30 м2), 5 вариантов 3-комнатных (74/43; 73 / 44; 71/43; 74/44 м2) и один 4-комнатной (95/55 м2). В 3—4-комнатных квартирах есть холл площадью 10—11 м2. В каждой секции от двух до трёх пассажирских и грузопассажирских лифта. Отопление, холодное и горячее водоснабжение — централизованные. Конструктивные особенности Вопреки расхожему мнению, выбор квартиры в домах типовой застройки не ограничивается несколькими проектами. Каждая «серия» домов имеет множество модификаций с разными техническими параметрами и уровнем комфортности квартир. При этом квартиры разных серий очень часто находятся в одной ценовой категории. Поэтому, чтобы покупка была выгодной, следует различать архитектурно-планировочные решения объектов «массового» домостроительства. Многоэтажками «массовых» серий в основном застраивались окраинные «спальные» районы столицы. Большую часть из них (по информации АО «Киевпроект» около 90%) составляют сборные панельные дома. Составные части и монтаж панельных домов производили конвейерным способом домостроительные комбинаты. Широко применялась практика этого строительства в середине шестидесятых — конце семидесятых годов. Квартиры в таких домах классифицируются как жилье обычного качества, которое имеет не слишком удобную планировку (как правило, совмещенные комнаты) и недостаточно высокий уровень комфортности. Массовое строительство типовых домов с квартирами повышенной комфортности началось лишь в начале восьмидесятых. Конструктивные слабости Выбирая квартиру, в первую очередь нужно изучить конструктивные особенности дома. От качества выполнения проекта и материалов, использованных при строительстве, непосредственно зависит долговечность здания. Сроки эксплуатации панельных домов во многом определяются устройством фундамента, качеством обработки швов на стыках панелей, армированием железобетонных конструкций, подготовкой перекрытий под настил и т. д. Эти работы относятся к категории «скрытых», поэтому проверка качества их выполнения производится специальной приемной комиссией поэтапно в ходе строительства здания. Покупатель квартиры может заметить лишь грубые нарушения строительных норм и технологий (при детальном визуальном осмотре дома), да и то далеко не все. Например, если на этапе выполнения инженерно-геологических работ и расчетов по установке фундамента была допущена ошибка, это может привести к проседанию грунта и появлению трещин на стенах и фундаменте. Последствия плохо обработанных швов на стыках панелей — неровности на внутренних стенах, а также повышенная влажность в помещениях в прохладную погоду. (Только в последнее время строители используют специальную конструкцию стыков с нахлестами панелей, что обеспечивает водонепроницаемость стен. Сами стыки заделываются пенополиуретаном, что улучшает воздухо- и теплозащиту). От качества поэтажных перекрытий также не в последнюю очередь зависит долговечность дома. Применение материалов и технологий низкого качества приводит к проседанию потолка и образованию на нем трещин. В серийных жилых крупнопанельных зданиях установлены железобетонные перекрытия. В домах серий «96», «Т», «КТ», «151-96к» перекрытия делают из сплошных плит толщиной 16 см, в домах серий «КП», «КС» — из круглопустотных плит толщиной 22 см. Понятно, что при стандартной высоте этажей (2,8 м) в домах с более тонкими перекрытиями высота внутренних помещений выше. Однако, кaк говорят специалисты, лучшим вариантом для поэтажных перекрытий считаются круглопустотные плиты — это достаточно жесткие конструкции и в то же время они очень редко проседают и трескаются. В большинстве случаев строители нарушали технологию укладки линолеума — он укладывался непосредственно на бетон. Подобная «технология» делает пол холодным и значительно ухудшает уровень звуко- и теплоизоляции. А между тем, согласно строительным нормам, линолеум должен укладываться на настил из древесно-стружечных плит, которые кладутся на перекрытия. Проверить это достаточно легко — пол из линолеума, уложенного по правилам, слегка пружинит под ногами. Особое внимание покупателям следует уделить качеству материалов, из которых изготовлены панели стен. От них во многом зависит уровень комфортности жилья. Например, панели в домах серии «КТ» выполнены из железобетона с утеплителем. Недостатки таких стен проявляются в экстремальных погодных условиях: летом в квартирах жарко, а зимой – холодно (бетон не отличается хорошими теплоизоляционными свойствами). Нередко при низкой температуре на внутренних поверхностях этих стен конденсируется влага. Стены в домах серий «Т» и «151-96к» изготовлены из керамзитобетона, который получают при добавлении в бетон керамических шариков, — они лучше «дышат» по сравнению с железобетонными, и в то же время у них неплохие теплоизоляционные характеристики. В домах серии «КП» применяются керамические панели. Они соединяют в себе преимущества кирпича (хорошо сохраняют тепло) и недостатки панелей (могут разрушаться на стыках). В последних модификациях домов серии «КТ» строители стали применять панели наружных стен с улучшенными теплотехническими свойствами. В них обычные внутренние жесткие ребра заменены гибкими металлическими пластинами. «Мелочи» планировок Разработчики проектной документации первых серий «массового» жилья в первую очередь исходили из соображений снижения стоимости, простоты и скорости возведения зданий, а также стремились разместить в них максимально возможное количество квартир. Поэтому квартиры в таких домах имеют небольшую площадь (от 30,1 кв. м — для однокомнатной квартиры в серии «151-96к») и довольно неудобную планировку (совмещенный сан-узел, «проходные» комнаты, узкие коридоры и т. д.). Со временем на основе базовых проектов каждой серии домов были разработаны их различные модификации, которые отличаются более высоким уровнем комфортности. Серия «96» — одна из первых, пришедших на смену «хрущевкам». Для домов «96-го» проекта характерна неудачная планировка квартир: узкий коридор, маленькая ванная и туалет, кухня меньше 8 кв. м. Практически аналогичные параметры квартир в домах серий «КП» и «КС». (Правда, последние пользуются большей популярностью ввиду более высокого качества материала стен — керамических панелей). Потенциальным покупателям имеет смысл обратить внимание на серию «ЕС» с квартирами улучшенной планировки, которая разработана на базе серии «96». Заметно увеличились площади кухонь (9,53 кв. м и 11,19 кв. м.), в квартирах появились удобные холлы (10 кв. м). Несколько лучше, чем в «96-й», планировка в квартирах домов серии «Т». Несмотря на то, что модификации домов серии «Т» очень незначительно отличаются друг от друга, все же более комфортным считается жилье, построенное по проекту «Т-4», благодаря тому, что в квартирах предусмотрен выход из кухни на лоджию — это очень нравится жильцам. В домах серии «Т» также более удобная планировка двухкомнатных квартир и предусмотрен холл в трехкомнатных квартирах (чем не могут похвастаться жильцы домов серии «КТ»). Общим в планировочных решениях домов серий «Т» и «КТ» является наличие достаточно больших кладовых, а также aнтресолей в квартирах. Несмотря на преимущества и недостатки, цены на квартиры в домах всех приведенных серий находятся приблизительно на одном уровне. В усовершенствованном проекте серии «КТ» — «КТУ» — проектировщиками были заложены очень большие возможности для многовариантности планировки. За счет увеличения расстояния между стенами удалось увеличить жилую площадь и площадь кухни, которая стала равной 12,21 кв. м. Также в квартирах домов этой серии предусмотрены квадратные холлы (9,54 кв. м.) и лоджии. На базе распространенной серии «134», в домах которой квартиры имели «проходные» комнаты, была разработана серия «АППС — 134». При сравнительно небольшой площади комнат и кухни (8,1 кв. м) квартиры этой серии удобно спланированы. Например, в двухкомнатных квартирах предусмотрены достаточно просторные коридоры — 4,9 и 3,37 кв. м, в трехкомнатных квартирах — большие холлы и дополнительный санузел. Домами усовершенствованных серий, как правило, до сих пор застраиваются новые жилые массивы в Харьковском и Ватутинском районах. А в последнее время в области градостроительства наметилась тенденция перехода от возведения типового жилья к реализации индивидуальных проектов. Но все же на «переходном» этапе многие строители считают, что дешевле совершенствовать уже существующие «массовые» серии, нежели продвигать на рынок новые варианты. Возможности перепланирования Дaлеко не всех устраивает уровень комфортности жилья в домах типовой застройки. Как правило, жильцы пытаются улучшить потребительские характеристики внутренних помещений путем их перепланировки. В то же время не всегда конструктивные особенности домов позволяют осуществить перепланировку. Главным препятствием для реконструкции является невозможность сноса несущих конструкций в доме. Ими могут быть как наружные, так и внутренние стены. В большинстве крупнопанельных домов полностью сносить внутренние стены категорически запрещается. А проделывание новых проемов в несущих стенах требует установки дополнительных стальных перемычек. Это обстоятельство должны учитывать те, кто намерен «перекраивать» купленную квартиру «под себя». Приобретая квартиру, сначала стоит узнать, по какому проекту был построен дом — сведения об этом содержатся в техническом паспорте на квартиру. И только если проект соответствует вашим запросам, следует идти дальше — анализировать техническое состояние дома. В принципе, информация об этом хранится в БТИ, но обновляется она довольно редко. Потому нужно самостоятельно провести детальный осмотр водопроводных труб, поискать следы «замаскированных» трещин в стенах и т. п. И только убедившись в отсутствии серьезных дефектов, можно принимать решение о покупке. Посилання на коментар Поділитися на інших сайтах More sharing options...
"Diamond servis" Опубліковано: 27 червня 2018 Автор Поділитись Опубліковано: 27 червня 2018 ГЛАВНАЯ СТАТЬЯ Компетентное мнение: Переход от категорий сложности объектов строительства к классам последствий: как это повлияет на разрешительную систему в строительстве Новый порядок представления деклараций на осуществление строительных и подготовительных работ, а также их аннулирования Категории сложности vs классы последствий: как это повлияет на разрешительную документацию в строительстве Чего ожидать от усовершенствования градостроительной деятельности? Усовершенствование градостроительной деятельности – 2017. Стало ли проще? Изменение разрешительных процедур в строительстве Изменения в регулировании градостроительной деятельности и их влияние на строительный бизнес Актуально Снос построенных объектов: основания, порядок и правовые последствия Общая характеристика изменений в регулировании градостроительной деятельности, предусмотренных Законом № 1817 В данной статье представлен краткий и адаптированный обзор наиболее интересных, с точки зрения профильного юриста, новаций в законодательство в связи с принятием Закона Украины № 1817 от 17.01.2017 "О внесении изменений в некоторые законодательные акты Украины относительно усовершенствования градостроительной деятельности" (далее – Закон). Переход от категорий сложности объектов строительства к классам последствий (ответственности) Это наиболее существенное и спорное изменение в законодательство, которое в наибольшей степени отразится на процедуре оформления разрешительных документов на строительство. С 10.06.2017 (момент вступления в силу Закона) вместо пяти категорий сложности объектов строительства будут применяться три класса последствий: объекты I и II категорий сложности относятся к объектам с незначительными последствиями, объекты III и IV категорий сложности – к объектам со средними последствиями и, наконец, объекты V категории сложности – к объектам со значительными последствиями. При этом для устранения возможных разночтений в законе прямо определены перечни объектов строительства, которые относятся к объектам со значительными последствиями, и объектов, которые не могут быть отнесены к классу с незначительными последствиями. Определение класса последствий по-прежнему осуществляется проектантом по согласованию с заказчиком строительства, но правильность классификации теперь проверяется во время экспертизы проекта (если она обязательна). А при проверках на объектах самовольного строительства класс последствий таких объектов определяется органами ГАСК самостоятельно или с привлечением экспертов. Строительство объектов с незначительным классом последствий будет оформляться по уведомительному принципу, а объектов со средним и значительным классом – на основании разрешений. Не секрет, что большинство застройщиков в последние годы в полной мере пользовались плодами либерализации в строительстве и зачастую недобросовестно относились к определению сложности объектов. Например, объект по всем показателям относился к IV категории сложности, но с помощью различных ухищрений заказчиков и проектантов его "маскировали" под III категорию сложности. Такие уловки позволяли нерадивым застройщикам обходиться без получения разрешения на выполнение строительных работ, а только представлять и регистрировать декларацию о начале работ. Это давало возможность приступать к работам, не имея полного комплекта необходимых для строительства документов, а просто указав их названия в декларации о начале работ. На практике было немало случаев (называемых в простонародье "строительными аферами"), когда полный комплект документов так и не оформляли до завершения строительства, что не позволяло ввести объект в эксплуатацию надлежащим образом. Вполне естественно, что в подобных ситуациях возникали проблемы и претензии у инвесторов строительства (особенно жилого), которые часто переадресовывались к государству с требованием усилить контроль в градостроительной деятельности. Кроме того, подобные случаи снижали доверие не только к органам контроля, но и ко всей строительной отрасли в целом. Инвесторы всегда хотят иметь уверенность в том, что они вкладывают деньги в действительно законную стройку со всеми необходимыми разрешениями. Новая система классификации объектов позволяет наладить более эффективный контроль за строительством технически сложных объектов среднего и значительного класса последствий (бывшая III – V категории сложности) на этапе подготовки – сбора и оформления необходимых документов. С моей точки зрения, это является разумным компромиссом между дерегуляцией в строительстве и социальным запросом на безопасность объектов. К тому же большая часть объектов с незначительным классом последствий (в основном, частные дома, хозяйственные постройки, дачные домики) будет строиться по упрощенной разрешительной системе. По оценке Госархстройинспекции, они составляют более 80 % от общего количества застроек в Украине. Изменения в полномочиях в части разрешительных документов Распределение полномочий в части предоставления (получения, регистрации), отказов в выдаче или аннулировании (отмене) документов, которые дают право на выполнение подготовительных и строительных работ, принятия в эксплуатацию законченных строительством объектов теперь будет незначительно изменено в связи с привязкой к численности населения соответствующего населенного пункта и статусу административного центра области. Так, исполнительные органы по вопросам государственного архитектурно-строительного контроля (органы ГАСК) сельских/поселковых/городских советов населенных пунктов с численностью населения до 50 тысяч жителей и не административные центры областей получат полномочия в отношении объектов с незначительными последствиями, расположенных в пределах соответствующих населенных пунктов. Таким образом, часть горсоветов населенных пунктов с численностью населения до 50 тысяч жителей утратит полномочия в части объектов бывшей IV категории сложности, которые перейдут к Госархстройинспекции. В остальном – изменений фактически нет. Государственный архитектурно-строительный контроль и надзор Закон четко разделил и определил суть государственного архитектурно-строительного контроля и надзора. Так, государственный архитектурно-строительный контроль осуществляется на объектах строительства в порядке проведения плановых и внеплановых проверок по территориальному принципу. Основаниями для проведения внеплановой проверки являются: 1) письменное заявление субъекта градостроения о проведении проверки; 2) необходимость проверки достоверности данных, приведенных в уведомлении о начале выполнения подготовительных или строительных работ, декларации о готовности объекта к эксплуатации, в течение трех месяцев со дня представления таких документов; 3) выявление факта самовольного строительства объекта; 4) проверка выполнения субъектом градостроения требований предписаний органов ГАСК; 5) требование главного инспектора строительного надзора центрального органа ГАСК о проведении проверки при наличии оснований, предусмотренных законом; 6) обращения физических или юридических лиц о нарушении субъектом градостроения требований законодательства в сфере градостроительной деятельности; 7) требование правоохранительных органов о проведении проверки. Перечень полномочий должностных лиц ГАСК заметно расширен и уточнен. Так, в случае выявления нарушения требований законодательства, градостроительных условий и ограничений, утвержденного проекта или строительного паспорта застройки земельного участка должностные лица органов ГАСК имеют право, в частности, выдавать обязательные для выполнения предписания относительно: – устранения нарушения требований законодательства; – приостановления подготовительных и строительных работ. Государственный архитектурно-строительный надзор будет осуществляться за соблюдением законодательства местными органами ГАСК при реализации ими государственного архитектурно-строительного контроля. Претворяться в жизнь он будет через главных инспекторов строительного надзора Госархстройинспекции в порядке, который предстоит установить КМУ. Получение градостроительных ограничений и условий Законом упорядочена процедура выдачи градостроительных условий и ограничений (ГУО) на местном уровне. Непосредственно в тексте закона устанавливается исчерпывающий перечень необходимых документов, а также четкий перечень оснований для отказов застройщикам, что существенно ограничивает простор для злоупотреблений со стороны чиновников. Также на законодательном уровне определен исчерпывающий перечень требований (информации), которая содержится в ГУО, установлен предельный срок их выдачи, порядок учета и раскрытия (публикации) для свободного доступа на безоплатной основе. ГУО, как и ранее, действуют до завершения строительства объекта независимо от смены заказчика. Вносить изменения в ГУО может орган, который их выдал, и только в трех случаях: по заявлению заказчика, во исполнение предписания главного инспектора строительного надзора Госархстройинспекции или по решению суда. Отмена ГУО возможна на добровольной основе (по заявлению заказчика), либо по предписанию главного инспектора строительного надзора Госархстройинспекции или суда. В двух последних случаях Законом предусмотрена ответственность должностных лиц, выдавших ГУО. Но ответственность эта больше не конкретизирована, поскольку одновременно соответствующие санкции были удалены из Закона Украины "Об ответственности за правонарушение в сфере градостроительной деятельности" (что, с точки зрения юридической техники, наверное, правильно), но в подходящий закон (например, Кодекс Украины об административных правонарушениях) они не попали. Экспертиза проектов строительства В части экспертизы проектов строительства произошло определенное ужесточение требований, и теперь от экспертизы однозначно освобождаются только проекты строительства объектов с незначительными последствиями (бывшие I и II категории сложности), а объекты бывшей III категории сложности такой привилегии уже лишены. При этом (видимо, в качестве балансировки) смягчены требования к экспертизе и экспертам проектов строительства объектов, которые сооружаются за бюджетные средства: теперь это не обязательно должна быть государственная экспертная организация, а повышенные требования предъявляются только к объектам со значительными последствиями (вывели из-под экспертизы объекты бывшей IV категории сложности). Выполнение подготовительных и строительных работ на основании уведомления В целом, начало выполнения подготовительных и строительных работ возможно на основании уведомления о начале выполнения подготовительных работ, уведомления о начале выполнения строительных работ или полученного разрешения на выполнение строительных работ. По объектам с незначительными последствиями работы можно начинать на основании соответствующего уведомления органа ГАСК. Закон уже не дает возможности органам ГАСК препятствовать началу работ на основании формальных придирок к уведомлению, как это ранее они могли делать с декларациями о начале выполнения работ или подготовительных работ. При этом заказчик обязан в течение трех рабочих дней сообщать о самостоятельно выявленных ошибках (описках, печатной, грамматической, арифметической ошибках) в поданном сообщении. Как и ранее, право на выполнение подготовительных/строительных работ может быть отменено органом ГАСК по заявлению заказчика в случае получения сведений о ликвидации заказчика – юридического лица, а также при выявлении нарушений законодательства или неисполнения требований предписаний должностных лиц органов ГАСК. Интересно то, что из перечня оснований отмены исключены случаи смерти физического лица – заказчика или признания его безвестно отсутствующим, а также прекращение предпринимательской деятельности физического лица – предпринимателя (заказчика). И если с ФЛП все более-менее понятно, то что делать в случае смерти физического лица – не до конца ясно. Выполнение работ на основании разрешения В этой части изменения минимальные (не считая трансформации категорий сложности в классы последствий) и касаются, главным образом, вопросов аннулирования разрешений на выполнение строительных работ. Так, перечень оснований для аннулирования, кроме вышеперечисленных для уведомлений, предоставляет такое право органу ГАСК в случае отмены градостроительных условий и ограничений, а также в случае систематического (два и более раза подряд) препятствования проведению проверки должностными лицами органа ГАСК. Ранее за препятствование проверке право аннулировать разрешение имел административный суд, а не ГАСК (и то лишь в случае его совершения в течение года после наложения штрафа за недопуск). Судьба зарегистрированных деклараций и основания для их аннулирования Согласно Заключительным и переходным положениям Закона зарегистрированные до 10.06.2017 декларации о начале выполнения подготовительных и/или строительных работ действуют до завершения строительства объектов, кроме случаев их отмены соответствующим органом ГАСК, в порядке, установленном КМУ. Это следующие случаи: 1) заявление заказчика об отмене декларации; 2) наличие сведений о прекращении юридического лица или предпринимательской деятельности ФЛП (заказчика), смерти или признания без вести отсутствующим физического лица – заказчика; 3) выявление в ходе проверки нарушений требований законодательства или невыполнения требований предписаний должностных лиц органов ГАСК; 4) отмена градостроительных условий и ограничений; 5) выявление органом ГАСК факта предоставления недостоверных данных в зарегистрированной декларации, которые являются основанием считать объект самовольным строительством (отсутствие прав на землю под строительством или документа, который дает право выполнять строительные работы, отсутствие надлежаще утвержденного проекта либо строительного паспорта); 6) выполнение строительных работ, не предусмотренных декларацией. Ответственность за нарушения Изменения в ответственности за нарушения законодательства всегда пользовались повышенным интересом у "широких масс", вовлеченных в строительный процесс. Итак, что же изменится со вступлением в силу Закона. Ответственность должностных и физических лиц Значительно (в среднем, в 2 – 5 раз) усилена ответственность за нарушения требований законодательства, строительных норм, стандартов и правил во время строительства, за эксплуатацию объектов строительства, не принятых в эксплуатацию, указание недостоверных данных в акте готовности объекта к эксплуатации, необеспечение авторского и технического надзора, непредставление или несвоевременное представление заказчиком информации о передаче права на строительство другому заказчику, изменении генерального подрядчика или подрядчика, ответственных за авторский и технический надзор, ответственных исполнителей работ, а также о корректировке проектной документации, если представление такой информации является обязательным. Также увеличены штрафы, налагаемые на главного архитектора проекта, главного инженера проекта, эксперта, других ответственных исполнителей работ за нарушения законодательства, градостроительной документации, строительных норм, стандартов и правил, занижение класса последствий (ответственности) объекта строительства, допущенные в проектной документации. Серьезно (в 2 – 3,3 раза) увеличены штрафы, налагаемые на чиновников, за нарушение ими сроков выдачи исходных данных на строительство, требование "лишних" документов, проволочки с согласованием и/или выдачей разрешительных документов, необоснованные отказы в выдаче/регистрации документов, подтверждающих готовность к эксплуатации завершенных строительством объектов и т. п. В связи с перераспределением контрольных и надзорных полномочий внесены соответствующие изменения и в распределение полномочий по рассмотрению дел об административных правонарушениях в сфере градостроения. Ответственность заказчиков, заказчиков – подрядчиков строительства и подрядчиков Штрафы, налагаемые на заказчиков и заказчиков-подрядчиков за ведение подготовительных и строительных работ без уведомления органа ГАСК, увеличены в 2 – 3,6 раза. Для объектов со средним и значительным классом последствий размер штрафов не увеличен, но в связи с отнесением объектов III категории сложности к среднему классу последствий штрафы в отношении их увеличились более чем в 4 раза. Аналогичная ситуация складывается и со штрафами за эксплуатацию или использование объектов строительства, не принятых в эксплуатацию, а также указание недостоверных данных в декларации о готовности объекта к эксплуатации или в акте готовности объекта к эксплуатации. Незначительно (примерно на 11 %) увеличены штрафы за необеспечение заказчиком осуществления технического или авторского надзора, если такой надзор обязателен по законодательству. Ответственность подрядчиков за выполнение подготовительных и строительных работ без уведомления органа ГАСК увеличена в 2 – 3,3 раза. По несанкционированным работам на объектах со средним и значительным классом последствий размер штрафов не увеличен, но в связи с отнесением объектов III категории сложности к среднему классу последствий штрафы для подрядчиков в отношении их увеличились более чем в 4 раза. Штрафы, налагаемые на субъектов градостроения за невыполнение предписаний органов ГАСК, увеличены в 1,5 – 2,7 раза, а за недопуск к проверке – в 3 раза. Также в 3 раза увеличиваются штрафы и для субъектов градостроения, которые привлекаются к проведению проверок, за предоставление недостоверных или необоснованных выводов по результатам таких проверок. И в заключение – еще пару моментов, заслуживающих внимания Ранее Госархстройинспекция выдавала лицензии на осуществление хозяйственной деятельности по строительству объектов IV и V категорий сложности. В связи с принятием Закона лицензированию подлежит уже хозяйственная деятельность по строительству объектов, которые по классу последствий (ответственности) относятся к объектам со средними и крупными последствиями (что соответствует изменениям в классификации объектов и подходе к разрешительной документации). Новый порядок лицензирования будет определен в соответствующем постановлении Кабинета Министров Украины, лицензии будут выдаваться бессрочно. В Законе снова вернулись к необходимости законодательно определить перечень строительных работ, которые не требуют получения/представления документов на их выполнение и по окончании которых объект не подлежит принятию в эксплуатацию. Этот перечень должен утвердить Кабинет Министров Украины. Исходя из своего опыта и опыта профильных коллег, я расцениваю это как положительный момент. Статья 34 Закона Украины "О регулировании градостроительной деятельности", в которой определены документы, дающие право на ведение строительных работ, также дополнена положением, которое прямо называет выполнение работы без таких документов самовольным строительством со ссылкой на последствия, предусмотренные законом. Это небольшое и достаточно очевидное законодательное уточнение, на мой взгляд, может испортить нервы многим застройщикам и инвесторам. Станислав Герасименко, глава Комитета по недвижимости и строительству Ассоциации юристов Украины, глава практики недвижимости и строительства ЮФ Eterna Law Добавлено через 2 минуты >>>>>>>>>>>>>>>>>>>>>> desyatka.com.ua/ru/seminari/2017/12december/novie_izmeneniya_pravil_stroitelstva_v_ukraine_v_2018_g.html >>>>>>>>>>>>>>>>>>>>>> www.dabi.gov.ua >>>>>>>>>>>>>>>>>>>>>> Добавлено через 2 минуты search.ligazakon.ua/l_doc2.nsf/link1/T171817.html >>>>>>>>>>>>>>>>>>> Сергей, всё есть-прочтите! Посилання на коментар Поділитися на інших сайтах More sharing options...
"Diamond servis" Опубліковано: 9 липня 2018 Автор Поділитись Опубліковано: 9 липня 2018 Для Анатолия S. :[ATTACH]584145[/ATTACH] В продолжение нашего разговора, вот лично вам выложил,не смотрели? Посилання на коментар Поділитися на інших сайтах More sharing options...
Energon Опубліковано: 15 липня 2018 Поділитись Опубліковано: 15 липня 2018 Можно вопрос? Есть пятиэтажный кирпичный жилой дом с цоколем. В цоколе стены выполненны из таких вот блоков. Народ эти помещения узаконивает как жилые. Ну и соответственно возникает вопрос - не сильно ли я нарушу стены отверстиями под розетки? Резка будет выполнятся алмазной дрелью. Фото части стены цоколя Посилання на коментар Поділитися на інших сайтах More sharing options...
shneider_vova Опубліковано: 15 липня 2018 Поділитись Опубліковано: 15 липня 2018 Можно вопрос? Есть пятиэтажный кирпичный жилой дом с цоколем. В цоколе стены выполненны из таких вот блоков. Народ эти помещения узаконивает как жилые. Ну и соответственно возникает вопрос - не сильно ли я нарушу стены отверстиями под розетки? Резка будет выполнятся алмазной дрелью. Фото части стены цоколя Если я правильно вижу, то это фбс. Они обычно типовой высоты 600 мм и длины, кратной 300 мм. В таком варианте этим блокам все равно на дырки - это тупой кусок бетона без армирования. Посилання на коментар Поділитися на інших сайтах More sharing options...
Energon Опубліковано: 15 липня 2018 Поділитись Опубліковано: 15 липня 2018 Толщина их наверное где то 400-450мм скорее всего. Да я ж это спросить для общего развития. Никогда ещё в цоколях не сверлил. Если и было то было что то накладное)) Посилання на коментар Поділитися на інших сайтах More sharing options...
Игорь&Ира Опубліковано: 15 липня 2018 Поділитись Опубліковано: 15 липня 2018 Толщина их наверное где то 400-450мм скорее всего. Скорее всего 600 мм. Посилання на коментар Поділитися на інших сайтах More sharing options...
"Diamond servis" Опубліковано: 16 липня 2018 Автор Поділитись Опубліковано: 16 липня 2018 Толщина их наверное где то 400-450мм скорее всего. Да я ж это спросить для общего развития. Никогда ещё в цоколях не сверлил. Если и было то было что то накладное)) Всё реально сверлить!если неболее 1отв(150х150мм.)на 0,5м2. Кроме типовых форм существуют другие виды, отличающиеся конфигурацией. 1. ФБВ – с отверстиями для прокладки инженерных коммуникаций и укладки перемычек. 2. ФБП – модули с пустотными камерами, открытыми вниз. В нормативной документации предусмотрены такие типовые размеры блоков ФБС: длина 600/900/1200/2400 мм; ширина 300/400/500/600 мм; высота 300/600 мм. Вес изделий разных габаритов может колебаться от 0,25 до 2 тонн. Маркировка включает в себя тип, размеры в дециметрах и вид бетона. Например, расшифровка ФБС12.3.6–Т выглядит так: ФБС – фундаментные блоки сплошные; 12 – длина 1180 мм; 3 – ширина 300 мм; 6 – высота 580 мм; Т – тяжелый бетон. Посилання на коментар Поділитися на інших сайтах More sharing options...
Energon Опубліковано: 16 липня 2018 Поділитись Опубліковано: 16 липня 2018 Спасибо большое. Я так понял блок розеток на четыре штуки не в рамках закона, на одном блоке?)) Посилання на коментар Поділитися на інших сайтах More sharing options...
"Diamond servis" Опубліковано: 16 липня 2018 Автор Поділитись Опубліковано: 16 липня 2018 Да,именноможна! 1 Посилання на коментар Поділитися на інших сайтах More sharing options...
"Diamond servis" Опубліковано: 23 серпня 2018 Автор Поділитись Опубліковано: 23 серпня 2018 Обратите внимание! Заказы и предложения в разделах тендеры и реклама!!! Посилання на коментар Поділитися на інших сайтах More sharing options...
"Diamond servis" Опубліковано: 13 вересня 2018 Автор Поділитись Опубліковано: 13 вересня 2018 Всё реально сверлить!если неболее 1отв(150х150мм.)на 0,5м2. Кроме типовых форм существуют другие виды, отличающиеся конфигурацией. 1. ФБВ – с отверстиями для прокладки инженерных коммуникаций и укладки перемычек. 2. ФБП – модули с пустотными камерами, открытыми вниз. В нормативной документации предусмотрены такие типовые размеры блоков ФБС: длина 600/900/1200/2400 мм; ширина 300/400/500/600 мм; высота 300/600 мм. Вес изделий разных габаритов может колебаться от 0,25 до 2 тонн. Маркировка включает в себя тип, размеры в дециметрах и вид бетона. Например, расшифровка ФБС12.3.6–Т выглядит так: ФБС – фундаментные блоки сплошные; 12 – длина 1180 мм; 3 – ширина 300 мм; 6 – высота 580 мм; Т – тяжелый бетон. Сергей' Вот выложил! Читали? Посилання на коментар Поділитися на інших сайтах More sharing options...
"Diamond servis" Опубліковано: 24 вересня 2018 Автор Поділитись Опубліковано: 24 вересня 2018 w1.c1.rada.gov.ua/pls/zweb2/webproc4_1?pf3511=63745 Добавлено через 53 секунды vertaki.com.ua/zakonodatelstvo/zakon/ Посилання на коментар Поділитися на інших сайтах More sharing options...
"Diamond servis" Опубліковано: 17 жовтня 2018 Автор Поділитись Опубліковано: 17 жовтня 2018 Таблица штрафов за нарушения в строительстве: inspektsia-gask.kiev.ua/ua/24-gask/shtrafy-inspektsii-gask/114-tablitsa-shtrafov-gask.html Посилання на коментар Поділитися на інших сайтах More sharing options...
"Diamond servis" Опубліковано: 20 листопада 2018 Автор Поділитись Опубліковано: 20 листопада 2018 ubr.ua/market/real-estate/nazvany-rehiony-lidery-ukrainy-v-stroitelstve-3877491 Посилання на коментар Поділитися на інших сайтах More sharing options...
"Diamond servis" Опубліковано: 18 грудня 2018 Автор Поділитись Опубліковано: 18 грудня 2018 ГЛАВНАЯ СТАТЬЯ Компетентное мнение: Переход от категорий сложности объектов строительства к классам последствий: как это повлияет на разрешительную систему в строительстве Новый порядок представления деклараций на осуществление строительных и подготовительных работ, а также их аннулирования Категории сложности vs классы последствий: как это повлияет на разрешительную документацию в строительстве Чего ожидать от усовершенствования градостроительной деятельности? Усовершенствование градостроительной деятельности – 2017. Стало ли проще? Изменение разрешительных процедур в строительстве Изменения в регулировании градостроительной деятельности и их влияние на строительный бизнес Актуально Снос построенных объектов: основания, порядок и правовые последствия Общая характеристика изменений в регулировании градостроительной деятельности, предусмотренных Законом № 1817 В данной статье представлен краткий и адаптированный обзор наиболее интересных, с точки зрения профильного юриста, новаций в законодательство в связи с принятием Закона Украины № 1817 от 17.01.2017 "О внесении изменений в некоторые законодательные акты Украины относительно усовершенствования градостроительной деятельности" (далее – Закон). Переход от категорий сложности объектов строительства к классам последствий (ответственности) Это наиболее существенное и спорное изменение в законодательство, которое в наибольшей степени отразится на процедуре оформления разрешительных документов на строительство. С 10.06.2017 (момент вступления в силу Закона) вместо пяти категорий сложности объектов строительства будут применяться три класса последствий: объекты I и II категорий сложности относятся к объектам с незначительными последствиями, объекты III и IV категорий сложности – к объектам со средними последствиями и, наконец, объекты V категории сложности – к объектам со значительными последствиями. При этом для устранения возможных разночтений в законе прямо определены перечни объектов строительства, которые относятся к объектам со значительными последствиями, и объектов, которые не могут быть отнесены к классу с незначительными последствиями. Определение класса последствий по-прежнему осуществляется проектантом по согласованию с заказчиком строительства, но правильность классификации теперь проверяется во время экспертизы проекта (если она обязательна). А при проверках на объектах самовольного строительства класс последствий таких объектов определяется органами ГАСК самостоятельно или с привлечением экспертов. Строительство объектов с незначительным классом последствий будет оформляться по уведомительному принципу, а объектов со средним и значительным классом – на основании разрешений. Не секрет, что большинство застройщиков в последние годы в полной мере пользовались плодами либерализации в строительстве и зачастую недобросовестно относились к определению сложности объектов. Например, объект по всем показателям относился к IV категории сложности, но с помощью различных ухищрений заказчиков и проектантов его "маскировали" под III категорию сложности. Такие уловки позволяли нерадивым застройщикам обходиться без получения разрешения на выполнение строительных работ, а только представлять и регистрировать декларацию о начале работ. Это давало возможность приступать к работам, не имея полного комплекта необходимых для строительства документов, а просто указав их названия в декларации о начале работ. На практике было немало случаев (называемых в простонародье "строительными аферами"), когда полный комплект документов так и не оформляли до завершения строительства, что не позволяло ввести объект в эксплуатацию надлежащим образом. Вполне естественно, что в подобных ситуациях возникали проблемы и претензии у инвесторов строительства (особенно жилого), которые часто переадресовывались к государству с требованием усилить контроль в градостроительной деятельности. Кроме того, подобные случаи снижали доверие не только к органам контроля, но и ко всей строительной отрасли в целом. Инвесторы всегда хотят иметь уверенность в том, что они вкладывают деньги в действительно законную стройку со всеми необходимыми разрешениями. Новая система классификации объектов позволяет наладить более эффективный контроль за строительством технически сложных объектов среднего и значительного класса последствий (бывшая III – V категории сложности) на этапе подготовки – сбора и оформления необходимых документов. С моей точки зрения, это является разумным компромиссом между дерегуляцией в строительстве и социальным запросом на безопасность объектов. К тому же большая часть объектов с незначительным классом последствий (в основном, частные дома, хозяйственные постройки, дачные домики) будет строиться по упрощенной разрешительной системе. По оценке Госархстройинспекции, они составляют более 80 % от общего количества застроек в Украине. Изменения в полномочиях в части разрешительных документов Распределение полномочий в части предоставления (получения, регистрации), отказов в выдаче или аннулировании (отмене) документов, которые дают право на выполнение подготовительных и строительных работ, принятия в эксплуатацию законченных строительством объектов теперь будет незначительно изменено в связи с привязкой к численности населения соответствующего населенного пункта и статусу административного центра области. Так, исполнительные органы по вопросам государственного архитектурно-строительного контроля (органы ГАСК) сельских/поселковых/городских советов населенных пунктов с численностью населения до 50 тысяч жителей и не административные центры областей получат полномочия в отношении объектов с незначительными последствиями, расположенных в пределах соответствующих населенных пунктов. Таким образом, часть горсоветов населенных пунктов с численностью населения до 50 тысяч жителей утратит полномочия в части объектов бывшей IV категории сложности, которые перейдут к Госархстройинспекции. В остальном – изменений фактически нет. Государственный архитектурно-строительный контроль и надзор Закон четко разделил и определил суть государственного архитектурно-строительного контроля и надзора. Так, государственный архитектурно-строительный контроль осуществляется на объектах строительства в порядке проведения плановых и внеплановых проверок по территориальному принципу. Основаниями для проведения внеплановой проверки являются: 1) письменное заявление субъекта градостроения о проведении проверки; 2) необходимость проверки достоверности данных, приведенных в уведомлении о начале выполнения подготовительных или строительных работ, декларации о готовности объекта к эксплуатации, в течение трех месяцев со дня представления таких документов; 3) выявление факта самовольного строительства объекта; 4) проверка выполнения субъектом градостроения требований предписаний органов ГАСК; 5) требование главного инспектора строительного надзора центрального органа ГАСК о проведении проверки при наличии оснований, предусмотренных законом; 6) обращения физических или юридических лиц о нарушении субъектом градостроения требований законодательства в сфере градостроительной деятельности; 7) требование правоохранительных органов о проведении проверки. Перечень полномочий должностных лиц ГАСК заметно расширен и уточнен. Так, в случае выявления нарушения требований законодательства, градостроительных условий и ограничений, утвержденного проекта или строительного паспорта застройки земельного участка должностные лица органов ГАСК имеют право, в частности, выдавать обязательные для выполнения предписания относительно: – устранения нарушения требований законодательства; – приостановления подготовительных и строительных работ. Государственный архитектурно-строительный надзор будет осуществляться за соблюдением законодательства местными органами ГАСК при реализации ими государственного архитектурно-строительного контроля. Претворяться в жизнь он будет через главных инспекторов строительного надзора Госархстройинспекции в порядке, который предстоит установить КМУ. Получение градостроительных ограничений и условий Законом упорядочена процедура выдачи градостроительных условий и ограничений (ГУО) на местном уровне. Непосредственно в тексте закона устанавливается исчерпывающий перечень необходимых документов, а также четкий перечень оснований для отказов застройщикам, что существенно ограничивает простор для злоупотреблений со стороны чиновников. Также на законодательном уровне определен исчерпывающий перечень требований (информации), которая содержится в ГУО, установлен предельный срок их выдачи, порядок учета и раскрытия (публикации) для свободного доступа на безоплатной основе. ГУО, как и ранее, действуют до завершения строительства объекта независимо от смены заказчика. Вносить изменения в ГУО может орган, который их выдал, и только в трех случаях: по заявлению заказчика, во исполнение предписания главного инспектора строительного надзора Госархстройинспекции или по решению суда. Отмена ГУО возможна на добровольной основе (по заявлению заказчика), либо по предписанию главного инспектора строительного надзора Госархстройинспекции или суда. В двух последних случаях Законом предусмотрена ответственность должностных лиц, выдавших ГУО. Но ответственность эта больше не конкретизирована, поскольку одновременно соответствующие санкции были удалены из Закона Украины "Об ответственности за правонарушение в сфере градостроительной деятельности" (что, с точки зрения юридической техники, наверное, правильно), но в подходящий закон (например, Кодекс Украины об административных правонарушениях) они не попали. Экспертиза проектов строительства В части экспертизы проектов строительства произошло определенное ужесточение требований, и теперь от экспертизы однозначно освобождаются только проекты строительства объектов с незначительными последствиями (бывшие I и II категории сложности), а объекты бывшей III категории сложности такой привилегии уже лишены. При этом (видимо, в качестве балансировки) смягчены требования к экспертизе и экспертам проектов строительства объектов, которые сооружаются за бюджетные средства: теперь это не обязательно должна быть государственная экспертная организация, а повышенные требования предъявляются только к объектам со значительными последствиями (вывели из-под экспертизы объекты бывшей IV категории сложности). Выполнение подготовительных и строительных работ на основании уведомления В целом, начало выполнения подготовительных и строительных работ возможно на основании уведомления о начале выполнения подготовительных работ, уведомления о начале выполнения строительных работ или полученного разрешения на выполнение строительных работ. По объектам с незначительными последствиями работы можно начинать на основании соответствующего уведомления органа ГАСК. Закон уже не дает возможности органам ГАСК препятствовать началу работ на основании формальных придирок к уведомлению, как это ранее они могли делать с декларациями о начале выполнения работ или подготовительных работ. При этом заказчик обязан в течение трех рабочих дней сообщать о самостоятельно выявленных ошибках (описках, печатной, грамматической, арифметической ошибках) в поданном сообщении. Как и ранее, право на выполнение подготовительных/строительных работ может быть отменено органом ГАСК по заявлению заказчика в случае получения сведений о ликвидации заказчика – юридического лица, а также при выявлении нарушений законодательства или неисполнения требований предписаний должностных лиц органов ГАСК. Интересно то, что из перечня оснований отмены исключены случаи смерти физического лица – заказчика или признания его безвестно отсутствующим, а также прекращение предпринимательской деятельности физического лица – предпринимателя (заказчика). И если с ФЛП все более-менее понятно, то что делать в случае смерти физического лица – не до конца ясно. Выполнение работ на основании разрешения В этой части изменения минимальные (не считая трансформации категорий сложности в классы последствий) и касаются, главным образом, вопросов аннулирования разрешений на выполнение строительных работ. Так, перечень оснований для аннулирования, кроме вышеперечисленных для уведомлений, предоставляет такое право органу ГАСК в случае отмены градостроительных условий и ограничений, а также в случае систематического (два и более раза подряд) препятствования проведению проверки должностными лицами органа ГАСК. Ранее за препятствование проверке право аннулировать разрешение имел административный суд, а не ГАСК (и то лишь в случае его совершения в течение года после наложения штрафа за недопуск). Судьба зарегистрированных деклараций и основания для их аннулирования Согласно Заключительным и переходным положениям Закона зарегистрированные до 10.06.2017 декларации о начале выполнения подготовительных и/или строительных работ действуют до завершения строительства объектов, кроме случаев их отмены соответствующим органом ГАСК, в порядке, установленном КМУ. Это следующие случаи: 1) заявление заказчика об отмене декларации; 2) наличие сведений о прекращении юридического лица или предпринимательской деятельности ФЛП (заказчика), смерти или признания без вести отсутствующим физического лица – заказчика; 3) выявление в ходе проверки нарушений требований законодательства или невыполнения требований предписаний должностных лиц органов ГАСК; 4) отмена градостроительных условий и ограничений; 5) выявление органом ГАСК факта предоставления недостоверных данных в зарегистрированной декларации, которые являются основанием считать объект самовольным строительством (отсутствие прав на землю под строительством или документа, который дает право выполнять строительные работы, отсутствие надлежаще утвержденного проекта либо строительного паспорта); 6) выполнение строительных работ, не предусмотренных декларацией. Ответственность за нарушения Изменения в ответственности за нарушения законодательства всегда пользовались повышенным интересом у "широких масс", вовлеченных в строительный процесс. Итак, что же изменится со вступлением в силу Закона. Ответственность должностных и физических лиц Значительно (в среднем, в 2 – 5 раз) усилена ответственность за нарушения требований законодательства, строительных норм, стандартов и правил во время строительства, за эксплуатацию объектов строительства, не принятых в эксплуатацию, указание недостоверных данных в акте готовности объекта к эксплуатации, необеспечение авторского и технического надзора, непредставление или несвоевременное представление заказчиком информации о передаче права на строительство другому заказчику, изменении генерального подрядчика или подрядчика, ответственных за авторский и технический надзор, ответственных исполнителей работ, а также о корректировке проектной документации, если представление такой информации является обязательным. Также увеличены штрафы, налагаемые на главного архитектора проекта, главного инженера проекта, эксперта, других ответственных исполнителей работ за нарушения законодательства, градостроительной документации, строительных норм, стандартов и правил, занижение класса последствий (ответственности) объекта строительства, допущенные в проектной документации. Серьезно (в 2 – 3,3 раза) увеличены штрафы, налагаемые на чиновников, за нарушение ими сроков выдачи исходных данных на строительство, требование "лишних" документов, проволочки с согласованием и/или выдачей разрешительных документов, необоснованные отказы в выдаче/регистрации документов, подтверждающих готовность к эксплуатации завершенных строительством объектов и т. п. В связи с перераспределением контрольных и надзорных полномочий внесены соответствующие изменения и в распределение полномочий по рассмотрению дел об административных правонарушениях в сфере градостроения. Ответственность заказчиков, заказчиков – подрядчиков строительства и подрядчиков Штрафы, налагаемые на заказчиков и заказчиков-подрядчиков за ведение подготовительных и строительных работ без уведомления органа ГАСК, увеличены в 2 – 3,6 раза. Для объектов со средним и значительным классом последствий размер штрафов не увеличен, но в связи с отнесением объектов III категории сложности к среднему классу последствий штрафы в отношении их увеличились более чем в 4 раза. Аналогичная ситуация складывается и со штрафами за эксплуатацию или использование объектов строительства, не принятых в эксплуатацию, а также указание недостоверных данных в декларации о готовности объекта к эксплуатации или в акте готовности объекта к эксплуатации. Незначительно (примерно на 11 %) увеличены штрафы за необеспечение заказчиком осуществления технического или авторского надзора, если такой надзор обязателен по законодательству. Ответственность подрядчиков за выполнение подготовительных и строительных работ без уведомления органа ГАСК увеличена в 2 – 3,3 раза. По несанкционированным работам на объектах со средним и значительным классом последствий размер штрафов не увеличен, но в связи с отнесением объектов III категории сложности к среднему классу последствий штрафы для подрядчиков в отношении их увеличились более чем в 4 раза. Штрафы, налагаемые на субъектов градостроения за невыполнение предписаний органов ГАСК, увеличены в 1,5 – 2,7 раза, а за недопуск к проверке – в 3 раза. Также в 3 раза увеличиваются штрафы и для субъектов градостроения, которые привлекаются к проведению проверок, за предоставление недостоверных или необоснованных выводов по результатам таких проверок. И в заключение – еще пару моментов, заслуживающих внимания Ранее Госархстройинспекция выдавала лицензии на осуществление хозяйственной деятельности по строительству объектов IV и V категорий сложности. В связи с принятием Закона лицензированию подлежит уже хозяйственная деятельность по строительству объектов, которые по классу последствий (ответственности) относятся к объектам со средними и крупными последствиями (что соответствует изменениям в классификации объектов и подходе к разрешительной документации). Новый порядок лицензирования будет определен в соответствующем постановлении Кабинета Министров Украины, лицензии будут выдаваться бессрочно. В Законе снова вернулись к необходимости законодательно определить перечень строительных работ, которые не требуют получения/представления документов на их выполнение и по окончании которых объект не подлежит принятию в эксплуатацию. Этот перечень должен утвердить Кабинет Министров Украины. Исходя из своего опыта и опыта профильных коллег, я расцениваю это как положительный момент. Статья 34 Закона Украины "О регулировании градостроительной деятельности", в которой определены документы, дающие право на ведение строительных работ, также дополнена положением, которое прямо называет выполнение работы без таких документов самовольным строительством со ссылкой на последствия, предусмотренные законом. Это небольшое и достаточно очевидное законодательное уточнение, на мой взгляд, может испортить нервы многим застройщикам и инвесторам. Станислав Герасименко, глава Комитета по недвижимости и строительству Ассоциации юристов Украины, глава практики недвижимости и строительства ЮФ Eterna Law Добавлено через 2 минуты >>>>>>>>>>>>>>>>>>>>>> desyatka.com.ua/ru/seminari/2017/12december/novie_izmeneniya_pravil_stroitelstva_v_ukraine_v_2018_g.html >>>>>>>>>>>>>>>>>>>>>> www.dabi.gov.ua >>>>>>>>>>>>>>>>>>>>>> Добавлено через 2 минуты search.ligazakon.ua/l_doc2.nsf/link1/T171817.html >>>>>>>>>>>>>>>>>>> Алексей'-вот,читайте обновил) Посилання на коментар Поділитися на інших сайтах More sharing options...
"Diamond servis" Опубліковано: 9 січня 2019 Автор Поділитись Опубліковано: 9 січня 2019 minfin.com.ua/2019/01/08/36288695/ Посилання на коментар Поділитися на інших сайтах More sharing options...
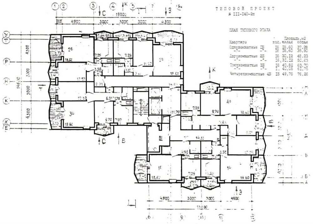
Red DAN Опубліковано: 3 лютого 2019 Поділитись Опубліковано: 3 лютого 2019 Здравствуйте! Более подходящей темы не нашёл, спрошу здесь. Несущая ли стена между комнатой и лоджией в доме проекта 111-140-2П (этих 16-этажек немало в Одессе)? Изучаю возможность ликвидации порога из комнаты на лоджию... Посилання на коментар Поділитися на інших сайтах More sharing options...
"Diamond servis" Опубліковано: 4 лютого 2019 Автор Поділитись Опубліковано: 4 лютого 2019 Здравствуйте! Более подходящей темы не нашёл, спрошу здесь. Несущая ли стена между комнатой и лоджией в доме проекта 111-140-2П (этих 16-этажек немало в Одессе)? Изучаю возможность ликвидации порога из комнаты на лоджию... forumodua.com/showthread.php?t=2891926&page=6& 1 Посилання на коментар Поділитися на інших сайтах More sharing options...
"Diamond servis" Опубліковано: 20 червня 2019 Автор Поділитись Опубліковано: 20 червня 2019 Изучили или выполнили?? Посилання на коментар Поділитися на інших сайтах More sharing options...
"Diamond servis" Опубліковано: 25 червня 2019 Автор Поділитись Опубліковано: 25 червня 2019 Василий,по вашему вопросу- в этой теме всё изложенно! Посилання на коментар Поділитися на інших сайтах More sharing options...
Red DAN Опубліковано: 7 липня 2019 Поділитись Опубліковано: 7 липня 2019 Изучили или выполнили??Выполнили, но не я а родители. А я изучаю теперь, чем это чревато. Посилання на коментар Поділитися на інших сайтах More sharing options...
"Diamond servis" Опубліковано: 8 липня 2019 Автор Поділитись Опубліковано: 8 липня 2019 Выполнили, но не я а родители. А я изучаю теперь, чем это чревато. усиление делали?? Посилання на коментар Поділитися на інших сайтах More sharing options...
Игорь&Ира Опубліковано: 8 липня 2019 Поділитись Опубліковано: 8 липня 2019 усиление делали?? Порог, а не перемичка. Посилання на коментар Поділитися на інших сайтах More sharing options...
"Diamond servis" Опубліковано: 9 липня 2019 Автор Поділитись Опубліковано: 9 липня 2019 Порог, а не перемичка. Вы считаете что пороги не несут в себе существенного?? Поделитесь знанием! Посилання на коментар Поділитися на інших сайтах More sharing options...
Рекомендовані повідомлення
Створіть акаунт або увійдіть у нього для коментування
Ви маєте бути користувачем, щоб залишити коментар
Створити акаунт
Зареєструйтеся для отримання акаунта. Це просто!
Зареєструвати акаунтУвійти
Вже зареєстровані? Увійдіть тут.
Увійти зараз