Перейти до публікації
Пошук в
  • Додатково...
Шукати результати, які містять...
Шукати результати в...

Пара проектов для критики 80кв.м

alzamon

Рекомендовані повідомлення

Добрый день.

Сделал несколько вариантов размещения на зем. участке проекта Z255 a. Вероятно будет с мансардой(угол крыши 35).

 

1 Вариант. Двор большой, гараж отдельно в глуби участка, окна мансарды смотрят на восток и запад, можно любоваться)

смотреть тут: yadi.sk/d/LwN1cLLQ342SZ8

 

2 Вариант. Гараж вместе с домом, в таком варианте размещения гаража будет окно в ванную. окна мансарды так же как и 1 вариант

смотреть тут: yadi.sk/d/q2MPRQX4342To5

 

3 Вариант. Дом повернут фасадом к улице, в чем момент, окна на мансарде смотрят на соседей, а не на запад и восток. (в этом варианте окна в комнаты не возвращал на место как в оригинале)

смотреть тут: yadi.sk/d/2hNMuurA342Vtk

 

Рисовал еще вариант проекта z16 для себя: yadi.sk/i/7PZs51iB342WJB

 

Какие у кого мысли?

Спасибо

Посилання на коментар
Поділитися на інших сайтах

Какие у кого мысли?
Лично я бы не стал делать место для машины (гараж, навес) в глубине участка.

1. Придется выкладывать целую дорогу.

2. А зимой ее еще и чистить.

3. Столько места пропадет зря.

 

Поэтому сделал бы место для стоянки примерно как в варианте 2, только не в виде гаража, а в виде навеса. ИМХО, конечно же.

  • Лайк 1
Посилання на коментар
Поділитися на інших сайтах

Сделал несколько вариантов размещения на зем. участке проекта Z255 a. Вероятно будет с мансардой(угол крыши 35).

1. Добавить террасу или Вы хотите беседку?

2. где лестница;

3. Лучше сделать навес и дом без гаража. Понятное дело варианты с дорогой через весь участок не годятся. Вместо клумб, или игровым зонам, фонатанам, природе посвятить все дороге.=)

  • Лайк 2
Посилання на коментар
Поділитися на інших сайтах

  • 1 рік потому...

Всем привет.

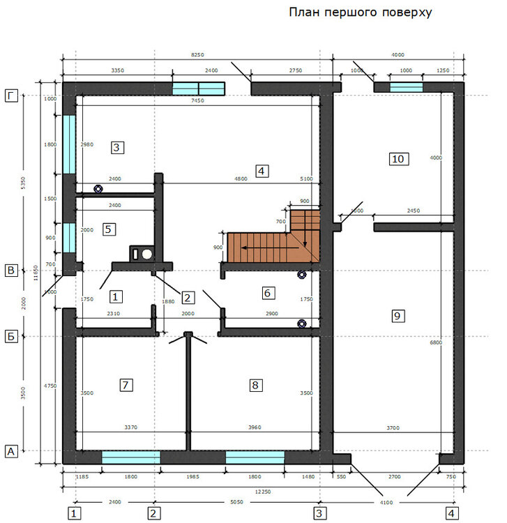
Остановился в итоге на Z255, с лестницой на мансарду от z12.

 

Осенью залили фундамент, раскидали канализацию, и залили черновой пол 10см

2018-02-05_15-46-18.thumb.jpg.fca858faf4b5ba9936b39f70d81dc0fb.jpg

2018-02-05_15-46-52.thumb.jpg.eebdf6e8e75ad3c6787f34d826eb17fb.jpg

2018-02-05_15-47-22.thumb.jpg.800f5cc507ac9515654f749b9bf6ac54.jpg

  • Лайк 1
Посилання на коментар
Поділитися на інших сайтах

Створіть акаунт або увійдіть у нього для коментування

Ви маєте бути користувачем, щоб залишити коментар

Створити акаунт

Зареєструйтеся для отримання акаунта. Це просто!

Зареєструвати акаунт

Увійти

Вже зареєстровані? Увійдіть тут.

Увійти зараз
×
×
  • Створити...