FLUR Опубліковано: 13 січня 2017 Поділитись Опубліковано: 13 січня 2017 Это мой микро домик. Сам выдумывал планировку, сам строил, сам делал ремонт. Обстоятельства сложились так, что вынужден продавать. Дом в полном порядке, никаких дефектов и других косяков нет. Продаю по совокупности личных факторов, главным из которых является невозможность оседлого образа жизни в ближайшей перспективе. Цена 69000у.е. Подробности по ссылке: www.home-sale.top/ 15 Посилання на коментар Поділитися на інших сайтах More sharing options...
irina1969 Опубліковано: 13 січня 2017 Поділитись Опубліковано: 13 січня 2017 Картинка !!!! Удачной продажи 3 Посилання на коментар Поділитися на інших сайтах More sharing options...
URA-YURA Опубліковано: 13 січня 2017 Поділитись Опубліковано: 13 січня 2017 Это мой микро домик. Сам выдумывал планировку, сам строил, сам делал ремонт. Обстоятельства сложились так, что вынужден продавать. Дом в полном порядке, никаких дефектов и других косяков нет. Продаю по совокупности личных факторов, главным из которых является невозможность оседлого образа жизни в ближайшей перспективе. Цена 69000у.е. Подробности по ссылке: www.home-sale.top/ милый домик удачи 3 Посилання на коментар Поділитися на інших сайтах More sharing options...
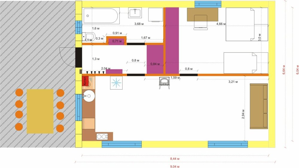
Татьяна5 Опубліковано: 13 січня 2017 Поділитись Опубліковано: 13 січня 2017 оч приятный домик планировку выложить не помешает 3 Посилання на коментар Поділитися на інших сайтах More sharing options...
FLUR Опубліковано: 15 січня 2017 Автор Поділитись Опубліковано: 15 січня 2017 планировку выложить не помешает Да, точно. Спасибо! Посилання на коментар Поділитися на інших сайтах More sharing options...
Серж22 Опубліковано: 15 січня 2017 Поділитись Опубліковано: 15 січня 2017 Не могу знать обстоятельств, но оставили б себе, как дачу, например. А обстоятельства могут и поменяться. 1 Посилання на коментар Поділитися на інших сайтах More sharing options...
maroha Опубліковано: 15 січня 2017 Поділитись Опубліковано: 15 січня 2017 лишний ноль в цене Посилання на коментар Поділитися на інших сайтах More sharing options...
Реалист Опубліковано: 15 січня 2017 Поділитись Опубліковано: 15 січня 2017 (змінено) лишний ноль в цене Может не целый ноль, но все же, под Киевом дома под 100 кв.м. на 12 сотках в такую цену продаются. Реалии сегодня таковы, что дом, построенный "для себя" даже по себестоимости продать не удастся. Поэтому ценовую политику нужно пересматривать... Змінено 15 січня 2017 користувачем Реалист Посилання на коментар Поділитися на інших сайтах More sharing options...
maroha Опубліковано: 15 січня 2017 Поділитись Опубліковано: 15 січня 2017 Может не целый ноль, но все же под Киевом дома под 100 кв.м. на 12 сотках в такую цену продаются. Реалии сегодня таковы, что дом, построенный "для себя" даже по себестоимости продать не удастся. Поэтому ценовую политику нужно пересматривать... там 50м2!!!!!! без газа! с мать его газоблока! в далеком селе! и цена в почти 1500у.е за м2??? www.olx.ua/obyavlenie/prodam-budinok-v-s-shershnvka-IDmZEuY.html#a3da8ab515 вот аналоги домиков в полтавской области... Посилання на коментар Поділитися на інших сайтах More sharing options...
ребята Опубліковано: 15 січня 2017 Поділитись Опубліковано: 15 січня 2017 там 50м2!!!!!! без газа! с мать его газоблока! в далеком селе! и цена в почти 1500у.е за м2??? ну цена за метр в маленьких квартирах и домах обьективно выше, чем в больших, при прочих равных и село не далекое - ближайшие окрестности Полтавы, областного центра имхо если б такой домик продавался в 15-20 километровой зоне от Киева, цена была б рыночной. даже более чем - как дачка или дом для небольшой семьи очень даже неплохо а для Полтавы, наверное, все-таки многовато. если там на днях не открыли пару месторождений нефти или золота сам домик зачетный. меняет парадигму каким должен быть загородный дом. каждый сантиметр используется, каждая мелочь продумана, комфортно, функционально, красиво 3 Посилання на коментар Поділитися на інших сайтах More sharing options...
maroha Опубліковано: 15 січня 2017 Поділитись Опубліковано: 15 січня 2017 ну цена за метр в маленьких квартирах и домах обьективно выше, чем в больших, при прочих равных и село не далекое - ближайшие окрестности Полтавы, областного центра имхо если б такой домик продавался в 15-20 километровой зоне от Киева, цена была б рыночной. даже более чем - как дачка или дом для небольшой семьи очень даже неплохо а для Полтавы, наверное, все-таки многовато. если там на днях не открыли пару месторождений нефти или золота сам домик зачетный. меняет парадигму каким должен быть загородный дом. каждый сантиметр используется, каждая мелочь продумана, комфортно, функционально, красиво такой домик возле Киева стоит 20000-25000 потолок Посилання на коментар Поділитися на інших сайтах More sharing options...
bambino Опубліковано: 15 січня 2017 Поділитись Опубліковано: 15 січня 2017 такой домик возле Киева стоит 20000-25000 потолок Насыпайте. 5 Посилання на коментар Поділитися на інших сайтах More sharing options...
Specu Опубліковано: 16 січня 2017 Поділитись Опубліковано: 16 січня 2017 Насыпайте. Сено к корове не ходит Посилання на коментар Поділитися на інших сайтах More sharing options...
bambino Опубліковано: 16 січня 2017 Поділитись Опубліковано: 16 січня 2017 Сено к корове не ходит За пару тысяч денег - очень даже ходит. И где же по 22 - 27? Посилання на коментар Поділитися на інших сайтах More sharing options...
maroha Опубліковано: 16 січня 2017 Поділитись Опубліковано: 16 січня 2017 Насыпайте. www.stroimdom.com.ua/forum/showthread.php?t=205373 Посилання на коментар Поділитися на інших сайтах More sharing options...
Татьяна5 Опубліковано: 16 січня 2017 Поділитись Опубліковано: 16 січня 2017 www.stroimdom.com.ua/forum/showthread.php?t=205373 Несколько разные вещи под разные задачи, разные участки земли, да и не 25к . Домик у ТС зачетный, не нужно кидаться говняшками там, где повода для кидания говняшками нет. Жизнь есть не только под Киевом, Полтава - живой город, другое дело, что целевая группа у ТС скорее региональная и реклама домика будет эффективной по региональным каналам, целевым, но с этим ТС, уверена, разберётся и без наших ЦУ 2 Посилання на коментар Поділитися на інших сайтах More sharing options...
maroha Опубліковано: 16 січня 2017 Поділитись Опубліковано: 16 січня 2017 Несколько разные вещи под разные задачи, разные участки земли, да и не 25к . Домик у ТС зачетный, не нужно кидаться говняшками там, где повода для кидания говняшками нет. Жизнь есть не только под Киевом, Полтава - живой город, другое дело, что целевая группа у ТС скорее региональная и реклама домика будет эффективной по региональным каналам, целевым, но с этим ТС, уверена, разберётся и без наших ЦУ 50000-70000 баксов в Полтаве это котедж 300м2 недалеко от центра города! www.olx.ua/obyavlenie/prodam-dom-u-ozera-IDbELO9.html#1348acbc62 а здесь домик меньше однушки в новострое, без нормального отопления, с говняного газоблока... Посилання на коментар Поділитися на інших сайтах More sharing options...
Татьяна5 Опубліковано: 16 січня 2017 Поділитись Опубліковано: 16 січня 2017 70000 баксов в Полтаве это котедж от 300м2 в центре города! а здесь домик меньше однушки в новострое, без нормального отопления, с говняного газоблока... Понятно. Не понимаете, о чем пишите . Хорошего дня. 6 Посилання на коментар Поділитися на інших сайтах More sharing options...
maroha Опубліковано: 16 січня 2017 Поділитись Опубліковано: 16 січня 2017 Понятно. Не понимаете, о чем пишите . Хорошего дня. я с Полтавы!!! и тем более я сбросил вариант котеджа больше 300м2 за 50000 баксов Посилання на коментар Поділитися на інших сайтах More sharing options...
Volhv Опубліковано: 16 січня 2017 Поділитись Опубліковано: 16 січня 2017 Согласен на все 100, прилезет такое опудало и начинает обсирать все в подряд даже не понимая о чем идет речь - главное это чтоб метров было побольше, а как оно построено с душей или без то такое (( 4 Посилання на коментар Поділитися на інших сайтах More sharing options...
maroha Опубліковано: 16 січня 2017 Поділитись Опубліковано: 16 січня 2017 Согласен на все 100, прилезет такое опудало и начинает обсирать все в подряд даже не понимая о чем идет речь - главное это чтоб метров было побольше, а как оно построено с душей или без то такое (( квартира 70м2 с полным фаршем в самой Полтаве за 20000 с торгом www.olx.ua/obyavlenie/3h-komnatnaya-kvartira-posle-remonta-srochnaya-prodazha-IDpH7Bq.html#e7a0e29043;promoted вы курс бакса видели??? Посилання на коментар Поділитися на інших сайтах More sharing options...
Татьяна5 Опубліковано: 16 січня 2017 Поділитись Опубліковано: 16 січня 2017 50000-70000 баксов в Полтаве это котедж 300м2 недалеко от центра города! www.olx.ua/obyavlenie/prodam-dom-u-ozera-IDbELO9.html#1348acbc62 а здесь домик меньше однушки в новострое, без нормального отопления, с говняного газоблока... Чудесно. Только это аж никак не центр Полтавы и слово недалеко так же оч подходит, это старое и холодное, в советском стиле, его можно снести и построить себе комфортный дом, инвестировать в утепление такого чуда смысла нет, а топить 367 м2 холодного монстра сейчас дурных нет. Задачи бывают разными, не всем надо толще и больше 5 Посилання на коментар Поділитися на інших сайтах More sharing options...
maroha Опубліковано: 16 січня 2017 Поділитись Опубліковано: 16 січня 2017 Чудесно. Только это аж никак не центр Полтавы и слово недалеко так же оч подходит, это старое и холодное, в советском стиле, его можно снести и построить себе комфортный дом, инвестировать в утепление такого чуда смысла нет, а топить 367 м2 холодного монстра сейчас дурных нет. Задачи бывают разными, не всем надо толще и больше давай по другому? сколь надо денег что бы построить домик 50м2 с газоблока? с простеньким ремонтом 10000 зелени хватит? даже под Киевом... тем более что в глухом селе полтавской области нет смысла жить и строить! Посилання на коментар Поділитися на інших сайтах More sharing options...
Татьяна5 Опубліковано: 16 січня 2017 Поділитись Опубліковано: 16 січня 2017 квартира 70м2 с полным фаршем в самой Полтаве за 20000 с торгом www.olx.ua/obyavlenie/3h-komnatnaya-kvartira-posle-remonta-srochnaya-prodazha-IDpH7Bq.html#e7a0e29043;promoted вы курс бакса видели??? Вы пробовали купить сейчас БМВ? Удивитесь - пусто, все выкуплено под нолик. Чего Вас на тряпки рвет? Зависть? Удивление? Ненависть к тому, кто посмел построить хороший и приятный дом и его продает? Что в Вашей жизни изменится от того, продаст ТС свой дом или нет? 3 Посилання на коментар Поділитися на інших сайтах More sharing options...
bambino Опубліковано: 16 січня 2017 Поділитись Опубліковано: 16 січня 2017 Чудесно. Только это аж никак не центр Полтавы... Таня, не отвлекайте человека. Я тут томлюсь в ожидании маленького недорогого уютного современного домика вблизи Киева. А лучше двух. 1 Посилання на коментар Поділитися на інших сайтах More sharing options...
Рекомендовані повідомлення