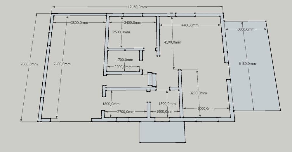
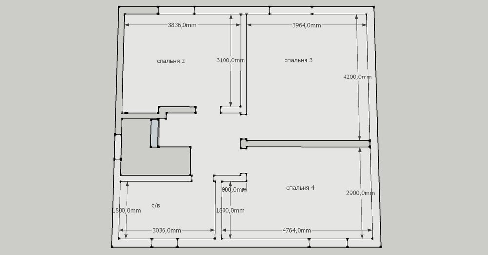
IBAH Опубліковано: 8 квітня 2017 Поділитись Опубліковано: 8 квітня 2017 Новий двоповерховий каркасний будинок в котеджному містечку "Рябінки" села Малютянка. 22 км від Одеської площі, 23 км від Кільцевої дороги, якщо їхати через Вишневе, Боярку. Котеджне містечко огороджене повністю, шлагбаум, цілодобова охорона, вуличне освітлення, відеонагляд. 70% масиву побудовано, лише нові будинки. Чудові сусіди - молоді сім'ї. Ліс та озера поруч. Початок будівництва серпень 2016-го року, закінчення - квітень 2017. Ділянка 6,11 соток, фасад 22,5м. Будинок два поверхи, близько 133м2 + гараж 31м2 + тераса 20м2 + ганок 4м2. Стеля першого поверху 3м, другого 2,75м. Чотири окремих спальні, два сан.вузли, вітальня, кухня, котельня, тамбур, невеличка кладова. Фундамент: двошарово армована плита 200мм з ребрами 400мм. Цоколь утеплений 50мм ЕППС, оздоблення - мозаїчна штукатурка. Мощення: 160м2 тротуарна плитка виробництва золотий мандарин. Огородження класичне для данного масиву: бетонні стовпи, перша секція бетонна, решта суха стругана дошка з покритям в три шари. Стіни: каркасні - суха стругана соснова дошка + осб егер 10мм, утеплення - зовнішні 150мм утеплювача, внутрішні 100мм. Утеплювач - мінеральна вата Техноніколь 35кг/м3. Вітробар'єр Юта, паробар'єр зовнішніх стін Юта 110, внітрішніх - стротекс 110. Проклейка стиків К-2 Юта. Фасад: голандська композитна дошка Cedral 10*190*3600 колір С-31, на вуглах алюміневі планки Cedral колір С-31. Налічники - липа покрита Адлером - серія матеріалів для фарбування вікон, із трьох компонентів. Перекриття між поверхами - сухі стругані соснові балки 50*200 з кроком 416мм, утеплення-звукоізоляція - 200мм мінеральна вата Техноніколь 35кг/м3.. Перекриття другого поверху - сухі стругані соснові балки 50*200 з кроком 640мм. Утеплення - 300мм мінеральна вата Техноніколь 35кг/м3 Покрівля: двошарова ламінована бітумна черепиця Shinglas Ранчо коричневый, підкладний килим андерейп, осб егер 10мм. Вікна: рехау евро 70. Підлога першого поверху утепленна 100мм ЕППС, теплі поли, стяжки 80мм. Підлога гаража і тераси: промислова підлога з наповнювачем. Підлога ганку - керамічна плитка. Підлога другого поверху(крім санвузла): дошка підлоги 35мм по балкам через 416мм. В сан вузлі монолітна плита з теплою підлогою Оздоблення стін будинку: гіпсокартон по профілям. Оздоблення стін гаража та кладової: листи осб. Електрика на дом 12,8квт, 3 фази. Двохзонний тариф. Прямий договір з РЕСом. Зроблена вся розводка електрики, змонтовано щити. Розведена сигналізація, зовнішнє освітлення, вода та каналізація. Зроблено заземлення. Заведено оптичний кабель для інтернету. Встановлені кронштейни для двох супутникових антен і підведені до них кабелі. Прокладені магістралі під кондиціонери, встановлено кронштейни для чотирьох зовнішніх блоків. Опалення теплі поли та батареї, електрокотел Proterm скат 9квт, змішувальний вузол, термостатичні головки, вся сантехніка - Італія. Своя скважина 42м, насос Водолій, гідробак Італія 100л. Автономна каналізація на два колодця. Підшива будинку софіт Бріза, дощовідведення Профіл. Підшива тераси та ганку - соснова дошка. Гаражні ворота Алютех з потолочним приводом. Відкатні ворота з приводом Калітка з електрозамком Вартість 84 000 у.о. Телефон для зв'язку 067 769 30 12 Іван. Будівницво виконувалося силами власної бригади та декількох підрядних організацій. Окрема подяка за допомогу в реалізації проекту: - Татьяна 5 - за постійну допомогу та рекомендації; - Татьяна ST - за своєчасну поставку якісних матеріалів; 11 Посилання на коментар Поділитися на інших сайтах More sharing options...
Консильери Опубліковано: 8 квітня 2017 Поділитись Опубліковано: 8 квітня 2017 Блин, жирно! В копилку толковых застройщиков прибыло! Цена вообще шикарная! Единственное, чисто на мой вкус, не хватает шпросов в стеклопакетах. 2 Посилання на коментар Поділитися на інших сайтах More sharing options...
Круми Опубліковано: 22 квітня 2017 Поділитись Опубліковано: 22 квітня 2017 Видел этот дом в процессе стройки ,в доме все сделано очень качественно и грамотно , учитывались все мелочи , в живую дом смотрится еще лучше чем на фото . Ивана знаю давно это порядочный , честный человек и подход у него к стройке (качество на первом месте) . Я думаю что люди которые купят этот дом по достоинству оценят тот труд который был вложен . Желаю быстрой продажи , хороших клиентов . 1 Посилання на коментар Поділитися на інших сайтах More sharing options...
wipe Опубліковано: 23 квітня 2017 Поділитись Опубліковано: 23 квітня 2017 Дом в целом не красивый, безвкусный, штамповка, а белая подшивка крыши просто бесит0 но она дешевая, поэтому и понятно почему такая. Сейчас за такую цену можно построить дом под себя, с планировкой под себя, и декором по душе. 1 Посилання на коментар Поділитися на інших сайтах More sharing options...
sly Опубліковано: 23 квітня 2017 Поділитись Опубліковано: 23 квітня 2017 Дом в целом не красивый, безвкусный, штамповка Постройте и покажите красивый, со вкусом и не штамповку. 6 Посилання на коментар Поділитися на інших сайтах More sharing options...
wipe Опубліковано: 23 квітня 2017 Поділитись Опубліковано: 23 квітня 2017 Постройте и покажите красивый, со вкусом и не штамповку. пффф, за 15 лет немало построил, я всего то высказал свое мнение, соотношение цена и то, что я вижу, это просто обычная, ничем не примечательная коробка. Что то выкладывать и доказывать и на не на, если вы не понимаете что такое красивый дом, то чему то учить нет желания. Посилання на коментар Поділитися на інших сайтах More sharing options...
Vlada2016 Опубліковано: 23 квітня 2017 Поділитись Опубліковано: 23 квітня 2017 Дом в целом не красивый, безвкусный, штамповка, а белая подшивка крыши просто бесит0 но она дешевая, поэтому и понятно почему такая. Нормальный стильный современный дом в теплых тонах, все по цветам выдержано и без всяких излишеств, летом добавиться зелень - будет вообще куколкой смотреться. Я бы назвала его "Солнечный домик". Любителям стиля аля-Санта-Барбара конечно такой дом не понравится. 1 Посилання на коментар Поділитися на інших сайтах More sharing options...
IBAH Опубліковано: 24 квітня 2017 Автор Поділитись Опубліковано: 24 квітня 2017 Дом в целом не красивый, безвкусный, штамповка Ну тут как говорится на вкус и цвет... Ваше мнение, немного резковато высказанное, но оно Ваше. а белая подшивка крыши просто бесит Можно опять же сказать Ваше мнение, но интересно стало - а какой цвет Вы там видите? Я даже представить никакого другого не могу. но она дешевая, поэтому и понятно почему такая. Дешевая, возможно. Хотя со стороны цены этот вопрос и слабо рассматривался, в основном оптимальность, но опять же вопрос: альтернатива? Дерево? Возможно, но за ним нужен уход, и лазить на высоту второго этажа для его обслуживания тот ещё квест. Ну и по цене - дерево, думаю примерно в ту же цену выйдет. Именно из-за ухода за деревом, фасад выполнен из композитной доски, хотя она дороже в несколько раз. Метал? - мне не нравится в этом узле, и есть переживание за достаточную вентиляцию подкровельного пространства. Сейчас за такую цену можно построить дом под себя, с планировкой под себя, и декором по душе. В это я поверю только если дом строить будет лично себе опытный прораб или застройщик. Который прошел по всем граблям не один раз, имеет большое количество своего инструмента, бытовку для строителей, друзей проектировщиков(хотя чего душой кривить, многие уже выходя из опыта - сами выполняют их функции, просто анализируя предыдущие проекты), контакты проверенных годами поставщиков, и самое главное - строителей. Тем более сейчас... Цены на материалы, в сравнении с прошлым годом, ой как не радуют... 8 Посилання на коментар Поділитися на інших сайтах More sharing options...
Lexx3643 Опубліковано: 4 травня 2017 Поділитись Опубліковано: 4 травня 2017 Ивана знаю давно это порядочный , честный человек и подход у него к стройке (качество на первом месте) Подписываюсь под каждым словом. Ваня строил мне дом на тех же Рябинках, много чего делал у меня на другом доме и квартире. Дело свое знает на 100%. Я думаю что люди которые купят этот дом по достоинству оценят тот труд который был вложен . Я в этом уверен. 1 Посилання на коментар Поділитися на інших сайтах More sharing options...
Creative_dnepr Опубліковано: 5 травня 2017 Поділитись Опубліковано: 5 травня 2017 пффф, за 15 лет немало построил, я всего то высказал свое мнение, соотношение цена и то, что я вижу, это просто обычная, ничем не примечательная коробка. Что то выкладывать и доказывать и на не на, если вы не понимаете что такое красивый дом, то чему то учить нет желания. за 15 лет немало построил "под себя" - видимо очередной конкурент "всплыло".... Думаю Вы бы "закончились" на качестве хотя бы ворот этого дома.. Вернее не думаю, а даже уверен... Посилання на коментар Поділитися на інших сайтах More sharing options...
IBAH Опубліковано: 21 травня 2017 Автор Поділитись Опубліковано: 21 травня 2017 ще декілька фото: 4 Посилання на коментар Поділитися на інших сайтах More sharing options...
Консильери Опубліковано: 31 травня 2017 Поділитись Опубліковано: 31 травня 2017 Как успехи? Еще раз выскажу свое мнение - дом шикарный при, на мой взгляд, очень заниженной цене! 1 Посилання на коментар Поділитися на інших сайтах More sharing options...
IBAH Опубліковано: 9 червня 2017 Автор Поділитись Опубліковано: 9 червня 2017 Как успехи? Работы по дому уже месяца два как закончены. Сейчас занимаемся вторым, думаю месяца два и так же выставим. Там подобный по размерам дом, участок на сотку больше, фасад - виниловый сайдинг, утепление стен 200мм. На финише будет +- такая же комплектация, как и в этом. 2 Посилання на коментар Поділитися на інших сайтах More sharing options...
Татьяна_ST Опубліковано: 3 липня 2017 Поділитись Опубліковано: 3 липня 2017 Зашла на строидом , а тут така краса !!!! Очень гарний домик получился у вас. у Cedral, необычный цвет . Зная сколько , Иван образцов пересмотрел, по объектам поездил ,что бы посмотреть, как смотрится материал на "живых домах", все стыки и соединения пересмотрел и перещупал, разные виды фасада на «зуб попробовал» , пока на Cedral остановился . Глаз радуется. 1 Посилання на коментар Поділитися на інших сайтах More sharing options...
tyrd Опубліковано: 3 липня 2017 Поділитись Опубліковано: 3 липня 2017 По фото вроде так земли много и деревья взрослые? Или то соседний участок, если да то есть ли там возможность расширить участок? Посилання на коментар Поділитися на інших сайтах More sharing options...
IBAH Опубліковано: 4 липня 2017 Автор Поділитись Опубліковано: 4 липня 2017 земли немного - 6,11соток. Немного взрослых деревьев есть. Соседний участок продан примерно в тоже время что и создана тема. Возможно ли его выкупить - я бы поинтересовался у Татьяны5, захотят ли новые покупатели с ним растаться или уступить часть. Там 12 соток. Посилання на коментар Поділитися на інших сайтах More sharing options...
w23e Опубліковано: 12 липня 2017 Поділитись Опубліковано: 12 липня 2017 Отличный дом. Если устраивает локация - обязательно смотрите! 2 Посилання на коментар Поділитися на інших сайтах More sharing options...
Рекомендовані повідомлення
Створіть акаунт або увійдіть у нього для коментування
Ви маєте бути користувачем, щоб залишити коментар
Створити акаунт
Зареєструйтеся для отримання акаунта. Це просто!
Зареєструвати акаунтУвійти
Вже зареєстровані? Увійдіть тут.
Увійти зараз