xPavelx Опубліковано: 14 квітня 2017 Поділитись Опубліковано: 14 квітня 2017 Помогите выбрать перекрытие для одноэтажного газобетонного дома. Дом размером примерно 15*20 с холодным чердаком. Изначально по проекту были плиты перекрытия. Осенью прошлого года отправлял проект на оценку в несколько фирм. Выбрал самую полную и адекватную смету и проссумировал те работы и материалы, которые на мой взгляд относятся к перекрытиям и получилось ~17 000 работы и 93 634 материалы (см Смета-Плиты). Судя по проекту нужно смонтировать 35 плит. Но там не учтена аренда крана, стоимость утепления и наверное еще что-то. Ну и цены прошлого года Прораб убедил меня что для одноэтажного дома плиты совершенно не нужны и намного дешевле будет сделать перекрытия по деревянным балкам. На что я согласился, он оценил и я прослезился Суммарно перекрытия по деревянным балкам + утеплитель вышли 55450 грн работы и 164702 материалы + доставка. Итого 231452 (см Смета перекрытия балки) Конечно тут уже включена стоимость утеплителя. Но все же я как то думал что это будет все таки дешевле. Сколько читал статей, то пишут что по балкам самое дешевое. У меня же пока получается наоборот. Какая из смет более адекватная ? Я в сомнениях толи по плитам смета занижена (сколько еще может уйти на утепление ??), толи по балкам завышена. Или по балкам получается дороже чем по плитам ? На всякий случай загружаю план перекрытий по деревянным балкам и план раскладки плитСмета-Плиты.xlsсмета перекрытие балки.xlsар-5.pdf Посилання на коментар Поділитися на інших сайтах More sharing options...
xPavelx Опубліковано: 15 квітня 2017 Автор Поділитись Опубліковано: 15 квітня 2017 пересчитал сам плиты. Получается следующее стоимость плит 90 000 доставка 10 000 (65 тонн) кран 10 000 (2 дня) работа по монтажу 20 000 итого 130 000 голые перекрытия плитами. Какие работы/затраты не учел по плитам перекрытия ? убрал утепление из сметы по деревянным балкам. получилось работа + материал 120 000 Все таки перекрытия по балкам получается немного дешевле, но не на столько как хо елось бы Если говорить дальше про утепление. То тут наверное тоже проще делать по балкам ? обрешетка с двух сторон и утеплитель между балок и все. утепление по плитам наверное сложнее и дороже выйдет. Если учесть что утеплителя нужно 30см. то нужно брус высотой 30см укладывать на плиты и уже туда набивать утеплитель и закрывать обрешеткой сверху. Посилання на коментар Поділитися на інших сайтах More sharing options...
vadimka.litvinov Опубліковано: 16 квітня 2017 Поділитись Опубліковано: 16 квітня 2017 По дереву - явно дофига... У меня перекрытие 8х10 м, высотой 200 мм получилось примерно так по основным расходам: Брус 100х200 - 17000 Утеплитель - 7000 (два слоя по 100 мм) Укладка бруса - 5000 Укладка ваты - бесплатно (делал сам, работа элементарная) Обработка бруса - 1000-1500 на химию Уголки - 1500 Итого 34000, ну еще плюс обрешетка снизу под балками, чтобы вату было на что уложить. Масштабируйте до своей площади и толщины утеплителя, и получите реальную цену. Посилання на коментар Поділитися на інших сайтах More sharing options...
xPavelx Опубліковано: 17 квітня 2017 Автор Поділитись Опубліковано: 17 квітня 2017 а как давно вы делали перекрытия ? в этом сезоне цены на материалы поднялись на 25-30% Посилання на коментар Поділитися на інших сайтах More sharing options...
Технология Строительства Опубліковано: 17 квітня 2017 Поділитись Опубліковано: 17 квітня 2017 утепление по плитам наверное сложнее и дороже выйдет. Для какого помещения чердак, плоская кровля? Так же стоимость дерева завышенная на 1000 грн/м3 - минимум. Я заказывал позавчера брус 200х50х6000 - 2800 грн/м3. Потом стоимость монтажа плит так же завышенная. Монтаж панели стоит - 250 грн/шт + замоноличивание монолитных участков - 800 грн/м3. То что Вы сделали по работам это просто раздули! Посчитайте по кубам монолитные участки + к-ство панелей на расценку, получится дешевле! Варить панели приготовления раствора и др. входить в стоимость монтажа панелей а монолитные участки между плитами просто довольно физ. тяжелая работа потому оплачивается отдельно! Посилання на коментар Поділитися на інших сайтах More sharing options...
xPavelx Опубліковано: 17 квітня 2017 Автор Поділитись Опубліковано: 17 квітня 2017 Для какого помещения чердак, плоская кровля? Так же стоимость дерева завышенная на 1000 грн/м3 - минимум. Я заказывал позавчера брус 200х50х6000 - 2800 грн/м3. чердак не жилой. может коробки там какие нибудь буду складывать. Угол наклона крыши 21 градус Мне тоже цена на брус кажется завышенной. Я помониторил что есть на базах то среднем 3600-3900 (это по харькову). НО есть одно НО. Везде брус предлагают максимальным сечением 200×50×6000 мне же нужен брус 250×50 длиной 4, 6.5, 7.5. То что выше 6 метров мне кажется придется делать на заказ, от этого соответственно и выше цена. Прораб говорит что если найду дешевле то возьмем то что дешевле, главное чтоб он был качественный. Решил все таки делать балки. зачем мне 60 тонн бетона над головой. Когда будем закупать лес, то сам прозвоню на пилорамы поузнаю что почем. Посилання на коментар Поділитися на інших сайтах More sharing options...
vadimka.litvinov Опубліковано: 17 квітня 2017 Поділитись Опубліковано: 17 квітня 2017 а как давно вы делали перекрытия ? в этом сезоне цены на материалы поднялись на 25-30% я накинул суммы с учетом актуальных цен уверен, что в реальности перекрытие по балкам в Вашем случае должно стоить минимум на 30-35% дешевле, даже если вату брать польскую, а брус по 3700 Добавлено через 3 минуты Когда будем закупать лес, то сам прозвоню на пилорамы поузнаю что почем. да там по другим материалам накручено не меньше (а то и больше) к примеру, вату я не понял... химия - тоже огого (ХМББ обойдется в разы дешевле) 1 Посилання на коментар Поділитися на інших сайтах More sharing options...
xPavelx Опубліковано: 18 квітня 2017 Автор Поділитись Опубліковано: 18 квітня 2017 к примеру, вату я не понял... химия - тоже огого (ХМББ обойдется в разы дешевле) А что именно не так с ватой ? в смете цена 300грн, в строй магазине смотрел стоит 309 грн упаковка(1000*600*100 мм 45 плотность) в инете нашел по 285, но надо звонить и узнавать насколько это реальная цена. спасибо за совет по химии. Сравню по характеристикам. если они одинаковые и ХМББ дешевле то конечно возьмем его. Посилання на коментар Поділитися на інших сайтах More sharing options...
vadimka.litvinov Опубліковано: 18 квітня 2017 Поділитись Опубліковано: 18 квітня 2017 А что именно не так с ватой ? Не ясно, зачем ее столько Хотя, если слой утепления будет 300 мм, то да, где-то так и получится 300 грн. за 3,6 м2 - это дофига, да и зачем там 45-я плотность? Тенхониколь Роклайт или Роквул Рокмин выйдут на треть дешевле, а по назначению - самое то. Тем более, что вопрос звукоизоляции перекрытия не стоИт. Рекомендую все же Рокмин (меньше пыли по дому будет, да и укладчикам чесаться особо не придется). вжух! и 21850 грн. экономии только на вате ХМББ 3324 обойдется под 1000 грн. за ведро 10 кг, которого хватит на 250-300 м. кв. бруса. Даже если два ведра - 10000 грн. можно со сметы по статье "химия" убирать по брусу/доске длиной до 6 м, навскидку, переплаты минимум 8000 грн. (любой продаван на деревянном базаре в ноги будет падать клиенту, готовому за раз прикупить до 20 кубов леса) дальше, работа: 75 грн. за укладку м2 слоя утеплителя - это чистый грабеж, говорю, как прошедший этот этап. Какой-либо квалификации эта работа не требует вообще, достаточно аккуратности, и понимание элементарных основ (к примеру, обязательное перекрытие стыков) монтаж перекрытия - да, балки тяжелые, но, уверен, тут тоже есть место для торга. Если основа по геометрии хорошая, то укладка балок превращается в тупой физический труд, который не может стоить столько, сколько указано в смете (ибо там работы на пару дней для бригады из 4-х человек) В общем, берегите деньги для высококвалифицированных работяг, которые будут делать кровлю, внутреннюю отделку, отопление и т.д. ИМХО, в общестрое надо быть жадным и дотошным в плане контроля качества. 1 Посилання на коментар Поділитися на інших сайтах More sharing options...
xPavelx Опубліковано: 18 квітня 2017 Автор Поділитись Опубліковано: 18 квітня 2017 Спасибо Вам за рекомендации. Обязательно рассмотрю предложенные варианты по вате и химии. Буду прозванивать и узнавать цены по всем позициям сметы. Предполагается что одни и те же работяги будут делать всю коробку. Вижу что цены в смете завышены, но мне кажется это лучше чем занижены и потом не вписаться в смету. "Держусь" за этого прораба т.к. нашел его по рекомендации знакомых и отзывам что качественно все делает. По общению он вроде грамотный. Может поэтому и цены на работы выше. Но не хочу чтоб меня тупо кидали на стоимости материала... поэтому пытаюсь проверить и сравнить по мере возможности. Прозвонил по брусу и доске, 3500-3700 за доску 100х25x4.5 и 3700-4000 за брус. Но брус не длиннее 6 метров, мне нужно часть по 7.5 Посилання на коментар Поділитися на інших сайтах More sharing options...
Технология Строительства Опубліковано: 18 квітня 2017 Поділитись Опубліковано: 18 квітня 2017 (это по харькову у меня регион другой, хотя если честно очень дорого для Харькова с учетом того, что расценки там по идее ниже, чем в Киеве. А по смете получается на оборот=( Посилання на коментар Поділитися на інших сайтах More sharing options...
Зернышко Опубліковано: 16 травня 2017 Поділитись Опубліковано: 16 травня 2017 Я бы всё-таки перед тем как принимать решение по поводу перекрытия попробовала бы именно купить то, что планируете. А то напланируете одно, а когда дело дойдет до реальной покупки, наткнетесь на подводные камни, и они Вас не обрадуют. И это помимо того, что такой большой пролет (7,5 м) деревянной балки составит проблему в будущем: провисание в ходе эксплуатации. ИМХО: при таком дорогом фундаменте - деревянные перекрытия как-то не гармонируют. Посилання на коментар Поділитися на інших сайтах More sharing options...
xPavelx Опубліковано: 16 травня 2017 Автор Поділитись Опубліковано: 16 травня 2017 Я бы всё-таки перед тем как принимать решение по поводу перекрытия попробовала бы именно купить то, что планируете. А то напланируете одно, а когда дело дойдет до реальной покупки, наткнетесь на подводные камни, и они Вас не обрадуют. И это помимо того, что такой большой пролет (7,5 м) деревянной балки составит проблему в будущем: провисание в ходе эксплуатации. ИМХО: при таком дорогом фундаменте - деревянные перекрытия как-то не гармонируют. Проект на фундамент решил делать новый. Надеюсь выйдет дешевле. Балки такие можно сделать под заказ. Но зерно сомнения конечно есть. Просто когда есть балки то уже проще с утеплением. А так придется ложить балки сверху плит чтобы засунуть туда утеплитель Посилання на коментар Поділитися на інших сайтах More sharing options...
Сергей Олегович Опубліковано: 16 травня 2017 Поділитись Опубліковано: 16 травня 2017 А так придется ложить балки сверху плит чтобы засунуть туда утеплитель Зачем балки сверху плит? Утеплитель намного проще уложить на ровной поверхности. Посилання на коментар Поділитися на інших сайтах More sharing options...
Зернышко Опубліковано: 17 травня 2017 Поділитись Опубліковано: 17 травня 2017 Утепление по плитному перекрытию выполняется с использованием различных приемов. В том числе можно выполнить так называемый "плавающий пол". Информация в интернете есть. Посилання на коментар Поділитися на інших сайтах More sharing options...
xPavelx Опубліковано: 17 травня 2017 Автор Поділитись Опубліковано: 17 травня 2017 Зачем балки сверху плит? Утеплитель намного проще уложить на ровной поверхности. А как по нему ходить тогда ? Утепление по плитному перекрытию выполняется с использованием различных приемов. В том числе можно выполнить так называемый "плавающий пол". Информация в интернете есть. У меня холодный нежилой чердак, плавающий пол думаю мне там не нужен. Посилання на коментар Поділитися на інших сайтах More sharing options...
Татьяна5 Опубліковано: 17 травня 2017 Поділитись Опубліковано: 17 травня 2017 Кровля на кровельных фермах, они же решат вопрос перекрытия. Пролет 7'5 метра не детский 2 Посилання на коментар Поділитися на інших сайтах More sharing options...
Сергей Олегович Опубліковано: 17 травня 2017 Поділитись Опубліковано: 17 травня 2017 А как по нему ходить тогда ? Варианты: 1)Вата жесткая в плитах, ветробарер, доски. 2)Паробарьер, вата жесткая в плитах, ОСП 3)ПСБ, сверху ОСП или цементная стяжка 4) ЭППС или ППУ, покрытие на любой вкус(можно спокойно ходить и без покрытия) 1 Посилання на коментар Поділитися на інших сайтах More sharing options...
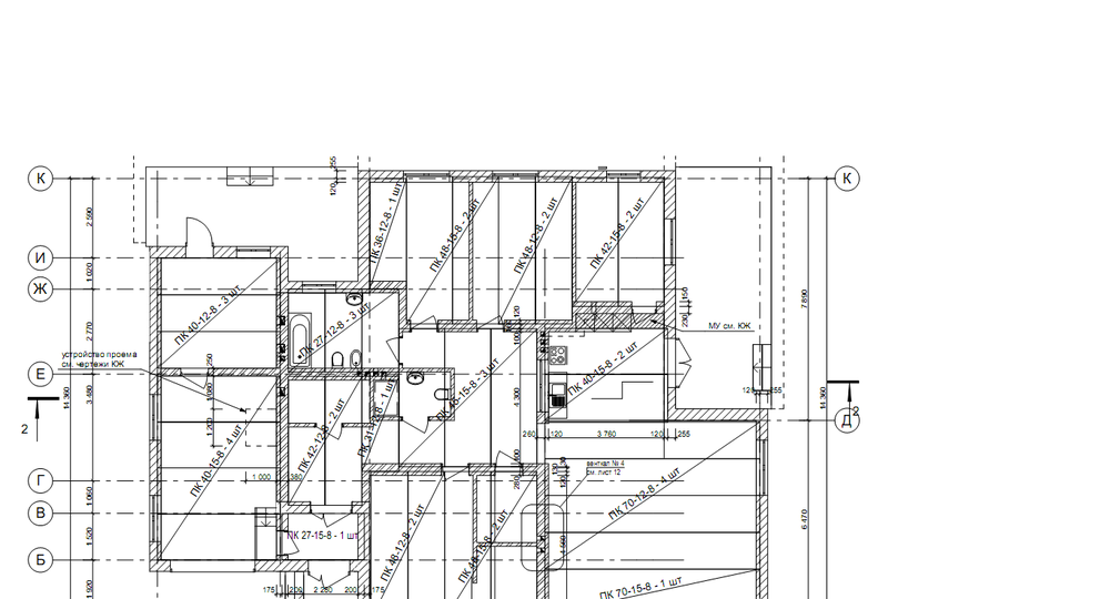
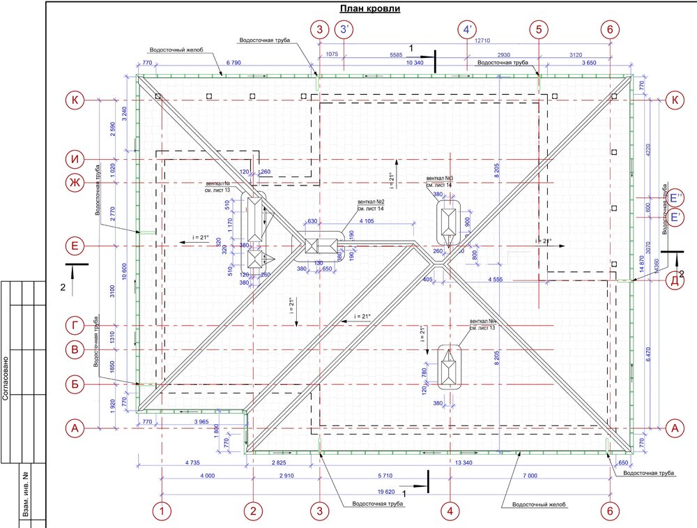
xPavelx Опубліковано: 18 травня 2017 Автор Поділитись Опубліковано: 18 травня 2017 Кровля на кровельных фермах, они же решат вопрос перекрытия. Пролет 7'5 метра не детский Фермы подходят для любой крыши ? У меня 6-скатная. Я прикрепил план. Варианты: 1)Вата жесткая в плитах, ветробарер, доски. 2)Паробарьер, вата жесткая в плитах, ОСП 3)ПСБ, сверху ОСП или цементная стяжка 4) ЭППС или ППУ, покрытие на любой вкус(можно спокойно ходить и без покрытия) Спасибо, буду думать. Начинаю склонятся, что с плитами проблем будет меньше, хотя выйдет наверное дороже. Посилання на коментар Поділитися на інших сайтах More sharing options...
Татьяна5 Опубліковано: 18 травня 2017 Поділитись Опубліковано: 18 травня 2017 Фермы подходят для любой крыши ? У меня 6-скатная. Я прикрепил план. )), просто, что бы Вы понимали, какие иногда крыши бывают (сейчас монтируем). Ваша крыша вообще не сложная Посилання на коментар Поділитися на інших сайтах More sharing options...
xPavelx Опубліковано: 18 травня 2017 Автор Поділитись Опубліковано: 18 травня 2017 )), просто, что бы Вы понимали, какие иногда крыши бывают (сейчас монтируем). Ваша крыша вообще не сложная Интересно. Т.е. как я понимаю это будут и балки перекрытия и стропила в сборе ? По деньгам это обходится дороже чем это бы собиралось на месте из бруса ? Посилання на коментар Поділитися на інших сайтах More sharing options...
Татьяна5 Опубліковано: 18 травня 2017 Поділитись Опубліковано: 18 травня 2017 Интересно. Т.е. как я понимаю это будут и балки перекрытия и стропила в сборе ? По деньгам это обходится дороже чем это бы собиралось на месте из бруса ? правильно понимаете понятно, что дороже но у Вас не стоит вопрос дороже или дешевле, у Вас стоит вопрос 7,5 метров пролет на таком пролете дерево просто под своим весом выдаст прогиб, а о том, как именно и где Вы будете заказывать балки по 7,5 метров (длина рамы на обычной пилораме = 6,2 метра) уже молчу в общем - дело Ваше, но или плиты, или фермы, ни первое, ни второе дешевым не будет Посилання на коментар Поділитися на інших сайтах More sharing options...
xPavelx Опубліковано: 18 травня 2017 Автор Поділитись Опубліковано: 18 травня 2017 правильно понимаете понятно, что дороже но у Вас не стоит вопрос дороже или дешевле, у Вас стоит вопрос 7,5 метров пролет на таком пролете дерево просто под своим весом выдаст прогиб, а о том, как именно и где Вы будете заказывать балки по 7,5 метров (длина рамы на обычной пилораме = 6,2 метра) уже молчу в общем - дело Ваше, но или плиты, или фермы, ни первое, ни второе дешевым не будет Ну как раз вопрос дороже или дешевле очень даже стоит. Если фермы будут дороже или столько же как плиты перекрытия, то в чем тогда их преимущество ? PS Про то где купить балки я звонил узнавал. Некоторые пилорамы готовы их сделать под заказ. Посилання на коментар Поділитися на інших сайтах More sharing options...
jenkins Опубліковано: 18 травня 2017 Поділитись Опубліковано: 18 травня 2017 Можете еще рассмотреть ЛСТК вариант. Посилання на коментар Поділитися на інших сайтах More sharing options...
Татьяна5 Опубліковано: 18 травня 2017 Поділитись Опубліковано: 18 травня 2017 Ну как раз вопрос дороже или дешевле очень даже стоит. Если фермы будут дороже или столько же как плиты перекрытия, то в чем тогда их преимущество ? мммм, сорри, очевидные вещи наиболее тяжело объяснять попробую еще раз - ферма - это перекрытие и стропилка, плиты - это перекрытие очевидно, что вопрос "дороже" или "дешевле" можно будет понять только когда Вы сделаете полный проект и полную смету с монтажом по таким пунктам: 1) Монтаж плит, доставка, плиты, расходники, монтаж мауэрлата, крепежа, монтаж стропильной системы, дерево на стропила 2) Фермы, доставка, монтаж, расходники сравнить "в лоб" у Вас не выйдет, нужно объяснить почему? 1 Посилання на коментар Поділитися на інших сайтах More sharing options...
Рекомендовані повідомлення
Створіть акаунт або увійдіть у нього для коментування
Ви маєте бути користувачем, щоб залишити коментар
Створити акаунт
Зареєструйтеся для отримання акаунта. Це просто!
Зареєструвати акаунтУвійти
Вже зареєстровані? Увійдіть тут.
Увійти зараз