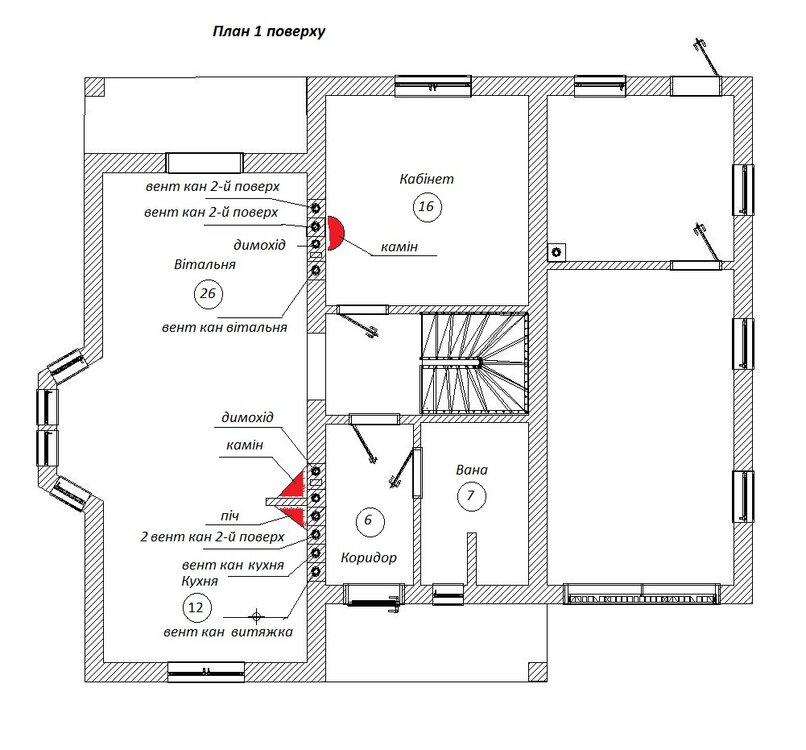
phreaker Опубліковано: 13 червня 2017 Поділитись Опубліковано: 13 червня 2017 Доброго дня. Прошу поради в реалізації побудови ПРАВИЛЬНОЇ системи вентиляції. Маємо ось такий проект 2-о поверхового будинку. В кружках вказана площа кімнат. Висота потолків 1-го поверху 2,8м, 2-го поверху 2,6м. В кухні хочемо совмістити щось типу - піч "голандка" в сторону кухні та камін в сторону вітальні (зображені красним кольором). В кабінеті плануємо поставити "топку длительного горения" Труби вентиляції плануємо ставити діаметром в 120мм. Потрібна порада - критика: 1. Чи достатньо буде такого діаметру труб для "єстественної" вентиляції. 2. Як вірно розкласти труби (вентиляція/димохід), димохід з боку чи в середині. Знаю що трубу димоходу потрібно підняти вище рівня труб вентиляції та добре утеплити (ізолювати) димохід. 3. Може у когось будуть ще якісь поради. Щиро вдячний за відповідь, дякую. Посилання на коментар Поділитися на інших сайтах More sharing options...
Anton Oprya Опубліковано: 13 червня 2017 Поділитись Опубліковано: 13 червня 2017 естественная вентиляция допустим а приточка где? вытяжку нужно ставить в "грязных" помещениях, вытяжка в жилых может запросто привести к интересным моментам когда запахи с "грязных" помещений пойдут в жилые 1 Посилання на коментар Поділитися на інших сайтах More sharing options...
Andrey_Ts Опубліковано: 14 червня 2017 Поділитись Опубліковано: 14 червня 2017 Рекомендую сделать принудительную вентиляцию, которая обеспечивает равномерный и управляемый воздухообмен. Загрязненный воздух выводится из кухни, ванной, санузлов, кладовых на кровлю с помощью вентилятора Vilpe. В жилые помещения обеспечиваем приток свежего воздуха с помощью вентиляционных решеток или приточного клапана. Вентилятор подбирают по кубатуре дома. Устанавливают на скате крыши или на шахту. Трубы для вент канала лучше использовать из оцинкованной спирально-навивной трубы 125 мм Посилання на коментар Поділитися на інших сайтах More sharing options...
Vitaliy_Goy Опубліковано: 15 червня 2017 Поділитись Опубліковано: 15 червня 2017 Рекомендую сделать принудительную вентиляцию, которая обеспечивает равномерный и управляемый воздухообмен. Загрязненный воздух выводится из кухни, ванной, санузлов, кладовых на кровлю с помощью вентилятора Vilpe. Он выводиться через кровлю в окружающую среду, а не на кровлю. Незначительно эффективней но ничем не лучше правильной естественной вентиляции, только в разы дороже! Равномерный отток дает только автоматика, у Вилпе есть только псевдоравномерный через регулятор тиристорного типа. "Управляемый" это и у обычного стенового/канального вентиляторе есть через регулятор В жилые помещения обеспечиваем приток свежего воздуха с помощью вентиляционных решеток или приточного клапана. Дешевле открыть окна на проветривание, чем по совету "спецов" Вилпе использовать решетки на приток! Использование стеновых клапанов бессмысленно при их стоимости, а так же стоимости их монтажа, есть уйма оконных клапанов / микропроветривание), при правильно работающей механической / естественной вентиляции, особенно за городом. Вентилятор подбирают по кубатуре дома. Устанавливают на скате крыши или на шахту. Трубы для вент канала лучше использовать из оцинкованной спирально-навивной трубы 125 мм По стоимости вентиляция от Вилпе немного дешевле (если вентилятор не поломаться через 1/2года) чем ПВВУ с пластинчатым рекуператором. Но при использовании вашей вентиляция (Вилпе) класс энергоэфективности здания будет Е2 / F , эти классы даже не рассматриваться при возведении новых зданий в Европе или покупки б/у зданий. Получается Вы как "спец" Вилпе продаете/рекомендуете продукт который не востребован в Европе?! Для информации: 1 Посилання на коментар Поділитися на інших сайтах More sharing options...
phreaker Опубліковано: 15 червня 2017 Автор Поділитись Опубліковано: 15 червня 2017 естественная вентиляция допустим а приточка где? вытяжку нужно ставить в "грязных" помещениях, вытяжка в жилых может запросто привести к интересным моментам когда запахи с "грязных" помещений пойдут в жилые Проточку можемо зробити через вентиляц.отвори в вікнах. Цього буде достатньо? Посилання на коментар Поділитися на інших сайтах More sharing options...
Vitaliy_Goy Опубліковано: 15 червня 2017 Поділитись Опубліковано: 15 червня 2017 Проточку можемо зробити через вентиляц.отвори в вікнах. Цього буде достатньо? Без доработки окна: открытие окна на микро проветривание. С доработкой: подрезать резинку в верхней части окна (при закрытом окне всегда есть приток). Нужно позаботиться о постоянной тяге, если в зимний период будет обратная тяга, будет обмерзание. Строю дом, будет ПВВУ с рекуператором. Сейчас в квартире: - лето - днем окна на проветривании / ночью на летнем микропроветривании - межсезонье/зима - в зависимости от температуры летнее/зимнее микропроветривание. Свежого воздуха хватает. Но вот влаги нет, приходиться ставить увлажнители! Посилання на коментар Поділитися на інших сайтах More sharing options...
phreaker Опубліковано: 15 червня 2017 Автор Поділитись Опубліковано: 15 червня 2017 Без доработки окна: открытие окна на микро проветривание. С доработкой: подрезать резинку в верхней части окна (при закрытом окне всегда есть приток). Нужно позаботиться о постоянной тяге, если в зимний период будет обратная тяга, будет обмерзание. Строю дом, будет ПВВУ с рекуператором. Сейчас в квартире: - лето - днем окна на проветривании / ночью на летнем микропроветривании - межсезонье/зима - в зависимости от температуры летнее/зимнее микропроветривание. Свежого воздуха хватает. Но вот влаги нет, приходиться ставить увлажнители! Прошу ще пояснити: якщо ставити вентиляційну систему з рекуператором, що потрібно для цього зробити: вивести вентиляційну шахту з трубами чи треба клапани? Якого діаметру труби треба? На кожну кімнату треба окрема труба на приток/витяг чи можна зробити одну, а вже від неї розвести в різні кімнати? Розумію, що в мене багато питань...просто хочу почути від спеців, як треба робити, щоб потім не "чухатись":no: Посилання на коментар Поділитися на інших сайтах More sharing options...
Vitaliy_Goy Опубліковано: 15 червня 2017 Поділитись Опубліковано: 15 червня 2017 Прошу ще пояснити: якщо ставити вентиляційну систему з рекуператором, що потрібно для цього зробити: вивести вентиляційну шахту з трубами чи треба клапани? Якого діаметру труби треба? На кожну кімнату треба окрема труба на приток/витяг чи можна зробити одну, а вже від неї розвести в різні кімнати? Розумію, що в мене багато питань...просто хочу почути від спеців, як треба робити, щоб потім не "чухатись":no: Желательно сделать проект у организации у которой будете покупать оборудование. Это не дорого и гарантия правильной работы оборудования. А вот после таких консультаций как от "спецов" Вилпе, Вы еще долго будете приходить в себя. Коротко: - шахт не нужно, у Вас будет магистраль, приток/отток можно с торца здания, - диаметр трубы подбирается индивидуально с привязкой к оборудованию, в малоэтажном строительстве от 100мм - до 250мм (чаще 100-125-150мм) - клапана не нужны, приток во все жилые помещения, отток со всех нежилых. Регулируется анимостатами и воздушными клапанами. - одна основная, а от нее разводка, - лучше обратиться в компанию которая занимается продажей и монтажом оборудования такого как ПВВУ, рекуператоров и т.д. Пара картинок с Гугл: Посилання на коментар Поділитися на інших сайтах More sharing options...
Veronika Vilpe Опубліковано: 15 червня 2017 Поділитись Опубліковано: 15 червня 2017 Он выводиться через кровлю в окружающую среду, а не на кровлю. Незначительно эффективней но ничем не лучше правильной естественной вентиляции, только в разы дороже! Равномерный отток дает только автоматика, у Вилпе есть только псевдоравномерный через регулятор тиристорного типа. "Управляемый" это и у обычного стенового/канального вентиляторе есть через регулятор Дешевле открыть окна на проветривание, чем по совету "спецов" Вилпе использовать решетки на приток! Использование стеновых клапанов бессмысленно при их стоимости, а так же стоимости их монтажа, есть уйма оконных клапанов / микропроветривание), при правильно работающей механической / естественной вентиляции, особенно за городом. По стоимости вентиляция от Вилпе немного дешевле (если вентилятор не поломаться через 1/2года) чем ПВВУ с пластинчатым рекуператором. Но при использовании вашей вентиляция (Вилпе) класс энергоэфективности здания будет Е2 / F , эти классы даже не рассматриваться при возведении новых зданий в Европе или покупки б/у зданий. Получается Вы как "спец" Вилпе продаете/рекомендуете продукт который не востребован в Европе?! Для информации: [ATTACH]570666[/ATTACH] Читаю твой ответ Андрею, и возникает к тебе вопрос: "А когда ты 3,5 года работал в компании СК Туоте Украина менеджером ("спецом" Вилпе) и за это время порекомендовал и продал сотни проектов с принудительной системой вентиляции Вилпе и заказчики сказали тебе "Спасибо", ты сознательно их обманывал? А может сейчас, когда ты ушел с компании СК Туоте Украина и стал больше зарабатывать на система ПВУ ты решил, чтобы больше заработать писать неправду о Вилпе? Виталик, так не бывает, вчера были лучшими, а сегодня я с вами не дружу, поэтому вы плохие.... 2 Посилання на коментар Поділитися на інших сайтах More sharing options...
phreaker Опубліковано: 15 червня 2017 Автор Поділитись Опубліковано: 15 червня 2017 Шановні друзі!!! А ну не сваріться! Я щиро вдячний Вам всім за відповідь. Для мене тема вентиляції доволі нова і є ДУЖЕ багато запитань (раніше не придялів цьому питанню вдосталь уваги). Я з радістю готов вислухати різні варіати рішень (для цього саме і створені форуми (для обміну досвідом, порадами і т.д) ) щоб більш докладніше зрозуміти дану тематику. Давайте будем по суті обговорювати суть даної теми, а не перетворювати дану вітку в зясування особистих стосунків. Буду щиро вдячний Посилання на коментар Поділитися на інших сайтах More sharing options...
SON Опубліковано: 15 червня 2017 Поділитись Опубліковано: 15 червня 2017 Давайте будем по суті обговорювати суть даної теми, ) Да в общем то ответ во втором сообщении, вытяжка в "грязных", приток в "чистых". Ессно обеспечить переток от чистых в грязные. Такую прорву каналов как в Вашем проекте "прокормить" просто нереально. Ванную 1 этаж (помещение №7) по вентиляции подправить нужно. И определиться с организацией притока. 1 Посилання на коментар Поділитися на інших сайтах More sharing options...
phreaker Опубліковано: 15 червня 2017 Автор Поділитись Опубліковано: 15 червня 2017 Такую прорву каналов как в Вашем проекте "прокормить" просто нереально. Ванную 1 этаж (помещение №7) по вентиляции подправить нужно. Даний проект вентиляції - це тільки план намірів. На даний момент хочу "правильно" все прорахувати. 1. Що Ви маєте на увазі ""прокормить" просто нереально" ? 2. Ванную 1 этаж (помещение №7) по вентиляции подправить нужно ? Наприклад ... ??? Посилання на коментар Поділитися на інших сайтах More sharing options...
SON Опубліковано: 15 червня 2017 Поділитись Опубліковано: 15 червня 2017 Даний проект вентиляції - це тільки план намірів. Ну вот и чудненько. Зачастую сначала строят, потом вспоминают про трубы. :D 1. Що Ви маєте на увазі ""прокормить" просто нереально" ? Каждый вытяжной канал удаляет воздух из помещения. Зимой примерно 60-100 м3/ч. Если поступающего с улицы воздуха (приточного) будет достаточно для всех каналов, то с вентиляцией все будет пучком. Но с затратами на нагрев такого кол-ва воздуха будет совсем невесело. При недостатке притока каналы сами "договорятся" кому тянуть, кому подавать. Тогда начнутся проблемы с обратной тягой. Посему нужно уменьшать "хотелки" по вытяжке из каждой спальни. 2. Ванную 1 этаж (помещение №7) по вентиляции подправить нужно ? Наприклад ... ??? Наприклад - у Вас ванная 1 этажа не имеет вентиляции. Нужно доточить горизонтальный кусок трубы через коридор (возможно за потолком) ко входу в вентканал. 2 Посилання на коментар Поділитися на інших сайтах More sharing options...
Veronika Vilpe Опубліковано: 15 червня 2017 Поділитись Опубліковано: 15 червня 2017 Шановні друзі!!! А ну не сваріться! Я щиро вдячний Вам всім за відповідь. Для мене тема вентиляції доволі нова і є ДУЖЕ багато запитань (раніше не придялів цьому питанню вдосталь уваги). Я з радістю готов вислухати різні варіати рішень (для цього саме і створені форуми (для обміну досвідом, порадами і т.д) ) щоб більш докладніше зрозуміти дану тематику. Давайте будем по суті обговорювати суть даної теми, а не перетворювати дану вітку в зясування особистих стосунків. Буду щиро вдячний Доброй ночи! По сути вашего вопроса: Как правильно организовать вентиляцию в доме, нужно ответить на вопрос, а как в принципе перемещается воздух в помещении. А воздух перемещается следующим образом: теплый воздух поднимается вверх, а холодный опускается вниз. Также надо понимать, что воздух пойдет по пути наименьшего сопротивления, поэтому, важно при проекте вентиляции организовать направление воздуха, куда он будет заходить (приток), и куда мы отработанный воздух направим для удаления из помещения (отток). Как уже писали выше в комментариях, в жилые помещения (спальни, зал) надо организовать приток свежего воздуха, в помещениях с наиболее загрязненным влажным воздухом необходимо организовать отток (кухня, ванна, сени и т.д.). То есть надо "заставить" воздух двигаться по четко организованному плану, спланировать систему вентиляции. Если рассматривать естественную вентиляцию, то при таком проекте очень маловероятно движение воздуха в заданном направлении, потому что есть много факторов влияющих на естественную вентиляцию. Например, в зимний период времени, когда на улице мороз, а в доме тепло, отток теплого воздуха из помещений будет очень интенсивным и это приведет к большим теплопотерям (отапливать улицу по нынешним ценам очень дорого). В летний период времени, когда на улице жара, а в доме прохлада, отработанный воздух в принципе никуда из помещений не уйдет. Плюс вы должны понимать, что при естественной вентиляции у вас всегда будет переток отработанного воздуха по дому в хаотичном порядке, в зависимости от того, где включили канальный вентилятор, туда воздух и пойдет. Включили на кухне вытяжку, потянуло из туалета и наоборот. Также может быть и обратная тяга при сильном ветре, когда воздух не вытягивает, а задувает в шахты. Отдельным стояком надо выводить вентиляцию канализационного стояка (при любом варианте вентиляции). Ни в коем случае не выводить в одну шахту с вентиляцией. Иначе все фекальные газы и всевозможные бактерии поселяться в ваших вентиляционных каналах и в случае обратной тяги ( а она случается части при естественной вентиляции), домочадцы будут дышать очень плохим воздухом. Отсюда и болезни, аллергии и т.д. Я вам рекомендую однозначно рассмотреть вариант принудительной вентиляции. Вы сможете организовать движение воздуха, плюс, с вентилятором Vilpe вы сможете задать скорость замены воздуха в помещении м3/ч. С помощью вентилятора Vilpe вы также можете реализовать проект "Тихая Кухня". Над плитой установить зонт без вентилятора, вентилятор кухонной вытяжки будет вентилятор Vilpe, который устанавливается на кровле. Приток лучше организовать с помощью приточных клапанов Велко, которые устанавливаются на высоте 2,2 м в спальнях. Клапан Велко оснащен шумолушителем (в отличие от клапана в раме окна вы не будете слушать ночью, где кто чихнул и у какого соседа лает собака), также есть уникальный фильтр, который задерживает не только пыльцу и пыль, но и различные запахи, даже дыма (очень актуально в период горения торфяников и периода сжигания сухой травы и листьев, это если за городом. А в черте города или рядом дорога, фильтр Велко реально даст возможность дышать свежим воздухом без примеси выхлопного газа и других вредных факторов). Клапан Велко оснащен термоголовкой, которая автоматически регулирует открытие и закрытие клапана в зависимости от температуры на улице. Так что стоимость клапана полностью оправдана комфортом жильцов дома. Правильно организованная вентиляция сохранит ваше здоровье и стоимость дома! 2 Посилання на коментар Поділитися на інших сайтах More sharing options...
Vitaliy_Goy Опубліковано: 16 червня 2017 Поділитись Опубліковано: 16 червня 2017 (змінено) Читаю твой ответ Андрею, и возникает к тебе вопрос: "А когда ты 3,5 года работал в компании СК Туоте Украина менеджером ("спецом" Вилпе) и за это время порекомендовал и продал сотни проектов с принудительной системой вентиляции Вилпе и заказчики сказали тебе "Спасибо", ты сознательно их обманывал? А может сейчас, когда ты ушел с компании СК Туоте Украина и стал больше зарабатывать на система ПВУ ты решил, чтобы больше заработать писать неправду о Вилпе? Виталик, так не бывает, вчера были лучшими, а сегодня я с вами не дружу, поэтому вы плохие.... 1. Делом надо заниматься серьезно или не заниматься им вообще! 2. Работали-работали, а так и не знаете. Рекомендовал индивидуально, оптимальный вариант для заказчика, а не "впаривал". За это мне и говорили Спасибо! 3. Я занимаюсь комплексно (строительство/ремонт)! 4. Правда или нет, можно легко проверить если в этом разбираешься 5. Лучшими были когда были специалисты, дешевые энергоресурсы и другие нормы, а сейчас ... Я давно говорил, нельзя стоять на месте, нужно развиваться. Для информации: П.С. А Андрей ответить сам не может? Змінено 16 червня 2017 користувачем Vitaliy_Goy Посилання на коментар Поділитися на інших сайтах More sharing options...
Vitaliy_Goy Опубліковано: 16 червня 2017 Поділитись Опубліковано: 16 червня 2017 Клапан Велко оснащен термоголовкой, которая автоматически регулирует открытие и закрытие клапана в зависимости от температуры на улице. Так что стоимость клапана полностью оправдана комфортом жильцов дома. Правильно организованная вентиляция сохранит ваше здоровье и стоимость дома! Странным образом они очень похожи VTK-100 Airvent и VELCO VT-100 . Разница только в том, что Systemair производит его очень давно и имеет несколько моделей для индивидуального подхода, за который и говорят Спасибо! Посилання на коментар Поділитися на інших сайтах More sharing options...
SON Опубліковано: 16 червня 2017 Поділитись Опубліковано: 16 червня 2017 В летний период времени, когда на улице жара, а в доме прохлада, отработанный воздух в принципе никуда из помещений не уйдет. Не пугайте людей. Летом в загородном доме живут с открытыми окнами. Включили на кухне вытяжку, потянуло из туалета и наоборот. А Вильповские вентиляторы это делают как-то иначе? Также может быть и обратная тяга при сильном ветре, когда воздух не вытягивает, а задувает в шахты. В каком заведении вбивают в голову эту дурь. Не делайте оголовки шахт в ЗВП и ничо не будет задувать. Клапан Велко оснащен термоголовкой, которая автоматически регулирует открытие и закрытие клапана в зависимости от температуры на улице. Приточный стеновой клапан полностью закрывается при температуре минус - 5 градусов и полностью открывается при температуре + 10 градусов. Т.е. ниже -5 градусов приток уже не нужен? Посилання на коментар Поділитися на інших сайтах More sharing options...
Крышник Опубліковано: 16 червня 2017 Поділитись Опубліковано: 16 червня 2017 Т.е. ниже -5 градусов приток уже не нужен? Так сделано, что он закрывается при -5С автоматом, но, что бы и дальше был приток воздуха при минусовой температуре, надо повернуть до щелчка что бы он не закрывался полностью, что то типа зимнего проветривания на окнах. 2 Посилання на коментар Поділитися на інших сайтах More sharing options...
Veronika Vilpe Опубліковано: 16 червня 2017 Поділитись Опубліковано: 16 червня 2017 День добрый. Летом люди не всегда живут с открытыми окнами, у многих есть кондиционер, который охлаждает воздух, и живут при закрытых окнах. Когда днем люди на работе, окна также зарыты и дом перегревается, придя с работы, попадают в душегубку. Много времени надо остудить, а если это очень теплый летний вечер, ложатся спать обливаясь потом, можно конечно лечь спать на террасе( у кого предусмотрено, но проблема- комары Вильповские вентиляторы действительно делают иначе. На отток ставиться на кровле один вентилятор Вилпе, который подбирается по кубатуре дома, разводкой спирально-навивных труб прокладывается магистраль, которая забирает отработанный воздух из нежилых комнат (ванна, коридор, гардеробных) и в чердачном помещении сводим магистрали в один канал, который подводим к вентилятору и подключаем. Вентилятор не выключается, он круглосуточно одновременно из нужных помещений тянет (забирает) отработанный воздух. Таким образом мы задаем движение воздуха только в одну сторону. На протяжении 7 лет к нам приходят заказчики с кирпичными шахтами и просят помочь решить проблемы. А проблемы одни и те же: обратная тяга и отсутствие тяги. В прошлом году появилась еще одна проблема: огромные счета за отопление....Причина: неконтролируемый отток теплого воздуха через классическую кирпичную шахту. Добавлено через 10 минут По стоимости вентиляция от Вилпе немного дешевле (если вентилятор не поломаться через 1/2года) чем ПВВУ с пластинчатым рекуператором. Но при использовании вашей вентиляция (Вилпе) класс энергоэфективности здания будет Е2 / F , эти классы даже не рассматриваться при возведении новых зданий в Европе или покупки б/у зданий. Получается Вы как "спец" Вилпе продаете/рекомендуете продукт который не востребован в Европе?! Для информации: [ATTACH]570666[/ATTACH] Виталий, ты два раза ссылаешься на цветную картинку и каким-то образом привязываешь к ней класс энергоэфективности вентиляции Vilpe. А потрудись еще предоставить научную работу с результатами тестирования нашей вентиляции, кто проводил эти исследования, какие выводы были сделаны и кем, что был присвоен данный класс. Это во первых. А во вторых, по твоей цветной картинке какой класс будет присвоен зданию с системой вентиляции ПВВУ, но при этом стены здания силикатный кирпич в пол кирпича, утепление кровли 50 мм? 1 Посилання на коментар Поділитися на інших сайтах More sharing options...
Andrey_Ts Опубліковано: 16 червня 2017 Поділитись Опубліковано: 16 червня 2017 По стоимости вентиляция от Вилпе немного дешевле (если вентилятор не поломаться через 1/2года) чем ПВВУ с пластинчатым рекуператором. Но при использовании вашей вентиляция (Вилпе) класс энергоэфективности здания будет Е2 / F , эти классы даже не рассматриваться при возведении новых зданий в Европе или покупки б/у зданий. Энергоэффективность дома с естественной вентиляцией конечно "выше" чем у принудительной. Получается Вы как "спец" Вилпе продаете/рекомендуете продукт который не востребован в Европе?! Не каждому "по карману" сделать себе в доме вентиляцию с ПВВУ. Стоимость оборудования и затраты на електроэнергию значительно выше. Это то же нужно озвучивать людям, для того чтоб они понимали, а стоит ли.... 1 Посилання на коментар Поділитися на інших сайтах More sharing options...
SON Опубліковано: 16 червня 2017 Поділитись Опубліковано: 16 червня 2017 Летом люди не всегда живут с открытыми окнами, у многих есть кондиционер, который охлаждает воздух, и живут при закрытых окнах. Когда днем люди на работе, окна также зарыты и дом перегревается, придя с работы, попадают в душегубку. Вэлкам ко мне, у мну нет кондеев, в любую жару в доме макс. 23, с открытыми окнами. Все эти страшилки про душегубки уместны в каркасных домах или пенопластовых будках. Вильповские вентиляторы действительно делают иначе. Где будем брать приток в 400-500 м3/ч для кух. зонта? На протяжении 7 лет к нам приходят заказчики с кирпичными шахтами и просят помочь решить проблемы. А проблемы одни и те же: обратная тяга и отсутствие тяги. А каким боком тут кирпичные каналы? Без притока любая вентиляция не работает, в т.ч и за дурные деньги. В прошлом году появилась еще одна проблема: огромные счета за отопление....Причина: неконтролируемый отток теплого воздуха через классическую кирпичную шахту. Лечится элементарно "поджиманием" вытяжных каналов на зиму, причем абсолютно бесплатно в течении 20 минут. Делов то. Или Ваш девиз -"Будем лечить долго и очень дорого". Посилання на коментар Поділитися на інших сайтах More sharing options...
Andrey_Ts Опубліковано: 16 червня 2017 Поділитись Опубліковано: 16 червня 2017 Вэлкам ко мне, у мну нет кондеев, в любую жару в доме макс. 23, с открытыми окнами. Открытые окна это хорошо, если нет детей и не боитесь сквозняка. 2 Посилання на коментар Поділитися на інших сайтах More sharing options...
Veronika Vilpe Опубліковано: 17 червня 2017 Поділитись Опубліковано: 17 червня 2017 Где будем брать приток в 400-500 м3/ч для кух. зонта? ???? А вы предлагаете затягивать приток для кухонного зонта из кирпичной шахты или окно на кухне открывать? И вы думаете кухонной вытяжке нужен приток воздуха в объеме 500м3/ч? Добавлено через 19 минут А каким боком тут кирпичные каналы? Без притока любая вентиляция не работает, в т.ч и за дурные деньги. Лечится элементарно "поджиманием" вытяжных каналов на зиму, причем абсолютно бесплатно в течении 20 минут. Делов то. Или Ваш девиз -"Будем лечить долго и очень дорого". Кирпичные каналы естественной вентиляции как раз прямым боком относятся к проблеме недостатка вентиляции в теплый период времени. Даже если вы откроете окна в безветренный день, толку не будет. Ура, появился ветерок, сквозняком по дому потянуло: хорошо, если в окно спальни задувает, а если окно сан.узла? Причина отсутствия вентиляции не только в притоке, но и в отсутствии при естественной вентиляции двигателя, который бы принудительно выталкивал отработанный воздух из дома. Наш девиз: "Помочь заказчику избежать ошибок на этапе проектирования, а если дом уже построен и есть проблема с вентиляцией, найти оптимальное решение и устранить проблему". Для информации: обустройство системы вентиляции Vilpe по стоимости равнозначно выгонке кирпичных шахт и их окультуривания. А эффект и комфорт в разы лучше. Посилання на коментар Поділитися на інших сайтах More sharing options...
SON Опубліковано: 17 червня 2017 Поділитись Опубліковано: 17 червня 2017 А вы предлагаете затягивать приток для кухонного зонт из кирпичной шахты или окно на кухне открывать? Я предлагаю открывать окно, НО только не на кухне. Что предлагаете Вы? Все спецы по механике на этот вопрос тупо морозятся, и Вы тож в их числе. И вы думаете кухонной вытяжке нужен приток воздуха в объеме 500м3/ч? Я не думаю, я знаю. Если зонт выкидывает 500 кубов, то эти 500 кубов должны откуда-то прийти. По-другому не бывает. Крапка! Для информации: обустройство системы вентиляции Vilpe по стоимости равнозначно выгонке кирпичных шахт и их окультуривания. Не обманывайте людей на счет стоимости. Кирпичные каналы в стене по материалам ровном счетом не стоят ничего, даж экономия на недокладке одного-двух кирпичей на ряд. Посилання на коментар Поділитися на інших сайтах More sharing options...
Veronika Vilpe Опубліковано: 17 червня 2017 Поділитись Опубліковано: 17 червня 2017 Я предлагаю открывать окно, НО только не на кухне. Что предлагаете Вы? Все спецы по механике на этот вопрос тупо морозятся, и Вы тож в их числе. Я не думаю, я знаю. Если зонт выкидывает 500 кубов, то эти 500 кубов должны откуда-то прийти. По-другому не бывает. Крапка! Не обманывайте людей на счет стоимости. Кирпичные каналы в стене по материалам ровном счетом не стоят ничего, даж экономия на недокладке одного-двух кирпичей на ряд. Добрый вечер! Вот только хамить не надо, не нервничайте. Я хоть и не спец по механике, но постараюсь ответить на все ваши вопросы. Я поняла из вашего ответа, что вариантов подать приток воздуха в дом, кроме как открыть окно, вы не рассматриваете и не рекомендуете. Я рекомендую установить приточные клапана в жилых комнатах, которые даже при закрытых окнах будут обеспечивать приток необходимого воздуха в дом. В экстренных случаях, когда что-то подгорело, с вами согласна, надо открыть окна в жилых комнатах, чтобы поскорей выветрить запах из кухни и предотвратить распространение запахов по дому. По поводу обвинения в обмане о стоимости обустройства системы вентиляции Vilpe и кирпичных шахт- категорически не согласна и могу доказать. Вы утверждаете, что кирпичные каналы ничего не стоят, но умалчиваете, что каждый вент.канал нужно гильзовать вент.трубами. Так как при естественной вентиляции каждый канал из каждого помещения, где нужно забрать воздух, выводиться отдельно, то по м/погонным разводки вент.труб уже получиться больше. До чердака- это стены, но после - отдельное строение, на которое нужен дополнительно кирпич, нужно и утеплить, облицевать, сделать герметичное соединение с кровлей (и часто в этом месте потом проблема, если не повезло с бригадой строителей), накрыть металлическим колпаком, и таких шахт может быть не одна, а две, три, в зависимости от проекта. За эту работу также нужно заплатить строителю. В доме в сан.узлах надо поставить канальные вентиляторы, а они тоже стоят денег. И бюджет такого строительства +/- равен стоимости бюджету обустройства принудительной системы вентиляции Vilpe. Тем более в этом году мы в разы снизили цены, чтобы финские разработки и инновации, стали доступны большему числу строящихся семей. Посилання на коментар Поділитися на інших сайтах More sharing options...
Рекомендовані повідомлення
Створіть акаунт або увійдіть у нього для коментування
Ви маєте бути користувачем, щоб залишити коментар
Створити акаунт
Зареєструйтеся для отримання акаунта. Це просто!
Зареєструвати акаунтУвійти
Вже зареєстровані? Увійдіть тут.
Увійти зараз