ЭлектроМеханиК Опубліковано: 2 серпня 2017 Поділитись Опубліковано: 2 серпня 2017 Хай бог мылуе - 450 грн. За такие деньги я куплю килограмм лосося, буханку чорного хлеба и бутылку водки, и так добренно отпраздную, что мне никакое ПУЭ триста лет не надо будет. ПУЭ это не перфоратор. Без них можно прекрасно обойтись. 1 Посилання на коментар Поділитися на інших сайтах More sharing options...
normal Опубліковано: 2 серпня 2017 Поділитись Опубліковано: 2 серпня 2017 Запланировано две линии конвекторов. 1-я (1,5+2,0+0,5) 2-я (1,5+1,5+1,0) По идее нужно минимум 4 линии: 1. ВВГнг(3x1.5+10A) - (1,5+0,5) 2. ВВГнг(3x1.5+10A) - (2,0) 3. ВВГнг(3x1.5+10A) - (1,5) 3. ВВГнг(3x2.5+16A) - (1,5+1,0) Но лучше кинуть с запасом все по 3x2.5+16A, мало ли переставлять конвекторы или пылесосы, утюги подключать Посилання на коментар Поділитися на інших сайтах More sharing options...
InSAn Опубліковано: 2 серпня 2017 Поділитись Опубліковано: 2 серпня 2017 Есть нагрузка 4,0 кВт. Какой нужен кабель и АВ для его защиты? 6 мм2. 32А. Вот только не пойму - где Вы такой конвектор нашли? Или это несколько штук? Или он не на розетку подключается? Посилання на коментар Поділитися на інших сайтах More sharing options...
Vl@d Опубліковано: 2 серпня 2017 Автор Поділитись Опубліковано: 2 серпня 2017 6 мм2. 32А. Вот только не пойму - где Вы такой конвектор нашли? Или это несколько штук? Или он не на розетку подключается? Посмотрите, хотя-бы постом выше. Посилання на коментар Поділитися на інших сайтах More sharing options...
profeMaster Опубліковано: 2 серпня 2017 Поділитись Опубліковано: 2 серпня 2017 6 мм2. 32А.ну это с очень большим запасом Привел данные Шнайдера, чтобы было видно, как они перестраховываются в своих рекомендациях. на месте автора провел бы две линии по 2.5 мм2 с автоматами 16 А. То есть две линии на 4 конвектора. Или он не на розетку подключается?прпедполагаю, что 4 шт в 4 розетки. Посилання на коментар Поділитися на інших сайтах More sharing options...
InSAn Опубліковано: 2 серпня 2017 Поділитись Опубліковано: 2 серпня 2017 Посмотрите, хотя-бы постом выше. И Вам пожалуйста. Делайте сами, как считаете нужным. Посилання на коментар Поділитися на інших сайтах More sharing options...
Vl@d Опубліковано: 2 серпня 2017 Автор Поділитись Опубліковано: 2 серпня 2017 ну это с очень большим запасом Привел данные Шнайдера, чтобы было видно, как они перестраховываются в своих рекомендациях. на месте автора провел бы две линии по 2.5 мм2 с автоматами 16 А. Ну а как быть с нагрузкой 4 кВт на АВ16А? Он же будет постоянно "на взводе". Посилання на коментар Поділитися на інших сайтах More sharing options...
profeMaster Опубліковано: 2 серпня 2017 Поділитись Опубліковано: 2 серпня 2017 2 линии на 4 ковектора. 4 линии на 8 конвекторов. Посилання на коментар Поділитися на інших сайтах More sharing options...
Vl@d Опубліковано: 2 серпня 2017 Автор Поділитись Опубліковано: 2 серпня 2017 И Вам пожалуйста. Делайте сами, как считаете нужным.Ну вот, обиделись. Не хотел. Кому кому, а Вам как модератору, должно быть известно, что читать тему выборочно, это не очень хорошо. Еще раз, извините. Посилання на коментар Поділитися на інших сайтах More sharing options...
normal Опубліковано: 2 серпня 2017 Поділитись Опубліковано: 2 серпня 2017 Не все поняли вашу писанину, вон profeMaster тоже думает, толи конвектор один на 4кВт, толи их 8 по 1кВт, а (1,5+2,0+0,5) и (1,5+1,5+1,0) толи сечения кабелей, я думаю там 2 спальни в каждой по 3 разных конвектора, но не факт... 2 Посилання на коментар Поділитися на інших сайтах More sharing options...
Vl@d Опубліковано: 2 серпня 2017 Автор Поділитись Опубліковано: 2 серпня 2017 2 линии на 4 ковектора. 4 линии на 8 конвекторов.Запланировано две лини. 1-я линия - 3 конвектора: 1,5кВт+2,0кВт+0,5кВт=4,0кВт 2-я линия - 3 конвектора: 1,5кВт+1,5кВт+1,0кВт=4,0кВт Провод уже куплен ЗЗЦМ ВВГ-нг-П 3*2,5. Для каждого конвектора своя розетка 16А. Защита каждой линии АВ20А. По феншую мне не надо. Надо по уму. Посилання на коментар Поділитися на інших сайтах More sharing options...
Vl@d Опубліковано: 2 серпня 2017 Автор Поділитись Опубліковано: 2 серпня 2017 Не все поняли вашу писанину,А может я бухой или от весьма противоречивых советов слегка того... Посилання на коментар Поділитися на інших сайтах More sharing options...
normal Опубліковано: 2 серпня 2017 Поділитись Опубліковано: 2 серпня 2017 По феншую мне не надо. Надо по уму. Встречал вот такую картинку, если надежно не хотите, то делайте правильно, но я бы при этом выкинул все розетки и штатный шнур конвектора, прибил бы его к стене и подключал каждый напрямую к ВВГнг и скорее всего распред.коробка на чердаке будет греться как ещё один конвектор. Если оставите розетки, то даю гарантию там потом будет тройник или удлинитель и сгорят они вместе с хатой даже автомат не гавкнет 1 Посилання на коментар Поділитися на інших сайтах More sharing options...
profeMaster Опубліковано: 2 серпня 2017 Поділитись Опубліковано: 2 серпня 2017 гг, конверторов все-таки 6, а не 8, ошибся)) Запланировано две лини. 1-я линия - 3 конвектора: 1,5кВт+2,0кВт+0,5кВт=4,0кВт 2-я линия - 3 конвектора: 1,5кВт+1,5кВт+1,0кВт=4,0кВт делаем не 2, а 4 линии, каждая проводом 3 * 2.5 мм2 1 0,5кВт + что-то 2 остаток 3 1,0кВт + что-то 4 остаток 2 Посилання на коментар Поділитися на інших сайтах More sharing options...
Vl@d Опубліковано: 2 серпня 2017 Автор Поділитись Опубліковано: 2 серпня 2017 и скорее всего распред.коробка на чердаке будет греться как ещё один конвекторАга, при минус 15 вокруг нее. Посилання на коментар Поділитися на інших сайтах More sharing options...
InSAn Опубліковано: 2 серпня 2017 Поділитись Опубліковано: 2 серпня 2017 Для каждого конвектора своя розетка 16А. Защита каждой линии АВ20А. По феншую мне не надо. Надо по уму. Если по уму - то повторяю в третий раз: автоматы на 16А. Точка. 1 Посилання на коментар Поділитися на інших сайтах More sharing options...
Vl@d Опубліковано: 2 серпня 2017 Автор Поділитись Опубліковано: 2 серпня 2017 Если по уму - то повторяю в третий раз: автоматы на 16А. Я так понимаю, что Вы исходите от тока розеток. Но как поведет себя АВ16А при общей нагрузке на линию 4 кВт? Это если оставить две линии. Посилання на коментар Поділитися на інших сайтах More sharing options...
InSAn Опубліковано: 2 серпня 2017 Поділитись Опубліковано: 2 серпня 2017 Я так понимаю, что Вы исходите от тока розеток. Но как поведет себя АВ16А при общей нагрузке на линию 4 кВт? Это если оставить две линии. Автомат себя поведет правильно - отключит линию. Если не отключит - то кабель тоже себя поведет правильно - сгорит. Не пытайтесь сесть одновременно на три стула: мало две линии - тяните три. Мало три - тогда еще одну. Не нравятся советы? Тогда не спрашивайте и делайте как считаете нужным. 1 Посилання на коментар Поділитися на інших сайтах More sharing options...
Yegor_81 Опубліковано: 2 серпня 2017 Поділитись Опубліковано: 2 серпня 2017 Я так понимаю, что Вы исходите от тока розеток. Но как поведет себя АВ16А при общей нагрузке на линию 4 кВт? Это если оставить две линии. Вам на 3 линии раскидать невозможно уже? Посилання на коментар Поділитися на інших сайтах More sharing options...
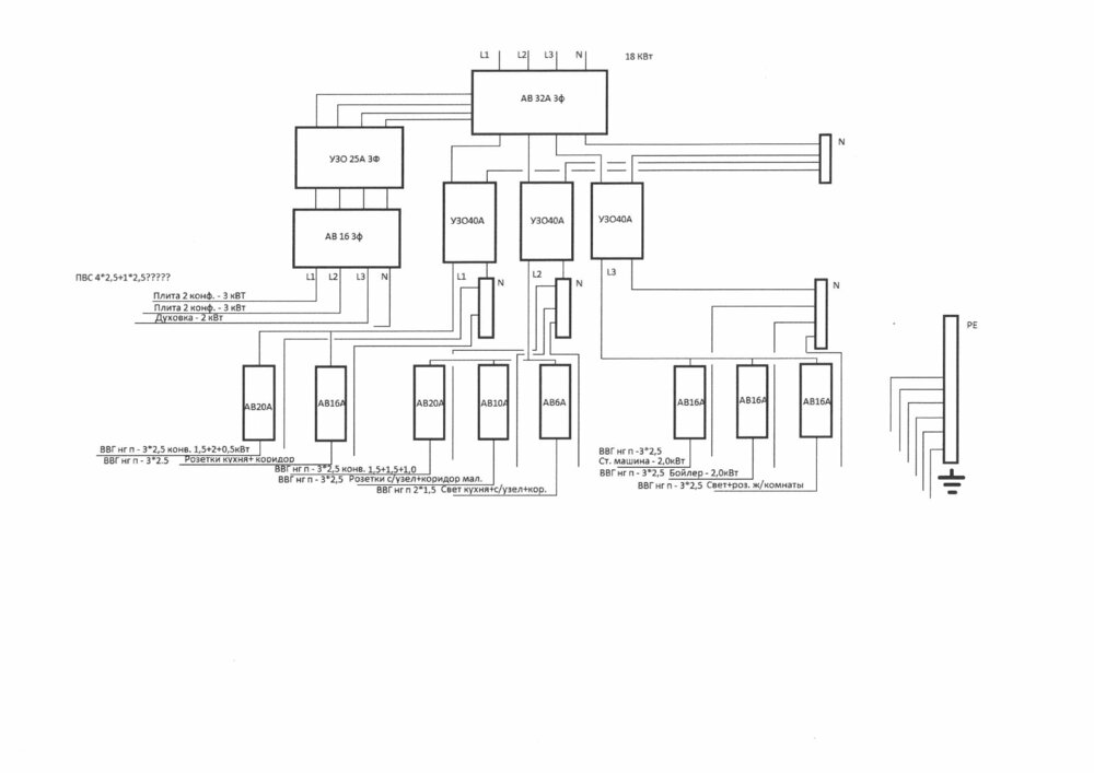
Vl@d Опубліковано: 2 серпня 2017 Автор Поділитись Опубліковано: 2 серпня 2017 Вам на 3 линии раскидать невозможно уже? Провода 100м. Можно раскинуть. 1-я - 1,5+1,0 2-я - 2,0+1,0 3-я - 1,5+1,5 Вот только как по фазам это раскидать? Из мощных потребителей еще плита+духовка - 7 кВт, бойлер - 2 кВт, ст. машина - 2 кВт. Посилання на коментар Поділитися на інших сайтах More sharing options...
Yegor_81 Опубліковано: 2 серпня 2017 Поділитись Опубліковано: 2 серпня 2017 Провода 100м. Можно раскинуть. 1-я - 1,5+1,0 2-я - 2,0+1,0 3-я - 1,5+1,5 Вот только как по фазам это раскидать? Из мощных потребителей еще плита+духовка - 7 кВт, бойлер - 2 кВт, ст. машина - 2 кВт. по фазам раскидать равномерно. еще можно отопление повесить на выделенную линию через реле приоритетных нагрузок. Посилання на коментар Поділитися на інших сайтах More sharing options...
Vl@d Опубліковано: 2 серпня 2017 Автор Поділитись Опубліковано: 2 серпня 2017 Тогда не спрашивайте и делайте как считаете нужным. Всем спасибо! Вопросов больше нет. Посилання на коментар Поділитися на інших сайтах More sharing options...
Рекомендовані повідомлення
Створіть акаунт або увійдіть у нього для коментування
Ви маєте бути користувачем, щоб залишити коментар
Створити акаунт
Зареєструйтеся для отримання акаунта. Це просто!
Зареєструвати акаунтУвійти
Вже зареєстровані? Увійдіть тут.
Увійти зараз