Татьяна5 Опубліковано: 17 вересня 2017 Поділитись Опубліковано: 17 вересня 2017 Вот дом в котором живу я, он садится хорошо на Ваш тип участка - узкий и длинный второй проект - он же, с гаражемsvekrodomik-01.pdf 1 Посилання на коментар Поділитися на інших сайтах More sharing options...
Татьяна5 Опубліковано: 17 вересня 2017 Поділитись Опубліковано: 17 вересня 2017 он же с гаражом, у меня такой, просто пристраивается к глухой стенкеsvekrodomik-garazh-01-02.pdf 1 Посилання на коментар Поділитися на інших сайтах More sharing options...
vadimv Опубліковано: 17 вересня 2017 Поділитись Опубліковано: 17 вересня 2017 А почему для Z7учаток узковат? 8 метров как никак ваканных остается.По 4 метра с обеих сторон? И окна будут упираться в забор (если сделать окна к соседям). У меня участок по фасаду 21 м (22, если до стенки соседского сарая) - тесновато выходит. Но если по бокам окон не делать, то вроде и норм. Просто тогда получится половина окон на жаркую сторону, а половина на темную и холодную. 1 Посилання на коментар Поділитися на інших сайтах More sharing options...
balcheg Опубліковано: 17 вересня 2017 Автор Поділитись Опубліковано: 17 вересня 2017 Вот дом в котором живу я, он садится хорошо на Ваш тип участка - узкий и длинный второй проект - он же, с гаражем А этот проект с размерами и подписями комнат есть? Интересно взглянуть Посилання на коментар Поділитися на інших сайтах More sharing options...
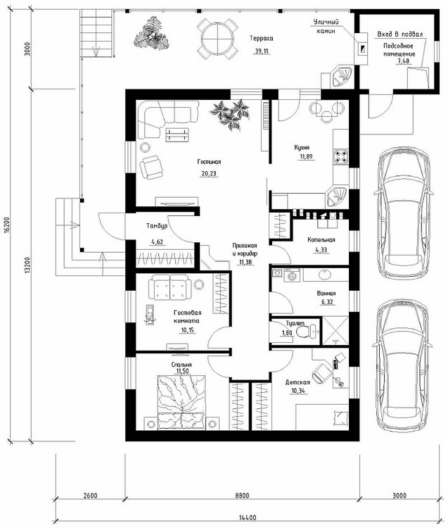
Татьяна5 Опубліковано: 17 вересня 2017 Поділитись Опубліковано: 17 вересня 2017 А этот проект с размерами и подписями комнат есть? Интересно взглянуть включайте воображение размеры есть там вход в тамбур, слева - су, справа - гостевая/котельная (у меня она крохотная, эл котел, бойлер в ванной), гостиная, из нее - 2 спальни Посилання на коментар Поділитися на інших сайтах More sharing options...
balcheg Опубліковано: 17 вересня 2017 Автор Поділитись Опубліковано: 17 вересня 2017 Вадим, Татьяна, спасибо вам большое за активное участие в теме. Очень ценю ваше мнение и правда прислушиваюсь к нему! Добавлено через 3 минуты включайте воображение размеры есть там вход в тамбур, слева - су, справа - гостевая/котельная (у меня она крохотная, эл котел, бойлер в ванной), гостиная, из нее - 2 спальни Спальни получаются совсем крохотные, а гостинная около 40 квадратов . Не тесно в спальнях Вам? Добавлено через 4 минуты включайте воображение размеры есть там вход в тамбур, слева - су, справа - гостевая/котельная (у меня она крохотная, эл котел, бойлер в ванной), гостиная, из нее - 2 спальни Ниши в спальнях - гардеробы? Посилання на коментар Поділитися на інших сайтах More sharing options...
Татьяна5 Опубліковано: 17 вересня 2017 Поділитись Опубліковано: 17 вересня 2017 Вадим, Татьяна, спасибо вам большое за активное участие в теме. Очень ценю ваше мнение и правда прислушиваюсь к нему! Добавлено через 3 минуты Спальни получаются совсем крохотные, а гостинная около 40 квадратов . Не тесно в спальнях Вам? Добавлено через 4 минуты Ниши в спальнях - гардеробы? В нишах - встроенные шкафы, спальни метров 11-12, мне идеально, я в спальных сплю, гостиная - да, если бы была 60 квадратов, было бы лучше . Этот дом я делала по свои потребности Посилання на коментар Поділитися на інших сайтах More sharing options...
vadimv Опубліковано: 17 вересня 2017 Поділитись Опубліковано: 17 вересня 2017 Спальни получаются совсем крохотныеСамое главное, что их там две. Если планируете расширение семьи, то двух спален маловато будет. Посилання на коментар Поділитися на інших сайтах More sharing options...
balcheg Опубліковано: 17 вересня 2017 Автор Поділитись Опубліковано: 17 вересня 2017 Самое главное, что их там две. Если планируете расширение семьи, то двух спален маловато будет. Да, именно об этом я и подумал Мне не подходит. Пойду покопаюсь ещё на польских сайтах Посилання на коментар Поділитися на інших сайтах More sharing options...
vadimv Опубліковано: 17 вересня 2017 Поділитись Опубліковано: 17 вересня 2017 Пойду покопаюсь ещё на польских сайтах А как вам такой вариант: Посилання на коментар Поділитися на інших сайтах More sharing options...
dmitriylaser Опубліковано: 17 вересня 2017 Поділитись Опубліковано: 17 вересня 2017 Плохо .. а я уже ж определился Прийдется поискать, что-то другое. А почему для Z7учаток узковат? 8 метров как никак ваканных остается. А что у Вас с соседями? Есть-ли близко постройки? Может есть возможность прижать дом к левой(северо-западной меже)? Тогда вход можно было-бы делать справа. Посилання на коментар Поділитися на інших сайтах More sharing options...
balcheg Опубліковано: 17 вересня 2017 Автор Поділитись Опубліковано: 17 вересня 2017 А как вам такой вариант: Вариант то неплохой, но выглядит менее бюджетно чем Z7. И разве по сторонам света не теже проблемы? А где можно этот проект глянуть подробнее? Добавлено через 51 секунду А что у Вас с соседями? Есть-ли близко постройки? Может есть возможность прижать дом к левой(северо-западной меже)? Тогда вход можно было-бы делать справа. Соседских зданий на том уровне, где планирую строить нет совсем. Могу прижиматься как хочу Посилання на коментар Поділитися на інших сайтах More sharing options...
vadimv Опубліковано: 17 вересня 2017 Поділитись Опубліковано: 17 вересня 2017 Вариант то неплохой, но выглядит менее бюджетно чем Z7. И разве по сторонам света не теже проблемы?По сути, это тот же Z7, только развернутый, с несущей стеной по центру и с перенесенной на юг террасой. За счет несущей стены можно уйти от ферм, а за счет разворота получаются окна 2 спален и гостиной на юго-восток (а не на северо-восток), а кухни и одной спальни - на северо-запад (а не на юго-запад). А на юго-запад (к дороге) выход из кухни и гостиной на террасу. 1 Посилання на коментар Поділитися на інших сайтах More sharing options...
balcheg Опубліковано: 17 вересня 2017 Автор Поділитись Опубліковано: 17 вересня 2017 По сути, это тот же Z7, только развернутый, с несущей стеной по центру и с перенесенной на юг террасой. За счет несущей стены можно уйти от ферм, а за счет разворота получаются окна 2 спален и гостиной на юго-восток (а не на северо-восток), а кухни и одной спальни - на северо-запад (а не на юго-запад). А на юго-запад (к дороге) выход из кухни и гостиной на террасу. Действительно .. сразу не заметил )) А что скажите по поводу такого проекта у Муратор? www.proekty-muratordom.com/proekt_zelenyi-sad-variant-iii,2499,0,0.htm?c=53&lpt=4&sd_0=20&sd_1=&wsk_1=&pz_1=&pz_0=&pw=0&pc_0=&pc_1=&gd_0=&gd_1=&web_0=&wsk_0=&web_1=&v=1&knd_1=&knd_0=&pn_1=&pn_0=&p_0=80&p_1=110&a=&c=53&g=0&kd=1&kd=2&wk_1=&wk_0=&o=&q=&wef_0=&wef_1=&t=1&wo_1=&wo_0= Мне выглядит вполне интересным вариантом Посилання на коментар Поділитися на інших сайтах More sharing options...
vadimv Опубліковано: 17 вересня 2017 Поділитись Опубліковано: 17 вересня 2017 А что скажите по поводу такого проекта у Муратор? www.proekty-muratordom.com/proekt_zelenyi-sad-variant-iii,2499,0,0.htm?c=53&lpt=4&sd_0=20&sd_1=&wsk_1=&pz_1=&pz_0=&pw=0&pc_0=&pc_1=&gd_0=&gd_1=&web_0=&wsk_0=&web_1=&v=1&knd_1=&knd_0=&pn_1=&pn_0=&p_0=80&p_1=110&a=&c=53&g=0&kd=1&kd=2&wk_1=&wk_0=&o=&q=&wef_0=&wef_1=&t=1&wo_1=&wo_0=Тут санузел оттянули от кухни и топочной, что раздувает размеры и удорожает бюджет стройки. А так - еще одна вариация на тему Z7. Посилання на коментар Поділитися на інших сайтах More sharing options...
balcheg Опубліковано: 17 вересня 2017 Автор Поділитись Опубліковано: 17 вересня 2017 Хотя нет .. теже проблемы что и с Z7 Посилання на коментар Поділитися на інших сайтах More sharing options...
dmitriylaser Опубліковано: 17 вересня 2017 Поділитись Опубліковано: 17 вересня 2017 Хотя нет .. теже проблемы что и с Z7 Вы определитесь с направлениями основных комнат по сторонам света и нужна-ли вам терраса и куда она будет выходить. Вот хоть и не очень удачная планировка - но по расположению комнат думаю вам подойдет. www.studioatrium.pl/projekty-domow/Remik-max-sz,1351.html 1 Посилання на коментар Поділитися на інших сайтах More sharing options...
Andrei constructor Опубліковано: 17 вересня 2017 Поділитись Опубліковано: 17 вересня 2017 Строили такой и его модификации 92,6 м2. Посилання на коментар Поділитися на інших сайтах More sharing options...
vadimv Опубліковано: 18 вересня 2017 Поділитись Опубліковано: 18 вересня 2017 Вот хоть и не очень удачная планировка - но по расположению комнат думаю вам подойдет. www.studioatrium.pl/projekty-domow/Remik-max-sz,1351.htmlА вот пара упрощенных вариантов, осталось только поменять местами вход и санузел, и пририсовать на входе крыльцо, а из гостиной террасу: Посилання на коментар Поділитися на інших сайтах More sharing options...
balcheg Опубліковано: 18 вересня 2017 Автор Поділитись Опубліковано: 18 вересня 2017 Всем спасибо за советы, ответы. Очень полезная информация. Сейчас реально начал понимать, на что обращать внимание по проектам, чего опасаться и чего избегать. А позвольте поинтересоваться у вас вот таким вопросом: если, к примеру, вернуться к истокам ... Скажите .. а мансардник и одноэтажник сильно по цене будут отличаться? Я понял, что мой участок таки узкий и действительно тот же Z7 войдет в притирочку. Тоесть либо искать проекты для узких участков (проект предложенный Вадимом держу во внимании как очень перспективный), либо построить таки мансардник. Эстетически выглядят они очень красиво. Помимо понятных неудобств, по цене мансардник не выглядит существенно дороже. одни работы удорожаются, другие экономятся. Тот же www.proekty-muratordom.com/proekt_ukromnyi,127,0,0.htm?c=54&page=3 очень нравится жене .. но опять же "недостой" никому не нужен. Добавлено через 11 минут Так же вчера надыбал вот такие проекты: dom4m.com.ua/proekt-prostogo-odnoetazhnogo-kottedzha-s-cherdakom-uaru-4M146/ и вот такого: dom4m.com.ua/proekt-odnoetazhnogo-kottedzha-s-tremya-spalnyami-i-dvuskatnoy-kryshey-uaru-4M414/ Посилання на коментар Поділитися на інших сайтах More sharing options...
vadimv Опубліковано: 18 вересня 2017 Поділитись Опубліковано: 18 вересня 2017 (змінено) а мансардник и одноэтажник сильно по цене будут отличаться? Ну-у-у, это тема для отдельного холивара, почитайте www.stroimdom.com.ua/forum/showthread.php?t=33038&highlight=%EE%E4%ED%EE%FD%F2%E0%E6%ED%FB%E9+%E8%EB%E8+%E4%E2%F3%F5%FD%F2%E0%E6%ED%FB%E9 ИМХО, в сегменте до 100 кв.м (примерно) рациональнее одноэтажник. А в сегменте больше 100 - мансардник или двухэтажник. Но у вас есть один нюанс - за счет добавления второго этажа можно нивелировать недостатки участка и получить больше света в гостиной и спальнях. Есличо, двухэтажные планировки у меня тоже есть. Тот же www.proekty-muratordom.com/proekt_ukromnyi,127,0,0.htm?c=54&page=3 очень нравится жене ..ИМХО, лестница с забежными ступенями очень неудобна (и опасна) в эксплуатации, особенно если есть дети. И два балкона - как по мне перебор. Даже одного в частном доме нафиг надо. Разве что у вас со второго этажа вид на Ривьеру. :D Так же вчера надыбал вот такие проекты: dom4m.com.ua/proekt-prostogo-odnoetazhnogo-kottedzha-s-cherdakom-uaru-4M146/ и вот такого: dom4m.com.ua/proekt-odnoetazhnogo-kottedzha-s-tremya-spalnyami-i-dvuskatnoy-kryshey-uaru-4M414/ Ну принципиально они особо не отличаются от Z7 и Z10. Вы главное определитесь, два этажа или один, куда окна спален и кухни-гостиной, откуда вход и где терраса. Змінено 18 вересня 2017 користувачем vadimv Посилання на коментар Поділитися на інших сайтах More sharing options...
balcheg Опубліковано: 18 вересня 2017 Автор Поділитись Опубліковано: 18 вересня 2017 Есличо, двухэтажные планировки у меня тоже есть. Поделитесь примерами? Посилання на коментар Поділитися на інших сайтах More sharing options...
vadimv Опубліковано: 18 вересня 2017 Поділитись Опубліковано: 18 вересня 2017 Поделитесь примерами?Ну вот, например, супер-пупер-бюджетный вариант площадью 90 кв.м (5х9х2 этажа) специально для узкого участка. Пролет между стенами 5 м, можно перекрывать деревянными балками, плитами или монолитом. Крыша двускатная на мансардных стенах высотой порядка 1,5 м. Можно и односкатку сделать. При желании вход можно зеркально отразить налево. Если котельная не нужна, можно за счет нее увеличить санузел на первом этаже, и вообще убрать его на втором, при этом там получатся две спальни 4х5, одна на юго-запад (потеплее), вторая на северо-восток (для любителей прохлады). Посилання на коментар Поділитися на інших сайтах More sharing options...
vadimv Опубліковано: 18 вересня 2017 Поділитись Опубліковано: 18 вересня 2017 Или вариант на 96 кв.м (6х8х2 этажа). Три спальни, кабинет (одну спальню можно объединить с кабинетом и сделать мастер-спальню 6х4). Несущая стена по центру, пролеты 4 м можно перекрывать деревянными балками, плитами или монолитом. Крыша двускатная на мансардных стенах и центральной стене. Посилання на коментар Поділитися на інших сайтах More sharing options...
vadimv Опубліковано: 18 вересня 2017 Поділитись Опубліковано: 18 вересня 2017 Следующая планировка на 108 кв.м (6х9х2 этажа), как вариант увеличения первой планировки. Посилання на коментар Поділитися на інших сайтах More sharing options...
Рекомендовані повідомлення
Створіть акаунт або увійдіть у нього для коментування
Ви маєте бути користувачем, щоб залишити коментар
Створити акаунт
Зареєструйтеся для отримання акаунта. Це просто!
Зареєструвати акаунтУвійти
Вже зареєстровані? Увійдіть тут.
Увійти зараз