shneider_vova Опубліковано: 2 березня 2018 Автор Поділитись Опубліковано: 2 березня 2018 Утеплять стену холодного чердака? Бредовый совет. Это всё равно что выйти голым на мороз в шапке. Просто делать ступеньку на фасадной части фронтона - некрасиво. Утеплителем дотяните, что бы красоту соблюсти. Но на жизнедеятельность этого треугольника (холодного) никак не повлияет. Я понял совет так: если утеплять стену, то ее утеплить и снаружи, и внутри треугольника, чтобы не было промерзания по самой стене . Но для меня, как я понимаю, не актуально Посилання на коментар Поділитися на інших сайтах More sharing options...
yriy1 Опубліковано: 2 березня 2018 Поділитись Опубліковано: 2 березня 2018 или завернуть на затяжку? это будет лучше утеплитель ( мансарды) от 250 мм Посилання на коментар Поділитися на інших сайтах More sharing options...
shneider_vova Опубліковано: 2 березня 2018 Автор Поділитись Опубліковано: 2 березня 2018 это будет лучше утеплитель ( мансарды) от 250 мм Планирую 200 по стропилам и 100 под. Кстати, посоветуйте, у кого посмотреть, как правильно делать в таком случае. Вижу 2 варианта: 1) Утеплитель закладывается между стропил, перевязывается ниткой. Затем бьется обрешетка из бруска 50*50 на ножках (чтобы получить глубину 100 мм), закладывается утеплитель 100 мм. Затем пароизоляция крепится к обрешетке скобами. Затем поверх на эту же обрешетку крепится гипсокартон. Что не нравится в таком варианте - обрешетка на ножках; крепление гипсокартона непосредственно к дереву; куча отверстий в пароизоляции. 2) Утеплитель закладывается между стропил, перевязывается ниткой. Затем крепятся профиля под гипсокартон так, чтобы выдержать расстояние 100 мм от плоскости стропил (а так можно???). Зазор 100 мм заполняется ватой, пароизоляия клеится на двухсторонний скотч к проифлям, затем сверху крепится гипсокартон. Возможен и такой подвариант - сначала крепится 1 слой гипсокартона, потом на него клеится пароизоляция, затем еще 1 слой гипсокартона. Буду благодарен, если тыкните носом, у кого в темах это было хорошо описано. Посилання на коментар Поділитися на інших сайтах More sharing options...
yriy1 Опубліковано: 2 березня 2018 Поділитись Опубліковано: 2 березня 2018 Планирую 200 по стропилам и 100 под гуд можно прямо к стропилам прикрутить длинные пешки в последствии к ним тексами прикрепятся профиля ГК которые в свою очередь прижмут и будут держать вату, места протыкивания паробарьера пешками проклеить делта мульти бенд это все приусловии что тот слой ваты ( 100мм) будет плотностью от 50кг/м3 1 Посилання на коментар Поділитися на інших сайтах More sharing options...
shneider_vova Опубліковано: 2 березня 2018 Автор Поділитись Опубліковано: 2 березня 2018 А еще момент - при утеплении по треугольнику получится, что горизонтальный участок утеплителя сверху ничем не закрыт. Не будет момента выдувания волокон? понятно, что деться им некуда - сверху там СДМ, но теоретически могут ухудшаться тепловые характеристики Посилання на коментар Поділитися на інших сайтах More sharing options...
yriy1 Опубліковано: 3 березня 2018 Поділитись Опубліковано: 3 березня 2018 А еще момент - при утеплении по треугольнику получится, что горизонтальный участок утеплителя сверху ничем не закрыт. Не будет момента выдувания волокон? понятно, что деться им некуда - сверху там СДМ, но теоретически могут ухудшаться тепловые характеристики Ложите всю вату по трапеции 1 Посилання на коментар Поділитися на інших сайтах More sharing options...
#roofinspector Опубліковано: 3 березня 2018 Поділитись Опубліковано: 3 березня 2018 Не будет момента выдувания волокон? понятно, что деться им некуда - сверху там СДМ, но теоретически могут ухудшаться тепловые характеристики выдвание ТЕПЛА а не волокон. да, будет, это немного повлияет на теплосопротивление конструкции. лучше укрыть чем нибудь прочным и паропроницаемым. в идеале настил из досок с прозорами 3-5 мм Посилання на коментар Поділитися на інших сайтах More sharing options...
yriy1 Опубліковано: 3 березня 2018 Поділитись Опубліковано: 3 березня 2018 выдвание ТЕПЛА а не волокон. да, будет, это немного повлияет на теплосопротивление конструкции. лучше укрыть чем нибудь прочным и паропроницаемым. в идеале настил из досок с прозорами 3-5 мм У себя поверх ваты сделал такой настил из досок и щели в основном такие Но со временем ( когда доски окончательно высохли) потратил время и все щели запенил Учитывая что у меня очень качественно выполнена пароизоляция снизу Посилання на коментар Поділитися на інших сайтах More sharing options...
shneider_vova Опубліковано: 3 березня 2018 Автор Поділитись Опубліковано: 3 березня 2018 Просто в тот треугольник доступ сверху будет только до установки сдм, потом туда не попасть, в том числе и при утеплении. Посилання на коментар Поділитися на інших сайтах More sharing options...
yriy1 Опубліковано: 3 березня 2018 Поділитись Опубліковано: 3 березня 2018 Просто в тот треугольник доступ сверху будет только до установки сдм, потом туда не попасть, в том числе и при утеплении. Ну и ненадо, зачем вам туда лазить? Посилання на коментар Поділитися на інших сайтах More sharing options...
shneider_vova Опубліковано: 3 березня 2018 Автор Поділитись Опубліковано: 3 березня 2018 Ну и ненадо, зачем вам туда лазить? Чтобы эти доски набить Посилання на коментар Поділитися на інших сайтах More sharing options...
yriy1 Опубліковано: 3 березня 2018 Поділитись Опубліковано: 3 березня 2018 Чтобы эти доски набить Блин, а зачем Вам там доски если там ходить ( лазить) не будите Ставьте там гидроизоляцию ( какую нибудь мембрану) и все Посилання на коментар Поділитися на інших сайтах More sharing options...
shneider_vova Опубліковано: 14 березня 2018 Автор Поділитись Опубліковано: 14 березня 2018 Пока решил делать кровлю с профлиста - есть с очень хорошей скидкой. Приедет - еще гляну, в крайнем случае - можно покрасить в следующем году, цену вопроса вчера прикинул примерно - 10-12 тыс на материалы. За счет экономии на финишном покрытии хочу сделать понадежнее все остальные составляющие кровли, чтобы безболезненно можно было потом поменять. По супердиффузионной мембране - кровельщики, которые специализируются на натуральной черепице, советовали брать плотностью от 160 гр/м2 - говорят, что при меньшей плотности замечали микронадрывы в процессе монтажа перед накрытием черепицы. Стыки мембран буду проклеивать - для возможности устройства мансарды. Delta слишком дорогая, смотрю Juta. Вот вариант с плотснотью 160 Евробарьер Q160, к нему нужен еще рулон ленты (стоимость хорошей ленты в районе 800 грн). Тут глаз упал на Евробарьер 210 Супер. У нее есть клеящая полоса, то есть лента ей не нужна.При этом прочностные характеристики в 2 раза выше. Мне нужно 4 рулона. Общая переплата (Евробарьер 210 или Евробарьер 160 + лента) - порядка 3 тыс грн на всю кровлю. Стоит взять усиленную мембрану или и так перестраховка? Посилання на коментар Поділитися на інших сайтах More sharing options...
tansss Опубліковано: 14 березня 2018 Поділитись Опубліковано: 14 березня 2018 Прикидка на м2 ОСБ -70 Подкладочный - 40 БЧ Ранчо -140 итого 250 на вашей кровле 255м2 = 64000 Разница - в 2000 долляров Лучше сделайте норм крышу а сэкономьте на ИС или отделке. Всё имхо Посилання на коментар Поділитися на інших сайтах More sharing options...
shneider_vova Опубліковано: 14 березня 2018 Автор Поділитись Опубліковано: 14 березня 2018 Прикидка на м2 ОСБ -70 Подкладочный - 40 БЧ Ранчо -140 итого 250 на вашей кровле 255м2 = 64000 Разница - в 2000 долляров Лучше сделайте норм крышу а сэкономьте на ИС или отделке. Всё имхо ОСБ вижу по 90. Ранчо 156 (да и сама модель эконом класса). Ещё всякие доборы, мастики, гвозди 5-10. Увеличение стоимости по работам 25-30 тыс. И получим 4000 уе. Я не то,чтобы спорю - Ваше мнение понятно и имеет под собой основание. Но я пока вижу так. Посилання на коментар Поділитися на інших сайтах More sharing options...
blin09 Опубліковано: 14 березня 2018 Поділитись Опубліковано: 14 березня 2018 По супердиффузионной мембране - кровельщики, которые специализируются на натуральной черепице, советовали брать плотностью от 160 гр/м2 - говорят, что при меньшей плотности замечали микронадрывы в процессе монтажа перед накрытием черепицы.На пробу брал Евробарьер Плюс 135 так чтобы его порвать или микронадрыв сделать нужно постараться, но конечно можно взять и плотнее. Посилання на коментар Поділитися на інших сайтах More sharing options...
yriy1 Опубліковано: 14 березня 2018 Поділитись Опубліковано: 14 березня 2018 Плановых переделок нужно категорически избигать Других переделок итак достаточное количество повылазит Посилання на коментар Поділитися на інших сайтах More sharing options...
Dendnepr Опубліковано: 13 вересня 2019 Поділитись Опубліковано: 13 вересня 2019 Насколько внес изменения в проект? у меня ширина дома чуть меньше, 9500 по наружным стенам. по осям мауэрлата 8900 и планируется конек опереть на колонны, как раз по всей длине по центру дома несущие стены. да и прогоны есть на что опереть Посилання на коментар Поділитися на інших сайтах More sharing options...
shneider_vova Опубліковано: 13 вересня 2019 Автор Поділитись Опубліковано: 13 вересня 2019 Насколько внес изменения в проект? у меня ширина дома чуть меньше, 9500 по наружным стенам. по осям мауэрлата 8900 и планируется конек опереть на колонны, как раз по всей длине по центру дома несущие стены. да и прогоны есть на что опереть Сделал все по проекту. Единственно, что посередине одного прогона я возвел вентиляционную шахту , поэтому прогон пришлось разрезать 1 Посилання на коментар Поділитися на інших сайтах More sharing options...
dvirodov Опубліковано: 7 липня 2020 Поділитись Опубліковано: 7 липня 2020 А как крепили стропило к прогонам и маурлату? В плане какие крепления исползовали? Посилання на коментар Поділитися на інших сайтах More sharing options...
shneider_vova Опубліковано: 8 липня 2020 Автор Поділитись Опубліковано: 8 липня 2020 А как крепили стропило к прогонам и маурлату? В плане какие крепления исползовали? как то так: на оцинкованные уголки, стропило крепиться на шпильку, уголок в мауэрлат и прогон - на гвозди + шурупы 6 мм (кажется). Стропило подрезано, за качеством подрезки (чтобы стропило легло горизонтальной плоскостью на мауэрлат/прогон) - особо следил: 1 Посилання на коментар Поділитися на інших сайтах More sharing options...
dvirodov Опубліковано: 8 липня 2020 Поділитись Опубліковано: 8 липня 2020 А уголки какого размера брали? Посилання на коментар Поділитися на інших сайтах More sharing options...
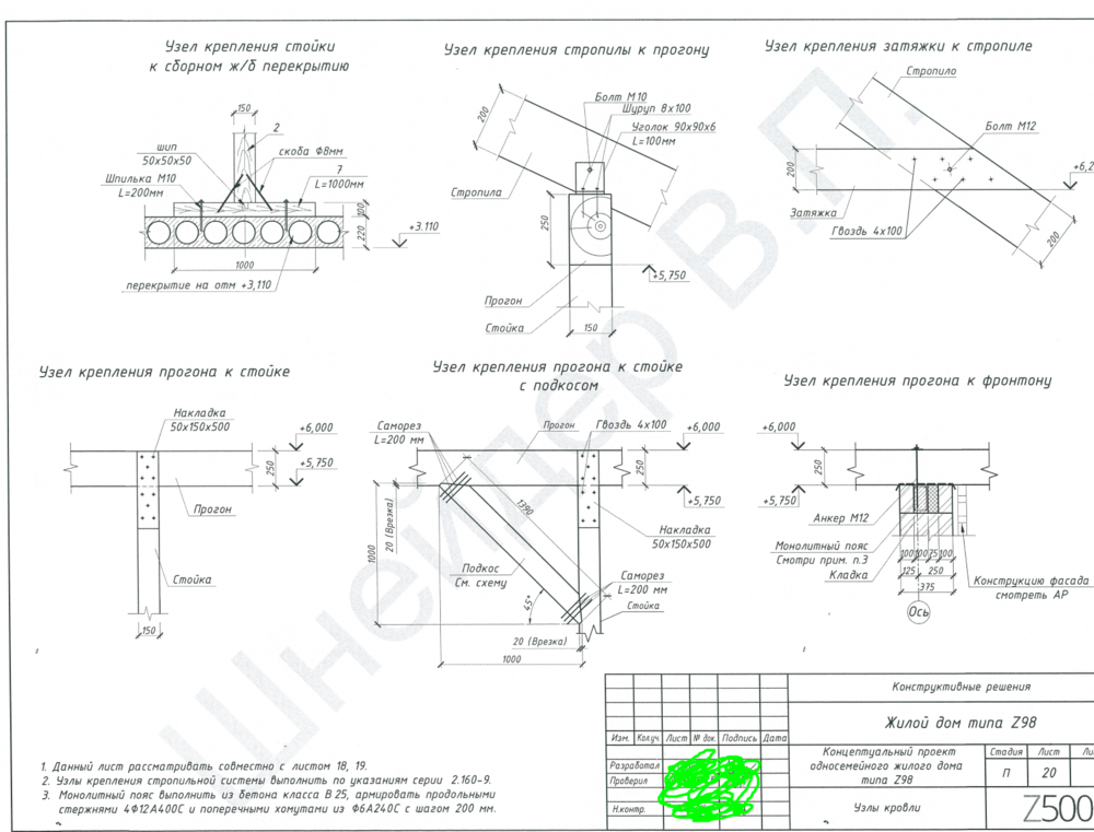
shneider_vova Опубліковано: 8 липня 2020 Автор Поділитись Опубліковано: 8 липня 2020 А уголки какого размера брали? приложил страницы с проекта, там все есть. в проекте 90*6 (то есть черные), я ставил 90*2 усиленные. 1 Посилання на коментар Поділитися на інших сайтах More sharing options...
tansss Опубліковано: 8 липня 2020 Поділитись Опубліковано: 8 липня 2020 2ТС, А вы когда крайний раз "обжимали" крепления? Посилання на коментар Поділитися на інших сайтах More sharing options...
shneider_vova Опубліковано: 8 липня 2020 Автор Поділитись Опубліковано: 8 липня 2020 2ТС, А вы когда крайний раз "обжимали" крепления? в смысле шпильки? Посилання на коментар Поділитися на інших сайтах More sharing options...
Рекомендовані повідомлення
Створіть акаунт або увійдіть у нього для коментування
Ви маєте бути користувачем, щоб залишити коментар
Створити акаунт
Зареєструйтеся для отримання акаунта. Це просто!
Зареєструвати акаунтУвійти
Вже зареєстровані? Увійдіть тут.
Увійти зараз