taras_vn Опубліковано: 13 березня 2018 Поділитись Опубліковано: 13 березня 2018 Добрый день. Есть участок 9 соток. Сделана разметка и посажен сад и виноградник. Сейчас на стадии выбора проекта, пока предпочтения z308. Просматривая очередное видео в ютубе на тему септика понял, что этот вопрос в планировании участка я не учел. Сад и виноград уже растут и их двигать нет возможности, поэтому нужно исходить из того, что есть. Поэтому нужен совет, где лучше расположить септик. Хотя и с схемой самого септика еще точного понимания нет. Как вариант первые два колодца бетонировать снизу, а дальше делать дренажное поле из трех линий трубы между рядами винограда с ревизионными колодцами. Ставить септик слева от дома и возле дороги не хочется, т.к. очень близко к фудаменту. И если сделать систему из трех колодцев, то думаю что будет подмокать фундамент и сырость проходить в дом. Да и с лева от дома планируется заезд машины и навес. Схема участка прилагается. Посилання на коментар Поділитися на інших сайтах More sharing options...
lastandr Опубліковано: 13 березня 2018 Поділитись Опубліковано: 13 березня 2018 (змінено) Да,уж,с садом немного поспешили...ведь еще стройка впереди, а для нее нужны удобные площадки и проезды для работы стройтехники. А касаемо септика,то для него есть определенные нормы по размещению, если не изменяет память,то основные - это 15м от водозаборной скважины(колодца) и 5м от дома. Змінено 13 березня 2018 користувачем lastandr Посилання на коментар Поділитися на інших сайтах More sharing options...
taras_vn Опубліковано: 13 березня 2018 Автор Поділитись Опубліковано: 13 березня 2018 Да,уж,с садом немного поспешили...ведь еще стройка впереди, а для нее нужны удобные площадки и проезды для работы стройтехники. Да, определенные не удобства есть, но участок слева пока свободен, а сад до плодоношения 4-5 лет расти должен. Не хочу терять время. Добавлено через 3 минуты А касаемо септика,то для него есть определенные нормы по размещению, если не изменяет память,то основные - это 15м от водозаборной скважины(колодца) и 6м от дома. Что касаемо колодца, то тут все нормально. А вот расстояние 6 метров от дома можно выдержать только если септик дальше к винограду (вправо ) смежать, хотя тут меня смущает что дренажное поле в винограднике будет, а т.к. у меня грун глина, то без него не обойтись. Посилання на коментар Поділитися на інших сайтах More sharing options...
lastandr Опубліковано: 13 березня 2018 Поділитись Опубліковано: 13 березня 2018 расстояние 6 метров от дома Уточню,минимум - 5м.Вот картинка для наглядности: 2 Посилання на коментар Поділитися на інших сайтах More sharing options...
bunak Опубліковано: 13 березня 2018 Поділитись Опубліковано: 13 березня 2018 Как вариант первые два колодца бетонировать снизу, а дальше делать дренажное поле из трех линий трубы между рядами винограда с ревизионными колодцами.В первый колодец трубы 10м и 3.5м войдут разными уровнями по вертикали. Разница сходу будет 18 см. Не критично? Не смущает слив нечистот в виноградник? Я тут специальную тему начал по этому вопросу. Ставить септик слева от дома и возле дороги не хочется, т.к. очень близко к фудаменту. И если сделать систему из трех колодцев, то думаю что будет подмокать фундамент и сырость проходить в дом. Да и с лева от дома планируется заезд машины и навес. Колодцы не должны протекать. Больше должны обращать внимание на дренаж, как он возможно будет мочить ваш фундамент Посилання на коментар Поділитися на інших сайтах More sharing options...
lastandr Опубліковано: 13 березня 2018 Поділитись Опубліковано: 13 березня 2018 В первый колодец трубы 10м и 3.5м войдут разными уровнями по вертикали. Разница сходу будет 18 см. Не критично? А чем оно может быть "критично"?, и ,кстати, эти трубы можно запросто свести в одну... Посилання на коментар Поділитися на інших сайтах More sharing options...
naupv Опубліковано: 13 березня 2018 Поділитись Опубліковано: 13 березня 2018 Виноград на дренаже погибнет. Впрочем как и любые деревья и кустарники. Посилання на коментар Поділитися на інших сайтах More sharing options...
taras_vn Опубліковано: 13 березня 2018 Автор Поділитись Опубліковано: 13 березня 2018 Виноград на дренаже погибнет. Впрочем как и любые деревья и кустарники. Да, меня это тоже смущало. Наверное нужно будет убрать первые кусты в каждом ряду. Не делать дренажное поле между рядами. А поставить 4 колодца вдоль дороги так чтобы первый был на расстоянии 5 метров от угла дома. Но в этом случае длина трубы от ванной до первого колодца будет 12-13 метров. Это наверное многовато или нормально? Посилання на коментар Поділитися на інших сайтах More sharing options...
naupv Опубліковано: 13 березня 2018 Поділитись Опубліковано: 13 березня 2018 Если прямой участок, пох. Посилання на коментар Поділитися на інших сайтах More sharing options...
lastandr Опубліковано: 13 березня 2018 Поділитись Опубліковано: 13 березня 2018 длина трубы от ванной до первого колодца будет 12-13 метров. Это наверное многовато или нормально? Я же уже писал,что трубы можно (и лучше)свести в одну,еще внутри дома... Посилання на коментар Поділитися на інших сайтах More sharing options...
taras_vn Опубліковано: 13 березня 2018 Автор Поділитись Опубліковано: 13 березня 2018 Я же уже писал,что трубы можно (и лучше)свести в одну,еще внутри дома... В моем случае нужно либо с кухни через весь дом в ванную, а потом 12-13 метров до первого колодца или наоборот. С туалета в ванную, а потом через кухню и в колодец. Первый вариант не имеет никакого смысла. Во втором, если по пути с туалета где-то на повороте в кухне труба со временем засориться, чистить ее будет очень проблематично. Одно дело когда есть цокольный этаж и все трубы доступны, а совсем другое когда все трубы будут забетонированы под стяжкой. Добавлено через 2 минуты Если прямой участок, пох. Т.е. главное сделать правильный уклон. А какой он должен быть при таких расстояниях? Посилання на коментар Поділитися на інших сайтах More sharing options...
lastandr Опубліковано: 13 березня 2018 Поділитись Опубліковано: 13 березня 2018 Я смотрю,с трубами у вас не очень...Обратитесь лучше к специалистам. А в двух словах: непосредственно ванна и кухонная мойка подключаются трубой д=50мм, а унитаз трубой д=110мм, и вывод из дома - тоже д-110мм. Удачи в постройке дома... 1 Посилання на коментар Поділитися на інших сайтах More sharing options...
Dex-paketa Опубліковано: 13 березня 2018 Поділитись Опубліковано: 13 березня 2018 Во втором, если по пути с туалета где-то на повороте в кухне труба со временем засориться, чистить ее будет очень проблематично. Одно дело когда есть цокольный этаж и все трубы доступны, а совсем другое когда все трубы будут забетонированы под стяжкой. Да ну, перестаньте. Есть кучу средств и инструментов для пробивки. И я вообще не представляю, какие должны быть условия эксплуатации, чтобы забилась труба. Вернее, какие мозги должны быть у пользователей этой трубы. Я бы все свел в кухню, из кухни в септик. Дренажные поля однозначно подальше от винограда, вплоть до уничтожения последнего если нет возможности пересадить. Но я бы рассмотрел вариант сдвинуть септик влево и пустить дренажные поля влево, а не в сад. Тогда и трубы можно пустить не из кухни, а с ванной, если септик подвинуть. Минимум 5 метров от окон и дверей - полагаю, чтобы запахи не заходили. Может тогда вентиляцию из септика трубами отвести подальше? Вообще не вижу каких-то особых проблем. Влепить под забором перед домом и готово Посилання на коментар Поділитися на інших сайтах More sharing options...
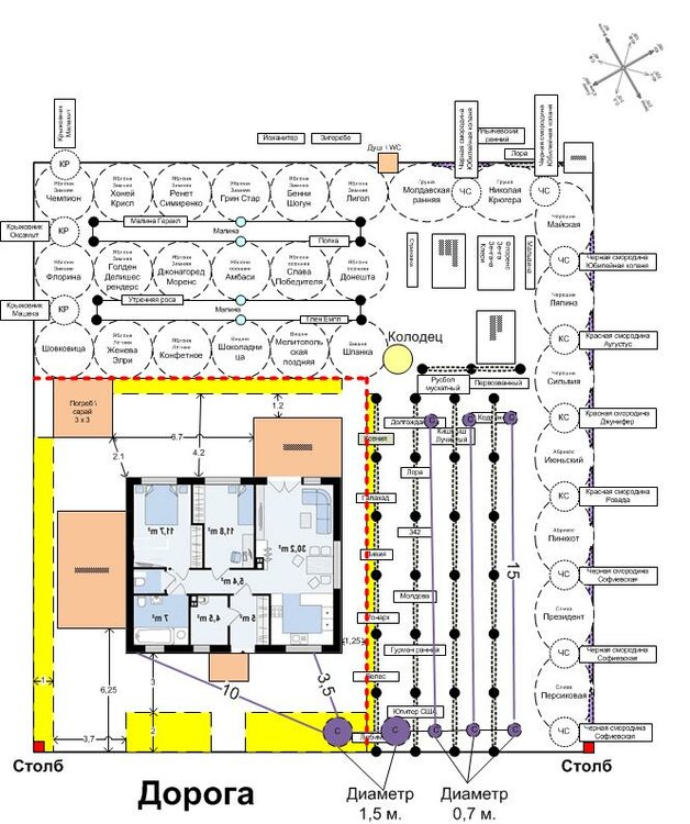
taras_vn Опубліковано: 13 березня 2018 Автор Поділитись Опубліковано: 13 березня 2018 Но я бы рассмотрел вариант сдвинуть септик влево и пустить дренажные поля влево, а не в сад. Тогда и трубы можно пустить не из кухни, а с ванной, если септик подвинуть. Минимум 5 метров от окон и дверей - полагаю, чтобы запахи не заходили. Может тогда вентиляцию из септика трубами отвести подальше? Вообще не вижу каких-то особых проблем. Влепить под забором перед домом и готово Первый вариант у меня был сделать слева от дома (выделен синим), но он плох тем, что там заезд и навес для машины. Второй вариант, да это перед домом (выделен красным). Он лучше, но смущает то, что близко к дому дренаж будет. И со временем вода может начать уходить под дом. Расстояние от дома до дороги 5 метров, от колодцев до дома будет примерно 3 метра. Так же не знаю может ли это как-то повлиять, но участок 30 на 30 метром и имеет минимальны уклон от дороги в глубь участка. на 30 метра перепад возможно 30-40 см. Посилання на коментар Поділитися на інших сайтах More sharing options...
Dex-paketa Опубліковано: 13 березня 2018 Поділитись Опубліковано: 13 березня 2018 Как по мне то ничего дому от дренажа не будет. 3 метра более чем достаточно. Это же дренажные поля, там же нет какого-то направленного в сторону фундамента ручья, что ему будет? А если совсем стремно - закопать какой-то барьер между полями и домом на пол метра, типа пластикового забора или еще какой хрени. Посилання на коментар Поділитися на інших сайтах More sharing options...
bunak Опубліковано: 14 березня 2018 Поділитись Опубліковано: 14 березня 2018 А чем оно может быть "критично"?, и ,кстати, эти трубы можно запросто свести в одну... 0.18м * 1,79м2 S(d=1.5м) = 0,318078 м3. Я бы не терял бы такой объем септика. И второй колодец придется глубже садить и дренаж если самотеком. А УГВ позволяет? Виноград на дренаже погибнет. Впрочем как и любые деревья и кустарники. Народ пишет что кусты растут как ракеты. Виноград тоже вроде-бы воду любит, тут я не спец. Только деревья могут дренаж сломать корнями Добавлено через 4 минуты Но в этом случае длина трубы от ванной до первого колодца будет 12-13 метров. Это наверное многовато или нормально?Длина трубы будет влиять на глубину всего септика и ГЛАВНОЕ на глубину дренажа. Какой у Вас УГВ? Добавлено через 2 минуты Я же уже писал,что трубы можно (и лучше)свести в одну,еще внутри дома... А почему лучше? Добавлено через 1 минуту Дренажные поля однозначно подальше от винограда, вплоть до уничтожения последнего если нет возможности пересадить.Почему ? Добавлено через 3 минуты Первый вариант у меня был сделать слева от дома (выделен синим), но он плох тем, что там заезд и навес для машины. А то что там погреб близко? Он больше попадет под раздачу чем фундамент дома, за который вы переживаете Посилання на коментар Поділитися на інших сайтах More sharing options...
lastandr Опубліковано: 14 березня 2018 Поділитись Опубліковано: 14 березня 2018 А почему лучше? в двух словах: непосредственно ванна и кухонная мойка подключаются трубой д=50мм, а унитаз трубой д=110мм, и вывод из дома - тоже д-110мм. ... Надеюсь, так понятно? Посилання на коментар Поділитися на інших сайтах More sharing options...
taras_vn Опубліковано: 14 березня 2018 Автор Поділитись Опубліковано: 14 березня 2018 Какой у Вас УГВ? Колодец 10 метров, выше ничего нет. Посилання на коментар Поділитися на інших сайтах More sharing options...
bunak Опубліковано: 14 березня 2018 Поділитись Опубліковано: 14 березня 2018 Надеюсь, так понятно?Если честно то нет. Почему нельзя д=50мм отдельно тянуть в первый колодец? Думаю что нужно исходить из итоговой стоимости работ+материалов. А также понять что будет если с трубой внутри дома (не в кухне и не в ванной, а например в прихожей - через нее будет проходить под полом труба соединения) что-нить случится - прогнется, треснет, протрухнет резинка, потечет водичка под кафель и прочее? Посилання на коментар Поділитися на інших сайтах More sharing options...
taras_vn Опубліковано: 14 березня 2018 Автор Поділитись Опубліковано: 14 березня 2018 А то что там погреб близко? Он больше попадет под раздачу чем фундамент дома, за который вы переживаете До погреба от дренажа примерно 10 метров, а до фундамента 3 метра. Я конечно расчетов не могу сделать, но мне кажется что вода будет частично уходить вниз, но в радиусе метров пяти по бокам. Может есть смысл дренажный колодец углубить еще на кольцо, чтобы вода расходилась по бокам еще ниже основания фундамента? Посилання на коментар Поділитися на інших сайтах More sharing options...
lastandr Опубліковано: 14 березня 2018 Поділитись Опубліковано: 14 березня 2018 Почему нельзя д=50мм отдельно тянуть в первый колодец? Рассказывать здесь азы матчасти не вижу смысла,попробуйте поискать в инете ... Посилання на коментар Поділитися на інших сайтах More sharing options...
taras_vn Опубліковано: 14 березня 2018 Автор Поділитись Опубліковано: 14 березня 2018 А также понять что будет если с трубой внутри дома (не в кухне и не в ванной, а например в прихожей - через нее будет проходить под полом труба соединения) что-нить случится - прогнется, треснет, протрухнет резинка, потечет водичка под кафель и прочее? Я вот тоже про это думал. На улице при необходимости куда проще провести ремонт, чем делать это в доме. Плюс я думал, если септик делать из трех колодцев, то ванная + туалет в первый колодец, а кухня сразу во второй. А может даже туалет в первый, а ванна + кухня сразу во второй. Вода с ванной и кухни более менее чистая и бактериям с первого колодца тут делать нечего будет. Хотя я не большой специалист в этом, поэтому если ход мысли не правильный, то поправьте. Посилання на коментар Поділитися на інших сайтах More sharing options...
lastandr Опубліковано: 14 березня 2018 Поділитись Опубліковано: 14 березня 2018 Я вот тоже про это думал. На улице при необходимости куда проще провести ремонт, чем делать это в доме. Исходя из такой логики,то совсем без проблем будет,ежели унитаз,ванну и прочее тоже вынести на улицу... Посилання на коментар Поділитися на інших сайтах More sharing options...
Скромный прораб Опубліковано: 14 березня 2018 Поділитись Опубліковано: 14 березня 2018 Девять двухметровых колец, три камеры. Бактерии в помощь и ассенизатора будете вызывать раз в 10+ лет. Из третьей камеры, лет через пять, начнете выкачивать дренажным насосом два раза в год практически чистую воду, под деревья в саду. Совмещая полезное с приятным - весной стартовый и осенью подзимный поливы))). Вся разводка под черновым полом, тянуть в траншее ОДНОЙ трубой. 1 Посилання на коментар Поділитися на інших сайтах More sharing options...
Скромный прораб Опубліковано: 14 березня 2018 Поділитись Опубліковано: 14 березня 2018 .................... Посилання на коментар Поділитися на інших сайтах More sharing options...
Рекомендовані повідомлення
Створіть акаунт або увійдіть у нього для коментування
Ви маєте бути користувачем, щоб залишити коментар
Створити акаунт
Зареєструйтеся для отримання акаунта. Це просто!
Зареєструвати акаунтУвійти
Вже зареєстровані? Увійдіть тут.
Увійти зараз