ivinn Опубліковано: 4 жовтня 2009 Поділитись Опубліковано: 4 жовтня 2009 "Господа присяжные не обессудьте" – выложу только фотографии. Попозже отпишусь комментарием. Скажу кратко. Трудная штука начало. Посилання на коментар Поділитися на інших сайтах More sharing options...
ivinn Опубліковано: 4 жовтня 2009 Автор Поділитись Опубліковано: 4 жовтня 2009 Траншея вырыта ширенной 400 и с расширением в основании до 650/700. Посилання на коментар Поділитися на інших сайтах More sharing options...
ivinn Опубліковано: 4 жовтня 2009 Автор Поділитись Опубліковано: 4 жовтня 2009 Арматура продольная 18, поперечная 10/12. Посилання на коментар Поділитися на інших сайтах More sharing options...
ivinn Опубліковано: 4 жовтня 2009 Автор Поділитись Опубліковано: 4 жовтня 2009 Немного не хватило бетона (В15 П4). Пришлось в срочном порядке гнать миксер на завод (Стрижевский) и докупать 3м3. Заливали в сумерках. В итоге: 10м3 бетона. Дальше будет бутобетон. Посилання на коментар Поділитися на інших сайтах More sharing options...
LaRsoN Опубліковано: 4 жовтня 2009 Поділитись Опубліковано: 4 жовтня 2009 ivinn с началом Вас! Я чуть такое важное событие не пропустила;) С кем договорились, а то у меня фотки не открываются... Посилання на коментар Поділитися на інших сайтах More sharing options...
Gitan Опубліковано: 4 жовтня 2009 Поділитись Опубліковано: 4 жовтня 2009 Что-то я подкладок под арматуру не рассмотрел. Для того чтоб арматура работала в бетоне, она должна находится в теле бетона на расстоянии мин 3см от низа. Посилання на коментар Поділитися на інших сайтах More sharing options...
ivinn Опубліковано: 4 жовтня 2009 Автор Поділитись Опубліковано: 4 жовтня 2009 Что-то я подкладок под арматуру не рассмотрел. Для того чтоб арматура работала в бетоне, она должна находится в теле бетона на расстоянии мин 3см от низа. Перед заливкой под арматуру подкладывали гранитные камни. На фото где идею приём бетона видно как он обволакивает сетку арматуры. Посилання на коментар Поділитися на інших сайтах More sharing options...
Igor_M Опубліковано: 4 жовтня 2009 Поділитись Опубліковано: 4 жовтня 2009 Немного не хватило бетона (В15 П4). Пришлось в срочном порядке гнать миксер на завод (Стрижевский) и докупать 3м3. Заливали в сумерках. В итоге: 10м3 бетона. Дальше будет бутобетон. ПОЗДРАВЛЯЮ с началом... Таки решились. А что - бетон ПРЯМО на щебень лили? Может, потому и не хватило, что все цементное молочко в щебень ушло? Тем более при показателе П4... Посилання на коментар Поділитися на інших сайтах More sharing options...
ivinn Опубліковано: 5 жовтня 2009 Автор Поділитись Опубліковано: 5 жовтня 2009 Cпасибо Всем. Да ....., одна из первых "штанг". Потом хоть и полевал, но от поверхностных трещин не уберёгся. Контроль должен быть постоянно. Посилання на коментар Поділитися на інших сайтах More sharing options...
Михаил Леонтьев Опубліковано: 5 жовтня 2009 Поділитись Опубліковано: 5 жовтня 2009 Самое время строить если есть финансы. Цены на материал на минимуме, надеюсь, что и на работу тоже. Посилання на коментар Поділитися на інших сайтах More sharing options...
Igor_M Опубліковано: 5 жовтня 2009 Поділитись Опубліковано: 5 жовтня 2009 Cпасибо Всем. Да ....., одна из первых "штанг". Потом хоть и полевал, но от поверхностных трещин не уберёгся. Контроль должен быть постоянно. Дык чтоб от штанг уберечься, надобно ДО того рассказывать - что собираетесь делать и как... у меня самого, правда, не получается... Посилання на коментар Поділитися на інших сайтах More sharing options...
Tugarin Опубліковано: 5 жовтня 2009 Поділитись Опубліковано: 5 жовтня 2009 С началом работ! Пусть все движется как запланировано!!! Посилання на коментар Поділитися на інших сайтах More sharing options...
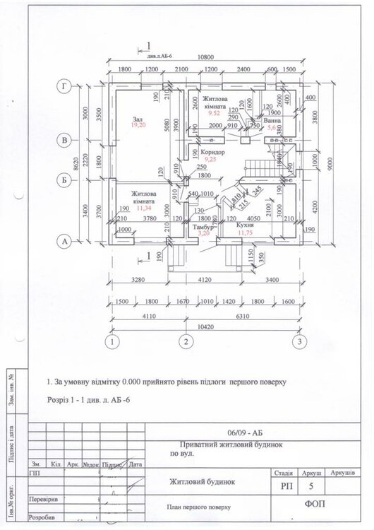
ivinn Опубліковано: 5 жовтня 2009 Автор Поділитись Опубліковано: 5 жовтня 2009 С началом работ! Пусть все движется как запланировано!!! Серёжа и Вам спасибо. Вы непосредственно имеете отношение к этой стройке, т.ч. на стадии проектирования. Вот такой получился проект. Посилання на коментар Поділитися на інших сайтах More sharing options...
ivinn Опубліковано: 5 жовтня 2009 Автор Поділитись Опубліковано: 5 жовтня 2009 Самое время строить если есть финансы. Цены на материал на минимуме, надеюсь, что и на работу тоже. Да-да, как раз, цены на минимуме. Особенно арматура. За неделю +10-15%. Посилання на коментар Поділитися на інших сайтах More sharing options...
Igor_M Опубліковано: 5 жовтня 2009 Поділитись Опубліковано: 5 жовтня 2009 Да-да, как раз, цены на минимуме. Особенно арматура. За неделю +10-15%. Точно! Я когда запрашивал, дали одни цены, а через два дня приехал забирать --- +15%... Ну я конечно пошантажировал - скинули 10%... И рабочих сейчас не найдешь днем с огнем... многие побросали и поразъезжались, остальные - при деле... а оставшиеся носом крутят... БЛИННН:evil: Посилання на коментар Поділитися на інших сайтах More sharing options...
Tugarin Опубліковано: 5 жовтня 2009 Поділитись Опубліковано: 5 жовтня 2009 Все-таки мансарда есть!!! Посилання на коментар Поділитися на інших сайтах More sharing options...
Tugarin Опубліковано: 5 жовтня 2009 Поділитись Опубліковано: 5 жовтня 2009 И еще, Вы и Ваши родственники молодцы, их поддержка, Ваше желание и все будет хорошо. Искренне желаю в ближайшее время "свить свое семейное гнездо". Повторюсь, но я рад, что обсуждения перетекли в действия. Я и многие другие форумчане с Вами. Успехов. Посилання на коментар Поділитися на інших сайтах More sharing options...
ivinn Опубліковано: 5 жовтня 2009 Автор Поділитись Опубліковано: 5 жовтня 2009 Еще немножко фото. 1-4 -Утром. 5-8 -Вечером. Сам "процесссс" проходил, когда я был на работе. Вроде бы так ничего. Посилання на коментар Поділитися на інших сайтах More sharing options...
ivinn Опубліковано: 5 жовтня 2009 Автор Поділитись Опубліковано: 5 жовтня 2009 И еще, Вы и Ваши родственники молодцы, их поддержка, Ваше желание и все будет хорошо. Искренне желаю в ближайшее время "свить свое семейное гнездо". Повторюсь, но я рад, что обсуждения перетекли в действия. Я и многие другие форумчане с Вами. Успехов. Вы не знаете всей кухни. Мой Кум строится по такому же проекту. Просто нету времени поехать сделать фотки. На выходные постараюсь навестить кумця. Посилання на коментар Поділитися на інших сайтах More sharing options...
LaRsoN Опубліковано: 5 жовтня 2009 Поділитись Опубліковано: 5 жовтня 2009 ivinn а кум где строится? Посилання на коментар Поділитися на інших сайтах More sharing options...
ivinn Опубліковано: 6 жовтня 2009 Автор Поділитись Опубліковано: 6 жовтня 2009 ivinn а кум где строится? Ответил лич. сообщением. Посилання на коментар Поділитися на інших сайтах More sharing options...
ivinn Опубліковано: 6 жовтня 2009 Автор Поділитись Опубліковано: 6 жовтня 2009 Заливка фундамента продолжается. За день замешивается, где-то приблизительно 4,5/5м3 бетона. Бута идет ~ 30/40%. Есть первые ласточки относительно качества цемента, типа на упаковке "500", но по факту совсем не то. Ф.№6 (бетон сделан с цемента из разных мешков). На сегодня ушло в бутобетон две тоны цемента, ~ 10т. отсева. Щебень, бут по факту, сколько надо было. Посилання на коментар Поділитися на інших сайтах More sharing options...
ivinn Опубліковано: 6 жовтня 2009 Автор Поділитись Опубліковано: 6 жовтня 2009 День-два и строители выйдут на уровень земли. Что бы залить полностью цоколь фундамента и верхний армопояс им при хорошей погоде надо, где-то еще дней 8/10. В итоге это конец октября, а ведь бетону ещё надо набрать свою прочность(28 дней), а там уже могут быть приморозки, заморозки. И это всё наводит меня на большие раздумья. Как быть? Посилання на коментар Поділитися на інших сайтах More sharing options...
sergey_o Опубліковано: 6 жовтня 2009 Поділитись Опубліковано: 6 жовтня 2009 Попросите на заводе подогреть бетонную смесь и накройте бетон сверху утеплителем после его укладки. Даже при температуре меньше 5С, бетон будет выделять тепло, т.е. будет использовать свой внутрений запас теплоты. Посилання на коментар Поділитися на інших сайтах More sharing options...
ivinn Опубліковано: 7 жовтня 2009 Автор Поділитись Опубліковано: 7 жовтня 2009 Попросите на заводе подогреть бетонную смесь ........... Так ведь бетон делают в бетономешалке на участке. Посилання на коментар Поділитися на інших сайтах More sharing options...
Рекомендовані повідомлення
Створіть акаунт або увійдіть у нього для коментування
Ви маєте бути користувачем, щоб залишити коментар
Створити акаунт
Зареєструйтеся для отримання акаунта. Це просто!
Зареєструвати акаунтУвійти
Вже зареєстровані? Увійдіть тут.
Увійти зараз