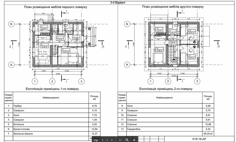
bodidron Опубліковано: 15 серпня 2018 Поділитись Опубліковано: 15 серпня 2018 Собственно вот схемы участок 20*45 Посилання на коментар Поділитися на інших сайтах More sharing options...
Mr. Hankey Опубліковано: 15 серпня 2018 Поділитись Опубліковано: 15 серпня 2018 Если дом для постоянного проживания - неудачный вариант. Комнатки малофункциональны, особенно на мансарде; ходить зимой в котельную будет не комильфо; лестница тоже не особо; терраса маленькая. Имхо, как для дачи - пойдет. Не знаю на какую сумму Вы рассчитываете, но бюджетно однозначно не получится - слишком много всяких изысков - терраса, несколько входов, лестница, да и мансарда как такова. 1 Посилання на коментар Поділитися на інших сайтах More sharing options...
tort Опубліковано: 15 серпня 2018 Поділитись Опубліковано: 15 серпня 2018 Судячи з розташування вікон на другому поверсі, там або вікна неправильної скошеної форми, або повноцінний поверх. Фасад є? Конструктивно у вас майже весь дах спирається на одну колону що в свою чергу - на довгу перемичку над проємом в кухню-столовую. Точкове навантаження на балку не є гуд. Посилання на коментар Поділитися на інших сайтах More sharing options...
bodidron Опубліковано: 15 серпня 2018 Автор Поділитись Опубліковано: 15 серпня 2018 Судячи з розташування вікон на другому поверсі, там або вікна неправильної скошеної форми, або повноцінний поверх. Фасад є? Конструктивно у вас майже весь дах спирається на одну колону що в свою чергу - на довгу перемичку над проємом в кухню-столовую. Точкове навантаження на балку не є гуд. мансардный этаж, там монолитное перекрытие по проэкту Посилання на коментар Поділитися на інших сайтах More sharing options...
vadimv Опубліковано: 15 серпня 2018 Поділитись Опубліковано: 15 серпня 2018 мансардный этажА покажете вид сбоку на фронтон? там монолитное перекрытие по проэктуНу, а крыша вся будет опираться на столб по центру дома. Об этом вам писали. И трубы будут торчать в нижней части крыши. И лестница неудобная. А что, проектант ничего лучше не смог нарисовать? 1 Посилання на коментар Поділитися на інших сайтах More sharing options...
Cheh27 Опубліковано: 15 серпня 2018 Поділитись Опубліковано: 15 серпня 2018 Тут видимо хотят вписаться в 120 м2 - из-за налога на площадь. Так законы у нас меняются внезапно - через год сделают 60 квадратов - уже и мансарду не надо строить тогда? Нельзя у нас рассчитывать на государство - стройте для себя, для удобства. На счет лестницы - у меня забежная лестница, хожу нормально даже без перил, места на лестницу с площадкой не было. На счет этого столба для конька крыши - может просто этот столб начать с фундамента, с земли (но это к конструктору вопрос). Посилання на коментар Поділитися на інших сайтах More sharing options...
ПГС-Проект Опубліковано: 16 серпня 2018 Поділитись Опубліковано: 16 серпня 2018 На счет этого столба для конька крыши При такой ширине дома можно обойтись и без него. Добавлено через 1 минуту у меня забежная лестница У меня тоже Правильно сделанная забежная лестница(комфортная высота ступени+вылет)имеет право на существование! Посилання на коментар Поділитися на інших сайтах More sharing options...
vadimv Опубліковано: 16 серпня 2018 Поділитись Опубліковано: 16 серпня 2018 При такой ширине дома можно обойтись и без него.При таких размерах дома в принципе можно что-то более вменяемое нарисовать. И не извращаться с монолитом, столбами и трубами на краю крыши. Посилання на коментар Поділитися на інших сайтах More sharing options...
ПГС-Проект Опубліковано: 16 серпня 2018 Поділитись Опубліковано: 16 серпня 2018 При таких размерах дома в принципе можно что-то более вменяемое нарисовать. Не могу не согласиться с Вами... Но критикуем вышеуказанный. Посилання на коментар Поділитися на інших сайтах More sharing options...
tort Опубліковано: 17 серпня 2018 Поділитись Опубліковано: 17 серпня 2018 При такой ширине дома можно обойтись и без него.Можна але у будь-якому випадку без ускладнення не обійдеться. Це мансарда, одже або один коньковий брус з приставними кроквами, а при такій довжині він десь посередині має на щось спиратися, або декілька прогонів, що попадають знову на перемички, ті шо віконні у фронтоні. Виходить що прийдеться ліпить ферми на 7 метрів з затяжкою вище половини висоти крокви. І складно, і дорого для будинка 7*11. Інші варіанти у вас є? Може краще в плануванні на півметра проєм зменьшити або трохи стіночку посунути? Посилання на коментар Поділитися на інших сайтах More sharing options...
vadimv Опубліковано: 18 серпня 2018 Поділитись Опубліковано: 18 серпня 2018 Може краще в плануванні на півметра проєм зменьшити або трохи стіночку посунути?Краще відірвати руки проектанту, який над цим не хоче замислюватися. Посилання на коментар Поділитися на інших сайтах More sharing options...
tort Опубліковано: 18 серпня 2018 Поділитись Опубліковано: 18 серпня 2018 Краще відірвати руки проектанту, який над цим не хоче замислюватися. Руки то чим завинили? Може ці руки ніколи і нічого не крали, а ви їх отак одразу - відривати. Якщо "не хоче замислюватися", то відривати треба не руки... 2 Посилання на коментар Поділитися на інших сайтах More sharing options...
ПГС-Проект Опубліковано: 18 серпня 2018 Поділитись Опубліковано: 18 серпня 2018 Можна але у будь-якому випадку без ускладнення не обійдеться. О каких осложнениях вы говорите? а при такій довжині він десь посередині має на щось спиратися Зачем? Виходить що прийдеться ліпить ферми на 7 метрів з затяжкою вище половини висоти крокви. Уже ближе к истине. І складно, і дорого для будинка 7*11 Вы считаете прикрутить 10-12 затяжек(ригелей) шпильками М12 и тем самым сформировать плоскость потолка на мансарде это удорожание?? Може краще Может и лучше, кто знает....)) P.S. У меня дом 8.0х11.5м с мансардой. Перекрытие по деревянным балкам(без монолита)))На мансарде нет несущей по центру... и не было Никаких осложнений и не будет! Посилання на коментар Поділитися на інших сайтах More sharing options...
bodidron Опубліковано: 18 серпня 2018 Автор Поділитись Опубліковано: 18 серпня 2018 всем спасибо за критику.... подкорректировали проэкт 2 Посилання на коментар Поділитися на інших сайтах More sharing options...
vadimv Опубліковано: 18 серпня 2018 Поділитись Опубліковано: 18 серпня 2018 всем спасибо за критику.... подкорректировали проэкт 1. Труба на крыше расположена не по линии конька, а вдоль него. Там у вас будет зимой лежать сугроб и создавать проблемы с протечками. И в хороший ливень тоже может протекать. 2. Как все-таки будут делать крышу - с затяжками или с опорой по центру? 3. Мансардные стены у вас высокие, я б на вашем месте вообще отказался от мансарды и делал полноценный двухэтажник. 4. Комнатушки маленькие, в гостиной внизу ширина 3 м - это очень узко. 5. Лестницу вы все-таки оставили веерную. Сходите к кому-нибудь домой, у кого такая есть и попробуйте по ней попадать походить, не держась руками за перила и не глядя под ноги. ЗЫ: вы можете увеличить ширину дома на метр? Есть подходящая для вас планировка 8х8. 1 Посилання на коментар Поділитися на інших сайтах More sharing options...
pump Опубліковано: 18 серпня 2018 Поділитись Опубліковано: 18 серпня 2018 подкорректировали проэктверните взад... - Вы остались без кухни. Или без гостинной. - в новой версии дымоход длиной 2 м. расположен вдоль конька, и значит за ним будет т.н. "снеговой мешок", и придется усиливать стропильную часть. - а вот для спальни 10 кв.м. вполне сойдет, как в старой версии. - зачем 2 санузла на 1-м этаже? Ну и вопрос о необходимости котельной остается открытым. Все сказанное - мое личное мнение. Посилання на коментар Поділитися на інших сайтах More sharing options...
bodidron Опубліковано: 18 серпня 2018 Автор Поділитись Опубліковано: 18 серпня 2018 верните взад... - Вы остались без кухни. Или без гостинной. - в новой версии дымоход длиной 2 м. расположен вдоль конька, и значит за ним будет т.н. "снеговой мешок", и придется усиливать стропильную часть. - а вот для спальни 10 кв.м. вполне сойдет, как в старой версии. - зачем 2 санузла на 1-м этаже? Ну и вопрос о необходимости котельной остается открытым. Все сказанное - мое личное мнение. не 2 санузла, а раздельный хз, как вы топите свои кухни по 30 квадратов? Добавлено через 59 секунд 1. Труба на крыше расположена не по линии конька, а вдоль него. Там у вас будет зимой лежать сугроб и создавать проблемы с протечками. И в хороший ливень тоже может протекать. 2. Как все-таки будут делать крышу - с затяжками или с опорой по центру? 3. Мансардные стены у вас высокие, я б на вашем месте вообще отказался от мансарды и делал полноценный двухэтажник. 4. Комнатушки маленькие, в гостиной внизу ширина 3 м - это очень узко. 5. Лестницу вы все-таки оставили веерную. Сходите к кому-нибудь домой, у кого такая есть и попробуйте по ней попадать походить, не держась руками за перила и не глядя под ноги. ЗЫ: вы можете увеличить ширину дома на метр? Есть подходящая для вас планировка 8х8. ну покажите, думалось максимально компактно, ну в принципе 2х этажный думал Посилання на коментар Поділитися на інших сайтах More sharing options...
vadimv Опубліковано: 18 серпня 2018 Поділитись Опубліковано: 18 серпня 2018 ну покажите, думалось максимально компактно, ну в принципе 2х этажный думалВот планировка двухэтажника 8х8 внутри, те же 120 кв.м. Есть еще более компактные варианты 7х8 и 6х8. С таким же количеством комнат. 1 Посилання на коментар Поділитися на інших сайтах More sharing options...
pump Опубліковано: 18 серпня 2018 Поділитись Опубліковано: 18 серпня 2018 не 2 санузла, а раздельный хз, как вы топите свои кухни по 30 квадратов? а сортир можно совместить и сэкономить место, ну, я хз какие ништяки по отоплению у вас имеются - я топлю турбированным котлом с ТП странно, что просите критики, но ее же принимаете в штыки. хотя, это ваша головная боль Посилання на коментар Поділитися на інших сайтах More sharing options...
bodidron Опубліковано: 18 серпня 2018 Автор Поділитись Опубліковано: 18 серпня 2018 а сортир можно совместить и сэкономить место, ну, я хз какие ништяки по отоплению у вас имеются - я топлю турбированным котлом с ТП странно, что просите критики, но ее же принимаете в штыки. хотя, это ваша головная боль ну совместить, сэкономлю 10см стены и 2 слоя плитки? Добавлено через 1 минуту Вот планировка двухэтажника 8х8 внутри, те же 120 кв.м. Есть еще более компактные варианты 7х8 и 6х8. С таким же количеством комнат. интересная планировка, но не понятно что за лестница Посилання на коментар Поділитися на інших сайтах More sharing options...
pump Опубліковано: 18 серпня 2018 Поділитись Опубліковано: 18 серпня 2018 ну совместить, сэкономлю 10см стены и 2 слоя плитки? зато получите нормальную кухню-гостинную, а не тот "гэндэлык", что в последнем варианте. про котельную - вы ж планируете электрокотел + ТП. тогда нафига котельная? для ГА? короче - запущенный случай, и дискутировать тут не о чем... Посилання на коментар Поділитися на інших сайтах More sharing options...
vadimv Опубліковано: 18 серпня 2018 Поділитись Опубліковано: 18 серпня 2018 не понятно что за лестницаВот такого типа только место под ней используется как санузел. Но если выкинуть котельную и санузел перенести на его место - то именно такая. И если котельная не нужна, тогда можно еще подсократить площадь без потери функционала. Вот вариант с размерами 7х8. Этот вариант можно сделать мансардным, по центру дома несущая стена, крыша безраспорная двускатная с опиранием на эту стену. В этой же стене идут дымоход и вентканалы, которые выходят строго по коньку. Никаких снеговых мешков. Посилання на коментар Поділитися на інших сайтах More sharing options...
tort Опубліковано: 18 серпня 2018 Поділитись Опубліковано: 18 серпня 2018 Вы считаете прикрутить 10-12 затяжек(ригелей) шпильками М12 и тем самым сформировать плоскость потолка на мансарде это удорожание??Взагалі то так, дорожче, якщо порівнювати чисто дві конструктивні схеми. Але коли стелю під затяжку робить, то виходить що та незначна переплата просто компенсується на перекритті. Гадав що при такому розташуванні вікон форма даху буде меньш похилою. Тоді допустимо робити і таку стелю: Автор приблизно щось подібне і намалював, ну може трохи крутіше чим того треба. Така стеля все таки трохи краще виглядає ніж пів трапеції в інтер'єрі. Хоча запартачити можна все що завгодно. Але ж планування щось занадто сильно перекроїв, аж гірше стало. Чи налякали? Мені той варіант планування не подобався лише в окремих моментах, а цей щось зовсім. Поясню трохи. Широкий проєм то гуд, але над ним треба лити міцну балку щоб потім спирати на цю стіну монолітну плиту чи плити перекриття. А потім додатково ще й центр покрівлі. Тому як один з прийомів зменьшуємо трикутник над проємом у кухню і рахуємо скільки можемо без додаткових витрат зробити ширину дверей. На глаз десь 1,2м піде без проблем. Звісно що краще прорахувати. А потім може трохи посунути проєм вбік або залишити так як є. Я брадив ітераціями мислити, а не кардинально, бо можете себе заморочити, або вашого проектувальника (хто там малює безпосередньо). Посилання на коментар Поділитися на інших сайтах More sharing options...
ПГС-Проект Опубліковано: 18 серпня 2018 Поділитись Опубліковано: 18 серпня 2018 Взагалі то так, дорожче, якщо порівнювати чисто дві конструктивні схеми В данной ситуации Не согласен, т.к. не нужно несущей стены.. Да и ригель в интерьере смотрится прекрасно, иногда сдвоенный... Ваш вариант я понял изначально,- но без внутренней несущей не обойтись, соответственно будет дороже, поверьте! Ну а вообще-то такие вопросы обсуждаются на этапе задания на проектирование. Посилання на коментар Поділитися на інших сайтах More sharing options...
tort Опубліковано: 18 серпня 2018 Поділитись Опубліковано: 18 серпня 2018 В данной ситуации Не согласен, т.к. не нужно несущей стены..но без внутренней несущей не обойтись, соответственно будет дороже, поверьте!У вас протиріччя якісь пішли. До цього моменту це ж я вам казав, що без застосування несучої дорожче вийде. Ви мене вже заплутали. Да и ригель в интерьере смотрится прекрасно, иногда сдвоенный...Це коли у вас приміщення від бокової стінки до бокової. тоді красиво, а якщо перегородка під коньком, то краще вже підшити ніж такі роги вмуровувати. 1 Посилання на коментар Поділитися на інших сайтах More sharing options...
Рекомендовані повідомлення
Створіть акаунт або увійдіть у нього для коментування
Ви маєте бути користувачем, щоб залишити коментар
Створити акаунт
Зареєструйтеся для отримання акаунта. Це просто!
Зареєструвати акаунтУвійти
Вже зареєстровані? Увійдіть тут.
Увійти зараз