bodidron Опубліковано: 27 серпня 2018 Автор Поділитись Опубліковано: 27 серпня 2018 В принципе, да, я бы только: - перевесил дверь в санузел с душем на правую сторону, чтобы она открывалась к стене - перевесил дверь в дальнюю спальню, чтобы она тоже открывалась к стене, а не к телевизору - сделал вход в гардеробную с двух сторон (себе так и буду делать на мансарде), чтобы для каждого был свой вход и не толкаться в дверях. И двери сдвижные в перегородку. Ну и подумал бы над вариантом поставить второй унитаз, оно иногда бывает нужно. ну как наполнять санузел уже решим потом, и по дверям видно будет Посилання на коментар Поділитися на інших сайтах More sharing options...
vadimv Опубліковано: 27 серпня 2018 Поділитись Опубліковано: 27 серпня 2018 ну как наполнять санузел уже решим потом, и по дверям видно будетНе, лучше сразу определяться. Чтобы потом стены не переносить и трубы под полом не перекладывать. 1 Посилання на коментар Поділитися на інших сайтах More sharing options...
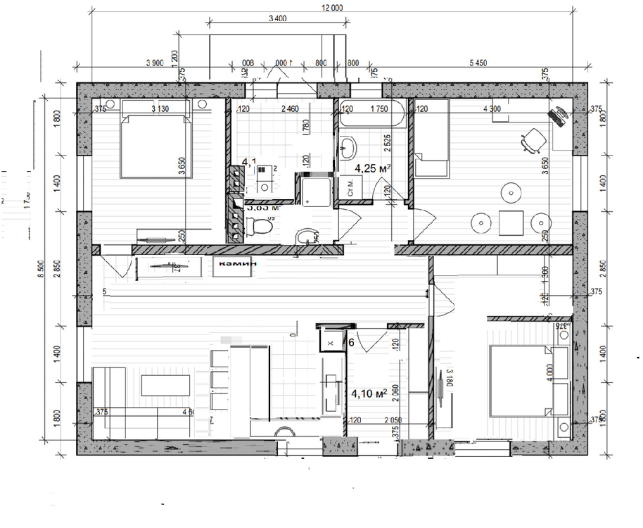
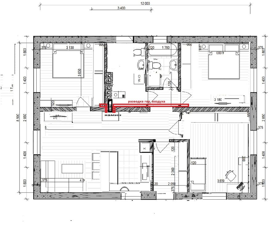
dmitriylaser Опубліковано: 27 серпня 2018 Поділитись Опубліковано: 27 серпня 2018 Обновили планировку Заинтересовала планировка. Немножко поигрался в пейнте и под мои понятия и хотелки получилось примерно так: Посилання на коментар Поділитися на інших сайтах More sharing options...
bodidron Опубліковано: 27 серпня 2018 Автор Поділитись Опубліковано: 27 серпня 2018 Заинтересовала планировка. Немножко поигрался в пейнте и под мои понятия и хотелки получилось примерно так: Окно на уровне шкафов кухни, ну такое ( Посилання на коментар Поділитися на інших сайтах More sharing options...
tort Опубліковано: 31 серпня 2018 Поділитись Опубліковано: 31 серпня 2018 Окно на уровне шкафов кухни, ну такое ( Навіщо його робити в рівень навісних шаф? Вікно між шкафами робиться. Підвіконня лише на 10-30 см вище ніж стандартне на висоті 80см. Посилання на коментар Поділитися на інших сайтах More sharing options...
dmitriylaser Опубліковано: 31 серпня 2018 Поділитись Опубліковано: 31 серпня 2018 (змінено) Окно на уровне шкафов кухни, ну такое ( Ви думаю не зрозуміли: там не П-образна кухня, а острів. Щось на кшталт цьго: Вікно при бажанні можна здвинути вліво. В вашому плануванні кухона поверхня витягнута в лінію -це не зручно. Почитайте про правило трикутника в розміщенні кухоних меблів. Змінено 31 серпня 2018 користувачем dmitriylaser добавлю Посилання на коментар Поділитися на інших сайтах More sharing options...
JuSoBe Опубліковано: 16 вересня 2018 Поділитись Опубліковано: 16 вересня 2018 Ви думаю не зрозуміли: там не П-образна кухня, а острів. Щось на кшталт цьго: Вікно при бажанні можна здвинути вліво. В вашому плануванні кухона поверхня витягнута в лінію -це не зручно. Почитайте про правило трикутника в розміщенні кухоних меблів. На Вашей картинке про треугольник - внизу линейное размещение. Чем неудобно? 1 Посилання на коментар Поділитися на інших сайтах More sharing options...
dmitriylaser Опубліковано: 18 вересня 2018 Поділитись Опубліковано: 18 вересня 2018 На Вашей картинке про треугольник - внизу линейное размещение. Чем неудобно? При небольшой длинне рабочей поверхности- еще ничего. Но при более длинной поверхности- количество наматаных километров при приготовлении еды возрастает в разы. Как-то снимали котедж в Карпатах, там ширина комнаты была 4,5м и в одном конце линейной кухни стоял холодильник а в другом -плита. Так я при том что практически не готовлю на кухне и то набегался за пару раз. А мои девченки вообще плевались. Посилання на коментар Поділитися на інших сайтах More sharing options...
bodidron Опубліковано: 19 вересня 2018 Автор Поділитись Опубліковано: 19 вересня 2018 При небольшой длинне рабочей поверхности- еще ничего. Но при более длинной поверхности- количество наматаных километров при приготовлении еды возрастает в разы. Как-то снимали котедж в Карпатах, там ширина комнаты была 4,5м и в одном конце линейной кухни стоял холодильник а в другом -плита. Так я при том что практически не готовлю на кухне и то набегался за пару раз. А мои девченки вообще плевались. Реально больше плевались бы от 6кв м. Кухни, зато треугольник, но чтобы 2му человеку подойти к холодильнику... Это же негде Посилання на коментар Поділитися на інших сайтах More sharing options...
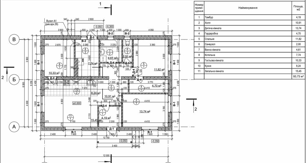
bodidron Опубліковано: 25 вересня 2018 Автор Поділитись Опубліковано: 25 вересня 2018 обновил планировку, кто что скажет? Посилання на коментар Поділитися на інших сайтах More sharing options...
vladimir_arch Опубліковано: 3 жовтня 2018 Поділитись Опубліковано: 3 жовтня 2018 обновил планировку Не знаю, как Вам и Вашей семье понравится проход в гостевую через всю общую комнату (мимо кухонного оборудования). Вопрос этот чисто индивидуальный, зависит от обычаев в семье, потому просто обращаю внимание, ни в коем случае не трактуя, как недостаток планировки - она, по моему мнению, очень хороша. Ещё один вопрос, который немного заставил задуматься - это стены, окружающие топочную. Если там будет газовый котел, и помещение перейдет в разряд пожаро- и взрывоопасных, то по-моему, есть пожарная норма (точно не назову, лень рыться), регламентирующая предел огнестойкости и этих стен, и перекрытия над помещением. Боюсь ошибиться, но вроде бы 2 часа. Если предусмотренные в этой планировке перегородки отвечают требованиям норм (или если там не будет установлен газовый котел), то значит, мои опасения беспочвенны. Посилання на коментар Поділитися на інших сайтах More sharing options...
vadimv Опубліковано: 3 жовтня 2018 Поділитись Опубліковано: 3 жовтня 2018 обновил планировку, кто что скажет? Я бы добавил дверь из топочной в коридор. Посилання на коментар Поділитися на інших сайтах More sharing options...
bodidron Опубліковано: 4 жовтня 2018 Автор Поділитись Опубліковано: 4 жовтня 2018 (змінено) Не знаю, как Вам и Вашей семье понравится проход в гостевую через всю общую комнату (мимо кухонного оборудования). Вопрос этот чисто индивидуальный, зависит от обычаев в семье, потому просто обращаю внимание, ни в коем случае не трактуя, как недостаток планировки - она, по моему мнению, очень хороша. Ещё один вопрос, который немного заставил задуматься - это стены, окружающие топочную. Если там будет газовый котел, и помещение перейдет в разряд пожаро- и взрывоопасных, то по-моему, есть пожарная норма (точно не назову, лень рыться), регламентирующая предел огнестойкости и этих стен, и перекрытия над помещением. Боюсь ошибиться, но вроде бы 2 часа. Если предусмотренные в этой планировке перегородки отвечают требованиям норм (или если там не будет установлен газовый котел), то значит, мои опасения беспочвенны. по топочной, вероятно ТТ котел По гостинной, ну так проще разводить воду/канализацию/вентиляцию( идеальный вариант топочною с комнатой поменять, но не хочется терять западное окно( в гостевую в принципе, по желанию можно и кухню переместить, если не будет плясать Змінено 4 жовтня 2018 користувачем bodidron Посилання на коментар Поділитися на інших сайтах More sharing options...
vladimir_arch Опубліковано: 8 жовтня 2018 Поділитись Опубліковано: 8 жовтня 2018 так проще разводить воду/канализацию/вентиляцию( Сильно не уверен, что такого рода соображения существенны - хоть в инженерном, хоть в стоимостном смысле - но тут, для верности, надо мнение фахівця. Посилання на коментар Поділитися на інших сайтах More sharing options...
whisker Опубліковано: 8 жовтня 2018 Поділитись Опубліковано: 8 жовтня 2018 bodidron, эту тему "Проекты одноэтажных домов без коридоров" https://www.stroimdom.com.ua/forum/showthread.php?t=194035 смотрели? Там планировок с тремя спальнями не более полусотни, которые условно можно разбить на 4-6 вариантов. Вам нужно взять каждый вариант и наложить (возможно зеркально) на Ваш участок и тогда принять решение что лучше подходит. Варианты такие: Две спальни на короткой стороне дома, смежные/разделенные санузлом, а третья отдельно, за дневной зоной. Две спальни на длинной стороне дома, смежные/разделенные санузлом, а третья отдельно, за дневной зоной. Три спальни на длинной стороне дома, смежные/разделенные санузлом. Пятистенок: линия спален/санузлов с одной стороны в длину и длинная линия кухня гостиная с другой стороны. Посилання на коментар Поділитися на інших сайтах More sharing options...
bodidron Опубліковано: 8 жовтня 2018 Автор Поділитись Опубліковано: 8 жовтня 2018 bodidron, эту тему "Проекты одноэтажных домов без коридоров" https://www.stroimdom.com.ua/forum/showthread.php?t=194035 смотрели? Там планировок с тремя спальнями не более полусотни, которые условно можно разбить на 4-6 вариантов. Вам нужно взять каждый вариант и наложить (возможно зеркально) на Ваш участок и тогда принять решение что лучше подходит. Варианты такие: Две спальни на короткой стороне дома, смежные/разделенные санузлом, а третья отдельно, за дневной зоной. Две спальни на длинной стороне дома, смежные/разделенные санузлом, а третья отдельно, за дневной зоной. Три спальни на длинной стороне дома, смежные/разделенные санузлом. Пятистенок: линия спален/санузлов с одной стороны в длину и длинная линия кухня гостиная с другой стороны. ничего компактного не нашел в теме Посилання на коментар Поділитися на інших сайтах More sharing options...
otark Опубліковано: 9 жовтня 2018 Поділитись Опубліковано: 9 жовтня 2018 Поизучайте сайты типа такого rosschapin.com/plans/cottages/betty-cottages/ Там есть много интересных деталей именно для маленьких домов.Налепить комбинацию прямоугольничков-комнаток не так сложно,а вот сделать это красиво и удобно-нужен большой опыт.Можно использовать чужой, но к этому нужно подойти с пониманием. 1 Посилання на коментар Поділитися на інших сайтах More sharing options...
whisker Опубліковано: 11 жовтня 2018 Поділитись Опубліковано: 11 жовтня 2018 ничего компактного не нашел в теме Тогда поройтесь здесь proect-doma.ru/arxitektura/planirovki/ Там есть начиная от 6х6 до 12х12 через метр. Качаете целые картинки и рассматриваете. Я там правда не нашел ничего, на мой взгляд впечатляющего, но пришел к выводу, что понятия "компактная" , "рациональная" и "комфортная" часто несовместимы. Посилання на коментар Поділитися на інших сайтах More sharing options...
vadimv Опубліковано: 11 жовтня 2018 Поділитись Опубліковано: 11 жовтня 2018 пришел к выводу, что понятия "компактная" , "рациональная" и "комфортная" часто несовместимы.Нужно просто выбрать два критерия из трех ;) 1 Посилання на коментар Поділитися на інших сайтах More sharing options...
otark Опубліковано: 11 жовтня 2018 Поділитись Опубліковано: 11 жовтня 2018 но пришел к выводу, что понятия "компактная" , "рациональная" и "комфортная" часто несовместимы. Т.е. решили,что не рационально строить компактный но не комфортный дом?В принципе очень логичный вывод. Это возможно,но требует больших усилий на тщательную проработку от архитектора.А вот заниматься этим желания ни у кого нет т.к. проекты компактных домов спросом в европейских странах не пользуются. У ипонцев этого валом,но они очень специфические. Посилання на коментар Поділитися на інших сайтах More sharing options...
bodidron Опубліковано: 12 жовтня 2018 Автор Поділитись Опубліковано: 12 жовтня 2018 на строительный паспорт сдан в итоге такой вариант, после отказа, в выдаче на предыдущий 1 Посилання на коментар Поділитися на інших сайтах More sharing options...
whisker Опубліковано: 12 жовтня 2018 Поділитись Опубліковано: 12 жовтня 2018 Нужно просто выбрать два критерия из трех ;) Далеко не факт. Опустим компактность. Возьмем только "рациональность" и "комфорт". Вот примеры: 1. Ломаные стены (эркеры и т.д) и перегородки как уход от классических форм прямоугольника (квадрата) нельзя назвать рациональными ни с точки зрения фундамента, ни утепления, ни с точки зрения опоры стропилки и т.д. Но эти "кривые" стены могут преобразить пространство, делая размещение элементов интерьера очень комфортным. 2. Рациональным решением можно считать объединенную "мокрую" зону. То есть когда кухня и санузлы расположены смежно и кучно. Меньше протяженность водных магистралей и т.д. Тему "одноэтажные дома без коридоров" можно считать неким срезом типовых решений западноевропейских и североамериканских планировок. Так вот, среди полутора сотен примеров я нашел всего три, где кухня и санузлы стоят кучно. Во всех остальных - санузел ближе к спальням. Кухня - где-то дальше. Не рационально, но зато очень комфортно. 3. Можно найти обалденно рациональную планировку и даже очень комфортную. Но если она не станет по сторонам света на участок или вход в дом попадет не туда, куда хочется - тогда насмарку весь комфорт. Т.е. решили,что не рационально строить компактный но не комфортный дом?В принципе очень логичный вывод. ..А вот заниматься этим желания ни у кого нет т.к. проекты компактных домов спросом в европейских странах не пользуются. Да это , блин, целый клубок компромиссов. Если понятия "рацио" и "комфорт" несколько субъективны и даже ефемерны, то понятия "бюджет" и "негде жить" ой как реалистичны. В моем конкретном примере задача выглядит так: дом на две спальни с общим пространством кухня-гостиная. Планировка, которая меня устраивает полностью и нормально вписывается и по сторонам света,и по входу, и по размещению помещается в габариты 9х12. Я ее условно назначил "идеальной". Компактное решение этой формулы можно воткнуть и в 8х11 и даже в 8х9. В масштабах такого дома "идеальное" решение больше по площади на 20% или около 16м2. Если взять среднюю цену по форуму стоимости готового кв. метра , то получается приличная сумма в масштабах такого жилья. Но если я годами легко могу жить с простой лампочкой ильича на потолке взамен того, чтобы не ходить в туалет через тамбур, то члены семьи - не факт. И не известно, что в конечном итоге окажется лучше - не очень удобный, но готовый дом или комфорт с призрачной перспективой завершения. 3 Посилання на коментар Поділитися на інших сайтах More sharing options...
Музей Опубліковано: 12 жовтня 2018 Поділитись Опубліковано: 12 жовтня 2018 на строительный паспорт сдан в итоге такой вариант, после отказа, в выдаче на предыдущий Отсутствие входа в котельну из дома - плохое решение. 1 Посилання на коментар Поділитися на інших сайтах More sharing options...
bodidron Опубліковано: 12 жовтня 2018 Автор Поділитись Опубліковано: 12 жовтня 2018 Отсутствие входа в котельну из дома - плохое решение. ну такое( с другой стороны меньше грязи Посилання на коментар Поділитися на інших сайтах More sharing options...
Музей Опубліковано: 12 жовтня 2018 Поділитись Опубліковано: 12 жовтня 2018 ну такое( с другой стороны меньше грязи О какой грязи речь? Если там не ТТ котёл, то это помещение будет таким же чистым, как любой санузел. Кроме того, вижу отдедьный вход, снабженный входной зоной (ступени, площадка, перила, думаю, там будет и навес), это всё уже сделано на входе в дом. Деньги на ветер... 1 Посилання на коментар Поділитися на інших сайтах More sharing options...
Рекомендовані повідомлення
Створіть акаунт або увійдіть у нього для коментування
Ви маєте бути користувачем, щоб залишити коментар
Створити акаунт
Зареєструйтеся для отримання акаунта. Це просто!
Зареєструвати акаунтУвійти
Вже зареєстровані? Увійдіть тут.
Увійти зараз