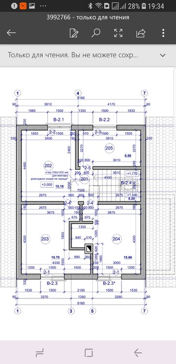
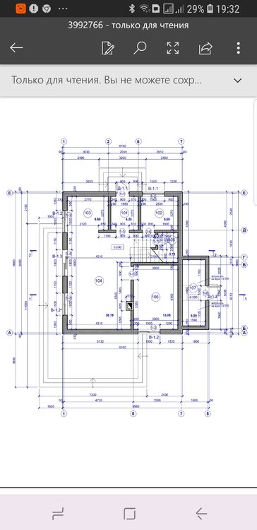
Оксна Опубліковано: 30 березня 2019 Поділитись Опубліковано: 30 березня 2019 Добрый день. Прошу совета печников. Планируем каркасный дом, камин в проекте заложен. Почитав форум решила, что нужна каминопечь. Теперь встал вопрос о фундаменте под нее, ее размерах (больше чм камин ведь.. ) и расоположении (может ли и целесообразно ли ей примыкать к каркасной стене или нужно простенок делать кирпичный самим камином...) так же на каком этапе строительства дома делать эту печь и кто этим займется? Отопление в доме будет от электрокотла. Печь нужна как альтернативный источник отопления и элемент дизайна. Планировку дома прикрепила. Посилання на коментар Поділитися на інших сайтах More sharing options...
Оксна Опубліковано: 30 березня 2019 Автор Поділитись Опубліковано: 30 березня 2019 Добрый день. Прошу совета печников. Планируем каркасный дом, камин в проекте заложен. Почитав форум решила, что нужна каминопечь. Теперь встал вопрос о фундаменте под нее, ее размерах (больше чм камин ведь.. ) и расоположении (может ли и целесообразно ли ей примыкать к каркасной стене или нужно простенок делать кирпичный сасим камином...) так же на каком этапе строительства дома делать эту печь и кто эти займется? Посилання на коментар Поділитися на інших сайтах More sharing options...
lastandr Опубліковано: 30 березня 2019 Поділитись Опубліковано: 30 березня 2019 Еще на этапе устройства фундаментов нужно под каминопечь сделать расширение и углубление ленты или ребер плиты(если УШП), а саму стену возвести из кирпича одновременно с каминопечью, т.к. в этой стене,кроме основного дымохода, будут присутствовать и дополнительные дымовые каналы (тепловой щиток), и желательно в этой же стене предусмотреть вентканал. [/img] 1 Посилання на коментар Поділитися на інших сайтах More sharing options...
Оксна Опубліковано: 30 березня 2019 Автор Поділитись Опубліковано: 30 березня 2019 Еще на этапе устройства фундаментов нужно под каминопечь сделать расширение и углубление ленты или ребер плиты(если УШП), а саму стену возвести из кирпича одновременно с каминопечью, т.к. в этой стене,кроме основного дымохода, будут присутствовать и дополнительные дымовые каналы (тепловой щиток), и желательно в этой же стене предусмотреть вентканал. [/img] Андрей Леонидович, спасибо за детальный ответ. Подскажите, не понятны показатели ширина и размер портала, это на 1м от стены выступает и 2 вширину? Труба должна быть сразу за камином или можно сбоку? В этом размере уже заложены каналы для отдачи тепла дымом? Каминопечь и трубу нужно строить когда готова коробка или на голом фундаменте? Посилання на коментар Поділитися на інших сайтах More sharing options...
lastandr Опубліковано: 30 березня 2019 Поділитись Опубліковано: 30 березня 2019 Каминопечь можно соорудить практически любых размеров(в зависимости размера топки и теплового щитка), также, как и сам портал... Основной дымоход можно расположить и сбоку топки, но это будет не совсем эстетично, т.к.минимальный наружный размер дымохода 510х510мм, а сбоку в стене толщиной 380мм будут располагаться дымовые каналы 140х140мм... Если эта стена не является несущей конструкцией для вышерасположенных элементов каркаса, то выложить все это можно на любом этапе строительства... 1 Посилання на коментар Поділитися на інших сайтах More sharing options...
РОМАН ПЕРЕДЕРИЙ Опубліковано: 31 березня 2019 Поділитись Опубліковано: 31 березня 2019 Печь в каркаснике. Фундамент 150х100. Посилання на коментар Поділитися на інших сайтах More sharing options...
salix Опубліковано: 31 березня 2019 Поділитись Опубліковано: 31 березня 2019 Поскольку вы еще на этапе проектирования,то позволю высказать совет. Планируйте дом так, чтобы смежными помещениями с печью были кухня,гостиная и санузел. Второе размеры печи и фундамента под нее зависят от теплопотерь. Без этого ничего конкретного сказать нельзя. А печь спроектировать и построить можно под любой дом. Отдельностоящий дымоход в вашем случае пустая трата денег и места в доме. Добавлено через 1 минуту Основной дымоход можно расположить и сбоку топки, но это будет не совсем эстетично, т.к.минимальный наружный размер дымохода 510х510мм, а сбоку в стене толщиной 380мм будут располагаться дымовые каналы 140х140мм... . Памятник деньгам. 1 Посилання на коментар Поділитися на інших сайтах More sharing options...
lastandr Опубліковано: 31 березня 2019 Поділитись Опубліковано: 31 березня 2019 Отдельностоящий дымоход в вашем случае пустая трата денег и места в доме. Основной дымоход открыт лишь при растопке печи, а затем он перекрывается заслонкой , и горячий дым поступает в каналы теплового щитка... Посилання на коментар Поділитися на інших сайтах More sharing options...
Оксна Опубліковано: 31 березня 2019 Автор Поділитись Опубліковано: 31 березня 2019 Концепция ясна. Теперь начинаю поиски исполнителя этой затеи. Обьект будет строиться в Киеве (Троещина). Жду ваши предложения. Посилання на коментар Поділитися на інших сайтах More sharing options...
lastandr Опубліковано: 31 березня 2019 Поділитись Опубліковано: 31 березня 2019 Можем выполнить все работы, необходимые для постройки вашего дома... Посилання на коментар Поділитися на інших сайтах More sharing options...
salix Опубліковано: 1 квітня 2019 Поділитись Опубліковано: 1 квітня 2019 Основной дымоход открыт лишь при растопке печи, а затем он перекрывается заслонкой , 1 Посилання на коментар Поділитися на інших сайтах More sharing options...
вогнистый владимир Опубліковано: 1 квітня 2019 Поділитись Опубліковано: 1 квітня 2019 . каминопечь это не груба. Дайте - точное описание Каминопечи и Грубе .А то путаница в терминах. ? Посилання на коментар Поділитися на інших сайтах More sharing options...
Оксна Опубліковано: 1 квітня 2019 Автор Поділитись Опубліковано: 1 квітня 2019 Еще один памятник деньгам. когда заурядные строители начинают строить печи ничего путного не выходит. каминопечь это не груба. Добавлено через 3 минуты Вы сначала с проектом дома определитесь. тепловые расчеты сделайте. а потом на их основании можно будет обсуждать проект печи. С проектом определились. Хотим заниматься фундаментом, для этого нужно понимать где его нужно усилить под печь. А кто и как должен делать тепловые расчеты?... Основным отоплением планируем электро котел. Посилання на коментар Поділитися на інших сайтах More sharing options...
lastandr Опубліковано: 1 квітня 2019 Поділитись Опубліковано: 1 квітня 2019 Еще один памятник деньгам. когда заурядные строители начинают строить печи ничего путного не выходит. каминопечь это не груба. Послушайте, вы , незаурядный "печник", разберитесь сначала со своими амбициями и отношениями с вашими же коллегами... https://www.stroimdom.com.ua/forum/showthread.php?p=4560989#post4560989 Да, согласен,каминопечь это не простая груба , тем более в вашем исполнении и с вашими же "тепловыми расчетами"... Однако сие сооружение обойдется заказчику в приличненькую сумму... Я же предложил более бюджетный вариант , который ,кстати, уже реализован в двух каркасниках ,а также в кирпичном доме, и все работает и греет отлично! Вы сначала с проектом дома определитесь. тепловые расчеты сделайте. а потом на их основании можно будет обсуждать проект печи. И зачем для постройки каминопечи нужно делать какие -то "тепловые расчеты", ежели эта печь будет использоваться, как источник дополнительного тепла, о чем заказчик уже пару раз повторила: Отопление в доме будет от электрокотла. Печь нужна как альтернативный источник отопления и элемент дизайна. Основным отоплением планируем электро котел. Посилання на коментар Поділитися на інших сайтах More sharing options...
янка Опубліковано: 1 квітня 2019 Поділитись Опубліковано: 1 квітня 2019 Концепция ясна. Теперь начинаю поиски исполнителя этой затеи. Обьект будет строиться в Киеве (Троещина). Жду ваши предложения. каминопечь -это просто отпительная печь из кирпича, но благодаря большой дверке с стеклом и всяким там полкам-карнизам выглядит как камин. 4 Посилання на коментар Поділитися на інших сайтах More sharing options...
Павлухан Опубліковано: 1 квітня 2019 Поділитись Опубліковано: 1 квітня 2019 вот может будет интересно: парень просто улет ) 1 Посилання на коментар Поділитися на інших сайтах More sharing options...
Оксна Опубліковано: 1 квітня 2019 Автор Поділитись Опубліковано: 1 квітня 2019 вот может будет интересно: парень просто улет ) Видео супер информативное. Мне такой камин и нужен:good: Посилання на коментар Поділитися на інших сайтах More sharing options...
salix Опубліковано: 2 квітня 2019 Поділитись Опубліковано: 2 квітня 2019 Видео супер информативное. Мне такой камин и нужен:good: Вам нужна топка железная или каминопечь? Добавлено через 7 минут Послушайте, вы , незаурядный "печник", разберитесь сначала со своими амбициями и отношениями с вашими же коллегами... https://www.stroimdom.com.ua/forum/showthread.php?p=4560989#post4560989 Да, согласен,каминопечь это не простая груба , тем более в вашем исполнении и с вашими же "тепловыми расчетами"... Однако сие сооружение обойдется заказчику в приличненькую сумму... Я же предложил более бюджетный вариант , который ,кстати, уже реализован в двух каркасниках ,а также в кирпичном доме, и все работает и греет отлично! И зачем для постройки каминопечи нужно делать какие -то "тепловые расчеты", ежели эта печь будет использоваться, как источник дополнительного тепла, о чем заказчик уже пару раз повторила: С другими разберемся без ваших советов Сразу видно что расчеты по печам для вас темный лес. Для такого дома каминопечь может служить основным источником тепла. поэтому нужен расчет необходимой мощности. Посилання на коментар Поділитися на інших сайтах More sharing options...
usanin_n Опубліковано: 2 квітня 2019 Поділитись Опубліковано: 2 квітня 2019 И зачем для постройки каминопечи нужно делать какие -то "тепловые расчеты", ежели эта печь будет использоваться, как источник дополнительного тепла, о чем заказчик уже пару раз повторила: Мне кажется, с таким подходом, в таком случае, вообще лучше ничего не делать. 2 Посилання на коментар Поділитися на інших сайтах More sharing options...
lastandr Опубліковано: 2 квітня 2019 Поділитись Опубліковано: 2 квітня 2019 С другими разберемся без ваших советов..Сразу видно что расчеты по печам для вас темный лес Так вот и разбирайтесь себе там, кто есть кто...А здесь не хрен умничать, и тем более навешивать всякие-разные ярлыки... . Для такого дома каминопечь может служить основным источником тепла. поэтому нужен расчет необходимой мощности. Опять двадцать пять...Это ж надо, как же вам хочется впарить заказчику свои не мало стоящие циферки, совсем не обращая внимания на его хотелки... 1 Посилання на коментар Поділитися на інших сайтах More sharing options...
вогнистый владимир Опубліковано: 3 квітня 2019 Поділитись Опубліковано: 3 квітня 2019 Мне кажется, с таким подходом, в таком случае, вообще лучше ничего не делать.. Подход должен быть - один. Иметь в доме РЕЗЕРВНОЕ отопление. На случай фос-мажора. Система должна быть -компактна , Красива , есть мало дров и отопить хотя бы 3 /три / комнаты. Уж - можете мне поверить. Опыт уже имеется. Всем удачи. 2 Посилання на коментар Поділитися на інших сайтах More sharing options...
kammeo Опубліковано: 5 квітня 2019 Поділитись Опубліковано: 5 квітня 2019 Добрый день. Прошу совета печников. Планируем каркасный дом, камин в проекте заложен. Почитав форум решила, что нужна каминопечь. Теперь встал вопрос о фундаменте под нее, ее размерах (больше чм камин ведь.. ) и расоположении (может ли и целесообразно ли ей примыкать к каркасной стене или нужно простенок делать кирпичный сасим камином...) так же на каком этапе строительства дома делать эту печь и кто эти займется? Узнаете теплопотери дома и решаете вопрос с основным отоплением. Встречаетесь с печниками/каминщиками и определяетесь, какая конструкция Вам наиболее комфортна (теплоемкая печь, теплоаккумулирующий или конвекционный камин). Итогом консультации и будут ответы на Ваши вопросы: конструкция и ее размеры, место и вес конструкции. По дымоходу в каркаснике - самым безопасным будет отдельностоящий керамический дымоход в блоке (типа Шидель). 1 Посилання на коментар Поділитися на інших сайтах More sharing options...
Рекомендовані повідомлення
Створіть акаунт або увійдіть у нього для коментування
Ви маєте бути користувачем, щоб залишити коментар
Створити акаунт
Зареєструйтеся для отримання акаунта. Це просто!
Зареєструвати акаунтУвійти
Вже зареєстровані? Увійдіть тут.
Увійти зараз